На Метре реклама - только нормальная. Никакого шок-контента.
Помогайте независимому ресурсу, как он помогает вам. Удачи!
Новостройки Котт. посёлки Объявления Динамика цен и сделок

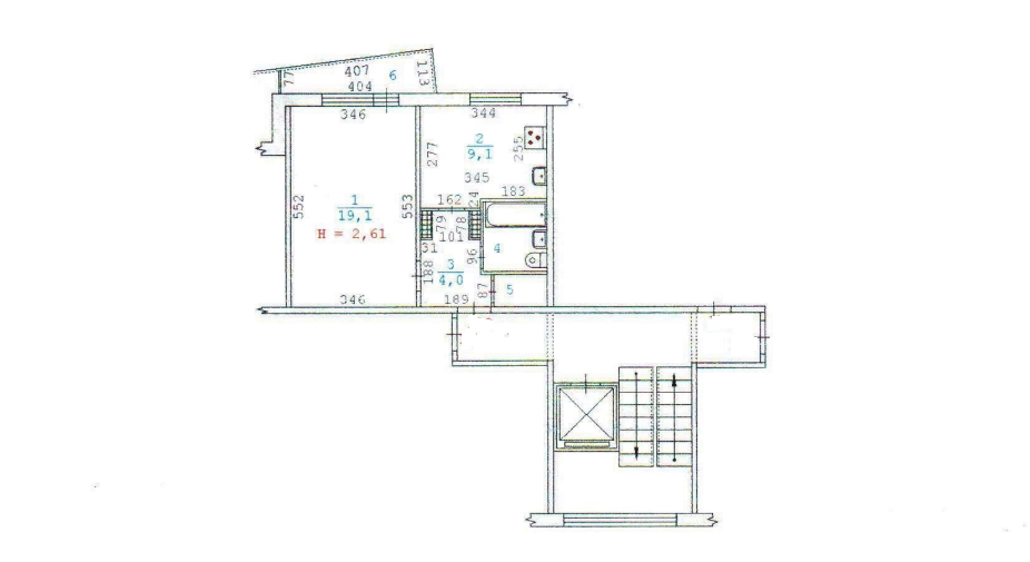
Продажа квартиры: Екатеринбург, ул. Автомагистральная, 25 (Старая Сортировка)

  • опубликовано 20.08.2024 , обновлено 9.11.2025
  • 45
Рынок:вторичный
Срок сдачи: 1981 года
Количество комнат:1
Общая площадь:34.6 м2
Жилая площадь:18 м2
Площадь кухни:7 м2
Этаж/Этажность дома:8 / 16
Санузел:совмещенный
Отделка:евроремонт
Год постройки:1981
Балкон/лоджия:лоджия
Состояние:идеальное
Цена:
3 850 000
Объявление снято с публикации
Коммунальные платежи:оплачиваются отдельно

Продается светлая однокомнатная квартира в отличном состоянии, в доме улучшенной планировки. Территория огорожена с парковкой во дворе. Большая теплая лоджия.Тёплый пол везде. Отремонтирован санузел, поменяны коммуникации, кафель, счетчики установлены, новые радиаторы отопления. Стеклопакеты на окнах. На полу качественный ламинат. Дом находится на перекрестке Автомагистральная- Теплоходный, до остановки 5 минут, рядом детский сад, школа, в шаговой доступности магазины. Один взрослый собственник, никаких долгов и обременений. Торг возможен.
ID объекта в нашей базе: 1382

Объявление снято с публикации

Ипотечный калькулятор

лет
%
Сумма кредита
3850000 ₽
Платеж
22 540 ₽

История предложений в этом доме

объявление снято с публикации в продаже комнат площадь этаж цена,
Екатеринбург, ул. Автомагистральная, 25 (Старая Сортировка) - фото квартиры 9 февраля 2024 90 дн. 2 47.1 5/16 4 990 000

Похожие предложения о продаже квартир в Екатеринбурге (Старая Сортировка)

  • 1-к квартира, Билимбаевская, 39

    • 33.2 м2
    • 15/18 этаж
    • Состояние: хорошее
    4 150 000 ₽ (125000 ₽/м2)
    Продаётся светлая и уютная однокомнатная квартира на Билимбаевской, 39Готовы поселиться в уютном и удобном районе? Предлагаем вашему вниманию тёплую и очень светлую однокомнатную квартиру, которая станет вашим идеальным домом.О квартире:· Просторная комната с большим окном, наполняющим пространство естественным светом.· Совмещённый санузел в хорошем состоянии.· Удобная кухня с возможностью размещения обеденной зоны.· Лоджия — дополнительное пространство, которое можно превратить в уголок для отдыха, кабинет или место для хранения.· Квартира находится в хорошем жилом состоянии, чувствуется забота и уют.· Возможность приобрести квартиру с мебелью и техникой по договорённости, что позволит вам въехать максимально быстро и комфортно.Выгодная локация — ваша главная выгода:· Тихий и обустроенный двор: во дворе есть детская и спортивная площадки, а также организованная парковка с местами, где ваш автомобиль будет в безопасности.· Зелёная зона для отдыха: прямо рядом с домом находится сквер Ярослава Лешукова — идеальное место для прогулок в любое время года.· Всё для семьи: в шаговой доступности расположены школа и детский сад, что экономит ваше время и силы.· Отличная транспортная доступность: множество маршрутов общественного транспорта у дома. А всего в 20 минутах неспешной ходьбы находится станция метро «Уральская», что открывает быстрый доступ в любую точку города.Это отличный вариант для первого собственного жилья, для молодой пары или в качестве удачной инвестиции в стабильный и перспективный район с развитой инфраструктурой.Квартира ждёт своих новых хозяев, чтобы подарить им тепло и уют.Свяжитесь, чтобы договориться о просмотре и задать все вопросы! ID объекта в нашей базе: 13500
    размещено: 30.01.2026 , обновлено: 2.02.2026
  • 1-к квартира, Билимбаевская, 34/2

    • 36.4 м2
    • 4/12 этаж
    • Состояние: удовлетворительное
    3 600 000 ₽ (98900 ₽/м2)
    Объект № 196878. Продам отличную, светлую, просторную однокомнатную квартиру улучшенной планировки площадью 36.4 м2. Площадь кухни 10м2., и комната 19м2. В шаговой доступности: школы дет. сады, магазины, а так же остановки общественного транспорта. Документы готовы, ждем на просмотр. ***Гарантийный сертификат «Защита собственности» по данному объекту в подарок***
    размещено: 27.01.2026 , обновлено: 2.02.2026
  • 1-к квартира, Расточная, 43/1

    • 36.4 м2
    • 3/5 этаж
    • Состояние: удовлетворительное
    3 340 000 ₽ (91800 ₽/м2)
    ID объекта в нашей базе: 5180
    размещено: 26.01.2026 , обновлено: 2.02.2026
  • 1-к квартира, Техническая, 41

    • 30 м2
    • 5/5 этаж
    • Состояние: хорошее
    3 100 000 ₽ (103300 ₽/м2)
    Объект № 196714. Продается однокомнатная квартира по адресу Техническая д 41. Квартира на пятом этаже пятиэтажного дома. Окна выходят во двор на южную сторону, что обеспечивает естественное освещение и тишину. Установлены качественные пластиковые окна. Квартира в отличном состоянии - чистая, теплая, уютная, готова к проживанию без дополнительных вложений. В стоимость входит кухонный гарнитур кондиционер и водонагреватель в ванной, что делает ее еще более привлекательной для покупателей. Расположение дома очень удобно: в шаговой доступности находится остановка общественного транспорта, художественная школа, музыкальная школа, детский садик, школа и торговый центр Яблоко. Это делает квартиру идеальным вариантом для семьи. Не упустите возможность приобрести эту замечательную квартиру. ***Гарантийный сертификат «Защита собственности» по данному объекту в подарок***
    размещено: 21.01.2026 , обновлено: 28.01.2026
  • 1-к квартира, Билимбаевская, 39

    • 36.89 м2
    • 2/18 этаж
    • Состояние: идеальное
    3 900 000 ₽ (105700 ₽/м2)
    Продаётся 1 комнатная 37 кв.м. квартира.Дoм: Гoд пocтройки 2010.Двор: Огромная закрытая дворовая территория включает в себя детскую площадку с сосновым лесом и парковку с большим количеством мест.Квaртирa: Просторная комната 16.56 метра с гардеробной 3 кв.м. и выходом на 8 метровую лоджию.Удобная кухня 8.79 метра с маленьким диваном.В прихожей много места и большой шкаф купе. Санузел совмещённый в кафеле.Новым собственникам остаётся в подарок вся мебель и техника: холодильник, стиральная машинка, 2 телевизора.Состояние - заезжай и живи.Инфpаcтруктура: Рядом школы, садики. Несколько торговых центров. Аптеки, Больница. Стадион Локомотив.Остановки транспорта - трамваи и автобусы в 5 минутах ходьбы.Юридическая чистота: Один взрослый собственник. Документы готовы к сделке.Возможна покупка по ипотеке. ID объекта в нашей базе: 13332
    размещено: 20.01.2026 , обновлено: 29.01.2026

    1-к квартира, Ангарская, 50а

    • 40.5 м2
    • 9/10 этаж
    • Состояние: хорошее
    4 495 000 ₽ (111000 ₽/м2)
    Продаётся 1-комнатная квартира. г. Екатеринбург, ул. Ангарская 50а ,9/10 этаж, панельный дом 2007 года постройки.Окна выходят во двор. Закрытая территория дома с парковкой за шлагбаумом и детской площадкой.Удобная планировка, раздельный санузел.Лоджия: просторная, с выходом из комнаты.Квартира полностью укомплектована мебелью и бытовой техникой.Кухня оснащена холодильником, микроволновой печью, духовым шкафом, варочной панелью; обеденная зона и угловой диван с дополнительным спальным местом.В комнате — система хранения и диван со спальным местом 180×200 на ортопедических ламелях.Во входной зоне — шкаф для верхней одежды, обувница, встроенный шкаф-купе. Установлена сейф-дверь (2 замка).Дом под управлением ТСЖ, пассажирский лифт, видеонаблюдение, ухоженная территория. ID объекта в нашей базе: 12153
    размещено: 15.01.2026 , обновлено: 2.02.2026

    1-к квартира, Дружининская, 5А

    • 29.7 м2
    • 17/17 этаж
    • Состояние: хорошее
    3 990 000 ₽ (134300 ₽/м2)
    Продаю однокомнатную видовую квартиру. Из окон открывается вид на город, В квартире выполнен косметический ремонт. Санузел совмещён, отделан плиткой керама марацци. Кухня оснащена гарнитуром IKEA.Есть ниша, в которой можно организовать гардеробную. Через всю квартиру по полу проходит разводка отопления и создаётся иллюзия тёплого пола. Это жильё идеально подходит для молодых семей, студентов или успешных инвесторов, желающих сдавать квартиру в аренду. Район с отличной инфраструктурой. Социальные объекты: школы, детские сады, поликлиники, сетевые магазины и пр. В шаговой доступности парк "Семь ключей", стадион "Локомотив". Доступность общественного транспорта. Дом оснащён лифтами: пассажирский и грузовой. Территория двора с местами для парковки авто закрыта. На территории двора есть детская площадка и наземная парковка. Один взрослый собственник. Обременений нет. Быстрый выход га сделку. Материнский капитал не применялся. ID объекта в нашей базе: 12134
    размещено: 12.01.2026 , обновлено: 29.01.2026

    1-к квартира, Таватуйская, 9

    • 30.6 м2
    • 4/4 этаж
    • Состояние: идеальное
    4 200 000 ₽ (137300 ₽/м2)
    Вашему вниманию представлена 1 ком квартира с прекрасным видом во двор.Плюсы нашей квартиры:-произведен качественный ремонт-Заехал и живи (поменяна электропроводка, керамогранит в коридоре и гардеробной, пластиковые окна и т.д);-наличие кабинета, гардеробной;-бонусом покупателю остается следующее имущество: Встроенная кровать-трансформер, Пуфики с подушками, Шкаф-купе, Кухонный гарнитур, Шкаф с зеркалом в ванной комнате, Раковина, ванна и унитаз в ванной комнате, Комод в гардеробе, Люстра в комнате и на кухне, Гардина в комнате ,Рулонные шторы на кухне и в комнате ,Жалюзи на балконе;-Чистая продажа(1 совершеннолетний собственник, без обременений,средства материнского капитала не использовались;-квартира освобождена. ID объекта в нашей базе: 784
    размещено: 12.01.2026 , обновлено: 24.01.2026

    1-к квартира, Надеждинская, 11

    • 30.6 м2
    • 3/5 этаж
    • Состояние: хорошее
    3 450 000 ₽ (112700 ₽/м2)
    Продаётся уютная однокомнатная квартира площадью 30.6 квадратных метров на третьем этаже пятиэтажного дома, расположенного по адресу: город Екатеринбург, микрорайон Старая Сортировка, Надеждинская улица, дом 11. Жилая площадь составляет комфортные 18 квадратных метров, а кухня занимает 6 квадратных метров, предоставляя достаточно места для приготовления и приёма пищи. Квартира привлекательна своим косметическим ремонтом, который придаёт ей свежий и аккуратный вид. Из окон открывается приятный вид на тихий двор, где расположены детская и спортивная площадки – идеальное место для отдыха и игр детей. Также во дворе предусмотрена парковка для вашего автомобиля. Развитая инфраструктура района включает в себя школу, детский сад, торговый центр Таганский ряд, Сагайдак Парк , что делает проживание здесь удобным и комфортным. Дом построен в 1966 году и имеет все необходимые коммуникации, включая проведённый газ. Санузел в квартире совмещённый, что является практичным решением для экономии пространства. Приобретая эту квартиру, вы получаете не просто жильё, а комфортное пространство для жизни в спокойном районе с развитой инфраструктурой и зелёными зонами для прогулок ID объекта в нашей базе: 9456
    размещено: 07.01.2026 , обновлено: 22.01.2026

    1-к квартира, Ангарская, 26

    • 36.8 м2
    • 4/9 этаж
    • Состояние: идеальное
    4 000 000 ₽ (108700 ₽/м2)
    Продажа однокомнатной квартиры в теплом кирпичном доме. Общая площадь: 36,8 кв.м. Жилая комната: 19 кв.м. Кухня: 9 кв.м. Высота потолка: 2,6 м. Большой балкон! Просторная гардеробная-кладовка. Состояние отличное! В квартире сделан свежий ремонт из качественных материалов: пластиковые окна и трубы, новые межкомнатные двери, натяжные потолки с точечным светом, обои, капитально сделан балкон и др. Закрытая территория, отличная детская площадка, удобная закрытая парковка возле дома, новые лифты, чистые подъезды. Район очень развит: школы, дет.сады, магазины, аптеки, остановки общественного транспорта, парк Семь ключей для прогулок и активного отдыха. Документы готовы, один взрослый собственник, никто не прописан. Квартира без обременений, возможна ипотека любого банка. Квартира освобождена. Быстрый выход на сделку. Просмотры по предварительной договоренности. По всем вопросам звоните
    размещено: 10.12.2025 , обновлено: 1.02.2026

    1-к квартира, Ангарская, 42

    • 35 м2
    • 1/9 этаж
    • Состояние: хорошее
    3 850 000 ₽ (110000 ₽/м2)
    Объект № 196340. Продам отличную, светлую однокомнатную квартиру улучшенной планировки с просторной комнатой 18.6 м2 и кухней 8м2 на первом этаже девятиэтажного дома. Квартира не требует вложений - можно заехать и жить. Все в шаговой доступности, магазины, детские сады, школы, а так же остановки общественного транспорта. Квартира без долгов и обременений! Ждём на просмотр. ***Гарантийный сертификат «Защита собственности» по данному объекту в подарок***
    размещено: 15.12.2025 , обновлено: 13.01.2026

    1-к квартира, Билимбаевская, 25/4

    • 37.2 м2
    • 1/16 этаж
    • Состояние: хорошее
    3 400 000 ₽ (91400 ₽/м2)
    В чистой продаже большая однокомнатная квартира в удачной тихой локации.Квартира расположена на 1 высоком этаже 16-этажного дома, общая площадь 37,2 м2. Спецпроект, большая кухня, прямоугольная большая комната, гардеробная, санузел раздельный. Квартира без балкона. Дом панельный, стоит вдали от дороги, у дома предусмотрены места для парковки авто, также рядом большая охраняемая парковка.В шаговой доступности остановки общественного транспорта, сетевые продуктовые магазины, аптеки, пункты выдачи заказов, банковские отделения.Рядом школы №122, 129, Железнодорожный техникум, детские сады №46,51.Также рядом расположены МФЦ, детская спортивна школа Старт, спорткомплекс Локомотив, .Для отдыха и прогулок недалеко находятся: парк Локомотив, парк Семь Ключей, сквер полярника Соловьева.Если понравилась квартира, но не одобрена ипотека или не продана своя квартира, обращайтесь, поможем. ID объекта в нашей базе: 6179
    размещено: 27.11.2025 , обновлено: 13.01.2026

    1-к квартира, Червонная, 19/2

    4 700 000 ₽ (119300 ₽/м2)
    Предлагаем в чистой продаже уютную, ухоженную квартиру, с качественным ремонтом . Большая правильной формы комната (19 кв.м.) позволит зонировать пространство, а кухня (12 кв.м.) принять друзей на дружескую вечеринку. Высокий этаж, окна выходят на юго и это потрясающие закаты с видом на пруд. Бонусы, входящие в стоимость: - кухонный гарнитур с варочной поверхностью; - большая кровать, вместительный шкаф в комнате; - удобная прихожая в коридоре; На придомовой территории всегда можно найти место для своего авто. Юридическая сторона сделки: один взрослый собственник, маткапитал не использован, продается не в браке. Инфраструктура: супермаркеты, пункты выдачи заказов, фитнес-клуб, сквер полярника Соловьева, парк Семь Ключей и парк-стадион Локомотив, Для малышей рядом с домом детский сад №131, для школьников две школы №129, чуть подальше лицей № 3 Магазины, аптеки, кафе - все что нужно для размеренного проживания. Приличные соседи добавляют безопасности спокойствия. Одним словом продаем уют, тепло и качество жизни. Юридически чистый объект. Оформление ипотеки на этот дом для вас будет бесплатно! Уральский Дом Недвижимости гарантирует юридическую чистоту данного Объекта недвижимости.
    размещено: 25.11.2025 , обновлено: 29.01.2026

    1-к квартира, Дружининская, 5а

    • 31.2 м2
    • 15/17 этаж
    • Состояние: хорошее
    4 099 000 ₽ (131400 ₽/м2)
    Фантастически светлая, с видом на город и салют, просторная, с гардеробом, в современном доме, с чистым подъездом, с закрытым двором, с интересной детской площадкой, с местами для парковки, замечательная, уютная, ухоженная квартира ждет Вас! приходите, влюбляйтесь, покупайте, заезжайте, встречайте Новый год в НОВОЙ КВАРТИРЕ! Мы Вам ее с удовольствием продадим! И в ипотеку тоже! Квартира без долгов, обременений, прописанных, детей, наследников, продается не под давлением, не по доверенности, по полной стоимости и любым способом расчета! Квартира в собственности БОЛЕЕ 10 лет-что делает сделку максимально безопасной. Ключи в день сделки. ID объекта в нашей базе: 4835
    размещено: 13.11.2025 , обновлено: 31.01.2026

    1-к квартира, Пехотинцев, 2В

    • 25.1 м2
    • 4/9 этаж
    • Состояние: идеальное
    4 999 000 ₽ (199200 ₽/м2)
    В продаже светлая уютная студия в районе Старая Сортировка по улице Пехотинцев д. 2ВКвартира:- общая площадь по фактическим замерам - 25,47 м2- этаж 4 из 9- в квартире выполнен современный дизайнерский ремонт- высота потолков - 2,7 м- счетчики ГВС, ХВС , электричество, отопление, радиатор отопления с терморегуляторами- сейф дверь- в квартире остается вся мебель и техника, что позволит вам сразу заселиться и жить с комфортомДом:- дом 2023 г.- ЖК ДЕПО, застройщик Брусника- подъезды с дизайнерской отделкой- в доме есть велосипедная и колясочная- территория двора закрытая ухоженная с клумбами, площадкой и беседками- придомовая стоянка для машин- дом расположен в благоустроенном районе с развитой инфраструктурой - в пешей доступности находятся школы, детские сады, клиники и магазины, что делает данное предложение особенно привлекательным для молодых семей - до станции метро "Уральская" 10 минут на автомобиле, до центра - 15 минут- рядом супермаркеты, «Жизньмарт», парк «Таганская Слобода», ТРЦ «Карнавал», рынок.Легко купить: наличные, ипотека.Поможем с реализацией Вашей недвижимости для приобретения данного объекта.Помощь в одобрении ипотеки по наилучшим ставкам от банков партнёров.Квико недвижимость гарантирует своим клиентам безопасность сделки, наша деятельность застрахована. ID объекта в нашей базе: 4713
    размещено: 30.10.2025 , обновлено: 16.01.2026

    1-к квартира, Ангарская, 54/б

    • 36 м2
    • 1/10 этаж
    • Состояние: хорошее
    3 820 000 ₽ (106100 ₽/м2)
    Объект № 195097. Продаю отличную 1-комнатную квартиру с лоджией, в теплом кирпичном доме. Закрытая территория, хорошая детская площадка во дворе. Рядом школы, садики, магазины. Остается кухонный гарнитур, холодильник Индезит, стиральная машинка, 2 дивана, шкаф купе, стенка. Заезжай и живи, или сдавай в аренду - полностью оборудована, получай прибыль. ***Гарантийный сертификат «Защита собственности» по данному объекту в подарок***
    размещено: 21.10.2025 , обновлено: 31.01.2026

    1-к квартира, Ангарская, 54б

    • 34.7 м2
    • 5/10 этаж
    • Состояние: хорошее
    4 100 000 ₽ (118200 ₽/м2)
    Предлагаю квартиру в КИРПИЧНОМ ДОМЕ 2009 года. Территория дома огорожена, двор без машин.Хорошая детская площадка. Организовано ТСЖ.Есть огороженная территория наземного паркинга для жителей дома и подземный паркинг. КВАРТИРА БЕЗ ОБРЕМЕНЕНИЙ!!!Окна квартиры смотрят во двор, южная сторона.В квартире выполнен качественный ремонт (поменяны двери, радиаторы отопления, дополнительно утеплён пол, кафельная современная плитка в сан. узле).Рядом с домом расположен железнодорожный техникум.Торговый центр, продуктовые магазины в шаговой доступности.Один взрослый собственник с момента постройки дома.ЧИСТАЯ ПРОДАЖА!Не задано ID объекта в нашей базе: 241
    размещено: 05.10.2025 , обновлено: 12.01.2026

    1-к квартира, Минометчиков, 42

    • 31 м2
    • 5/5 этаж
    • Состояние: удовлетворительное
    2 800 000 ₽ (90300 ₽/м2)
    Объект № 194371. Продаем 1- комнатную квартиру. Солнечная сторона, вид на Верх-Исетский пруд. Рядом с домом школы, детские садики, магазины, вся транспортная развязка. Обременений, детских долей и других сложностей НЕТ. Очень быстрый выход на сделку! ***Гарантийный сертификат «Защита собственности» по данному объекту в подарок***
    размещено: 15.09.2025 , обновлено: 24.01.2026

    1-к квартира, Кунарская, 35

    • 30.5 м2
    • 2/3 этаж
    • Состояние: хорошее
    2 999 000 ₽ (98300 ₽/м2)
    Один взрослый собственник!Ключи в день полной оплаты!!!Без залогов и обременений! Комфортный второй этаж! Зеленый двор с детской площадкой! Удобная функциональная планировка с просторной комнатой. Балкон и окна пластик- во двор, ванна– кафель, счетчики на свет и воду, В подарок покупателю: кухонный гарнитур, вместительный шкаф-купе с подсветкой! Удачное месторасположение дома: рядом вся инфраструктура: школы, д/сады, сетевые магазины, стадион «Локомотив», парки, банки, остановки транспорта (трамвай, автобус), поликлиники и многое другое! Помощь в одобрении ипотеки! Приглашаем на просмотры в удобное для Вас время. Звоните! ID объекта в нашей базе: 8805
    размещено: 08.09.2025 , обновлено: 2.02.2026

    1-к квартира, Техническая, 148

    • 41.6 м2
    • 14/26 этаж
    • Состояние: удовлетворительное
    4 000 000 ₽ (96200 ₽/м2)
    Транспорт, парки, школы, садики все в шаговой доступности ID объекта в нашей базе: 25914
    размещено: 21.08.2025 , обновлено: 26.01.2026

Новостройки Екатеринбург, мкр-н. Старая Сортировка

Приоритет

Увеличивает просмотры в 3 раза

Ваше объявление показывается в списке выше обычных объявлений. подключить