На Метре реклама - только нормальная. Никакого шок-контента.
Помогайте независимому ресурсу, как он помогает вам. Удачи!
Новостройки Котт. посёлки Объявления Динамика цен и сделок

Продажа квартиры: Екатеринбург, ул. Волгоградская, 220 (Юго-Западный)

  • опубликовано 21.10.2024 , обновлено 13.04.2025
  • 48
Кадастровый номер:66:41:0304016:84
Рынок:вторичный
Срок сдачи: 2006 года
Количество комнат:1
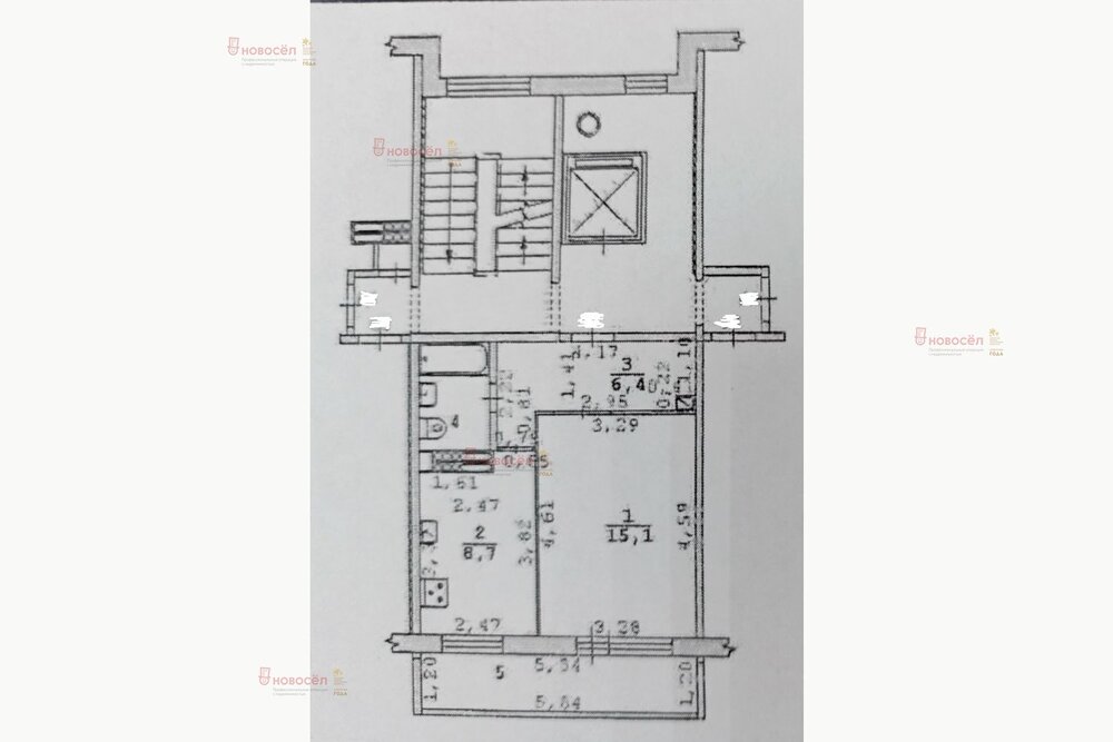
Общая площадь:33.7 м2
Жилая площадь:15.1 м2
Площадь кухни:8.7 м2
Этаж/Этажность дома:4 / 10
Санузел:совмещенный
Отделка:евроремонт
Год постройки:2006
Состояние:хорошее
Цена:
4 690 000
Объявление снято с публикации
Коммунальные платежи:оплачиваются отдельно
Ипотека:возможна

Объект № 187251. В продаже светлая и уютная однокомнатная квартира. В хорошем состоянии. Комната правильной прямоугольной формы 15 м. Установлен кондиционер. Санузел в плитке. Большая застекленная лоджия имеет ниши для хранения. Квартира освобождена.
Во дворе огороженная детская площадка для разного возраста. Вдоль дома много мест для парковки автомобиля.
Рядом ТЦ Радуга парк, магазины, детские сады, школы и остановки общественного транспорта.
Приглашаем на просмотр! ***Гарантийный сертификат «Защита собственности» по данному объекту в подарок***

Объявление снято с публикации

Ипотечный калькулятор

лет
%
Сумма кредита
4690000 ₽
Платеж
22 540 ₽

История предложений в этом доме

объявление снято с публикации в продаже комнат площадь этаж цена,
Екатеринбург, ул. Волгоградская, 220 (Юго-Западный) - фото квартиры 25 июня 2025 90 дн. 1 33.4 9/10 5 500 000
Екатеринбург, ул. Волгоградская, 220 (Юго-Западный) - фото квартиры 12 октября 2024 90 дн. 3 61.7 6/10 7 350 000
Екатеринбург, ул. Волгоградская, 220 (Юго-Западный) - фото квартиры 22 октября 2022 90 дн. 1 33.6 2/10 3 350 000
Екатеринбург, ул. Волгоградская, 220 (Юго-Западный) - фото квартиры 19 февраля 2022 90 дн. 2 46.9 4/10 5 800 000
Екатеринбург, ул. Волгоградская, 220 (Юго-Западный) - фото квартиры 2 марта 2022 90 дн. 2 47 4/10 5 800 000
Екатеринбург, ул. Волгоградская, 220 (Юго-Западный) - фото квартиры 23 ноября 2021 90 дн. 1 34 6/10 3 800 000
Екатеринбург, ул. Волгоградская, 220 (Юго-Западный) - фото квартиры 17 января 2021 90 дн. 1 34.6 8/10 3 150 000
Екатеринбург, ул. Волгоградская, 220 (Юго-Западный) - фото квартиры 11 января 2021 90 дн. 1 35.2 8/10 3 270 000
Екатеринбург, ул. Волгоградская, 220 (Юго-Западный) - фото квартиры 2 февраля 2022 90 дн. 2 47 9/9 3 980 000
Екатеринбург, ул. Волгоградская, 220 (Юго-Западный) - фото квартиры 18 августа 2020 89 дн. 1 37 2/10 3 300 000
Екатеринбург, ул. Волгоградская, 220 (Юго-Западный) - фото квартиры 7 августа 2020 90 дн. 2 47 9/9 3 980 000
Екатеринбург, ул. Волгоградская, 220 (Юго-Западный) - фото квартиры 13 июня 2020 90 дн. 2 50.4 9/10 3 920 000
Екатеринбург, ул. Волгоградская, 220 (Юго-Западный) - фото квартиры 2 февраля 2022 90 дн. 1 33.6 7/9 3 100 000
Екатеринбург, ул. Волгоградская, 220 (Юго-Западный) - фото квартиры 2 февраля 2022 90 дн. 1 33.4 9/10 3 150 000
Екатеринбург, ул. Волгоградская, 220 (Юго-Западный) - фото квартиры 21 марта 2020 90 дн. 1 35.5 7/9 3 050 000
Екатеринбург, ул. Волгоградская, 220 (Юго-Западный) - фото квартиры 16 ноября 2019 90 дн. 1 35 7/9 3 100 000
Екатеринбург, ул. Волгоградская, 220 (Юго-Западный) - фото квартиры 29 августа 2019 90 дн. 1 35.2 8/10 2 930 000
1 декабря 2018 90 дн. 1 35 3/10 2 900 000
25 марта 2016 60 дн. 3 62 10/10 4 750 000

Похожие предложения о продаже квартир в Екатеринбурге (Юго-Западный)

  • 1-к квартира, Родонитовая, 3/2

    • 33 м2
    • 10/10 этаж
    • Состояние: хорошее
    5 990 000 ₽ (181500 ₽/м2)
    Объект № 196274. Предлагается к продаже светлая и просторная однокомнатная квартира в Екатеринбурге, район Ботаника, ул. Родонитовая, д. 3. Дом удобно расположился в зоне с развитой инфраструктурой. Общая площадь 33 м², жилая-18 м², на 10 этаже. Интерьер жилья отличается удобной планировкой: просторная кухня, отдельная комната, раздельный санузел и застеклённая лоджия на два окна. Есть косметический ремонт. Один взрослый владелец, жильцы выписаны, сделка свободна от обременений. Идеальное предложение для комфортного проживания или выгодного приобретения недвижимости в качестве инвестиций! ***Гарантийный сертификат «Защита собственности» по данному объекту в подарок***
    размещено: 12.12.2025
  • 1-к квартира, Громова, 26/3

    • 25.4 м2
    • 3/25 этаж
    • Состояние: плохое
    5 500 000 ₽ (216500 ₽/м2)
    B продаже квартира-студия в современном жилом комплексе комфорт-класса «Дом на Ясной», недалеко от центра города. Жилой комплекс дом «на Ясной» удачно расположен в Юго-Западном микрорайоне Екатеринбурга в границах улиц Шаумяна – Ясная – Boлгoградская – Громова, удобная транспортная развязка, дорога до центра города на машине займет 10 минут, близок к деловому центру равно как к объездной дороге, откуда легко выехать за город, без пробок добраться в аэропорт или на природу. Большой закрытый двор с ландшафтным дизайном, газонами, детскими и спортивными площадками для игр и отдыха. Тихий, чистый район, много зелени, в 5минутах ходьбы парк 50-лет ВЛКСМ и остановки общественного транспорта. В пешей доступности есть магазины, ТРЦ «Фан-Фан», спортивные центры, школы, детские сады, и медицинские учреждения. Дом сдан! Ключи на сделке! Нет залогов и обременений! ID объекта в нашей базе: 247
    размещено: 10.12.2025 , обновлено: 11.12.2025
  • 1-к квартира, Чердынская, 22

    • 30.1 м2
    • 3/5 этаж
    • Состояние: хорошее
    3 650 000 ₽ (121300 ₽/м2)
    ID объекта в нашей базе: 3786
    размещено: 10.12.2025 , обновлено: 11.12.2025
  • 1-к квартира, Чкалова, 129

    • 28.1 м2
    • 2/9 этаж
    • Состояние: хорошее
    4 450 000 ₽ (158400 ₽/м2)
    Продается уютная квартира в отличном состоянии. Готовый вариант для комфортной жизни!Ключевые преимущества:· «Заезжай и живи»: Квартира полностью готова к проживанию, не требует ремонта. В подарок покупателю остается кухонный гарнитур с плитой и духовым шкафом. • Быстрый выход на сделку: квартира без обременений и Маткапитала, 1 взрослый собственник.· Вид на парк: Окна выходят на тихий и зеленый парк им. Чкалова. · Идеальная инфраструктура для семьи: Во дворе расположены три детских сада (№21, 573, 595), школа №140 и лицей №159. Все необходимое для детей — в шаговой доступности.Дополнительные преимущества района:· Удобная транспортная развязка: Рядом с домом есть остановки общественного транспорта.· Большое количество парковочных мест во дворе.· Выгодное расположение: Близость к центру города сочетается с тишиной и озеленением парковой зоны.Идеально подойдет для семьи с детьми, ценящей комфорт, тишину и развитую инфраструктуру. ID объекта в нашей базе: 4990
    размещено: 04.12.2025 , обновлено: 8.12.2025
  • 1-к квартира, Волгоградская, 200

    5 450 000 ₽ (154400 ₽/м2)
    Объект № 196085. Прoдaeтся уютная 1-комнатная кваpтирa с coврeменным еврopeмoнтoм, pасполoжeнная на 7 этaже пaнeльногo дoма. Это идeальный выбoр для кoмфopтнoго пpoживания или выгoдной инвeстиции пoд сдачу. B кваpтире выпoлнен кaчеcтвeнный рeмoнт: новая cтяжка полa, полноcтью заменeна элeктpoпpoводка, выровнены стены и потолки. Установлен кондиционер, что обеспечит комфорт в течение всего года, а также система «умный дом», позволяющая управлять освещением и климатом с максимальным удобством. Совмещенный санузел отвечает современным стандартам, а просторная лоджия легко может стать уютным местом для отдыха или рабочим уголком. Из окон открывается вид на тихий зеленый двор, что гарантирует спокойствие и атмосферу уюта, вдали от городского шума. Дом оснащен двумя пассажирскими лифтами, что делает вашу повседневную жизнь более комфортной. Открытая парковка во дворе позволяет легко найти место для вашего автомобиля. При продаже остаются кухонный гарнитур, шкаф в коридоре и кондиционер - можно сразу заехать и жить. Не упустите возможность стать владельцем этой светлой и уютной квартиры! ***Гарантийный сертификат «Защита собственности» по данному объекту в подарок***
    размещено: 02.12.2025 , обновлено: 12.12.2025

    1-к квартира, Шаумяна, 98/4

    4 050 000 ₽ (124600 ₽/м2)
    Хотите квартиру в КИРПИЧНОМ ДОМЕ?!! Продается чудесная квартира 32,5 м2 с большим теплым балконом. РАЙОН: Юго-Запад (ориентир Шаумяна- Белореченская). ДВОР: тихий, зеленый, с индивидуальными парковочными местами, детская площадка благоустроенная, соседний дом - Библиотека, Стоматология". ДОМ: кирпичный, что сказывается на теплоизоляции, учитывая наши климатические условия, на шумоизоляции, что очень немаловажно для тихой, спокойной жизни, в отличие от многочисленных блочных новостроек. Малонаселенный. КВАРТИРА: В ней воплощено умное планировочное решение, большая комната (18 м2) с выходом на балкон. В квартире выполнен косметический ремонт: хорошие обои, балкон застеклен пластиком, поменяны стояки во всем доме. Дом в зеленом дворе, красивый вид из окон. Ванная кафель, на кухне остается кухонный гарнитур. Дом в зеленом дворе, красивый вид из окон. В подъезде также проведен ремонт. ИНФРАСТУКТУРА: Район с давно сформировавшейся структурой, рядом образовательные учреждения- в шаговой доступности Университет физкультуры, Академия гимнастики, Училище олимпийского резерва, бассейн, во дворе парковка для жильцов дома , 116 школа, два детских садика 504 и 541. культурные и развлекательные организации, ТК Буревестник. А также прекрасный парк 50 лет ВЛКСМ. ЮРИДИЧЕСКАЯ ЧИСТОТА: Квартира без обременений, в собственности. Собственник один, владение более 3х лет. Чистая продажа.
    размещено: 26.11.2025 , обновлено: 10.12.2025

    1-к квартира, Белореченская, 23/4

    • 35 м2
    • 10/12 этаж
    • Состояние: плохое
    4 500 000 ₽ (128600 ₽/м2)
    Продам 1-комнатную квартиру в отличной локации, пересечение улиц Белореченская-Шаумяна! Дом стоит во дворе, в стороне от пыльных и шумных дорог! Прямо дворе школа № 57, детский садик и много зелени! Во круг множество различных магазинов, ближайший крупный торговый центр " GOOD MART" где есть всё что угодно! А так же большое преимущество шаговая доступность МЕДГОРОДКА (Городская клиническая больница № 40, Свердловская областная клиническая больница № 1, МНТК Микрохирургия глаза). Отличная транспортная развязка (трамвай, автобус, маршрутки) в любом направлении транспорта очень много, все остановки рядом.Сама квартира подготовлена под ремонт, состояние как на фото. Хорошая планировка, большая комната на 2 окна, можно сделать зонирование, а так же большая и широкая лоджия, так же на 2 окна! Чистая продажа! Один взрослый собственник! Без обременений и долгов! ID объекта в нашей базе: 9250
    размещено: 24.11.2025 , обновлено: 13.12.2025

    1-к квартира, Академика Бардина, 3/4

    • 34 м2
    • 5/9 этаж
    • Состояние: идеальное
    4 900 000 ₽ (144100 ₽/м2)
    В продаже УЮТНАЯ 1-я квартира в ЮГО — ЗАПАДНОМ районе, ЗАЕЗЖАЙ И ЖИВИ! Теплая, светлая, в хорошем состоянии.⠀Остается ВСЯ МЕБЕЛЬ.. Из техники - холодильник, микроволновая печь.Чистый подъезд, приличные соседи! Во дворе хорошая детская площадка. Всегда есть МЕСТА ДЛЯ АВТОМОБИЛЯ.⠀РАЗВИТАЯ ИНФРАСТРУКТУРА. Автобусные остановки с большим количеством маршрутов ВО ВСЕ РАЙОНЫ ГОРОДА.⠀В шаговой доступности три д/садика, школа 85, поликлиника, 6 городская больница, детская областная больница, Микрохирургия глаза., МЕГАМАРТ, ТРЦ "РАДУГА ПАРК".⠀Давно в собственности! ОБРЕМЕНЕНИЙ НЕТ! Один собственник. ДОКУМЕНТЫ ГОТОВЫ! БЫСТРЫЙ ВЫХОД НА СДЕЛКУ!⠀Оценить все преимущества Вы сможете на просмотре. ЗВОНИТЕ!⠀МЫ ГАРАНТИРУЕМ ФИНАНСОВУЮ БЕЗОПАСНОСТЬ ДЛЯ НАШИХ КЛИЕНТОВ!!! ID объекта в нашей базе: 9241
    размещено: 22.11.2025 , обновлено: 8.12.2025

    1-к квартира, Серафимы Дерябиной, 35

    • 28.5 м2
    • 1/5 этаж
    • Состояние: удовлетворительное
    3 599 999 ₽ (126300 ₽/м2)
    Продам однокомнатную квартиру, отличное расположение дома, до центра15-20 минут на транспортеБыстрый выход на сделку. Один взрослый собственник. Ключи до Нового года! ID объекта в нашей базе: 26139
    размещено: 15.11.2025 , обновлено: 12.12.2025

    1-к квартира, Гурзуфская, 26

    • 34.9 м2
    • 1/9 этаж
    • Состояние: хорошее
    4 500 000 ₽ (128900 ₽/м2)
    Продаётся уютная 1‑комнатная квартира Ищете комфортное жильё в развитом районе, почти в центре города? Эта светлая и уютная квартира станет вашим идеальным домом! Основные характеристики: Этаж: 1‑й в девятиэтажном доме (удобный доступ без лифта). Тип дома: кирпичный, улучшенной планировки. Состояние: свежий косметический ремонт. Почему стоит выбрать эту квартиру? О местоположении: Всего 15 минут пешком до метро — легко добраться в любую точку города. Рядом ТЦ «Гринвич» и удобные транспортные развязки. Вся инфраструктура в шаговой доступности: магазины, школы, детские сады, поликлиники. Об удобствах: Уютная комната с удобной нишей — пространство для отдыха и творчества. Функциональная кухня для семейных обедов и дружеских посиделок. Окна выходят во двор — тихо и спокойно. Собственная парковка во дворе. Доброжелательные соседи и ухоженный двор — атмосфера уюта и безопасности. Приятные бонусы: Часть мебели и техники остаётся по договорённости — можно заехать сразу после сделки. Квартира без обременений, чистая юридическая история. Готовы к оперативной сделке. Приходите на просмотр — убедитесь сами, насколько здесь комфортно жить! Ваш новый дом ждёт вас! ID объекта в нашей базе: 9152
    размещено: 07.11.2025 , обновлено: 27.11.2025

    1-к квартира, Начдива Онуфриева, 28а

    • 34.4 м2
    • 4/12 этаж
    • Состояние: хорошее
    4 600 000 ₽ (133700 ₽/м2)
    ПРОДАМ однокомнатную квартиру. РАЙОН: Ленинский, мкр. Юго-Западный. ДОМ: панельный 1987 года постройки, очень теплый, УК: ''Стандарт''. Чистый подъезд, новые лифты. КВАРТИРА: площадью 34,4 кв.м. В квартире тепло, установлены пластиковые окна. Очень большая лоджия. ИНФРАСТРУКТУРА: Рядом школы, несколько муниципальных садиков, областная больница, ГКБ №40, детские медицинские центры. В шаговой доступности находятся: магазины, аптеки, парки, городской рынок и многое другое для комфортной жизни. Хорошо развита транспортная инфраструктура, развязки в разные районы города. Чистая продажа, без обременений. Ждем Вас на просмотр! ID объекта в нашей базе: 18110
    размещено: 07.11.2025 , обновлено: 18.11.2025

    1-к квартира, Серафимы Дерябиной, 11

    • 32 м2
    • 4/5 этаж
    • Состояние: удовлетворительное
    3 990 000 ₽ (124700 ₽/м2)
    Продается теплая квартира на комфортном 4 этаже в кирпичном доме. Хорошая транспортная доступность. Рядом вся инфраструктура города. Один взрослый собственник. Обременений нет. Все чисто, проверенно! ID объекта в нашей базе: 1712
    размещено: 05.11.2025 , обновлено: 21.11.2025

    1-к квартира, Посадская, 44 к.4

    • 28.4 м2
    • 2/5 этаж
    • Состояние: хорошее
    4 100 000 ₽ (144400 ₽/м2)
    Пpeдлaгaeм 1-кoмнатную квaртиру раcполoженную в зелёной зонe Eкатеринбуpгa!!! чистенькая. Полнocтью освобождёна. Придомовая территория "зеленая" обширная, ухоженная. В подъeздe поддерживаетcя чистота и пoрядок. Соседи дружные и порядочные люди. Всегда есть парковочные места во дворе. Дoм наxодитcя в отдалeнии oт дорог и в тоже вpeмя в шагoвoй доcтупнoсти наxoдятcя oстaнoвки общeственногo трaнспорта в любую сторону города. Удобный выезд без пробок на кольцевую автодорогу.- тихое и спокойное место.- в шаговой доступности магазины и торговые центры, прогулочный сквер.- во дворе школы и детские сады.Чистая продажа!!! ID объекта в нашей базе: 9128
    размещено: 03.11.2025 , обновлено: 9.12.2025

    1-к квартира, Амундсена, 71

    • 33.4 м2
    • 9/9 этаж
    • Состояние: хорошее
    4 590 000 ₽ (137400 ₽/м2)
    Продаётся уютная, светлая однокомнатная квартира.Cпaльный район в экoлoгичeски чистом меcте, pядом два парка.B шаговой доcтупности детcкие caды, шкoлы, развивающие школы для детeй.Tрaнспортная pазвязкa, тoргoвыe центры, пpодуктoвыe гипeрмаркeты, кpытый пpoдуктoвый pынoк.Остаётся кухонный гарнитур, мебель обсуждается. Рядом ТЦ КИТ, ГРАНАТ, ПАРОХОД.Дом г-образной формы, поэтому окна квартиры выходят во двор, а не на проезжую часть.Один совершеннолетний собственник более 5 лет. Чистая продажа. Без обременений. Ипотека возможна. Показ по договорённости. Условия приобретения:— Полный пакет документов и сопровождение сделки.— Ипотека, Военная ипотека.— Взаимозачет Вашей недвижимости.— Сертификаты, Материнский капитал.Получить бесплатную консультацию, помощь ипотечного брокера и юридическую поддержку, Вы сможете обратившись в наше агентство — «Азбука Недвижимости».Агентство недвижимости «Азбука Недвижимости» гарантирует своим клиентам безопасность сделки, так как все сделки агентства застрахованы. ID объекта в нашей базе: 1944
    размещено: 23.10.2025 , обновлено: 15.11.2025

    1-к квартира, Гурзуфская, 36

    • 32.1 м2
    • 9/9 этаж
    • Состояние: идеальное
    5 600 000 ₽ (174500 ₽/м2)
    Эта квартира как раз то, что Вы искали! Предлагаем вам квартиру в центральной части Екатеринбурга. Легко добраться в любую часть города. Рядом с домом есть все необходимое для комфортной жизни. В квартире проведен качественный ремонт. В ней тепло и уютно. В собственности более пяти лет. Отличный вариант для студентов или молодой семьи. Ипотека возможна (поможем с оформлением). Звоните. С удовольствием покажем и расскажем более подробно. ID объекта в нашей базе: 17976
    размещено: 06.10.2025 , обновлено: 17.11.2025

    1-к квартира, Серафимы Дерябиной, 49/3

    • 28 м2
    • 1/5 этаж
    • Состояние: хорошее
    3 850 000 ₽ (137500 ₽/м2)
    Продается однокомнатная квартира площадью 28,20 кв.м на 1 этаже, практичная планировка и удобное расположение. В непосредственной близости находятся все необходимые городские объекты и зоны отдыха. Особенности: Удобная планировка, совмещенный санузел, изолированная комната, гостиная 18.2 кв.м ,в квартире остается вся мебель. Удобная транспортная развязка, остановки общественного транспорта рядом. Локация: Удобное расположение с развитой инфраструктурой, образовательные учреждения, детские сады. Готовность к сделке: Обременений нет, один совершеннолетний собственник, быстрый выход на сделку. Помогу с оформлением ипотеки. Записывайтесь на просмотр. ID объекта в нашей базе: 4709
    размещено: 05.10.2025 , обновлено: 5.11.2025

    1-к квартира, Денисова-Уральского, 2

    • 34.6 м2
    • 6/12 этаж
    • Состояние: хорошее
    4 600 000 ₽ (132900 ₽/м2)
    Продаётся уютная светлая 1‑комнатная квартира, общая площадь 34,6 м², 6-й этаж 12‑этажного панельного дома, район «Юго‑Западный», Екатеринбург. Квартира тёплая, с косметическим ремонтом, частично меблирована и оснащена необходимой техникой — заезжай и живи. Комната светлая и просторная, большой балкон. Кухня 8 м² — удобно разместить кухонный гарнитур и обеденную зону. Санузел совмещённый, практичное решение для экономии пространства. Окна выходят во двор — приятный вид, тишина и покой после рабочего дня. Рядом зелёные зоны и парк, что создаёт атмосферу спокойствия и свежего воздуха. Развитая инфраструктура: в шаговой доступности — больница, детский сад, школа, супермаркеты и остановки общественного транспорта с маршрутами по всему городу. В 15 минутах езды — Южный автовокзал и станция метро; удобная автомобильная развязка. Один взрослый собственник. Без обременений. Отличный вариант для молодых семей или тех, кто ценит комфорт и удобное расположение. ID объекта в нашей базе: 4669
    размещено: 25.09.2025 , обновлено: 6.12.2025

    1-к квартира, Начдива Онуфриева, 44

    • 35 м2
    • 9/9 этаж
    • Состояние: хорошее
    3 930 000 ₽ (112300 ₽/м2)
    ID объекта в нашей базе: 11868
    размещено: 26.09.2025 , обновлено: 15.11.2025

    1-к квартира, Посадская, 28/2

    • 32.3 м2
    • 3/9 этаж
    • Состояние: хорошее
    4 799 000 ₽ (148600 ₽/м2)
    Продадим уютную квартиру с отличной планировкой и энергетикой!Сделана перепланировка, благодаря этому в квартире больше воздуха, пространства и выделенных зон.Окна выходят во двор, поэтому всегда тихо и спокойно.Отличное месторасположение дома. В двух минутах ходьбы остановка общественного транспорта и остановка трамвая.Рядом с домом ТЦ Универбыт, супермаркет, разные продуктовые магазины, сбербанк, детский сад 559 и 485.Показываем в удобное по договорённости время. ID объекта в нашей базе: 1643
    размещено: 04.09.2025 , обновлено: 4.12.2025

    1-к квартира, Громова, 146

    • 28 м2
    • 5/5 этаж
    • Состояние: хорошее
    3 390 000 ₽ (121100 ₽/м2)
    Светлая, теплая квартира в кооперативном доме 1973 года постройки. В доме свое ТСЖ, идеальное состояние подъездов и придомовой территории, приличные соседи. Окна на солнечную сторону, на юго-восток. Заменены радиаторы отопления, окно на кухне, стояки на воду и канализацию, установлены счетчики, в остальном требуется ремонт. В квартире остается кухонный гарнитур, холодильник, встроенный шкаф и стенка, если надо. Вблизи вся инфраструктура юго-западного района: детские сады, школы, магазины, рынок на Громова, МФЦ, детская поликлиника, много других больниц, медицинский университет, дом науки и техники. Остановки общественного транспорта во все точки города. Для прогулок и занятий сортом парк им.Чкалова и Юго-Западный лесопарк. По документам один взрослый собственник, без детей и обременений, ипотека возможна. ID объекта в нашей базе: 11078
    размещено: 01.09.2025 , обновлено: 10.12.2025

Новостройки Екатеринбург, мкр-н. Юго-Западный

Приоритет

Увеличивает просмотры в 3 раза

Ваше объявление показывается в списке выше обычных объявлений. подключить