На Метре реклама - только нормальная. Никакого шок-контента.
Помогайте независимому ресурсу, как он помогает вам. Удачи!
Новостройки Котт. посёлки Объявления Динамика цен и сделок

Продажа квартиры: Екатеринбург, ул. Таватуйская, 9 (Старая Сортировка)

  • опубликовано 4.02.2025 , обновлено 31.12.2025
  • 27
Кадастровый номер:66:41:0204011:424
Рынок:вторичный
Срок сдачи: 1960 года
Количество комнат:1
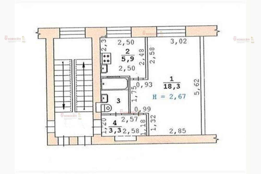
Общая площадь:30.7 м2
Жилая площадь:18.7 м2
Площадь кухни:6 м2
Этаж/Этажность дома:2 / 4
Санузел:совмещенный
Отделка:косметический
Год постройки:1960
Состояние:удовлетворительное
Цена:
2 850 000
Объявление снято с публикации
Коммунальные платежи:оплачиваются отдельно
Ипотека:возможна

Объект № 189429. Однокомнатная квартира на втором этаже кирпичного дома, квартира очень теплая, все окна пластик. В квартире требуется ремонт.
Собственник один. Обременений нет. Юридически чистый объект.
В шаговой доступности: Таганский ряд, детская поликлиника, школа детская художественная школа №4, детская музыкальная школа им. Рахманинова, магазины, торговый центр Семь ключей, Сбербанк, ТЦ Яблоко, цифровой супермаркет ДНС. Вблизи дома продуктовые магазины, аптеки, ТЦ Карнавал, Сагайдак парк, все транспортные развязки. ***Гарантийный сертификат «Защита собственности» по данному объекту в подарок***

Объявление снято с публикации

Ипотечный калькулятор

лет
%
Сумма кредита
2850000 ₽
Платеж
22 540 ₽

Актуальные предложения в этом доме

  • 1-к квартира, Таватуйская, 9

    • 30.6 м2
    • 4/4 этаж
    • Состояние:
    4 200 000 ₽ (137300 ₽/м2)
    Вашему вниманию представлена 1 ком квартира с прекрасным видом во двор.Плюсы нашей квартиры:-произведен качественный ремонт-Заехал и живи (поменяна электропроводка, керамогранит в коридоре и гардеробной, пластиковые окна и т.д);-наличие кабинета, гардеробной;-бонусом покупателю остается следующее имущество: Встроенная кровать-трансформер, Пуфики с подушками, Шкаф-купе, Кухонный гарнитур, Шкаф с зеркалом в ванной комнате, Раковина, ванна и унитаз в ванной комнате, Комод в гардеробе, Люстра в комнате и на кухне, Гардина в комнате ,Рулонные шторы на кухне и в комнате ,Жалюзи на балконе;-Чистая продажа(1 совершеннолетний собственник, без обременений,средства материнского капитала не использовались;-квартира освобождена. ID объекта в нашей базе: 784
    размещено: 12.01.2026

История предложений в этом доме

объявление снято с публикации в продаже комнат площадь этаж цена,
Екатеринбург, ул. Таватуйская, 9 (Старая Сортировка) - фото квартиры 15 сентября 2023 90 дн. 1 31 1/4 3 570 000
Екатеринбург, ул. Таватуйская, 9 (Старая Сортировка) - фото квартиры 18 июля 2023 90 дн. 2 41.7 3/4 3 700 000
Екатеринбург, ул. Таватуйская, 9 (Старая Сортировка) - фото квартиры 9 апреля 2024 90 дн. 1 31.2 3/4 2 950 000
Екатеринбург, ул. Таватуйская, 9 (Старая Сортировка) - фото квартиры 20 февраля 2023 90 дн. 2 41.5 4/4 3 499 000
Екатеринбург, ул. Таватуйская, 9 (Старая Сортировка) - фото квартиры 30 октября 2022 90 дн. 1 30.7 3/5 2 400 000
9 декабря 2022 90 дн. 2 42 1/4 3 420 000
Екатеринбург, ул. Таватуйская, 9 (Старая Сортировка) - фото квартиры 7 сентября 2022 90 дн. 3 57 1/4 5 200 000
Екатеринбург, ул. Таватуйская, 9 (Старая Сортировка) - фото квартиры 16 декабря 2021 90 дн. 1 30.7 3/5 2 660 000
Екатеринбург, ул. Таватуйская, 9 (Старая Сортировка) - фото квартиры 2 октября 2021 90 дн. 1 30 3/4 2 950 000
Екатеринбург, ул. Таватуйская, 9 (Старая Сортировка) - фото квартиры 3 апреля 2020 90 дн. 3 56 3/4 2 790 000
Екатеринбург, ул. Таватуйская, 9 (Старая Сортировка) - фото квартиры 2 февраля 2022 90 дн. 2 42 1/4 2 600 000
Екатеринбург, ул. Таватуйская, 9 (Старая Сортировка) - фото квартиры 15 декабря 2019 90 дн. 2 42.2 1/4 2 750 000
1 декабря 2018 90 дн. 1 30 1/4 2 400 000
18 ноября 2018 92 дн. 1 32 1/4 2 250 000
29 ноября 2018 90 дн. 1 30 1/4 2 100 000
17 января 2016 92 дн. 1 31 3/4 2 030 000

Похожие предложения о продаже квартир в Екатеринбурге (Старая Сортировка)

  • 1-к квартира, Надеждинская, 11

    • 30.6 м2
    • 3/5 этаж
    • Состояние: хорошее
    3 450 000 ₽ (112700 ₽/м2)
    Продаётся уютная однокомнатная квартира площадью 30.6 квадратных метров на третьем этаже пятиэтажного дома, расположенного по адресу: город Екатеринбург, микрорайон Старая Сортировка, Надеждинская улица, дом 11. Жилая площадь составляет комфортные 18 квадратных метров, а кухня занимает 6 квадратных метров, предоставляя достаточно места для приготовления и приёма пищи. Квартира привлекательна своим косметическим ремонтом, который придаёт ей свежий и аккуратный вид. Из окон открывается приятный вид на тихий двор, где расположены детская и спортивная площадки – идеальное место для отдыха и игр детей. Также во дворе предусмотрена парковка для вашего автомобиля. Развитая инфраструктура района включает в себя школу, детский сад, торговый центр Таганский ряд, Сагайдак Парк , что делает проживание здесь удобным и комфортным. Дом построен в 1966 году и имеет все необходимые коммуникации, включая проведённый газ. Санузел в квартире совмещённый, что является практичным решением для экономии пространства. Приобретая эту квартиру, вы получаете не просто жильё, а комфортное пространство для жизни в спокойном районе с развитой инфраструктурой и зелёными зонами для прогулок ID объекта в нашей базе: 9456
    размещено: 07.01.2026 , обновлено: 12.01.2026
  • 1-к квартира, Техническая, 41

    • 32 м2
    • 3/5 этаж
    • Состояние: плохое
    3 150 000 ₽ (98400 ₽/м2)
    Предлагаем к продаже однокомнатную квартиру в самом центре района. Ремонт требуется. Вся инфраструктура в шаговой доступности, большое количество различных магазинов и промышленных услуг, огромная охраняемая парковка, прямо напротив дома остановки общественного транспорта (ост.Техническая). Через дорогу от дома Сбербанк, в шаговой доступности гимназия№174, школа №50, детские сады №32, 55, 131. Ипотека возможна, ждем Вас на просмотр. ID объекта в нашей базе: 1427
    размещено: 22.12.2025 , обновлено: 8.01.2026
  • 1-к квартира, Билимбаевская, 41

    • 36 м2
    • 6/9 этаж
    • Состояние: хорошее
    3 400 000 ₽ (94400 ₽/м2)
    Объект № 196407. Продаётся уютная однокомнатная квартира площадью 36 квадратных метров на шестом этаже девятиэтажного кирпичного дома по адресу: город Екатеринбург, улица Билимбаевская, 41. В квартире косметический ремонт, что позволит новым владельцам сразу заселиться без дополнительных вложений. Жилая площадь составляет 17,4 квадратных метров, а кухня 9,2 квадратных метров-достаточно места для комфортного проживания. Также есть балкон с видом на благоустроенный двор. Для молодых семей особенно актуально наличие детской и спортивной площадок прямо во дворе дома, где можно проводить время на свежем воздухе всей семьей. Рядом с домом расположены школа и детский сад, что значительно упрощает жизнь родителям. Для автовладельцев предусмотрена парковка во дворе, что позволяет избежать трудностей с поиском места для автомобиля. Безопасность жильцов обеспечивается наличием домофона. Эта квартира станет отличным выбором для тех, кто ценит комфорт, удобство и качество жизни. Приглашаем вас ознакомиться с этим предложением и убедиться во всех преимуществах данной квартиры лично. ***Гарантийный сертификат «Защита собственности» по данному объекту в подарок***
    размещено: 19.12.2025 , обновлено: 11.01.2026
  • 1-к квартира, Билимбаевская, 25/4

    • 37.2 м2
    • 1/16 этаж
    • Состояние: хорошее
    3 500 000 ₽ (94100 ₽/м2)
    В чистой продаже большая однокомнатная квартира в удачной тихой локации.Квартира расположена на 1 высоком этаже 16-этажного дома, общая площадь 37,2 м2. Спецпроект, большая кухня, прямоугольная большая комната, гардеробная, санузел раздельный. Квартира без балкона. Дом панельный, стоит вдали от дороги, у дома предусмотрены места для парковки авто, также рядом большая охраняемая парковка.В шаговой доступности остановки общественного транспорта, сетевые продуктовые магазины, аптеки, пункты выдачи заказов, банковские отделения.Рядом школы №122, 129, Железнодорожный техникум, детские сады №46,51.Также рядом расположены МФЦ, детская спортивна школа Старт, спорткомплекс Локомотив, .Для отдыха и прогулок недалеко находятся: парк Локомотив, парк Семь Ключей, сквер полярника Соловьева.Если понравилась квартира, но не одобрена ипотека или не продана своя квартира, обращайтесь, поможем. ID объекта в нашей базе: 6179
    размещено: 27.11.2025 , обновлено: 9.01.2026
  • 1-к квартира, Кунарская, 53

    • 30.5 м2
    • 2/5 этаж
    • Состояние: хорошее
    2 999 000 ₽ (98300 ₽/м2)
    Объект № 195853. Предлагается к продаже уютная и светлая однокомнатная квартира в спокойном районе Старая Сортировка. Идеальный вариант для комфортного проживания или выгодного вложения. Плюсы квартиры: Право собственности: Один владелец, вся история прозрачна. Никаких обременений и долгов по ЖКХ. Удобный 2 этаж — оптимально, невысоко, светло. Есть просторный балкон для отдыха или хранения вещей. Состояние- чистый косметический ремонт. Можно заехать и жить. Все инженерные системы в рабочем состоянии. Планировка классическая, без излишеств. Квартира тёплая. Кирпичный дом ухоженный, спокойная атмосфера. В шаговой доступности всё необходимое: супермаркеты, аптеки, отделения банков, поликлиника. Отличная транспортная доступность: до центра Екатеринбурга всего 15-20 минут на машине или общественном транспорте. Рядом есть школы, детские сады, парки для прогулок. Квартира ждёт своих новых хозяев! Готова к просмотру в любое удобное время. Серьёзным покупателям - торг. ***Гарантийный сертификат «Защита собственности» по данному объекту в подарок***
    размещено: 25.11.2025 , обновлено: 8.01.2026

    1-к квартира, Кунарская, 16

    3 100 000 ₽ (90100 ₽/м2)
    Арт. 117682716 Светлая и очень тёплая квартира с удобной планировкой — отличный вариант для тех, кто хочет сделать ремонт под себя. Въезд во двор оборудован шлагбаумом — всегда есть место для парковки и спокойствие за безопасность. В шаговой доступности: детские сады, школы, магазины, остановки транспорта, стадион — всё рядом для комфортной жизни. Один взрослый собственник — быстрый и прозрачный выход на сделку. Квартира без ремонта — именно то, что нужно для тех, кто хочет сэкономить на покупке и создать дизайн по своему вкусу.
    размещено: 23.09.2025 , обновлено: 7.01.2026

    1-к квартира, Минометчиков, 42

    • 31 м2
    • 5/5 этаж
    • Состояние: удовлетворительное
    2 800 000 ₽ (90300 ₽/м2)
    Объект № 194371. Продаем 1- комнатную квартиру. Солнечная сторона, вид на Верх-Исетский пруд. Рядом с домом школы, детские садики, магазины, вся транспортная развязка. Обременений, детских долей и других сложностей НЕТ. Очень быстрый выход на сделку! ***Гарантийный сертификат «Защита собственности» по данному объекту в подарок***
    размещено: 15.09.2025 , обновлено: 12.01.2026

    1-к квартира, Кунарская, 35

    • 30.5 м2
    • 2/3 этаж
    • Состояние: хорошее
    2 999 000 ₽ (98300 ₽/м2)
    Один взрослый собственник!Ключи в день полной оплаты!!!Без залогов и обременений! Комфортный второй этаж! Зеленый двор с детской площадкой! Удобная функциональная планировка с просторной комнатой. Балкон и окна пластик- во двор, ванна– кафель, счетчики на свет и воду, В подарок покупателю: кухонный гарнитур, вместительный шкаф-купе с подсветкой! Удачное месторасположение дома: рядом вся инфраструктура: школы, д/сады, сетевые магазины, стадион «Локомотив», парки, банки, остановки транспорта (трамвай, автобус), поликлиники и многое другое! Помощь в одобрении ипотеки! Приглашаем на просмотры в удобное для Вас время. Звоните! ID объекта в нашей базе: 8805
    размещено: 08.09.2025 , обновлено: 3.01.2026

    1-к квартира, Билимбаевская, 25/2

    • 38.2 м2
    • 4/16 этаж
    • Состояние: хорошее
    3 700 000 ₽ (96900 ₽/м2)
    В продаже уютная однокомнатная квартира 38,2 кв.м. на 4/16 этаже, большая лоджия, раздельный санузел, гардероб. Дом расположен в районе с развитой инфраструктурой, всё рядом, школа, садик, больница, магазины. В собственности давно, есть обременение (коммунальные платежи 150000 руб). Звоните, все подробности по телефону. ID объекта в нашей базе: 8002
    размещено: 05.05.2025 , обновлено: 28.12.2025

Новостройки Екатеринбург, мкр-н. Старая Сортировка

Приоритет

Увеличивает просмотры в 3 раза

Ваше объявление показывается в списке выше обычных объявлений. подключить