На Метре реклама - только нормальная. Никакого шок-контента.
Помогайте независимому ресурсу, как он помогает вам. Удачи!
Новостройки Котт. посёлки Объявления Динамика цен и сделок

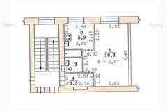
Продажа квартиры: Екатеринбург, ул. Таватуйская, 9 (Старая Сортировка)

  • опубликовано 12.01.2026 , обновлено 12.01.2026
  • 6
  •  
Рынок:вторичный
Срок сдачи: 1957 года
Количество комнат:1
Общая площадь:30.6 м2
Площадь кухни:6 м2
Этаж/Этажность дома:4 / 4
Санузел:совмещенный
Отделка:дизайнерский
Год постройки:1957
Балкон/лоджия:балкон
Состояние:идеальное
Цена:
4 200 000
Коммунальные платежи:оплачиваются отдельно

Вашему вниманию представлена 1 ком квартира с прекрасным видом во двор.Плюсы нашей квартиры:-произведен качественный ремонт-Заехал и живи (поменяна электропроводка, керамогранит в коридоре и гардеробной, пластиковые окна и т.д);-наличие кабинета, гардеробной;-бонусом покупателю остается следующее имущество: Встроенная кровать-трансформер, Пуфики с подушками, Шкаф-купе, Кухонный гарнитур, Шкаф с зеркалом в ванной комнате, Раковина, ванна и унитаз в ванной комнате, Комод в гардеробе, Люстра в комнате и на кухне, Гардина в комнате ,Рулонные шторы на кухне и в комнате ,Жалюзи на балконе;-Чистая продажа(1 совершеннолетний собственник, без обременений,средства материнского капитала не использовались;-квартира освобождена.
ID объекта в нашей базе: 784

Агентство недвижимости "Новостройка" 28 — Надежда Валерьевна

показать телефон

Ипотечный калькулятор

лет
%
Сумма кредита
4200000 ₽
Платеж
22 540 ₽

История предложений в этом доме

объявление снято с публикации в продаже комнат площадь этаж цена,
Екатеринбург, ул. Таватуйская, 9 (Старая Сортировка) - фото квартиры 20 февраля 2025 90 дн. 1 30.7 2/4 2 850 000
Екатеринбург, ул. Таватуйская, 9 (Старая Сортировка) - фото квартиры 15 сентября 2023 90 дн. 1 31 1/4 3 570 000
Екатеринбург, ул. Таватуйская, 9 (Старая Сортировка) - фото квартиры 18 июля 2023 90 дн. 2 41.7 3/4 3 700 000
Екатеринбург, ул. Таватуйская, 9 (Старая Сортировка) - фото квартиры 9 апреля 2024 90 дн. 1 31.2 3/4 2 950 000
Екатеринбург, ул. Таватуйская, 9 (Старая Сортировка) - фото квартиры 20 февраля 2023 90 дн. 2 41.5 4/4 3 499 000
Екатеринбург, ул. Таватуйская, 9 (Старая Сортировка) - фото квартиры 30 октября 2022 90 дн. 1 30.7 3/5 2 400 000
9 декабря 2022 90 дн. 2 42 1/4 3 420 000
Екатеринбург, ул. Таватуйская, 9 (Старая Сортировка) - фото квартиры 7 сентября 2022 90 дн. 3 57 1/4 5 200 000
Екатеринбург, ул. Таватуйская, 9 (Старая Сортировка) - фото квартиры 16 декабря 2021 90 дн. 1 30.7 3/5 2 660 000
Екатеринбург, ул. Таватуйская, 9 (Старая Сортировка) - фото квартиры 2 октября 2021 90 дн. 1 30 3/4 2 950 000
Екатеринбург, ул. Таватуйская, 9 (Старая Сортировка) - фото квартиры 3 апреля 2020 90 дн. 3 56 3/4 2 790 000
Екатеринбург, ул. Таватуйская, 9 (Старая Сортировка) - фото квартиры 2 февраля 2022 90 дн. 2 42 1/4 2 600 000
Екатеринбург, ул. Таватуйская, 9 (Старая Сортировка) - фото квартиры 15 декабря 2019 90 дн. 2 42.2 1/4 2 750 000
1 декабря 2018 90 дн. 1 30 1/4 2 400 000
18 ноября 2018 92 дн. 1 32 1/4 2 250 000
29 ноября 2018 90 дн. 1 30 1/4 2 100 000
17 января 2016 92 дн. 1 31 3/4 2 030 000

Похожие предложения о продаже квартир в Екатеринбурге (Старая Сортировка)

  • 1-к квартира, Техническая, 149а

    • 37.6 м2
    • 11/26 этаж
    • Состояние: хорошее
    4 700 000 ₽ (125000 ₽/м2)
    Продается уютная, просторная евродвушка: кухня-гостинная (16,2 кв. м.) и спальня (10,4 кв. м.). Удобное расположение дома - есть вся необходимая для комфортной жизни инфраструктура. Удобная транспортная развязка. Прекрасный вид из окон на Верх-Исетский пруд. Закрытая территория с отличными спортивной и детской площадкой. В квартире остаются и входят в ее стоимость: кухонный гарнитур (без бытовой техники), тумба для обуви и вешалка в прихожей.Квартира без обременений, один взрослый собственник. Торг возможен. ID объекта в нашей базе: 782
    размещено: 12.01.2026
  • 1-к квартира, Надеждинская, 11

    • 30.6 м2
    • 3/5 этаж
    • Состояние: хорошее
    3 450 000 ₽ (112700 ₽/м2)
    Продаётся уютная однокомнатная квартира площадью 30.6 квадратных метров на третьем этаже пятиэтажного дома, расположенного по адресу: город Екатеринбург, микрорайон Старая Сортировка, Надеждинская улица, дом 11. Жилая площадь составляет комфортные 18 квадратных метров, а кухня занимает 6 квадратных метров, предоставляя достаточно места для приготовления и приёма пищи. Квартира привлекательна своим косметическим ремонтом, который придаёт ей свежий и аккуратный вид. Из окон открывается приятный вид на тихий двор, где расположены детская и спортивная площадки – идеальное место для отдыха и игр детей. Также во дворе предусмотрена парковка для вашего автомобиля. Развитая инфраструктура района включает в себя школу, детский сад, торговый центр Таганский ряд, Сагайдак Парк , что делает проживание здесь удобным и комфортным. Дом построен в 1966 году и имеет все необходимые коммуникации, включая проведённый газ. Санузел в квартире совмещённый, что является практичным решением для экономии пространства. Приобретая эту квартиру, вы получаете не просто жильё, а комфортное пространство для жизни в спокойном районе с развитой инфраструктурой и зелёными зонами для прогулок ID объекта в нашей базе: 9456
    размещено: 07.01.2026 , обновлено: 12.01.2026
  • 1-к квартира, Техническая, 158

    5 200 000 ₽ (123500 ₽/м2)
    Теплая светлая квартира, расположена в прекрасном месте. Рядом садик, школа, парк Семь ключей, сквер, водоем, лодочная станция, лыжная база, спорткомплекс Локомотив, магазины, транспорт. Вокруг сосны. Прекрасный вид из окон. Территория огорожена, своя охрана прямо в доме. Без обременений. Квартира освобождена, чистая продажа.
    размещено: 28.08.2025 , обновлено: 12.01.2026
  • 1-к квартира, Техническая, 41

    • 32 м2
    • 3/5 этаж
    • Состояние: плохое
    3 150 000 ₽ (98400 ₽/м2)
    Предлагаем к продаже однокомнатную квартиру в самом центре района. Ремонт требуется. Вся инфраструктура в шаговой доступности, большое количество различных магазинов и промышленных услуг, огромная охраняемая парковка, прямо напротив дома остановки общественного транспорта (ост.Техническая). Через дорогу от дома Сбербанк, в шаговой доступности гимназия№174, школа №50, детские сады №32, 55, 131. Ипотека возможна, ждем Вас на просмотр. ID объекта в нашей базе: 1427
    размещено: 22.12.2025 , обновлено: 8.01.2026
  • 1-к квартира, Билимбаевская, 41

    • 36 м2
    • 6/9 этаж
    • Состояние: хорошее
    3 400 000 ₽ (94400 ₽/м2)
    Объект № 196407. Продаётся уютная однокомнатная квартира площадью 36 квадратных метров на шестом этаже девятиэтажного кирпичного дома по адресу: город Екатеринбург, улица Билимбаевская, 41. В квартире косметический ремонт, что позволит новым владельцам сразу заселиться без дополнительных вложений. Жилая площадь составляет 17,4 квадратных метров, а кухня 9,2 квадратных метров-достаточно места для комфортного проживания. Также есть балкон с видом на благоустроенный двор. Для молодых семей особенно актуально наличие детской и спортивной площадок прямо во дворе дома, где можно проводить время на свежем воздухе всей семьей. Рядом с домом расположены школа и детский сад, что значительно упрощает жизнь родителям. Для автовладельцев предусмотрена парковка во дворе, что позволяет избежать трудностей с поиском места для автомобиля. Безопасность жильцов обеспечивается наличием домофона. Эта квартира станет отличным выбором для тех, кто ценит комфорт, удобство и качество жизни. Приглашаем вас ознакомиться с этим предложением и убедиться во всех преимуществах данной квартиры лично. ***Гарантийный сертификат «Защита собственности» по данному объекту в подарок***
    размещено: 19.12.2025 , обновлено: 11.01.2026

    1-к квартира, Ангарская, 26

    • 36.8 м2
    • 4/9 этаж
    • Состояние: идеальное
    4 000 000 ₽ (108700 ₽/м2)
    Продажа однокомнатной квартиры в теплом кирпичном доме. Общая площадь: 36,8 кв.м. Жилая комната: 19 кв.м. Кухня: 9 кв.м. Высота потолка: 2,6 м. Большой балкон! Просторная гардеробная-кладовка. Состояние отличное! В квартире сделан свежий ремонт из качественных материалов: пластиковые окна и трубы, новые межкомнатные двери, натяжные потолки с точечным светом, обои, капитально сделан балкон и др. Закрытая территория, отличная детская площадка, удобная закрытая парковка возле дома, новые лифты, чистые подъезды. Район очень развит: школы, дет.сады, магазины, аптеки, остановки общественного транспорта, парк Семь ключей для прогулок и активного отдыха. Документы готовы, один взрослый собственник, никто не прописан. Квартира без обременений, возможна ипотека любого банка. Квартира освобождена. Быстрый выход на сделку. Просмотры по предварительной договоренности. По всем вопросам звоните
    размещено: 10.12.2025 , обновлено: 12.01.2026

    1-к квартира, Ангарская, 42

    • 35 м2
    • 1/9 этаж
    • Состояние: хорошее
    3 850 000 ₽ (110000 ₽/м2)
    Объект № 196340. Продам отличную, светлую однокомнатную квартиру улучшенной планировки с просторной комнатой 18.6 м2 и кухней 8м2 на первом этаже девятиэтажного дома. Квартира не требует вложений - можно заехать и жить. Все в шаговой доступности, магазины, детские сады, школы, а так же остановки общественного транспорта. Квартира без долгов и обременений! Ждём на просмотр. ***Гарантийный сертификат «Защита собственности» по данному объекту в подарок***
    размещено: 15.12.2025 , обновлено: 11.01.2026

    1-к квартира, Билимбаевская, 25/4

    • 37.2 м2
    • 1/16 этаж
    • Состояние: хорошее
    3 500 000 ₽ (94100 ₽/м2)
    В чистой продаже большая однокомнатная квартира в удачной тихой локации.Квартира расположена на 1 высоком этаже 16-этажного дома, общая площадь 37,2 м2. Спецпроект, большая кухня, прямоугольная большая комната, гардеробная, санузел раздельный. Квартира без балкона. Дом панельный, стоит вдали от дороги, у дома предусмотрены места для парковки авто, также рядом большая охраняемая парковка.В шаговой доступности остановки общественного транспорта, сетевые продуктовые магазины, аптеки, пункты выдачи заказов, банковские отделения.Рядом школы №122, 129, Железнодорожный техникум, детские сады №46,51.Также рядом расположены МФЦ, детская спортивна школа Старт, спорткомплекс Локомотив, .Для отдыха и прогулок недалеко находятся: парк Локомотив, парк Семь Ключей, сквер полярника Соловьева.Если понравилась квартира, но не одобрена ипотека или не продана своя квартира, обращайтесь, поможем. ID объекта в нашей базе: 6179
    размещено: 27.11.2025 , обновлено: 9.01.2026

    1-к квартира, Кунарская, 53

    • 30.5 м2
    • 2/5 этаж
    • Состояние: хорошее
    2 999 000 ₽ (98300 ₽/м2)
    Объект № 195853. Предлагается к продаже уютная и светлая однокомнатная квартира в спокойном районе Старая Сортировка. Идеальный вариант для комфортного проживания или выгодного вложения. Плюсы квартиры: Право собственности: Один владелец, вся история прозрачна. Никаких обременений и долгов по ЖКХ. Удобный 2 этаж — оптимально, невысоко, светло. Есть просторный балкон для отдыха или хранения вещей. Состояние- чистый косметический ремонт. Можно заехать и жить. Все инженерные системы в рабочем состоянии. Планировка классическая, без излишеств. Квартира тёплая. Кирпичный дом ухоженный, спокойная атмосфера. В шаговой доступности всё необходимое: супермаркеты, аптеки, отделения банков, поликлиника. Отличная транспортная доступность: до центра Екатеринбурга всего 15-20 минут на машине или общественном транспорте. Рядом есть школы, детские сады, парки для прогулок. Квартира ждёт своих новых хозяев! Готова к просмотру в любое удобное время. Серьёзным покупателям - торг. ***Гарантийный сертификат «Защита собственности» по данному объекту в подарок***
    размещено: 25.11.2025 , обновлено: 8.01.2026

    1-к квартира, Червонная, 19/2

    4 700 000 ₽ (119300 ₽/м2)
    Предлагаем в чистой продаже уютную, ухоженную квартиру, с качественным ремонтом . Большая правильной формы комната (19 кв.м.) позволит зонировать пространство, а кухня (12 кв.м.) принять друзей на дружескую вечеринку. Высокий этаж, окна выходят на юго и это потрясающие закаты с видом на пруд. Бонусы, входящие в стоимость: - кухонный гарнитур с варочной поверхностью; - большая кровать, вместительный шкаф в комнате; - удобная прихожая в коридоре; На придомовой территории всегда можно найти место для своего авто. Юридическая сторона сделки: один взрослый собственник, маткапитал не использован, продается не в браке. Инфраструктура: супермаркеты, пункты выдачи заказов, фитнес-клуб, сквер полярника Соловьева, парк Семь Ключей и парк-стадион Локомотив, Для малышей рядом с домом детский сад №131, для школьников две школы №129, чуть подальше лицей № 3 Магазины, аптеки, кафе - все что нужно для размеренного проживания. Приличные соседи добавляют безопасности спокойствия. Одним словом продаем уют, тепло и качество жизни. Юридически чистый объект. Оформление ипотеки на этот дом для вас будет бесплатно! Уральский Дом Недвижимости гарантирует юридическую чистоту данного Объекта недвижимости.
    размещено: 25.11.2025 , обновлено: 11.01.2026

    1-к квартира, Ангарская, 28

    5 300 000 ₽ (139500 ₽/м2)
    Продается однокомнатная Видовая квартира с красивым видом на 12 этаже, р-н СК Локомотив! (район Старая Сортировка). Спецпроект 2018 года. Преимуществом данной квартиры являются - комната 19,1 м2 правильной формы, просторная кухня -12,1м2. Локация дома-вдали от дороги. Квартира с дорогим качественным ремонтом. Остается в Подарок новому собственнику кухонный гарнитур с бытовой техникой. Санузел совмещённый. В квартире очень тепло и тихо. Огороженная территория с видеонаблюдением и охраной. Парковка на закрытой территории, есть возможность парковаться абсолютно, большая детская площадка. В подъезде чисто, круглосуточно дежурит консьерж. Чистая продажа. Ипотека возможна. Документы готовы к сделке. Никто не прописан. Квартира освобождена. Ключи в день получения денежных средств. Показ в удобное для Вас время. Возможен онлайн показ. Приглашаем на просмотр! Юридически чистый объект. Оформление ипотеки на этот дом для вас будет бесплатно! Уральский Дом Недвижимости гарантирует юридическую чистоту данного Объекта недвижимости.
    размещено: 21.11.2025 , обновлено: 11.01.2026

    1-к квартира, Кишиневская, 33

    • 37 м2
    • 18/19 этаж
    • Состояние: хорошее
    4 300 000 ₽ (116200 ₽/м2)
    Не задано ID объекта в нашей базе: 12573
    размещено: 24.11.2025 , обновлено: 10.01.2026

    1-к квартира, Маневровая, 26

    • 33 м2
    • 16/16 этаж
    • Состояние: идеальное
    5 100 000 ₽ (154500 ₽/м2)
    1- комнатная в ЖК Квартет, С. Сортировка КBАPTИРA 33 м в отличном состоянии, евроремонт, ухоженная, светлая, заезжай и живи. Koмнaтa c нишeй пoд cпальнoе меcто - 18,3 м куxня - 7 м c/у - 3,8 м прихожая - 3 м (с возможностью установки гардероба) балкон - 3,8 м Окна выходят во двор на юго-восток, солнечная сторона. ПРЕИМУЩЕСТВА: - нет соседей сверху - потолки 2,7 м (выше, чем на других этажах) - установлены и поверены счетчики на воду, тепло и электричество - на радиаторах отопления стоят термоголовки, что позволяет самостоятельно регулировать подачу тепла в квартиру - горизонтальная разводка отопления - минимальные коммунальные платежи - слышимость соседей снизу и по бокам практически отсутствует ДОМ 2017 год постройки, монолитный, теплый, класса комфорт + в ЖК «Квартет» от финского застройщика «ЮИТ». 2 лифта. Двор закрытый, охраняемый, с видеонаблюдением. Детская, спортивная площадки, наземная парковка под шлагбаумом, а также 3-х этажный паркинг. Рядом с домом несколько детских садов, муниципальные школы, музыкальная и художественная школа, салоны красоты, несколько парков, лес. В доме есть развивающие студии и студии танца. МЕСТО: Старая удобная комфортная Сортировка, с отличной социальной и развитой транспортной инфраструктурой: магазины, аптеки, рынки, больницы, фитнес, хорошая экология, быстрый выезд на Серовский тракт. Остановки транспорта в 5-7 минутах ходьбы. ЮРИДИЧЕСКИ: взрослый собственник; ограничений и обременений нет; быстрый выход на сделку. Эта квартира - прекрасный вариант жилья в новом доме в развитом, удобном для жизни районе. Безопасность сделки по покупке квартиры гарантируется. Возможен аргументированный ТОРГ Звоните! Помогу одобрить ипотеку и купить квартиру ID объекта в нашей базе: 11956
    размещено: 18.11.2025 , обновлено: 26.12.2025

    1-к квартира, Дружининская, 5а

    • 31.2 м2
    • 15/17 этаж
    • Состояние: хорошее
    4 099 000 ₽ (131400 ₽/м2)
    Фантастически светлая, с видом на город и салют, просторная, с гардеробом, в современном доме, с чистым подъездом, с закрытым двором, с интересной детской площадкой, с местами для парковки, замечательная, уютная, ухоженная квартира ждет Вас! приходите, влюбляйтесь, покупайте, заезжайте, встречайте Новый год в НОВОЙ КВАРТИРЕ! Мы Вам ее с удовольствием продадим! И в ипотеку тоже! Квартира без долгов, обременений, прописанных, детей, наследников, продается не под давлением, не по доверенности, по полной стоимости и любым способом расчета! Квартира в собственности БОЛЕЕ 10 лет-что делает сделку максимально безопасной. Ключи в день сделки. ID объекта в нашей базе: 4835
    размещено: 13.11.2025 , обновлено: 28.11.2025

    1-к квартира, Пехотинцев, 2В

    • 25.1 м2
    • 4/9 этаж
    • Состояние: идеальное
    4 999 000 ₽ (199200 ₽/м2)
    В продаже светлая уютная студия в районе Старая Сортировка по улице Пехотинцев д. 2ВКвартира:- общая площадь по фактическим замерам - 25,47 м2- этаж 4 из 9- в квартире выполнен современный дизайнерский ремонт- высота потолков - 2,7 м- счетчики ГВС, ХВС , электричество, отопление, радиатор отопления с терморегуляторами- сейф дверь- в квартире остается вся мебель и техника, что позволит вам сразу заселиться и жить с комфортомДом:- дом 2023 г.- ЖК ДЕПО, застройщик Брусника- подъезды с дизайнерской отделкой- в доме есть велосипедная и колясочная- территория двора закрытая ухоженная с клумбами, площадкой и беседками- придомовая стоянка для машин- дом расположен в благоустроенном районе с развитой инфраструктурой - в пешей доступности находятся школы, детские сады, клиники и магазины, что делает данное предложение особенно привлекательным для молодых семей - до станции метро "Уральская" 10 минут на автомобиле, до центра - 15 минут- рядом супермаркеты, «Жизньмарт», парк «Таганская Слобода», ТРЦ «Карнавал», рынок.Легко купить: наличные, ипотека.Поможем с реализацией Вашей недвижимости для приобретения данного объекта.Помощь в одобрении ипотеки по наилучшим ставкам от банков партнёров.Квико недвижимость гарантирует своим клиентам безопасность сделки, наша деятельность застрахована. ID объекта в нашей базе: 4713
    размещено: 30.10.2025 , обновлено: 10.01.2026

    1-к квартира, Пехотинцев, 2В

    • 40 м2
    • 4/9 этаж
    • Состояние: плохое
    5 200 000 ₽ (130000 ₽/м2)
    ПРОДАЕТСЯ: евродвушка площадью 42,8 кв.м. + балкон!РАЙОН: Железнодорожный.ДОМ: ЖК "Депо". Квартал расположен в активно развивающейся части Старой Сортировки, на месте, где раньше располагался завод «Электротранс».ДВОР: Закрытые двор ориентирован на тихий и спокойный отдых. Здесь детские площадки, лаунж-зоны, зоны для пикника и воркаута, газоны для поддержания рекреационной и игровой функций. Во дворах квартала установлены многофункциональные беседки-перголы. В них зона отдыха, небольшой коворкинг, кашпо для выращивания микрозелени и летняя кухня с разделочным столом и раковиной.КВАРТИРА: Межквартирные стены сделаны из керамического блока, они выровнены и оштукатурены, межкомнатные — из гипсокартона. Пол залит цементно-песчаной стяжкой с утеплителем, проведена электрика, сделаны выводы под сантехнику, нанесена обмазочная гидроизоляция в ванных комнатах, установлены радиаторы отопления и приборы учета, показания которых автоматически передаются в управляющую компанию благодаря системе телеметрии. Разводка труб водоснабжения проходит по полу. Установлены большие окна размером 2,55×1,8 метра. Они состоят из пятикамерного пластикового профиля, который блокирует уличный шум и защищает помещения от промерзания, и мультифункционального стекла, сохраняющего в комнатах тепло зимой и прохладу летом.! Входы в подъезды сделаны прозрачными и расположены на уровне земли. Домофон находится в тёплом тамбуре. В подъездах для удобства размещены небольшие диванчики. Еще одна фишка подъездов - большие бесшумные лифты.ИНФРАСТРУКТУРА: В пешей доступности: супермаркеты, остановки городского транспорта, поликлиники, детские сады, школы, гимназии, торговые центры, автоцентры, рынок с большим и доступным по стоимости выбором товаров, парк РЖД и парк с аттракционами Таганская Слобода.Ждём Вас на просмотр! ID объекта в нашей базе: 4814
    размещено: 26.10.2025 , обновлено: 2.01.2026

    1-к квартира, Ангарская, 54/б

    • 36 м2
    • 1/10 этаж
    • Состояние: хорошее
    3 820 000 ₽ (106100 ₽/м2)
    Объект № 195097. Продаю отличную 1-комнатную квартиру с лоджией, в теплом кирпичном доме. Закрытая территория, хорошая детская площадка во дворе. Рядом школы, садики, магазины. Остается кухонный гарнитур, холодильник Индезит, стиральная машинка, 2 дивана, шкаф купе, стенка. Заезжай и живи, или сдавай в аренду - полностью оборудована, получай прибыль. ***Гарантийный сертификат «Защита собственности» по данному объекту в подарок***
    размещено: 21.10.2025 , обновлено: 6.01.2026

    1-к квартира, Ангарская, 54б

    • 34.7 м2
    • 5/10 этаж
    • Состояние: хорошее
    4 150 000 ₽ (119600 ₽/м2)
    Предлагаю квартиру в КИРПИЧНОМ ДОМЕ 2009 года. Территория дома огорожена, двор без машин.Хорошая детская площадка. Организовано ТСЖ.Есть огороженная территория наземного паркинга для жителей дома и подземный паркинг. КВАРТИРА БЕЗ ОБРЕМЕНЕНИЙ!!!Окна квартиры смотрят во двор, южная сторона.В квартире выполнен качественный ремонт (поменяны двери, радиаторы отопления, дополнительно утеплён пол, кафельная современная плитка в сан. узле).Рядом с домом расположен железнодорожный техникум.Торговый центр, продуктовые магазины в шаговой доступности.Один взрослый собственник с момента постройки дома.ЧИСТАЯ ПРОДАЖА!Не задано ID объекта в нашей базе: 241
    размещено: 05.10.2025 , обновлено: 12.01.2026

    1-к квартира, Кунарская, 16

    3 100 000 ₽ (90100 ₽/м2)
    Арт. 117682716 Светлая и очень тёплая квартира с удобной планировкой — отличный вариант для тех, кто хочет сделать ремонт под себя. Въезд во двор оборудован шлагбаумом — всегда есть место для парковки и спокойствие за безопасность. В шаговой доступности: детские сады, школы, магазины, остановки транспорта, стадион — всё рядом для комфортной жизни. Один взрослый собственник — быстрый и прозрачный выход на сделку. Квартира без ремонта — именно то, что нужно для тех, кто хочет сэкономить на покупке и создать дизайн по своему вкусу.
    размещено: 23.09.2025 , обновлено: 7.01.2026

    1-к квартира, Кунарская, 35

    • 30.5 м2
    • 2/3 этаж
    • Состояние: хорошее
    2 999 000 ₽ (98300 ₽/м2)
    Один взрослый собственник!Ключи в день полной оплаты!!!Без залогов и обременений! Комфортный второй этаж! Зеленый двор с детской площадкой! Удобная функциональная планировка с просторной комнатой. Балкон и окна пластик- во двор, ванна– кафель, счетчики на свет и воду, В подарок покупателю: кухонный гарнитур, вместительный шкаф-купе с подсветкой! Удачное месторасположение дома: рядом вся инфраструктура: школы, д/сады, сетевые магазины, стадион «Локомотив», парки, банки, остановки транспорта (трамвай, автобус), поликлиники и многое другое! Помощь в одобрении ипотеки! Приглашаем на просмотры в удобное для Вас время. Звоните! ID объекта в нашей базе: 8805
    размещено: 08.09.2025 , обновлено: 3.01.2026

Новостройки Екатеринбург, мкр-н. Старая Сортировка

Приоритет

Увеличивает просмотры в 3 раза

Ваше объявление показывается в списке выше обычных объявлений. подключить