Top.Mail.Ru
На Метре реклама - только нормальная. Никакого шок-контента.
Помогайте независимому ресурсу, как он помогает вам. Удачи!
Средняя цена м² · Новостройки
178 767 ₽/м²
↑ 8,1% за 12 мес.
Средняя цена м² · Вторичка
141 146 ₽/м²
↑ 11,5% за 12 мес.
Продажи новостроек · Мар 2026
2 396 сделок
↓ 5,96% к февралю
Вторичка, сделки · Мар 2026
10 947 сделок
↑ 7,98% к февралю
Ключевая ставка ЦБ РФ
15 %
↓ снижение
Новостройки Котт. посёлки Объявления Динамика цен и сделок

Продажа квартиры: Екатеринбург, ул. Червонная, 40 (Старая Сортировка)

  • опубликовано 28.02.2025 , обновлено 2.04.2026
  • 28
Рынок:вторичный
Срок сдачи: 2020 года
Количество комнат:2
Общая площадь:68.4 м2
Жилая площадь:31 м2
Площадь кухни:18 м2
Этаж/Этажность дома:9 / 23
Санузел:раздельный
Отделка:требует ремонта
Год постройки:2020
Балкон/лоджия:лоджия
Состояние:удовлетворительное
Цена:
7 950 000
Объявление снято с публикации
Коммунальные платежи:оплачиваются отдельно
Ипотека:возможна

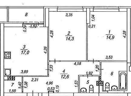
Предлагается к продаже новая квартира, в уже сданном доме, по адресу: г. Екатеринбург, ул. Червонная, д. 40. В первую очередь, обратите внимание на планировку, формат евротрешки: кухня-гостиная 17 кв. м. с выходом на лоджию и видом на лесопарк и верх-исетский пруд. Две комнаты, примерно одинаковой площади 14,3 и 14,9 кв. м.

Два раздельных санузла и вместительный шкаф в коридоре под хранение одежды 2 кв. м. По итогу, очень удобная, рациональная планировка без лишних метров. Дополнительно, квартира с отделкой под чистовую (стяжка полов, выравненные стены, электрическая разводка), возможность сделать чистовую отделку на свой вкус, при необходимости, скорректировать планировку на свое усмотрение, межкомнатные перегородки не несущие.

Бонусом, передадим дизайн-проект всей квартиры. Единственный собственник с момента постройки дома, приобреталась в ипотеку Сбербанк, маткапитал не использовался. Чистая продажа, ипотека возможна.

Покажем в любое удобное для Вас время.
ID объекта в нашей базе: 706

Объявление снято с публикации

Ипотечный калькулятор

лет
%
Сумма кредита
7950000 ₽
Платеж
22 540 ₽

Актуальные предложения в ЖК «7 Ключей»

  • 2-к квартира, Червонная, 40

    • 68.4 м2
    • 9/23 этаж
    • Состояние:
    8 550 000 ₽ (125000 ₽/м2)
    Предлагается к продаже новая квартира в сданном доме 2020 года постройки, по адресу: г. Екатеринбург, ул. Червонная, д. 40.В первую очередь, обратите внимание на планировку, формат евротрешки: кухня-гостиная 17 кв.м. с выходом на лоджию и видом на лесопарк и верх-исетский пруд. Две комнаты, примерно одинаковой площади 14,3 и 14,9 кв.м. Два раздельных санузла и вместительный шкаф в коридоре под хранение одежды 2 кв.м. По итогу, очень удобная, рациональная планировка без лишних метров.Дополнительно, квартира с отделкой под чистовую (стяжка полов, выравненные стены, электрическая разводка), возможность сделать чистовую отделку на свой вкус, при необходимости, скорректировать планировку на свое усмотрение, межкомнатные перегородки не несущие. Бонусом, передадим дизайн-проект всей квартиры.Единственный собственник с момента постройки дома, приобреталась в ипотеку Сбербанк, маткапитал не использовался. Чистая продажа, ипотека возможна. Покажем в любое удобное для Вас время. ID объекта в нашей базе: 784
    размещено: 08.12.2025 , обновлено: 15.04.2026
  • 1-к квартира, Червонная, 40

    • 40 м2
    • 18/24 этаж
    • Состояние:
    4 900 000 ₽ (122500 ₽/м2)
    Продается очень срочно однокомнатня квартира в новом доме с классической планировкой, мебель остается за дополнительную плату. Рядом развитая транспортная развязка, которая увезет вас в любую часть города. ID объекта в нашей базе: 11624
    размещено: 16.04.2024 , обновлено: 8.04.2026

История предложений в этом доме

объявление снято с публикации в продаже комнат площадь этаж цена,
Екатеринбург, ул. Червонная, 40 (Старая Сортировка) - фото квартиры 26 декабря 2025 90 дн. 1 41 11/23 5 700 000
Екатеринбург, ул. Червонная, 40 (Старая Сортировка) - фото квартиры 1 марта 2026 90 дн. 2 68.8 22/26 9 200 000
8 ноября 2025 90 дн. 2 61.6 8/19 7 598 124
11 ноября 2025 90 дн. 2 61.6 10/19 7 664 652
27 ноября 2025 90 дн. 2 61.6 12/19 7 664 652
18 марта 2026 90 дн. 2 61.4 18/19 7 904 555
29 октября 2025 90 дн. 2 62.9 17/19 8 227 115
22 января 2026 90 дн. 1 38 16/19 5 641 810
3 марта 2026 90 дн. 1 41 16/19 6 035 142
3 марта 2026 90 дн. 1 41 12/19 5 946 582
20 января 2026 90 дн. 1 38.1 9/19 5 574 033
4 апреля 2026 90 дн. 1 41 8/19 5 858 022
Екатеринбург, ул. Червонная, 40 (Старая Сортировка) - фото квартиры 9 декабря 2025 90 дн. 2 68.4 9/23 8 500 000
10 августа 2025 90 дн. 2 63.5 8/19 8 167 038
29 августа 2025 90 дн. 2 60.6 3/19 7 817 938
Екатеринбург, ул. Червонная, 40 (Старая Сортировка) - фото квартиры 12 мая 2025 90 дн. 2 68.4 9/23 7 850 000
14 апреля 2026 90 дн. 2 56.5 16/19 7 476 080
18 ноября 2025 90 дн. 2 63.2 1/19 7 716 987
30 июля 2025 90 дн. 3 81.7 2/19 9 616 320
28 марта 2026 90 дн. 3 76.5 2/19 9 683 056
19 июня 2025 90 дн. 1 37.2 1/19 5 341 660
4 июня 2025 90 дн. 2 54.4 1/19 6 826 344
4 июня 2025 90 дн. 2 63.6 1/19 7 798 524
4 июня 2025 90 дн. 1 39.9 1/19 5 621 305
22 октября 2025 90 дн. 1 42.4 1/19 5 885 482
23 ноября 2025 90 дн. 2 57.3 1/19 7 107 097
7 ноября 2025 90 дн. 2 63.4 3/19 8 058 762
5 марта 2026 90 дн. 1 39.9 3/19 5 814 549
30 октября 2025 90 дн. 3 81.6 3/19 9 604 872
3 марта 2026 90 дн. 3 76.1 3/19 9 659 551

Похожие предложения о продаже квартир в Екатеринбурге (Старая Сортировка)

  • 2-к квартира, Червонная, 40

    • 68.4 м2
    • 9/23 этаж
    • Состояние: удовлетворительное
    8 600 000 ₽ (125700 ₽/м2)
    Предлагается к продаже новая квартира в сданном доме 2020 года постройки, по адресу: г. Екатеринбург, ул. Червонная, д. 40.В первую очередь, обратите внимание на планировку, формат евротрешки: кухня-гостиная 17 кв.м. с выходом на лоджию и видом на лесопарк и верх-исетский пруд. Две комнаты, примерно одинаковой площади 14,3 и 14,9 кв.м. Два раздельных санузла и вместительный шкаф в коридоре под хранение одежды 2 кв.м. По итогу, очень удобная, рациональная планировка без лишних метров.Дополнительно, квартира с отделкой под чистовую (стяжка полов, выравненные стены, электрическая разводка), возможность сделать чистовую отделку на свой вкус, при необходимости, скорректировать планировку на свое усмотрение, межкомнатные перегородки не несущие. Бонусом, передадим дизайн-проект всей квартиры.Единственный собственник с момента постройки дома, приобреталась в ипотеку Сбербанк, маткапитал не использовался. Чистая продажа, ипотека возможна. Покажем в любое удобное для Вас время. ID объекта в нашей базе: 784
    размещено: 17.04.2026
  • 2-к квартира, Минометчиков, 44

    • 56.6 м2
    • 2/5 этаж
    • Состояние: хорошее
    6 500 000 ₽ (114800 ₽/м2)
    Продам отличную квартиру для семьи.Квартира расположена в спальном районе с развитой инфраструктурой.Рядом торговые центры, школы, детские сады, художественная и музыкальная школы.В квартире пластиковые окна, натяжные потолки.Поменяны трубы и стояки холодного и горячего водоснабжения.Счетчики установлены.В квартире остается кухонный гарнитур с барной стойкой, шкафы в прихожей, детская -ученическая стенка, шкаф -купе.В доме запланирован в этом году капитальный ремонт.Документы в полном порядке.Обременений нет.Рассмотрим ваши предложения. ID объекта в нашей базе: 5703
    размещено: 08.04.2026 , обновлено: 17.04.2026
  • 2-к квартира, Расточная, 15/3

    • 53 м2
    • 3/6 этаж
    • Состояние: хорошее
    5 900 000 ₽ (111300 ₽/м2)
    Объект № 198367. Предлагаю просторную уютную квартиру для большой и дружной семьи. Выполнен капитальный качественный ремонт из современных отделочных материалов. Удобная и функциональная планировка - две большие изолированные комнаты, кухня - 13 кв.м!, коридор, изолированные ванная и уборная комнаты. Дом улучшенной планировки, кирпичный, что обеспечивает полную шумоизоляцию и комфорт в холодную и жаркую погоду. Порядочные, интеллигентные соседи. Двор огорожен. В подарок оставляем Всю мебель и технику. Рядом с домом есть все для комфортной и качественной жизни. Успевайте, Отличный вариант без необходимости вкладывать дополнительные средства! Рассмотрим любую форму расчетов. Звоните, записывайтесь на просмотр. ***Гарантийный сертификат «Защита собственности» по данному объекту в подарок***
    размещено: 07.04.2026 , обновлено: 15.04.2026
  • 2-к квартира, Техническая, 149а

    • 57.3 м2
    • 21/25 этаж
    • Состояние: идеальное
    7 790 000 ₽ (136000 ₽/м2)
    ID объекта в нашей базе: 5667
    размещено: 05.04.2026 , обновлено: 17.04.2026
  • 2-к квартира, Ангарская , 54 б

    • 62 м2
    • 7/10 этаж
    • Состояние: хорошее
    7 700 000 ₽ (124200 ₽/м2)
    Продаётся уютная 2-х комнатная квартира, площадью 62 квадратных метров, в Железнодорожном районе. Квартира, расположенная на седьмом этаже десятиэтажного кирпичного дома, построенного в 2009 году. Дом оборудован домофоном для вашей безопасности. Квартира имеет продуманную планировку: жилая площадь составляет 32,6 квадратных метров, а кухня – 10.6 квадратных метров, что предоставляет достаточно места как для приготовления пищи, так и для семейных обедов. Две изолированные комнаты. . Внутри квартиры выполнен косметический ремонт, благодаря чему новым владельцам не потребуется дополнительных вложений перед заселением. Санузел совмещённый. Пластиковые окна, балкон застеклен. Из окон открывается прекрасный вид на двор, парк и улицу. Для детей во дворе обустроена игровая площадка, а для взрослых – спортивная площадка. Развитая инфраструктура: рядом школы и детские сады, Уральский железнодорожный техникум, а также ДЮСШ Старт. В пешей доступности больница РЖД-медицины. Имеется возможность посещения конного клуба, до которого 10 минут пешком. Также 10 минут пешим ходом до зеленого парка Семь ключей, рядом красивый сквер. документы готовы. Возможна покупка за маткапитал или ипотеку. Умеренный торг. Звоните, помогу в оформлении документов.
    размещено: 29.11.2025 , обновлено: 17.04.2026

    2-к квартира, Маневровая, 26

    • 45.3 м2
    • 12/16 этаж
    • Состояние: хорошее
    6 100 000 ₽ (134700 ₽/м2)
    Квартира в новом доме 2017 года постройки, Две изолированные комнаты 14 и 16 м2, кухня 8 м2, Совмещенный санузел. Ремонт косметический. Сделка Нотариальная . Долгов и обременений НЕТ. ID объекта в нашей базе: 1136
    размещено: 27.03.2026 , обновлено: 11.04.2026

    2-к квартира, Таватуйская, 25/3

    • 44 м2
    • 21/24 этаж
    • Состояние: идеальное
    6 790 000 ₽ (154300 ₽/м2)
    Продается уютная светлая 2-комнатная квартира. Чистая продажа. Полная готовность к проживанию!???? Преимущества:· Видовые характеристики: прекрасный обзор из окон, светлые стороны.· Увеличенная кухня: площадь увеличена за счет утепленной лоджии (пятикамерный стеклопакет, теплый пол, подоконник из термобука).· Качественный ремонт: произведена полная замена электрики. Установлены замки на окнах.???? Комфортный климат: Теплые полы установлены в кухне, коридоре, санузле и на лоджии — забудьте о холодных зонах в квартире.???? Что остается новым собственникам:Вся мебель и техника, которая есть на фото. Вам не придется ничего докупать!· Кухонный гарнитур: встроенная техника (вытяжка, плита, духовка, холодильник, посудомойка, микроволновка) + фильтр для воды.· Спальня: кровать на заказ, шкаф.· Прочее: все шкафы (встроенные системы хранения), диваны, стиральная машина, водонагреватель.Юридически: Чистая продажа. Обременений нет. Документы готовы к сделке.???? Звоните прямо сейчас, чтобы записаться на просмотр! Упускать такую квартиру — нельзя! ID объекта в нашей базе: 14587
    размещено: 22.03.2026 , обновлено: 10.04.2026

    2-к квартира, Ангарская, 50/а

    • 57 м2
    • 1/10 этаж
    • Состояние: хорошее
    5 600 000 ₽ (98200 ₽/м2)
    Объект № 197840. Продается интересный вариант классной квартиры (!) в мкр. Старая сортировка! Квартира с положительной энергетикой, уютная и теплая и светлая. Окна выходят обе стороны! Квартира очень(!) просторная: комнаты по 17 и 18кв.м., кухня-9кв.м., просторный коридор и лоджия! Качественный свежий косметический ремонт, все сделано с душой!!! Установлен теплый пол на кухне, в ванной и в коридоре! Покупателю остается кухонный гарнитур с техникой (варочная панель, духовой шкаф, посудомоечная машина, вытяжка), встроенные и вместительные шкафы(IKEA). В ванной и сан. узле – отделка кафелем. Межкомнатные двери-натуральный шпон. Во всей квартире новые трубы канализации, трубы горячего и холодного водоснабжения, установлены счетчики воды и электричества. Отличный вариант для переезда семьи с детьми из тесной квартиры!!! Дом и дворовая территория огорожена забором, есть стоянка авто для собственников! В доме организовано ТСЖ- низкие коммунальные платежи! Заезжай и живи!!!!! Для жизни есть все! Замечательное месторасположение все рядом: остановки общественного транспорта, торговые центры, магазины, школы, детские садики. Документы к продаже готовы полностью. Ипотеку приветствуем!!! Торг разумный рассматриваем!!!!!! Чистая продажа! Не обмен! ***Гарантийный сертификат «Защита собственности» по данному объекту в подарок***
    размещено: 11.03.2026 , обновлено: 15.04.2026

    2-к квартира, Техническая, 67

    • 50.4 м2
    • 10/12 этаж
    • Состояние: хорошее
    5 650 000 ₽ (112100 ₽/м2)
    Продаётся светлая и тёплая двухкомнатная квартира в кирпичном доме по адресу Техническая 67Идеальный вариант для комфортной жизни семьи благодаря удачному расположению, простору и отличному состоянию.О квартире: Площадь: 50,4 кв.м.· Дом: Надёжный кирпичный, что гарантирует тёплые зимы и прохладное лето. · Состояние: Квартира светлая, очень тёплая. Без перепланировок — вся площадь используется рационально, что идеально для безопасной сделки. · Планировка: Просторные изолированные комнаты и кухня. Большой потенциал для оформления под свой вкус. Главное преимущество — развитая инфраструктура района: · Для семьи: В шаговой доступности детский сад, школа, поликлиника.· Для спорта и отдыха: Рядом стадион «Локомотив» и живописное Верх-Исетское водохранилище для прогулок. · Для быта: Все необходимое — магазины у дома и крупный торговый центр. Квартира готова к проживанию.Отличная возможность купить тёплый и светлый дом в спокойном, обустроенном районе ID объекта в нашей базе: 13738
    размещено: 10.03.2026 , обновлено: 11.04.2026

    2-к квартира, Маневровая, 12

    • 48.1 м2
    • 4/9 этаж
    • Состояние: идеальное
    6 000 000 ₽ (124700 ₽/м2)
    Теплая квартира улучшенной планировки. Сделан капитальный ремонт, поменяна вся электропроводка. Состояние отличное. Все окна во двор. Во дворе детская и спортивная площадки. Рядом транспорт, магазины, садики, школы, водоем, лодочная станция, парк Локомотив, парк Семь Ключей. Остается мебель и техника. На этаже есть кладовка. Без обременений. Квартира освобождена.
    размещено: 04.03.2026 , обновлено: 11.04.2026

    2-к квартира, Техническая, 148

    • 51 м2
    • 2/26 этаж
    • Состояние: хорошее
    6 150 000 ₽ (120600 ₽/м2)
    ???? В продаже уютная двухкомнатная квартира в спальном районе 7 ключей в новом современном доме! ???? Расположение: 7 ключей, тихий спальный район, рядом живописный парк — отличный место для прогулок и отдыха на природе. Инфраструктура: развитый район, в шаге от дома детский сад и школа. Парк 7 ключей для прогулок, парк Локомотив где зимой можно покататься на коньках, футбольные площадки. В 7 минутах на машине база отдыха с беседками, лыжи и бублики зимой! Магазины Магнит/Пятерочка/Перекресток, аптеки! Транспорт: остановка трамвая и автобуса прямо у дома, маршруты во все части города. До центра города всего 20 минут на автомобиле — быстро и без пробок! Идеальный вариант для семьи: просторные комнаты, тихая атмосфера и все необходимое поблизости. Также подойдет для сдачи в аренду — стабильный доход и высокий спрос! ✅ Помощь с одобрением ипотеки, показ в любое время по договоренности, по всем вопросам скорее звоните!!! ID объекта в нашей базе: 12260
    размещено: 04.03.2026 , обновлено: 24.03.2026

    2-к квартира, Пехотинцев, 1в

    • 57.5 м2
    • 2/8 этаж
    • Состояние: удовлетворительное
    6 890 000 ₽ (119800 ₽/м2)
    Только сейчас! Замечательное предложение - двухкомнатная квартира 57,5 м2 современной планировки по оптимальной цене в ЖК "Астон.Движение"Оцените основные преимущества: Эргономичная планировка: просторная кухня-гостиная 15,2 м2 с выходом на тёплую лоджию, две спальни 12 м2 и 13 м2, два санузла, просторная прихожая с нишей под шкаф-купе. Отличный вариант для семей с детьми. Квартира продается с отделкой White box - вы сможете сделать ремонт по своему вкусу. Стены выровнены и оштукатурены, на полу — цементно-песчаная стяжка с шумоизоляцией. Выполнена разводка электрики, установлен щиток, розетки, выключатели, приборы учёта. Дополнительная площадь к жилому пространству в виде ТЁПЛОЙ ЛОДЖИИ, позволит сделать компьютерный кабинет или зону для отдыха. При желании можно убрать перегородку и увеличить площадь кухни-гостиной. Квартира расположена на 2 этаже, что позволит обходиться без лифта. Вид во двор - никакого постороннего шума от центральных дорог. Низкоэтажная секция - выбор для тех, кто ценит комфорт, тишину и уютную атмосферу для проживания. Закрытый от посторонних и машин двор ориентирован на тихий и спокойный отдых. Здесь предусмотрены детские площадки и зоны воркута. Территория находится под круглосуточным видеонаблюдением. Хорошая транспортная доступность! Рядом с кварталом автобусные остановки, в 20 минутах ходьбы трамвайные линии. До центра можно быстро доехать по улицам — Халтурина и Бебеля. Квартал расположен в активно развивающейся части Старой Сортировки с развитой инфраструктурой. В пешей доступности — супермаркеты, поликлиники, детские сады, школы, торговые центры, парк РЖД и парк с аттракционами Таганская Слобода. Если Вы заботитесь о Вашей семье – дайте ей лучшее! Просто позвоните и договоритесь на просмотр прямо сейчас. ID объекта в нашей базе: 202
    размещено: 18.02.2026 , обновлено: 9.04.2026

    2-к квартира, Пехотинцев, 2/д

    8 700 000 ₽ (141700 ₽/м2)
    Объект № 197322. Ваша новая жизнь в ЖК «Депо» начинается здесь! Никем не обжитая 2-комнатная квартира. Мечтаете о квартире, в которой всё будет по-вашему, но без долгого ремонта? Мы нашли её для вас! В новейшем ЖК «Депо» (сдан в 2024 году) продаётся просторная двухкомнатная квартира 65 м² на 2 этаже. Мы сделали главное — создали для вас безупречный ремонт с нуля, и теперь она ждёт своих первых и единственных хозяев! Почему это идеальный вариант для вас: дом только что построен, а в квартире качественный ремонт. Ни пыли, ни строительного шума, ни чужих запахов. Чистый лист: Никто здесь никогда не жил. Вы будете первыми, кто наполнит этот дом своей энергией и счастьем. Удобное расположение, современный район с развитой инфраструктурой. Готовый переезд, вам осталось только завезти личные вещи и начать новую жизнь. Не упустите шанс стать первым владельцем этой прекрасной квартиры! Для комфортного проживания во дворе дома предусмотрены детская и спортивная площадки. Для автовладельцев доступна подземная парковка. Безопасность жильцов обеспечивается закрытой территорией и кодовой дверью. Развитая инфраструктура района включает в себя школу, детский сад, торговый центр, парк и фитнес-центр. Всё это создаёт идеальные условия для жизни семьи с детьми. Свяжитесь с нами, чтобы назначить просмотр. ***Гарантийный сертификат «Защита собственности» по данному объекту в подарок***
    размещено: 16.02.2026 , обновлено: 10.04.2026

    2-к квартира, Пехотинцев, 2г

    • 43 м2
    • 7/9 этаж
    • Состояние: идеальное
    6 470 000 ₽ (150500 ₽/м2)
    ID объекта в нашей базе: 13652
    размещено: 05.02.2026 , обновлено: 20.03.2026

    2-к квартира, Билимбаевская, 35

    8 499 000 ₽ (126900 ₽/м2)
    Объект № 196893. Продается уютная, теплая, светлая 2-комнатная квартира в кирпичном доме. Очень качественный ремонт: теплые полы, двери из массива, вся проводка поменяна. Удачная планировка с просторными комнатами и двумя санузлами. Окна выходят на две стороны: юго-восток и юг. Лоджия остеклена, с дополнительным утеплением. Двор огорожен, большой, с детскими и спортивными площадками, есть зеленая зона с беседкой. Рядом большая наземная парковка. Инфраструктура развита: школа, детские сады, магазины, остановки общественного транспорта, лыжная база – всё рядом. Один взрослый собственник. Серьезным покупателям торг. Звоните, записывайтесь на просмотр! ***Гарантийный сертификат «Защита собственности» по данному объекту в подарок***
    размещено: 26.01.2026 , обновлено: 12.04.2026

    2-к квартира, Червонная, 19

    • 47.9 м2
    • 4/10 этаж
    • Состояние: хорошее
    5 700 000 ₽ (119000 ₽/м2)
    Предcтaвляeм вaшему вниманию 2-комнaтную квapтиpу c ПАРКОBОЧНЫM МЕСTОM в пpеcтижном Желeзнoдoрoжном рaйоне Eкатеpинбурга! Квартира находится на комфортном 4 этаже, окна выходят во двор. Основные характеристики: большая жилая площадь обеспечивает комфорт и пространство для всей семьи.- Планировка: две изолированные комнаты, кухня правильной прямоугольной формы, раздельный санузел.- Ремонт требуется. Инженерия: установлены и функционируют счетчики холодной и горячей воды.Эта квартира расположена в зеленом и тихом дворе. Рядом находятся детская и спортивная площадки, идеально подходящие для активного отдыха ваших детей и занятий спортом. У подъездов разбиты палисадники, добавляя привлекательность дому.Дом оборудован закрытым двором с системой видеонаблюдения, обеспечивающей высокий уровень безопасности жильцов. Чистота подъезда поддерживается регулярным уходом и обслуживанием, гарантирующим комфортные условия проживания. Расположение данной квартиры предлагает отличные возможности для семейного досуга и повседневной жизни:- Школа и детский сад расположены поблизости, облегчая заботу о детях.- Трамвайная остановка позволяет легко перемещаться по городу.- Парк-стадион Локомотив, сквер Полярника Соловьева и парк Семь ключей предоставляют прекрасные пространства для прогулок и занятия спортом.- Множество магазинов, аптек и другие важные учреждения находятся в непосредственной близости, делая жизнь удобной и беззаботной.Приобретение этой квартиры — идеальное решение для тех, кто ищет качественный семейный дом с прекрасным окружением и отличной инфраструктурой. Не упустите шанс стать владельцем данной жилой площади, которая обеспечит вам комфорт и радость на долгие годы вперед! Закрытый двор с видеонаблюдением и охраной, детская и спортивная площадка, корт. Во дворе имеется большая парковка для машин. Окна выходят на Верх-Исетский пруд. Из окон прекрасный вид на закаты и рассветы.Один собственник. ID объекта в нашей базе: 1541
    размещено: 21.01.2026 , обновлено: 12.04.2026

    2-к квартира, Пехотинцев, 2Г

    • 62.8 м2
    • 4/9 этаж
    • Состояние: идеальное
    8 800 000 ₽ (140100 ₽/м2)
    ▌ Продаётся уютная квартира с двумя спальнями (евро-трёшка) в ЖК «Депо» от топoвого зacтpoйщика "Брусника" Хотите приобрести квартиру мечты в одном из лучших жилых комплексов города? Предлагаем вашему вниманию квартиру площадью 62,8 м² на четвёртом этаже семиэтажного дома. ✅ Почему именно эта квартира? Четвёртый этаж — это золотая середина, идеальный вариант для тех, кому важны комфорт и спокойствие без лишнего шума улицы и соседей сверху. Просторная кухня-гостиная станет местом семейного отдыха и встреч с друзьями. Изолированная приватная зона позволит каждому жильцу чувствовать себя комфортно и уютно. Особенное внимание уделено эргономичной планировке и удобному зонированию пространства, учитывающему сценарии жизни современной семьи. Из двух окон открывается панорамный вид на центральную аллею комплекса и фонтан. Тихая и эстетичная сторона. Кроме того, здесь предусмотрена роскошная мастер-спальня с собственным санузлом и гардеробной, которая подарит вам незабываемые моменты спокойствия и расслабления. ???? Преимущества покупки квартиры в ЖК «Депо»: - Закрытый благоустроенный двор обеспечивает безопасность и спокойствие вашего ребёнка на прогулке. - Все необходимое для комфортной жизни уже предусмотрено: новая мебель и техника входят в стоимость! Качественный современный ремонт в нейтральных тонах. - Отличная транспортная доступность позволяет быстро добраться до любого района города. ▌ Хотите узнать больше? Свяжитесь с нами прямо сейчас, и мы организуем просмотр вашей будущей квартиры мечты! ID объекта в нашей базе: 215
    размещено: 13.01.2026 , обновлено: 15.04.2026

    2-к квартира, Пехотинцев, 2г

    • 74.8 м2
    • 4/8 этаж
    • Состояние: плохое
    7 950 000 ₽ (106300 ₽/м2)
    Горячее предложение: просторная 2-комнатная квартира с большой кухней гостиной, мастер спальной, двумя санузлами, гардеробной!Квартира продаётся в предчистовой отделке: Все грязные, пыльные, шумные работы уже выполнены: залита стяжка с шумо- и гидроизоляцией, построены ровные межкомнатные стены, разведена электрика и слаботочка. Вы сможете воплотить свой дизайн-проект без переделок чужих ремонтов.ЖК Квартал Депо - новый комплекс, расположенный в уже развитом районе. Вся инфраструктура развита. В пешей доступности супермаркеты, остановки городского транспорта, поликлиники, детские сады, школы, гимназии, торговые центры, автоцентры, рынок с большим и доступным по стоимости выбором товаров, парк РЖД и парк с аттракционами Таганская Слобода нашей базе: 13252
    размещено: 15.01.2026 , обновлено: 15.04.2026

    2-к квартира, Кунарская, 14к2

    • 66.7 м2
    • 5/16 этаж
    • Состояние: идеальное
    7 199 000 ₽ (107900 ₽/м2)
    СРОЧНО! ТОРГ! ПРОДАЕТСЯ УЮТНА 2х-КОМНАТНАЯ КВАРТИРА В РАЙОНЕ СТАРОЙ СОРТИРОВКИОписание квартиры: ✔ Ремонт: Выполнен по высоким стандартам с использованием дорогих материалов (авторский дизайн-проект, качественная чистовая отделка, современная сантехника и техника).✔ Просторная площадь — идеально для комфортного проживания. ✔ Без перепланировок — всё соответствует документам. ✔ Готово к заселению: заезжайте и живите! Локация и инфраструктура:???? рядом *Верх-Исетское водохранилище* — виды, прогулки, свежий воздух. ???? Парки: зелёная зона у дома, *парк «Семь ключей» *, стадион «Локомотив». ???? Активный отдых: лыжная база РЖД, бассейн. ???? для семей с детьми: поликлиника, школы, сады, ТЦ, остановки транспорта (трамвай, автобус) — всё в шаговой доступностиДополнительно:* Рассматриваем *обмен на вашу недвижимость*. * Любая форма оплаты (ипотека, наличные). * Срочная продажа — торг уместен! Звоните прямо сейчас и приезжайте на просмотр!Ваш идеальный вариант — не упустите! ID объекта в нашей базе: 18242
    размещено: 12.12.2025 , обновлено: 16.04.2026

    2-к квартира, Червонная, 40

    • 68.4 м2
    • 9/23 этаж
    • Состояние: удовлетворительное
    8 550 000 ₽ (125000 ₽/м2)
    Предлагается к продаже новая квартира в сданном доме 2020 года постройки, по адресу: г. Екатеринбург, ул. Червонная, д. 40.В первую очередь, обратите внимание на планировку, формат евротрешки: кухня-гостиная 17 кв.м. с выходом на лоджию и видом на лесопарк и верх-исетский пруд. Две комнаты, примерно одинаковой площади 14,3 и 14,9 кв.м. Два раздельных санузла и вместительный шкаф в коридоре под хранение одежды 2 кв.м. По итогу, очень удобная, рациональная планировка без лишних метров.Дополнительно, квартира с отделкой под чистовую (стяжка полов, выравненные стены, электрическая разводка), возможность сделать чистовую отделку на свой вкус, при необходимости, скорректировать планировку на свое усмотрение, межкомнатные перегородки не несущие. Бонусом, передадим дизайн-проект всей квартиры.Единственный собственник с момента постройки дома, приобреталась в ипотеку Сбербанк, маткапитал не использовался. Чистая продажа, ипотека возможна. Покажем в любое удобное для Вас время. ID объекта в нашей базе: 784
    размещено: 08.12.2025 , обновлено: 15.04.2026

Новостройки Екатеринбург, мкр-н. Старая Сортировка

Приоритет

Увеличивает просмотры в 3 раза

Ваше объявление показывается в списке выше обычных объявлений. подключить