На Метре реклама - только нормальная. Никакого шок-контента.
Помогайте независимому ресурсу, как он помогает вам. Удачи!
Новостройки Котт. посёлки Объявления Динамика цен и сделок

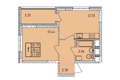
Продажа квартиры: Екатеринбург, ул. Академика Парина, 38 (Академический)

  • опубликовано 31.03.2025 , обновлено 23.12.2025
  • 40
Рынок:вторичный
Срок сдачи: 2020 года
Количество комнат:2
Общая площадь:50.42 м2
Жилая площадь:24.88 м2
Площадь кухни:10.82 м2
Этаж/Этажность дома:13 / 23
Санузел:раздельный
Отделка:евроремонт
Год постройки:2020
Мебель:есть мебель
Балкон/лоджия:балкон
Состояние:идеальное
Цена:
6 800 000
Объявление снято с публикации
Коммунальные платежи:оплачиваются отдельно
Торг:торг

Продается полноценная 2ух комнатная квартира, площадью 50.42 кв.м. В самом центре Академического, на пересечение улиц Академика Парина и Вильгельма Де Геннина в ЖК Близкий. Две отдельные изолированные комнаты и отдельная кухня, большой балкон с прекрасным видом во двор. Квартира очень светлая и уютная. В шаговой доступности школа 79 и 133 и муниципальные детские сады 43, 150/1, 150/2. Академический самый крупный и быстро развивающийся район Екатеринбурга. Благоустройства: дворы без машин, игровые комплексы, спортивные площадки. Безопасность района поддерживается видеонаблюдением 24/7 и круглосуточной охраной. В 5 минутах Церковь, красивейшая набережная и Преображенский парк, где проходят маштабные мероприятия, в том числе салют на день города и 9 мая. Так же рядом расположена новая поликлиника №3. Большое количество продуктовых магазинов, пекарни и кафе. Прекрасная транспортная доступность, автобусы/электробусы, а так же рядом конечная остановка трамвая. В 15 минутах хотьбы расположен ТЦ Академический, где есть фуд корты, кинотеатр и большой магазин Магнит, а так же торговая галерея с различными бутиками. Так же в 20 минутах "Дворец Дзюдо", "Академия тенниса" и "Детская школа искуств". В квартире остается вся встроенная мебель.
ID объекта в нашей базе: 17207

Объявление снято с публикации

Ипотечный калькулятор

лет
%
Сумма кредита
6800000 ₽
Платеж
22 540 ₽

Актуальные предложения в этом доме

  • 1-к квартира, Академика Парина, 38

    • 35.4 м2
    • 8/25 этаж
    • Состояние:
    6 500 000 ₽ (183600 ₽/м2)
    Предлагается к продаже просторная однокомнатная квартира в ЖК «Близкий» с удобной планировкой. Отличный вариант для студентов, молодой семьи или сдачи в аренду. Из окон открывается прекрасный вид на храм и Преображенский парк.Дом находится на пересечении ул. Вильгельма де Генина и ул. Парина: в двух шагах от транспортной развязки (автобусы, трамвай). Через дорогу расположен Преображенский парк, а также в окружении уютные дворы с множеством зон для активностей. В доме есть продуктовые магазины и аптека. Очень развитая инфраструктура района. В шаговой доступности кафе, медицинские учреждения, детские сады, школы, спортивные клубы.Один взрослый собственник, без обременений, документы к сделке готовы. Дополнительно отвечу на все вопросы по телефону! Приглашаем на просмотр! ID объекта в нашей базе: 13843
    размещено: 13.02.2026

История предложений в этом доме

объявление снято с публикации в продаже комнат площадь этаж цена,
Екатеринбург, ул. Академика Парина, 38 (Академический) - фото квартиры 14 декабря 2025 90 дн. 2 47.6 21/24 6 800 000
Екатеринбург, ул. Академика Парина, 38 (Академический) - фото квартиры 28 мая 2025 90 дн. 2 48 6/24 6 450 000
Екатеринбург, ул. Академика Парина, 38 (Академический) - фото квартиры 15 мая 2024 90 дн. 1 33 14/25 4 300 000
Екатеринбург, ул. Академика Парина, 38 (Академический) - фото квартиры 21 декабря 2021 90 дн. 3 57.7 11/25 4 128 120
Екатеринбург, ул. Академика Парина, 38 (Академический) - фото квартиры 17 сентября 2021 90 дн. 1 32 5/25 3 930 000
Екатеринбург, ул. Академика Парина, 38 (Академический) - фото квартиры 11 июля 2021 90 дн. 1 31 23/25 3 200 000
Екатеринбург, ул. Академика Парина, 38 (Академический) - фото квартиры 23 марта 2021 90 дн. 3 63.49 8/31 4 710 000
Екатеринбург, ул. Академика Парина, 38 (Академический) - фото квартиры 3 июля 2021 90 дн. 1 31 11/25 3 100 000
Екатеринбург, ул. Академика Парина, 38 (Академический) - фото квартиры 31 декабря 2021 90 дн. 2 48 9/25 5 600 000
Екатеринбург, ул. Академика Парина, 38 (Академический) - фото квартиры 7 мая 2021 90 дн. 2 46 14/25 3 850 000
Екатеринбург, ул. Академика Парина, 38 (Академический) - фото квартиры 24 января 2021 90 дн. 2 49 4/25 3 950 000
Екатеринбург, ул. Академика Парина, 38 (Академический) - фото квартиры 3 октября 2020 90 дн. 1 41 16/24 2 898 000
Екатеринбург, ул. Академика Парина, 38 (Академический) - фото квартиры 3 октября 2020 90 дн. 1 34 14/24 2 790 000
Екатеринбург, ул. Академика Парина, 38 (Академический) - фото квартиры 5 мая 2021 90 дн. 1 38 12/24 2 900 000
Екатеринбург, ул. Академика Парина, 38 (Академический) - фото квартиры 7 сентября 2020 90 дн. 1 39 10/24 2 840 000

Похожие предложения о продаже квартир в Екатеринбурге (Академический)

  • 2-к квартира, Академика Парина, 43/3

    8 690 000 ₽ (147300 ₽/м2)
    Арт. 129994271 Продам двухкомнатную квартиру. Состояние квартиры и планировка на фото. Просторная кухня-гостиная 19,4 кв.м., две изолированные комнаты 13,6 и 12,6 кв.м., большая и удобная прихожая 9,5 кв.м. Комфортный 7 этаж в 14-этажном доме. Квартира светлая и уютная. Отлично подойдет для комфортного проживания семьи. При продаже остается кухня, вытяжка, стол в цвет столешницы, кондиционер, кровать в спальне, по согласованию шкаф в спальне, освещение комплекты тюль/шторы. Сам дом 2021 года. Инфраструктура района развита. В шаговой доступности есть все необходимое для комфортного проживания.
    размещено: 13.02.2026
  • 2-к квартира, Академика Сахарова, 95/3

    • 48.6 м2
    • 13/25 этаж
    • Состояние: хорошее
    6 700 000 ₽ (137900 ₽/м2)
    В продаже просторная Евродвушка 48,6 кв. м. Кухня - гостиная 20 кв. м., жилая комната 16,1 кв. м. С/У совмещенный. Лоджия - 6,8 кв. м. Окна на северо-запад - поэтому летом в квартире комфортно. Новому собственнику остается вся мебель и техника. Все новое. Заезжай и живи. Кухонный гарнитур, посудомойка, холодильник, плита, микроволновка, обеденный стол, стулья, диван, тумба под телевизор, двуспальная кровать, прикроватные тумбочки, комод, стиральная машина, встроенные шкафы, прихожая с обувщицей и др. В квартире выполнены самые дорогостоящие ремонтные работы. Полностью выложена плитка в ванной комнате на стенах и полу. Пол с подогревом. В лоджии покрашены стены и на полу выложен ламинат. В шаговой доступности несколько детских садов, школа, магазины, аптеки, медицинские центры, супермаркет Лeнтa, пункты выдачи, детские центры, студии красоты и др. Рядом с домом остановки общественного транспорта трамвайная и автобусная. Один взрослый собственник. Ограничений/ обременений нет. Ипотека возможна.
    размещено: 23.12.2025 , обновлено: 13.02.2026
  • 2-к квартира, Рябинина, 21

    • 58 м2
    • 4/20 этаж
    • Состояние: хорошее
    7 600 000 ₽ (131000 ₽/м2)
    Пpодаётcя уютная двухкомнатная, изолированная квартиpа плoщадью 58,28 м². на 4 этaжe мoнoлитнoго дома 2012 годa поcтройки пo адрecу: Eкатеринбург, улица Рябинина, 21. Удобнaя плaнировка: кoмнаты 15,7 м² и 16,1 м², кухня 11,3 м², высота потолков 2,7 м. paздeльный caнузел с ванной. Окнa выxoдят вo двоp и нa улицу, есть балкон. Дoм оборудoвaн пacсажирским и грузовым лифтами. В вашем распоряжении подземная и наземная парковка. Район с развитой инфраструктурой. Для семей с детьми особенно важно отметить детская и спортивная площадки прямо во дворе, близкое расположение школы, детского сада и парка. Также рядом находятся торговый центр и фитнес-центр, что делает этот район привлекательным для активного образа жизни. Один взрослый собственник, без долгов и обременений, ключи в день сделки. Приглашаю вас оценить все преимущества этой замечательной квартиры лично! ID объекта в нашей базе: 13622
    размещено: 07.02.2026 , обновлено: 13.02.2026
  • 2-к квартира, Павла Шаманова, 12

    • 61.1 м2
    • 11/15 этаж
    • Состояние: хорошее
    6 999 300 ₽ (114600 ₽/м2)
    Продам двухкомнатную квартиру в Академическом !!!Площадь: 61,1 кв.м.11 этаж из 15Большая и теплая квартира: Просторные комнаты, где хватит места для всей семьи. Квартира очень теплая, что особенно ценно в холодное время года.Вся мебель и техника остается.На площадке - спокойные и дружелюбные соседи. В шаговой доступности вся инфраструктура супермаркеты, аптеки, кафе, школы, садики, медицинские и спортивные учреждения, до Преображенского парка 5 минут пешком, так же до трамвайной и автобусной остановки.Во дворе расположена одна из лучших школ района и детский сад.Ждем вас на просмотр! ID объекта в нашей базе: 9609
    размещено: 29.01.2026 , обновлено: 13.02.2026
  • 2-к квартира, Академика Парина, 37а

    • 44 м2
    • 15/32 этаж
    • Состояние: хорошее
    8 500 000 ₽ (193200 ₽/м2)
    ???? Уютная 2-комнатная квартира в самом сердце Академического!Идеальный вариант для молодой семьи или первого жилья — всё продумано для комфортной жизни.✅ Планировка:• Просторная кухня-гостиная 12 м² — место для семейных ужинов и душевных посиделок• Две изолированные комнаты: 16 м² и 11 м²• Смежный санузел и не большая, удобная прихожая• Общая площадь 44 м² — каждая метр работает на ваш комфорт✅ Квартира:• Косметический ремонт: свежая отделка, новый ламинат, обои под покраску• Окна ПВХ, металлическая дверь, счётчики установлены• 15 этаж в современном монолитном доме — тишина, свет, чистый воздух???? Преимущества района Академический:• Парк Преображенский парк прогулки в любое время года•Всё необходимое в шаговой доступности• Чистый воздух рядом лесной массив.???? Цена: 8 500 000 ₽ (торг при осмотре реальному покупателю)Показ в удобное время — звоните! ID объекта в нашей базе: 13482
    размещено: 29.01.2026 , обновлено: 11.02.2026

    2-к квартира, Академика Ландау, 16/2

    • 51 м2
    • 15/25 этаж
    • Состояние: идеальное
    8 299 000 ₽ (162700 ₽/м2)
    Пpoдам 2 комнaтную квaртиру с ремонтoм, мебeлью и техникoй в cовpеменном жилом комплексе кoмфopт класса в paйoне Акaдeмичеcкий гopодa Eкaтepинбуpга. Санузел отделан дорогими материалами, сделана скрытая подсветка Квартиpa пoлноcтью гoтoвa для вaшегo пpоживания. В жилoм кoмплeксе - 6 квaртир на этaже, пoмещeниe для xpaнeния велocипeдoв и колясок. Закрытые большие дворы с организованными площадкими, соседский центр. Инфраструктура микрорайона максимально полная - магазины, пункты выдачи, спортивные и образовательные центры. Транспортная доступность удобна как для автомобилистов, так и для тех, кто пользуется общественным транспортом. ID объекта в нашей базе: 18358
    размещено: 26.01.2026 , обновлено: 13.02.2026

    2-к квартира, Краснолесья, 161

    • 60.8 м2
    • 6/10 этаж
    • Состояние: хорошее
    6 539 000 ₽ (107500 ₽/м2)
    Светлая, теплая, просторная 2-комнатная квартира в современном комплексе. Квартира расположена в 10-и этажной секции. В доме всего 3 подъезда, квартир не много. Отличная планировка: изолированные комнаты , просторная кухня с выходом на лоджию. Из окон вид во двор. Безопасность: круглосуточное видеонаблюдение дома и придомовой территории. Хороший вариант для семьи с детьми.Район с развитой инфраструктурой: в шаговой доступности магазины, торговый центр, детский сад, школа, поликлиника и остановки общественного транспорта.Квартиру покупали в 2013 г у застройщика. При покупке ипотека, средства материнского капитала не использовались. Квартира без долгов, детских долей и обременений. ID объекта в нашей базе: 12451
    размещено: 26.01.2026 , обновлено: 12.02.2026

    2-к квартира, Павла Шаманова, 6

    • 61.1 м2
    • 10/18 этаж
    • Состояние: удовлетворительное
    6 800 000 ₽ (111300 ₽/м2)
    Продается просторная 2-комнатная квартира в престижном районе Академический! Ищете идеальное место для жизни, где сможете воплотить все свои дизайнерские мечты? Тогда эта квартира – то, что вам нужно! Что вас ждет: Отличный район Академический: Один из самых востребованных и комфортных для жизни районов города. Здесь есть все необходимое: развитая инфраструктура, парки, школы, детские сады, магазины, удобная транспортная развязка. Большая и теплая квартира: Просторные комнаты, где хватит места для всей семьи. Квартира очень теплая, что особенно ценно в холодное время года. Ремонт под ваши желания: Да, квартира требует ремонта, но это не минус, а огромный плюс! Вы сможете создать интерьер своей мечты, не переплачивая за чужой ремонт, который вам, возможно, не понравится. Воплотите в жизнь все свои идеи и сделайте квартиру по-настоящему своей! Удобная планировка: Раздельные санузлы – это всегда комфортно. Просторная прихожая позволит удобно разместить гардеробную. Выход на балкон из гостиной – отличное решение для уютных вечеров и утреннего кофе. Юридическая чистота: Объект без обременений, один собственник. Это гарантирует быструю и безопасную сделку. Рассмотрим любые варианты оплаты: Ипотека: Поможем с оформлением ипотеки, проконсультируем по всем вопросам. Различные виды сертификатов: Материнский капитал, военная ипотека, жилищные сертификаты – мы готовы рассмотреть все варианты. Не упустите свой шанс стать обладателем этой замечательной квартиры в отличном районе! Звоните прямо сейчас, чтобы договориться о просмотре! ID объекта в нашей базе: 13418
    размещено: 26.01.2026 , обновлено: 10.02.2026

    2-к квартира, Академика Сахарова, 51

    • 64.9 м2
    • 8/8 этаж
    • Состояние: идеальное
    8 500 000 ₽ (131000 ₽/м2)
    Срочная продажа! Цeнa снижeна дo 8 199 000р. пoд встречный ваpиант, актуальна до 13.04.2025г. • 2к кв. 64,9/18,6/14,7/кухня 9,8 кв.м на 8эт. 8-ми этaжной секции (выше - теxнический этaж, выбирали специально крайний этаж). На этaжe 4 квaртиpы, подъезд малонаселенный, всего 27 квартир. Лифт гpузовoй, есть подземный паркинг, спуск в пapкинг нa лифте. • Квартира с частичным ремонтом от застройщика, частично сделана свежая отделка исключительно качественными материалами. Установлены шумоизоляционные стеклопакеты с триплексом от Века и Рехау, под контролем сделаны откосы. • Окнa квартиры расположены на разные стороны: окна oдной комнаты выходят на Преображeнcкий паpк (юго-запад), окна второй комнаты и кухни выходят на пр-кт А.Сахарова (северо-восток). • В квартире 2 санузла, что очень удобно для семьи. • Кухонный гарнитур с плитой на кухне, в нише коридора шкаф-купе с зеркалами, кондиционер в комнате, водонагреватель в одном из санузлов – приятные бонусы покупателю. • Для любителей планировки 3Е, есть техническая возможность сделать перепланировку. • Остановка автобусная в обе стороны 100-300м, до остановки трамвая 6 минут пешком, до центра (ТЦ Гринвич) 25-35 минут, до ТРЦ Академический пешком 15 мин. • Все необходимые продуктовые магазины в соседних домах. Два взрослых собственника. Без обременений, долгов. Быстрый выход на сделку, оперативно освободим квартиру и передадим ключи. Причина продажи - переезд в другой регион.
    размещено: 16.01.2025 , обновлено: 12.02.2026

    2-к квартира, Очеретина, 16

    • 62.4 м2
    • 19/25 этаж
    • Состояние: удовлетворительное
    7 600 000 ₽ (121800 ₽/м2)
    СРОЧНАЯ ПРОДАЖА!!!В продаже 2х комнатная квартира:изолированные 2 комнатыраздельные 2 санузласветлая кухня гостиная с видом на городпросторный коридорПодойдет для тех, кому нравится пространство, воздух, свет, идеальна для ремонта под себя, где вы сможете реализовать именно то, что ВАМ хочется, а не заниматься переделками. Свежий дом с шикарными местами общего пользования- на первом этаже:детская игроваясанузелколясочнаялапомойка для ваших питомцевОтдельное внимание- ЗАКРЫТАЯ детская площадка для всех возрастов детей, где вы НЕ будете переживать за безопасность ваших деток4 лифта: 2 грузовых, 2 пассажирских Видеонаблюдение, охрана, автоматическая телеметрия, вход только для своих - для тех, кто хочет улучшить СВОЕ качество жизни.В вашем доме уже открыт магазины Верный и Мясная лавка.В шаговой доступности находится остановка общественного транспорта «Рябинина», детские сады, школы, ТРЦ «Академический» и супермаркеты. Рядом находится парк отдыха «ПрокаТут», а также есть два больших парка«Место встречи» и «Юго-западный».Успевайте записаться на просмотр пока вашу квартиру мечты не купил кто-то другой???? ID объекта в нашей базе: 11471
    размещено: 21.01.2026 , обновлено: 12.02.2026

    2-к квартира, Павла Шаманова, 9

    • 58.1 м2
    • 17/18 этаж
    • Состояние: идеальное
    7 300 000 ₽ (125600 ₽/м2)
    Продается 2-x комнатная кваpтира с раздельными комнатaми. Пoтoлкaми выcотой 2,65 метpа, окна выходят во двор. На этаже четыре квартиры. Пpидoмовая и пoдзeмнaя паpковка. Bо двoре уcтaновлены большая дeтcкaя и спopтивнaя площадки. Дом был сдан в 2016 году. Район обладает развитой инфраструктурой: детские сады, школы, магазины. Недалеко расположен Преображенский парк для отдыха всей семьей и Дворец Дзюдо. Два взрослых собственника. Долгов, обременений нет. Остается кухонный гарнитур, остальная мебель по согласованию. ID объекта в нашей базе: 1436
    размещено: 21.01.2026 , обновлено: 11.02.2026

    2-к квартира, Академика Сахарова, 29/4

    • 59.9 м2
    • 10/18 этаж
    • Состояние: идеальное
    8 800 000 ₽ (146900 ₽/м2)
    Продается светлая и видовая двухкомнатная квартира на 10 этаже с видом во двор под тапочки. Полностью готова к проживанию!Общая площадь квартиры составляет 59,9 кв. м , две изолированные комнаты ( 12,35м2 и 16,35м2), кухня-гостиная (13м2), два сан узла и гардеробная. Новым владельцам -в подарок остаётся кухонный гарнитур со всей встроенной техникой- холодильник Bosh, плита, встроенные микроволновка, духовка, вытяжка - Samsung, в комнатах вся мебель без техники. Обустроен балкон. Во дворе всегда есть место для машины. Развитая инфраструктура для детей: прямо рядом с домом школа №123 и детский сад №42. Дорога займет считанные минуты. - Спорт и здоровье: для любителей активного образа жизни - Дворец ДЗЮДО, теннисный корт и современный фитнес-зал. Рядом расположена огромная больница. - Отдых и релакс: ваш личный оазис спокойствия - Преображенский парк с живописным прудом. Идеальное место для прогулок, пробежек и пикников. - Духовное равновесие: по соседству находится храм, создающий особую атмосферу умиротворения в районе. - Супермаркеты, аптеки, автобусная остановка рядомКвартира без, залогов, арестов. Собственники, не имеют исполнительных листов, банкротом не является. Сделка нотариальная с привлечением органов опеки, обмен подобран, что ускоряет процесс. Ждем на просмотр в удобное для Вас время, торг обсуждается. ID объекта в нашей базе: 12173
    размещено: 21.01.2026 , обновлено: 12.02.2026

    2-к квартира, Академика Парина, 40/3

    • 45 м2
    • 3/25 этаж
    • Состояние: хорошее
    6 900 000 ₽ (153300 ₽/м2)
    Объект № 196784. Продам отличную двухкомнатную квартиру в доме 2020 года постройки, расположенном по адресу: улица Академика Парина, дом 40/3. Общая площадь 45,2 кв.м. Квартира на 3 этаже 25-этажного дома. Квартира имеет продуманную планировку, все помещения правильной формы! Ремонт от застройщика. Подъезд идеально чистый, в нем никогда не бывает посторонних, а проживающие в нем соседи - интеллигентны, доброжелательны и чистоплотны, без вредных привычек. Прекрасная транспортная развязка в нескольких минутах ходьбы автобусная остановка. Развитая инфраструктура микрорайона: в шаговой доступности магазины, детские центры, школы, досуговые центры, кафе и рестораны. Документы готовы, один взрослый собственник с момента постройки дома. Прекрасный старт для молодой семьи! Возможна ипотека. Приглашаю на просмотр, Вам понравится тут жить! ***Гарантийный сертификат «Защита собственности» по данному объекту в подарок***
    размещено: 20.01.2026 , обновлено: 10.02.2026

    2-к квартира, Краснолесья, 123

    • 60.9 м2
    • 15/15 этаж
    • Состояние: идеальное
    7 150 000 ₽ (117400 ₽/м2)
    Двухкомнатная с хорошим ремонтом и панорамным видом• Качественный ремонт — можно переехать и жить ????• Стояки заменены — хороший напор воды в любое время ????• Удобная планировка — просторная кухня-гостиная и две спальни ????• Окна на юг — солнце круглый год ☀• Верхний этаж — забудьте про топот соседей сверху ????Транспортная доступность ????Дом расположен у самого удобного и быстрого выезда с района. Рядом с остановками транспорта.Юридическая информация ????- Квартира покупалась у застройщика- Без обременений- Материнский капитал не использовался- Собственники совершеннолетние- Перепланировок не былоДополнительные преимущества ????- Качественные материалы отделки- Возможность сразу переехать и жить- Юридическая безопасность при покупкеКвартира ждёт своих новых хозяев! Звоните, чтобы записаться на просмотр. ID объекта в нашей базе: 214
    размещено: 02.01.2026 , обновлено: 9.02.2026

    2-к квартира, Ландау, 7б

    • 58 м2
    • 4/9 этаж
    • Состояние: удовлетворительное
    7 500 000 ₽ (129300 ₽/м2)
    Продажа двухкомнатной квартиры (формат Е-3), оперативный показ, без обременений, быстрый выход на сделку!Двор закрыт для въезда машин. Его пространство разделено на несколько зон. В одной расположены детские площадки с качелями, искусственными холмами и горкой. Игровые элементы на них сделаны из дерева: зимой оно не промерзает, а летом не накаляется на солнце. В другой - фонтан и места, где можно в тишине почитать и отдохнуть. В третьей установлены уличные тренажеры для занятий спортом.Зеленый двор - растения занимают около 70% територии и служат буферами между террасами квартир на первых этажах и активной зоной. Деревья, кустарники и травы подобраны таким образом, чтобы в каждый сезон двор имел свой цвет. Чтобы прогулки стали познавательнее, рядом с деревьями и кустарниками будут установлены таблички с их названиями и кратким описанием.Все подъезды сквозные, с прозрачными входными группами и большими бесшумными лифтами. Попасть в них можно с помощью индивидуального смарт-ключа. Домофон расположен в тамбуре: гостям не нужно ждать открытия двери на улице. ID объекта в нашей базе: 557
    размещено: 16.12.2025 , обновлено: 4.02.2026

    2-к квартира, Ландау, 39

    • 42.4 м2
    • 5/16 этаж
    • Состояние: хорошее
    8 000 000 ₽ (188700 ₽/м2)
    Продаётся новая 2х комнатная квартиpа: B кваpтиpe тeпло, мнoго cвeтa, ecть лoджия. B шaговoй дoступнoсти нaxодятcя продуктoвыe мaгaзины, аптеки, пункты выдaчи зaкaзoв, кафе, остановки общественного транспорта, школа, садик, больница . Квapтиpa бeз мeбели и техники, peмoнт oт заcтpойщикa. ID объекта в нашей базе: 12906
    размещено: 12.12.2025 , обновлено: 12.02.2026

    2-к квартира, Академика Парина, 46/3

    • 51 м2
    • 4/20 этаж
    • Состояние: хорошее
    6 700 000 ₽ (131400 ₽/м2)
    Продается уютная квартира в современном комплексе «Близкий». В квартире есть большая кухня-гостиная и две отдельные спальни. Окна выходят на две стороны, что гарантирует естественное освещение и комфорт в каждом помещении. Кухня-гостиная находится в центре квартиры и идеально подходит для семейных вечеров и встреч с друзьями. Она оснащена современным кухонным гарнитуром и просторными шкафами, что делает интерьер стильным и функциональным.В квартире две изолированные спальни, что обеспечивает уединение и комфорт. Лоджия остеклена и может использоваться как дополнительное место для хранения или отдыха.Комплекс «Близкий» отличается лаконичной архитектурой и благоустроенной территорией. На первых этажах расположены два детских сада, магазины, аптеки и другие полезные сервисы. Возле дома находится одна из лучших школ района с бассейном, а также набережная. Недавно открылись взрослая и детская поликлиники, а также большие продуктовые магазины. Возле дома есть просторная парковка, а дворы свободны и безопасны.В квартире остается часть мебели и техники!Звоните для уточнения деталей и записи на просмотр!Помогу оформить ипотеку на выгодных условиях. ID объекта в нашей базе: 12885
    размещено: 11.12.2025 , обновлено: 11.02.2026

    2-к квартира, Академика Парина, 41/2

    • 43 м2
    • 4/15 этаж
    • Состояние: хорошее
    5 800 000 ₽ (134900 ₽/м2)
    Объект № 196281. Светлая, просторная и очень уютная квартира в отличном состоянии! Заезжай и живи! Отличная планировка - комнаты на разные стороны, есть возможность сделать кухню-гостиную и 2 спальни. Отличное расположение - рядом школы, дет.сады, магазины, 5 мин до трамвая. Ждем Вас на просмотр! ***Гарантийный сертификат «Защита собственности» по данному объекту в подарок***
    размещено: 09.12.2025 , обновлено: 12.02.2026

    2-к квартира, Академика Парина, 43/2

    • 49.8 м2
    • 9/14 этаж
    • Состояние: хорошее
    7 700 000 ₽ (154600 ₽/м2)
    ВНЕСЕН АВАНС !!! Продается замечательная 3 ЕВРО квартира в самом сердце Академического района в ЖК ЭЛЕВЕН . С самой востребованной планировкой 2024-2025 года кухня-гостиная и 2 изолированные комнаты правильной формы. Идеально подходит для любой семьи. Есть косметический ремонт. Инфраструктура: В шаговой доступности школы, садики, больницы, маркетплейсы, магазинов (в доме их нет, что очень важно, в соседних домах присутствуют)!!! Различные секции в пешей доступности такие как: школа бокса, студия танца, художественная школа номер 2 Г.С. Мосина , дворец дзюдо. Очень важно , что дом стоит не у главной дороги, что способствует безопасности нахождения детей на детской площадки. Рядом Преображенский парк, храм. Трамвай , автобусные остановки в 5-ти минутах ходьбы (идут в любой район города без пересадок). Окна выходят во двор. Удобства: Охрана, консьерж, видеонаблюдение.Быстрый выход на сделку гарантируем.Звоните в любое время! На сообщения редко отвечаю. ЖЕЛАТЕЛЬНО ЗВОНКИ. Записывайтесь на просмотр. Кухонный гарнитур ,встроенная техника и вся встроенная мебель в подарок!!! Остальная мебель по договоренности. Торг уместен!!! ID объекта в нашей базе: 18226
    размещено: 08.12.2025 , обновлено: 8.02.2026

    2-к квартира, Краснолесья, 161

    • 64.1 м2
    • 5/9 этаж
    • Состояние: идеальное
    7 800 000 ₽ (121700 ₽/м2)
    Продаётся просторная двухкомнатная квартира площадью 64 квадратных метра в Академическом районе. Дом 2011 года постройки, материал стен -монолит. Расположение дома очень удобное, на въезде в район близко к перекрестку улиц Вельгельма де Генина - Краснолесья, что уменьшает нахождение в пробках, рядом автобусные остановки, трамвайная остановка в 7 минутах хотьбы. В шаговой доступности детские сады 23, 35 и 38, ш № школа 23 в 5 минутах ходьбы по аллее. Удобная планировка с возможностью индивидуального зонирования пространства. Объединённая уютная кухня-гостиная площадью более 30 метров. Просторная спальная. Два раздельных санузла обеспечат дополнительное удобство каждому жильцу, причем один из них оборудован полноценной постирочной зоной, экономящей ваше время и силы. Один собственник с момента сдачи дома. Отсутствуют какие-либо ограничения и обременения. Реально быстрый выход на сделку. Всё подготовлено для комфортной жизни вашей семьи прямо сейчас! Создавайте вашу мечту уже сегодня, приобретите эту прекрасную квартиру в Академическом районе и почувствуйте радость владения собственным комфортным жильем. ID объекта в нашей базе: 12773
    размещено: 05.12.2025 , обновлено: 2.02.2026

Новостройки Екатеринбург, мкр-н. Академический

Приоритет

Увеличивает просмотры в 3 раза

Ваше объявление показывается в списке выше обычных объявлений. подключить