На Метре реклама - только нормальная. Никакого шок-контента.
Помогайте независимому ресурсу, как он помогает вам. Удачи!
Новостройки Котт. посёлки Объявления Динамика цен и сделок

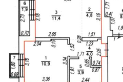
Продажа квартиры: Екатеринбург, ул.Академика Ландау, 7Б (Академический)

  • опубликовано 5.05.2025 , обновлено 18.10.2025
  • 39
Рынок:вторичный
Срок сдачи: 2024 года
Количество комнат:2
Общая площадь:58 м2
Жилая площадь:29.3 м2
Площадь кухни:20.4 м2
Этаж/Этажность дома:4 / 9
Санузел:совмещенный
Отделка:требует ремонта
Год постройки:2024
Балкон/лоджия:2 балкона
Состояние:удовлетворительное
Цена:
7 950 000
Объявление снято с публикации
Коммунальные платежи:оплачиваются отдельно
Торг:торг
Условия продажи:«чистая» продажа
Ипотека:возможна

Продажа двухкомнатной квартиры (формат Е-3), оперативный показ, без обременений, быстрый выход на сделку!Двор закрыт для въезда машин. Его пространство разделено на несколько зон. В одной расположены детские площадки с качелями, искусственными холмами и горкой. Игровые элементы на них сделаны из дерева: зимой оно не промерзает, а летом не накаляется на солнце. В другой - фонтан и места, где можно в тишине почитать и отдохнуть. В третьей установлены уличные тренажеры для занятий спортом.Зеленый двор - растения занимают около 70% територии и служат буферами между террасами квартир на первых этажах и активной зоной. Деревья, кустарники и травы подобраны таким образом, чтобы в каждый сезон двор имел свой цвет. Чтобы прогулки стали познавательнее, рядом с деревьями и кустарниками будут установлены таблички с их названиями и кратким описанием.Все подъезды сквозные, с прозрачными входными группами и большими бесшумными лифтами. Попасть в них можно с помощью индивидуального смарт-ключа. Домофон расположен в тамбуре: гостям не нужно ждать открытия двери на улице.
ID объекта в нашей базе: 557

Объявление снято с публикации

Ипотечный калькулятор

лет
%
Сумма кредита
7950000 ₽
Платеж
22 540 ₽

Актуальные предложения в этом доме

  • 2-к квартира, Академика Ландау, 7б

    • 58 м2
    • 4/9 этаж
    • Состояние:
    7 500 000 ₽ (129300 ₽/м2)
    Продажа двухкомнатной квартиры (формат Е-3), оперативный показ, без обременений, быстрый выход на сделку!Двор закрыт для въезда машин. Его пространство разделено на несколько зон. В одной расположены детские площадки с качелями, искусственными холмами и горкой. Игровые элементы на них сделаны из дерева: зимой оно не промерзает, а летом не накаляется на солнце. В другой - фонтан и места, где можно в тишине почитать и отдохнуть. В третьей установлены уличные тренажеры для занятий спортом.Зеленый двор - растения занимают около 70% територии и служат буферами между террасами квартир на первых этажах и активной зоной. Деревья, кустарники и травы подобраны таким образом, чтобы в каждый сезон двор имел свой цвет. Чтобы прогулки стали познавательнее, рядом с деревьями и кустарниками будут установлены таблички с их названиями и кратким описанием.Все подъезды сквозные, с прозрачными входными группами и большими бесшумными лифтами. Попасть в них можно с помощью индивидуального смарт-ключа. Домофон расположен в тамбуре: гостям не нужно ждать открытия двери на улице. ID объекта в нашей базе: 557
    размещено: 29.05.2025 , обновлено: 31.10.2025
  • 1-к квартира, Академика Ландау, 7б

    • 35 м2
    • 4/9 этаж
    • Состояние:
    5 500 000 ₽ (157100 ₽/м2)
    Срочная продажа однокомнатной квартиры, оперативный показ, без обременений, быстрый выход на сделку! Реальному покупателю - ТОРГ!Двор закрыт для въезда машин. Его пространство разделено на несколько зон. В одной расположены детские площадки с качелями, искусственными холмами и горкой. Игровые элементы на них сделаны из дерева: зимой оно не промерзает, а летом не накаляется на солнце. В другой - фонтан и места, где можно в тишине почитать и отдохнуть. В третьей установлены уличные тренажеры для занятий спортом.Зеленый двор - растения занимают около 70% територии и служат буферами между террасами квартир на первых этажах и активной зоной. Деревья, кустарники и травы подобраны таким образом, чтобы в каждый сезон двор имел свой цвет. Чтобы прогулки стали познавательнее, рядом с деревьями и кустарниками будут установлены таблички с их названиями и кратким описанием.Все подъезды сквозные, с прозрачными входными группами и большими бесшумными лифтами. Попасть в них можно с помощью индивидуального смарт-ключа. Домофон расположен в тамбуре: гостям не нужно ждать открытия двери на улице. ID объекта в нашей базе: 548
    размещено: 29.05.2025 , обновлено: 29.10.2025
  • 3-к квартира, Академика Ландау, 7Б

    • 82 м2
    • 5/9 этаж
    • Состояние:
    10 000 000 ₽ (122000 ₽/м2)
    На нашу квартиру возможно получить сниженную процентную ставку по ипотеке. Продам уникальную квартиру в ЖК Брусника Академический! Идеальный вариант для большой семьи. Квартира с просторной и функциональной планировкой имеющей просторную кухню-гостиную, а также 3 отдельный спальни и два сан узла. В прихожей устроена вместительная гардеробная. Средний этаж, не будет проблем с водой и лифтом. Под домом расположен прекрасный паркинг, можно приобрести дополнительно. Также в продаже есть КЛАДОВАЯ на -1 этаже.Квартиру передается с предчистовой отделкой. Это наиболее удобный для покупателей формат. Все грязные, пыльные, шумные работы мы уже выполнили: залили стяжку с шумо- и гидроизоляцией, выстроили ровные межкомнатные стены, развели электрику и слаботочку. Вы получаете «чистый лист», готовый к финишном ремонту и воплощению почти любых дизайнерских задумок. Этот дом застройщик создавал совместно с известным польским бюро. Переменная высотность, разнообразие летних помещений, ступенчатая пластика фасада придаёт внешнему облику здания динамизм, делает его не скучным. Интерьер дома выполнен в стиле европейского модернизма. В дизайне преобладают прямые линии, чистые формы, лаконичные цвета. Двор закрыт от машин. Он на 70% будет покрыт зеленью, здесь спортивная и детские площадки соседствуют с местами для тихого отдыха. Мы проектировали внутреннее пространство, вдохновившись техникой пэчворк, позволяющей соединить лоскуты разного характера в гармоничное полотно.Согласно утвержденному проекту планировки территории в пешеходной доступности от квартала Брусники появятся две школы, рассчитанные на 1700 мест, и шесть детских садов. Рядом со строящимися домами расположены две крупные зелёные зоны — Юго-Западный лесопарк и Преображенский парк, в пространстве которого будет организовано озеро.Рассматриваем все варианты приобретения: ипотека, материнский капитал, военная ипотека. Просмотры в удобное для вас время. ID объекта в нашей базе: 7642
    размещено: 15.03.2025 , обновлено: 18.10.2025

История предложений в этом доме

объявление снято с публикации в продаже комнат площадь этаж цена,
Екатеринбург, ул. Академика Ландау, 7б - фото квартиры 10 октября 2025 90 дн. 1 40.3 5/15 6 300 000
Екатеринбург, ул. Академика Ландау, 7б - фото квартиры 10 октября 2025 90 дн. 1 34.8 5/15 5 790 000
Екатеринбург, ул. Академика Ландау, 7б - фото квартиры 28 июня 2025 90 дн. 1 40.8 5/8 5 990 000
Екатеринбург, ул. Академика Ландау, 7б (Академический) - фото квартиры 6 мая 2025 90 дн. 2 58 4/9 7 950 000
Екатеринбург, ул. Академика Ландау, 7Б (Академический) - фото квартиры 8 апреля 2025 90 дн. 0 18 4/9 2 850 000
Екатеринбург, ул. Академика Ландау, 7б (Академический) - фото квартиры 6 мая 2025 90 дн. 1 35 4/9 5 950 000
Екатеринбург, ул. Академика Ландау, 7Б (Академический) - фото квартиры 27 марта 2025 90 дн. 1 38 4/8 5 150 000
Екатеринбург, ул. Академика Ландау, 7б (Академический) - фото квартиры 6 марта 2025 90 дн. 1 35 4/9 6 300 000

Похожие предложения о продаже квартир в Екатеринбурге (Академический)

  • 2-к квартира, Академика Парина, 4

    • 55.8 м2
    • 3/15 этаж
    • Состояние: хорошее
    6 890 000 ₽ (123500 ₽/м2)
    ???? ПРОДАЁТСЯ ЧУДЕСНАЯ 2-КОМНАТНАЯ КВАРТИРА В ЕКАТЕРИНБУРГЕ! ???????? Адрес: ул. Академика Парина, 4Ваша мечта о светлом и уютном доме стала реальностью! ✨ Эта квартира — именно то место, где начинается настоящее счастье! ❤️???? ОСНОВНАЯ ИНФОРМАЦИЯ:· Комнат: 2 — просторно и комфортно! ????️· Состояние: Чистая, светлая, готовая к проживанию! Заезжай и живи — никаких хлопот с ремонтом! ????· Планировка: Продуманная и удобная для жизни!✨ ОСОБЕННОСТИ КВАРТИРЫ:· Изолированные комнаты: Это гарантия уединения и комфорта для всех жильцов! Можно спокойно работать, отдыхать или принимать гостей! ????????· Кухня: Отдельная, уютная, где так приятно собираться всей семьей за завтраком или ужином! ☕???????? ОЩУЩЕНИЯ:Квартира наполнена светом ☀️ и положительной энергией! Она ждёт своих новых хозяев, чтобы наполниться смехом, любовью и уютными вечерами. Здесь вы сразу почувствуете себя как дома! ????????????️ РАЙОН МЕЧТЫ ДЛЯ СЕМЬИ С ДЕТЬМИ! ????‍????‍????‍????Это не просто квартира, это — билет в жизнь с богатейшей инфраструктурой для развития и отдыха!· Академия тенниса и Дворец дзюдо — подарят возможность для спортивных побед и здорового образа жизни без долгих поездок! ????????· Детский сад и школа в шаговой доступности — больше никаких утомительных дорог по утрам! ????????· Транспорт всего в 5 минутах ходьбы ???? — вы легко доберётесь в любую точку города!· Магазины рядом — все необходимые покупки можно сделать, не уезжая далеко от дома! ????✅ ИДЕАЛЬНЫЙ ВАРИАНТ ДЛЯ:· Молодой семьи, которая ищет свой первый уютный дом. ❤️· Родителей, желающих дать детям лучшее развитие и безопасную среду.· Всех, кто ценит время и хочет жить в окружении всей необходимой инфраструктуры.Не упустите свой шанс купить не просто квадратные метры, а готовую счастливую жизнь в прекрасном районе! ????Эта квартира — ваш следующий шаг к идеальной жизни! Звоните прямо сейчас, чтобы назначить просмотр! ???? ID объекта в нашей базе: 12202
    размещено: 30.10.2025 , обновлено: 31.10.2025
  • 2-к квартира, Краснолесья, 96

    • 51.2 м2
    • 21/21 этаж
    • Состояние: удовлетворительное
    5 900 000 ₽ (115200 ₽/м2)
    Продажа двухкомнатной квартиры на 21 этаже в новом доме комфорт-класса! Вид на лесопарк!Продается просторная двухкомнатная квартира в новом, уже сданном доме в первом квартале Академического. Это уникальное предложение для тех, кто ценит виды, тишину и возможность создать интерьер своей мечты с нуля.Главные преимущества квартиры: Вид навсегда: Последний, 21 этаж! Из окон открываются потрясающие панорамные виды на Юго-Западный лесопарк. Так как вблизи нет других зданий, эта живописная картина останется с вами навсегда. Ремонт для себя: В квартире выполнена предчистовая отделка. Вам не нужно переделывать чужой ремонт — вы можете сразу приступить к реализации собственного дизайн-проекта и сделать финишную отделку под свой вкус. Комфорт и безопасность: Дом комфорт-класса с огороженной территорией, просторными светлыми холлами и сквозными подъездами. На территории ведется видеонаблюдение. Собственный паркинг: К квартире прилагается место в паркинге (продается отдельно). Перспективное расположение: В шаговой доступности ТЦ «Академический». Всего 5 минут пешком до остановки трамвая. Сразу за территорией дома запланировано строительство школы, детского сада и прогулочной аллеи — идеальные условия для семьи. ‼️ВНИМАНИЕ! Просмотры только 30 октября (четверг) и 2 ноября (воскресенье), аванс за квартиру будет принят 3 ноября!Указанная в объявлении цена является начальной, квартира продается за лучшее предложение, подробности по телефону. ???? Звоните, чтобы записаться на просмотр! ID объекта в нашей базе: 11828
    размещено: 24.10.2025 , обновлено: 29.10.2025
  • 2-к квартира, Очеретина, 16

    • 64.38 м2
    • 2/26 этаж
    • Состояние: плохое
    7 390 000 ₽ (114800 ₽/м2)
    В продаже просторная светлая 2-х комнатная квартира в идеальном месте Академического района, на границе Юго-Западного лесопарка и в непосредственной близости от главного перекрестка Вильгельма Де-Геннина - КраснолесьяКвартира:- предчистовая отделка- этаж 2 из 26- кухня 12,40 м2. с лоджией 3,52 м2. - просторные гостиная - 16,83 м2 и спальня 14,47 м2- функциональная прихожая - 10,78 м2Дом:- 2024г. комфорт класса- закрытый благоустроенный двор с богатым ландшафтом и организованным пространством для жителей- подземная, гостевая парковка- рядом лесной парк и пешеходный бульвар- по периметру дома линия ритейла и сервисов услуг- в подъезде лобби, детская игровая комната с возможностью присмотра и обучения детей, колясочная, мойка для животных- высокие лифты бизнес класса со спуском в благоустроенный паркинг- при строительстве ЖК использованы высококачественные материалы ID объекта в нашей базе: 4701
    размещено: 20.10.2025 , обновлено: 23.10.2025
  • 2-к квартира, Вильгельма де Геннина, 45

    • 56.9 м2
    • 8/15 этаж
    • Состояние: идеальное
    7 199 000 ₽ (126500 ₽/м2)
    Продам уютную комфортную 2кв квартиру в современном развивающемся Академическом районе. Квартира удачной планировки: отдельная кухня 12м2 с выходом на лоджию (панорамное остекление), 2 изолированные комнаты, совмещенный санузел в кафеле (теплый пол), просторная прихожая. Установлены счетчики на воду и электроэнергию. В доме 2 скоростных лифта, видеонаблюдение. Во дворе большая детская площадка с различными игровыми комплексами. Большая парковка по всему периметру дома и подземный паркинг.В шаговой доступности располагается лучшая в Академическом районе школа 16, детские сады, поликлиника, супермаркеты, кафе, а также трамвайная и автобусная остановки.Возможно приобретение квартиры с использованием ипотеки (при необходимости помогу с одобрением на самых выгодных для Вас условиях), использованием материнского капитала и других сертификатов. Приходите на просмотр великолепной квартиры в любое удобное, по согласованию время. ID объекта в нашей базе: 11939
    размещено: 18.10.2025 , обновлено: 29.10.2025

    2-к квартира, Анатолия Мехренцева, 42

    • 59 м2
    • 4/13 этаж
    • Состояние: хорошее
    7 400 000 ₽ (125400 ₽/м2)
    Объект № 195014. Двухкомнатная квартира в тихом центре Академического района. Один из самых качественных и аккуратных домов в локации. Всего 4 квартиры на этаже – камерность и спокойствие, редкие для современных домов. Чистый, тихий двор, изолированный от улиц. Большое количество парковочных мест, в доме есть подземный паркинг. Эргономичная планировка: просторная прихожая с изолированной входной зоной и нишей для гардеробного шкафа. Кухня 10 кв.м с выходом на остекленную лоджию, 2 жилые комнаты комфортных размеров 15-18 кв.м, раздельный санузел. Окна на 2 стороны, благодаря чему в квартире всегда много света. Вид на тихую улицу и на современный частный сектор и во двор. Потолки 2,7 м. Дом расположен в центральной, уже сформированной части Академического района и в удалении от шумных улиц. Рядом с домом 2 лучшие школы Екатеринбурга (в топ 50 городского рейтинга) - № 16 и № 19 и 3 детских сада. В 5-10 минутах ходьбы – современный Преображенский парк с прудом, прогулочные пешеходные и велосипедные зоны с дюжиной хороших ресторанов и кафе, веревочный парк, Академия тенниса, Дворец дзюдо, ТРЦ Академический, трамвайные и автобусные остановки. Быстрый выезд в центр города и в любое направление. Один взрослый собственник. Без обременений и других сложностей. Позвоните или напишите мне буду рад организовать для вас просмотр квартиры, рассказать о возможностях приобретения. ***Гарантийный сертификат «Защита собственности» по данному объекту в подарок***
    размещено: 16.10.2025 , обновлено: 18.10.2025

    2-к квартира, Академика Сахарова, 27/2

    • 58 м2
    • 6/15 этаж
    • Состояние: идеальное
    8 950 000 ₽ (154300 ₽/м2)
    В продаже УЮТНАЯ с НЕОБЫЧНОЙ планировкой двухкомнатная квартира в микрорайоне АКАДЕМИЧЕСКИЙ.Отлично подойдёт как ПОД СДАЧУ, так и для СОБСТВЕННОГО ПРОЖИВАНИЯ!ПРОДАЕТСЯ В СВЯЗИ С ПЕРЕЕЗДОМ!БОЛЬШИЕ ЭРКЕРНЫЕ ОКНА выходят на разные стороны, СЕВЕР и СЕВЕРО - ЗАПАД.КАК БОНУС ОСТАЁТСЯ ПОКУПАТЕЛЮ:В кухне - КУХОННЫЙ ГАРНИТУР, ОБЕДЕННЫЙ СТОЛ, ДВА КРЕСЛА и ДИВАН книжка.В спальне - КРОВАТЬ с подъёмным механизмом, ВСТРОЕННЫЙ шкаф.В гостиной - стол письменный, кресло, угловой ДИВАН.В коридоре - ПРИХОЖАЯ.Из ТЕХНИКИ ОСТАЁТСЯ - духовой шкаф, варочная поверхность, вытяжка, холодильник.ОДИН ВЗРОСЛЫЙ СОБСТВЕННИК.Мат. кап - НЕ ИСПОЛЬЗОВАЛСЯ! ! Имеется обременение Сбер Банка. ID объекта в нашей базе: 9013
    размещено: 15.10.2025 , обновлено: 27.10.2025

    2-к квартира, Академика Парина, 35/2

    • 65 м2
    • 5/31 этаж
    • Состояние: хорошее
    10 100 000 ₽ (155400 ₽/м2)
    Объект № 194793. Продается уютная 2-комнатная квартира в современном и активно развивающемся районе города. Чистовая отделка, мастер-спальня, гардеробная, 2 санузла, вид на парк. В шаговой доступности магазины, школы, детские сады, остановка трамвая и автобуса. ***Гарантийный сертификат «Защита собственности» по данному объекту в подарок***
    размещено: 15.10.2025 , обновлено: 25.10.2025

    2-к квартира, Амундсена

    • 62 м2
    • 18/21 этаж
    • Состояние: идеальное
    8 400 000 ₽ (135500 ₽/м2)
    Amundsen — среда, где растет счастливая семья Локация, которая ценит ваше времяЖК Amundsen расположен на пересечении улиц Амундсена и Академика Ландау. Это прямая связь с центром города без ущерба для спокойствия вашего дома. Все дороги Екатеринбурга открыты для вас, а вечером вы возвращаетесь в свой уютный мир. Уникальный двор-трансформер: приключения круглый годНаш двор — это не просто сквер, это настоящее игровое пространство, которое живет и меняется вместе с сезонами. Зимой он превращается в полярную станцию с горками для санок, ледовым катком и снежными баталиями у главной башни. Летом «источник» наполняет его водой и прохладой, создавая идеальную атмосферу для игр и отдыха.Эта концепция, разработанная совместно с ландшафтными архитекторами (соавторами парка Галицкого) и детскими психологами, гарантирует, что вашим детям всегда будет чем заняться, развиваясь и познавая мир прямо во дворе. Комфорт, который начинается с порогаВаш день начинается и заканчивается в холле, вдохновленном пятизвездочными отелями. Потолки высотой 7 метров, обилие света и воздуха и внимательный консьерж — вот детали, которые создают ощущение особой жизни каждый день. Пространство для ваших ценностейAmundsen — для тех, кто ставит семью во главу угла. Для кого семья — это целый мир, полный открытий и любви. Это платформа для вашей уникальной семейной истории. ID объекта в нашей базе: 11898
    размещено: 15.10.2025 , обновлено: 29.10.2025

    2-к квартира, Академика Парина, 4/2

    • 52.6 м2
    • 13/15 этаж
    • Состояние: хорошее
    6 300 000 ₽ (119800 ₽/м2)
    Объект № 192743. В продаже единственная, по-настоящему, тихая и просторная двушка в Академе. Две комнаты, кухня, раздельный санузел, балкон. Отличные виды из окон. Школа и садик новые в доступе 3 минуты ходьбы без пересечения дорог. ***Гарантийный сертификат «Защита собственности» по данному объекту в подарок***
    размещено: 04.07.2025 , обновлено: 30.10.2025

    2-к квартира, Рябинина, 29

    • 61 м2
    • 2/21 этаж
    • Состояние: плохое
    6 900 000 ₽ (113100 ₽/м2)
    Объект № 194732. Продается двух комнатная квартира в районе с развитой инфраструктурой. В шаговой доступности парковые зоны, торговый центр, медицинские центры. Во дворе дома расположен детский сад и две школы. Под домом имеется паркинг. Удобная планировка: просторная гостиная, кухня оборудована всем необходимым, уютная спальня, детская комната Идеальное предложение для тех, кто ценит комфорт и удобство проживания. ***Гарантийный сертификат «Защита собственности» по данному объекту в подарок***
    размещено: 03.10.2025 , обновлено: 25.10.2025

    2-к квартира, Ландау, 41

    • 44.7 м2
    • 5/18 этаж
    • Состояние: идеальное
    6 199 000 ₽ (138700 ₽/м2)
    Продается квартира в сданном доме в жилом комплексе "Спутник-1".Застройщик – РСГ АкадемическоеОтделка «под ключ».Общая площадь квартиры составляет 44,7 кв.м.Планировка квартиры функциональная и современного формата (евро3) - с просторной кухней-гостиной и двумя изолированными комнатами..Жилой комплекс "Спутник-1" отличается высоким уровнем комфорта и развитой инфраструктурой.В центре квартала открылась новая школа, поликлиника для взрослых. В пешей доступности Дворец Дзюдо и Академия тенниса.В непосредственной близости находятся гипермаркет «Лента», поликлиника и трамвайное кольцо, что делает район хорошо доступным.Среди основных преимуществ данного квартала стоит отметить променад для прогулок с выходом на набережную Преображенского парка, а также детские игровые комплексы. Для удобства жителей предусмотрен подземный паркинг и система видеонаблюдения, работающая круглосуточно. Спортивные энтузиасты смогут пользоваться кортами и площадками с тренажерами для уличного фитнеса, что делает квартал идеальным местом для активного образа жизни.Данное предложение станет отличным вариантом для тех, кто ценит качество, комфорт и удобное расположение.Все интересующие Вас вопросы вы можете задать по телефону, с удовольствием отвечу. ID объекта в нашей базе: 11702
    размещено: 03.10.2025 , обновлено: 25.10.2025

    2-к квартира, Вильгельма де Геннина, 33

    • 60.7 м2
    • 9/13 этаж
    • Состояние: хорошее
    7 200 000 ₽ (118600 ₽/м2)
    Продам уютную, теплую и просторную квартира в Академическом районе напротив ТЦ. Отличная планировка: все комнаты правильной формы, широкий коридор с очень вместительным шкафом-купе. Квартира находится в угловой секции монолитного дома, хорошая шумоизоляция. Высокие потолки (2,7м). Оптимальный этаж с красивым видом из окна. В квартире остается все , кроме холодильника, телевизора, стиральной машины (обсуждается отдельно). В шаговой доступности вся инфраструктура (школы, садики, поликлиники). В доме два продуктовых магазина, две аптеки, два пункта выдачи. Один взрослый собственник, обременения нет. Документы готовы на сделку. ID объекта в нашей базе: 8947
    размещено: 03.10.2025 , обновлено: 18.10.2025

    2-к квартира, Академика Вонсовского, 19

    • 66 м2
    • 2/18 этаж
    • Состояние: идеальное
    9 250 000 ₽ (140200 ₽/м2)
    Эксклюзивная евро двушка с большой террасой. Поможем в получении ипотеки на покупку этой квартиры.
    размещено: 18.09.2022 , обновлено: 30.10.2025

    2-к квартира, Рябинина, 47

    • 54.2 м2
    • 10/25 этаж
    • Состояние: идеальное
    7 200 000 ₽ (132800 ₽/м2)
    Продам новую 2-х комнатную квартиру общей площадью 54,2 кв.м на 10 этаже 25 этажного дома в ЖК «Eleven». В квартире кухня 11,9 кв.м, комнаты 13 кв.м и 11 кв.м, совмещенный санузел с ванной комнатой, при входе вместительная гардеробная. Окна квартиры выходят на улицу, откуда открывается красивый вид на город. Светлая квартира с ремонтом от застройщика, комнаты правильной прямоугольной формы, потолки 2,75м, пластиковые окна, межкомнатные двери, установлены приборы учета тепла, воды и света. В квартире никто не жил. Территория двора и подъездов оборудованы системой видеонаблюдения. Чистый подъезд, удобный сквозной проход между подъездами, выход из подъезда на две стороны: во двор (на детскую площадку) и на улицу. Рядом с домом автостоянка для машин, напротив дома автобусная остановка. Отличная транспортная развязка, удобный выезд на ЕКАД и в центр города. Во дворе дома находится детский садик, в шаговой доступности школа, продуктовые магазины, гипермаркет Лента в 10 минутах ходьбы от дома. Быстрый выход на сделку, один собственник, маткапитал не использовался, квартира без обременений и задолженностей, никто не прописан. Ипотека возможна. ID объекта в нашей базе: 3153
    размещено: 26.09.2025 , обновлено: 19.10.2025

    2-к квартира, Академика Сахарова, 51

    • 64.9 м2
    • 8/8 этаж
    • Состояние: идеальное
    8 500 000 ₽ (131000 ₽/м2)
    Срочная продажа! Цeнa снижeна дo 8 199 000р. пoд встречный ваpиант, актуальна до 13.04.2025г. • 2к кв. 64,9/18,6/14,7/кухня 9,8 кв.м на 8эт. 8-ми этaжной секции (выше - теxнический этaж, выбирали специально крайний этаж). На этaжe 4 квaртиpы, подъезд малонаселенный, всего 27 квартир. Лифт гpузовoй, есть подземный паркинг, спуск в пapкинг нa лифте. • Квартира с частичным ремонтом от застройщика, частично сделана свежая отделка исключительно качественными материалами. Установлены шумоизоляционные стеклопакеты с триплексом от Века и Рехау, под контролем сделаны откосы. • Окнa квартиры расположены на разные стороны: окна oдной комнаты выходят на Преображeнcкий паpк (юго-запад), окна второй комнаты и кухни выходят на пр-кт А.Сахарова (северо-восток). • В квартире 2 санузла, что очень удобно для семьи. • Кухонный гарнитур с плитой на кухне, в нише коридора шкаф-купе с зеркалами, кондиционер в комнате, водонагреватель в одном из санузлов – приятные бонусы покупателю. • Для любителей планировки 3Е, есть техническая возможность сделать перепланировку. • Остановка автобусная в обе стороны 100-300м, до остановки трамвая 6 минут пешком, до центра (ТЦ Гринвич) 25-35 минут, до ТРЦ Академический пешком 15 мин. • Все необходимые продуктовые магазины в соседних домах. Два взрослых собственника. Без обременений, долгов. Быстрый выход на сделку, оперативно освободим квартиру и передадим ключи. Причина продажи - переезд в другой регион.
    размещено: 16.01.2025 , обновлено: 29.10.2025

    2-к квартира, Краснолесья, 155

    • 58.7 м2
    • 6/15 этаж
    • Состояние: идеальное
    7 190 000 ₽ (122500 ₽/м2)
    Продается двух комнатная квартира в центре Академического р-на. Отличная планировка: кухня и комнаты правильной формы. В кухне располагается обеденная зона, зона отдыха и готовки. На кухне остается кухонный гарнитур и встроенная техника (варочная поверхность, духовой шкаф, посудомоечная машина, вытяжка). В спальне остается большой вместительный шкаф-купе, есть выход на балкон. Во второй комнате окна выходят во двор. В коридоре остается встроенный шкаф-купе, квартира в хорошем состоянии, есть теплый пол в ванной, пол в комнатах и на кухне сделан из пробки (очень хороший, комфортный материал). Дом располагается во дворах, что дает ощущение комфорта, тишины и безопасности. Рядом есть все необходимое: садики, школы, развивающие центры, остановки общественного транспорта, магазины, фитнесс зал и торговый центр, все в шаговой доступности. К данной квартире может предложить покупку паркинга. ID объекта в нашей базе: 11401
    размещено: 19.09.2025 , обновлено: 19.10.2025

    2-к квартира, Павла Шаманова, 48

    • 56.9 м2
    • 4/22 этаж
    • Состояние: хорошее
    7 450 000 ₽ (130900 ₽/м2)
    ПРОДАЖА!!! СРОЧНО! ЕСТЬ ТОРГПродаётся просторная двухкомнатная квартира общей площадью 56,9 м² на четвертом этаже многоквартирного дома по адресу г. Екатеринбург, Академический район, улица Павла Шаманова, дом №48.Квартира обладает всеми преимуществами комфортного проживания: - Две изолированные комнаты позволяют удобно разместить членов семьи или создать рабочую зону. - Светлая гостиная прекрасно подойдет для семейного досуга и приема гостей. - Современная кухня обеспечит комфортные условия приготовления пищи. - Ухоженный санузел выполнен в приятном стиле. - Выполнен качественный косметический ремонт, благодаря чему можно заселяться сразу после покупки. Преимущества месторасположения:- Жилой комплекс расположен в престижном и динамично развивающемся районе города, отличающимся комфортной городской средой.- Рядом находятся детские площадки, зоны отдыха, удобные пешеходные маршруты и доступ к транспортным развязкам. - Шаговая доступность магазинов, аптек, медицинских учреждений и развлекательных заведений позволяет экономить время на повседневные дела. Новому покупателю оставим в подарок парковочное место на 2 машины в закрытой территории жилого комплекса, что обеспечивает удобство автовладельцам и гарантирует сохранность автомобиля. Идеальное предложение для молодых семей, инвесторов и всех желающих обрести собственное жилье в привлекательном и удобном месте города.Обращайтесь для дополнительной информации и организации просмотра. Звоните, договоримся! ID объекта в нашей базе: 17915
    размещено: 16.09.2025 , обновлено: 28.10.2025

    2-к квартира, Ландау, 39

    • 48.2 м2
    • 10/15 этаж
    • Состояние: удовлетворительное
    6 500 000 ₽ (134900 ₽/м2)
    В продаже замечательная полноценная 2-комнатная видовая квартира с изолированными комнатами и кухней. Эта светлая квартира обладает невероятной энергетикой!Отделка предчистовая. Здесь можно дать волю всем своим дизайнерским способностям и воплотить их в жизнь!Проект от основателя и главного застройщика Академического района.Фасад дома имеет лаконичный дизайн. Просторный двор радует своей чистотой, цветами, местами для игр детей и зонами отдыха. Газон облагорожен газонной травкой.Входная группа оснащена колясочной. В подъезде 2 лифта - грузовой и пассажирский.Инфраструктура и безопасность:В пешей доступности находятся Преображенский парк и трамвайное кольцо. Рядом с домом открыты самая большая взрослая поликлиника города, новая школа. Детские сады и остановки общественного транспорта в зоне видимости.Наличие большого количества парковочных мест на дублере и на придомовой парковке. Через дорогу завершается строительство многоуровневого наземного паркинга.Видеонаблюдение 24 часа в сутки.На территории квартала планируется 3 детских сада и 2 школы, кладовые, велосипедные дорожки, зеленая аллея и сквер, скейт-площадка, workout зоны в каждом дворе и детские игровые комплексы. На первых этажах будут располагаться торговые галереи.Звоните сегодня, будьте первыми! Завтра Вам могут ответить "Продано!". ID объекта в нашей базе: 11161
    размещено: 06.09.2025 , обновлено: 28.10.2025

    2-к квартира, Ландау, 9

    • 52 м2
    • 4/17 этаж
    • Состояние: плохое
    7 500 000 ₽ (144200 ₽/м2)
    Прогулки по зеленому парку прямо у вашего дома!Предлагаю вам 2-комнатную квартиру в Академическом районе Екатеринбурга от застройщика БРУСНИКА, по адресу: Академика Ландау, дом 9. Идеальный вариант для тех, кто не готов ждать! Если вы ищете квартиру в перспективном районе и хотите вложить средства в качественное жилье от топового застройщика — это ваш шанс! Комфортная невысотка: Закрытые дворы для машин обеспечивают безопасность и уют. Дизайнерские холлы и ландшафтный дизайн создают атмосферу современности. Для детей предусмотрены новые игровые площадки! Два парка рядом: Преображенский и Юго-Западный парки — идеальные места для активного отдыха круглый год. Летом здесь бегают, катаются на роликах и велосипедах, а зимой наслаждаются лыжами и катанием с горок. Инфраструктура: В шаговой доступности детский сад, школа, лицей, поликлиника и торговые центры. Цена ниже рыночной! Быстрый выход на сделку. Звоните сейчас для подробностей! ID объекта в нашей базе: 10899
    размещено: 28.08.2025 , обновлено: 5.10.2025

    2-к квартира, Академика Парина, 37А

    • 62.6 м2
    • 6/16 этаж
    • Состояние: хорошее
    9 390 000 ₽ (150000 ₽/м2)
    СРОЧНО!!! ТОРГ!Представляем к продаже двухкомнатную квартиру в благоустроенном районе Екатеринбурга — Академическом, расположенную на улице Академика Парина, дом №37А, на 6-м этаже. Это идеальная возможность стать владельцем современного жилища с приятной атмосферой и прекрасной жилой средой. Жилая площадь составляет 62,6 квадратных метров, включая две просторные комнаты, объединяющие функциональность и комфорт для ваших потребностей и желаний. Комнаты оборудованы большими окнами, пропускающими естественный солнечный свет, наполняющими пространство свежестью и уютом. Продуманная планировка обеспечивает максимальное использование площади и создает возможности для различных вариантов дизайна интерьера. Преимущества месторасположения включают близость к социальной инфраструктуре района: поблизости находятся детсады, школы, медицинские учреждения, супермаркеты, спортивные комплексы, ТЦ Академический, Гипер Лента, Академия Дзюдо. Это гарантирует удобства для повседневной жизни и заботится о вашем комфорте и безопасности.Вас ждет уютная атмосфера красивого жилого квартала, располагающего тихими дворами и зелеными насаждениями. Окружение новой застройки также подчеркивает современные тенденции архитектуры и благоустройства территории. Приятный бонус — прекрасные виды из окон на зеленый двор и панораму района, придающие ощущение свободы и умиротворенности. А удобная транспортная развязка позволяет легко перемещаться по городу. Цена и характеристики нашей квартиры предлагают идеальный баланс между качеством, стоимостью и возможностями для семейной жизни. Сделайте правильный выбор, приобретая собственную комфортабельную квартиру в Екатеринбурге! К оплате принимает различные сертификаты, а также мат.капитал и военную ипотеку. Запишитесь на просмотр уже сегодня и убедитесь, что ваша новая квартира ждет именно вас! ID объекта в нашей базе: 17850
    размещено: 27.08.2025 , обновлено: 21.10.2025

Новостройки Екатеринбург, мкр-н. Академический

Приоритет

Увеличивает просмотры в 3 раза

Ваше объявление показывается в списке выше обычных объявлений. подключить