Top.Mail.Ru
На Метре реклама - только нормальная. Никакого шок-контента.
Помогайте независимому ресурсу, как он помогает вам. Удачи!
Средняя цена м² · Новостройки
178 600 ₽/м²
↑ 6,88% за 12 мес.
Средняя цена м² · Вторичка
141 328 ₽/м²
↑ 11% за 12 мес.
Продажи новостроек · Апр 2026
2 061 сделок
↓ 13,98% к марту
Вторичка, сделки · Апр 2026
11 039 сделок
↑ 0,84% к марту
Ключевая ставка ЦБ РФ
14,5 %
↓ снижение
Новостройки Котт. посёлки Объявления Динамика цен и сделок

Продажа квартиры: Екатеринбург, ул. Мира, 47/6, Компаунд Проспект Мира

  • опубликовано 30.07.2025 , обновлено 12.05.2026
  • 5
  •  
Кадастровый номер:66:41:0704041:4762
Рынок:строящееся жилье
Срок сдачи:2 квартал 2025 года
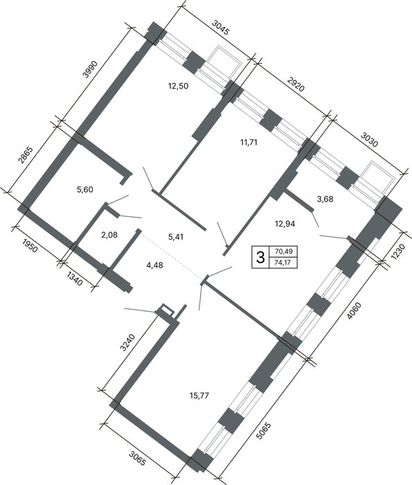
Количество комнат:3
Общая площадь:74 м2
Жилая площадь:37.15 м2
Площадь кухни:15.77 м2
Этаж/Этажность дома:11 / 27
Балкон/лоджия:лоджия
Год постройки:2025
Цена:
16 262 000
Тип сделки:«чистая» продажа
Ипотека:Не подходит

Компаунд «Проспект Мира» — уникальный проект бизнес-класса рядом с УрФУ с выразительной архитектурой, который гармонично вписался в локацию и придал ей новое звучание.
Локация Кировский район, Втузгородок. Тихий зелёный район с развитой инфраструктурой — в шаговой доступности есть всё необходимое для комфортной жизни.
О доме 47/6 — 2 секции переменной этажности (5 и 30 этажей) — Двухуровневый подземный паркинг — Кладовые — Просторные холлы с зонами ожидания и колясочные — Класс энергоэффективности А
Комьюнити — Закрытый двор с зонами отдыха, фонтаном и ручьем — настоящее место притяжения жителей — Детские площадки зонированы по возрастам — интересно и безопасно — Спортивная площадка и воркаут зона — для занятий на свежем воздухе — Соседский центр — если хочется встретиться с друзьями на нейтральной территории — Лобби с мягкой зоной — для ожидания такси — Фитнес-клуб с бассейном 24 м, СПА, ресторан, бильярд — можно попасть, не выходя на улицу
Безопасность — Закрытая территория без машин — Контроль доступа и видеодомофония — Видеонаблюдение и патрулирование территории — Мониторинговый центр и группа быстрого реагирования
Инженерные технологии — Система приточно-вытяжной вентиляции с рекуперацией — Собственная автономная газовая котельная — Многоступенчатая очистка воды
Другие квартиры в доме 47/6 — Площадь: от 34,7 до 74,4 м² — Потолки: от 2,7 до 3 м — Отделка: предчистовая или эксклюзивная (с мебелью и техникой)
Как купить? — Поможем продать вашу квартиру, чтобы вы переехали в новую — Доступны рассрочка и индивидуальные условия — Скидки при полной оплате
Оставьте заявку, мы подберём для вас квартиру мечты и инструменты покупки.
 
Стоимость указана при условии полной оплаты.

Первостроитель 253 — Девелоперская компания «Первостроитель»

показать телефон

Ипотечный калькулятор

лет
%
Сумма кредита
16262000 ₽
Платеж
22 540 ₽

История предложений в этом доме

объявление снято с публикации в продаже комнат площадь этаж цена,
23 сентября 2025 90 дн. 1 42.2 17/27 11 281 000
18 июля 2025 90 дн. 3 74 8/27 15 293 000
1 декабря 2025 90 дн. 1 42.1 10/27 10 899 000
16 декабря 2025 90 дн. 3 74 10/27 15 986 000
Екатеринбург, ул. Мира, 47/7 (Втузгородок) - фото квартиры 22 июля 2025 90 дн. 1 42.2 13/26 12 590 000
Екатеринбург, ул.Мира, 47 (Втузгородок) - фото квартиры 16 августа 2025 90 дн. 3 73.9 15/25 18 890 000
Екатеринбург, ул. Мира, 47 (Втузгородок) - фото квартиры 16 августа 2025 90 дн. 2 73.9 15/25 18 890 000
Екатеринбург, ул. Мира, 47/7 (Втузгородок) - фото квартиры 22 июля 2025 90 дн. 2 42.2 13/26 12 590 000
Екатеринбург, ул. Мира, 47, Компаунд Проспект Мира (Втузгородок) - фото квартиры 30 апреля 2025 90 дн. 1 45.5 7/30 8 700 000
Екатеринбург, ул. Мира, 47/7 (Втузгородок) - фото квартиры 22 февраля 2025 90 дн. 3 101 21/24 21 261 000
Екатеринбург, ул. Мира, 47 (Втузгородок) - фото квартиры 6 декабря 2024 90 дн. 2 84.5 12/25 17 974 000
29 октября 2024 90 дн. 2 61.79 25/27 13 342 000
Екатеринбург, ул. Мира, 47 (Втузгородок) - фото квартиры 9 апреля 2025 90 дн. 2 84.5 14/25 26 361 000
23 ноября 2025 90 дн. 0 34.9 8/27 9 347 000
14 августа 2025 90 дн. 1 45.4 7/27 10 702 000
14 августа 2025 90 дн. 0 35.6 7/27 9 026 000
18 июля 2025 90 дн. 1 45.8 17/27 11 539 000
27 февраля 2025 90 дн. 1 47.51 17/27 11 127 000
18 июля 2025 90 дн. 1 54.2 17/27 13 195 000
18 июля 2025 90 дн. 0 34.5 16/27 9 496 000
18 июля 2025 90 дн. 1 45.4 15/27 11 233 000
18 июля 2025 90 дн. 1 47.1 15/27 11 465 000
21 января 2026 90 дн. 1 45.4 13/27 14 610 000
18 июля 2025 90 дн. 1 53.9 13/27 12 622 000
24 октября 2025 90 дн. 1 45.6 11/27 11 189 000
18 июля 2025 90 дн. 1 45.9 22/27 11 881 000
18 июля 2025 90 дн. 0 34.6 22/27 9 931 000
18 июля 2025 90 дн. 1 53.9 22/27 13 616 000
18 июля 2025 90 дн. 1 46 21/27 11 817 000
18 июля 2025 90 дн. 1 47 21/27 12 075 000

Новостройки Екатеринбург, мкр-н. Втузгородок

Приоритет

Увеличивает просмотры в 3 раза

Ваше объявление показывается в списке выше обычных объявлений. подключить