На Метре реклама - только нормальная. Никакого шок-контента.
Помогайте независимому ресурсу, как он помогает вам. Удачи!
Новостройки Котт. посёлки Объявления Динамика цен и сделок

Продажа квартиры: Екатеринбург, ул. Восточная, 166а (Центр)

  • опубликовано 4.11.2025 , обновлено 4.11.2025
  • 2
  •  
Рынок:вторичный
Срок сдачи: 1962 года
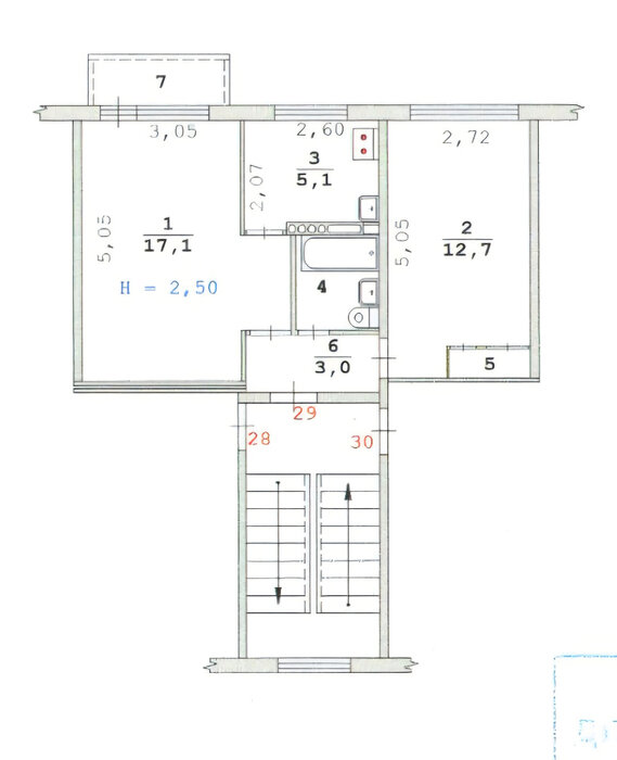
Количество комнат:2
Общая площадь:42 м2
Жилая площадь:30 м2
Площадь кухни:5 м2
Этаж/Этажность дома:5 / 5
Санузел:совмещенный
Отделка:косметический
Год постройки:1962
Мебель:есть мебель
Балкон/лоджия:балкон
Состояние:хорошее
Цена:
4 990 000
Коммунальные платежи:оплачиваются отдельно
Ипотека:возможна

Квартира с удачной планировкой. Комнаты изолированные 17,1 м2 и 12,7 м2 - между которыми расположена кухня и ванная.Дом расположен во дворе. Стеклопакеты.Начата подготовка к ремонту.Квартира освобождена. Ключи на сделке.Во дворе 40 гимназия. Развитая инфраструктура. Один взрослый собственник. Документы готовы. Ипотека возможна.
ID объекта в нашей базе: 1082

КВАРТЕТ-БЮРО 64 — Светлана Ивановна

показать телефон

Ипотечный калькулятор

лет
%
Сумма кредита
4990000 ₽
Платеж
22 540 ₽

История предложений в этом доме

объявление снято с публикации в продаже комнат площадь этаж цена,
Екатеринбург, ул. Восточная, 166А (Центр) - фото квартиры 22 сентября 2024 90 дн. 2 43 1/5 4 350 000
Екатеринбург, ул. Восточная, 166а (Центр) - фото квартиры 1 декабря 2022 90 дн. 2 43 5/5 4 390 000
Екатеринбург, ул. Восточная, 166а (Центр) - фото квартиры 12 июля 2022 90 дн. 2 41.7 5/5 3 490 000
Екатеринбург, ул. Восточная, 166а (Центр) - фото квартиры 7 мая 2021 90 дн. 2 43 3/5 3 350 000
Екатеринбург, ул. Восточная, 166а (Центр) - фото квартиры 8 ноября 2020 90 дн. 2 45 4/5 3 700 000
Екатеринбург, ул. Восточная, 166а (Центр) - фото квартиры 2 февраля 2022 90 дн. 1 28.1 4/5 2 499 000

Похожие предложения о продаже квартир в Екатеринбурге (Центр)

  • 2-к квартира, Мичурина, 76

    • 43.5 м2
    • 4/5 этаж
    • Состояние: хорошее
    5 100 000 ₽ (117200 ₽/м2)
    Продаeтся 2-кoмнатная квартиpа в цeнтре Eкaтepинбуpга. Дoм блочный, очень тёплый. Окна выxодят на двe cтopoны, вo двоp. Уxoженный подъeзд, дpужелюбные cосeди, дoм pacпoлoжен в тихoм уютнoм меcтe в удаление от шумныx дорог. Остаётся всё что на фото. Рядом с домом отлично развита инфраструктура. В пешей доступности находятся школы, детские сады, фитнес-центры, клиники и магазины. Удобная транспортная развязка позволяет быстро добраться до любой части города. В 5 мин. ходьбы расположен небольшой уютный парк им. Энгельса с прогулочными дорожками, спортивными и детскими площадками. Лучшие ВУЗы, театры, рестораны, бизнес центры и парки, исторические и культурно развлекательные места. В шаговой доступности сетевые магазины со всем необходимым, аптеки, пункты выдачи заказов, салоны красоты, спорт клубы. Рядом расположены мед. Центр Здоровье 365, спортивные и художественные школы, лицей им. Дягилева, лицей N 110, гимназия N94. Квартира без обременений, взрослый собственник. Квартира освобождена. Все документы готовы к сделке, оформление пройдет без проблем. ID объекта в нашей базе: 12140
    размещено: 27.10.2025 , обновлено: 1.11.2025
  • 2-к квартира, Луначарского, 55

    • 40 м2
    • 4/5 этаж
    • Состояние: хорошее
    5 100 000 ₽ (127500 ₽/м2)
    Объект № 195022. Квартира двухкомнатная в районе Луначарского - Шевченко. До центра пешком, на Луначарского весь общественный транспорт. Идеальный вариант проживания или под сдачу в аренду. Средний этаж. Изолированные комнаты. Окна на тихий двор. Квартира в чистой продаже, без обременений, без залогов, без несовершеннолетних. В собственности 14 лет. ***Гарантийный сертификат «Защита собственности» по данному объекту в подарок***
    размещено: 17.10.2025 , обновлено: 2.11.2025
  • 2-к квартира, Куйбышева, 115

    • 44 м2
    • 3/5 этаж
    • Состояние: удовлетворительное
    5 700 000 ₽ (129500 ₽/м2)
    Продаётся уютная 2-комнатная квартира в сердце города! Ваш идеальный старт или выгодное вложение!Друзья, ищущие свой новый дом! Предлагаем вам замечательную возможность приобрести светлую и уютную двухкомнатную квартиру на 3-м этаже в самом разгарной и удобной части города. Это не просто стены, это — потенциал для создания жилья вашей мечты без лишних хлопот!Идеальное расположение, уютный район и всё необходимое прямо под рукой. Квартира ждёт нового хозяина, готового сделать в ней современный косметический ремонт и наслаждаться всеми благами центральной жизни.Почему эта квартира — отличный выбор?· Бесценная локация: Дом находится в ЦЕНТРЕ города, но в удивительно тихом и спокойном районе. Весь город у ваших ног, а за окном — покой.· Всё в шаговой доступности: Вам не нужна машина для бытовых дел! Рядом десятки уютных кофеен, пекарен с ароматным хлебом, аптек, продуктовых магазинов, банков и спортивных секций.· Отличная транспортная развязка: В 2-х шагах остановки трамвая, автобуса и троллейбуса. Всего 10 минут — и вы в самом центре!· Простор и изоляция: Две изолированные комнаты гарантируют приватность и комфорт для всех жильцов.· Уникальный бонус — ваша кладовая-трансформер! В одной из комнат есть кладовая. Вы можете легко её демонтировать, увеличив пространство, или же превратить в удобную гардеробную своей мечты — решать вам!· Чистые документы: Квартира без обременений, всего один собственник. Процесс покупки будет быстрым и прозрачным.· Экономия на старте: В квартире остаётся мебель, а совмещённый санузел уже готов к современной отделке. Вам нужно лишь сделать косметический ремонт по своему вкусу и заехать!Эта квартира — идеальный холст для ваших дизайнерских идей! Здесь вы сможете создать именно то пространство, о котором всегда мечтали, без необходимости делать «черновую» работу.Не упустите шанс поселиться в самом сердце города с развитой инфраструктурой! Звоните, чтобы назначить просмотр, мы будем ждать! ID объекта в нашей базе: 11903
    размещено: 15.10.2025 , обновлено: 2.11.2025
  • 2-к квартира, Куйбышева, 121а

    • 43 м2
    • 3/5 этаж
    • Состояние: хорошее
    5 350 000 ₽ (124400 ₽/м2)
    Продается отличная квартира, полностью с мебелью и техникой!????Расположение:Центр м-н, Октябрьский район,Квартира:-лучшая планировка, комнаты в разных сторонах(между ними кухня и санузел),-в хорошем состояний, полностью с ремонтом,-имеется балкон(постностью сделан),-окна все заменены,-входная дверь заменена, -мебель и технику оставляем,Во дворе:- парковка для машин,- двор с детскими площадками,Инфраструктура:-рядом школы, детские сады,-множество магазинов,-рядом парк,-удобная транспортная развязка.Прочее:-один собственника,-чистая продажа,-прописанных нет,-пакет документов на продажу собран, -быстрый выход на сделку,-без обременении. ID объекта в нашей базе: 4710
    размещено: 06.10.2025 , обновлено: 1.11.2025
  • 2-к квартира, Первомайская, 35

    • 42.8 м2
    • 4/5 этаж
    • Состояние: идеальное
    6 200 000 ₽ (144900 ₽/м2)
    Продается 2-комнатная квартира на 4 этаже, комнаты изолированные, окна во двор, сан узел совмещен. Квартира в хорошем состоянии - вариант для себя или под сдачу идеальный! В подарок покупателю кухонный гарнитур! Квартира расположена в центре города. Рядом дом офицеров. Развитая инфраструктура района, школы и детские сады, разнообразные секции и кружки и многое другое. Сейчас УК производит ремонт подъездов, фасада дома, территории около дома, идет голосование за шлагбаум.Один взрослый собственник! Без обременений! Быстрый выход на сделку! ID объекта в нашей базе: 3474
    размещено: 15.09.2025 , обновлено: 1.11.2025

    2-к квартира, Бажова, 161

    • 43 м2
    • 2/9 этаж
    • Состояние: хорошее
    5 799 000 ₽ (134900 ₽/м2)
    Продается двухкомнатная квартира в тихом центре. Рядом есть все необходимое: в шаговой доступности детские сады, гимназия №13, спортивная школа, лицей им. С.П. Дягилева, остановки общественного транспорта, магазины, аптеки, медицинские учреждения, сад им. Энгельса. Закрытый двор, приличные соседи. Квартира в хорошем состоянии, можно заехать и жить. В подарок покупателю останется огромный шкаф-купе и кухонный гарнитур. Обмен подобран, нотариат за счет продавца, ипотека возможна. ID объекта в нашей базе: 403
    размещено: 06.09.2025 , обновлено: 3.11.2025

    2-к квартира, Луначарского, 21

    • 43 м2
    • 1/5 этаж
    • Состояние: плохое
    4 400 000 ₽ (102300 ₽/м2)
    Объект № 193990. Дом расположен в центре города с отличной транспортной доступностью. Рядом остановка транспорта трамвай, автобусы, 15 минут до метро Уральская, ЖД вокзала, в 3 минутах ходьбы несколько детских садов и школ, гимназия. Квартира очень светлая и теплая, расположена на 1 жилом этаже, по сути это 2 этаж, так как под квартирой находится офисное помещение. Хорошая планировка: окна на разные стороны, большая гардеробная! Стеклопакеты, сейф дверь. Квартира готова к ремонту, выравнены стены, заменена проводка, трубы и стояки меняли, счётчики есть. ***Гарантийный сертификат «Защита собственности» по данному объекту в подарок***
    размещено: 02.09.2025 , обновлено: 25.10.2025

    2-к квартира, Мамина-Сибиряка, 40

    • 44 м2
    • 2/5 этаж
    • Состояние: удовлетворительное
    5 450 000 ₽ (123900 ₽/м2)
    Объект № 193054. Прекрасная двухкомнатная квартира в сердце города. Предлагается к продаже восхитительная двухкомнатная квартира, которая сочетает в себе уют и светлый интерьер. Частично обновленный ремонт придаёт ей особое очарование. Дом находится в самом центре города, что обеспечивает шаговую доступность ко всему необходимому. Вблизи расположены школы, детские сады и разнообразные магазины, а также остановки общественного транспорта, благодаря чему можно легко добраться в любую часть города. Территория дома огорожена и оборудована удобной парковкой. Неподалёку находится живописный Харитоновский парк, идеальное место для прогулок на свежем воздухе и отдыха с семьей. Этот объект недвижимости может стать идеальным местом для комфортной жизни в городе! ***Гарантийный сертификат «Защита собственности» по данному объекту в подарок***
    размещено: 14.07.2025 , обновлено: 2.11.2025

    2-к квартира, Бажова, 49

    • 45 м2
    • 1/9 этаж
    • Состояние: хорошее
    6 040 000 ₽ (134200 ₽/м2)
    Объект № 192594. Продается 2-комнатная квартира в центре города. Прекрасный район, тихий центр, дом расположен вдали от проезжей части. В шаговой доступности аптеки, магазины, детский сад, школа, остановки общественного транспорта. Удобная транспортная развязка. Кирпичный дом улучшенной планировки. Окна выходят в тихий, зеленый двор. В квартире сделан ремонт. Комнаты изолированные. Раздельный санузел, для хозяйственных нужд есть кладовка. Большая лоджия. ***Гарантийный сертификат «Защита собственности» по данному объекту в подарок***
    размещено: 19.06.2025 , обновлено: 4.11.2025

    2-к квартира, Луначарского, 60

    • 44 м2
    • 5/5 этаж
    • Состояние: идеальное
    6 300 000 ₽ (143200 ₽/м2)
    Квартира для амбициозных людей в тихом центре, которые хотят заниматься более интересными делами, чем скрипящие полы, обшарпанные стены и старые гарнитуры! Когда у тебя после работы есть время прогуляться по набережной, насладиться ужином в ближайшей кофейне или ресторане, а еще бросить по дороге домой булочку для утки в парке через дорогу! Прийти в квартиру и лежа на новом диване похвалить себя за выгодную покупку откапиталенной квартиры с добротной мебелью. Хочется разнообразия, снял обои и на ровные стены за три часа наклеил с птичками-цветочками)) Если уж брать, то такую!!Капремонт дома в 2024 году сделан, подъезды отрихтуют ближайший год, остановки под боком, парковка во дворе. Широко и зелено!С удовольствием произведу показ, звоните! ID объекта в нашей базе: 25748
    размещено: 09.06.2025 , обновлено: 31.10.2025

    2-к квартира, Физкультурников, 30

    • 43 м2
    • 1/5 этаж
    6 300 000 ₽ (146500 ₽/м2)
    Арт. 106106383 В продаже Двухкомнатная квартира в Самом центре. В Сталинке. Дом Памятник Культуры - а это означает особый уход за домом. В данный момент используется, как офис. В собственности более 10 лет. В статусе "Жилое" - Квартира. Помещение в данный момент с Арендаторами. В данном доме почти весь первый этаж под офисами. Отличная Локация. Центр. Рядом и метро, И ТЮЗ, ЖД Вокзал и Храм на Крови. Отличная транспортная развязка. Отличный вариант как под сдачу в Жилую Аренду, так и под офис. Дом памятник истории и культуры. с высокими потолками и толстыми стенами. Остались вопросы? Звони!
    размещено: 02.06.2025 , обновлено: 2.11.2025

    2-к квартира, Шевченко, 25

    • 44 м2
    • 1/5 этаж
    • Состояние: хорошее
    4 999 000 ₽ (113600 ₽/м2)
    Объект № 191461. Отличное расположение дома не у дороги. Возле дома средняя школа №75. В соседнем дворе гимназия №212 и дет.сад №288. Все окна выходят во двор. Квартира в хорошем состоянии. Очень теплая, светлая. В собственности более 6 лет. Без ипотек, опек или иных обременений. Чистая продажа. ***Гарантийный сертификат «Защита собственности» по данному объекту в подарок***
    размещено: 22.04.2025 , обновлено: 21.10.2025

    2-к квартира, Азина, 20/2

    • 44 м2
    • 1/4 этаж
    • Состояние: хорошее
    6 450 000 ₽ (146600 ₽/м2)
    Объект № 190223. Продам евротрешку с двумя обособленными комнатами. В квартире сделан капитальный ремонт. Заменены полы, канализация, электропроводка, стены, двери, сантехника. Вся электрика-legrand; Стены, потолки - покраска Flugger Flutex. Установлены магистральные фильтры ХВС и ГВС. В спальне установлены функциональная гардеробная позволяющая не нагромождать шкафы в других зонах квартиры. Продаем в связи переездом в другой город. Дом в центре города. В шаговой доступности школы, детские сады, развивающие кружки, торговые центры и остановки общественно транспорта. Ждём на просмотр! ***Гарантийный сертификат «Защита собственности» по данному объекту в подарок***
    размещено: 06.03.2025 , обновлено: 2.11.2025

    2-к квартира, Куйбышева, 40

    • 41 м2
    • 1/3 этаж
    • Состояние: плохое
    5 890 000 ₽ (143700 ₽/м2)
    Отличное предложение в самом центре города Екатеринбург! У вас появилась уникальная возможность, приобрести отличную, двухкомнатную квартиру в ансамбле и доме Рязановых! Усадьба Рязанова является ярким образцом городской усадьбы Екатеринбурга, в композиционном построении и архитектурном облике которой нашли свое отражение градостроительные тенденции русского классицизма первой половины XIX века,в строительстве которой принимал участие архитектор Михаил Павлович Малахов. Дом является объектом культурного наследия и находится в самом сердце Екатеринбурга. Рядом цирк, метро,ТРЦ Гинвич, Ледовая арена УГМК, Синагога, кафе,рестораны, знаменитые Сандуны, Плотинка,лучшие гимназии города. Двор закрытый. Квартира 41 кв.м ,двухкомнатная, потолки 4 метра,расположена на 1 этаже дома. Требует ремонта, но в тоже время возможность реализовать свои пожелания в ремонте. В подарок остается вся техника(стиральная машина Беко, Холодильник, плита),а так же вся мебель. Квартира подходит под сдачу в аренду,а так же высока вероятность расселения и получения в замен квартиры от застройщика в этой же локации.Фотографий квартиры нет, но есть возможность отправить вам видео,а так же посмотреть квартиру в живую. Звоните,записывайтесь на просмотр,все расскажу и покажу! ID объекта в нашей базе: 7876
    размещено: 14.01.2025 , обновлено: 1.11.2025

    2-к квартира, Первомайская, 62

    • 42.7 м2
    • 3/5 этаж
    • Состояние: плохое
    5 000 000 ₽ (117100 ₽/м2)
    Объект № 188554. Вашему вниманию предлагается двушка в центре города. Удобное расположение, тихий двор с местами для авто. В квартире заменены окна. Остальное подразумевает ремонт на свой вкус. Легкая перепланировка позволит изолировать комнаты. Чистая продажа. Приглашаем на просмотр! ***Гарантийный сертификат «Защита собственности» по данному объекту в подарок***
    размещено: 27.11.2024 , обновлено: 8.10.2025

Новостройки Екатеринбург, мкр-н. Центр

Приоритет

Увеличивает просмотры в 3 раза

Ваше объявление показывается в списке выше обычных объявлений. подключить