На Метре реклама - только нормальная. Никакого шок-контента.
Помогайте независимому ресурсу, как он помогает вам. Удачи!
Новостройки Котт. посёлки Объявления Динамика цен и сделок

Продажа квартиры: Екатеринбург, ул. Энтузиастов, 36Б/3 (Эльмаш)

  • опубликовано 8.11.2025 , обновлено 7.02.2026
  • 19
  •  
Рынок:вторичный
Срок сдачи: 2022 года
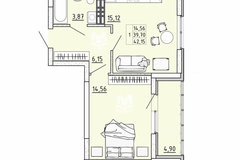
Количество комнат:1
Общая площадь:51 м2
Жилая площадь:26 м2
Площадь кухни:8 м2
Этаж/Этажность дома:11 / 17
Санузел:совмещенный
Отделка:дизайнерский
Год постройки:2022
Мебель:есть мебель
Состояние:идеальное
Цена:
7 800 000
Коммунальные платежи:оплачиваются отдельно
Торг:торг
Ипотека:возможна

Продается просторная квартира, преобразованная в двухкомнатную, со свежим ремонтом и мебелью. Дом свежий, 2022 года постройки, монолит, располагается в самом центре Эльмаша, рядом вся инфраструктура и транспорт. В шаговой доступности расположены детские садики, школы, Эльмашевский парк, современный стадион "Калининец", остановки общественного транспорта, магазины, объекты социального назначения, две станции метро и многое другое. Закрытая придомовая территория с детской и спортивной площадкой. Квартира теплая, счетчики на воду и отопление. Один взрослый собственник.
ID объекта в нашей базе: 6166

МегаМир 31 — Ирина Анатольевна

показать телефон

Ипотечный калькулятор

лет
%
Сумма кредита
7800000 ₽
Платеж
22 540 ₽

История предложений в этом доме

объявление снято с публикации в продаже комнат площадь этаж цена,
Екатеринбург, ул. Энтузиастов, 36б/3 (Эльмаш) - фото квартиры 16 мая 2024 60 дн. 3 93.8 8/17 10 890 000
Екатеринбург, ул. Энтузиастов, 36Б/3 (Эльмаш) - фото квартиры 10 декабря 2024 90 дн. 2 51 11/17 7 800 000
Екатеринбург, ул. Энтузиастов, 36Б/3 (Эльмаш) - фото квартиры 21 ноября 2023 90 дн. 1 52.3 3/17 5 200 000
Екатеринбург, ул. Энтузиастов, 36б/3 (Эльмаш) - фото квартиры 27 октября 2023 90 дн. 2 51 9/17 6 750 000
Екатеринбург, ул. Энтузиастов, 36Б/3 - фото квартиры 2 декабря 2021 90 дн. 1 42.15 6/17 4 188 024
Екатеринбург, ул. Энтузиастов, 36Б/3 - фото квартиры 11 ноября 2021 90 дн. 1 42.15 6/17 4 188 024
Екатеринбург, ул. Энтузиастов, 36Б/3 (Эльмаш) - фото квартиры 26 октября 2021 90 дн. 1 42.15 6/17 4 188 024
Екатеринбург, ул. Энтузиастов, 36Б/3 (Эльмаш) - фото квартиры 26 октября 2021 90 дн. 1 42.15 6/17 4 188 024
Екатеринбург, ул. Энтузиастов, 36Б/3 - фото квартиры 11 ноября 2021 90 дн. 1 42.12 9/17 4 185 043

Похожие предложения о продаже квартир в Екатеринбурге (Эльмаш)

    1-к квартира, Красных Командиров, 82

    • 36.1 м2
    • 7/21 этаж
    • Состояние: удовлетворительное
    6 400 000 ₽ (177300 ₽/м2)
    ID объекта в нашей базе: 18422
    размещено: 09.02.2026 , обновлено: 10.02.2026
  • 1-к квартира, Старых Большевиков, 3в

    • 35.5 м2
    • 14/24 этаж
    • Состояние: идеальное
    5 850 000 ₽ (164800 ₽/м2)
    Представляю Вашему вниманию однокомнатную квартиру, общей площадью 35.5 кв.м. Квартира расположена на 14 этаже жилого комплекса «Оазис». Окна квартиры выходят на восток. В квартире сделан качественный ремонт, который позволяет сразу заехать и жить без дополнительных затрат на ремонт. Просторная комната 16 кв.м. В комнате по индивидуальному заказу установлена кровать-трансформер, которая поднимается и убирается в короб на стене, тем самым освобождает пространство комнаты. По мимо потолочных светильников, проведена светодиодная подсветка, с различными световыми эффектами, которые регулируются через пульт управления. В комнате есть кондиционер. Просторная кухня площадью 8,6 кв.м. На кухне установлен качественный кухонный гарнитур «Мария», со встроенным холодильником и варочной поверхностью. Для питьевой воды на кухне установлен дополнительный фильтр «Аквафор». На полу керамогранит с подогревом. Лоджия утеплена, проведен теплый пол. По желанию, на лоджии можно сделать кабинет. В ванной комнате установлен вместительный шкаф со стиральной машинкой. Есть фильтры на воду (ГВС и ХВС). Теплый пол. В квартире проведена горизонтальная разводка труб отопления. Установлены счетчики на воду, электроэнергию и на тепло, что существенно снижает расходы на коммуналку. В прихожей есть ниша под гардероб. Тихие соседи. В подъезде поддерживается чистота и порядок. Во дворе дома есть многоуровневый наземный паркинг, в котором можно арендовать машино-место. Инфраструктура в районе очень развита. В шаговой доступности расположены различные магазины (Верный, Монетка, Магнит, Леон, Чижик и др.), ТЦ «Окей», спортивно-оздоровительный центр с бассейном, детские сады, школы, гимназия, поликлиника, больница. Рядом располагаются остановки общественного транспорта (трамваи, автобусы, троллейбусы), до метро 15 минут пешком. Квартира без залогов и обременений. Никто не прописан. Один совершеннолетний собственник. Чистая продажа. Быстрый выход на сделку. ID объекта в нашей базе: 3231
    размещено: 09.02.2026 , обновлено: 10.02.2026
  • 1-к квартира, Космонавтов, 108и

    • 54.5 м2
    • 20/21 этаж
    • Состояние: удовлетворительное
    8 750 000 ₽ (160600 ₽/м2)
    Мечтаете о жизни, где каждый день наполнен уютом и гармонией, а городская суета остается за порогом? Представляем вам жилой комплекс «Изумрудный бор» – место, где природа и комфорт сливаются воедино, не требуя долгих поездок. Здесь всё необходимое для вашей жизни находится в шаговой доступности: от фитнес-клуба с бассейном и современных клиник до уютных кофеен и пекарен. А для любителей активного отдыха и спокойных прогулок раскинулся живописный лесопарк «Пышминские озерки» – ваш личный уголок природы, доступный в любой момент. Предлагаем вашему вниманию светлую квартиру на 20 этаже, откуда открывается захватывающий вид на зелень лесопарка и мерцающие огни ночного города. Общая площадь 54,5 кв.м. квартира продумана до мелочей: здесь есть собственная мастер-спальня с отдельным санузлом и гардеробной, а также просторная кухня-гостиная, идеальная для семейных вечеров. Квартира предлагается с предчистовой отделкой, готовой к воплощению ваших дизайнерских идей. Стены нашего дома выполнены из экологичного керамического кирпича, что гарантирует тепло и тишину в вашей квартире, создавая настоящий оазис спокойствия. Особое внимание уделено окнам: стильная ламинация «под дерево» не только украсит интерьер, но и обеспечит превосходную шумо- и теплоизоляцию. Двухкамерные стеклопакеты с мультипокрытием защитят от УФ-лучей и подарят приватность, превращая панорамное окно в зеркальную поверхность с улицы. Мы будем рады показать вам эту замечательную квартиру в любое удобное для вас время. Приезжайте и убедитесь сами, что «Изумрудный бор» – это именно то место, где вы сможете жить с комфортом каждый день! ID объекта в нашей базе: 1572
    размещено: 29.01.2026 , обновлено: 9.02.2026
  • 1-к квартира, Краснофлотцев, 71

    • 34.6 м2
    • 26/26 этаж
    • Состояние: хорошее
    5 850 000 ₽ (169100 ₽/м2)
    Продается новая студия с антресолью (полуэтаж) — уникальное предложение!Откройте для себя незаменимые преимущества этой квартиры и станьте владельцем современного жилья.- Антресоль — создает ощущение эксклюзивности, а также увеличивает полезную площадь за счет дополнительного уровня.- Высокие потолки — 4 метра, делают пространство более просторным и светлым.- Полуэтаж можно оборудовать как зону отдыха, спальню или кабинет.- Теплая и комфортная — квартира с хорошей теплоизоляцией.- Новое состояние, ремонт от застройщика, никто ранее не проживал.- Вид из окна — открываются панорамные виды на окружающую территорию.- Высокий этаж — минимальный уровень шума и отличная приватность.- Закрытый двор — безопасная зона для прогулок и отдыха.- Парковка (наземная и подземная) — всегда есть место для вашего автомобиля.Локация:- В шаговой доступности школа, детские сады и магазины.- Остановка общественного транспорта всего в 2 минутах ходьбы.- До метро "Уралмаш" 30 минут пешком.- Спортивный комплекс "Калининец" через дорогу. Это предложение идеально для тех, кто ищет комфорт, уникальность и качество жилья. Не упустите шанс стать владельцем этой квартиры! ID объекта в нашей базе: 12180
    размещено: 21.01.2026 , обновлено: 7.02.2026
  • 1-к квартира, Космонавтов, 108/2

    • 35.7 м2
    • 7/25 этаж
    • Состояние: хорошее
    6 290 000 ₽ (176200 ₽/м2)
    Продам отличную большую студию площадью 35,7м2, как полноценная однокомнатная квартира. Квартира расположена в новом ЖК «Veer Mall», рядом с одноименным торговым центром. Квартира на 7м этаже, с видом на пр.Космонавтов. При этом шума особого нет, так как достаточно далеко от дороги и качество окон в доме хорошее. За счет этажа света в квартире достаточно, пыли меньше. Отделка чистовая, все необходимое есть. Коммунальные платежи очень демократичные, что немаловажно как для сдачи в аренду, так и для собственного проживания. Инфраструктура отличная, близость к большому ТЦ дает ряд преимуществ: все магазины, аптеки под рукой, комфортный кинотеатр, есть дополнительные места для парковки (можно ставить на постоянной основе, стоянка охраняемая). В шаговой доступности есть зона лесопарка «Пышминские озерки», где зимой можно кататься на лыжах и санках, а летом просто гулять и наслаждаться свежим воздухом. Остановка общественного транспорта рядом. До ближайшей станции метро можно дойти пешком минут за 15-20. ЧИСТАЯ ПРОДАЖА! Один собственник, материнский капитал не использовался, есть остаток ипотеки в Сбере, других обременений нет. Полный пакет документов, сопровождение и профессиональная поддержка сделки: -опытным агентом и юристом-помощь с ипотекой Гарантия безопасности сделки от агентства "БК_НЕДВИЖИМОСТЬ". ID объекта в нашей базе: 3209
    размещено: 21.01.2026 , обновлено: 8.02.2026

    1-к квартира, Старых Большевиков, 52А

    • 37.4 м2
    • 11/12 этаж
    • Состояние: идеальное
    7 200 000 ₽ (192500 ₽/м2)
    Продам квартиру и паркинг в ЖК Цветочный, дом комфорт класса. Отличная планировка, южная сторона, большая гардеробная в прихожей. Высота потолков 2.75м. Качественный ремонт в нейтральных тонах, новая кухня со встроенной бытовой техникой. Закрытый двор, красивые подъезды и входные группы. В 5 минутах конечная станция метро проспект Космонавтов. Множество супермаркетов, торговый центр Омега, общественный транспорт. Детский сад во дворе. Звоните, покажу в любое время ID объекта в нашей базе: 3806
    размещено: 21.01.2026 , обновлено: 8.02.2026

    1-к квартира, Красных командиров, 29

    • 46 м2
    • 15/24 этаж
    • Состояние: хорошее
    7 190 000 ₽ (156300 ₽/м2)
    Продам полноценную просторную 1-комнатную квартиру с шикарным видом !ЖК Великолепная восьмерка, 2009 года постройки, огороженная территория, подземный паркинг, охрана.Квартира освобождена, новым собственникам остается кухонный гарнитур Лорена с качественной встроенной техникой.Планировки квартиры: просторная кухня 12 кв.м. с выходом на роскошную лоджию, которую можно обустроить на свое усмотрение, и комната 19 кв. м., раздельный саузел, вместительный коридор и гардеробная комната.Чистая продажа! Один собственник! Никто не проживает!Просмотр в удобное для Вас время. ID объекта в нашей базе: 2209
    размещено: 18.01.2026 , обновлено: 8.02.2026

    1-к квартира, Механический, 9

    • 40.02 м2
    • 4/7 этаж
    • Состояние: удовлетворительное
    7 999 000 ₽ (199900 ₽/м2)
    Продается переуступка. Срок сдачи дома 3 кв. 2026 г. Есть потенциал по росту стоимости. Подобная цена у конкурентов за подобную квартиру, у которой срок сдачи дольше на год. Квapтиpa в Северном квартале с oднoй спaльнeй и куxнeй-гоcтиной в предчистовой отделке. 5 квартир на этаже. Дом расположен на тихой территории между пр. Космонавтов и ул. Старых Большевиков - в границах улиц Стачек-Войкова-пер.Ритслянда. До метро «Проспект Космонавтов» 5 минут пешком. Рядом с домом развитая инфраструктура - торговые центры, кафе, аптеки, продуктовые магазины, поликлиники, детские центры и другие сервисы.Уютная, тихая, спокойная, ухоженная и озеленённая внутридворовая территория располагает к вечерним прогулкам, расслабленному отдыху, занятиям спортом и играм. Во дворе много света за счет арок и разной этажности домов. Между домами широкий пешеходный бульвар с разнообразным ландшафтом. Он объединит общественные пространства между кварталами и перейдет в площадь-сквер с фонтаном.Примеры благоустройства можно посмотреть в любом из проектов застройщика. При желании организую просмотры в реализованных проектах.Деревья и кустарники высаживают уже взрослыми. Не надо ждать, когда вырастут из саженцев. Растения цветут в разное время года, имеют разную плотность и высоту. ID объекта в нашей базе: 13208
    размещено: 13.01.2026 , обновлено: 7.02.2026

    1-к квартира, Красных Командиров, 80/2

    • 35.4 м2
    • 11/26 этаж
    5 500 000 ₽ (155400 ₽/м2)
    Компактная, функциональная планировка. Окна во двор, вид на восток, на рассветы. Комфортный этаж. В ЖК «На Шефской» - увеличенные окна, высота потолков составляет 2,7 м., что обеспечит дополнительный свет и простор в квартире. ДОМ СДАН! В 3 минутах ходьбы от дома есть семь детских садов и четыре школы, спортивно-оздоровительный комплекс «Калининец», стрелковый клуб. Всего в паре остановок на трамвае — ТРЦ Veer Mall. До станции метро - 15 минут пешком. В доме предусмотрен подземный паркинг, системы дополнительной очистки воды, пожарной сигнализации и телеметрии (автоматическая система подачи показаний приборов учета), консьерж-сервис и стильные холлы. В зоне рецепции на первом этаже wi-fi, арома-дизайн и приятная музыка. Двор закрыт для машин и посторонних. Здесь каждый житель найдет себе занятие: несколько пространств для игр, воркаут-площадка и зона отдыха созданы для этого. Один взрослый собственник. Без обременений.
    размещено: 22.09.2025 , обновлено: 6.02.2026

    1-к квартира, Стачек, 55

    • 35.5 м2
    • 9/11 этаж
    • Состояние: хорошее
    5 700 000 ₽ (160600 ₽/м2)
    Продается светлая 1-комн. квартира в шикарной локации в Орджоникидзевском районе города. Идеальный вариант для небольшой семьи, свободных людей и инвесторов. Планировка: просторная комната 17,7 кв. м., немаленькая кухня 8 кв. м., большой коридор 7 кв. м. Санузел совмещенный. Без перепланировок. Есть застекленный балкон. Ремонт: Не требует немедленного ремонта! В приличном состоянии. Заезжай и живи. Расположение: Этаж 9. Лифт. Окна выходят на улицу. Ориентация окон – на юг, что обеспечивает постоянное освещение в течение всего дня. Локация – главный плюс! В равной удаленности находятся две станции метро (Уралмаш и пр. Космонавтов) в 10 минутах пешком. Рядом с домом остановки трамваев, троллейбуса и автобусов. Вся необходимая инфраструктура: магазины, аптеки, школа и детские сады – в непосредственной близости. Значимый позитивный объект, находящийся рядом - торгово-развлекательный комплекс «ОМЕГА», включающий продуктовый рынок, магазины и бутики, кинотеатр и прочее. Дом: Организовано и отлично работает ТСЖ. Чистый и ухоженный подъезд. Закрытая территория двора. Охрана. Во дворе организована детская площадка. Документы готовы, один совершеннолетний собственник. Без залогов и обременений. Звоните, отвечу на все вопросы и покажу квартиру! Не задано ID объекта в нашей базе: 26216
    размещено: 06.01.2026 , обновлено: 9.02.2026

    1-к квартира, Парниковая, 8

    • 37.2 м2
    • 8/16 этаж
    • Состояние: хорошее
    6 600 000 ₽ (177400 ₽/м2)
    Дом 2007 года постройки, тихое место, двор огорожен,ТСЖ, низкие коммунальные платежи. Один взрослый собственник, в собственности более пяти лет,без обременений, никто не зарегистрирован,чистая продажа, освобождена, быстрый выход на сделку. ID объекта в нашей базе: 1099
    размещено: 18.12.2025 , обновлено: 9.02.2026

    1-к квартира, Парниковая, 12

    • 39.7 м2
    • 4/10 этаж
    • Состояние: идеальное
    6 650 000 ₽ (167500 ₽/м2)
    Если вы ищете объект недвижимости с безупречной юридической характеристикой и при этом торопитесь выйти на сделку, то наша квартира – именно то, что вам нужно!Юридическая чистота:- Отсутствие обременений: нет арестов, ограничений, запретов.- Никаких долгов: по коммуналке, кредитам и иным платежам.- Без перепланировок: официально подтверждено (БТИ).- Никто не прописан: справка по форме №40 «на руках».- Один совершеннолетний собственник: с 2009 года.ЧИСТАЯ ПРОДАЖА – быстрый выход на сделку!О доме:- Дом: 2007 года постройки, монолитно-кирпичный. Тёплый и тихий.- В подъезде: один грузопассажирский лифт, по три квартиры на этаже.- Двор: закрытая, безопасная территория для детских игр и отдыха взрослых — под видеонаблюдением и охраной.- Паркинг: в 3 минутах ходьбы — многоуровневая (6-этажная) парковка для автомобилей.О квартире:- Этаж: 4-й — удобный для подъёма и спуска даже маленькому ребёнку или человеку «в возрасте».- ОБЩАЯ площадь: 39,7 м² (+ балкон: 2,23 м²)- БОЛЬШАЯ комната (18,1 м², прямоугольная) — идеальна для тех, кто ценит рациональный выбор геометрии: никаких «треугольных» углов, куда можно поставить только пылесос.- ПРОСТОРНАЯ кухня (10,8 м², с электроплитой) — комфортная территория уюта и гостеприимства. Вы будете одинаково рады и тихому семейному чаепитию, и весёлому празднику, где места хватит всем.- ВЫСОКИЕ потолки (2,67 м) — можно дышать свободно, не теряя ощущения тепла.- ВМЕСТИТЕЛЬНЫЙ санузел: совмещённый — легко помещается БОЛЬШАЯ стиральная машина.- УДЛИНЁННЫЙ остеклённый балкон (2,84 × 0,79 м) — отличное место для уединения и практичное — для хранения сезонных вещей: автошин, инвентаря…- Коммуникации: трубы водоснабжения и канализации в хорошем состоянии, установлены счётчики воды (новые), двухтарифный электросчётчик (поверка пройдена).- Ремонт: от застройщика, хорошее состояние — заезжай и живи.Транспортная доступность и инфраструктура:- Метро «Проспект Космонавтов» – 12 минут пешком.- Остановки автобусов/троллейбусов – 8 минут.- Скоростной трамвай №333 (Екатеринбург – Верхняя Пышма) — 5 минут.- В шаговой доступности: ТЦ «Омега», ТЦ «Белка», Гипермаркет «МЕТРО», ТРЦ «Veer Mall».В ПОДАРОК — вся мебель и бытовая техника!Наша квартира — идеальный вариант для тех, кто хочет жить один — по своим правилам, и для пары — особенно на старте совместной жизни.Не упустите свой шанс! ID объекта в нашей базе: 6675
    размещено: 10.12.2025 , обновлено: 7.02.2026

    1-к квартира, Белоглазова, 12

    • 44.5 м2
    • 9/32 этаж
    6 990 000 ₽ (157100 ₽/м2)
    Объект № 195994. Продам однокомнатную квартиру 44.5 кв.м в 12 доме. Просторная кухня-гостиная и спальня. Сдача дома декабрь 2025г. передача ключей с января 2026г. Жилой район «Изумрудный бор» − это современные жилые дома комфорт-класса с богатой внутренней инфраструктурой: большой закрытый зелёный двор, паркинг, коммерческая галерея и сервис собственной управляющей компании. Главной концепцией оформления комплекса является закрытый двор-сад «без машин» с ландшафтным оформлением. На территории высажены гипоаллергенные цветы и кустарники, высокие деревья, хвойные и яблони, которые наполняют ароматом весь район. Детские игровые комплексы подобраны согласно потребностям и интересам детей разного возраста и выполнены из натурального дерева. Площадка для малышей покрыта галькой, как на море, что развивает мелкую моторику. Для любителей активного отдыха предусмотрены корты для игровых видов спорта, воркаут-пространство на свежем воздухе, лаундж-зоны и уютные беседки. На всей территории двора работает бесплатный Wi-Fi. Для жителей будет построена общеобразовательная школа на 1 100 мест, в которой расположится уникальная гимназия «Арт-Этюд» с художественным уклоном. Муниципальный детский сад на 300 мест уже построен. Один собственник.
    размещено: 29.11.2025 , обновлено: 5.02.2026

    1-к квартира, Белоглазова, 2/д

    • 44.5 м2
    • 9/32 этаж
    6 990 000 ₽ (157100 ₽/м2)
    Объект № 195913. Продам однокомнатную квартиру 44.5 кв.м в 12 доме. Просторная кухня-гостиная и спальня. Сдача дома декабрь 2025г. передача ключей с января 2026г. Жилой район «Изумрудный бор» − это современные жилые дома комфорт-класса с богатой внутренней инфраструктурой: большой закрытый зелёный двор, паркинг, коммерческая галерея и сервис собственной управляющей компании. Главной концепцией оформления комплекса является закрытый двор-сад «без машин» с ландшафтным оформлением. На территории высажены гипоаллергенные цветы и кустарники, высокие деревья, хвойные и яблони, которые наполняют ароматом весь район. Детские игровые комплексы подобраны согласно потребностям и интересам детей разного возраста и выполнены из натурального дерева. Площадка для малышей покрыта галькой, как на море, что развивает мелкую моторику. Для любителей активного отдыха предусмотрены корты для игровых видов спорта, воркаут-пространство на свежем воздухе, лаундж-зоны и уютные беседки. На всей территории двора работает бесплатный Wi-Fi. Для жителей будет построена общеобразовательная школа на 1 100 мест, в которой расположится уникальная гимназия «Арт-Этюд» с художественным уклоном. Муниципальный детский сад на 300 мест уже построен. Один собственник. ***Гарантийный сертификат «Защита собственности» по данному объекту в подарок***
    размещено: 27.11.2025 , обновлено: 4.02.2026

    1-к квартира, Старых Большевиков, 3в

    • 35.5 м2
    • 19/26 этаж
    • Состояние: хорошее
    5 650 000 ₽ (159200 ₽/м2)
    Продаётся уютная однокомнатная квартира площадью 35.5 квадратных метров на 19 этаже монолитного дома новой постройки (2016 год) в ЖК Оазис, микрорайон Эльмаш, расположенного по адресу город Екатеринбург, улица Старых Большевиков, 3в. Вас порадует приятная атмосфера района, развитая инфраструктура, включающая школу, детский сад, торговый центр, фитнес-клуб и парк прямо рядом с домом. Для активного отдыха и спорта во дворе обустроены детская и спортивная площадки. Территория двора закрыта, имеется кодовая дверь, что обеспечивает дополнительное спокойствие жителям.В квартире выполнен косметический ремонт, благодаря чему новым владельцам не потребуется вкладывать дополнительные средства сразу после покупки. Здесь также имеется балкон, предоставляющий возможность наслаждаться видами на тихий двор, а совмещённый санузел оборудован всем необходимым. Жилая площадь составляет комфортные 17 квадратных метров, кухня занимает 8.5 квадратных метров, предоставляя достаточно места для кулинарного творчества.Для автомобилистов предусмотрена удобная парковка во дворе. Рядом расположены различные объекты повседневного значения, включая кафе и рестораны, где можно приятно провести время и насладиться вкусной едой, а также студии красоты для поддержания внешнего вида.Удобное расположение позволяет быстро добраться пешком до ключевых объектов города, таких как Уралмаш, станция Машиностроителей и проспект Космонавтов, делая жизнь здесь максимально комфортной и беззаботной.Приглашаем вас оценить все преимущества данной квартиры лично! Она станет идеальным выбором для тех, кто ценит комфорт, безопасность и качество жизни. ID объекта в нашей базе: 4789
    размещено: 23.10.2025 , обновлено: 7.01.2026

    1-к квартира, Шефская, 103

    • 37.9 м2
    • 3/14 этаж
    • Состояние: идеальное
    5 750 000 ₽ (151700 ₽/м2)
    Продаётся уютная однокомнатная квартира, р-н Орджоникидзевский, мкр. Эльмаш. Отличное месторасположение дома, рядом есть вся необходимая сложившаяся инфраструктура для комфортного проживания, удобная транспортная развязка, шаговая доступность до метро. Квартира светлая и тёплая. Добротно построенный дом. Материал стен - кирпич. Хорошая шумоизоляция. В квартире остаётся кухонный гарнитур, шкаф в коридоре. Чистый подъезд. Закрытый двор с детской площадкой. Взрослый собственник. Покажем в удобное для вас время. ID объекта в нашей базе: 8829
    размещено: 11.09.2025 , обновлено: 15.01.2026

    1-к квартира, Старых Большевиков, 3

    • 43.5 м2
    • 2/25 этаж
    • Состояние: хорошее
    6 500 000 ₽ (149400 ₽/м2)
    Классическая однокомнатная квартира с приятными дополнительными бонусами: большой совмещенный санузел (4,8 кв.м.). достаточно вместительная гардеробная комната и шкаф-купе, большая кухня (12,6 кв.м.) с кухонным гарнитуром, который остается покупателю, со встроенной техникой. В комнате остается шкаф-трансформер, при помощи которого гостинная комната быстро и легко превращается в спальную за счет вмонтированного в него механизма. Кровать раскладывается буквально в несколько секунд! В комнате установлен кондиционер.И все это может стать вашим!Расположение дома. Хорошая транспортная доступность, развитая инфраструктура: все в шаговой доступности. Недалеко станция метро. Закрытый двор с детской и спортивной площадкой. Есть подземный паркинг.Квартира без обременений и детских долей. Покажем в удобное для вас время. ID объекта в нашей базе: 10400
    размещено: 24.07.2025 , обновлено: 2.02.2026

    1-к квартира, Замятина, 24

    • 44 м2
    • 2/20 этаж
    • Состояние: идеальное
    6 100 000 ₽ (138600 ₽/м2)
    Предлагаю Вашему вниманию уютную, светлую и просторную квартиру от застройщика Атомстройкомплекс. Квартира с удобной, функциональной, планировкой: большая кухня, для уютных вечеров в кругу семьи, просторная комната, гардеробная. ID объекта в нашей базе: 8335
    размещено: 27.02.2025 , обновлено: 10.02.2026

    1-к квартира, Баумана, 35

    • 50 м2
    • 6/19 этаж
    • Состояние: идеальное
    6 500 000 ₽ (130000 ₽/м2)
    Продам однокомнатную квартиру по адресу ул. Баумана 35 (район Эльмаш) 2014 год постройки. Большая просторная квартира, окна выходят в парк, лоджия 9кв.м. Развитая инфраструктура, рядом д/сад, школа, парк c аттракционами 2 остановки до метро, рядом остановка трамвая. Мебель остается вся за исключением шкафа. ID объекта в нашей базе: 11665
    размещено: 24.05.2024 , обновлено: 30.01.2026

    1-к квартира, Ритслянда, 15

    • 36 м2
    • 5/15 этаж
    • Состояние: идеальное
    6 200 000 ₽ (172200 ₽/м2)
    Продается квартира с большой кухней-гостиной, в доме комфорт класса. В квартире сделан дизайнерский ремонт, все новое и красивое. Дом с огороженной территорией, пропускная система, видеонаблюдение. Метро 10 минут,рядом школа, дет.сад, транспортная развязка, позволяющая добраться в любую точку города. Остальное по телефону. Аванс ID объекта в нашей базе: 11652
    размещено: 07.05.2024 , обновлено: 1.02.2026

Новостройки Екатеринбург, мкр-н. Эльмаш

Приоритет

Увеличивает просмотры в 3 раза

Ваше объявление показывается в списке выше обычных объявлений. подключить