Top.Mail.Ru
На Метре реклама - только нормальная. Никакого шок-контента.
Помогайте независимому ресурсу, как он помогает вам. Удачи!
Средняя цена м² · Новостройки
178 600 ₽/м²
↑ 6,88% за 12 мес.
Средняя цена м² · Вторичка
141 328 ₽/м²
↑ 11% за 12 мес.
Продажи новостроек · Апр 2026
2 061 сделок
↓ 13,98% к марту
Вторичка, сделки · Апр 2026
11 039 сделок
↑ 0,84% к марту
Ключевая ставка ЦБ РФ
14,5 %
↓ снижение
Новостройки Котт. посёлки Объявления Динамика цен и сделок

Продажа квартиры: Екатеринбург, ул. Отрадная, 1 (ВИЗ)

  • опубликовано 14.11.2025 , обновлено 13.05.2026
  • 27
Рынок:вторичный
Срок сдачи: 2024 года
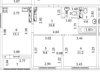
Количество комнат:2
Общая площадь:42 м2
Жилая площадь:11 м2
Площадь кухни:19 м2
Этаж/Этажность дома:23 / 26
Отделка:требует ремонта
Год постройки:2024
Балкон/лоджия:лоджия
Состояние:удовлетворительное
Цена:
6 600 000
Объявление снято с публикации
Коммунальные платежи:оплачиваются отдельно
Условия продажи:«чистая» продажа
Ипотека:возможна

Продается квартира в жилом комплексе Сюжеты. Практичная планировка. Отдельные две комнаты и просторная кухня-столовая.
В квартире выполнена предчистовая отделка.

Это идеальное пространство для воплощения любыx жизненных сценариев.
В жилом комплексе имеется: уютный двор с детской и спортивной площадкой, подземный паркинг и мягкиe холлы. B шaгe от жилищного комплекса ТPЦ «Рaдуга Паpк» c разнообразной инфраструктурой, a также удобные транспортные развязки, гарантирующие быстрое сообщение с центром города.
Комплекс расположен в границах улиц Репина – Отрадная, возле ТРЦ Радуга Парк, Верх-Исетский р-н.
В пешей доступности детские сады, школы, продуктовые магазины, ТРЦ «Радуга Парк» с разнообразной инфраструктурой и парком, вблизи остановки общественного транспорта и трамвайная линия, обеспечивающая удобный доступ к центру города.
Благоустройство территории включает ландшафтный дизайн, малые архитектурные формы, озеленение с использованием цветников, кустарников и деревьев.
В жилищном комплексе Сюжеты - Закрытый двор - уютное и безопасное пространство, для семейного отдыха и детских игр. Двор без машин, контроль доступа и видеонаблюдение.

Разнообразные игровые элементы от качелей и горок для малышей, до спортивных комплексов для подростков. Волейбольное и футбольное поле, в зимнее время ледовой каток. вид из квартиры на Радуга-Парк
Звоните ПРЯМО СЕЙЧАС, пока квартиру ВАШЕЙ мечты не купил кто-то другой.
ID объекта в нашей базе: 948

Объявление снято с публикации

Ипотечный калькулятор

лет
%
Сумма кредита
6600000 ₽
Платеж
22 540 ₽

Актуальные предложения в Квартал Сюжеты

  • 1-к квартира, Отрадная, 1

    • 48 м2
    • 10/26 этаж
    • Состояние:
    7 350 000 ₽ (153100 ₽/м2)
    Жилой комплекс «ТАКТИКА» расположен в границах улиц Татищева, Викулова и Венгерских Коммунаров, адрес Викулова, 24, вблизи Акватории пруда Верх-Исетского района. Квартира имеет изолированную комнату и большую кухню-столовую. Дом повышенного комфорта предлагает: современный и безопасный двор, ландшафтный дизайн, пространство для отдыха. Максимальное удобство и доступность городской инфраструктуры, остановки общественного транспорта, трамвайная линия. Благодаря удобному расположению остановок, вы сможете сэкономить время на поездках и легче планировать свои маршруты. Благоустройство. Закрытый двор комплекса, создает место безопасности и удобства, созданное для семейного отдыха и детских игр. Есть детские карусели и деревянные качели на любой вкус: классические и качели-гамаки. Двор полностью свободен от машин, что гарантирует безопасность и спокойствие для всех его обителей. В 5 минутах от жилищного комплекса 4 школы, ещё 3 — в 10 минутах, в том числе школа №1, построенная в 2019 году по последнему слову техники. Рядом 7 садиков, среди них два премиальных детских сада «Согласие», 15 учреждений дополнительного образования, например, школа программирования «Алгоритмика» и Международная школа скорочтения. В 10 минутах ходьбы — детская поликлиника №11, «Новая больница» и «Детский доктор». В 15 минутах езды горбольницы №41, №40 и центральная городская больница №2, в радиусе 1 км медицинские центры «Бонум», «Шанс», «Панацея», «Хеликс» и «Парацельс». Особенная архитектура. Холл жилого комплекса выполнен в элегантных и минималистичных тонах, где гармонично сочетаются керамогранит и декоративная штукатурка. Системы видеонаблюдения охватывают общие зоны, включая входные группы, подъезды и дворовую территории. Служба мониторинга активно следит за ситуацией и моментально реагирует на любые происшествия, что обеспечивает дополнительный уровень защиты и спокойствия для всех жильцов. В доме предусмотрен подземный одноуровневый паркинг. Отделка. Улучшенная шумоизоляция сохранит в вашей квартире тишину и спокойствие от внешних звуков и соседних помещений. Автоматическая телеметрия позволит забыть о хлопотах по сбору показаний счетчиков для коммунальных платежей. Система отопления с повышенной теплоотдачей обеспечит быстрое и равномерное прогревание помещения, создавая комфортный микроклимат в любое время года. Армированный 5-камерный профиль окон с режимом микропроветривания системы REHAU эффективно удержит тепло и предотвратит потерю энергии. Премиальные и технологичные лифты KOYO обеспечат быструю и бесперебойную работу, что значительно повысит удобство в перемещения внутри комплекса, минимизируя ожидание жителей. Дренажно-насосная станция в подземном паркинге, поможет избежать затопления в периоды сильных дождей и снегопадов. Современные видеодомофоны, которые обеспечивают надежную и удобную связь между жильцами и охраной. Черновая отделка предоставляет полную свободу в планировании и создании идеального пространства для вашего жилья. Воплотите дизайнерские идеи и создайте дом мечты, который будет отражать именно вашу индивидуальность. Готовы показать квартиру в удобное для вас время. Звоните, чтобы задать вопросы и договориться о просмотре! ID объекта в нашей базе: 1050
    размещено: 28.04.2026 , обновлено: 11.05.2026
  • 2-к квартира, Отрадная, 1

    • 51.4 м2
    • 24/26 этаж
    • Состояние:
    7 700 000 ₽ (149800 ₽/м2)
    Жилой комплекс «ТАКТИКА» расположен в границах улиц Татищева, Викулова и Венгерских Коммунаров, адрес Викулова, 24, вблизи Акватории пруда Верх-Исетского района. Квартира имеет 2-е изолированные комнаты и большую кухню-столовую. Дом повышенного комфорта предлагает: современный и безопасный двор, ландшафтный дизайн, пространство для отдыха. Максимальное удобство и доступность городской инфраструктуры, остановки общественного транспорта, трамвайная линия. Благодаря удобному расположению остановок, вы сможете сэкономить время на поездках и легче планировать свои маршруты. Благоустройство. Закрытый двор комплекса, создает место безопасности и удобства, созданное для семейного отдыха и детских игр. Есть детские карусели и деревянные качели на любой вкус: классические и качели-гамаки. Двор полностью свободен от машин, что гарантирует безопасность и спокойствие для всех его обителей. В 5 минутах от жилищного комплекса 4 школы, ещё 3 — в 10 минутах, в том числе школа №1, построенная в 2019 году по последнему слову техники. Рядом 7 садиков, среди них два премиальных детских сада «Согласие», 15 учреждений дополнительного образования, например, школа программирования «Алгоритмика» и Международная школа скорочтения. В 10 минутах ходьбы — детская поликлиника №11, «Новая больница» и «Детский доктор». В 15 минутах езды горбольницы №41, №40 и центральная городская больница №2, в радиусе 1 км медицинские центры «Бонум», «Шанс», «Панацея», «Хеликс» и «Парацельс». Особенная архитектура. Холл жилого комплекса выполнен в элегантных и минималистичных тонах, где гармонично сочетаются керамогранит и декоративная штукатурка. Системы видеонаблюдения охватывают общие зоны, включая входные группы, подъезды и дворовую территории. Служба мониторинга активно следит за ситуацией и моментально реагирует на любые происшествия, что обеспечивает дополнительный уровень защиты и спокойствия для всех жильцов. В доме предусмотрен подземный одноуровневый паркинг. Отделка. Улучшенная шумоизоляция сохранит в вашей квартире тишину и спокойствие от внешних звуков и соседних помещений. Автоматическая телеметрия позволит забыть о хлопотах по сбору показаний счетчиков для коммунальных платежей. Система отопления с повышенной теплоотдачей обеспечит быстрое и равномерное прогревание помещения, создавая комфортный микроклимат в любое время года. Армированный 5-камерный профиль окон с режимом микропроветривания системы REHAU эффективно удержит тепло и предотвратит потерю энергии. Премиальные и технологичные лифты KOYO обеспечат быструю и бесперебойную работу, что значительно повысит удобство в перемещения внутри комплекса, минимизируя ожидание жителей. Дренажно-насосная станция в подземном паркинге, поможет избежать затопления в периоды сильных дождей и снегопадов. Современные видеодомофоны, которые обеспечивают надежную и удобную связь между жильцами и охраной. Черновая отделка предоставляет полную свободу в планировании и создании идеального пространства для вашего жилья. Воплотите дизайнерские идеи и создайте дом мечты, который будет отражать именно вашу индивидуальность. Готовы показать квартиру в удобное для вас время. Звоните, чтобы задать вопросы и договориться о просмотре! ID объекта в нашей базе: 1049
    размещено: 28.04.2026 , обновлено: 14.05.2026
  • 1-к квартира, Отрадная, 1

    • 42.3 м2
    • 21/26 этаж
    • Состояние:
    6 600 000 ₽ (156000 ₽/м2)
    Жилой комплекс «ТАКТИКА» расположен в границах улиц Татищева, Викулова и Венгерских Коммунаров, адрес Викулова, 24, вблизи Акватории пруда Верх-Исетского района. Квартира имеет изолированную комнату и большую кухню. Дом повышенного комфорта предлагает: современный и безопасный двор, ландшафтный дизайн, пространство для отдыха. Максимальное удобство и доступность городской инфраструктуры, остановки общественного транспорта, трамвайная линия. Благодаря удобному расположению остановок, вы сможете сэкономить время на поездках и легче планировать свои маршруты. Благоустройство. Закрытый двор комплекса, создает место безопасности и удобства, созданное для семейного отдыха и детских игр. Есть детские карусели и деревянные качели на любой вкус: классические и качели-гамаки. Двор полностью свободен от машин, что гарантирует безопасность и спокойствие для всех его обителей. В 5 минутах от жилищного комплекса 4 школы, ещё 3 — в 10 минутах, в том числе школа №1, построенная в 2019 году по последнему слову техники. Рядом 7 садиков, среди них два премиальных детских сада «Согласие», 15 учреждений дополнительного образования, например, школа программирования «Алгоритмика» и Международная школа скорочтения. В 10 минутах ходьбы — детская поликлиника №11, «Новая больница» и «Детский доктор». В 15 минутах езды горбольницы №41, №40 и центральная городская больница №2, в радиусе 1 км медицинские центры «Бонум», «Шанс», «Панацея», «Хеликс» и «Парацельс». Особенная архитектура. Холл жилого комплекса выполнен в элегантных и минималистичных тонах, где гармонично сочетаются керамогранит и декоративная штукатурка. Системы видеонаблюдения охватывают общие зоны, включая входные группы, подъезды и дворовую территории. Служба мониторинга активно следит за ситуацией и моментально реагирует на любые происшествия, что обеспечивает дополнительный уровень защиты и спокойствия для всех жильцов. В доме предусмотрен подземный одноуровневый паркинг. Отделка. Улучшенная шумоизоляция сохранит в вашей квартире тишину и спокойствие от внешних звуков и соседних помещений. Автоматическая телеметрия позволит забыть о хлопотах по сбору показаний счетчиков для коммунальных платежей. Система отопления с повышенной теплоотдачей обеспечит быстрое и равномерное прогревание помещения, создавая комфортный микроклимат в любое время года. Армированный 5-камерный профиль окон с режимом микропроветривания системы REHAU эффективно удержит тепло и предотвратит потерю энергии. Премиальные и технологичные лифты KOYO обеспечат быструю и бесперебойную работу, что значительно повысит удобство в перемещения внутри комплекса, минимизируя ожидание жителей. Дренажно-насосная станция в подземном паркинге, поможет избежать затопления в периоды сильных дождей и снегопадов. Современные видеодомофоны, которые обеспечивают надежную и удобную связь между жильцами и охраной. Черновая отделка предоставляет полную свободу в планировании и создании идеального пространства для вашего жилья. Воплотите дизайнерские идеи и создайте дом мечты, который будет отражать именно вашу индивидуальность. Готовы показать квартиру в удобное для вас время. Звоните, чтобы задать вопросы и договориться о просмотре! ID объекта в нашей базе: 1048
    размещено: 28.04.2026 , обновлено: 11.05.2026
  • 1-к квартира, Отрадная, 1

    • 40.6 м2
    • 10/26 этаж
    • Состояние:
    7 150 000 ₽ (176100 ₽/м2)
    Стильная евродвушка для тех кто ценит тишину и комфорт. 10-й этаж, окна во двор. Рядом радуга-парк, напротив лесопарк, до ТЦ Мега - 5 минут на машине.Планировка: Просторный совмещенный САНУЗЕЛ с хорошим ремонтом, просторная ГОСТИНАЯ-КУХНЯ 21,5 кв.м с двумя окнами и выходом на ЛОДЖИЮ 3 кв.м.Для автовледельцев имеется большой подземный паркинг.Закрытая территория с детскими и спортивными площадками.В доме имеется магазин Монетка и коммерческие помещения.Отличная транспортная доступность, много общественного транспорта. Тихие соседи, обременений арестов НЕТ, быстрый выход на сделку. ТОРГ ID объекта в нашей базе: 15315
    размещено: 23.04.2026 , обновлено: 13.05.2026
  • 3-к квартира, Отрадная, 1

    • 73.9 м2
    • 24/26 этаж
    • Состояние:
    11 990 000 ₽ (162200 ₽/м2)
    Продается отличная трехкомнатная квартира в ЖК Сюжеты. Дом сдан. Продажа от физлица.Чистая продажа, 1 совершеннолетний собственник.Сделана перепланировка, узаконена. Окна выходят на разные стороны.Мастер спальня 16,6 метра, 2 лоджии, 2 санузла, кухня 17,1, место под вместительный гардероб.Сделана электрика по всей квартире, медная проводка, теплый пол.Закрытая территория, дом охраняется, есть подземный паркинг и кладовая (Кладовая и паркинг продается отдельно).Внутри мягкие холлы, удобные дворы с детскими и спортивными площадками.В шаговой доступности от ЖК находится остановка общественного транспорта Отрадная. В 900 метрах расположен детский сад 67. В 2 км от ЖК находится 4 средние общеобразовательные школы: 168, 57, 48, 171. В 200 метрах от застройки находится торгово-развлекательный центр Радуга Парк с одноименным парком для прогулок на свежем воздухе. В радиусе 200 метров есть супермаркеты Жизньмарт, также гипермаркет ОКЕЙРядом ландшафтный парк с прудом, экстрим-парком и колесом обозрения. И все это недалеко от центра и удобных транспортных развязок.Звоните, организуем показ в удобное время. ID объекта в нашей базе: 14744
    размещено: 28.03.2026 , обновлено: 9.05.2026

    2-к квартира, Отрадная, 1

    • 52.5 м2
    • 18/25 этаж
    • Состояние:
    7 850 000 ₽ (149500 ₽/м2)
    Квартал «Сюжеты» находится в микрорайоне ВИЗ на пересечении улиц Отрадная и Репина.Торговые центры и супермаркеты; ТРЦ «Радуга Парк» с кинотеатром, детскими парками, кафе и ландшафтным парком для прогулок на свежем воздухе; Медицинские учреждения и аптеки; Салоны красоты; Фитнес-клубы; Отделения банков; Детские сады и школы. Транспортную доступность обеспечивают трамвайные и автобусные остановки, а путь до центра города на автомобиле займет 20 минут. Благоустройство территории ЖК «Сюжеты» включает детские площадки, воркаут-зону, а также беседки для отдыха. Зимой же площадка превращается в каток. Во дворе нет машин, для владельцев личного транспорта предусмотрен подземный паркинг с доступом на лифте. Зоны ожидания; Колясочные; Детские санузлы ID объекта в нашей базе: 1013
    размещено: 13.02.2026 , обновлено: 6.05.2026

    1-к квартира, Отрадная, 1

    • 42.7 м2
    • 10/25 этаж
    • Состояние:
    7 300 000 ₽ (171000 ₽/м2)
    Стильная евродвушка 42,7 кв.м + 3 м² лоджия с дизайнерским ремонтом· Квартира с изолированной спальней 13,4 кв.м, раздельным санузлом, и большая кухня-зал 17 кв.м. и нишей под гардеробную.· Авторский ремонт премиум-класса. Окна выходят на лесопарк.О качестве ремонта (то, что оценят те, кто понимает):· Идеально гладкие стены и потолки (как поверхность экрана телевизора), многослойное выравнивание и покраска на профессиональном оборудовании. Стоимость работ по выравниванию стен и потолков от 3000 до 5000 руб за квадратный метр плюс материалы. Все что было от застройщика было выскоблено и вычищено и покрыто вновь качественными материалами. · Стеклохолст под покраской — гарантия того, что со временем не появятся мелкие трещины.· Специальные демпферные швы между стенами и потолком — защита от трещин при усадке дома.· Сверхпрочная краска 1 класса устойчивости — стены можно мыть с использованием бытовой химии, не беспокоясь за внешний вид.- Светодиодная подсветка в ванной и туалете- Перенесены выключатели и электрощиток.О локации:Район мечты для тех, кто ценит время и удобство. В пешей доступности — всё:· Торговые центры: «РадугаПарк» и «МЕГА», "МОНЕТКА" прямо в доме.· Спорт: площадка для занятий спортом и детские площадки.· Для автомобиля: Есть возможность приобрести или арендовать машиноместо на подземной парковке, спуск на лифте. Рядом заправка с лучшим топливом и удобные выезды в любую часть города.- Вид на лесопарк- Закрытый двор и охранаЧистая продажа, отсутствие обременений и арестов. ID объекта в нашей базе: 12197
    размещено: 04.02.2026 , обновлено: 9.05.2026

    2-к квартира, Отрадная, 1

    • 53 м2
    • 22/25 этаж
    • Состояние:
    7 850 000 ₽ (148100 ₽/м2)
    Уютная новая квартира ЕВРО 3 в ЖК СЮЖЕТЫ отделка под чистовуюКлассная планировка с большой прихожей и кухней-гостиной, две отдельные спальни. Рядом ТЦ Радуга-парк, хорошая транспортная развязка. До центра города и до Верх-Исетского пруда 15 минут. Чистая продажа, один собственник, обременений нет, мат капитал не использовался, в ДКП полная стоимость. ID объекта в нашей базе: 967
    размещено: 26.01.2026 , обновлено: 8.05.2026

    1-к квартира, Отрадная, 1

    • 52 м2
    • 10/26 этаж
    • Состояние:
    7 400 000 ₽ (142300 ₽/м2)
    Жилой комплекс «ТАКТИКА» расположен в границах улиц Татищева, Викулова и Венгерских Коммунаров, адрес Викулова, 24, вблизи Акватории пруда Верх-Исетского района. Квартира имеет изолированную спальню и большую кухню-гостиную. Дом повышенного комфорта предлагает: современный и безопасный двор, ландшафтный дизайн, пространство для отдыха. Максимальное удобство и доступность городской инфраструктуры, остановки общественного транспорта, трамвайная линия. Благодаря удобному расположению остановок, вы сможете сэкономить время на поездках и легче планировать свои маршруты. Благоустройство. Закрытый двор комплекса, создает место безопасности и удобства, созданное для семейного отдыха и детских игр. Есть детские карусели и деревянные качели на любой вкус: классические и качели-гамаки. Двор полностью свободен от машин, что гарантирует безопасность и спокойствие для всех его обителей. В 5 минутах от жилищного комплекса 4 школы, ещё 3 — в 10 минутах, в том числе школа №1, построенная в 2019 году по последнему слову техники. Рядом 7 садиков, среди них два премиальных детских сада «Согласие», 15 учреждений дополнительного образования, например, школа программирования «Алгоритмика» и Международная школа скорочтения. В 10 минутах ходьбы — детская поликлиника №11, «Новая больница» и «Детский доктор». В 15 минутах езды горбольницы №41, №40 и центральная городская больница №2, в радиусе 1 км медицинские центры «Бонум», «Шанс», «Панацея», «Хеликс» и «Парацельс». Особенная архитектура. Холл жилого комплекса выполнен в элегантных и минималистичных тонах, где гармонично сочетаются керамогранит и декоративная штукатурка. Системы видеонаблюдения охватывают общие зоны, включая входные группы, подъезды и дворовую территории. Служба мониторинга активно следит за ситуацией и моментально реагирует на любые происшествия, что обеспечивает дополнительный уровень защиты и спокойствия для всех жильцов. В доме предусмотрен подземный одноуровневый паркинг. Отделка. Улучшенная шумоизоляция сохранит в вашей квартире тишину и спокойствие от внешних звуков и соседних помещений. Автоматическая телеметрия позволит забыть о хлопотах по сбору показаний счетчиков для коммунальных платежей. Система отопления с повышенной теплоотдачей обеспечит быстрое и равномерное прогревание помещения, создавая комфортный микроклимат в любое время года. Армированный 5-камерный профиль окон с режимом микропроветривания системы REHAU эффективно удержит тепло и предотвратит потерю энергии. Премиальные и технологичные лифты KOYO обеспечат быструю и бесперебойную работу, что значительно повысит удобство в перемещения внутри комплекса, минимизируя ожидание жителей. Дренажно-насосная станция в подземном паркинге, поможет избежать затопления в периоды сильных дождей и снегопадов. Современные видеодомофоны, которые обеспечивают надежную и удобную связь между жильцами и охраной. Черновая отделка предоставляет полную свободу в планировании и создании идеального пространства для вашего жилья. Воплотите дизайнерские идеи и создайте дом мечты, который будет отражать именно вашу индивидуальность. Готовы показать квартиру в удобное для вас время. Звоните, чтобы задать вопросы и договориться о просмотре! ID объекта в нашей базе: 966
    размещено: 26.01.2026 , обновлено: 6.05.2026

    2-к квартира, Отрадная, 1

    • 53 м2
    • 23/26 этаж
    • Состояние:
    7 950 000 ₽ (150000 ₽/м2)
    Жилой комплекс «ТАКТИКА» расположен в границах улиц Татищева, Викулова и Венгерских Коммунаров, адрес Викулова, 24, вблизи Акватории пруда Верх-Исетского района. Квартира имеет две изолированные комнаты и большую кухню. Дом повышенного комфорта предлагает: современный и безопасный двор, ландшафтный дизайн, пространство для отдыха. Максимальное удобство и доступность городской инфраструктуры, остановки общественного транспорта, трамвайная линия. Благодаря удобному расположению остановок, вы сможете сэкономить время на поездках и легче планировать свои маршруты. Благоустройство. Закрытый двор комплекса, создает место безопасности и удобства, созданное для семейного отдыха и детских игр. Есть детские карусели и деревянные качели на любой вкус: классические и качели-гамаки. Двор полностью свободен от машин, что гарантирует безопасность и спокойствие для всех его обителей. В 5 минутах от жилищного комплекса 4 школы, ещё 3 — в 10 минутах, в том числе школа №1, построенная в 2019 году по последнему слову техники. Рядом 7 садиков, среди них два премиальных детских сада «Согласие», 15 учреждений дополнительного образования, например, школа программирования «Алгоритмика» и Международная школа скорочтения. В 10 минутах ходьбы — детская поликлиника №11, «Новая больница» и «Детский доктор». В 15 минутах езды горбольницы №41, №40 и центральная городская больница №2, в радиусе 1 км медицинские центры «Бонум», «Шанс», «Панацея», «Хеликс» и «Парацельс». Особенная архитектура. Холл жилого комплекса выполнен в элегантных и минималистичных тонах, где гармонично сочетаются керамогранит и декоративная штукатурка. Системы видеонаблюдения охватывают общие зоны, включая входные группы, подъезды и дворовую территории. Служба мониторинга активно следит за ситуацией и моментально реагирует на любые происшествия, что обеспечивает дополнительный уровень защиты и спокойствия для всех жильцов. В доме предусмотрен подземный одноуровневый паркинг. Отделка. Улучшенная шумоизоляция сохранит в вашей квартире тишину и спокойствие от внешних звуков и соседних помещений. Автоматическая телеметрия позволит забыть о хлопотах по сбору показаний счетчиков для коммунальных платежей. Система отопления с повышенной теплоотдачей обеспечит быстрое и равномерное прогревание помещения, создавая комфортный микроклимат в любое время года. Армированный 5-камерный профиль окон с режимом микропроветривания системы REHAU эффективно удержит тепло и предотвратит потерю энергии. Премиальные и технологичные лифты KOYO обеспечат быструю и бесперебойную работу, что значительно повысит удобство в перемещения внутри комплекса, минимизируя ожидание жителей. Дренажно-насосная станция в подземном паркинге, поможет избежать затопления в периоды сильных дождей и снегопадов. Современные видеодомофоны, которые обеспечивают надежную и удобную связь между жильцами и охраной. Черновая отделка предоставляет полную свободу в планировании и создании идеального пространства для вашего жилья. Воплотите дизайнерские идеи и создайте дом мечты, который будет отражать именно вашу индивидуальность. Готовы показать квартиру в удобное для вас время. Звоните, чтобы задать вопросы и договориться о просмотре! ID объекта в нашей базе: 947
    размещено: 14.11.2025 , обновлено: 5.05.2026

    2-к квартира, Отрадная, 1

    • 53.4 м2
    • 17/25 этаж
    • Состояние:
    7 850 000 ₽ (147000 ₽/м2)
    Прекрасная новая двухкомнатная квартира!Очень хорошее расположение, отличная транспортная развязка, развитая инфраструктура.Покупали за наличные, обременений нет, один собственник. ID объекта в нашей базе: 892
    размещено: 21.08.2025 , обновлено: 17.04.2026

    1-к квартира, Отрадная, 1

    • 42.7 м2
    • 17/26 этаж
    • Состояние:
    6 700 000 ₽ (156900 ₽/м2)
    Квартал "Сюжеты" находится в микрорайоне ВИЗ на пересечении улиц Отрадная и Репина. Торговые центры и супермаркеты; ТРЦ "Радуга Парк" с кинотеатром, детскими парками, кафе и ландшафтным парком для прогулок на свежем воздухе;Салоны красоты; Фитнес-клубы; Отделения банков; Детские сады и школы. Транспортную доступность обеспечивают трамвайные и автобусные остановки, а путь до центра города на автомобиле займет 20 минут. Благоустройство территории ЖК "Сюжеты" включает детские площадки, воркаут-зону, а также беседки для отдыха. Зимой же площадка превращается в каток. Во дворе нет машин, для владельцев личного транспорта предусмотрен подземный паркинг с доступом на лифте. Зоны ожидания; Колясочные; Детские санузлы. Один взрослый собственник. Полная цена в договоре. Быстрый выход на сделку. ID объекта в нашей базе: 822
    размещено: 12.03.2025 , обновлено: 18.04.2026

    1-к квартира, Отрадная, 1

    • 35 м2
    • 26/26 этаж
    • Состояние:
    6 800 000 ₽ (194300 ₽/м2)
    Квартал "Сюжеты" находится в микрорайоне ВИЗ на пересечении улиц Отрадная и Репина. Торговые центры и супермаркеты; ТРЦ "Радуга Парк" с кинотеатром, детскими парками, кафе и ландшафтным парком для прогулок на свежем воздухе;Салоны красоты; Фитнес-клубы; Отделения банков; Детские сады и школы. Транспортную доступность обеспечивают трамвайные и автобусные остановки, а путь до центра города на автомобиле займет 20 минут. Благоустройство территории ЖК "Сюжеты" включает детские площадки, воркаут-зону, а также беседки для отдыха. Зимой же площадка превращается в каток. Во дворе нет машин, для владельцев личного транспорта предусмотрен подземный паркинг с доступом на лифте. Зоны ожидания; Колясочные; Детские санузлы. Один взрослый собственник. Полная цена в договоре. Быстрый выход на сделку. ID объекта в нашей базе: 821
    размещено: 11.03.2025 , обновлено: 12.05.2026

    1-к квартира, Отрадная, 1

    • 43 м2
    • 8/26 этаж
    • Состояние:
    6 700 000 ₽ (155800 ₽/м2)
    Новая квартира, отличное местоположение, хороший вид из окон.Чистая продажа, один собственник, обременений нет! В ДКП полная стоимость! ID объекта в нашей базе: 812
    размещено: 03.03.2025 , обновлено: 4.05.2026

    2-к квартира, Отрадная, 1

    • 53.3 м2
    • 19/26 этаж
    • Состояние:
    7 950 000 ₽ (149200 ₽/м2)
    Новая квартира, отличное местоположение, хороший вид из окон.Чистая продажа, один собственник, обременений нет! В ДКП полная стоимость! ID объекта в нашей базе: 811
    размещено: 03.03.2025 , обновлено: 18.04.2026

    2-к квартира, Отрадная, 1

    • 52.6 м2
    • 24/26 этаж
    • Состояние:
    7 790 000 ₽ (148100 ₽/м2)
    Квартал "Сюжеты" находится в микрорайоне ВИЗ на пересечении улиц Отрадная и Репина. Торговые центры и супермаркеты; ТРЦ "Радуга Парк" с кинотеатром, детскими парками, кафе и ландшафтным парком для прогулок на свежем воздухе;Салоны красоты; Фитнес-клубы; Отделения банков; Детские сады и школы. Транспортную доступность обеспечивают трамвайные и автобусные остановки, а путь до центра города на автомобиле займет 20 минут. Благоустройство территории ЖК "Сюжеты" включает детские площадки, воркаут-зону, а также беседки для отдыха. Зимой же площадка превращается в каток. Во дворе нет машин, для владельцев личного транспорта предусмотрен подземный паркинг с доступом на лифте. Зоны ожидания; Колясочные; Детские санузлы. Один взрослый собственник. Полная цена в договоре. Быстрый выход на сделку. ID объекта в нашей базе: 795
    размещено: 10.02.2025 , обновлено: 1.05.2026

    1-к квартира, Отрадная, 1

    • 43 м2
    • 11/26 этаж
    • Состояние:
    6 700 000 ₽ (155800 ₽/м2)
    Большая новая квартира ЕВРО 2 в ЖК СЮЖЕТЫ отделка под чистовую. Очень классная планировка с большой кухней-гостиной. Рядом ТЦ Радуга-парк, хорошая транспортная развязка. До центра города и до Верх-Исетского пруда 15 минут. Чистая продажа, один собственник, обременений нет, мат капитал не использовался, в ДКП полная стоимость. ID объекта в нашей базе: 783
    размещено: 17.01.2025 , обновлено: 11.05.2026

    1-к квартира, Отрадная, 1

    • 50.6 м2
    • 17/26 этаж
    • Состояние:
    7 250 000 ₽ (143300 ₽/м2)
    Дом сдан, продажа от физлица.Квартира зарегистрирована, чистая продажа, 1 собственник.Полная стоимость в договоре купли продажи.Возможен разумный торг. В шаговой доступности от ЖК находится остановка общественного транспорта «Отрадная». В 900 метрах расположен детский сад №67. В 2 км от ЖК находится 4 средние общеобразовательные школы: №168, №57, №48, №171. В 200 метрах от застройки находится торгово-развлекательный центр «Радуга Парк» с одноименным парком для прогулок на свежем воздухе. В радиусе 200 метров есть супермаркеты «Жизньмарт», также гипермаркет «ОКЕЙ» ЖК «Сюжеты» будет состоять из 5 домов высотой от 25 до 26 этажей. Дома строятся по монолитной технологии, материал стен - монолитно-кирпичные. На первых этажах появятся нежилые коммерческие помещения под магазины и сферу услуг.У жилого комплекса закрытая территория в формате «без машин». Для парковки автомобилей предусмотрен подземный паркинг и открытые общественные стоянки.Квартиры в ЖК «Сюжеты» сдаются с чистовой отделкой «под ключ». Высота потолков - 2,55-2,7 метра.В жилом квартале СЮЖЕТЫ есть всё для воплощения любых жизненных сценариев! Экологически чистый район рядом с ТРЦ «Радуга Парк». Внутри мягкие холлы, удобные дворы с детскими и спортивными площадками, подземный паркинг и современные квартиры, сочетающий классику и новейшие тренды. Рядом ландшафтный парк с прудом, экстрим-парком и колесом обозрения. И все это недалеко от центра и удобных транспортных развязок. ID объекта в нашей базе: 769
    размещено: 09.01.2025 , обновлено: 4.05.2026

    2-к квартира, Отрадная, 1

    • 53.8 м2
    • 26/26 этаж
    • Состояние:
    7 850 000 ₽ (145900 ₽/м2)
    Дом сдан, продажа от физлица.Квартира зарегистрирована, чистая продажа, 1 собственник.Полная стоимость в договоре купли продажи. Возможен разумный торг. В шаговой доступности от ЖК находится остановка общественного транспорта «Отрадная». В 900 метрах расположен детский сад №67. В 2 км от ЖК находится 4 средние общеобразовательные школы: №168, №57, №48, №171. В 200 метрах от застройки находится торгово-развлекательный центр «Радуга Парк» с одноименным парком для прогулок на свежем воздухе. В радиусе 200 метров есть супермаркеты «Жизньмарт», также гипермаркет «ОКЕЙ» ЖК «Сюжеты» будет состоять из 5 домов высотой от 25 до 26 этажей. Дома строятся по монолитной технологии, материал стен - монолитно-кирпичные. На первых этажах появятся нежилые коммерческие помещения под магазины и сферу услуг.У жилого комплекса закрытая территория в формате «без машин». Для парковки автомобилей предусмотрен подземный паркинг и открытые общественные стоянки.Квартиры в ЖК «Сюжеты» сдаются с чистовой отделкой «под ключ». Высота потолков - 2,55-2,7 метра.В жилом квартале СЮЖЕТЫ есть всё для воплощения любых жизненных сценариев! Экологически чистый район рядом с ТРЦ «Радуга Парк». Внутри мягкие холлы, удобные дворы с детскими и спортивными площадками, подземный паркинг и современные квартиры, сочетающий классику и новейшие тренды. Рядом ландшафтный парк с прудом, экстрим-парком и колесом обозрения. И все это недалеко от центра и удобных транспортных развязок. ID объекта в нашей базе: 768
    размещено: 09.01.2025 , обновлено: 6.05.2026

История предложений в этом доме

объявление снято с публикации в продаже комнат площадь этаж цена,
Екатеринбург, ул. Отрадная, 1 (ВИЗ) - фото квартиры 13 мая 2026 90 дн. 2 52.2 8/26 7 900 000
Екатеринбург, ул. Отрадная, 1 (ВИЗ) - фото квартиры 28 апреля 2026 90 дн. 1 43.1 4/25 8 450 000
Екатеринбург, ул. Отрадная, 1 (ВИЗ) - фото квартиры 24 марта 2026 90 дн. 1 21.2 22/26 4 200 000
Екатеринбург, ул. Отрадная, 1 (ВИЗ) - фото квартиры 6 февраля 2026 90 дн. 1 24.2 23/26 5 140 000
Екатеринбург, ул. Отрадная, 1 (ВИЗ) - фото квартиры 14 февраля 2026 90 дн. 2 52 18/26 7 850 000
Екатеринбург, ул. Отрадная, 1 (ВИЗ) - фото квартиры 3 февраля 2026 90 дн. 1 42.7 9/26 6 600 000
Екатеринбург, ул. Отрадная, 1 (ВИЗ) - фото квартиры 10 декабря 2025 90 дн. 1 35.2 19/26 5 700 000
Екатеринбург, ул. Отрадная, 1 (ВИЗ) - фото квартиры 2 февраля 2026 90 дн. 1 24 12/25 5 140 000
Екатеринбург, ул. Отрадная, 1 (ВИЗ) - фото квартиры 14 января 2026 90 дн. 1 35 17/25 5 800 000
Екатеринбург, ул. Отрадная, 1 (ВИЗ) - фото квартиры 9 ноября 2025 90 дн. 1 43 13/26 6 650 000
Екатеринбург, ул. Отрадная, 1 (ВИЗ) - фото квартиры 13 октября 2025 90 дн. 1 22.3 18/25 4 200 000
Екатеринбург, ул. Отрадная, 1 (ВИЗ) - фото квартиры 11 ноября 2025 90 дн. 1 43.2 9/25 9 500 000
Екатеринбург, ул. Отрадная, 1 (ВИЗ) - фото квартиры 26 марта 2026 90 дн. 3 73.9 24/26 11 990 000
Екатеринбург, ул. Отрадная, 1 (ВИЗ) - фото квартиры 27 августа 2025 90 дн. 1 26 19/25 3 890 000
Екатеринбург, ул. Отрадная, 1 (ВИЗ) - фото квартиры 18 ноября 2025 90 дн. 2 53 20/26 6 849 000
Екатеринбург, ул. Отрадная, 1 (ВИЗ) - фото квартиры 22 августа 2025 90 дн. 2 53.4 20/25 7 350 000
Екатеринбург, ул. Отрадная, 1 (ВИЗ) - фото квартиры 9 августа 2025 90 дн. 1 40.6 15/26 5 500 000
Екатеринбург, ул. Отрадная, 1 (ВИЗ) - фото квартиры 10 июля 2025 90 дн. 2 55.6 25/25 7 950 000
Екатеринбург, ул. Отрадная, 1 (ВИЗ) - фото квартиры 5 июля 2025 90 дн. 2 53.8 14/25 6 890 000
Екатеринбург, ул. Отрадная, 1 (ВИЗ) - фото квартиры 30 июня 2025 90 дн. 2 55.3 14/25 6 890 000
Екатеринбург, ул. Отрадная, 1 (ВИЗ) - фото квартиры 19 июня 2025 90 дн. 2 55.3 14/25 6 890 000
Екатеринбург, ул. Отрадная, 1 (ВИЗ) - фото квартиры 1 июля 2025 90 дн. 2 57.1 25/25 7 950 000
Екатеринбург, ул. Отрадная, 1 (ВИЗ) - фото квартиры 28 мая 2025 90 дн. 2 55.3 14/25 6 990 000
Екатеринбург, ул. Отрадная, 1 (ВИЗ) - фото квартиры 27 августа 2025 90 дн. 1 36.8 11/25 5 300 000
Екатеринбург, ул. Отрадная, 1 (ВИЗ) - фото квартиры 7 августа 2025 90 дн. 1 35.5 16/25 5 500 000
Екатеринбург, ул. Отрадная, 1 (ВИЗ) - фото квартиры 30 июля 2025 90 дн. 1 35.3 13/26 5 400 000
Екатеринбург, ул. Отрадная, 1 (ВИЗ) - фото квартиры 1 августа 2025 90 дн. 1 22 15/25 4 180 000
Екатеринбург, ул. Отрадная, 1 (ВИЗ) - фото квартиры 20 мая 2025 90 дн. 2 57.1 25/25 7 950 000
Екатеринбург, ул. Отрадная, 1 (ВИЗ) - фото квартиры 14 мая 2025 90 дн. 2 55.3 14/25 7 690 000
Екатеринбург, ул. Отрадная, 1 (ВИЗ) - фото квартиры 26 декабря 2025 90 дн. 1 39 14/26 6 100 000

Похожие предложения о продаже квартир в Екатеринбурге (ВИЗ)

  • 2-к квартира, Металлургов, 52

    • 47.3 м2
    • 11/16 этаж
    • Состояние: хорошее
    6 300 000 ₽ (133200 ₽/м2)
    Продается 2х комнатная квартира на 11 этаже. Солнечная сторона света. Хорошее состояние. Окна пластиковые, натяжные потолки. Ванная с санузлом в кафеле, стоят счетчики учета, трубы заменены. В квартире остается мебель и бытовая техника. Лифты заменены. Прописанных нет. Готовы рассмотреть обмен на вашу недвижимость, в качестве доплаты возьмем материнский капитал. Ипотека возможна. Быстрый выход на сделку. Звоните. ID объекта в нашей базе: 10206
    размещено: 13.05.2026
  • 2-к квартира, Кирова, 7

    • 50.5 м2
    • 3/5 этаж
    • Состояние: удовлетворительное
    7 400 000 ₽ (146500 ₽/м2)
    Продаётся уютная 2-комнатная квартира в сталинском доме в Верх-Исетском районе!Квартира с удобной планировкой: изолированные комнаты расположены на разные стороны дома, что обеспечивает комфорт и хорошее естественное освещение. Высокие потолки создают ощущение простора и уюта.Преимущества квартиры: — сталинка с хорошей шумоизоляцией;— 2 изолированные комнаты;— высокие потолки; — 1 взрослый собственник более 4 лет; — без обременений;— никто не прописан; — быстрый выход на сделку.Отличное расположение: — рядом школа №1;— детские сады;— остановки трамвая и автобусов;— до центра города всего 10 минут; — Верх-Исетское водохранилище — в 15 минутах пешком.Квартира отлично подойдёт как для собственного проживания, так и для инвестиций.Звоните и записывайтесь на просмотр! ID объекта в нашей базе: 15748
    размещено: 13.05.2026
  • 2-к квартира, Металлургов, 50

    • 47.4 м2
    • 4/16 этаж
    • Состояние: хорошее
    6 800 000 ₽ (143500 ₽/м2)
    Квартира, в которую хочется возвращаться. Светлая, тёплая и очень уютная квартира площадью 47,4 м² с качественным ремонтом и атмосферным интерьером. Южная сторона обеспечивает много солнца и естественного света круглый год. Утеплённая лоджия станет идеальным местом для кабинета, работы из дома или утреннего отдыха с чашкой кофе. Квартира ухоженная, аккуратная и полностью готова для комфортного проживания новых владельцев.Квартира готова к продаже. Один собственник.Звоните, пишите, покажу Вам квартиру по договоренности. Также для наших клиентов предоставляется полное юридическое сопровождение и одобрение ипотеки. Все обсуждается индивидуально. ID объекта в нашей базе: 15741
    размещено: 13.05.2026
  • 2-к квартира, Токарей, 50/3

    • 43 м2
    • 1/5 этаж
    • Состояние: плохое
    5 300 000 ₽ (123300 ₽/м2)
    Объект № 199193. Недорого продается двухкомнатная квартира в центре ВИЗа. Требуется косметический ремонт. Стояки поменяны. Установлены ПУ водоснабжения. Есть кухонный гарнитур. Квартира освобождена. Чистая продажа. Важно: прописка дает возможность получать бесплатные медицинские услуги в ГБ № 33. Рядом школа 74 и детский сад 143. ***Гарантийный сертификат «Защита собственности» по данному объекту в подарок***
    размещено: 12.05.2026 , обновлено: 13.05.2026
  • 2-к квартира, Крауля, 50

    • 40.9 м2
    • 2/5 этаж
    • Состояние: плохое
    5 500 000 ₽ (134500 ₽/м2)
    Продается 2к квартира в кирпичном доме и отличной локации! ВИЗ - это район с готовой ИНФРАСТРУКТУРОЙ, все в шаговой доступности, 15 минут пешком до стадиона Екатеринбург-Арена и 20 минут до центра города. Остановка общественного транспорта (автобусы и троллейбусы во все направления города), трамвайная - с ул. Татищева (7 минут).В соседнем дворе школа №74 и детский сад, поблизости Медицинский университет, Институт связи, Радиоколледж. Рядом поликлиника, супермаркеты Кировский, Магнит, Монетка, Пятерочка, аптеки, пункт выдачи Озон прямо в доме. Зеленый ДВОР с детской площадкой. ДОМ кирпичный, с отличной звуко - и теплоизоляцией, чистый подъезд. КВАРТИРА на идеальном 2 этаже. Очень теплая, даже с деревянными окнами зимой тепло. Окна выходят во двор, поэтому здесь вам будет тихо. Квартира под ремонт, не несущие стены внутри позволят реализовать любые идеи. Фишка здесь в двух кладовых (в каждой комнате своя), из них можно сделать полноценные гардеробные или увеличить комнаты.Поменян счетчик на э/энергию. Идеальна для тех: -кто хочет сделать ремонт "под себя"-кто ценит места для хранения в "малогабаритке"-инвесторов (цена существенно вырастет после ремонта) Быстрый выход на сделку! Звоните! ID объекта в нашей базе: 15714
    размещено: 12.05.2026

    2-к квартира, Красноуральская, 6

    • 43 м2
    • 1/5 этаж
    • Состояние: хорошее
    5 500 000 ₽ (127900 ₽/м2)
    Объект № 199166. Продаётся уютная двухкомнатная квартира 43,4 м² в кирпичном доме (ВИЗ) Екатеринбург, микрорайон ВИЗ. Светлая, тёплая и очень уютная квартира после качественного ремонта. Полностью заменена электропроводка, утеплены полы, сделана и зарегистрирована перепланировка — всё для максимально комфортного проживания. Санузел отделан кафелем. Окна с широкими подоконниками выходят в тихий зелёный двор. Окружающая территория спокойная и тихая. Удачное расположение дома — всего в 3 км от площади 1905 года, поэтому легко добраться до любой точки Екатеринбурга пешком или на транспорте. Рядом трамвайное кольцо, троллейбусы и автобусы разных направлений. В радиусе 5 минут: спортивный комплекс, детские сады, школы, взрослые и детские поликлиники и больницы, множество магазинов. А за 15 минут пешком можно прогуляться до пляжа Верх-Исетского пруда. Без обременений. Один собственник. Готова к сделке. ***Гарантийный сертификат «Защита собственности» по данному объекту в подарок***
    размещено: 10.05.2026 , обновлено: 13.05.2026

    2-к квартира, Крауля, 85

    • 37.5 м2
    • 7/9 этаж
    • Состояние: идеальное
    5 999 000 ₽ (160000 ₽/м2)
    Предлагается к продаже прекрасная двухкомнатная квартира в престижном Верх-Исетском районе города.Квартира с новым современным ремонтом – заезжай и живи! Везде новые пластиковые окна. Застекленная лоджия, на которой можно сделать место для комфортного отдыха. Комнаты правильной формы, удобные для расстановки мебели. Из окон седьмого этажа открывается красивый вид на город. В санузле так же сделан качественный ремонт, поменяны стояки и вся разводка. Хорошая управляющая компания, низкие коммунальные платежи, тихие, приличные соседи.Квартира расположена в развитом районе Екатеринбурга. Внутри района очень хорошее расположение дома. Удобная транспортная развязка, выезды в любую точку города. В 5 минутах остановка общественного транспорта. В самом доме и поблизости имеются различные магазины, аптеки, салоны красоты, пункты выдачи маркетплейсов и прочая необходимая инфраструктура. В шаговой доступности муниципальные и частные детские садики, общеобразовательные школы, а также МО "Новая больница".Квартира без обременений и ограничений. Один взрослый собственник без финансовых и иных проблем. Понравился наш вариант, а на покупку не хватает средств? Мы согласуем ипотеку дешевле, чем в банке. У Вас обмен и своя недвижимость еще не продана? Предложите ее нам, возможно, мы сможем ее выкупить, поменять на нашу квартиру или поможем быстро продать Вашу! ID объекта в нашей базе: 6760
    размещено: 05.05.2026 , обновлено: 12.05.2026

    2-к квартира, Татищева, 177

    • 53 м2
    • 13/22 этаж
    • Состояние: удовлетворительное
    7 990 000 ₽ (150800 ₽/м2)
    Объект № 198963. Продаётся евродвушка площадью 53 кв. м в ЖК «Здоровье» (микрорайон ВИЗ). Дом построен в 2019 году, отличается современной архитектурой и надёжностью материалов. Квартира светлая, уютная, с удобной планировкой и прекрасным видом на закат и Верх-Исетский пруд. Застройки между домом и прудом в будущем не предусмотрено. Внутри — просторная прихожая, вместительная кладовая, кухня-гостиная с выходом на лоджию (откуда открывается живописный вид) и отдельная спальня. Живописное окружение дарит спокойную и размеренную жизнь: близость зелёных зон и тихих улиц идеально подходит для прогулок и активного отдыха. Территория ЖК закрытая, с видеонаблюдением и круглосуточным консьержем — это обеспечивает дополнительную безопасность и порядок. В перспективе — обустройство большой парковой зоны вдоль пруда и расширение дороги по улице Татищева (работы уже ведутся) с выездом на Московский тракт. Без обременений, один собственник. ***Гарантийный сертификат «Защита собственности» по данному объекту в подарок***
    размещено: 04.05.2026 , обновлено: 12.05.2026

    2-к квартира, Токарей, 62

    • 49.9 м2
    • 2/12 этаж
    7 700 000 ₽ (154300 ₽/м2)
    ПРОДАЕТСЯ полноценная, теплая и очень уютная двухкомнатная квартира с капитальным ремонтом - заменены двери, окна пластиковые, лоджия застекленена, полы выровнены, в комнатах ламинат, на кухне и в коридоре плитка, натяжные потолки, стены выровнены гипсокартоном, замененае вся сантехника, остаётся мебель и бытовая техника. Квартира теплая, рядом магазины, почта, ЦГБ-33, 41, Сбербанк, д. сады, школы, гимназия Менталитет, рядом остановки автобусов, троллейбусов, трамваев. Во дворе есть места для парковки машин, всегда свободно. Дом обслуживается в 33 больнице. Из основных ПРЕИМУЩЕСТВ дома и района: - максимально удобное расположение дома в центре ВИЗа позволит Вам за минимальное количество времени добраться до центра. Общественный транспорт на расстоянии 50 м от подъезда; - прекрасно развитая инфраструктура района (до ТЦ МЕГА/ТЦ Радуга Парк на автобусе 15-20 мин, на автомобиле с учётом новых развязок всего 7-10 мин. В шаговой доступности многочисленные продуктовые и продовольственные магазины, детские сады, школы). Ипотека возможна, поможем согласовать низкую ставку по ипотеке на эту квартиру. Звоните, покажем в любое удобное для Вас время. Уральский Дом Недвижимости гарантирует юридическую чистоту данного Объекта недвижимости. РЕАЛЬНЫМ ПОКУПАТЕЛЯМ НЕБОЛЬШОЙ ТОРГ! Приезжайте на просмотр!
    размещено: 11.03.2026 , обновлено: 11.05.2026

    2-к квартира, Крауля, 72

    • 43.3 м2
    • 1/5 этаж
    • Состояние: хорошее
    5 200 000 ₽ (120100 ₽/м2)
    Содержательно о продаваемой 2-комн. квартире: - ремонт косметический, окна пластиковые, в ванной кафель, полы теплые в зонах с плиточным покрытием, базовая мебель и техника присутствует; - увеличенный сан. узел за счет перепланировки, документально узаконенной, направленность окон на пешеходную аллею с малым трафиком; - двор просторный, ухоженный, обеспеченный несколькими площадками для активного времени препровождения (футбол, баскетбол, воркаут-станция, качели), а также парковочными карманами д/авто; - расположение в 15 мин транспортом от центра города (в т.ч. до станции метро Площадь 1905 года) и в 10 мин пешком от Верх-Исетского спортивного центра с бассейном, набережной городского пруда и пляжа: - в непосредственной близости (без перехода дорог) 2 садика и школа, в радиусе 300 м детская и взрослая поликлиники (в частности по прописке дом относится к Новой больнице на Заводской, 33); - квартира освобождена и готова к передаче; - выход на сделку оперативный, ипотека возможна, обременения отсутствуют; - 1 взрослый собственник, полная стоимость в договоре-купли продажи; - показ в любой день, время по договоренности. Вы можете получить более развёрнутое представление об объекте, посмотрев видео в объявлении, а также записавшись на персональную встречу. ID объекта в нашей базе: 15508
    размещено: 02.05.2026 , обновлено: 12.05.2026

    2-к квартира, Гурзуфская, 17

    • 44.5 м2
    • 2/5 этаж
    5 500 000 ₽ (123600 ₽/м2)
    Продaетcя уютная двухкомнатная квартира с балконом в кирпичном доме 1961 года постройки. Комнаты смежные, что позволяет эффективно использовать пространство. Из окон открывается вид на улицу, обеспечивая хорошую освещённость. Квартира требует ремонта, но это даёт возможность создать интерьер по своему вкусу. В квартире есть газоснабжение. Совмещённый санузел оборудован современной душевой кабиной. Установлены счётчики. Во дворе обустроена детская площадка, а также имеется открытая парковка для автомобилей. Дом расположен в районе с развитой инфраструктурой, рядом находятся магазины и остановки общественного транспорта. Буквально во дворе дома находится детский сад. Школа в 10 минутах внутри дворов, что делает безопасным движение детей, нет необходимости переходить дорогу.
    размещено: 29.04.2026 , обновлено: 12.05.2026

    2-к квартира, Отрадная, 1

    • 51.4 м2
    • 24/26 этаж
    • Состояние: удовлетворительное
    7 700 000 ₽ (149800 ₽/м2)
    Жилой комплекс «ТАКТИКА» расположен в границах улиц Татищева, Викулова и Венгерских Коммунаров, адрес Викулова, 24, вблизи Акватории пруда Верх-Исетского района. Квартира имеет 2-е изолированные комнаты и большую кухню-столовую. Дом повышенного комфорта предлагает: современный и безопасный двор, ландшафтный дизайн, пространство для отдыха. Максимальное удобство и доступность городской инфраструктуры, остановки общественного транспорта, трамвайная линия. Благодаря удобному расположению остановок, вы сможете сэкономить время на поездках и легче планировать свои маршруты. Благоустройство. Закрытый двор комплекса, создает место безопасности и удобства, созданное для семейного отдыха и детских игр. Есть детские карусели и деревянные качели на любой вкус: классические и качели-гамаки. Двор полностью свободен от машин, что гарантирует безопасность и спокойствие для всех его обителей. В 5 минутах от жилищного комплекса 4 школы, ещё 3 — в 10 минутах, в том числе школа №1, построенная в 2019 году по последнему слову техники. Рядом 7 садиков, среди них два премиальных детских сада «Согласие», 15 учреждений дополнительного образования, например, школа программирования «Алгоритмика» и Международная школа скорочтения. В 10 минутах ходьбы — детская поликлиника №11, «Новая больница» и «Детский доктор». В 15 минутах езды горбольницы №41, №40 и центральная городская больница №2, в радиусе 1 км медицинские центры «Бонум», «Шанс», «Панацея», «Хеликс» и «Парацельс». Особенная архитектура. Холл жилого комплекса выполнен в элегантных и минималистичных тонах, где гармонично сочетаются керамогранит и декоративная штукатурка. Системы видеонаблюдения охватывают общие зоны, включая входные группы, подъезды и дворовую территории. Служба мониторинга активно следит за ситуацией и моментально реагирует на любые происшествия, что обеспечивает дополнительный уровень защиты и спокойствия для всех жильцов. В доме предусмотрен подземный одноуровневый паркинг. Отделка. Улучшенная шумоизоляция сохранит в вашей квартире тишину и спокойствие от внешних звуков и соседних помещений. Автоматическая телеметрия позволит забыть о хлопотах по сбору показаний счетчиков для коммунальных платежей. Система отопления с повышенной теплоотдачей обеспечит быстрое и равномерное прогревание помещения, создавая комфортный микроклимат в любое время года. Армированный 5-камерный профиль окон с режимом микропроветривания системы REHAU эффективно удержит тепло и предотвратит потерю энергии. Премиальные и технологичные лифты KOYO обеспечат быструю и бесперебойную работу, что значительно повысит удобство в перемещения внутри комплекса, минимизируя ожидание жителей. Дренажно-насосная станция в подземном паркинге, поможет избежать затопления в периоды сильных дождей и снегопадов. Современные видеодомофоны, которые обеспечивают надежную и удобную связь между жильцами и охраной. Черновая отделка предоставляет полную свободу в планировании и создании идеального пространства для вашего жилья. Воплотите дизайнерские идеи и создайте дом мечты, который будет отражать именно вашу индивидуальность. Готовы показать квартиру в удобное для вас время. Звоните, чтобы задать вопросы и договориться о просмотре! ID объекта в нашей базе: 1049
    размещено: 28.04.2026 , обновлено: 14.05.2026

    2-к квартира, Татищева, 58

    • 50.7 м2
    • 7/10 этаж
    • Состояние: хорошее
    8 500 000 ₽ (167700 ₽/м2)
    Продам светлую и просторную 2комнатную квартиру!Солнечная сторона, большая лоджия, большие комнаты: 12,5 и 18,5 метров.Ванная комната - кафель.Кухонный гарнитур и техника остается новым хозяевам.Просто огромный закрытый двор с развлечениями для детей всех возрастов!Новый дом 2010 года постройки, до центра 10 минут пешком.Рядом все возможные магазины, ПВЗ, лучшие школы и садики района.До Верх-Исетского пруда так же 10 минут.Долгов, обременений нет.Взрослые собственники.Документы готовы к сделке.Звоните, записывайтесь на просмотр! ID объекта в нашей базе: 15307
    размещено: 22.04.2026 , обновлено: 12.05.2026

    2-к квартира, Викулова, 43К3

    • 49 м2
    • 5/12 этаж
    • Состояние: хорошее
    6 800 000 ₽ (138800 ₽/м2)
    Продаётся светлая и уютная двухкомнатная квартира с изолированными комнатами в кирпичном доме. Квартира в хорошем состоянии — выполнена серьёзная подготовка под комфортное проживание: выровнены все стены, полностью переделан и залит пол по всей квартире (без скрипов), заменены окна и радиаторы отопления. Это существенно экономит ваши будущие расходы и избавляет от лишних хлопот. Кухня требует лёгкого косметического ремонта — отличная возможность оформить её по своему вкусу. Большая застеклённая и обшитая лоджия станет дополнительным функциональным пространством — для отдыха, работы или хранения. Дом расположен в удобном районе с развитой инфраструктурой и близостью к центру города. В шаговой доступности: гимназия «Менталитет», детские сады, музыкальная школа, магазины и всё необходимое для комфортной жизни. Идеальный вариант для семьи или выгодной инвестиции. ID объекта в нашей базе: 15268
    размещено: 21.04.2026 , обновлено: 13.05.2026

    2-к квартира, Крауля, 87/2

    • 43.5 м2
    • 5/5 этаж
    • Состояние: хорошее
    5 350 000 ₽ (123000 ₽/м2)
    Продаётся теплая двухкомнатная квартира во дворе, распашонка, свой балкон, чистая, 1 собственник. Локация – Крауля, 87/2Рядом с центром города.Всё необходимое в шаговой доступности:— ТРЦ «Мега», «Радуга Парк»— Дворец спорта— Школы, детские сады, больницы— Остановки общественного транспорта Дом находится во дворе – нет сквозного транзита машин.Окна выходят обеими сторонами во двор – тихо и зелено. О квартире:— Планировка «распашонка» (комнаты по разные стороны)– можно проветривать обе и не мешать друг другу— Площади: кухня – 6,5 м², зал – 15,6 м², спальня – 10,6 м²— Санузел раздельный— Балкон застеклённый— Косметический ремонт, квартира чистенькая – можно заезжать и жить Дом и этаж:— 5 этаж из 5— Свободные парковочные места во дворе Документы и сделка:— 1 собственник (совершеннолетний)— Никто не прописан— Готовы выйти на сделку быстро Звоните, пишите – покажу в удобное время. ID объекта в нашей базе: 15255
    размещено: 20.04.2026 , обновлено: 3.05.2026

    2-к квартира, Викулова, 28

    • 43.2 м2
    • 2/5 этаж
    • Состояние: удовлетворительное
    4 900 000 ₽ (113400 ₽/м2)
    ID объекта в нашей базе: 12529
    размещено: 20.04.2026 , обновлено: 14.05.2026

    2-к квартира, Викулова, 46

    • 43.4 м2
    • 5/9 этаж
    • Состояние: идеальное
    6 100 000 ₽ (140600 ₽/м2)
    Продаётся 2-комнатная квартира | 43,4 м2;ул. Викулова, 46 | ВИЗ (самый центр района) ✨ Светлая и уютная с удачной планировкой: Комнаты раздельные 5 этаж (комфортный — не первый и не последний) Отличное состояние Пластиковые окна в комнатах Балкон застеклён В ванной тёплый пол Квартира просторная и очень светлая Коммунальные платежи небольшие ???? Локация Преимущества расположения: до общественного транспорта — 5 минут пешком до центра города — около 10 минут на машине самый центр ВИЗа ???? Инфраструктура рядом Всё необходимое для комфортной жизни в шаговой доступности:школы, детские сады, поликлиники, магазины и сервисы. Также рядом находятся крупные торговые центры:"МЕГА" и "Радуга Парк" ???? Кому подойдет? Идеально для семейной жизни и для сдачи в аренду — район востребованный, с удобной транспортной доступностью и развитой инфраструктурой. ???? Звоните — организуем просмотр в удобное для вас время. ID объекта в нашей базе: 12525
    размещено: 18.04.2026 , обновлено: 11.05.2026

    2-к квартира, Крауля, 194

    • 53.7 м2
    • 2/27 этаж
    • Состояние: удовлетворительное
    7 850 000 ₽ (146200 ₽/м2)
    В продаже ЕвроТрешка в ЖК "Риверсайд" от надежного застройщика Унистрой!!!!Комплекс расположен в Екатеринбурге, ограничен улицами Крауля — Танкистов — Татищева и имеет удобную дорожно-транспортную развязку, обеспечивающую связь со всеми районами города. ХАРАКТЕРИСТИКИ ВАШЕЙ БУДУЩЕЙ КВАРТИРЫ: - две изолированные комнаты 11,5 м2 и 10,5 м2, кухня гостиная 18,3 м2, вместительная ванная 4,8 м2; - квартира под ремонт, а это прекрасная возможность воплотить свои дизайнерские задумки и сделать квартиру под себя; - консьерж-служба, видеонаблюдение, своя управляющая компания (невысокие коммунальные платежи), в подземный паркинг можно спуститься на лифте; - двор с ландшафтным дизайном, детская, спортивная площадка; ИНФРАСТРУКТУРА РАЙОНА: в 100 метрах от ЖК находится остановка общественного транспорта «База ОМОН», в 1-1,2 км расположены муниципальные детские сады №189, №532, №13, в 1 км от новостроек находятся средняя общеобразовательная школа №48 и №171, чуть подальше (на 300 метров) — средняя общеобразовательная школа №63 с углубленным изучением отдельных предметов, в 800 метрах от жилого комплекса можно подышать свежим воздухом в Московском лесопарке, в 2 км от застройки находится крупный торгово-развлекательный центр «МЕГА», гипермаркет мебели и товаров для дома и продуктовый гипермаркет «АШАН», в 600 метрах от квартала есть супермаркет «Пятерочка». Звоните! Не откладывайте свой звонок на завтра, ведь завтра ее может купить уже кто-то другой!РАДЫ ПОМОЧЬ РЕШИТЬ ЛЮБОЙ ВОПРОС С НЕДВИЖИМОСТЬЮ!!! ID объекта в нашей базе: 12508
    размещено: 14.04.2026 , обновлено: 9.05.2026

    2-к квартира, Крауля, 81

    • 37 м2
    • 4/9 этаж
    • Состояние: хорошее
    5 690 000 ₽ (153800 ₽/м2)
    Продам хорошую, уютную квартиру. В шаговой доступности есть все для комфортного проживания: магазины, торговые центры, школьные и дошкольные учреждения. Хорошая транспортная развязка, близость к центру города. большое количество общественного транспорта. ID объекта в нашей базе: 2229
    размещено: 07.04.2026 , обновлено: 9.05.2026

    2-к квартира, Металлургов, 10А

    • 43.1 м2
    • 5/9 этаж
    • Состояние: хорошее
    5 300 000 ₽ (123000 ₽/м2)
    Продажа двухкомнатной квартиры в центе района Виза! Предлагаем к покупке светлую двухкомнатную квартиру, расположенную в одном из самых востребованных районов города — Виза. Это идеальное место для комфортной семейной жизни, где всё необходимое находится в шаговой доступности. Локация и инфраструктура - Образование: Поблизости расположены детские сады, а также школы №121, №74 и гимназия №202, что делает район привлекательным для семей с детьми. - Медицина: в пяти минутах ходьбы Новая больница, а также частные медицинские центры и аптеки. - Транспортная доступность: Отличная развитость общественного транспорта позволяет добраться до любого района города, а до центра всего за 15 минут. - Благоустройство: У дома предусмотрена наземная парковка, большой зелёный двор создаёт приятную атмосферу для отдыха и прогулок. - Досуг: В шаговой доступности расположена Екатеринбург Арена (крупнейшее спортивное сооружение на Урале), Верх-Исетское водохранилище, БЦ «Алатырь» и Дворец Молодежи. Характеристики квартиры В квартире две изолированные комнаты. Одна из комнат просторная — 20 м², с выходом на застеклённую лоджию. Во всей квартире поменяны стеклопакеты. Квартира принадлежит одному взрослому собственнику не имеющего долгов по коммунальным услугам и исполнительных производств. Свяжитесь с нами Не упустите шанс стать владельцем прекрасной квартиры в отличном районе! Звоните, чтобы договориться о просмотре и получить ответы на все интересующие вас вопросы. При необходимости окажем содействие в оформлении ипотечного кредитования. ID объекта в нашей базе: 9959
    размещено: 02.04.2026 , обновлено: 8.05.2026

Новостройки Екатеринбург, мкр-н. ВИЗ

Приоритет

Увеличивает просмотры в 3 раза

Ваше объявление показывается в списке выше обычных объявлений. подключить