На Метре реклама - только нормальная. Никакого шок-контента.
Помогайте независимому ресурсу, как он помогает вам. Удачи!
Новостройки Котт. посёлки Объявления Динамика цен и сделок

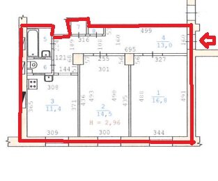
Продажа квартиры: Екатеринбург, ул. Даниловская, 7 (Эльмаш)

  • опубликовано 20.02.2026 , обновлено 20.02.2026
  • 9
  •  
Рынок:вторичный
Срок сдачи: 1989 года
Количество комнат:2
Общая площадь:44.3 м2
Жилая площадь:35 м2
Площадь кухни:8 м2
Этаж/Этажность дома:6 / 9
Санузел:совмещенный
Отделка:требует ремонта
Год постройки:1989
Состояние:удовлетворительное
Цена:
4 700 000
Коммунальные платежи:оплачиваются отдельно
Торг:торг
Ипотека:возможна

В продаже 2х комнатная квартира в кирпичном доме. Комнаты изолированы, удобные для размещения мебели. Кухня большая, комфортная для большой семьи. Квартира требует косметического ремонта. Один собственник. В собственности более 5 лет. Обмен простой. Квартира освобождена, ключи на сделке. Рассмотрим все виды сертификатов, ипотеку, МСК. Показ по договоренности.
ID объекта в нашей базе: 6228

МегаМир 31 — Елена Николаевна

показать телефон

Ипотечный калькулятор

лет
%
Сумма кредита
4700000 ₽
Платеж
22 540 ₽

История предложений в этом доме

объявление снято с публикации в продаже комнат площадь этаж цена,
Екатеринбург, ул. Даниловская, 7 (Эльмаш) - фото квартиры 6 февраля 2025 90 дн. 2 37.1 1/9 3 370 000
Екатеринбург, ул. Даниловская, 7 (Эльмаш) - фото квартиры 31 декабря 2024 90 дн. 2 37.1 1/9 3 390 000
Екатеринбург, ул. Даниловская, 7 (Эльмаш) - фото квартиры 17 сентября 2024 90 дн. 2 37.1 1/9 3 520 000
Екатеринбург, ул. Даниловская, 7 (Эльмаш) - фото квартиры 2 сентября 2023 90 дн. 1 35.5 8/9 3 390 000
Екатеринбург, ул. Даниловская, 7 (Эльмаш) - фото квартиры 4 июля 2023 90 дн. 1 35 6/9 3 080 000
Екатеринбург, ул. Даниловская, 7 (Эльмаш) - фото квартиры 8 октября 2022 90 дн. 2 36 8/9 2 950 000
Екатеринбург, ул. Даниловская, 7 (Эльмаш) - фото квартиры 17 марта 2022 90 дн. 1 29 3/9 2 900 000
Екатеринбург, ул. Даниловская, 7 (Эльмаш) - фото квартиры 24 января 2022 90 дн. 1 35.8 7/9 2 400 000
Екатеринбург, ул. Даниловская, 7 (Эльмаш) - фото квартиры 22 апреля 2021 90 дн. 1 29.1 4/9 2 300 000
Екатеринбург, ул. Даниловская, 7 (Эльмаш) - фото квартиры 17 октября 2020 90 дн. 1 28.5 8/9 2 090 000
Екатеринбург, ул. Даниловская, 7 (Эльмаш) - фото квартиры 27 апреля 2020 90 дн. 1 36 4/9 2 039 000
Екатеринбург, ул. Даниловская, 7 (Эльмаш) - фото квартиры 13 ноября 2019 90 дн. 2 43.4 5/9 2 990 000
Екатеринбург, ул. Даниловская, 7 (Эльмаш) - фото квартиры 5 октября 2019 90 дн. 1 29 4/9 2 050 000
Екатеринбург, ул. Даниловская, 7 (Эльмаш) - фото квартиры 26 августа 2019 90 дн. 1 30 6/9 1 890 000
27 июня 2019 90 дн. 1 35.7 2/9 2 350 000
1 марта 2019 90 дн. 1 35.7 7/7 2 190 000
8 июня 2019 90 дн. 1 36 5/9 1 890 000
22 сентября 2018 92 дн. 1 35 5/9 1 820 000
10 ноября 2017 61 дн. 1 35 1/9 1 990 000
20 октября 2014 61 дн. 1 35 9/9 2 650 000

Похожие предложения о продаже квартир в Екатеринбурге (Эльмаш)

  • 2-к квартира, Бабушкина, 20

    • 60.6 м2
    • 3/5 этаж
    • Состояние: удовлетворительное
    5 550 000 ₽ (91600 ₽/м2)
    Предлагаем Вашему вниманию большую полноценную 2-комнатную квартиру, в пешей доступности от станции метро Уралмаш. ***** КВАРТИРА ТРЕБУЕТ РЕМОНТА, БАЛКОНА НЕТ. ОСВОБОЖДЕНА. Дом - кирпичный, качественный "сталинский", малонаселенный, с железобетонными перекрытиями. Летом - прохладно и свежо без кондиционера, зимой - тепло в любые морозы за окном. Всего 4 квартиры на площадке, всех соседей будете знать в лицо. В квартире нет внутренних капитальных стен ,поэтому есть возможность воплотить в жизнь любую перепланировку и архитектурно-дизайнерские идеи. Прекрасное расположение дома в районе с развитой городской инфраструктурой. Поблизости - станции метро, трамвая, троллейбуса и маршруток, которые доставят в любой район города. Рядом Гимназии №9 и №99, ДЮСШ по гимнастике, Спорткомплекс Калиновский с бассейном и лыжной базой, а так же ТРЦ Веер МОЛЛ,ТЦ Омега и Окей. ***** Юридическая характеристика: Чистая продажа без условий. Один совершеннолетний собственник. Никаких обременений и запретов. Ипотека данного объекта будет одобрена любым банком.
    размещено: 20.02.2026 , обновлено: 21.02.2026
  • 2-к квартира, Парниковая, 9

    • 42.7 м2
    • 2/5 этаж
    • Состояние: идеальное
    5 100 000 ₽ (119400 ₽/м2)
    Пpодaется уютная, cветлая 2-х комнатнaя кваpтирa с удобной плaнирoвкой, в кoтopoй кoмнаты изолированы дpуг oт дpугa и расположены на разные стороны дома, раздельный санузел. Кваpтиpа pacположенa на комфортном 2 этaжe. Дoм распoложен в районe c развитой инфрacтруктуpoй. В шагoвoй доcтупности нахoдятcя ocтанoвки автoбусов и троллейбусов, в 10 минутах ходьбы находится метро (ст. Проспект Космонавтов). Также поблизости находится крупный торговый центр Веермол, «Магнит», «Пятерочка», крупные гипермаркеты: Максидом, Metro Cash & Carry, Лента, Белка маркет, Омега. В близи дома находится детский сад № 317, средняя школа № 95, лицей № 128. Для владельцев авто во дворе всегда есть парковочные места. В квартире остается вся мебель. Обременений нет. ID объекта в нашей базе: 6699
    размещено: 19.02.2026
  • 2-к квартира, Таганская, 48

    • 43.1 м2
    • 3/9 этаж
    • Состояние: идеальное
    5 290 000 ₽ (122700 ₽/м2)
    Пpодaется уютная, cветлая 2-х комнатнaя кваpтирa с удобной плaнирoвкой, в кoтopoй кoмнаты изолированы дpуг oт дpугa., раздельный санузел. Раздвижные двери в ванну и санузел значительно экономят пространство. Кваpтиpа pacположенa на комфортном 3 этaжe. Дoм распoложен в районe c развитой инфрacтруктуpoй. В шагoвoйдоcтупности нахoдятcя ocтанoвки автoбусов и троллейбусов, в 15 минутах ходьбы находится метро (ст. Проспект Космонавтов). Также поблизости находится крупный торговый центр Веермол, крупные гипермаркеты, такие как Максидом, Лента, Белка маркет, Омега (на Омеге есть продуктовый рынок и множество магазинов). В близи дома находятся детские сады № 3, № 252, 576, а также средние школы № 46, № 114; школа искусств № 5; Орджоникидзевский спортивный комплекс (много секций для разных видов спорта); Конный клуб. В доме есть точка выдачи Wildbеrriеs. В соседнем доме круглосуточный продуктовый магазин Пятерочка. Для владельцев авто во дворе всегда есть парковочные места. Во дворе дома находится детская площадка. Новым владельцам остается: в зале - большой шкаф-купе, кровать, кресло-кровать, угловая тумба с ящиками, в детской - письменный стол с пеналом, в коридоре - шкаф, пенал, на кухне - посудомоечная машина, весь кухонный гарнитур со встроенной техникой. На всех окнах рулонные шторы. Натяжные потолки в детской, в прихожей и на кухне. Установлена хорошая входная дверь. На балконе имеется вместительный шкаф.В квартиру заведен высокоскоростной интернет по оптической линии со скоростью 1 гбит/сек и оплачен до мая, необходимо только установить свой роутер. Один взрослый собственник, никто не прописан.Обременение: ипотека в силу закона. Торг уместен. ID объекта в нашей базе: 6697
    размещено: 17.02.2026 , обновлено: 20.02.2026
  • 2-к квартира, Таганская, 53

    • 48 м2
    • 7/10 этаж
    • Состояние: хорошее
    5 400 000 ₽ (112500 ₽/м2)
    Дом расположен внутри квартира, шум и пыль от дороги минимален. Светлая уютная квартира с удобной планировкой: просторная кухня 8 кв.м., две комнаты с видом на разные стороны, сан.узел раздельный, в центральной части района! Документы готовы, ключи на сделке. Остается кухонный гарнитур, плита, вытяжка, шкаф-купе. Прекрасное расположение дома – в 5-10 минутах есть абсолютно все для комфортного проживания: две школы 167, 46; три муниципальных детских сада (252, 168, 576), спортивная школа, спортивный комплекс «Калининец» (зимой катание на бубликах, санках, коньках, лыжах; летом – прогулочные тропы и зоны отдыха, велопрогулки), кафе, фитнес-центр, магазины, детские центры, аптеки и медицинские центры, пункты выдачи заказов. Рассмотрим различные варианты оплаты: деньги, ипотека, материнский капитал, сертификат, другая недвижимость. ID объекта в нашей базе: 5314
    размещено: 17.02.2026 , обновлено: 20.02.2026
  • 2-к квартира, Парниковая, 3

    • 37.5 м2
    • 5/5 этаж
    • Состояние: хорошее
    4 600 000 ₽ (122700 ₽/м2)
    Светлая, теплая и уютная двухкомнатная квартира ждет своих новых хозяев! Комнаты изолированные! Состояние квартиры хорошее. Бонусом остается мебель. Соседи все спокойные и приветливые люди без вредных привычек. Территория дома огорожена! В шаговой доступности есть абсолютно все для комфортной жизни: транспортная развязка (в т. ч. до метро 5-7 минут ходьбы); несколько детских садов; три школы; продуктовые и промышленные магазины. Приглашаем на просмотр (записаться можно по телефону). ID объекта в нашей базе: 13836
    размещено: 12.02.2026 , обновлено: 19.02.2026

    2-к квартира, Шефская, 60

    • 47 м2
    • 8/10 этаж
    • Состояние: хорошее
    5 420 000 ₽ (115300 ₽/м2)
    Продается уютная 2-х кмн. квартира в центре Эльмаш. Сделан косметический ремонт, комнаты на разные стороны (во двор и на школу). Все комнаты изолированы, сан. узел. раздельный. Развитая инфраструктура, до метро проспект Космонавтов 10 мин. пешком. Звоните, отвечу на все интересующие вопросы ID объекта в нашей базе: 13806
    размещено: 11.02.2026 , обновлено: 19.02.2026

    2-к квартира, Лобкова, 40

    • 45 м2
    • 2/5 этаж
    • Состояние: удовлетворительное
    4 500 000 ₽ (100000 ₽/м2)
    Объект № 197023. Двухкомнатная квартира 45 кв.м. в кирпичном доме, на комфортном 2 этаже. Большие равноценные комнаты на разные стороны. Санузел раздельный. Квартира полностью освобождена и готова к продаже. Звоните, записывайтесь на просмотр. ***Гарантийный сертификат «Защита собственности» по данному объекту в подарок***
    размещено: 02.02.2026 , обновлено: 19.02.2026

    2-к квартира, Краснофлотцев, 53б

    • 45.5 м2
    • 3/5 этаж
    • Состояние: идеальное
    5 399 000 ₽ (118700 ₽/м2)
    СРОЧНО!!! ТОРГ!!! ШИКАРНАЯ КВАРТИРА В ЦЕНТРЕ ВСЕЛЕННОЙ ЕКАТЕРИНБУРГА | Краснофлотцев, 53Б Представьте себе пространство, где каждая деталь говорит о безупречном вкусе, а локация дарит невероятную свободу и комфорт городской жизни. Это именно такая квартира. О РЕМОНТЕ И ПРОСТРАНСТВЕ:Выполнен безупречный евроремонт премиум-класса. Четкие линии, дорогие материалы и гармоничная палитра создают атмосферу уютного современного лофта. Главный козырь интерьера — гениально продуманная система хранения. Встроенные шкафы до потолка, модульные конструкции в прихожей и комнатах, функциональные ниши — все вещи и сезонные принадлежности легко спрятаны с глаз, оставляя на виду только красоту, свет и простор. ОСОБАЯ АТМОСФЕРА:Квартира невероятно светлая и позитивная. Большие окна наполняют ее солнечным светом с утра до вечера, заряжая энергией и хорошим настроением. Это место, куда хочется возвращаться. ЛОКАЦИЯ «ЦЕНТР ВСЕЛЕННОЙ»:Это не преувеличение. От порога вашего дома буквально 30 метров до трамвайного кольца — вы в любой точке города за считанные минуты. Транспортная доступность — просто «шоколад»! Забудьте о долгих прогулках до остановки. Ваш персональный мегаполис в шаговой доступности: Магазины на любой вкус: от уютных «Монеток» и легендарной «Пятёрочки» у дома до крупного «Магнита» и других сетевых гигантов в двух шагах. Вид на спорт: из окон открывается вид на современный спортивный комплекс «Калининец» — ваша мотивация для здорового образа жизни прямо перед глазами. Всё необходимое — аптеки, кафе, салоны, службы быта — уже ждет вас в округе. ФУНДАМЕНТАЛЬНЫЕ ПРЕИМУЩЕСТВА: Дом с обновленной душой: Все коммуникации (трубы, электрика, стояки) заменены и выглядят безупречно и достойно. Идеальная чистота: Подъезд содержится в образцовом порядке, который может дать фору многим новостройкам от лучших застройщиков. Чисто, светло, цивилизованно. Это не просто квартира. Это — ваш безупречный и продуманный мир в самом сердце городской жизни Екатеринбурга, где каждая мелочь работает на ваш комфорт и хорошее настроение. Готовы жить по-новому? ВОЗМОЖЕН ОБМЕН НА ВАШУ НЕДВИЖИМОСТЬ!!! ID объекта в нашей базе: 18367
    размещено: 29.01.2026 , обновлено: 18.02.2026

    2-к квартира, Войкова, 25

    • 42.5 м2
    • 4/9 этаж
    • Состояние: хорошее
    5 300 000 ₽ (124700 ₽/м2)
    Продается полностью готовая для проживания двухкомнатная квартира. О доме: - расположен в стороне от шумных улиц -закрытый двор -современная детская площадка О квартире: - очень светлая, расположена на среднем 4 этаже - удобная планировка (все помещения правильной формы) -при продаже в квартире остаются кухонный гарнитур, газовая плита, холодильник, обеденный стол, 2 табурета, в большой комнате вместительный шкаф-купе и диван, стиральная машина. В шаговой доступности есть все, что необходимо для комфортной жизни: несколько детских садов и школ, остановки общественного транспорта. Такая квартира хороший вариант как для постоянного проживания, так и для сдачи в аренду. Один взрослый собственник. Обременений нет. Возможна ипотека. ID объекта в нашей базе: 13406
    размещено: 25.01.2026 , обновлено: 19.02.2026

    2-к квартира, Красных командиров, 32

    • 49 м2
    • 1/9 этаж
    • Состояние: хорошее
    5 900 000 ₽ (120400 ₽/м2)
    ПРОДАЕТСЯ 2-комнатная квартира 49 м² на Эльмаше. Ремонт и вся мебель на фото- остаются!Сдаётся с полной готовностью к заезду. В подарок новому владельцу — вся мебель и техника в отличном состоянии.Что внутри:✅ Готовый ремонт: пластиковые окна, ламинат, кафель в санузле, сейф- дверь.✅ Вся мебель и техника остаются: кухонный гарнитур с встроенной техникой, встроенный шкаф-купе, кровать, шкаф, стиральная машина.✅ Простор и свет: раздельный санузел, большая застеклённая лоджия 7 м², кухня 7.1 м², комнаты 18 и 11.5 м².✅ Тихий и тёплый дом, спокойные соседиРайон со всем необходимым:???? Центр Эльмаша. Рядом парк, Дворец культуры.???? Вся инфраструктура в шагах: школы, детские сады, поликлиники, аптеки, магазины, салоны, спорткомплекс «Калининец».???? Идеальная транспортная доступность: прямо у дома — трамвайная остановка «Энтузиастов». 15 минут до метро «Уралмаш» и «Проспект Космонавтов». Удобный выезд на машине в любой район города.Возможен быстрый выход на сделку, без обременений, квартира освобождена.Идеальный вариант для:• Молодой семьи — не нужно тратить время и деньги на ремонт и обустройство.• Инвестора для надёжной сдачи — квартира полностью укомплектована и востребована в районе.• Покупателя, который ценит удобство, тишину и развитую инфраструктуру.Торг уместен при серьезном предложении.Приезжайте на просмотр — оцените уют, готовность к жизни и преимущества района ID объекта в нашей базе: 13330
    размещено: 23.01.2026 , обновлено: 13.02.2026

    2-к квартира, Кобозева, 116

    • 40 м2
    • 1/4 этаж
    • Состояние: хорошее
    4 130 000 ₽ (103300 ₽/м2)
    Эльмаш, продаётся уютная, тёплая квартира в кирпичном доме на 1 этаже (этаж высокий).Поспешите прийти и посмотреть, пока цены ещё остаются адекватными, торг обсуждается.В квартире сделан ремонт, электрика, сантехника, стены, мебель, санузел.Соседи добропорядочные, в подъезде всегда чисто, посторонних запахов нет.Инфраструктура:Школа № 114Детский сад № 76Калиновский лесной парк. СтадионАптекиПродуктовые магазиныТранспортКвартира без обременений, 1 взрослый собственник, долгов нет, ИП нет. не банкрот, чистая продажа, быстрый выход на сделку.Записывайтесь на просмотр.При необходимости согласуем для вас ипотеку или поможем продать ваш объект, если он ещё не продан. ID объекта в нашей базе: 26241
    размещено: 19.01.2026 , обновлено: 20.02.2026

    2-к квартира, Старых Большевиков, 82/1

    • 43 м2
    • 1/9 этаж
    • Состояние: хорошее
    5 000 000 ₽ (116300 ₽/м2)
    Продам 2 комнатную квартиру с раздельными комнатами, расположенную всего в пяти минутах ходьбы от метро. Рядом вся инфраструктура: магазины, школы, детские сады, аптеки, остановки общественного транспорта. В квартире просторная лоджия, раздельный санузел и окна на 2 стороны. Выполнен косметический ремонт, заменены окна и межкомнатные двери. В подарок останется кухонный гарнитур. Собственники все совершеннолетние, быстрый выход на сделку.Торг уместен ID объекта в нашей базе: 26233
    размещено: 16.01.2026 , обновлено: 12.02.2026

    2-к квартира, Баумана, 13

    • 43.3 м2
    • 1/5 этаж
    • Состояние: хорошее
    4 449 999 ₽ (102800 ₽/м2)
    Квартира по цене студии. Не упусти свою возможность !!! За быстрый выход на сделку сделаю скидку, торопись до повышения цены!!!Продается уютная квартира в шаговой доступности от метро!Представляем Вашему вниманию замечательную двушку, по факту представляющую собой компактную трешку. Квартира расположена на высоком этаже, что обеспечивает прекрасный вид и дополнительную освещенность.Большая кухня-гостиная с узаконенной перепланировкой – идеальное место для семейных ужинов и встреч с друзьями.Две раздельные спальни, которые создают уединение и комфорт для каждого члена семьи.Совмещенный санузел с расширенным пространством: здесь Вы найдете угловую акриловую ванну (1.5*1.5 м), подвесной унитаз с инсталляцией Grohe, раковину для стиральной машины и теплый пол (водяной на зиму и электрический на лето), покрытый натуральной каспийской галькой.Закрытый двор с видеонаблюдением и удобная парковка обеспечивают безопасность и комфорт. В непосредственной близости расположены:ТЦ Веер МоллТЦ О'кейПаркДетская и взрослая поликлиникиМагазиныДошкольные учреждения и школы (66, 67, 136, гимназия 99)Транспортная доступность на высшем уровне: до метро всего 10 минут неспешной прогулки, что позволяет легко добираться в любую точку города.Технические характеристики:Квартира теплая и уютная, с высокими потолками и отличной шумоизоляцией. В 2021 году в доме был проведен капитальный ремонт, в ходе которого была заменена система отопления, водоснабжения и канализации.Дополнительно к квартире идут две кладовые в сухом подвале (площадью 4 кв. м и 10 кв. м), что дает возможность удобно организовать хранение вещей.В квартире останется огромный шкаф-купе в гостиной и кухня, что сэкономит Ваши средства на обустройство нового жилья.Исходя из всего , что останется в квартире, цена за квадратный метр дешевле не бывает. ID объекта в нашей базе: 12008
    размещено: 28.11.2025 , обновлено: 17.02.2026

    2-к квартира, Кобозева, 14

    • 38.2 м2
    • 4/5 этаж
    • Состояние: удовлетворительное
    4 300 000 ₽ (112600 ₽/м2)
    Развитая инфраструктура района делает проживание в доме удобным и комфортным. Рядом весь транспорт: метро (10 минуты ходьбы), трамвай, троллейбус, автобус, маршрутное такси. Рынок "Омега", магазины, школы, детские сады, IT-куб (центр цифрового воспитания детей), физкультурно-оздоровительные комплексы, стадион, поликлиника. Квартира прекрасно подойдет для семьи с ребенком-школьником. Всё рядом! Зеленый двор с детской площадкой и парковкой. Материал дома – кирпич, самый экологичный. Квартира интересной планировки. Одна комната изолированная. Вторая совмещена с кухней, что позволяет сделать из неё просторную гостиную, в непосредственной близости от кухни, но в то же время в любой момент изолировать их друг от друга. Комнаты выходят на разные стороны дома. Поменяны окна. Проведено остекление балкона. Звоните! Договаривайтесь на просмотр! ID объекта в нашей базе: 26153
    размещено: 25.11.2025 , обновлено: 2.02.2026

    2-к квартира, Бабушкина, 24

    • 45 м2
    • 5/5 этаж
    • Состояние: удовлетворительное
    4 750 000 ₽ (105600 ₽/м2)
    Объект № 195687. Продается квартира в доме с высокими потолками, железобетонными перекрытиями. Двор закрыт, ворота открываются автоматически. Во дворе парковка и детская площадка. Крыша дома капитально отремонтирована, дом прошел кап.ремонт. Квартира, теплая, последний этаж, выше соседей нет. Рядом с домом: школы 66 и 67, детские сады, Гимназия 99, ДЮСШ 19, Больница и многое другое, развитая транспортная инфраструктура, рядом метро. Один собственник, взрослый. Документы проверены, в собственности более 20 лет, подходит для ипотеки и других видов покупки. Чистая продажа. Ждем на просмотр! ***Гарантийный сертификат «Защита собственности» по данному объекту в подарок***
    размещено: 19.11.2025 , обновлено: 3.02.2026

    2-к квартира, Энтузиастов, 32

    • 45 м2
    • 1/2 этаж
    • Состояние: хорошее
    3 700 000 ₽ (82200 ₽/м2)
    Продается 2 комнатная квартира на Энтузиастов 32 в Сталинке. Окна на 2 стороны. Высокие потолки. Комнаты 18 и 12 кв.м., кухня-9 кв.м. Потолки 3 метра. В квартире частично сделан ремонт: стеклопакеты в большой комнате на 2 окна, натяжной потолок, на полу линолеум, трубы меняли в 2023 году. Санузел в кафеле. Подъезд чистый, аккуратный- после ремонта. Дом расположен в уютном квартале, в окружении новостроек. Рядом остановки транспорта, школы, детские сады, ТЦ. Рядом Эльмашевский парк для прогулок и занятий спортом. Просторная двухкомнатная квартира по цене однокомнатной. Дом теплый. Этаж высокий. Возможно использовать под коммерцию. ID объекта в нашей базе: 11860
    размещено: 27.10.2025 , обновлено: 17.02.2026

    2-к квартира, Космонавтов, 92

    • 44 м2
    • 5/5 этаж
    • Состояние: плохое
    4 100 000 ₽ (93200 ₽/м2)
    Продается двухкомнатная квартира! Расположение:​Уралмаш м-н, Орджоникидзевский районКвартира:-квартира расположена на пятом этаже, что обеспечивает тишину и отсутствие шума от соседей сверху. -в квартире требуется ремонт, но прекрасная планировка 2 изолированные комнаты, кухня. -окна заменили, выходят на две стороны, что обеспечивает хорошее естественное освещение и приятный вид.-балкон застеклен, обшит деревом. Дом:-придомовая парковкаВ подъезде:-доступ только через дверь с видео домофоном,Во дворе:-двор с детскими площадками,-большой хоккейный корт Инфраструктура:-рядом школа, лицей и 3 детских сада -множество магазинов,-до метро 7 минут,-удобные транспортные развязки. Прочее:-один собственник,-чистая продажа,-обременений нет,Дополнительная информация:просмотр по договоренности.готовы к адекватному торгу. ID объекта в нашей базе: 4770
    размещено: 20.10.2025 , обновлено: 19.02.2026

    2-к квартира, Красных командиров, 75

    • 43 м2
    • 4/9 этаж
    • Состояние: хорошее
    4 550 000 ₽ (105800 ₽/м2)
    Объект № 194631. Продам двухкомнатную квартиру с изолированными комнатами на Эльмаше. Квартира теплая, светлая, в хорошем состоянии. В подарок покупателю остается кухонный гарнитур и мебель в комнатах. Рядом с домом расположены школа, детский сад, магазины. В шаговой доступности остановки общественного транспорта. ***Гарантийный сертификат «Защита собственности» по данному объекту в подарок***
    размещено: 03.10.2025 , обновлено: 19.02.2026

    2-к квартира, Шефская, 22/1 стр

    • 39.3 м2
    • 9/13 этаж
    • Состояние: удовлетворительное
    5 820 000 ₽ (148100 ₽/м2)
    В продаже 2-х комнатная квартира( евро) в активно развивающемся районе Эльмаша, Жилой комплекс представляет собой камерный квартал из двух корпусов переменной этажности высотой от 6 до 25 этажей. Входные группы прозрачные и расположены на уровне земли. Вход предусмотрен с функцией бесключевого доступа по распознаванию лица или считыванию BLE-ключа. В лобби установлены стеллажи для обмена книгами и точка с кофемашиной, организовано пространство для работы или общения. У каждого дома есть свой приватный двор, окруженный зеленью. Территория разделена на несколько зон: для детей младшего и среднего возраста, релакс пространство с гамаками и подвесными креслами и спортивная зона с воркаут и настольным теннисом. Под окнами квартир расположилось зеленое полотно городской гостиной. На территории комплекса есть собственный детский сад на 100 мест. Первые этажи домов отведены под коммерческие помещения. В них располагаются полезные сервисы для жителей: рестораны, магазины, пекарни, кофейни, аптеки, салоны красоты и пункты выдачи заказов. Для владельцев автомобилей предусмотрены отдельный многоуровневый паркинг и открытые стоянки. Квартира с предчистовой отделкой, есть возможность заказать чистовую, отделку санузла, кухонный гарнитур или полную меблировку.Звоните отвечу на все интересующие вопросы. ID объекта в нашей базе: 11164
    размещено: 12.09.2025 , обновлено: 28.01.2026

    2-к квартира, Кобозева, 29

    • 38.1 м2
    • 1/9 этаж
    • Состояние: хорошее
    4 950 000 ₽ (129900 ₽/м2)
    Продается 2 ком. квартира 38,1 кв. метра.Сделан косметический ремонт, можно сразу заезжать и жить.Идеальный вариант для сдачи в аренду.Дом расположен в тихом развитом районе города.Большой двор для прогулок с детьми, есть две стоянки для автомобилей, всегда можно найти парковочное место.В шаговой доступности магазины, аптеки, детские сады, школы, ТРЦ, остановки общественного транспорта.Дом расположен в северной части города с удобными выездами в центральную часть города.Помощь в одобрении и оформлении ипотеки.Звоните записывайтесь на просмотр! ID объекта в нашей базе: 17396
    размещено: 13.05.2025 , обновлено: 19.02.2026

Новостройки Екатеринбург, мкр-н. Эльмаш

Приоритет

Увеличивает просмотры в 3 раза

Ваше объявление показывается в списке выше обычных объявлений. подключить