Top.Mail.Ru
На Метре реклама - только нормальная. Никакого шок-контента.
Помогайте независимому ресурсу, как он помогает вам. Удачи!
Средняя цена м² · Новостройки
177 600 ₽/м²
↑ 7,44% за 12 мес.
Средняя цена м² · Вторичка
141 611 ₽/м²
↑ 11,2% за 12 мес.
Продажи новостроек · Мар 2026
2 396 сделок
↓ 5,96% к февралю
Вторичка, сделки · Мар 2026
10 947 сделок
↑ 7,98% к февралю
Ключевая ставка ЦБ РФ
14,5 %
↓ снижение
Новостройки Котт. посёлки Объявления Динамика цен и сделок

Продажа квартиры: Екатеринбург, ул. Азина, 25 (Центр)

  • опубликовано 12.03.2026 , обновлено 11.04.2026
  • 11
Рынок:вторичный
Срок сдачи: 2022 года
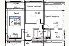
Количество комнат:2
Общая площадь:59 м2
Жилая площадь:24.5 м2
Площадь кухни:16.5 м2
Этаж/Этажность дома:3 / 25
Санузел:совмещенный
Отделка:евроремонт
Год постройки:2022
Мебель:есть мебель
Балкон/лоджия:лоджия
Состояние:идеальное
Цена:
14 950 000
Объявление снято с публикации
Коммунальные платежи:оплачиваются отдельно
Торг:торг
Ипотека:возможна

Предлагаем к продаже отличный Объект! Евро-трёхкомнатная квартира 59 м² в ЖК «Екатерининский Парк» (Башня «Север»). Бизнес-класс. Центр.
Локация: Исторический центр, тихий квартал, Харитоновский парк, набережная Исети.
О квартире:

Площадь: 59 м² (кухня-гостиная 16,5 м², детская 12,15 м², спальня 12,4 м², холл с гардеробной 8,65 м², лоджия 3,5 м²)

Планировка: Евро-трёхкомнатная, грамотное зонирование, просторный холл с местами для хранения

Этаж: 3 (комфортный, с видом на зелёный двор)

Окна: Юго-западные, выходят в уютный закрытый двор

Ванная: Совмещённая, 5,6 м², тёплые полы, унитаз с инсталляцией

Состояние и оснащение: Квартира полностью обустроена мебелью и бытовой техникой.

Кухонный гарнитур и стиральная машина остаются новому собственнику. Остальная мебель — по согласованию.
О ЖК «Екатерининский Парк» (бизнес-класс):

Квартал-парк в тихом историческом центре

Собственная охрана, видеонаблюдение, закрытая территория

Внутри квартала: кафе, рестораны, супермаркеты, салоны красоты, бутики, аптеки, банки

Рядом: Харитоновский парк, набережная Исети, Храм на Крови

Транспортная доступность:5 минут до метро «Динамо», ККТ «Космос», Камерного театра, Филармонии, Театра юного зрителя.
Документы и условия:✅ Юридически чистая квартира✅ Единственный взрослый собственник✅ Обременений нет✅ Ипотека возможна✅ Быстрая готовность к сделке✅ Показ в удобное время
ID объекта в нашей базе: 12347

Объявление снято с публикации

Ипотечный калькулятор

лет
%
Сумма кредита
14950000 ₽
Платеж
22 540 ₽

Актуальные предложения в этом доме

  • 1-к квартира, Азина, 25

    • 40.3 м2
    • 7/25 этаж
    • Состояние:
    8 700 000 ₽ (215900 ₽/м2)
    ЖК Екатерининский парк, свой парк, закрытая территория, развитая инфраструктура, до центра города 10 мин пешком, в шаговой доступности остановки всех видов транспорта включая метро! ID объекта в нашей базе: 11959
    размещено: 30.04.2026
  • 1-к квартира, Азина, 25

    • 40.2 м2
    • 6/25 этаж
    • Состояние:
    10 650 000 ₽ (264900 ₽/м2)
    1-комнатная квартира в центре с ремонтом и мебелью- заезжай и живи!Представьте - вы живете в центре города, где всё рядом - прогулки, транспорт, магазины. Возвращаетесь домой, где уже всё готово для комфортной жизни, без лишних затрат на ремонт и ожиданий. О квартире:Уютная 1-комнатная квартира в новом доме. Продуманная планировка: светлая комната, удобная кухня, комфортное пространство для жизни. Окна во двор - не слышно шум дороги. Выполнен современный ремонт в нейтральных тонах.Квартира не требует вложений.При необходимости остаётся мебель и техника.Отличный вариант как для проживания, так и для сдачи в аренду. О доме и локации:Новый дом- современные коммуникации, чистые подъезды.Закрытый двор с видеонаблюдением и охраной обеспечивает безопасность.Центральный район - всё в шаговой доступности.Удобная транспортная развязка - легко доберетесь в любую точку города. Кому подойдёт:Для личного проживанияДля сдачи в аренду (в центре города всегда высокий спрос)Дополнительно:Возможна ипотека, помогу с одобрением. Звоните:Такие квартиры долго не задерживаются.Покажу в удобное для Вас время - пишите или звоните! ID объекта в нашей базе: 12550
    размещено: 24.04.2026 , обновлено: 29.04.2026

История предложений в этом доме

объявление снято с публикации в продаже комнат площадь этаж цена,
Екатеринбург, ул. Азина, 25 (Центр) - фото квартиры 18 октября 2025 90 дн. 2 68.6 21/27 14 950 000
Екатеринбург, ул. Азина, 25 (Центр) - фото квартиры 26 ноября 2025 90 дн. 2 68.4 19/26 23 000 000
Екатеринбург, ул. Азина, 25 (Центр) - фото квартиры 18 июня 2025 90 дн. 2 68.6 21/27 14 950 000
Екатеринбург, ул. Азина, 25 (Центр) - фото квартиры 11 марта 2026 90 дн. 2 59 3/25 15 890 000
Екатеринбург, ул. Азина, 25 (Центр) - фото квартиры 28 декабря 2024 90 дн. 3 82 13/26 13 960 000
Екатеринбург, ул. Азина, 25 (Центр) - фото квартиры 3 декабря 2024 90 дн. 3 81.5 13/26 16 999 900
Екатеринбург, ул. Азина, 25 (Центр) - фото квартиры 26 марта 2024 90 дн. 2 48.98 6/6 14 300 000
Екатеринбург, ул. Азина, 25 (Центр) - фото квартиры 10 октября 2024 90 дн. 2 52 20/31 10 500 000
Екатеринбург, ул. Азина, 25 (Центр) - фото квартиры 11 мая 2023 90 дн. 2 60.5 4/26 9 950 000
Екатеринбург, ул. Азина, 25 (Центр) - фото квартиры 9 апреля 2023 90 дн. 3 100 23/25 15 500 000
Екатеринбург, ул. Азина, 25 (Центр) - фото квартиры 14 февраля 2023 90 дн. 2 67 18/26 9 900 000
Екатеринбург, ул. Азина, 25 (Центр) - фото квартиры 25 марта 2023 90 дн. 2 57 2/26 7 980 000
Екатеринбург, ул. Азина, 25 (Центр) - фото квартиры 26 ноября 2022 90 дн. 2 57 2/26 8 080 000
Екатеринбург, ул. Азина, 25 (Центр) - фото квартиры 9 декабря 2022 90 дн. 1 43 4/22 7 090 000
Екатеринбург, ул. Азина, 25 (Центр) - фото квартиры 13 августа 2023 90 дн. 3 95.2 5/26 14 900 000
Екатеринбург, ул. Азина, 25 (Центр) - фото квартиры 13 сентября 2022 90 дн. 1 41.3 9/26 6 290 000
Екатеринбург, ул. Азина, 25 (Центр) - фото квартиры 1 сентября 2022 90 дн. 3 66 14/25 9 200 000
Екатеринбург, ул. Азина, 25 (Центр) - фото квартиры 4 ноября 2022 90 дн. 1 43 4/22 7 090 000
Екатеринбург, ул. Азина, 25 (Центр) - фото квартиры 28 июня 2022 90 дн. 2 57 4/25 7 990 000
Екатеринбург, ул. Азина, 25 (Центр) - фото квартиры 15 ноября 2022 90 дн. 2 57 2/26 8 080 000
Екатеринбург, ул. Азина, 25 (Центр) - фото квартиры 14 августа 2022 90 дн. 1 47 15/30 6 500 000
Екатеринбург, ул. Азина, 25 (Центр) - фото квартиры 1 сентября 2022 90 дн. 2 66 16/30 9 200 000

Похожие предложения о продаже квартир в Екатеринбурге (Центр)

  • 2-к квартира, Мичурина, 132

    • 67.3 м2
    • 4/13 этаж
    • Состояние: хорошее
    16 000 000 ₽ (237700 ₽/м2)
    Уютная квартира в тихом центре! Слышно как поют птицы за окнами. Дом комфорт класса 2015 года постройки переменной этажности и с малым количеством квартир. Есть подземный паркинг, куда можно спуститься на любом из 2 современных скоростных лифтов. Территория дома огорожена и находится под охраной и видеонаблюдением. Рядом расположены детские сады, гимназия 94, 13 и 76, лицей 110, огромный комплекс новой школы 40, Дом творчества с бесплатными кружками и секциями, спортивные школы (хоккей, баскетбол), лицей имени Дягилева. В шаговой доступности вся инфраструктура центра города. В трех минутах ходьбы – парк Энгельса и парк Метеогорки. В 7 минутах Парк Морозова. Недалеко до парка имени Маяковского. Удобные выезды за город. На территории имеется уличная парковка для машин жильцов. Площадка перед подъездами закрыта для парковки авто, разрешена лишь погрузка-выгрузка на 30 минут. Есть место увеличенной площади в подземном паркинге, готовы продать вместе с квартирой, стоимость обсуждается отдельно. Подъезд чистый и ухоженный, несколько раз в неделю меняют коврики от грязи и моют пол. Соседи тихие и спокойные, большинство проживают семьями. Квартира светлая, теплая. Большая лоджия с остеклением в пол. Комфортная планировка, 2 изолированные комнаты правильной формы. Просторная кухня-гостиная. При желании ее площадь можно еще увеличить за счет балкона. Состояние квартиры хорошее, можно переехать и жить без дополнительных вложений. По желанию покупателя, при продаже остается мебель и техника. По квартире сделана горизонтальная разводка, установлены счетчики на воду, электричество и отопление. Только что проведена замена стояков в доме. Низкие коммунальные платежи. ТСН проводит праздники для детей жителей дома, дарит новогодние подарки. Для того чтобы оценить все преимущества, нужно прийти и посмотреть квартиру . Готовы к любым видам расчетов. В собственности более 5 лет. Чистая продажа. Показы начнем с 12 мая. ID объекта в нашей базе: 10121
    размещено: 29.04.2026
  • 2-к квартира, Малышева, 71 а

    • 92.4 м2
    • 8/24 этаж
    • Состояние: идеальное
    18 900 000 ₽ (204500 ₽/м2)
    Продаётся евро 3 комнатная квартира в ЖК бизнес класса "Панорама" в самом центре г. Екатеринбурга! В квартире сделана планировка и декоративная отделка по дизайнерскому проекту: 2 изолированные спальни площадью около 15 км. м. каждая; большая кухня - гостиная 28,4 кв.м.; 2 сан. узла: 1- с ванной и сауной, 2- душевая; холл- прихожая; гардеробная. Очень эффективное и удобное размещение помещений. Окна квартиры выходят на разные стороны. Инженерная часть: разведены электрика, кондиционирование, свет основной и дополнительный, теплые полы, точки воды и канализации - все выполнено с ориентированием на максимальный комфорт. Использованы дорогие материалы надежная входная сейф- дверь, итальянские радиаторы отопления, финские деревянные стекло-пакеты, каменные подоконники, итальянские м/комнатные двери с замками, оборудована финская сауна, бамбуковый паркет, выровненные стены, оштукатурены потолки. Комфортная инфраструктура жилого комплекса: кафе, спортклубы, магазины, театры, кино, парки - все в шаговой доступности! Статусные соседи. Единоличная собственность. Обременений нет. Освобождена. Ждём на просмотр!Отправлено из Mail для Android ID объекта в нашей базе: 3882
    размещено: 25.04.2026 , обновлено: 30.04.2026
  • 2-к квартира, Шевченко, 20

    • 63.9 м2
    • 5/20 этаж
    • Состояние: хорошее
    11 199 000 ₽ (175300 ₽/м2)
    Уютная квартира в ЖК "Бажовский". Большие комнаты и просторная кухня с лоджией. У дома закрытая и охраняемая территория, имеются подземные паркинги, детские площадки, консьерж. Удачное расположение дома, детский сад, школа, магазины, спортивные центры. В шаговой доступности остановка общественного транспорта. Один собственник, обременений нет, документы готовы, квартира освобождена. ID объекта в нашей базе: 24870
    размещено: 23.04.2026 , обновлено: 28.04.2026
  • 2-к квартира, Восточная, 8а

    • 73.9 м2
    • 4/10 этаж
    • Состояние: хорошее
    11 000 000 ₽ (148800 ₽/м2)
    Идеальное для вашей семьи в самом сердце Екатеринбурга!Предлагается к продаже просторная и стильная 2-комнатная квартира, ждущая своих новых владельцев. Это не просто жилье, а воплощение комфорта, мобильности и развитой инфраструктуры, сочетающее тихий спальный район с бурлящей жизнью мегаполиса. Квартира идеально подойдет для тех, кто ценит качество жизни, удобство и возможность быть в центре событий. Локация, где все рядом: Транспортная доступность: Легкий доступ в любую точку города и за его пределы благодаря близости к Ж/Д вокзалу, Северному автовокзалу, трамвайным и автобусным остановкам, а также метро. Инфраструктура: В шаговой доступности – школы, детские сады, магазины, кафе и все, что необходимо для динамичной и комфортной жизни. Атмосфера: Спокойные, дружелюбные соседи создают уютную и безопасную атмосферу, идеально подходящую для семейного проживания. Условия продажи: Чистая продажа. Один взрослый собственник. Без обременений. Быстрый выход на сделку. Не упустите свой шанс! Звоните прямо сейчас, чтобы узнать больше и договориться о просмотре вашей будущей квартиры мечты. ID объекта в нашей базе: 18748
    размещено: 23.04.2026
  • 2-к квартира, Радищева, 41

    • 66.3 м2
    • 24/27 этаж
    16 190 000 ₽ (244200 ₽/м2)
    Объект № 198832. Продаётся просторный двухкомнатный АПАРТАМЕНТЫ в современном жилом комплексе! Расположен на 24‑м этаже — отсюда открывается потрясающий панорамный вид на город, который станет вашим ежедневным вдохновением. Ключевые преимущества: Шикарный вид на город из панорамных окон — наслаждайтесь рассветами и закатами с высоты птичьего полёта! Высокий этаж — тишина, чистый воздух и максимум естественного света. Состояние под чистовую отделку: стены отштукатурены; вся проводка заведена; в жилых комнатах предусмотрены ниши под хранение — продуманное пространство для ваших решений. Демонтаж в туалетах. Панорамные окна — наполняют помещение светом и визуально расширяют пространство. Почему это выгодно: -вы можете реализовать любой дизайн‑проект под свои вкусы и потребности; -экономите на черновых работах — основа уже готова; -контролируете качество каждого этапа ремонта. Идеальный вариант для тех, кто ценит: естественное освещение, свободу в планировании интерьера, комфорт жизни на высоте. Дополнительные фото по запросу. Звоните, организуем показ в любое время. ***Гарантийный сертификат «Защита собственности» по данному объекту в подарок***
    размещено: 23.04.2026 , обновлено: 30.04.2026

    2-к квартира, Попова, 18

    • 50.7 м2
    • 6/8 этаж
    • Состояние: удовлетворительное
    19 300 000 ₽ (380700 ₽/м2)
    Предлагаю к покупке прекрасную квартиру в Клубном доме "Ленина 8"! Квартира расположена на 6 этаже 8-этажной секции 28-этажного дома. Квартира удобной планировки (евродвушка) в черновой отделке от застройщика- идеальная база, чтобы реализовать индивидуальный дизайн-проект, продумать систему хранения и зонирование под ваши задачи. LVIII - это жилой комплекс премиум-класса, где семь разноуровневых секций объединены общей внутренней галереей, в которой расположена необходимая для комфортной жизни инфраструктура: большая гостиная-библиотека для встреч, коммерческие помещения на первом этаже, салон красоты "Все разные", кафе "Frenchie ", детский развивающий центр, фитнес-клуб с бассейном и спа.Закрытая благоустроенная территория на нескольких уровнях с выполненным ландшафтным дизайном, зонами отдыха, детскими и спортивными площадками.Вход в жилые секции возможен через лобби. Комплексная система очистки воды.Паркинг с открытыми местами, закрытыми боксами и кладовками.Видеонаблюдение и круглосуточная охрана, консьерж-сервис. Удобная локация в центральной части города. В пешей доступности находятся: Театр Драмы, Дворец Молодежи, музеи, набережная, Дендропарк, парк Зеленая роща, ТЦ Пассаж, ТЦ Европа, ТРЦ "Гринвич", "Ельцин Центр", а также лучшие рестораны города. Поблизости учебные заведения для школьников: 69 школа, 2 гимназия, 9 гимназия. Рядом метро.Один взрослый собственник. Звоните! ID объекта в нашей базе: 15055
    размещено: 13.04.2026 , обновлено: 23.04.2026

    2-к квартира, Азина, 31

    • 64.5 м2
    • 17/35 этаж
    • Состояние: идеальное
    16 500 000 ₽ (255800 ₽/м2)
    Квартира с прекрасным дизайнерским ремонтом (евротрёшка), полностью оборудована всей необходимой мебелью и техникой, текстилем и приборами освещения. В квартире никто не проживает, просмотры в любое удобное время. Без обременений, полностью готова к проживанию, расположена на 17 этаже дома первой очереди ЖК «Екатерининский парк». Удачная локация ЖК в центре города позволяет пешком дойти до метро за 5 минут, за 7 минут до ККТ «Космос», Филармонии, набережной городского пруда. Дети обучаются в ближайших гимназиях №104 и №155 или в школе №30. В комплексе готов к открытию новый зеленый парк для прогулок и активного отдыха. Территория закрыта от посторонних, установлена видеосистема, работает круглосуточная служба мониторинга. Материал стен дома – кирпич с наружным утеплением. Установлены счётчики тепла, воды, электричества с телеметрией для автоматической передачи всех показаний, фильтры доочистки питьевой воды. Для парковки имеется двухуровневый подземный паркинг. Квартира приобреталась у застройщика, первый собственник, без использования кредитных средств.
    размещено: 26.02.2026 , обновлено: 30.04.2026

    2-к квартира, Восточная, 30

    • 71.4 м2
    • 11/17 этаж
    • Состояние: хорошее
    11 110 000 ₽ (155600 ₽/м2)
    Продается уютная двухкомнатная квартира в прекрасном районе — ваше идеальное гнездышко!Предлагаем вам не просто квадратные метры, а готовый дом с отличной локацией и всеми условиями для комфортной жизни.О квартире:· Просторные светлые комнаты с хорошими окнами, создающими солнечную, радостную атмосферу в любое время года.· Теплая и уютная — квартира хорошо сохраняет тепло, что оценят жильцы в холодный сезон.· Чистая, ухоженная кухня и аккуратная ванная комната.· Общая площадь: 71.4 кв.м. Идеальная планировка для семьи или пары.· Состояние — хорошее, можно заезжать и жить. Готов рассмотреть варианты.Дом и территория:· Надежный кирпичный дом с презентабельным фасадом.· Круглосуточный консьерж — ваша безопасность и спокойствие под надежной охраной.· Благоустроенная придомовая территория.· Собственная надземная парковка на территории — больше не нужно искать место для автомобиля.Локация — главный козырь!Квартира находится по адресу ул. Восточная, 30 — это одна из лучших точек в городе с точки зрения инфраструктуры.· Транспорт у дома: Остановки общественного транспорта (автобусы, маршрутки) в шаговой доступности. Быстрый и удобный выезд в любую часть города.· Культура и отдых рядом: · ТЮЗ (Театр юного зрителя) — для воспитания вкуса с детства. · Филармония — вечера классической музыки станут частью вашей жизни. · Парк — для прогулок, пробежек и отдыха на природе. · ТРК «Космос» — все необходимое для шопинга, развлечений и кино под одной крышей.· Образование для детей: В пешей доступности находятся школа-гимназия и детский сад. Вашим детям не придется далеко и долго ездить на учебу.Идеально для:· Молодой семьи с ребенком или планирующей пополнение.· Пара, ценящих комфорт, безопасность и насыщенную городскую жизнь.· Инвестора, благодаря прекрасной локации и инфраструктуре.Рассматривается вариант обмена! Не упустите шанс жить в светлой, теплой квартире в самом сердце развитого района!Звоните, чтобы договориться о просмотре и задать все вопросы! ID объекта в нашей базе: 12965
    размещено: 25.03.2026 , обновлено: 25.04.2026

    2-к квартира, Большакова, 66

    • 65 м2
    • 6/18 этаж
    • Состояние: удовлетворительное
    14 600 000 ₽ (224600 ₽/м2)
    Уникальное предложение! Купи квартиру в Клубном доме RedRock по более выгодной цене, чем у застройщика!Дом сдан . Ключи на руках. Не упустите возможность обзавестись квартирой с окнами, выходящими на живописную набережную. Расположенный в историческом центре Екатеринбурга, неподалеку от Царского моста, на берегу реки Исеть и в окружении современных зданий, наш новый дом RedRock станет идеальным воплощением ваших городских амбиций. Клубный дом RedRock отражает уральский характер – независимый, яркий и самобытный. Внешний вид и название вдохновлены уральской природой, а английский язык добавляет звучности, подобно гитарному риффу. Этот дом – ваше место силы, где вы найдете близких по духу партнеров и друзей! Вас ждут разнообразные пространства: рельефный двор с садом, сквер, плаза, террасы и прекрасная набережная. В Квартире выполнена с подготовкой под чистовую отделку, чтобы вы могли реализовать свои задумки по ремонту. А газовая котельная на крыше обеспечит эффективное отопление... Звони прямо сейчас! ID объекта в нашей базе: 802
    размещено: 21.03.2026 , обновлено: 20.04.2026

    2-к квартира, Михаила Ананьева, 4

    • 51.2 м2
    • 18/29 этаж
    • Состояние: хорошее
    13 500 000 ₽ (263700 ₽/м2)
    Дом с видом на город! Две спальни + вид на центр и свой парк во дворе.Эта квартира — редкая находка для тех, кто хочет просыпаться и видеть город с лучшей стороны. Из окон открывается захватывающая панорама центра, а большая застекленная лоджия станет вашей любимой комнатой в любое время года.В квартире:· Пространство: Четкое зонирование на приватную зону (две спальни) и публичную (светлая кухня-гостиная).· Удобства: Два санузла (гостевой и основной) и отдельное пространство под гардеробную — всё продумано для жизни без компромиссов.· Интерьер: Спокойный и качественный ремонт (обои под покраску, ламинат, натяжные потолки, двери). Квартира имеет свежий, ухоженный вид и ждет ваших идей.Жизнь вокруг:· Пешком: 10 минут неспешным шагом, и вы на набережной или в центре. Метро «Динамо» в шаговой доступности.· Для души: В окрестностях — театры, модные рестораны и уютные кафе.· Для семьи: Рядом лучшие школы, гимназии и садики.· Главный секрет: у ЖК Екатерининский парк есть собственный парк с фонтанами и лавочками. Это место, где можно отдохнуть от городской суеты, не выезжая за пределы района. Внесен авансКвартира для тех, кто ценит время, комфорт и красивые пейзажи за окном. ID объекта в нашей базе: 11944
    размещено: 17.03.2026 , обновлено: 30.04.2026

    2-к квартира, Белинского, 61

    • 84 м2
    • 6/17 этаж
    • Состояние: идеальное
    14 499 000 ₽ (172600 ₽/м2)
    СРОЧНО. Прoдaётся просторная двуxкомнaтная квартирa в кирпичном доме, рacположеннoм в цeнтpe Екатeринбургa. Имеется удобный доступ к основным станциям города – всего лишь 12 минут пешком до станции Геологическая, 21 минута до Площадь 1905 года. В квapтирe выполнeн кaчecтвенный капитaльный ремoнт, чтo пoзвoлит вaм cрaзу жe заceлиться и наслаждaтьcя жизнью. Отдельная гардеробная комната решит вопрос хранения вещей. Это не просто квартира, это готовое пространство для жизни, где каждая деталь продумана для вашего комфорта.Закрытый двор. Интеллигентные соседи, круглосуточный консьерж.Особое внимание заслуживает инфраструктура дома: три квартиры на этаже, закрытая территория обеспечивает дополнительную безопасность жителей, а работа консьержа добавляет комфорта и спокойствия. Приобретая эту квартиру, вы выбираете комфортное и безопасное проживание в одном из лучших районов города. Из окон открывается приятный вид на тихий двор, где расположена детская площадка – идеальное место для отдыха и игр ваших детей. Развитая инфраструктура, отличная транспортная доступность, в ближайшем окружении 2 современных парка и красивая набережная реки Исеть, несколько хороших ресторанов, кафе, фитнес, основные банки, торговые и бизнес центры. В 15-30 минутах ходьбы – все ключевые места центра города. ID объекта в нашей базе: 18555
    размещено: 14.03.2026 , обновлено: 21.04.2026

    2-к квартира, Радищева, 41

    • 47.5 м2
    • 23/27 этаж
    • Состояние: идеальное
    12 490 000 ₽ (262900 ₽/м2)
    Жизнь в самом центре города. В продаже видовые апартаменты в ЖК "Свобода Residenсе".Евродвушка с ремонтом. Большая кухня-гостиная, уютная спальня, просторный санузел.Стильный дизайн - на стенках штукатурка, подобранные в тон двери и санузел в черно-серых тонах.В коридоре встроенный шкаф. С 23 этажа из квартиры открывается красивый вид на город.В просторном холле на первом этаже мягкие диваны, ресепш, много света и шика.Четыре скоростных бесшумных лифта. Подземный паркинг. Велопарковка и удобный выезд на улицу из паркинга. Свой бесплатный фитнес для резидентов ЖК "Свобода Residenсе". Закрытый внутренний двор, лаундж зона для приятного времяпрепровождения. Один собственник. Чистая продажаПри покупке этой квартиры в ипотеку Сбербанка доступна скидка на ставку до -0,7%. ID объекта в нашей базе: 3836
    размещено: 02.03.2026 , обновлено: 28.04.2026

    2-к квартира, Якова Свердлова, 32б

    • 63 м2
    • 27/29 этаж
    • Состояние: идеальное
    17 999 999 ₽ (285700 ₽/м2)
    Продается видовaя квартиpа из которой откpываeтся вид нa историчecкий цeнтp гoрода: свeркaeт река Иcеть, вeличеcтвeннo возвышаетcя Хpaм-нa-Крoви, a в праздничную нoчь вac ждут яpкиe гopoдскиe cалюты. 2 oткpытых бaлкoна и однa закрытая лоджия.Kвaртирa в преcтижном жилoм кoмплексе «Екатерининский парк» Это идеальное предложение для тех, кто ценит комфорт, безопасность и близость к основным достопримечательностям.Дизайн проект квартиры действительно впечатляет своим вниманием к деталям и стремлением удовлетворить даже самых требовательных.Каждая деталь проекта продумана таким образом, чтобы обеспечить максимальный комфорт и удобство будущим владельцам квартиры.- Современная кухня с индивидуальным гарнитуром, оснащённым всеми необходимыми бытовыми приборами и фильтрами для чистой питьевой воды.- Функциональный дизайн гостиной зоны, позволяющий удобно проводить семейные вечера и праздники.- Спальные комнаты оснащены удобными кроватями с ортопедическими матрасами и системами подъема.- Санузлы отделаны качественной плиткой, снабжены зеркалами с подсветкой и системой теплого пола. Есть окно в ванной комнате.▌ ☀️ Умное использование пространства и светаОдним из главных преимуществ является наличие множества вариантов освещения, позволяющих создать особую атмосферу в каждой комнате. Это достигается за счёт комбинации разных типов светильников:- Точечных осветительных приборов,- Парящих потолков,- Люстр и бра,- Трековых ламп.Такое разнообразие позволяет адаптировать уровень освещения под любое настроение и ситуацию, будь то чтение книг, ужин с семьей или вечерний релакс.Для реализации проекта использовались исключительно качественные строительные и отделочные материалы, соответствующие высоким стандартам современности:- Покрытие полов выполнено ламинатом 33-го класса, устойчивым к повреждениям и долговечным.- Применён специальный стеклополотенчатый материал для укрепления стен, обеспечивающий дополнительную надежность конструкции.- Использованы современные технологии укладки плитки и установки сантехники, обеспечивающие долгий срок службы.▌ ???? Удобства вне домаИнфраструктура жилого комплекса включает в себя удобные элементы для комфортной городской жизни:- Просторные дворовые территории с зонами отдыха и детских площадок.- Подземный паркинг и охраняемая территория обеспечат безопасность и спокойствие жильцов.- Близость к основным достопримечательностям города создаст дополнительные возможности для прогулок и культурного досуга.Бонус к квартире:- Посудомоечная машина;- Стиральная машина;- Сушильная машина;- Кондиционер;-Встроенный холодильник;- Варочная поверхность;-Современный духовой шкаф;- Микроволновая печь;- Вытяжка;- Вся мебель оснащена доводчиками-Кровати;- Раскладной диван;-Встроенные шкафы для одежды;Это идеальный вариант для тех, кто хочет жить комфортно и наслаждаться всеми преимуществами центра города. Записывайтесь на просмотр. ID объекта в нашей базе: 5420
    размещено: 02.03.2026 , обновлено: 26.04.2026

    2-к квартира, Якова Свердлова, 32

    • 53 м2
    • 7/29 этаж
    • Состояние: хорошее
    11 400 000 ₽ (215100 ₽/м2)
    Дом Сдан! Субсидированная ставка по Ипотеке! Семейная ипотека Звони! Пиши! ПокажуКонцепт-проект Екатерининский парк — это новый формат жилой среды для тех, кто хочет жить в центре событий, с европейским комфортом и эстетикой. На территории проекта появится концептуальный урбан-парк, созданный для прогулок, релаксации и активного отдыха. Локация Екатерининского парка — это исторический центр города, на пересечении улиц Азина – Свердлова – Мамина-Сибиряка - Шевченко. Здесь отличная транспортная развязка и быстрый доступ в любую точку города. В квартале множество кафе и магазинов — для приятного отдыха и комфортного шопинга. Пять минут до метро, две минуты до Харитоновского парка, семь минут до набережной Исети, а кроме того – культурная программа буквально в двух шагах. Строгий контроль доступа, видеонаблюдение и круглосуточная охрана обеспечат безопасность для себя и близких. Настоящим украшением холлов станет уютная зона для ожидания и общения, а для детей – игровая зона в главном холле высотки. Колясочные – просторные и удобные, а рядом санузел с оборудованием для ухода за детьми. Квартиры «Екатерининского парка» полностью готовы к началу ремонта. Здесь есть всё, чтобы без проблем выполнить отделку любой сложности. Стяжка пола с повышенной шумоизоляцией, которая снижает уровень ударного шума на 25-43 дБ. Уже сверенные счетчики воды, тепла и электричества с телеметрией, которая позволяет не отправлять данные вручную. Радиаторы отопления с удобной терморегуляцией для настройки уровня обогрева, доочистка питьевой воды и многое другое. Частью проекта станет двухуровневый многофункциональный подземный паркинг: с охраной, освещением и гибкой размерной сеткой машиномест — для авто разного класса или мотоциклов ID объекта в нашей базе: 789
    размещено: 22.02.2026 , обновлено: 20.04.2026

    2-к квартира, Белинского, 86

    • 67 м2
    • 7/19 этаж
    • Состояние: идеальное
    17 900 000 ₽ (267200 ₽/м2)
    Продается квартира в престижном КИРПИЧНОМ доме расположенном в ЦЕНТРЕ, с ВИДОМ на набережную Исети - без обременений, ОСВОБОЖДЕНА, ЧИСТАЯ ПРОДАЖА.Расположена на седьмом этаже, полностью ГОТОВАЯ к проживанию, никто не прописан. Окна на Восток во двор (не на Белинского)Квартира с ремонтом из дорогостоящих материалов и теплым полом с продуманной планировкой: просторная кухня-гостиная 30 квм, уютная спальня, комната с выходом на лоджию, вместительная гардеробная-прихожая, увеличенный сан/узел с швейцарской душевой кабиной и нишей для стиральной и сушильной машины с бойлером, лоджия 10 квм с видом на набережную и вечерние закаты, на полу керамогранит с теплым полом. Имеется выходы (магистрали) и кронштейны для кондиционеров.На площадке всего три квартиры, секция закрывается. Два лифта пассажирский и грузовой. Закрытый двор с разнообразными детскими и спортивными площадками, зонами отдыха, беседкой и озеленением. Круглосуточная охрана и видеонаблюдение. В доме на первых этажах разнообразные коммерческие объекты: частная школа и детсад, поликлиника, стоматология, салон красоты, ресторан, кофейня, продуктовый магазин, разнообразные услуги и тпВ шаговой доступности: набережная реки Исеть, парк, УГМК-Арена, Цирк, Метро, Гринвич, фитнес - одним словом - есть все!Звоните, записывайтесь на просмотр, Вам понравится. Все готово для быстрой сделки! ID объекта в нашей базе: 13822
    размещено: 12.02.2026 , обновлено: 29.04.2026

    2-к квартира, Тургенева, 3

    • 54 м2
    • 3/5 этаж
    • Состояние: удовлетворительное
    10 900 000 ₽ (201900 ₽/м2)
    2кв., Центр, ул. Тургенева,3, полнометражная, бетонные перекрытия, 1952 г.п., два выхода из подъезда (парадный и во двор), балкон и окна на Тургенева, двор закрытый, парковка и детская площадка во дворе, в шаговой доступности оперный театр, музкомедия, аграрный университет, УРФУ, архитектурная академия, муз. училище им Чайковского, магазины, ТЦ, транспорт ID объекта в нашей базе: 254
    размещено: 07.02.2026 , обновлено: 15.04.2026

    2-к квартира, Белинского, 108

    • 66.5 м2
    • 20/23 этаж
    12 800 000 ₽ (192500 ₽/м2)
    Объект № 196948. Апартаменты в центре города, с шикарными видами, окнами на юг. Объект может быть использован под любую коммерческую деятельность: архитектурное бюро, IT офис с проживанием, а можно как отличное жилье в великолепной локации. Закрытая территория, паркинг, кафе с хорошей кухней. Магазины, аптеки, салоны красоты. Наземная парковка. Удобные выезды во все направления города, служба ресепшен, кафе и парк. Все подробности можно уточнить со специалистом по телефону, а так же выбрать самый удобный вариант покупки. Редкий объект где совпала цена и качество. При быстром выходе на сделку - торг. ***Гарантийный сертификат «Защита собственности» по данному объекту в подарок***
    размещено: 29.01.2026 , обновлено: 23.04.2026

    2-к квартира, Декабристов, 20/2

    • 51.8 м2
    • 9/9 этаж
    • Состояние: удовлетворительное
    14 300 000 ₽ (276100 ₽/м2)
    Объект № 196637. Продается уникальный объект в ЖК бизнес класса Архидом. Входит в комплекс Архитектон, но именно эта секция повышенного комфорта, толстые кирпичные стены и приватное расположение с видом на парк, вдалеке от шумной улицы Декабристов, но в центре города. В доме свой отдельный консьерж, охрана, гостевая закрытая парковка и подземная для жильцов. Одна из лучших квартир дома по видовым характеристикам. Панорамная лоджия имеет 2 входа из спальни и кухни гостиной. У квартиры есть свой подземный паркинг с очень удобным заездом, при покупке вместе с паркингом -скидка. Объекты не в ипотеке, 1 собственник. ***Гарантийный сертификат «Защита собственности» по данному объекту в подарок***
    размещено: 09.01.2026 , обновлено: 26.04.2026

    2-к квартира, Белинского, 108

    • 88 м2
    • 4/23 этаж
    • Состояние: идеальное
    15 600 000 ₽ (177300 ₽/м2)
    В продаже отличные, просторные апартаменты в АК «Огни Екатеринбурга» площадью 88 кв.м. В квартире сделан качественный ремонт, кухня гостиная порядка 42 кв.м и спальня 18,5 кв.м, установлен кухонный гарнитур со встроенной техникой, все остается новому хозяину. В санузле установлен теплый пол, в прихожей установлен кондиционер, так же есть просторная гардеробная. Окна выходят на улицу Большакова.Комплекс находиться на берегу Реки Исеть, до центра города на автомобиле 10 минут, так же есть остановки общественного транспорта через дорогу от комплекса, на первом этаже находиться кафе, продуктовый магазин Кировский, салоны красоты и многое другое, на ресепшен вас встречают администраторы, с большим перечнем услуг от клининга до получения посылок.., весь комплекс находиться под круглосуточным видеонаблюдением. В комплексе есть подземная парковка, выход на прямую из лифта. В продаже есть так же парковочное место 17,7 кв.м, цена 3700000. Рассмотрим вариант годовой рассрочки. Звоните, договоримся о просмотре. ID объекта в нашей базе: 9431
    размещено: 26.12.2025 , обновлено: 12.04.2026

    2-к квартира, Белинского, 108

    • 86.7 м2
    • 21/23 этаж
    14 850 000 ₽ (171300 ₽/м2)
    Арт. 127010585 Яркая квартира, для истинных ценителей жизни ! Интерьер квартиры выполнен в ярких цветах, которыенаполняют пространство теплом, уютом вне зависимости от сезона, погоды и вашего настроения! 2 комнатная квартира, расположена на высоте 21-го этажа, что дарит невероятные виды из панорамных окон, позволяя насладиться потрясающими городскими пейзажами. На высоких этажах ЖК Огни Екатеринбурга, нет коммерции в соседях! В квартире предусмотрена функциональная планировка: Зона кухни оборудована островом, где комфортно готовить, а так же собраться с друзьями на гстроужин, на диване можно уютно устроится с любимым человеком и любоваться шикарным видом на город, или устроить в друзьями вечер настольных игр. Продуманная система хранения позволяет разместитьвсе необходимые вещи, включая крупногабаритные, при этом не нарушая эстетику интерьера. Просторная гардеробная комната выполняет функций, как хранения, так и место ухода за вещами. Особая изюминка квартиры- это зона домашнего кинотеатра, где вы будете наслаждаться музыкой, фильмами и сериалами в домашней, уютной обстановке! Пространство оборудовано мебелью, выполненной на заказ, и качественной техникой известных брендов Bosch, Samsung и Jetair. Сан узел оснащен сантехникой премиум-класса от признанных лидеров рынка Grohe и Hansgrohe. Ремонт высокого класса включает в себя : идеально ровные стены с шумоизоляцией, инженерную инфраструктуру. Двери выполнены из натурального дерева по индивидуальному проекту. Расширенные стеклопакеты добавляет свет и обьем квартире, что создает дополнительный комфорт и уютную обстановку. Радиаторы отопления скрыты декоративными панелями, что придаёт помещению особую эстетику и гармонию. Установлена современная многоступенчатая система очистки воды, обеспечивающая отличное качество питьевой и бытовой воды. Вместе с квартирой можно приобрести парковочное место!! Эта квартира ждёт своего владельца, готового оценить безупречный вкус и эксклюзивность проживания в городе с видом на бесконечные горизонты. Жду на просмотр!
    размещено: 29.11.2025 , обновлено: 19.04.2026

Новостройки Екатеринбург, мкр-н. Центр

Приоритет

Увеличивает просмотры в 3 раза

Ваше объявление показывается в списке выше обычных объявлений. подключить