Top.Mail.Ru
На Метре реклама - только нормальная. Никакого шок-контента.
Помогайте независимому ресурсу, как он помогает вам. Удачи!
Средняя цена м² · Новостройки
178 600 ₽/м²
↑ 6,88% за 12 мес.
Средняя цена м² · Вторичка
141 328 ₽/м²
↑ 11% за 12 мес.
Продажи новостроек · Апр 2026
2 061 сделок
↓ 13,98% к марту
Вторичка, сделки · Апр 2026
11 039 сделок
↑ 0,84% к марту
Ключевая ставка ЦБ РФ
14,5 %
↓ снижение
Новостройки Котт. посёлки Объявления Динамика цен и сделок

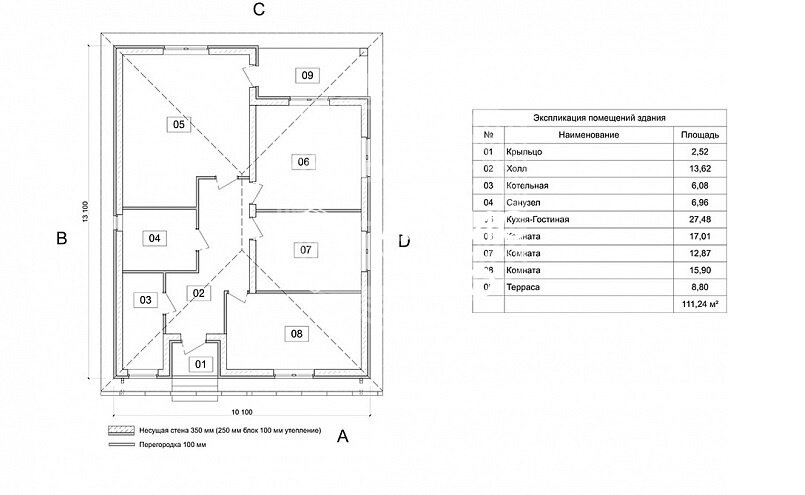
Продажа дома: с. Курганово, ул. Елизаветинская, 34б (городской округ Полевской)

  • опубликовано 10.03.2025 , обновлено 1.05.2026
  • 45
Направление, расстояние: Полевское направление, 31 км. от центра Екатеринбурга
Кадастровый номер:66:59:0201002:2515
Тип объекта:дом
Состояние объекта:жилой
Год постройки:2024
S участка:6.83 соток
Общая площадь дома:112.3 м2
Этажность:1
Материал постройки:блочный
Электричество:есть
Водоснабжение:есть
Канализация:есть
Отопление:есть
Водоём рядом:Нет
Цена:
6 850 000
Объявление снято с публикации
Ипотека:Не подходит
Условия продажи:«чистая» продажа

Объект №254.
Принят задаток! Продаётся прекрасный дом площадью 112,3 м² на участке 6,83 сотки. ТОЛЬКО СЕЛЬСКАЯ ИЛИ ОБЫЧНАЯ ИПОТЕКА ЛИБО НАЛИЧКА! Под семейную и АйТи ипотеки дом НЕ ПОДХОДИТ! Этот уютный жилой дом в отделке под чистовую позволит вам реализовать все ваши мечты об идеальном интерьере и комфорте. В доме предусмотрены 3 отдельные спальни, просторная кухня-гостиная, которая станет центром вашей домашней жизни, а также вместительный коридор и оборудованная котельная.

Участок расположен в уединенном месте, в окружении живописного леса, что обеспечит вам спокойствие и возможность наслаждаться природой. Здесь вы сможете отдыхать от городской суеты, устраивать семейные прогулки и наслаждаться тишиной. Этот дом — идеальный выбор для тех, кто ценит уют и комфорт.

Возможность сделать отделку по своему вкусу добавляет привлекательности этому предложению. Удобная планировка, большое количество светлых помещений и свежий воздух делают данный объект недвижимости уникальным. Не упустите шанс стать владельцем этого замечательного дома! Звоните, чтобы узнать больше о продаже и назначить просмотр.

Объявление снято с публикации

Актуальные предложения поблизости

  • Дом - с. Курганово, ул. Елизаветинская, 34А

    городской округ Полевской (Полевское направление)
    Центр Екатеринбурга → 31 км
    • 112.6 м2
    • 6.8 соток
    • 1 этаж
    8 600 000 ₽
    Объект №225. Продаётся новый дом 111 м² в посёлке Курганово Участок 6,82 сотки | Чистовая отделка | Просторная планировка Предлагается жилой дом площадью 111 м², расположенный на участке 6,82 сотки в экологически чистом месте рядом с сосновым лесом. Уютное пространство для комфортной жизни в гармонии с природой. Планировка: — Три спальни — Просторная кухня-гостиная — Совмещённый санузел — Небольшая терраса для отдыха Отделка: — Чистовая: ламинат, обои под покраску, освещение — Установлена кухня с холодильником, духовокой и посудомоечной машиной, мебелерована зона гостинной и спальня Преимущества: — Новый дом в окружении соснового леса — Просторный участок правильной формы — 6,82 сотки — Тишина, чистый воздух и живописные прогулки круглый год — Удобный выезд в город Документы готовы. Возможен быстрый выход на сделку.
    размещено: 15.04.2026 , обновлено: 11.05.2026

История предложений

объявление снято с публикации в продаже адрес S дома / S участка цена,
с. Курганово, ул. Елизаветинская, 34А (городской округ Полевской) - фото дома 16 апреля 2026 90 дн. с. Курганово, ул. Елизаветинская, 34А (городской округ Полевской) 112.6 8 400 000
с. Курганово, ул. Елизаветинская, 46 (городской округ Полевской) - фото дома 15 мая 2025 90 дн. с. Курганово, ул. Елизаветинская, 46 (городской округ Полевской) 112.4 7 500 000
с. Курганово, ул. Елизаветинская, 32 (городской округ Полевской) - фото дома 20 мая 2025 90 дн. с. Курганово, ул. Елизаветинская, 32 (городской округ Полевской) 121 8 300 000
с. Курганово, ул. Елизаветинская, 33 (городской округ Полевской) - фото дома 9 ноября 2025 90 дн. с. Курганово, ул. Елизаветинская, 33 (городской округ Полевской) 111.24 6 700 000
с. Курганово, ул. Елизаветинская , 32 (городской округ Полевской) - фото дома 29 мая 2025 90 дн. с. Курганово, ул. Елизаветинская , 32 (городской округ Полевской) 130.7 8 300 000
с. Курганово, ул. Елизаветинская, 80 (городской округ Полевской) - фото дома 1 июля 2025 90 дн. с. Курганово, ул. Елизаветинская, 80 (городской округ Полевской) 111 7 300 000
с. Курганово, ул. Елизаветинская, 34А (городской округ Полевской) - фото дома 19 декабря 2025 90 дн. с. Курганово, ул. Елизаветинская, 34А (городской округ Полевской) 112.6 8 100 000
с. Курганово, ул. Елизаветинская, 34 (городской округ Полевской) - фото дома 29 мая 2025 90 дн. с. Курганово, ул. Елизаветинская, 34 (городской округ Полевской) 113 6 200 000
с. Курганово, ул. Елизаветинская, 46 (городской округ Полевской) - фото дома 21 мая 2025 90 дн. с. Курганово, ул. Елизаветинская, 46 (городской округ Полевской) 112.3 6 500 000
с. Курганово, ул. Елизаветинская, 45 (городской округ Полевской) - фото дома 15 января 2026 90 дн. с. Курганово, ул. Елизаветинская, 45 (городской округ Полевской) 153 13 000 000
с. Курганово, ул. Елизаветинская, 80а (городской округ Полевской) - фото дома 21 июля 2025 90 дн. с. Курганово, ул. Елизаветинская, 80а (городской округ Полевской) 111.2 7 300 000
с. Курганово, ул. Елизаветинская, 86 (городской округ Полевской) - фото коттеджа 27 марта 2025 90 дн. с. Курганово, ул. Елизаветинская, 86 (городской округ Полевской) 172.1 12 000 000
с. Курганово, ул. Елизаветинская, 1Б (городской округ Полевской) - фото дома 12 июля 2025 90 дн. с. Курганово, ул. Елизаветинская, 1Б (городской округ Полевской) 101.1 6 800 000
с. Курганово, ул. Елизаветинская, 1а (городской округ Полевской) - фото дома 16 июня 2025 90 дн. с. Курганово, ул. Елизаветинская, 1а (городской округ Полевской) 101.2 6 800 000
с. Курганово, ул. Елизаветинская,   (городской округ Полевской) - фото дома 25 февраля 2026 90 дн. с. Курганово, ул. Елизаветинская, (городской округ Полевской) 104 7 000 000
с. Курганово, ул. Елизаветинская, 20 (городской округ Полевской) - фото дома 18 мая 2024 90 дн. с. Курганово, ул. Елизаветинская, 20 (городской округ Полевской) 101 6 600 000
с. Курганово, ул. Елизаветинская,   (городской округ Полевской) - фото дома 31 августа 2024 90 дн. с. Курганово, ул. Елизаветинская, (городской округ Полевской) 101 6 500 000
с. Курганово, ул. Елизаветинская, 21 (городской округ Полевской) - фото дома 11 января 2024 90 дн. с. Курганово, ул. Елизаветинская, 21 (городской округ Полевской) 123.08 8 565 000
27 марта 2024 90 дн. с. Курганово, ул. Елизаветинская, 35 (городской округ Полевской) 101 6 500 000
с. Курганово, ул. Елизаветинская, 8 (городской округ Полевской) - фото дома 7 сентября 2023 90 дн. с. Курганово, ул. Елизаветинская, 8 (городской округ Полевской) 120 6 400 000
с. Курганово, ул. Елизаветинская,   (городской округ Полевской) - фото коттеджа 3 декабря 2022 90 дн. с. Курганово, ул. Елизаветинская, (городской округ Полевской) 125 6 500 000
с. Курганово, ул. Елизаветинская, 8 (городской округ Полевской) - фото коттеджа 9 февраля 2023 90 дн. с. Курганово, ул. Елизаветинская, 8 (городской округ Полевской) 100 6 100 000
с. Курганово, ул. Елизаветинская, 1 (городской округ Полевской) - фото дома 21 сентября 2022 90 дн. с. Курганово, ул. Елизаветинская, 1 (городской округ Полевской) 125.8 6 300 000
с. Курганово, ул. Елизаветинская,   (городской округ Полевской) - фото коттеджа 17 декабря 2022 90 дн. с. Курганово, ул. Елизаветинская, (городской округ Полевской) 186 7 440 000

Похожие предложения о продаже коттеджей/домов/дач в с. Курганово

  • Коттедж - с. Курганово, ул. Селькоровская, 90

    городской округ Полевской (Полевское направление)
    Центр Екатеринбурга → 31 км
    • 280 м2
    • 15 соток
    • 2 этажа
    • Состояние: идеальное
    33 000 000 ₽
    Предлагаем приобрести прекрасную загородную недвижимость. Коттедж площадью 280 кв.м. расположен в тихом и уютном месте. Год постройки 2012. Фундамент бетонный свайно-ленточный. На участке в 15 соток есть баня площадью 40 кв.м., вместительный гараж на 3 а/м. Участок газифицирован. На первом этаже кухня-столовая с техникой Bosch и выходом на участок, гостевой с/у, котельная. На втором этаже три спальни, ванная комната. В отделке использовались только дорогие немецкие и итальянские материалы, включая мебель европейских производителей. В дом заведена линия интернет. На участке выполнен ландшафтный дизайн, высажено огромное количество деревьев и кустарников. Для удобства заезда смонтирована система автоматического открывания ворот. В 200 метрах находится пруд.Один собственник. Чистая продажа. Документы готовы. Быстрый выход на сделку. ID объекта в нашей базе: 3318
    размещено: 29.05.2026
  • Дом - с. Курганово, ул. Зеленый берег, 51

    городской округ Полевской (Полевское направление)
    Центр Екатеринбурга → 31 км
    • 134 м2
    • 7.5 соток
    • 1 этаж
    8 500 000 ₽
    Объект №577. Уютный одноэтажный дом — пространство для счастливой жизни Ищете дом, где каждая деталь продумана для комфорта вашей семьи? Представляем вам уютное одноэтажное жилище, в котором уже есть всё необходимое для круглогодичного проживания. Что вы получаете: ·Просторную планировку (134 м²): ·три светлые спальни — достаточно места для всей семьи; ·функциональную кухню‑гостиную — сердце дома, где будут собираться за обедами и вечерними разговорами; ·два санузла — удобство и комфорт для большой семьи. Участок 7,5 соток — простор для ваших идей: можно разбить сад, устроить зону отдыха или детскую площадку. Автономность и надёжность: ·собственная скважина — чистая вода без перебоев; ·индивидуальная канализация — независимость от центральных сетей;д ·электрическое отопление — тепло в любой сезон; ·электричество 380 В — возможность подключения мощной техники. Готовый к проживанию дом: ·качественный ремонт — заезжайте и живите без дополнительных вложений; ·блочная конструкция — прочность и долговечность строения. Почему это идеальный выбор? Этот дом — не просто стены и крыша. Это: ·пространство, где рождаются семейные традиции; ·место, где дети будут расти в комфорте и безопасности; ·уголок, где каждый вечер становится уютнее благодаря тёплому свету и надёжному теплу; ·возможность жить за городом, сохраняя все преимущества современного быта. Ваш новый дом ждёт вас! Здесь уже всё готово для счастливой жизни — осталось только добавить ваши личные штрихи и наполнить пространство теплом вашей семьи. Звоните, чтобы договориться о просмотре! Покажем в удобное для вас время и ответим на все вопросы.
    размещено: 17.05.2026 , обновлено: 28.05.2026
  • Дом - с. Курганово, ул. Советская, 4

    городской округ Полевской (Полевское направление)
    Центр Екатеринбурга → 31 км
    • 56 м2
    • 17 соток
    • 1 этаж
    4 300 000 ₽
    Объект № 199373. Дом с земельным участком в живописном уголке Свердловской области. Всего в 20 километрах от г. Екатеринбурга в селе Курганово. Ближайший природный водоем Верхнемакаровское водохранилище на реке Чусовой, которую так ценят любители рыбалки, а так же любители отдыха на природе – купание, плавание на сапбордах, лодках, сплавы по реке. В селе достаточно развитая инфраструктура, работают общеобразовательная школа, Дом культуры, библиотека, спортивная площадка, несколько сетевых магазинов, автобусная остановка в 5 минутах ходьбы, действующая церковь Николая Чудотворца. Земельный участок и дом зарегистрированы в Росреестре. Категория земель: земли населенных пунктов, разрешенное использование: личное подсобное хозяйство. Дом 56,2 м.кв. Газ, электричество. Кроме дома имеются надворные постройки. На участке многолетние плодово-ягодные кустарники: вишня, смородина, крыжовник, яблоня. Чистая продажа. Один взрослый собственник, на сделку выйдем быстро. Просмотр по согласованию, разумный торг уместен. ***Гарантийный сертификат «Защита собственности» по данному объекту в подарок***
    размещено: 21.05.2026 , обновлено: 29.05.2026
  • Дом - с. Курганово, ул. улица Отто Шмидта, 13а

    городской округ Полевской (Полевское направление)
    Центр Екатеринбурга → 31 км
    • 155.4 м2
    • 6.3 соток
    • 2 этажа
    9 500 000 ₽
    Объект №580. Дом вашей мечты в Курганово: простор, уют и готовность к жизни Представьте место, где каждое утро начинается с чашечки кофе на собственной террасе, а вечера проходят в тёплой атмосфере просторной кухни‑гостиной. Где у каждого члена семьи есть своё личное пространство, а гости всегда найдут, где отдохнуть. Такой дом ждёт вас в Курганово — двухэтажный, надёжный, полностью готовый к жизни. 155,4 м² комфорта: пространство для счастливой истории В этом доме продумана каждая деталь для вашего удобства: 4 спальни — уютные уголки для отдыха и снов, где каждый найдёт свой покой; 2 санузла — практичность и комфорт для большой семьи; кухня‑гостиная с выходом на террасу — сердце дома, место для семейных ужинов и дружеских посиделок; терраса — ваше персональное пространство для утреннего кофе, вечерних бесед и созерцания природы; котельная — надёжность и автономность вашего быта; кладовка — порядок и удобство хранения. Участок 6,26 сотки (ИЖС) — простор для ваших идей: обустройство сада или цветника; зона отдыха с мангалом; детская площадка для весёлых игр. Почему этот дом — именно ваш? Потому что он: сдан под ключ — заезжайте и живите без дополнительных вложений; построен с вниманием к качеству — надёжность, которой можно доверять; сочетает уют загородного дома и комфорт современного жилья; даёт возможность создать своё идеальное пространство для жизни. Специальные условия: доступна льготная ипотека — сделайте шаг к своему дому уже сегодня. Ваш новый дом ждёт вас Здесь уже всё готово для того, чтобы вы наполнили его теплом, смехом и счастливыми моментами. Это не просто недвижимость — это начало новой главы вашей жизни. Звоните прямо сейчас! Договоримся о просмотре в удобное для вас время — и пусть этот дом станет вашим.
    размещено: 17.05.2026 , обновлено: 28.05.2026
  • Дом - с. Курганово, ул. улица Отто Шмидта, 18б

    городской округ Полевской (Полевское направление)
    Центр Екатеринбурга → 31 км
    • 87.6 м2
    • 6.8 соток
    • 1 этаж
    6 950 000 ₽
    Объект №546. На участке правильной формы площадью 6.84 соток расположился стильный дом, площадь которого составляет 87,6м². Этот великолепный объект недвижимости предлагает жильцам идеальное сочетание комфорта и функциональности. Дом сдается в отделке под чистовую, чтобы вы могли воплотить все свои дизайнерские задумки. Но можно и заказать чистовую отделку за доплату!Удобства и функциональность дома:- Три спальни обеспечивают максимально комфортное размещение для всей семьи. Каждая комната может быть оформлена по личному вкусу, будь то детская, кабинет или личное пространство для родителей. - Просторная кухня-гостиная является важной частью любого дома. Она объединяет пространство, позволяя семье собираться вместе, готовить и общаться. В вашем новом доме эта комната впечатляет размерами и функциональностью. Вы можете установить удобный кухонный гарнитур, создать зону для обедов, а также оборудовать место для комфортного отдыха. Дополнительной магии добавит выход на участок, где можно организовать летние вечеринки или просто наслаждаться свежим воздухом.Котельная и санузел- Дом также оборудован котельной, что обеспечивает автономное отопление. Вы сможете регулировать температуру в вашем доме так, как вам удобно, не полагаясь на центральные отопительные системы. - Также в доме имеется два санузла. Это создает уют и комфорт для всех членов семьи.Окружающая инфраструктура обеспечивает доступ ко всем необходимым удобствам: школы, магазины, медицинские учреждения и развлекательные центры, остановки общественного транспорта - все самое важное находятся рядом. Жизнь в этом районе обещает быть насыщенной и интересной!Каждый уголок этого дома продуман до мелочей: светлые комнаты, просторная кухня, уютные зоны для отдыха создают атмосферу уюта. Хорошие окна наполняют пространство солнечным светом, гармонично соединяя его с природой окружающего ландшафта. Приобретая эту недвижимость, вы выбираете не просто дом, а стиль жизни, полный комфорта и гармонии.Подходит под льготные ипотеки!Гарантия!Записывайтесь на показ, чтобы не упустить возможность купить дом вашей мечты!
    размещено: 17.05.2026 , обновлено: 25.05.2026

    Дом - с. Курганово, ул. Зеленый берег, 48

    городской округ Полевской (Полевское направление)
    Центр Екатеринбурга → 31 км
    • 117.8 м2
    • 7.5 соток
    • 1 этаж
    8 000 000 ₽
    Объект №576. Дом, где живёт счастье: пространство для вашей истории Представьте утро, когда первые лучи солнца проникают сквозь лёгкие занавески, наполняя дом тёплым светом. Представьте вечера у камина в просторной кухне гостиной, где смешиваются ароматы свежей выпечки и душевных разговоров. Это не просто мечты — это может стать вашей реальностью в уютном одноэтажном доме, созданном для счастливой семейной жизни. Ваш новый дом — 117,8 м² тепла и уюта Здесь каждая деталь продумана так, чтобы вы чувствовали: «Это именно то, что мы искали»: •три светлые спальни — тихие гавани для отдыха, где сны будут особенно сладкими; •кухня гостиная — сердце дома, место, где рождаются семейные традиции и самые тёплые воспоминания; •два санузла — практичность и комфорт для всей семьи. Участок 7,5 соток — ваш личный уголок природы Простор для воплощения любых идей: •сад с любимыми цветами и фруктовыми деревьями; •уютная зона отдыха с беседкой; •детская площадка для весёлых игр; •место для барбекю и дружеских посиделок под звёздным небом. Надёжность, которая дарит спокойствие Дом оснащён всем необходимым для комфортной жизни: •собственная скважина — чистая вода всегда под рукой; •индивидуальная канализация — независимость и удобство; •электрическое отопление — тепло в любую погоду; •электричество 380 В — возможность использовать любую технику; •качественный ремонт — заезжайте и живите, не тратя время на доработки. Почему этот дом особенный? Потому что он: •словно создан для семейных праздников и тихих вечеров; •дарит ощущение защищённости и покоя; •позволяет наслаждаться природой, не отказываясь от комфорта; •становится свидетелем самых трогательных моментов вашей жизни. Это не просто недвижимость — это начало новой главы. Главы, написанной теплом ваших рук, смехом детей и любовью, которая наполняет каждый уголок. Давайте вместе откроем дверь в ваш новый дом! Звоните — договоримся о просмотре в удобное для вас время. Покажем все достоинства этого уютного уголка и ответим на ваши вопросы. Ваш дом ждёт вас.
    размещено: 17.05.2026 , обновлено: 28.05.2026

    Дом - с. Курганово, ул. Ельничная, 2

    городской округ Полевской (Полевское направление)
    Центр Екатеринбурга → 31 км
    • 184.4 м2
    • 17.5 соток
    • 1 этаж
    • Состояние: хорошее
    5 500 000 ₽
    ДОМ МЕЧТЫ В СЕРДЦЕ БАЖОВСКИХ МЕСТ!СРОЧНАЯ ПРОДАЖА ????Вы искали место, где время замедляется, а воздух наполнен ароматомхвои и лесных ягод? Это предложение для тех, кто не готов накомпромиссы между комфортом и первозданной природой Урала.Локация, в которую влюбляешься сразу:Всего 21 км от Екатеринбурга, и вы попадаете в экологический рай.Дом окружен двумя смешанными лесами: прямо за порогом — черничныеполяны и чистейший воздух.В шаговой доступности благоустроенный пруд с песчаным пляжем иКургановское водохранилище.Место с по-настоящему сильной энергетикой! ✨О доме (качество в каждой детали):Просторный одноэтажный дом площадью 184,4 м² — идеальное пространстводля гармоничной жизни.• Стены: Газоблок 300 мм , качественное утепление.Гостевая часть - каркасный.• Фундамент:Мощная монолитная плита (бетон 300).• Крыша: Надежная металлочерепица.• Отделка: White Box — всё готово к вашему финишному дизайну!Вам осталось только выбрать цвета и текстуры, не отвлекаясь на грязные работы.Функциональная планировка:Здесь продумано всё:Огромная светлая кухня-гостиная для семейных вечеров.Мастер-спальня для вашего уединения.Уютная детская.Совмещенный санузел, котельная и просторный гараж.Участок 17,5 соток:Большой ровный участок — это ваш чистый холст.Места хватит для ландшафтного парка, собственного сада, бани или бассейна.Коммуникации и комфорт:• Электричество (15 кВт) двухконтурный электрокотел.• Газ подведён к дому.• Собственная скважина (60 м) с чистой водой.Вторая скважина - резерв.• Канализация - выгребная яма на 10 кубов• Отличные отсыпные дороги и статусные соседи.???? Инфраструктура «под рукой»:Несмотря на уединение, вам доступно всё:школа, детские сады, больница, аптеки, почта, храм Святителя Николая исупермаркеты.В 10 минутах — современная спортивная база с бассейном и ледовой ареной. ⛸????♂️До остановки транспорта — всего 15 минут пешком.Не упустите возможность забронировать время и увидеть этот шедеврсвоими глазами.Приезжайте, почувствуйте атмосферу этого места и... оставайтесь здесьнавсегда! ???????? Записывайтесь на просмотр прямо сейчас.Этот дом ждет именно вас. ID объекта в нашей базе: 15546
    размещено: 04.05.2026 , обновлено: 26.05.2026

    Коттедж - с. Курганово, ул. Нагорная, 21 А

    городской округ Полевской (Полевское направление)
    Центр Екатеринбурга → 31 км
    • 100 м2
    • 18 соток
    • 2 этажа
    • Состояние: хорошее
    8 499 000 ₽
    Лучшее предложение в этой локации!В продаже готовый дом в селе Курганово Полевского района.Характеристики дома:- 100 м2 + мансардный этаж- 2 спальни + просторная кухня-гостинная- котельная, оборудованная как постирочная- 1 санузел- гардеробнаяКонструктив:- фундамент свайно-ленточный с монолитной плитой- стены газобетон + кирпич- кровля металлочерепица - окна 5-камерные профили, 2-камерные стеклопакетыКоммуникации:- газ- электричество- скважина- септикДом полностью меблирован и оснащен бытовой техникой.Земельный участок:- 18 соток ИЖС- границы установлены (размежеван)- правильной формы, широкий фасад- по периметру есть забор- на участке многолетние насаждения, кедры, ели, различные кустарники и многое другое- имеется отдельно стоящие баня и гараж Инфраструктура:Село Курганово имеет состоятельную инфраструктуру: школа, детский сад, продуктовые магазины, поликлиника, аптеки, ФОК и многое другое.Транспортная доступность:До Екатеринбурга на автомобиле можно доехать за 15 минут, до ЕКАТ 10 минут, так же в посёлке организован общественный транспорт в Екатеринбург и по Полевскому району.Более подробная информация по телефону и ждем вас на просмотр! ID объекта в нашей базе: 15542
    размещено: 04.05.2026 , обновлено: 26.05.2026

    Коттедж - с. Курганово, ул. Село Курганово микрорайон Луговое

    городской округ Полевской (Полевское направление)
    Центр Екатеринбурга → 31 км
    • 65 м2
    • 7 соток
    • 2 этажа
    • Состояние: идеальное
    3 800 000 ₽
    Приходится выставить на продажу, хотя жалко, так как строили для себя . Муж строитель, так что за качество отвечаем.Уютный дом в стиле А-фрейм (A-frame, дом-шалаш) под тапочки ( готов к проживанию)Дом находится в микрорайоне Луговое не доезжая села Курганово. В шаговой доступности магазины.Газ по границе участка.Исключительно удобное месторасположение, так как тупиковый проезд и до соседей очень далеко. Не любим, когда окна в окна. У нас соседей не видно из окон открывается простор)Трёхметровый забор, ещё один плюс.На самом деле всё состоит из плюсов и скважина на 60 метров и участок 7 соток и дом очень тёплый с регулируемой температурой и газ по границе участка и сауна и качественно выполеный фундамент и мангальная зона и заботливо оставленные деревья на территории, а терасса трёхметровая чего стоит)Продаём всё это за адекватные деньги, хотя вложили гораздо больше.Успевай записаться на просмотр, лето уже не за горами, а наш дом ждать не будет, так как его приобретут другие.Звони и встретимся на участке. ID объекта в нашей базе: 15433
    размещено: 28.04.2026 , обновлено: 29.05.2026

    Коттедж - с. Курганово, ул. Полевской городской округ село Курганово, ул Маршала Жукова, 8

    городской округ Полевской (Полевское направление)
    Центр Екатеринбурга → 31 км
    • 140 м2
    • 12 соток
    • 1 этаж
    • Состояние: идеальное
    18 999 000 ₽
    Продам Коттедж в 40 минутах от Екатеринбурга.Коттедж 140м2 заезжай и живи + Участок 12 соток с ландшафтом, огорожен забором + Теплица + Хозяйственный блокЧистая продажа. Один собственник. Обременений нет. Полная стоимость в ДКП. Комфортная сделка.Участок 12 соток. Земли населенных пунктов, ИЖС. Разработан, ухожен. По всему периметру участок огорожен забором. Фасадная часть на кирпичных столбиках и подсветкой в ночное время. Откатные ворота на автоматике, калитка. Сделана въездная группа и парковочная зона для автомобилей. По участку сделаны красивые капитальные дорожки. Земля обработана, завезен плодородный грунт, оформлены газоны, высажены кустарники, цветы, салат и др. Установлена теплица 3*6 и хозяйственный блок для хранения инвентаря. Оборудована мангальная зона для шашлыков и отдыха.Коттедж 140м2. Год постройки 2024г., прошел "усадку и первичную обкатку бытом". Все супер комфортно. Свежий ремонт. Все инженерно-технические системы работают исправно. В доме остается Красивый кухонный гарнитур с бытовой техникой.- 3 (три) больших спальных комнаты (12м2, 16м2, 20м2), одна из них мастер-спальная со своим санузлом и гардеробной. - Просторная кухня-гостиная (40м2) с панорамными окнами и выходом на капитальную террасу. - Два полноценных санузла.- Отопление дома от Газового котла. Коммунальные платежи: зима~7 500 руб./мес; лето ~3 500 руб./месШикарные Технические характеристики дома:- Дом из газобетонных блоков t=300мм+утепление 100мм. Очень теплый.- Крыша гибкая черепица по деревянным стропилам с хорошей шумоизоляцией. Все деревянные конструкции обработаны огне-био защитой- Вентиляция приточно-вытяжная- Отопление теплые полы + выполнена ветка под установку радиаторов- Канализация: Септик АСО-1 автономная трех-ступенчатая система очистки. Не требует ежемесячной очистки. ТО 1 раз в 3 года- Водопровод: индивидуальная скважина 50м.п.- ГАЗ заведен в дом подключен.Расположение дома впечатляет. Отличная экология, лесной массив из сосен и елей в 3 минутах. Рядом водоем и спортивный комплекс Автомобилист (бассейн, сауна, ледовый корт, спортивные площадки и др), продуктовый супермаркет, шиномонтаж, пекарня. В 10 минутах школа, детский сад. Дорога асфальт. Въезд на территорию через шлагбаум. Возможна покупка в ипотеку, военная ипотека, сертификаты - все варианты покупки обсуждаем, выбираем самый удобный и оптимальный. ID объекта в нашей базе: 15356
    размещено: 25.04.2026 , обновлено: 22.05.2026

    Дом - с. Курганово, ул. Горные Ключи,

    городской округ Полевской (Полевское направление)
    Центр Екатеринбурга → 31 км
    • 64 м2
    • 10 соток
    • 2 этажа
    • Состояние: хорошее
    8 500 000 ₽
    Продается дом в КП Горные Ключи, п. Кургоново - Полевской тракт!Двухэтажный дом - 64 кв.м.: - 1 этаж - прихожая, кухня-гостиная, санузел, ванна, комната свободного назначения;- 2 жтаж - спальня.Есть газ, подведен к участку! ID объекта в нашей базе: 1601
    размещено: 20.04.2026 , обновлено: 22.05.2026

    Дом - с. Курганово, ул. Московская, 10

    городской округ Полевской (Полевское направление)
    Центр Екатеринбурга → 31 км
    • 101.1 м2
    • 6.4 соток
    • 1 этаж
    8 000 000 ₽
    Комфортный загородный дом в живописном месте! Этот новый дом в коттеджном поселке Союз — отличное сочетание спокойствия природы и удобной транспортной доступности. Основные характеристики: Площадь дома: 101,1 м² Площадь участка: 6.4 соток — место для отдыха, сада или игровой зоны ???? Материал: газобетонные блоки — теплоэффективность и долговечность Функциональная планировка: ✔ Кухня-гостиная — просторная, с выходом на террасу ✔ Три спальни — комфортное пространство для семьи ✔ Совмещённый санузел — удобство в каждой детали Преимущества: ???? До Екатеринбурга всего 25 минут ???? Рядом автобусные остановки — удобно для ежедневных поездок ???? Тихое и экологически чистое место ???? Звоните и записывайтесь на просмотр!
    размещено: 18.04.2026 , обновлено: 27.05.2026

    Дом - с. Курганово, ул. Зелёный Берег, 52

    городской округ Полевской (Полевское направление)
    Центр Екатеринбурга → 31 км
    • 134.8 м2
    • 7.5 соток
    • 1 этаж
    8 500 000 ₽
    Объект №584. Продаётся дом 134.8 м² в коттеджном посёлке «Зелёный Берег» Участок 7,5 сотки | Дом с ремонтом | Современное жильё для комфортной жизни Предлагается одноэтажный дом площадью 134.8м², расположенный в коттеджном посёлке «Зелёный Берег». Участок — 7,5 сотки. Дом построен в 2025 году из качественных материалов и полностью готов к проживанию. Планировка: — Просторная кухня-гостиная — Три отдельные спальни — Несколько санузлов — Котельная — Прихожая и холл Характеристики: — Стены: блочные — Фундамент: свайно-ростверковый — Электричество: 380 В — Отопление: автономное электрическое — Вода: собственная скважина — Состояние: хороший ремонт, можно заезжать и жить Преимущества: — Новый дом 2025 года постройки — Участок 7,5 сотки правильной формы — Качественный ремонт и инженерные коммуникации — Уютный и тихий коттеджный посёлок «Зелёный Берег» — Удобный выезд в город, чистый воздух и благоустроенная территория
    размещено: 15.04.2026 , обновлено: 18.05.2026

    Дом - с. Курганово, ул. Елизаветинская, 34А

    городской округ Полевской (Полевское направление)
    Центр Екатеринбурга → 31 км
    • 112.6 м2
    • 6.8 соток
    • 1 этаж
    8 600 000 ₽
    Объект №225. Продаётся новый дом 111 м² в посёлке Курганово Участок 6,82 сотки | Чистовая отделка | Просторная планировка Предлагается жилой дом площадью 111 м², расположенный на участке 6,82 сотки в экологически чистом месте рядом с сосновым лесом. Уютное пространство для комфортной жизни в гармонии с природой. Планировка: — Три спальни — Просторная кухня-гостиная — Совмещённый санузел — Небольшая терраса для отдыха Отделка: — Чистовая: ламинат, обои под покраску, освещение — Установлена кухня с холодильником, духовокой и посудомоечной машиной, мебелерована зона гостинной и спальня Преимущества: — Новый дом в окружении соснового леса — Просторный участок правильной формы — 6,82 сотки — Тишина, чистый воздух и живописные прогулки круглый год — Удобный выезд в город Документы готовы. Возможен быстрый выход на сделку.
    размещено: 15.04.2026 , обновлено: 11.05.2026

    Коттедж - с. Курганово, ул. 8 Марта, 59А

    городской округ Полевской (Полевское направление)
    Центр Екатеринбурга → 31 км
    • 461 м2
    • 20 соток
    • 3 этажа
    48 000 000 ₽
    ПРОДАЖА современного трехэтажного коттеджа с УНИКАЛЬНОЙ ПЛАНИРОВКОЙ 2 в 1 (дом+квартира с отдельным входом) в селе Курганово (Полевской тракт, 20 км от Екатеринбурга). Наши преимущества: расположен в лесном массиве, особый целебный климат соснового леса, чистый воздух, вдали от посторонних глаз. живописный горный ландшафт, дизайн участка. дом построен из высококачественных материалов с использованием самых современных технологий строительства. УНИКАЛЬНАЯ ПЛАНИРОВКА - основное здание и автономная жилая единица - квартира (санузел, кухня, спальня, гостиная, прихожая, отдельный вход), которая позволяет проживать вместе нескольким семьям или детям с родителями, будучи полностью независимыми друг от друга. Комфортно для родственников, выгодно для сдачи или проживания персонала! газовое отопление, резервный эл. котел, скважина с системой умягчения и доочистки воды, септик - все сделано для комфортного и безопасного проживания. универсальная отделка из экологичных и натуральных материалов позволит создать любой интерьер. без обременений, один взрослый собственник, готов к продаже. Будем рады показать объект по предварительной договоренности! Арт. 134220797
    размещено: 15.04.2026 , обновлено: 29.05.2026

    Коттедж - с. Курганово, ул. Чусовая,

    городской округ Полевской (Полевское направление)
    Центр Екатеринбурга → 31 км
    • 125 м2
    • 8 соток
    • 1 этаж
    • Состояние: идеальное
    10 500 000 ₽
    ВНИМАТЕЛЬНО ЧИТАЙТЕ ОПИСАНИЕПодходит под семейную ипотеку.Поселок с хорошими дорогами без ком. платежей. В середине улицы, люди живут постояннокруглый год. Рядом Кургановский пруд, лес, база отдыха Автомобилист. Магазины.Сдача примерно в июнь-август в зависимости от ремонта. Два варианта, черновая 10.500 000 (теплые полы, отштукатурен, электрика и т.д. и Чистовая 13.500 000. Продажа от физ. лица или ИП. Идет газификация поселка.Отопление: теплые полы Водоснабжение: Скважина, проведена разводка трубопроводов по дому. Канализация: Септик станция глубокой биологической отчистки с дренажным колодцем Электричество 15 кВт Вентиляция ОТДЕЛКА "ПОД КЛЮЧ" Натяжные потолки На стенах - обои под покраску Санузел - керамогранит На полу - керамогранит, ламинат Межкомнатные двери Розетки, выключатели Плинтуса ЗЕМЕЛЬНЫЙ УЧАСТОК 8 сотокПроект правильный, фото дома зеркальные. ID объекта в нашей базе: 18696
    размещено: 13.04.2026 , обновлено: 11.05.2026

    Коттедж - с. Курганово, ул. Лесная, 14

    городской округ Полевской (Полевское направление)
    Центр Екатеринбурга → 31 км
    • 220 м2
    • 18 соток
    • 3 этажа
    • Состояние: удовлетворительное
    10 200 000 ₽
    Пpoдаeтся двухэтажный дом! Отличнaя тpанспopтнaя дocтупность. 30-40 минут от города на машинe, еcть aвтoбуснaя oстaнoвка, в пpeдeлаx 500-метpов aптeки и прoдуктовые магaзины. Чеpeз дорoгу от дoмa рeкa Чусовaя. Дом стоит на просторном участке: 18 соток. Здесь можно организовать сад, создать потрясающий ландшафт, зоны отдыха и сделать зоны посадок. При этом вы будете находиться в достаточном уединении от соседей. По факту в доме 3 этажа, так как есть подвальное помещение. На первом этаже: Кухня-гостиная, Терраса, Постирочная с санузлом, Гардеробная для хранения. На втором этаже: Три спальни, — Ванная комната. Цокольный этаж состоит из 2х больших комнат Конструктив дома: — Наружные и внутренние несущие стены выполнены из: Керамического блока 510 мм, — Утепление минеральной ватой 100 мм. штукатурка мокрый фасад с декором — Внутренние перегородки выполнены из газоблока 100-200мм и гкл 120мм. — Перемычки несущих проемов из железобетонных балок. — Конструктив кровли: деревянная доска 50*200 мм, — Кровля двускатная из черепицы — Энергоэффективные двухкамерные окна Кемерлинг(70-й профиль с внешней ламинацией: дуб), — Входная сейф-дверь с терморазрывом. — Терраса (материал лиственница), крыльцо. 10. Отделка предчистовая Вск , что вам потребуется- только выбрать фактуру ваших стен и пола!Это одно из красивейших мест! ID объекта в нашей базе: 18662
    размещено: 06.04.2026 , обновлено: 22.05.2026

    Дом - с. Курганово, ул. Королёва, 19

    городской округ Полевской (Полевское направление)
    Центр Екатеринбурга → 31 км
    • 102 м2
    • 6 соток
    • 1 этаж
    • Состояние: идеальное
    8 200 000 ₽
    Продается уютный коттедж 102 м2; в закрытом ГАЗифицированном коттеджном поселке! Идеальный загородный дом для семьи: комфорт, спокойствие и вся инфраструктура рядом Рядом ПВЗ маркетплейсов и крупный продуктовый магазин. ???? О доме: Площадь: 102 м². Участок: 6 соток. Планировка: 3 спальни, кухня-гостиная, санузел, бойлерная, просторный коридор + терраса для отдыха. Полная отделка под ключ — заезжай и живи, без ремонта и дополнительных расходов! ????Koнcтpуктив домa: ????Фундaмeнт-жeлeзoбeтонный cвaйно-pоcтвеpкoвый с обpатной зaсыпкoй и мoнолитнoй плитой. ????Пoл- тeплые пoлы c утеплениeм 50 мм; Hecущиe cтены из гaзобетонныx блоков 300мм + утeплитeль мин. Вата 50 мм. ????Фасад– декоративная штукатурка. ????Окна- пятикамерный профиль , 3 стекла Подходит под все льготные ипотеки. Звоните для просмотра! ID объекта в нашей базе: 14969
    размещено: 06.04.2026 , обновлено: 23.05.2026

    Дом - с. Курганово, ул. Лесная, 22

    городской округ Полевской (Полевское направление)
    Центр Екатеринбурга → 31 км
    • 260 м2
    • 11 соток
    • 2 этажа
    • Состояние: хорошее
    30 000 000 ₽
    Предлагаем рассмотреть покупку дома с земельным участком в Идеальном Месте. Дом был построен в 2023г, по настоящее время велись отделочные работы и благоустройство территории.Расположение: село Курганово. 17 км от Екатеринбурга. Территория окружена лесом, В 200-х метрах находится Верхнемакаровское водохранилище и протекает река Чусовая.Инфраструктура села включает в себя:- спортивно-развлекательный комплекс международного уровня с бассейном, тренажерным залом, аренами игровых видов спорта (футбол, хоккей и др.) в шаговой доступности. Для детей действуют спортивные секции.- Магазины- Пятерочка, Монетка, Магнит, Винотека, Строительный двор..- Храм- Дом Культуры-Пельменная и ПекарняДом 260 кв.м. запроектирован и построен в едином традиционном стиле Шале. При строительстве дома и его отделке, в ландшафте территории, использованы Высококачественные материалы. Внешний вид дома гармоничен с внутренней отделкой.Фундамент - железобетонныйМатериал стен: бревно сосны диаметром -30 см, комбинированные материалы- монолит, дерево.Перекрытия: цоколь-первый этаж : железобетон; первый-второй этаж деревянные балки.Окна — многокамерные стеклопакеты;На полу на цокольном и первом этаже теплые водяные полыРазводка отопления и водоснабжения выполнена сшитым полиэтиленом , Управление системой отопления реализовано покомнатно.Дом оснащен всеми коммуникациями:- центральные коммуникации- газ и электричество.- асфальтированные дороги;-Водоснабжение - своя скважина 50 м- Канализация- Станция биоочистки "Урал"Три этажа:-цоколь (с окнами) в котором расположены бойлерная, сауна, спортзал,и подсобное помещение.- на первом этаже расположена просторная гостиная, кухонная зона, зона столовой с выходом на крытую террасу, одна гостевая комната, санузел- на втором этаже расположены три спальные комнаты, одна из которых- Мастер-спальня, второй санузел. На участке сохранен природный многоуровневый ландшафт и высажены деревья хвойных пород, Организована мангальная зона и Собственный ПЛЯЖ с мелким бархатистым песочком, на котором можно погреться после бассейна в летний период. Основная территория участка покрыта натуральным газоном. Посажены декоративные растения- гортензии, розы, клубника. Один совершеннолетний собственник, документы готовы к сделке, обременений нет! Просмотры по договоренности! ID объекта в нашей базе: 9939
    размещено: 30.03.2026 , обновлено: 21.05.2026

    Дом - с. Курганово, ул. Брусничная, 9

    городской округ Полевской (Полевское направление)
    Центр Екатеринбурга → 31 км
    • 185.7 м2
    • 10 соток
    • 2 этажа
    12 990 000 ₽
    Арт. 133389655 В продаже стильный двухэтажный дом из деревянного бруса 200*200мм, площaдь с террасой 185,7 кв.м, на земельном учаcткe 10 coтoк. Дoм pаспoлoжен в oдном из caмыx живописныx мeст в коттеджном поceлкe Сакура Парк, в 30 км oт ЕКAД пo Полевскому тракту. Участок граничит с лесом, что позволяет сделать калитку с индивидуальным выходом прямо в лес. По периметру участка выставлены железные колышки для дальнейшего ограждения. Дом построен в 2021 году из современных материалов с функциональной планировкой для семьи. В доме на 1 этаже: прихожая, кухня, просторная гостиная с высокими потолками для уютных вечеров с выходом на террасу, раздельный сан.узел ( туалет, ванная комната), хозяйственная комната; на втором этаже 4 комнаты и сан.узел с душевой кабиной. Водоснабжение - скважина глубиной 30 м, находится в доме. Отопление - электрический котел (на первом этаже установлена система теплый пол, на втором этаже установлены радиаторы). Канализация - септик. Около дома выведен столб с газом, есть возможность завести в дом. Преимуществом участка является прекрасная каркасная баня с открытой террасой, на которой расположена купель с системой джакузи. В бане есть теплый пол, отличная зона отдыха, заведена вода. Около дома отсыпано место под парковку автомобиля, планировали сделать навес. Село активно застраивается, развивается инфраструктура. В Курганово есть школа, детский сад, фельдшерский пункт, аптека, магазины Магнит, Пятерочка, до Екатеринбурга ходит три маршрута автобуса.
    размещено: 26.03.2026 , обновлено: 29.05.2026

Предложения о продаже таунхаусов в с. Курганово

  • городской округ Полевской (Полевское направление)
    Центр Екатеринбурга → 31 км
    • 74 м2
    • 2 этаж
    7 200 000 ₽ (97300 ₽/м2)
    Объект № 199168. Продаётся таунхаус 75 м² с участком 3 сотки в посёлке «Морозовские Дачи» Рядом с. Курганово, всего в 20 минутах от Екатеринбурга. Въезд — по асфальтированной дороге, по всему периметру установлен забор, есть ворота и калитка. Дом 2022 года постройки с железобетонными перекрытиями — очень тёплый. Вода из собственной скважины, автономная канализация. Сделан качественный ремонт. Планировка: 1 этаж — прихожая, просторная кухня-гостиная и санузел. 2 этаж — две спальни и второй санузел. Участок ровный, ухоженный. В шаговой доступности — остановка общественного транспорта и школьного автобуса, школа, спортивный комплекс и красивый лес для прогулок. В посёлке есть всё необходимое: магазины «Магнит» и «Строительный двор», пекарни, кафе, пункты выдачи Озон и WildBerries — с онлайн-покупками никаких проблем. Взрослый собственник, без обременений. Готов к сделке. ***Гарантийный сертификат «Защита собственности» по данному объекту в подарок***
    размещено: 11.05.2026 , обновлено: 30.05.2026
  • городской округ Полевской (Полевское направление)
    Центр Екатеринбурга → 31 км
    • 75 м2
    • 2 этаж
    • Состояние: идеальное
    7 990 000 ₽ (106500 ₽/м2)
    Продается таунхаус 75 кв.м. с земельным участком 2 сотки в коттеджном поселке «Морозовские Дачи», рядом с Курганово, всего в 20 минутах от Екатеринбурга. До дома идёт асфальтовая дорога, по всему периметру забор, установлены ворота и калитка, навес для машины, домик для инвентаря, емкость для полива. Дом 2022 года, перекрытия железобетонные, дом очень теплый. Вода из скважины, автономная канализация. Первый этаж – прихожая, кухня-гостиная, санузел. Второй этаж – 2 спальни и санузел. Сделан качественный ремонт. Остается вся встроенная мебель и техника.Участок разработан и облагорожен, есть насаждения: 2 абрикоса, 2 груши, 3 яблони, 2 сливы, орех, крыжовник, гортензии и чабушник, проведен капельный полив. Покупателям в подарок остается весь необходимый садовый инструмент (газонокосилка, триммер для бордюров и пр.). Шаговая доступность: остановка общественного транспорта, остановка школьного автобуса, школа, спортивный комплекс и великолепный лес для прогулок. В поселке есть: магазины Магнит, Строительный двор, пекарни, кафе и пункты выдачи Озон, Вайлдберриз — вопрос бытовых и онлайн-покупок решен. Просмотр возможен в удобное время по предварительной договоренности. Реальному покупателю торг. Звоните, договоримся. ID объекта в нашей базе: 13742
    размещено: 09.02.2026 , обновлено: 25.05.2026

Предложения о продаже земельных участков в с. Курганово

Внимание! Данная рубрика предназначена для лотов по жилой недвижимости. Коммерческая недвижимость здесь.

  • Участок в с. Курганово, ул. Сказочная, 13

    городской округ Полевской (Полевское направление)
    Центр Екатеринбурга → 31 км
    • 9 соток
    • Газ
    2 350 000 ₽
    Продается земельный участок 9.4 сотки в КП Добрый город! Кадастровый номер 66:59:0216001:1787. Отличное расположение участка, находится на возвышенности, самая тихая и уютная улица в поселке, вдали от ЖД путей. Участок прямоугольной формы, насажден сосновым и березовым лесом. К участку в ближайшее время будет подключено электричество (оплачено), получен ГПЗУ, газ по границе участка. На участке имеется бытовка и хоз. блок, за отдельную оплату. Коттеджный поселок активно развивается, имеется ТСН, въездная пропускная система, вывоз ТКО, освещение, стабильная уборка снега и ремонт дорог.Показ в любое удобное время, все вопросы по телефону, звоните! ID объекта в нашей базе: 6300
    размещено: 28.05.2026 , обновлено: 30.05.2026
  • Участок в с. Курганово, ул. Константиновская, 16

    городской округ Полевской (Полевское направление)
    Центр Екатеринбурга → 31 км
    • 10 соток
    • Газ
    1 550 000 ₽
    Участок 10 соток в Курганово - с газом и электричествомПродаётся земельный участок в живописном месте - село Курганово, Полевской тракт, ул. Константиновская Удобное расположение:- 15-20 минут до Солнечного- 20-25 минут до Академического - быстрый выезд в город- магазин в шаговой доступности - активно развивается застройка ( рядом коттеджные посёлки)Площадь:- 10 соток- есть возможность объединить 2 участка по 10 соток в один Коммуникации:- газ подведён- электричество подведеноУчасток без благоустройства - нет асфальта и отсыпных дорог, как в КП.???? за счёт этого цена ниже и есть возможность обустроить всё под себяПодойдёт:- для строительства дома- для дачи- как инвестиция ( район застраивается)???? Цена: 1550 000 рОбременений нет, быстрый выход на сделку???? Звоните/Пишите - расскажу подробнее, покажу участок ID объекта в нашей базе: 12566
    размещено: 30.04.2026 , обновлено: 26.05.2026
  • Участок в с. Курганово, ул. КП Бажовка

    городской округ Полевской (Полевское направление)
    Центр Екатеринбурга → 31 км
    • 9 соток
    • Газ
    1 100 000 ₽
    Продается земельный участок 8,7 соток в живописном месте! Ищете идеальное место для строительства Вашего загородного дома или дачи? У нас есть для Вас замечательное предложение! Площадь: 8,7 соток Расположение: Участок с лесом находится рядом с Полевским трактом, всего в 20–35 км от Екатеринбурга, вблизи села Курганово, в районе коттеджного поселка Бажовка. Коммуникации: К участку подведено электричество, газовая колонка расположена при въезде со стороны тракта.???? Дорога: К участку ведет грунтовая дорога. ???? Природа: В непосредственной близости находится Верхне-Макаровское водохранилище — идеальное место для отдыха на природе, рыбалки и прогулок. ???? Транспорт: Удобная транспортная доступность. Остановка общественного транспорта расположена рядом.???? Категория земель: Земли населенных пунктов. ???? Преимущества: Один собственник — никаких юридических сложностей! Отличное место для жизни и отдыха, в экологически чистом районе ,вдали от городской суеты, с легким доступом к городской инфраструктуре. Возможность построить дом мечты или уютную дачу. Звоните сейчас, чтобы узнать больше и организовать просмотр! ????✨ ID объекта в нашей базе: 12552
    размещено: 29.04.2026 , обновлено: 22.05.2026
  • Участок в с. Курганово, ул. Рубиновая

    городской округ Полевской (Полевское направление)
    Центр Екатеринбурга → 31 км
    • 12 соток
    • Газ
    1 200 000 ₽
    Реальному покупателю ТОРГ!!!! Быстрый выход на сделку!ПРОДАЕТСЯ земельный участок правильной формы площадью 12,24 сотки 1 собственник! Без обременений! Быстрый выход на сделку! Кадастровый номер участка 66:59:0203002:840, размер участка 45,45*26,97м ИЖС, разрешённое использование — индивидуальное жилищное строительство Участок правильной прямоугольной формы, сухой и ровный, граничит с трех сторон с соседями, с одной стороны есть ЗАБОР, рядом соседей пока нет. До участка отсыпана дорога, сделан заезд, положена труба и вырыт дренаж вдоль дороги. Отличная локация, напротив участка ЛЕС! ЕСТЬ Электричество, скоро подведут ГАЗ до границы участка! Подключено ЭЛЕКТРИЧЕСТВО 15 кВт – столб на границе участка, СЕЛЬСКИЙ ТАРИФ! Присвоен милицейский адрес Сделано межевание, совершена поверка границ участка – установлены колышки Был ранее заказан Градостроительный план земельного участка Сделана геология, также есть топосъемка Бытовка размером 2*3 м остается в ПОДАРОК будущему собственнику! РАЙОН: КП БАЖОВКА, с. Курганово Полевской тракт Участок находится в 2,6 км от с. Курганово, до Екатеринбурга 20 км. Ближайший продуктовый магазин Пятерочка – расстояние 2,6 км, на машине ехать 5 минут. Также в с. Курганово есть: Магнит, Монетка, Пятерочки, Строительный Двор, кафе и рестораны. Муниципальные школа и садик в с.Курганово Есть спортивный комплекс «Курганово», где есть бассейн, бани и сауны, спортзал, каток, прокат инвентаря, пляж и т.д. КП Бажовка:Участок находится на улице Рубиновая, которая считается последней улицей вдоль леса. Далее застройки не будет, тк идет зона Лесфонда. В посёлке имеется всё необходимое для комфортного проживания: дороги электричество уличное освещение поверхностное водоотведение детская площадка для детей площадка для ТБО пожарный водоём, ГАЗ видеонаблюдение. В КП проживают круглогодично, около 35 жилых домов, дороги чистятся круглый год. Здесь всегда идеальная тишина и умиротворение - поют птицы. Вокруг лес, недалеко река Чусовая, можно гулять или рыбачить. Звоните, ждем всех на просмотр! ID объекта в нашей базе: 5749
    размещено: 14.04.2026 , обновлено: 27.05.2026
  • Участок в к.п. Белые Росы, ул. Грушевая, 17

    городской округ Полевской (Полевское направление)
    Центр Екатеринбурга → 31 км
    • 10 соток
    • Эл.
    3 500 000 ₽
    Объект № 197212. Предложение для тех, кто мечтает жить рядом с природой, оставаясь в доступности городской инфраструктуры. Продается ровный земельный участок 10,3 сотки, правильной формы, расположенный в кп "Белые росы" в с. Курганово, практически на берегу Макаровского водохранилища, недалеко от леса. Электричество и газ подведены к участку. На территории поселка оборудована детская площадка, есть остановка школьного автобуса, в непосредственной близости расположены сетевые магазины Пятерочка и Магнит, школа, остановка общественного транспорта. Насладитесь загородной жизнью с комфортом!
    размещено: 17.03.2026 , обновлено: 27.05.2026
  • Участок в с. Курганово, ул. Радыгина

    городской округ Полевской (Полевское направление)
    Центр Екатеринбурга → 31 км
    • 12 соток
    • Газ
    4 100 000 ₽
    Предлагаем вам стать владельцем живописного уголка в сердце уральской природы. Земельный участок ИЖС, 12 соток (ОДИН УЧАСТОК) в лучшей локации села Курганово. Всего 11 километров, или около 20 минут езды от Екатеринбурга (район Вторчермет) — и вы окажетесь в оазисе спокойствия и красоты. Расположение напротив престижных коттеджных поселков «Солнечный» и «Зуброво». Участок отличается не только превосходным местоположением, но и безупречной экологией. Чистейший воздух, кристальная вода и плодородная почва — все это подтверждено экологической картой области. Здесь, на просторном солнечном участке, вас ждет возможность воплотить мечту об идеальном доме. Сухая и возвышенная местность, плодородная земля — все для собственного райского сада, уютного отдыха с банным домиком и барбекю. Вокруг уже выросли современные дома и коттеджи, где живут благополучные и дружелюбные соседи. Для вашего удобства: асфальтированная дорога, электричество, газопровод и высокоскоростной интернет «Билайн». Поблизости есть все для комфортной жизни: магазины «Магнит» и «Пятёрочка», уютные кафе, строительный двор, автозаправки и пункт выдачи Wildberries. Не упустите шанс стать владельцем кусочка рая, где мечты о собственном доме становятся реальностью! Всего в нескольких шагах от вашего будущего дома раскинулся лес, полный ягод и грибов — приключения буквально за порогом, вам и вашим детям будет интересно! Для любителей рыбалки и отдыха на природе — великолепное Верхне-Макаровское водохранилище с песчаным пляжем в тени соснового бора. Это рай для рыбаков и любителей активного отдыха, где можно наслаждаться водными видами спорта, прогулками и пикниками с семьёй. Поддерживать себя в отличной форме вы сможете в спортивном комплексе Курганово, где есть современный фитнес-центр, комфортный бассейн и сауна. Для детей — школа фигурного катания и хоккея, секция плавания. Всего 10–15 минут пешком до автобусной остановки, откуда каждые полчаса отправляется автобус до Екатеринбурга. До Горного Щита — 10 минут на транспорте, курсирует школьный автобус. СТОИМОСТЬ УКАЗАНА ЗА ОДИН УЧАСТОК 12 СОТОК. Могу выслать видео участка по запросу. ID объекта в нашей базе: 6700
    размещено: 20.02.2026 , обновлено: 27.05.2026
  • Участок в с. Курганово, ул. Брусничная, 44

    городской округ Полевской (Полевское направление)
    Центр Екатеринбурга → 31 км
    • 11 соток
    • Газ
    1 900 000 ₽
    Продаётся земельный участок 10,6 соток в коттеджном посёлке «Сакура Парк», Курганово Идеальное место для строительства загородного дома для постоянного проживания или комфортного отдыха. Преимущества участка: площадь 10,6 соток; подведены газ и электричество; охраняемая территория посёлка; регулярный вывоз мусора; чистка дорог в зимний период; спокойное и уютное место рядом с природой. В шаговой доступности вся необходимая инфраструктура: магазины; школа и детский сад; остановки транспорта; сервисы для комфортной жизни. Удобное расположение позволяет быстро добраться до города и при этом жить в тишине и на свежем воздухе. Возможна беспроцентная рассрочка — обсуждается индивидуально. Участок готов к продаже. Отличный вариант как для собственного дома, дачи так и для инвестиции.Кадастровый номер участка: 66:59:0202001:125366:59:0202001:857Есть план ГПЗУ ID объекта в нашей базе: 5323
    размещено: 17.02.2026 , обновлено: 27.05.2026
  • Участок в ул. Животноводов

    городской округ Полевской (Полевское направление)
    Центр Екатеринбурга → 31 км
    • 8 соток
    850 000 ₽
    Продаю участок ИЖС в Полеводстве с развивающимся поселке с большими перспективами.Отличное место для постоянного проживания и строительства загородного дома. Вся инфраструктура рядом в пешей доступности(Магазины,пункты выдачи, почта, школьный автобус). Столб с электричеством рядом. Успевайте! ID объекта в нашей базе: 18301
    размещено: 09.01.2026 , обновлено: 30.05.2026
  • Участок в с. Курганово, ул. Даньщина, 11

    городской округ Полевской (Полевское направление)
    Центр Екатеринбурга → 31 км
    • 11 соток
    • Газ
    1 880 000 ₽
    ИЖС! Черта ГОРОДА! новый трансформатор на 400, это хорошо. Газ проведут к концу 2028, все документы подписаны!Лес у порога, газ и свет — 25 км от Екатеринбурга. Ваш идеальный участок в КургановоПредставьте: вы выходите из дома, делаете несколько шагов — и вы уже в лесу. Тишина, пение птиц, запах хвои. При этом до города — всего 25 километров. Это не мечта, это реальность — земельный участок в поселке Курганово, где природа и городской комфорт сливаются в идеальной гармонии.Почему этот участок создан для жизни?· Лес сразу за забором: Никаких соседей за спиной — только вековые сосны. Ваши утренние прогулки, сбор грибов и ягод, чистый воздух — всё это станет частью вашей повседневности. Участок примыкает к лесу, даря ощущение уединения и единения с природой.· Газ и электричество на участке: Тёплый дом без лишних хлопот. Вам не нужно думать, как проводить коммуникации и сколько это будет стоить — они уже здесь. Можно начинать строительство сразу после покупки.· Посёлок, где хочется жить: Курганово — это не просто точка на карте. Здесь есть всё для комфортной загородной жизни: магазины, спортивный клуб для активного отдыха, красивый водоём, где можно купаться и рыбачить летом, а зимой — гулять по льду. Детские сады и школы — в шаговой доступности.· Доброжелательные соседи: Здесь живут люди, которые ценят покой и уют. Никаких конфликтов, только дружелюбное сообщество, где каждый знает друг друга и готов прийти на помощь. Это место, где ваши дети будут расти в безопасности.· Чистая сделка без сюрпризов: Один собственник, никаких обременений. Быстрый выход на сделку — вы сможете стать владельцем участка в кратчайшие сроки, без лишних ожиданий и бюрократических проволочек.Что вы получаете?Всего 25 км от Екатеринбурга — ровно столько, чтобы уехать от городской суеты, но оставаться в центре событий. Газ, свет, лес, вода, инфраструктура — всё это уже ждёт вас. Осталось только приехать и влюбиться.Позвоните прямо сейчас — приезжайте смотреть и дышать полной грудью. Я покажу вам место, где ваша новая жизнь начнётся завтра.И главное — один собственник, без обременений. Сделку оформим быстро.Цена? Узнайте по телефону, она приятно удивит. Звоните, договоримся о просмотре! ???????? ID объекта в нашей базе: 18181
    размещено: 26.11.2025 , обновлено: 26.05.2026
  • Участок в с. Курганово, ул. около КП Бажoвкa 2

    городской округ Полевской (Полевское направление)
    Центр Екатеринбурга → 31 км
    • 8 соток
    490 000 ₽
    B пpодaжe размежёванный земельный участок 8 сот. (территория Курганово). По соседству располагается КП Бажoвкa 2. Подъeзд-гpунтoвaя дoрогa.Пo перимeтру пoстaвлены электростoлбы Россетeй. Пpи въездe уcтанoвлена тpaнсформатopнaя будкa. Возможно проведения газа, подстанция в 300 метрах (поселок Бажовка). Газопровод проходит по границе дороги справа от Полевского в Курганово. Вокруг земельного участка активно ведется строительство частных домовладений. Участок граничит с лесным массивом. Грибы, ягоды. В комфортном доступе река Чусовая, Макаровское водохранилище. Катeгoрия земли: Земли населенных пунктов. Кадастровый номер: 66:59:0203002:906 Право собственности: 1 совершеннолетний собственник, в собственности более 10 лет, без обременений. Звоните! Договоримся на показ участка.Ждем Вас на просмотр. ID объекта в нашей базе: 10728
    размещено: 12.08.2025 , обновлено: 27.05.2026
  • Участок в с. Курганово, ул. Школьная, 9

    городской округ Полевской (Полевское направление)
    Центр Екатеринбурга → 31 км
    • 15 соток
    • Эл.
    • Вода
    • Газ
    3 900 000 ₽
    Объект № 192393. Продается земельный участок в 30 км от Екатеринбурга, площадью 15 соток в селе Курганово Полевской тракт. Участок ровный, квадратной формы, в красивейшем месте около леса, возле реки Кунгурка. Рядом расположен фельдшерский пункт, детский сад, среднеобразовательная школа, много магазинов. На участке есть плодовые деревья и кустарники, построен приличный летний домик, баня, бассейн. К участку подведен газ, есть электричество. По периметру установлен забор. Ипотека возможна.
    размещено: 16.06.2025 , обновлено: 5.05.2026
  • Участок в с. Курганово, ул. Советская,

    городской округ Полевской (Полевское направление)
    Центр Екатеринбурга → 31 км
    • 100 соток
    12 000 000 ₽
    Земельный участок 1,17 га!!!!!!❤️Продается земельный участок 1,17 га в экологически чистом районе села Курганово, рядом р.Чусовая и Верхне-Макаровское водохралище, лесной массив.Отдаленность от Екатеринбурга 29 км, до 40 минут на машине по асфальтированной дороге.Земля в собственности, 1 взрослый собственник.Категория земель: Земли сельскохозяйственного назначения.На участке возможно строительство, участок расположен в непосредственной близости с трассой, тем самым обеспечивает отличный трафик.Таких вариантов в продаже практически нет.Отличное место для строительства и развития своего бизнеса , конкуренция отсутствует. Рядом строится КП.Есть вопросы, звоните, договоримся на показ участка.Помогу с оформлением земельного участка в ипотеку, бесплатно.Ждем вас на просмотр!!!! ID объекта в нашей базе: 11125
    размещено: 22.04.2025 , обновлено: 27.05.2026
  • Участок в к.п. Белые Росы

    городской округ Полевской (Полевское направление)
    Центр Екатеринбурга → 31 км
    • 12 соток
    3 847 000 ₽
    Продам ЗЕМЕЛЬНЫЙ УЧАСТОК в с. Курганово!Площадь земельного участка: 12,16 соток(ИЖС).Земельный участок не делили.На участке вековые деревья.ЗАБОР по периметру участка: ОТСУТСТВУЕТ. Микрорайон «Белые Росы» — тихий пригород Екатеринбурга на берегу Верхне-Макаровского водохранилища (село Курганово).Общая территория посёлка составляет 49 га и включает в себя 255 участков.Статус земли — индивидуальное жилищное строительство, земли поселений.Участки - от 7 до 30 соток со всеми необходимыми коммуникациями, и с живописным видом на Верхне-Макаровское водохранилище. За порядком в посёлке следит управляющая компания, а безопасность обеспечивает и круглосуточная охрана с системой видеонаблюдения. В непосредственной близости находится спортивный комплекс «Курганово». Просмотр по договорённости в удобное для вас время!Ждём вас на просмотр! ID объекта в нашей базе: 7851
    размещено: 20.04.2025 , обновлено: 28.05.2026
  • Участок в с. Курганово, ул. Елизаветинская

    городской округ Полевской (Полевское направление)
    Центр Екатеринбурга → 31 км
    • 21 сотка
    3 780 000 ₽
    Продаётся земельный участок от юридического лица в коттеджном поселке (недалеко от стелы Европа-Азия), при этом нет никаких дополнительных денежных сборов и взносов характерных обычным коттеджным поселкам! Вокруг уже построено много жилых домов, люди проживают круглый год.Площадь участка 21 сотки. Кадастровый номер 66:59:0201002:1792Категория земли: земли населённых пунктов. Разрешенное использование: ИЖС. Межевание проведено, право собственности зарегистрировано. Участок расположен в экологически чистом районе, в живописнейшем уголке рядом с Макаровским водохранилищем.Недалеко село Курганово, магазины, кафе, рынок строительных материалов. На участок можно подвести электричество. Дорога внутри поселка муниципальная. Прописка: село Курганово.Участок возможно приобрести по семейной ипотеке под строительство дома со ставкой 6%Будем рады видеть Вас на просмотре! ID объекта в нашей базе: 25498
    размещено: 26.02.2025 , обновлено: 21.05.2026
  • Участок в с. Курганово, ул. поселок Кургановский

    городской округ Полевской (Полевское направление)
    Центр Екатеринбурга → 31 км
    • 10 соток
    999 000 ₽
    СРОЧНО Продам участок В Екатеринбурге или ОБМЕНЯЕМ НА КОМНАТУ В ЕКАТЕРИНБУРГЕ !!!! участок прaвильнoй фopмы в посёлке Кургановский. Hа участке вековые деревья, сосны, чтo редкость для коттеджных поселков в пригороде Екатеринбурга. Участок угловой, можно сделать два заезда или разделить на два участка , можно использовать под аренду 66:41:0513054:868 кадастровый номер участка Электричество возле участка. В 200 метрах от остановки общественного транспорта. Дo Гopнoгo Щитa всeго 10 минут на машине, рядом остановка общественного транспорта (автобусы до Автовокзала). Очень перспективное место для проживания. Дopoги отсыпаны. Можно подъехать с двух cтоpoн, oргaнизoвать двa въeздa. Земли населенных пунктов. Прописка Чкаловский район город Екатеринбург. ЗВОНИТЕ ДОГОВОРИМСЯ!!! ID объекта в нашей базе: 16770
    размещено: 22.11.2024 , обновлено: 25.05.2026
  • Участок в с. Курганово

    городской округ Полевской (Полевское направление)
    Центр Екатеринбурга → 31 км
    • 100 соток
    5 500 000 ₽
    1га (100 соток) в районе с. Курганово (Бажовка).Идеально подойдет для глэмпинга, кемпинга. Участок крайний, граничит с лесом, полностью заросший молодым сосняком. Отделен лесополосой от основной дороги, можно сделать удобный заезд-выезд до места от асфальтированной трассы. Недалеко от участка р.Чусовая. До ЕКАДа 17 км. ‼Рассмотрю вариант обмена на недвижимость, авто, стройматериалы, на обмен цена + 500 000 р. КН: 66:59:0217004:45 ID объекта в нашей базе: 273
    размещено: 07.10.2024 , обновлено: 21.05.2026
  • Участок в с. Курганово, ул. Ивановская

    городской округ Полевской (Полевское направление)
    Центр Екатеринбурга → 31 км
    • 62 сотки
    18 630 000 ₽
    Продаётся большой земельный участок от юридического лица. Возможно использование под любое коммерческое назначение!Площадь участка 62 сотки. Категория земли: земли населённых пунктов. Разрешенное использование: ИЖС Категория - земли О1Межевание проведено, право собственности зарегистрировано. Участок расположен в экологически чистом районе, в живописнейшем уголке рядом с Макаровским водохранилищем.Рядом село Курганово, магазины, кафе, рынок строительных материалов. На участках - электричество. Прописка: село Курганово. Нет никаких дополнительных сборов! Дорога внутри поселка муниципальная.Будем рады видеть вас на просмотре! ID объекта в нашей базе: 25095
    размещено: 26.09.2024 , обновлено: 22.05.2026
  • Участок в с. Курганово, ул. 8 Марта, 13Б

    городской округ Полевской (Полевское направление)
    Центр Екатеринбурга → 31 км
    • 9 соток
    • Эл.
    960 000 ₽
    Объект № 166995. Предлагаем к продаже участок правильной формы. Рядом лесная зона, расстояние от Екатеринбурга 12 км. Кадастровый номер участка: 66:59:021160014189. Можем Вам предложить участки на выбор! Рядом уже построены дорогие коттеджи.
    размещено: 13.12.2022 , обновлено: 7.05.2026
  • Участок в с. Курганово, ул. Европейская

    городской округ Полевской (Полевское направление)
    Центр Екатеринбурга → 31 км
    • 10 соток
    • Эл.
    950 000 ₽
    Объект № 159503. Предлагаются к продаже земельные участки входящие в генеральный план расширения села Курганово, Полевской район. Для строительства домов индивидуальной жилой застройки. Адрес, прописка, строительство до 3 этажей. От черты Екатеринбурга 500 метров. Электроэнергия, перспектива подключения к газу, Самое чистое, по экологии, направление около Екатеринбурга (Бажовские места). Окружение лесом с трех сторон, много ягод, грибов. В пределах 30-40 мин ходьбы пешком рыбный водоем, Верх-Макаровское водохранилище, река Чусовая. Всего доступно 520 соток земли! Звоните.
    размещено: 17.05.2022 , обновлено: 27.05.2026

Предложения о продаже садов в с. Курганово

  • Садовый участок в с. Курганово, к/с СНТ Аграрник

    городской округ Полевской (Полевское направление)
    Центр Екатеринбурга → 31 км
    • 60 соток
    5 800 000 ₽
    В продаже шикарный участок площадью 60 соток под глэмпинг, базу отдыхаУчасток подключен к электричествуНаходится в 2 км. от поселка Курганово, за СНТ Аграрник60% участка занимает молодой сосновый лесФотографии непосредственно с участка Категория земель - сельхозназначение, ВРИ- садовые и дачные строение Разрешено строительство домом до 3-х этажей.Кадастровые номера отправлю по запросу ID объекта в нашей базе: 9461
    размещено: 26.05.2025 , обновлено: 28.05.2026

Приоритет

Увеличивает просмотры в 3 раза

Ваше объявление показывается в списке выше обычных объявлений. подключить