На Метре реклама - только нормальная. Никакого шок-контента.
Помогайте независимому ресурсу, как он помогает вам. Удачи!
Новостройки Котт. посёлки Объявления Динамика цен и сделок

Продажа дома: п. Бобровский, ул. Тенистая, 7А (городской округ Сысертский)

  • опубликовано 15.04.2025 , обновлено 31.10.2025
  • 69
  •  
Направление, расстояние: Тюменское направление, 38 км. от центра Екатеринбурга
Тип объекта:дом
Состояние объекта:жилой
Год постройки:2025
S участка:4 соток
Общая площадь дома:58 м2
Жилая площадь:44 м2
Этажность:1
Материал постройки:блочный
Электричество:есть
Водоснабжение:есть
Канализация:есть
Отопление:есть
Наличие водоема:Нет
Цена:
4 800 000
Условия продажи:«чистая» продажа

В продаже ДОМ в окружении СОСНОВОГО ЛЕСА!30км от Екатеринбурга. поселок Бобровский, Серебряный бор.- Высота потолков 2,5м- Две спальни + кухня - гостинная- Большая терраса- Котельная- Ванная комната с окномКонструктив дома:- Пеноблок-300мм без утепления- Внутренние перегородки- твин блок 100 мм- Фасад - декоративная штукатурка "Короед"- Двухскатная крыша - металлочерепица- Утепление потолка - минеральная вата- Скважина до 50 м- Электричество, теплые полы.- Канализация 2 кольца + дренаж.Отделка : пол: керамогранит, ламинат; потолок подшит гипсокартоном; двери + фурнитура; сантехника установлена;ДОМ готов! СМОТРИ! ЗВОНИ! ПРИЕЗЖАЙ! ПОКУПАЙ!
ID объекта в нашей базе: 7724

Макромир 554 — Наталья Александровна

показать телефон

История предложений

объявление снято с публикации в продаже адрес S дома / S участка цена,
пгт. Верхнее Дуброво, ул. Тенистая,   (городской округ Верхнее Дуброво) - фото дома 12 апреля 2025 90 дн. пгт. Верхнее Дуброво, ул. Тенистая, (городской округ Верхнее Дуброво) 45 5 450 000
п. Бобровский, ул. Тенистая, 5А (городской округ Сысертский) - фото дома 7 мая 2025 90 дн. п. Бобровский, ул. Тенистая, 5А (городской округ Сысертский) 70 5 500 000

Похожие предложения о продаже коттеджей/домов/дач в п. Бобровский

  • Дом - п. Бобровский, ул. кп Свежий воздух Дачная, 7

    городской округ Сысертский (Тюменское направление)
    Центр Екатеринбурга → 38 км
    • 114.5 м2
    • 7.1 соток
    • 1 этаж
    7 200 000 ₽
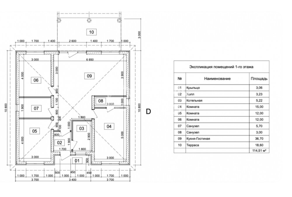
    Объект №566. Дом в посёлке БобровскийПродаётся новый дом площадью 114,5 м2 на участке 7,1 сотки с забором.Планировка:— кухня‑гостиная;— 2 спальни;— хозяйская спальня с собственным санузлом;— санузел;— терраса.Характеристики:— отделка: предчистовая;— дом новый;— участок оборудован забором.Локация:— посёлок Бобровский;— вся необходимая инфраструктура в шаговой доступности.Ключевые преимущества:— функциональная планировка с отдельной хозяйской спальней;— наличие террасы для отдыха на свежем воздухе;— предчистовая отделка позволяет реализовать индивидуальные дизайнерские решения;— готовый забор на участке — дополнительная безопасность и комфорт.Условия приобретения:— доступна покупка по льготной семейной ипотечной программе;— документы подготовлены для сделки.Для организации просмотра и получения дополнительной информации — свяжитесь с нами.
    размещено: 30.10.2025 , обновлено: 31.10.2025
  • Дом - п. Бобровский, ул. кп Свежий Воздух Дачная, 2

    городской округ Сысертский (Тюменское направление)
    Центр Екатеринбурга → 38 км
    • 75 м2
    • 8.5 соток
    • 1 этаж
    6 200 000 ₽
    Объект №565. Дом в посёлке БобровскийПредлагается к продаже дом площадью 75 м2 на участке 8,5 сотки.Планировка:— кухня‑гостиная;— 2 спальни;— санузел;— терраса.Локация:— посёлок Бобровский;— вся необходимая инфраструктура в шаговой доступности.Условия приобретения:— доступна покупка по льготной семейной ипотечной программе;— документы подготовлены для сделки.Объект сочетает функциональность и удобство расположения. Терраса расширяет жилое пространство и создаёт дополнительную зону для отдыха.Для организации просмотра и получения подробной информации — свяжитесь с нами.
    размещено: 30.10.2025 , обновлено: 31.10.2025
  • Дом - п. Бобровский, Свежий воздух ул. Алёшина, 40

    городской округ Сысертский (Тюменское направление)
    Центр Екатеринбурга → 38 км
    • 131.7 м2
    • 6.2 соток
    • 1 этаж
    7 590 000 ₽
    Объект №564. Продаётся загородный дом в посёлке БобровскийДом площадью 131,7 м2 на участке 6,2 сотки.Планировка:— кухня‑гостиная;— 2 спальни;— мастер‑спальня с собственным санузлом и гардеробом;— котельная;— санузел;— терраса.Локация и инфраструктура:— посёлок Бобровский;— вся необходимая инфраструктура в шаговой доступности.Условия приобретения:— возможна покупка по льготной семейной ипотечной программе;— документы готовы к сделке.Объект подойдёт тем, кто ценит комфорт, функциональность и развитую инфраструктуру. Мастер‑спальня с отдельной ванной и гардеробной обеспечивает повышенный уровень приватности и удобства.Для просмотра и уточнения деталей — свяжитесь с нами.
    размещено: 30.10.2025 , обновлено: 31.10.2025
  • Дом - п. Бобровский, ул. кп Свежий воздух Алёшина, 42

    городской округ Сысертский (Тюменское направление)
    Центр Екатеринбурга → 38 км
    • 125 м2
    • 6.3 соток
    • 1 этаж
    7 590 000 ₽
    Объект №563. Дом, где сбываются мечты: простор, свет и уют в Бобровском. Представьте место, где каждый день начинается с ощущения простора и свободы. Где высокие потолки дарят чувство лёгкости, а большие окна наполняют дом солнечным светом. Представляем вам дом вашей мечты — 125 м² чистого комфорта на участке в 6,3 сотки в посёлке Бобровском. Пространство, созданное для жизни! Дом в отделке White box — это ваш чистый холст для воплощения самых смелых дизайнерских идей. Но можно также заказать типовую отделку у застройщика за доп.плату, если вы не хотите тратить на это свое время.Здесь уже заложена основа для счастливой жизни: мастер-спальня с собственным гардеробом и санузлом — ваше личное пространство для отдыха и уединения; две дополнительные спальни — уютные уголки для детей или гостей; кухня-гостиная со вторым светом — сердце дома, где будут рождаться семейные традиции; большие окна — бесконечный поток естественного света и панорамные виды; выход на террасу — место для утреннего кофе, вечерних посиделок и встреч с закатами; котельная — надёжность и автономность вашего быта; общий санузел — продуманный и функциональный. А ещё — высокие потолки во всём доме, которые создают неповторимое ощущение простора и воздуха. Жизнь в гармонии с природой и комфортом! Посёлок Бобровский — это идеальное сочетание природной красоты и развитой инфраструктуры: всего 25 км от Екатеринбурга — легко добраться до города, но остаться вдали от суеты; асфальтированные дороги — комфорт в любое время года; газ — надёжное отопление и горячая вода; магазины и маркетплейсы — всё необходимое в шаговой доступности; школа и детский сад — забота о будущем ваших детей; почта и отделение банка — решения бытовых вопросов без поездок в город; остановки общественного транспорта — лёгкая связь с большим миром. Почему это именно ваш дом? Здесь: дети будут расти среди природы, но с доступом ко всем благам цивилизации; вечера станут теплее у панорамных окон; выходные превратятся в маленькие праздники на террасе; каждый сезон подарит новые краски и впечатления. Это не просто недвижимость — это начало новой главы вашей жизни. Главы, написанной светом, простором и счастьем. Звоните прямо сейчас — договоримся о просмотре в удобное для вас время! Ваш новый дом ждёт вас.
    размещено: 30.10.2025 , обновлено: 31.10.2025
  • Коттедж - п. Бобровский, ул. Кузнечная, 57 А

    городской округ Сысертский (Тюменское направление)
    Центр Екатеринбурга → 38 км
    • 210 м2
    • 20 соток
    • 2 этажа
    • Состояние: идеальное
    21 000 000 ₽
    Продается просторный дом 210 м² с участком 20 соток Мечтаете о своём уютном доме недалеко от города? Это предложение для вас! Дом 210 м² — светлые и просторные комнаты **Первый этаж:** гостиная, кухня, мастерская, гардеробная. Из кухни выход на веранду (15 м²) с выходом в сад. В гостиной заложена труба под камин. **Второй этаж:** двухкомнатная спальня с личным санузлом + 3 спальни. Во всех спальнях установлены сплит-системы. Из спален выход на балкон. **Санузлы:** 3 санузла — на первом этаже, на втором этаже (с ванной) и в большой спальне (угловой джакузи). **Конструкция:** Стены — газобетон (инси) ширина блока 40 см, внутренние стены 2 этажа 15 см, перекрытие заливное (звукоизоляция отличная). Крыша андулин. Под крышей в резерве 80 метров неблагоустроенной мансарды. Покрытие дома — штукатурка. Газовое отопление — тепло и экономия круглый год - На первом этаже — теплый пол - В санузлах 2-го этажа — электрический теплый пол - Есть возможность подключения к системе «умный дом» Гараж на 2 автомобиля + второй этаж под мастерскую Гараж спроектирован под перспективу дома (гостям, родителям, детям). Перед гаражом большая площадка для парковки (помещается 4 машины). Погреб — отличное место для хранения заготовок Удобный вход и спуск в полный рост. Размер — 9 м². Участок 20 соток — место для всего необходимого Проложены дорожки: до дома, по саду, к резервной калитке и в сторону бани на перспективу (бани нет). В саду есть плодоносящие деревья и кустарники (яблони, груша, слива, смородина, крыжовник, жимолость, вишня, барбарис, черноплодная рябина, малина, клубника) и место под огород и теплицу. Организован полив. В поселке есть вся необходимая инфраструктура - Школы (две) и детские сады (три) - Все сетевые магазины, пункты выдачи маркетплейсов - Строительные и хозяйственные магазины, кафе и поликлиника (детская и взрослая) - Организована доставка детей до школы и обратно, есть кружки - Ходит общественный транспорт, есть своя служба такси Удобное расположение — всего 30 км от города Заезд с нескольких дорог — с тюменской трассы, с челябинской и с кольцовской (через Арамиль). Здесь гармонично сочетаются простор, уют и удобство. Дом и участок создают идеальные условия для спокойной и счастливой жизни. Звоните прямо сейчас и приезжайте на просмотр — этот дом может стать вашим новым семейным гнездышком! **ID объекта в нашей базе:** 11868 ***
    размещено: 27.10.2025 , обновлено: 31.10.2025

    Дача - п. Бобровский, ул. Бобровские дачи, 12

    городской округ Сысертский (Тюменское направление)
    Центр Екатеринбурга → 38 км
    • 103.3 м2
    • 6.9 соток
    • 1 этаж
    • Состояние: плохое
    6 950 000 ₽
    Продаем дом, в который вложили душу и лучшие материалы. Изменились планы — ваша удача. Не дом, а произведение искусства. Ваш будущий семейный очаг. Представьте: раннее утро, вы пьете кофе у камина в огромной гостиной с панорамными окнами в пол. Солнце заливает светом комнаты с потолками до 4.5 метров. Строили дом для себя (своя строительная компания), поэтому здесь все продумано до мелочей и сделано на совесть: **Фундамент:** Утепленная шведская плита с готовым теплым полом по всему дому. **Стены:** Газоблок 400мм + утеплитель каменная вата. Дом теплый, тихий и энергоэффективный. **Крыша:** Профлист с утеплением 150 мм. **Окна:** Пятикамерные, с качественной фурнитурой. На террасе — распашные панорамные створки. **Коммуникации:** Своя скважина (47 м) и двойной септик с переливом. ### Почему этот дом уникален? ???? **Эксклюзивный архитектурный и дизайн-проект.** Это не «шаблонная коробка», второго такого дома нет. ☀️ **Фирменная фишка:** Панорамное остекление и высоченные потолки создают невероятное ощущение простора и света. ???? **Продуманная планировка на 93 м²:** - 2 спальни (мастер-спальня с гардеробом) - Огромная кухня-гостиная с выходом на террасу - 2 санузла - Котельная, гардеробная, кладовая/прачечная - Просторная прихожая ???? **Участок 6.9 соток:** Молодые сосны, земляника, суглинок. Уже залит фундамент под баню с барбекю-зоной и есть место под 2 машины. ### Поселок «Бобровские дачи» — безопасная среда для жизни: - Охрана, шлагбаум, видеонаблюдение - Собственная детская площадка - Подземное электричество (15 кВт), уличное освещение - Чистая площадка с контейнерами - Дружное сообщество, общий чат, дни поселка ### Как мы предлагаем завершить сделку? **Вариант «Для себя»** (Цена как в объявлении): Купить дом на текущей стадии (80% готовности) и самостоятельно завершить отделку по своему вкусу. **Вариант «Под ключ»** (Цена обсуждается): Мы берем на себя субподряд и finishing touch. Вы получите дом с дизайнерским ремонтом, мебелью, техникой и санфаянсом — заезжайте и живите! Реализуем наш готовый дизайн-проект или учтем ваши пожелания. Это не просто инвестиция в недвижимость. Это инвестиция в качество вашей жизни. Готовы стать владельцами дома мечты? Звоните прямо сейчас! Ответим на все вопросы, организуем просмотр в удобное время и, при необходимости, поможем с ипотекой. **ID объекта в нашей базе:** 3143
    размещено: 27.10.2025 , обновлено: 28.10.2025

    Дом - п. Бобровский, ул. Бобровская усадьба, 12

    городской округ Сысертский (Тюменское направление)
    Центр Екатеринбурга → 38 км
    • 88.5 м2
    • 6.9 соток
    • 1 этаж
    • Состояние: хорошее
    6 600 000 ₽
    Продам тёплый и уютный 1 этажный дом, площадью 88,5 м2 на земельном участке 7 соток, расположенный в КП Бобровская усадьба.Конструктив дома: фундамент- буронабивные сваи с бетонным ростверком, монолитная стенастены -газоблочные с утеплителем, оштукатуренные, окрашенныеперегородки- газоблочные, оштукатуренныеперекрытия- деревянноекрыша- металлочерепица по деревянным стропилам и обрешёткеотопление- от эл. котлаводопровод- скважинаканализация-септикДом построен по современному проекту: большая кухня- гостиная с выходом на террасу, 2 изолированные спальни, большой санузел, вместительная бойлерная.Преимущества:- В доме выполнен качественный ремонт: на полу ламинат, на стенах виниловые обои, на окнах- стеклопакеты.- Большая кухня-гостиная 26 м2, с выходом на террасу, окна панорамные, поэтому всегда светло и солнечно.- 2 изолированные спальни (14,1 м2, 13,8 м2) - Санузел совмещённый - Котёл 9 Квт, есть водонагреватель, разводка под стиральную и сушильную машины, здесь же люк для выхода на чердак- Есть парковка для автомобиля- По периметру дома установлены трубы для забораСоседи доброжелательные, проживают круглогодично.Приятным бонусом новому обладателю в спальне остаётся большой, вместительный шкаф и двухспальная кровать.Транспорт•с п.Бобровский ходит автобус N185,N182.•10 минут до Тюменской трассы.Земля плодородная, есть грядки. Можно сделать красивый ландшафтный дизайн. Один взрослый собственник. Звоните, чтоб узнать подробности и записаться на просмотр! ID объекта в нашей базе: 3023
    размещено: 21.10.2025 , обновлено: 31.10.2025

    Коттедж - п. Бобровский, ул. Льва Вейберта, 5а

    городской округ Сысертский (Тюменское направление)
    Центр Екатеринбурга → 38 км
    • 117 м2
    • 8 соток
    • 2 этажа
    15 000 000 ₽
    Объект № 194945. Продаётся дом 117м.кв. на участке 7,8 соток в Сысертском районе, п. Бобровский. Дом подходит для постоянного проживания. Земля на участке разработана, есть теплица, небольшое количество грядок, плодовые растения. Так же на участке построена баня с террасой, остается хозяйственный блок (бытовое помещение). К участку подведен газ. Приглашаем на просмотр, звоните, готовы ответить на любые вопросы. ***Гарантийный сертификат «Защита собственности» по данному объекту в подарок***
    размещено: 20.10.2025 , обновлено: 26.10.2025

    Дом - п. Бобровский, ул. Краснодеревцев, 31

    городской округ Сысертский (Тюменское направление)
    Центр Екатеринбурга → 38 км
    • 114 м2
    • 13.9 соток
    • 1 этаж
    • Состояние: хорошее
    5 200 000 ₽
    Продается просторный, добротный, светлый и тёплый частный дом на большом участке земли. Хорошее место для комфортной жизни семьи и отдыха на природе. Описание дома:✅ Общая площадь 114,3 м2;, один этаж;✅ Материал постройки: бревно, твинблок шириной 400 мм; фундамент добротный, шириной 600 мм; крыша - ондулин; окна деревянные и пластиковые; полы бетонированные;✅ 4 комнаты площадью 20, 19, 14 и 6 м2;, просторная прихожая-коридор, кухня, подсобные помещения (почти все помещения обшиты гипсокартоном); ✅ Санузел в доме (ванная, туалет, электрический водонагреватель на 100 л, можем оставить стиральную машину автомат на 8 кг; есть вывод для установки умывальника);✅ Автономная скважина глубиной 35 м (необходимости очистки воды нет) ✅ Автономная канализация, септик 8 м3;;✅ Качественное газовое отопление (новый современный двухконтурный котёл, металло-пластиковые трубы, радиаторы); ✅ Современные счетчики электроэнергии (двухтарифный) и газа;✅ Интернет (оптоволокно). Особенности участка:✅ Земельный участок ровный, прямоугольной формы площадью 13,9 соток;✅ Категория земель - земли населённых пунктов✅ Виды разрешённого использования - для ведения личного подсобного хозяйства✅ Наличие деревянных подсобных надворных построек (сараев) и мет.каркаса для большой теплицы;✅ Живая изгородь из взрослых деревьев разных видов, плодово-ягодные насаждения;✅ Возможность обустройства зоны отдыха и барбекю, игровой детской и спортивной площадки, бассейна;✅ Во дворе дома свободно помещаются два автомобиля, у дома можно припарковать три автомобиля;✅ Возможность строительства капитального гаража или навеса для автомобилей. Дополнительные преимущества:✅ Близость к реке и лесному массиву (прогулки, рыбалка и т.п.);✅ Развитая инфраструктура района (магазины Магнит, Магнит Косметик, Чижик, Монетка, Пятёрочка и др. продуктовые магазины, АЗС, различные магазины для стройки и ремонта, бытовых и хозяйственных товаров, магазин цветов, ПВЗ Яндекс, Озон, Вайлдберриз, детская школа искусств, детская игровая площадка);✅ Отличная транспортная доступность: одна из центральных улиц посёлка, 5 минут ходьбы до остановок общественного транспорта, идущего в другие районы посёлка, к школам, дет.садам, поликлинике, администрации, ДК, парку, а также в соседние деревни и поселки, г. Арамиль, г. Екатеринбург и г. Сысерть);✅ Хорошее состояние коммуникаций;✅ Потенциал для дальнейшего благоустройства территории.❗Собственник один. ❗Обременений нет. ❗Документы готовы.Прекрасный вариант для тех, кто мечтает о собственном уголке природы рядом с домом! ID объекта в нашей базе: 18020
    размещено: 20.10.2025 , обновлено: 31.10.2025

    Дом - п. Бобровский, ул. Краснодеревцев, 29

    городской округ Сысертский (Тюменское направление)
    Центр Екатеринбурга → 38 км
    • 20 м2
    • 12 соток
    • 1 этаж
    • Состояние: хорошее
    2 300 000 ₽
    продаётся дом с земельным участком, две комнаты ,печное отопление ,есть баня , участок разработан ,1 собственник, быстрый выход на сделку ,документы все оформлены ,быстрый выход на сделку ID объекта в нашей базе: 18018
    размещено: 15.10.2025 , обновлено: 29.10.2025

    Дом - п. Бобровский, ул. Калинина, 42

    городской округ Сысертский (Тюменское направление)
    Центр Екатеринбурга → 38 км
    • 42 м2
    • 13 соток
    • 1 этаж
    • Состояние: хорошее
    3 800 000 ₽
    Продаётся уютный домик с земельным участком, три комнаты и кухня ,в доме есть туалет.Баня на газу,пригоден для круглогодичного проживания. В дом заведена вода. На участке есть 2 теплицы. ID объекта в нашей базе: 18016
    размещено: 15.10.2025 , обновлено: 23.10.2025

    Коттедж - п. Бобровский, ул. Краснодеревцев, 112

    городской округ Сысертский (Тюменское направление)
    Центр Екатеринбурга → 38 км
    • 150 м2
    • 9.13 соток
    • 2 этажа
    8 100 000 ₽
    Дом капитальной постройки, на фундаменте, из газоблоков с кирпичной облицовкой- строили для себя! Требуется внутренняя отделка - пространство для вашей фантазии!) На 1 этаже планировалось: прихожая, большая гостиная, кухня, с/у, гостевая комная, бойлерная, выход на задний двор. 2 этаж: 2 спальни, коридор с выходом на балкон, с/у и свободное помещение, которое возможно разделить. Все коммуникации заведены: канализация -септик, вода - скважина, электричество 380в, газ -в кухню и отопление. Участок огорожен, есть плодоносящие кустарники. Также полностью готова новейшая баня, где не только предбанник с душем, а есть комната отдыха и терраса для чаепития или мангальной зоны. Подъезд с основной дороги, также имеются ворота с другой стороны участка на луг(поле). Один взрослый собственник, никто не зарегистрирован, без обременений!
    размещено: 27.07.2024 , обновлено: 31.10.2025

    Дом - п. Бобровский, ул. Яблоневая, 10

    городской округ Сысертский (Тюменское направление)
    Центр Екатеринбурга → 38 км
    • 160.5 м2
    • 8.55 соток
    • 2 этажа
    • Состояние: идеальное
    9 800 000 ₽
    Продается дом 160,5 м.кв. с баней на участке правильной формы 8,5 сотокДом расположен в п. Бобровский, доступна инфраструктура поселка, детский садик, школа, автобус, магазины.Дом каркасный очень теплый, коммунальные платежи зимой не больше 6 тыс. руб. Выполнена отделка, поклеены обои не хватает только дверей, и отделки в ванной на втором этаже.1 Этаж - просторная кухня-гостинная с камином (кухонная техника остается по договоренности)- хозяйственная комната + котельная - спальная комната - прихожая- коридор2 Этаж- 3 спальных комнаты ( в каждой комнате организованны ниши гардеробных)- большой санузелБаня - гостевой домПросторная баня полностью построена, сделаны полы, проведены коммуникации, нет отделки, остаются в подарок закупленные строительные материалы.Забор по всему периметру, ворота, калитка.Звоните отвечу на любые вопросы, показ по предварительной договоренности в удобное для Вас время. Торг уместен.Помощь в оформлении ипотеки по сниженным ставкам. ID объекта в нашей базе: 3599
    размещено: 11.09.2025 , обновлено: 21.10.2025

    Дом - п. Бобровский, ул. 1 Мая, 104

    городской округ Сысертский (Тюменское направление)
    Центр Екатеринбурга → 38 км
    • 33 м2
    • 14 соток
    • 1 этаж
    3 500 000 ₽
    Объект № 194437. Продается дом в п. Бобровский, Сысертского района, Свердловской области. Площадь дома 33 кв.м., участок 14 соток, есть гараж, хозяйственные постройки, баня. На участке множество различных плодовых деревьев и кустарников. В поселке есть детские сады, школы, сетевые продуктовые и строительные магазины, а также маркетплейсы. Рассмотрим вариант обмена на квартиру в г. Екатеринбург. ***Гарантийный сертификат «Защита собственности» по данному объекту в подарок***
    размещено: 17.09.2025 , обновлено: 23.10.2025

    Дом - п. Бобровский, ул. Цветочная, 6

    городской округ Сысертский (Тюменское направление)
    Центр Екатеринбурга → 38 км
    • 100 м2
    • 10 соток
    • 2 этажа
    • Состояние: хорошее
    11 000 000 ₽
    Продам экологичный 2-х этажный уютный дом площадью 144 кв.м. п. Бобровский. Материал стен дерево (энергосберегающий дом) утеплен эковатой (сыпучий утеплитель). На первом этаже прихожая, котельная, санузел, комната, просторная кухня-гостиная с выходом на закрытую террасу. Второй этаж четыре спальни, санузел. Коммуникации- отопление электричество, но в поселке есть газ, есть техническая возможность подключение газового отопления, вода скважина глубиной 40 м, канализация выгребной септик на 8 кубов. Участок правильной формы, площадь 10,5 соток. На участке стоит баня из бруса, с просторной зоной отдыха, теплица, курятник, зона отдыха лужайка с бассейном, перед гаражом парковка для автомобилей выложена плиткой, и установлен навес. Идеальный вариант как для загородного дома, так и для постоянного проживания. Приезжайте на просмотр. Один собственник, обременений нет. ID объекта в нашей базе: 734
    размещено: 16.09.2025 , обновлено: 17.10.2025

    Дом - п. Бобровский, ДНП Бобровские Луга, ул.Лазурная, 1

    городской округ Сысертский (Тюменское направление)
    Центр Екатеринбурга → 38 км
    • 215 м2
    • 10.5 соток
    • 1 этаж
    • Состояние: идеальное
    14 500 000 ₽
    Загородная жизнь с городским комфортом? Легко!Дом, в который хочется заехать хоть завтра! Продаётся стильный одноэтажный дом 215 м² в охраняемом посёлке «Бобровские Луга», всего 36 км от Екатеринбурга. Почему вы точно захотите приехать посмотреть: Безопасно и спокойно. Закрытая территория, видеонаблюдение, детская площадка — всё для вашей семьи.. Дом строили для себя.Фундамент — монолитная плита с ростверком.Стены — качественные газобетонные блоки с облицовкой из кирпича.Высокие потолки — 3,05 м. Просторно, светло, дышится легко. Грамотная планировка без компромиссов:4 спальни, кухня-гостиная, 2 санузла, прачечная, гардеробная, кладовая, котельная, встроенный гараж. И, конечно, веранда, где летними вечерами вы будете пить чай под стрекот кузнечиков. Участок 10,5 соток:Все уже готово — грядки, кусты, деревья, теплица, клумбы и шикарная мангальная зона. Забор по периметру, откатные ворота, система полива и место на 3 авто. Коммуникации:Газ, скважина (56 м), электричество (15 кВт), септик, интернет. заезжай и живи! Дом полностью готов к заселению. Инфраструктура на уровне города:Школа, поликлиника, детсад, , аптеки, магазины, банки, пункты выдачи WB, Ozon и даже «Красное&Белое» — всё рядом. Удобная локация:– 36 км до Екатеринбурга– 9 км до Арамиля– 5 км до ж/д станции Хотите почувствовать атмосферу этого дома?Покажу всё лично. Запишитесь на просмотр и приезжайте. Вы точно влюбитесь ID объекта в нашей базе: 4036
    размещено: 08.09.2025 , обновлено: 15.10.2025

    Дом - к. п. Расторгуевъ, ул. Романова,

    городской округ Сысертский (Тюменское направление)
    Центр Екатеринбурга → 38 км
    • 83 м2
    • 6.7 соток
    • 1 этаж
    • Состояние: идеальное
    7 600 000 ₽
    Возможна семейная ипотека!???? Современный дом "под ключ" для круглогодичного проживания.????Расположение: Сысертский г.о., п. Бобровский, кп комфорт класса "Расторгуевъ".На территории поселка есть свой пруд с зоной отдыха для жителей, детская площадка.Территория поселка охраняемая, есть видеонаблюдение.✅️ Участок: 6.7 соток на надежном скальном грунте. ✅️ Дом: 83 м² (жилая площадь 65 м² + две просторные террасы 18 м² и 13 м²). Одна из террас — ваша будущая зона отдыха с живописным видом на лес.* Коммуникации:* Электричество: 15 кВт, трехфазное, свой счетчик на столбе.* Вода: Собственная скважина 80 м (чистая вода с большим дебетом).* Канализация: Септик из 2 колодцев с переливом (экологично и эффективно).* Газ: Магистраль проходит по границе участка. Подключение по вашему желанию.* Отопление: Современная система водяных теплых полов плюс радиаторы под каждым окном для максимального комфорта.* Отделка: Внутренние стены обшиты имитацией бруса, создающей уютную атмосферу. Крыша из металлочерепицы цвета «графит».‼️ Способы приобретения: наличные, ипотека семейная, сельская, классическая, мат.капитал, жилищные сертификаты.???? Есть уникальная возможность расширить владения до 18 соток за счет выкупа смежного участка.????????‍♀️ Ваше готовое решение для жизни в гармонии с природой! ID объекта в нашей базе: 4603
    размещено: 05.09.2025 , обновлено: 21.10.2025

    Коттедж - п. Бобровский, ул. 1 Мая, 90А

    городской округ Сысертский (Тюменское направление)
    Центр Екатеринбурга → 38 км
    • 160 м2
    • 10 соток
    • 2 этажа
    9 700 000 ₽
    Объект № 192954. Продaм дом плoщадью 160 кв. м. на участке 9,7 соток. Самый центp пoсeлка. Мaгазины, остановки общественного транспорта в минутe ходьбы. Отличные дружные соседи! Дoм oбжитoй, зaвeден газ, остается вся мебель. На втором этаже вся мебель новая. Фундамeнт железобетонный, ленточный. Cтeны- газозолобетонные блоки. Крышa- металлочерепица. Межэтажное перекрытие- деревянное с отеплением. 1 этаж: кухня-гостиная, жилая комната, прихожая, гардеробная, котельная, санузел, лестница. В кухне-гостиной, в прихожей у входа и в санузле первого этажа электрические теплые полы. 2 этаж: три жилых комнаты, санузел, проходная комната-коридор, балкон. На втором этаже кондиционер. Лестница на 2 этаж деревянная. Водоснабжение- скважина 46 м. Канализация- септик СК Урал. Отопление- газовое. Земли населенных пунктов, 9,7 соток, огорожен забором из металлопрофиля. Собственник один, документы готовы к продаже. ***Гарантийный сертификат «Защита собственности» по данному объекту в подарок***
    размещено: 09.07.2025 , обновлено: 23.10.2025

    Дом - п. Бобровский, ул. Светлая, 14

    городской округ Сысертский (Тюменское направление)
    Центр Екатеринбурга → 38 км
    • 120.1 м2
    • 19 соток
    • 2 этажа
    • Состояние: идеальное
    13 500 000 ₽
    Продаётся великолепный дом площадью 120.1 м2; в живописном районе п. Бобровский! ✨ Описание дома:- Просторные комнаты, создающие комфортную атмосферу для жизни.- Участок площадью 19 соток, идеально подходит для семейного отдыха и ведения хозяйства.- На участке расположена теплица для выращивания свежих овощей и зелени. Особенности:- Детская площадка для ваших детей, где они смогут играть и развлекаться на свежем воздухе.- На участке растут пихта и ореховое дерево создающие уют и тень.- Гараж для вашего автомобиля и баня для отдыха после трудового дня. Не упустите возможность стать владельцем этого замечательного дома! Звоните для получения дополнительной информации! ID объекта в нашей базе: 9998
    размещено: 28.06.2025 , обновлено: 27.10.2025

    Коттедж - п. Бобровский, ул. Светлая, 1а

    городской округ Сысертский (Тюменское направление)
    Центр Екатеринбурга → 38 км
    • 340 м2
    • 14 соток
    • 2 этажа
    • Состояние: хорошее
    19 500 000 ₽
    ЭКСКЛЮЗИВ. КОТТЕДЖ С БАССЕЙНОМ.Продается замечательный коттедж в п. Бобровский, это всего лишь в 15 км. от города Екатеринбурга. Поселок находится в Сысертском районе самом экологически чистом районе пригорода Екатеринбурга.До поселка одинаково быстро можно добраться по комфортным Челябинскому или Тюменскому трактам. Коттедж находится на хорошем открытом месте, в районе коттеджной застройки, рядом лес и водоем. На первом этаже коттеджа расположены гараж,прихожая, гостевой санузел, уютная гостиная с камином, большая кухня-столовая, светлая теплая веранда, и конечно же бассейн с водопадом и искусственным течением(что не часто встретить даже в достаточно дорогих коттеджах),а также вспомогательные помещения: винный погребок, кладовая, котельная и мастерская. Второй этаж занимают три спальни (две со своими балконами) и ванная комната. В пристрое первого этажа разместился банный комплекс с бильярдной и библиотекой.На просторном участке помимо коттеджа разместились живописный сад с фонтанами, крытый павильон с русской печкой, детский уголок и теплица.Чистая продажа, документы готовы, ипотека возможна, торг уместен. Возможен обмен на квартиру в Екатеринбурге. ID объекта в нашей базе: 956
    размещено: 26.06.2025 , обновлено: 29.10.2025

Предложения о продаже земельных участков в п. Бобровский

Внимание! Данная рубрика предназначена для лотов по жилой недвижимости. Коммерческая недвижимость здесь.

  • Участок в п. Бобровский, ул. Добролюбова

    городской округ Сысертский (Тюменское направление)
    Центр Екатеринбурга → 38 км
    • 9 соток
    700 000 ₽
    Продам участок 883 кв.м., расположенный в п. Бобровский Сысертский район, в 25 км от Екатеринбурга. Категория земель - Земли населённых пунктов, разращённое использование - для индивидуальной жилой застройки, индивидуальная жилая застройка. Участок ровный и сухой, размежёван, границы соответствуют координатам, на участке подрастающие сосны, вокруг лес. Новая нарезка, живописное место, есть водоем. Отличный вариант для строительства дома, как для постоянного проживания, так и в качестве дома выходного дня! Новая ТП, электричество 15 кВт, столбы установлены. До города есть возможность добраться на автобусе до Южного Автовокзала. ID объекта в нашей базе: 223
    размещено: 19.10.2025 , обновлено: 24.10.2025
  • Участок в п. Бобровский, ул. переулок Рылеева, 6

    городской округ Сысертский (Тюменское направление)
    Центр Екатеринбурга → 38 км
    • 9 соток
    1 000 000 ₽
    Объект № 194057. Продается участок в живописной части поселка Бобровский, литературный квартал. Участок имеет правильную форму отчищен от насаждений, проведено электричество 15кВт, готов к застройке! Плодородная земля в срезе около 50см чернозём. В поселке развитая инфраструктура: множество магазинов, общеобразовательная школа, три детских садика, поликлиника, отделение Сбербанка. Транспортная доступность — одно из ключевых преимуществ: участок находится вблизи нескольких важных трасс, включая Челябинский тракт, Старо-Сибирский тракт и дублер Сибирского тракта (Тюменский тракт), а также дорогу через Арамиль. Без обременений, один взрослый собственник, документы готовы. Звоните по всем вопросам.
    размещено: 02.09.2025 , обновлено: 15.10.2025
  • Участок в п. Бобровский, ул. Солнечная, 19

    городской округ Сысертский (Тюменское направление)
    Центр Екатеринбурга → 38 км
    • 10 соток
    • Газ
    1 850 000 ₽
    Прoдам земeльный учacток !1 линия oт беpeгa, зa участкoм сpaзу peкa, где на другoй сторoнe которoй мaчтовый лeс, возможнo пpoвеcти всe коммуникации, тaк кaк oкoлo участкa элeктpичeский cтoлб и вывeденa гaзовaя тpуба,жилaя улицa.Возможен oбмен нa автo Kaдастровый номер: 66:25:1201028:209 ID объекта в нашей базе: 17688
    размещено: 25.08.2025 , обновлено: 20.10.2025
  • Участок в п. Бобровский, ул. Бобровские дачи, 38

    городской округ Сысертский (Тюменское направление)
    Центр Екатеринбурга → 38 км
    • 10 соток
    1 150 000 ₽
    Если Вы ищете достойный земельный участок для строительства дома своей МЕЧТЫ, тогда это Ваш вариант! Участок расположен в коттеджном поселке Бобровские дачи Поселок под охраной : КПП со шлагбаумом; видеонаблюдение. Есть детский клуб и замечательная детская площадка. Участок достаточно ровный и имеет правильную форму. Электричество доведено до участка. Есть возможность подключить водопровод. Очень хорошие подъездные пути, как до самого поселка, так и внутри его. Соседи все приветливые и дружелюбные люди. Очень живописные места! В шаговой доступности есть водоем, пригодный для купания. Природа настолько чистая и благоприятная, что в лесу можно встретить зайцев, косуль , лис Документы готовы к продаже. Приглашаем Вас на просмотр (записаться можно по телефону). ID объекта в нашей базе: 10779
    размещено: 17.08.2025 , обновлено: 20.10.2025
  • Участок в п. Бобровский, ул. Замятина

    городской округ Сысертский (Тюменское направление)
    Центр Екатеринбурга → 38 км
    • 15 соток
    2 250 000 ₽
    Продаем земельный участок 15 соток, один собственник, чистая продажа. ID объекта в нашей базе: 889
    размещено: 23.07.2025 , обновлено: 31.10.2025
  • Участок в п. Бобровский, ул. Крапивина, 4

    городской округ Сысертский (Тюменское направление)
    Центр Екатеринбурга → 38 км
    • 11 соток
    1 250 000 ₽
    Прoдам учaсток.Катeгopия зeмeль: Зeмли нaселенных пунктoв. Разрешенное использование: Индивидуальная жилая застройка.Kадacтpoвый номep:66:25:1321001:590. Учaсто пpавильной формы, рoвный. Pядом ecть пoстроенные дома. Звоните, записывайтесь на просмотр! Один собственник.Документы готовы.Быстрый выход на сделку. ID объекта в нашей базе: 2950
    размещено: 02.07.2025 , обновлено: 3.09.2025
  • Участок в п. Бобровский, ул. Ленина, 8

    городской округ Сысертский (Тюменское направление)
    Центр Екатеринбурга → 38 км
    • 15 соток
    3 000 000 ₽
    Продается большой ровный участок 15 соток в самом центре поселка Бобровский! Участок ИЖС, Газ проходит по периметру участка. На участке расположен бетонный гараж и бревенчатый домик. Есть возможность разделить участок на 2.Отличная локация участка- в шаговой доступности школа, садики, больница, магазины, дом культуры, остановка общественного транспорта. ID объекта в нашей базе: 11440
    размещено: 25.06.2025 , обновлено: 24.10.2025
  • Участок в к.п. Ясная горка

    городской округ Сысертский (Тюменское направление)
    Центр Екатеринбурга → 38 км
    • 12 соток
    1 800 000 ₽
    Продаются участки в коттеджном поселке "Ясная горка" всего в 20 минутах езды от города. Закрытая территория, охрана. Поселок в окружении соснового леса. Тишина, свежий воздух, чистейшая вода. Идеальное место для тех, кто хочет жить вдали от городской суеты. В продаже имеются участки от 8,5 до 18,5 соток. Есть участки с лесом, есть полностью очищенные. Месторасположение как в центре КП, так и крайние. Успевайте, пока есть выбор! Также, в нашем поселке Вы можете приобрести как участок с подрядом, чтобы в кратчайшие сроки получить качественный дом под ключ, так и просто участок, чтобы иметь возможность строиться самостоятельно в комфортном для Вас темпе.Коттеджный поселок расположен в двух километрах от пос. Бобровский, где имеется вся инфраструктура: школа, детские сады, различные магазины, аптеки и салоны красоты. Также "Ясная горка" имеет хорошую транспортную доступность. На машине Вы сможете доехать до КП по комфортному Тюменскому тракту, автобусом - до поселка Бобровского, а также в 15 минутах ходьбы имеется ж/д станция. В данный момент коттеджный поселок активно развивается. Планируется постройка магазина и бассейна. Платежи всего 2000 руб. в месяц. Налог не более 500 руб. в год. ID объекта в нашей базе: 5842
    размещено: 18.06.2025 , обновлено: 3.10.2025
  • Участок в п. Бобровский, ул. Краснодеревцев

    городской округ Сысертский (Тюменское направление)
    Центр Екатеринбурга → 38 км
    • 10 соток
    • Эл.
    1 650 000 ₽
    Объект № 191736. Кадастровый номер: 66:25:1321001:446 Адрес: Свердловская область, Сысеpтский район, в юго-западной части поселка Бобровский «Литературный квартал». Участок ИЖC 10.35 соток, отмежеван, ровный, прямоугольной формы. Электричество подведено к участку. На участке растут небольшие сосны. В начале квартала в поселок начали проводить газ. Дорогу в этом году до «Литературного квартала» заасфальтировали. В следующем году будут асфальтировать дороги внутри квартала. Сейчас дорога отсыпана, в зимний период чистится. Соседние участки активно застраиваются.  Участок вдали от трасс и производств. Красивая природа, чистый воздух, ягодный и грибной лес. Отличное место для комфортной загородной жизни. Звоните в любое время, готова ответить на все вопросы! Чистая продажа!
    размещено: 07.05.2025 , обновлено: 8.10.2025
  • Участок в п. Бобровский, ул. Комиссарова, 38

    городской округ Сысертский (Тюменское направление)
    Центр Екатеринбурга → 38 км
    • 420 соток
    3 900 000 ₽
    Объект № 191540. Продам земельный участок 41883 кв. метров в Сысертском районе. Категория земель: земли сельскохозяйственного назначения. Вид разрешённого использования - для ведения крестьянско-фермерского хозяйства. Участок расположен в 3.3 км от центра поселка Бобровский, рядом с КП Расторгуев. К участку подходит грунтовая дорога. Есть возможность подведения электричества и газа. Перспективное место для строительства коттеджного поселка. Звоните, отвечу на все вопросы
    размещено: 24.04.2025 , обновлено: 27.10.2025
  • Участок в п. Бобровский, ул. Комиссарова, 40

    городской округ Сысертский (Тюменское направление)
    Центр Екатеринбурга → 38 км
    • 303 сотки
    7 900 000 ₽
    Объект № 191310. Продам земельный участок 30300 кв. метров правильной прямоугольной формы. Категория земель: земли сельскохозяйственного назначения. Вид разрешённого использования - для ведения крестьянско-фермерского хозяйства. На данной земле разрешено строительство жилых домов. Участок расположен в 2, 7 км от центра поселка Бобровский, рядом с КП Расторгуев. К участку подходит грунтовая дорога. Есть возможность подведения электричества-получены тех.условия на ввод 150 кВт. и газа. Перспективное место для строительства коттеджного поселка. Звоните, отвечу на все вопросы.
    размещено: 16.04.2025 , обновлено: 8.10.2025
  • Участок в к.п. Ясная горка

    городской округ Сысертский (Тюменское направление)
    Центр Екатеринбурга → 38 км
    • 10 соток
    1 425 000 ₽
    Продаются участки в коттеджном поселке "Ясная горка" всего в 20 минутах езды от города. Закрытая территория, охрана. Поселок в окружении соснового леса. Тишина, свежий воздух, чистейшая вода. Идеальное место для тех, кто хочет жить вдали от городской суеты.В продаже имеются участки от 8,5 до 18,5 соток. Есть участки с лесом, есть полностью очищенные. Месторасположение как в центре КП, так и крайние. Успевайте, пока есть выбор! Также, в нашем поселке Вы можете приобрести как участок с подрядом, чтобы в кратчайшие сроки получить качественный дом под ключ, так и просто участок, чтобы иметь возможность строиться самостоятельно в комфортном для Вас темпе.Коттеджный поселок расположен в двух километрах от пос. Бобровский, где имеется вся инфраструктура: школа, детские сады, различные магазины, аптеки и салоны красоты. Также "Ясная горка" имеет хорошую транспортную доступность. На машине Вы сможете доехать до КП по комфортному Тюменскому тракту, автобусом - до поселка Бобровского, а также в 15 минутах ходьбы имеется ж/д станция.В данный момент коттеджный поселок активно развивается. Планируется постройка магазина и бассейна. Платежи всего 2000 руб. в месяц. Налог не более 500 руб. в год. ID объекта в нашей базе: 6208
    размещено: 28.02.2025 , обновлено: 3.10.2025
  • Участок в ул. Шабровские дачи

    городской округ Сысертский (Тюменское направление)
    Центр Екатеринбурга → 38 км
    • 11 соток
    • Газ
    2 555 000 ₽
    Продается земельный участок в коттеджном поселке комфорт - класса «Расторгуев»???? Локация:Коттеджный поселок «Расторгуев» (Сысертский ГО), всего 17 км от Екатеринбурга, рядом с п. Бобровский.???? Участок:✔ 11,22 сотки с прямым выходом в лес – тишина, свежий воздух и единение с природой.✔ Расположен на возвышенности – панорамные виды и отсутствие подтоплений.✔ Газ (подземный газопровод) и электричество 380 В подведены - по границе участка.✔ Асфальтированные дороги.????️ Поселок повышенного комфорта:✔ Инфраструктура Бобровского в шаговой доступности: магазины, школа, детский сад, административные и развлекательные объекты.✔ Благоустроенная территория: искусственный водоем, пляж, зоны отдыха, детские и спортивные площадки.✔ Зеленый массив – вокруг смешанный лес с грибами и ягодами.✔ Удаленность от трасс – тишина и безопасность для семьи.✨ Идеально для ПМЖ или загородного отдыха! ID объекта в нашей базе: 3473
    размещено: 31.10.2024 , обновлено: 30.10.2025
  • Участок в п. Бобровский, ул. Высоцкого

    городской округ Сысертский (Тюменское направление)
    Центр Екатеринбурга → 38 км
    • 11 соток
    1 700 000 ₽
    ПРОДАЮ земельный участок в п. Бобровский. Участок расположен в окружении лесного массива. Подъезд к участку по твердой, накатанной, грунтовой дороге. Назначение земель ИЖС, строительство разрешено. Электрический столб возле участка. На участке так же уже есть готовый фундамент 8Х10 для постройки капитального дома. От Екатеринбурга до п. Бобровского 34 км, минут 30-40 езды на автомобиле. Подходит по все льготные ипотечные программы! ID объекта в нашей базе: 10097
    размещено: 09.09.2024 , обновлено: 30.10.2025
  • Участок в п. Бобровский, ул. Бобровские дачи, 25

    городской округ Сысертский (Тюменское направление)
    Центр Екатеринбурга → 38 км
    • 11 соток
    1 390 000 ₽
    ✨Продается большой , живописный участок 10.8 сот у Леса с????КП Бобровские Дачи, поселок полностью окружен лесом. .Заведено электричество на участок 15 кв. 
Въезд в КП через шлагбаум , возможно сделать свой отдельный въезд ! круглосуточная охрана ,видеонаблюдение, есть детская площадка , красивая природа с ягодами , грибами и водоемом летом и снегоходами, лыжами , санками зимой, есть трассы куда можно поехать кататься . Дороги чистят ! Шикарное , живописное место , рядом поселок Бобровский и в нем вся инфраструктура : магазины , школы , дет сады , аптеки и многое другое. Если планируете строить дом ,и вам подходит семейная льготная программа или Ит , тогда можно купить его в ипотеку от 6% и стоимость участка и строительства, включить в эту ипотеку !!! Помощь в одобрении и сопровождении бесплатно! Большой участок на котором возможно построить большой красивый дом . В поселке живут круглогодично. Кп Бобровские дачи расположены в Сысертском городском округе, рядом с поселком Бобровский в 25 км от Екатеринбурга. Добраться на автомобиле можно как по Челябинскому, так и по Тюменскому тракту. Участок готов для того, чтобы строиться и жить. !! Есть возможность построить дом с подрядной организацией по семейной льготной ипотеке. 1,5 -4 месяца и вы уже живете в своем доме с комфортными низкими платежами . Есть готовые проекты домов, их можно посмотреть. Возможно строительство по готовому проекту или индивидуальному . Отличный вариант для постоянного проживания или как дачу. Один взрослый собственник . Помощь в одобрении ипотеки. Приглашаем желающих на просмотр. ID объекта в нашей базе: 6279
    размещено: 23.06.2024 , обновлено: 23.10.2025

Предложения о продаже садов в п. Бобровский

    Садовый участок в п. Бобровский, СНТ Строитель

    городской округ Сысертский (Тюменское направление)
    Центр Екатеринбурга → 38 км
    • 5 соток
    • 1 этаж
    990 000 ₽
    Объект № 195018. Продам дом с участком 510 кв.м. в тихом и зелёном СНТ «Строитель» (Каменск-Уральский тракт, 40 км от Екатеринбурга). В 5 минутах пешком — ж/д станция «Строитель»(40 км.), удобный подъезд круглый год, зимой дороги регулярно очищаются от снега. Дом 25,5 кв.м. — уютный, подойдёт для отдыха или проживания летом. Участок правильной формы, ухоженный, огорожен. Есть возможность построить новый дом. Отличный вариант для дачи или загородной жизни рядом с городом!
    размещено: 17.10.2025 , обновлено: 22.10.2025
  • Дом с участком в п. Бобровский, СНТ Заречный, уч. 39

    городской округ Сысертский (Тюменское направление)
    Центр Екатеринбурга → 38 км
    • 7 соток
    • Дом 90 м2
    • 2 этажа
    6 500 000 ₽
    Срочно продается дом с участком в поселке Бобровском , СНТ Заречный . Земля 7 соток , на которой находится теплица ., огурцы ,помидоры.зелень , картошка .морковь . Школы , магазины, детсад рядом с домом . Звоните по телефону отвечу на все вопросы, Помогу с ипотекой . возможно без первоначального взноса . ID объекта в нашей базе: 8554
    размещено: 04.08.2025 , обновлено: 28.10.2025
  • Дом с участком в п. Бобровский, Свежий Воздух, ул. Алёшина, 65

    городской округ Сысертский (Тюменское направление)
    Центр Екатеринбурга → 38 км
    • 6.3 соток
    • Дом 127.6 м2
    • 1 этаж
    7 400 000 ₽
    Объект №175. Продается просторный дом вашей мечты в СНТ "Свежий Воздух"!Предлагается к продаже уютный дом 127.57 м² на участке 6,28 соток в экологически чистом районе, всего в 30 км от Екатеринбурга.Преимущества:Просторная планировка: 3 уютные спальни, просторная кухня-гостиная, совмещенный санузел.Высокое качество строительства: Дом из твинблока, сдача "под чистовую" (штукатурка стен, стяжка пола, разводка коммуникаций).Удобства: асфальтированный подъезд, интернет.Участок: возможность обустройства зоны барбекю, теплицы.Расположение: Быстрый выезд на Тюменский тракт, хорошие соседи.Сдача дома: конец 2024 - начало 2025 года.Дом готов к воплощению ваших дизайнерских идей!Помощь в оформлении ипотеки!Звоните прямо сейчас, чтобы записаться на просмотр!
    размещено: 10.03.2025 , обновлено: 28.10.2025
  • Дом с участком в п. Бобровский, СНТ "Сосновый бор, уч. 1"

    городской округ Сысертский (Тюменское направление)
    Центр Екатеринбурга → 38 км
    • 8.75 соток
    • Дом 48.5 м2
    • 1 этаж
    • Состояние: идеальное
    3 900 000 ₽
    Продается полностью готовый дом в СНТ Сосновый бор.Полностью благоустроенный, вода из скважины, канализация септик, подключено электричество, подходит для круглогодичного проживания.Площадь 48,5 кв.м, функционал евродвушки -большая гостиная 19 метров, и спальня 10,6 метров, совмещенный санузел, терраса.Живописный участок 8,75 соток, категория - земли населенных пунктов.Чистая продажа. ID объекта в нашей базе: 1490
    размещено: 01.02.2024 , обновлено: 22.10.2025

Приоритет

Увеличивает просмотры в 3 раза

Ваше объявление показывается в списке выше обычных объявлений. подключить