На Метре реклама - только нормальная. Никакого шок-контента.
Помогайте независимому ресурсу, как он помогает вам. Удачи!
Новостройки Котт. посёлки Объявления Динамика цен и сделок

Продажа торговых площадей: Екатеринбург, ул. Сухоложская, 13 (Вторчермет)

  • опубликовано 20.10.2025 , обновлено 12.12.2025
  • 9
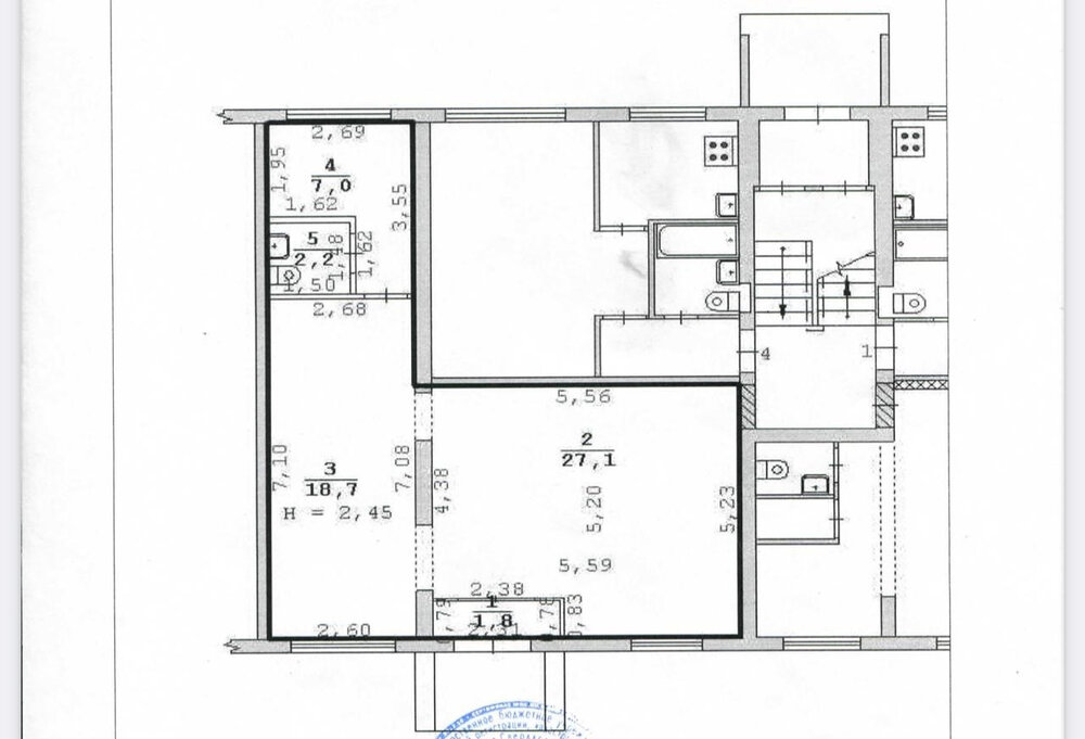
Общая площадь:56.8 м2
Этаж/Этажность здания:1/5
Тип здания:Жилой дом
Отдельный вход:Да
Цена:
13 599 000
Объявление снято с публикации
Коммунальные платежи:оплачиваются отдельно
Условия продажи:«чистая» продажа

Продается торговое помещение с отдельным входом на улицу Сухоложскую. Хороший ремонт, торговый зал, помещения для персонала. Имеется парковка. Удачное расположение, рядом торговые точки, остановки общественного транспорта. Документы готовы.
ID объекта в нашей базе: 25322

Объявление снято с публикации

Актуальные предложения поблизости

  • Торговая площадь 56.8 м2 – Сухоложская, 13

    • 56.8 м2
    • 1/5 этаж
    • в доме
    11 899 000 ₽ (209500 ₽/м2)
    Продается торговое помещение с отдельным входом на улицу Сухоложскую. Хороший ремонт, торговый зал, помещения для персонала. Имеется парковка. Удачное расположение, рядом торговые точки, остановки общественного транспорта. Документы готовы. ID объекта в нашей базе: 25322
    размещено: 18.12.2025 , обновлено: 28.01.2026

История предложений

объявление снято с публикации в продаже площадь, м2 цена,
Екатеринбург, ул. Сухоложская, 13 (Вторчермет) - фото торговой площади 19 декабря 2025 90 дн. 56.8 11 900 000
Екатеринбург, ул. Сухоложская, 13 - фото торговой площади 3 декабря 2025 90 дн. 56.8 11 900 000
Екатеринбург, ул. Сухоложская, 13 (Вторчермет) - фото торговой площади 23 ноября 2025 90 дн. 56.8 12 900 000
Екатеринбург, ул. Сухоложская, 13 (Вторчермет) - фото торговой площади 25 сентября 2025 90 дн. 56.8 13 599 000
Екатеринбург, ул. Сухоложская, 13 (Вторчермет) - фото торговой площади 10 января 2025 90 дн. 56.8 11 900 000
Екатеринбург, ул. Сухоложская, 13 (Вторчермет) - фото торговой площади 18 декабря 2024 90 дн. 56.8 11 900 000
Екатеринбург, ул. Сухоложская, 13 (Вторчермет) - фото торговой площади 30 ноября 2024 90 дн. 56.8 11 900 000

Похожие предложения о продаже торговых площадей в Екатеринбурге (Вторчермет)

  • Торговая площадь 56.8 м2 – Сухоложская, 13

    • 56.8 м2
    • 1/5 этаж
    • в доме
    11 899 000 ₽ (209500 ₽/м2)
    Продается торговое помещение с отдельным входом на улицу Сухоложскую. Хороший ремонт, торговый зал, помещения для персонала. Имеется парковка. Удачное расположение, рядом торговые точки, остановки общественного транспорта. Документы готовы. ID объекта в нашей базе: 25322
    размещено: 18.12.2025 , обновлено: 28.01.2026
  • Торговая площадь 130 м2 – Монтерская, 12а

    • 130 м2
    • 1/25 этаж
    • в ТЦ
    28 100 000 ₽ (216200 ₽/м2)
    Объект № 191150. Продам коммерческое помещение 130м2 в ЖК «Сибирская Калина». ЖК «Сибирская Калина» — часть масштабного проекта жилой застройки в новом, экологичном и зеленом районе Екатеринбурга «Южная Ботаника». Это современный комплекс с продуманной инфраструктурой и выгодным расположением. О комплексе: расположен в перспективном районе «Южная Ботаника». Зеленый квартал с собственным парком и садом камней. Развитая инфраструктура: школа, детский сад. Удобная транспортная развязка. Характеристики помещения: разные варианты площадей. Выгодное расположение с высокой проходимостью. Современные планировочные решения. Преимущества для бизнеса: перспективное место в быстроразвивающемся районе. Стабильный поток клиентов благодаря жилому комплексу. Гибкие условия покупки - рассрочка! Узнайте подробности по телефону!
    размещено: 08.04.2025 , обновлено: 5.02.2026
  • Торговая площадь 218 м2 – Монтерская, 12а

    • 218 м2
    • 1/9 этаж
    • в ТЦ
    44 890 000 ₽ (205900 ₽/м2)
    Объект № 191148. Продам коммерческое помещение 218 м2 в ЖК «Сибирская Калина». ЖК «Сибирская Калина» — часть масштабного проекта жилой застройки в новом, экологичном и зеленом районе Екатеринбурга «Южная Ботаника». Это современный комплекс с продуманной инфраструктурой и выгодным расположением в перспективном районе «Южная Ботаника». Зеленый квартал с собственным парком и садом камней. Развитая инфраструктура: школа, детский сад. Удобная транспортная развязка. Характеристики помещения: Разные варианты площадей. Выгодное расположение с высокой проходимостью. Современные планировочные решения. Преимущества для бизнеса: Перспективное положение в быстроразвивающемся районе. Стабильный поток клиентов благодаря жилому комплексу. Гибкие условия покупки - рассрочка! Узнайте подробности по телефону!
    размещено: 07.04.2025 , обновлено: 26.01.2026
  • Торговая площадь 283 м2 – Титова, 22

    • 283 м2
    • -1/9 этаж
    • в доме
    13 000 000 ₽ (45900 ₽/м2)
    Свободного назначения, 283 м² Продам коммерческое помещение свободного назначения по адресу город Екатеринбург, улица Титова, дом 22. ================================================= ???? Объект расположен в Чкаловском районе, на первой линии одной из главных магистральных улиц — улицы Титова. Это место отличается высоким уровнем пешеходного и автомобильного трафика, что создает отличные условия для узнаваемости вашего бизнеса. Высокая проходимость гарантирует, что ваш бизнес будет заметным для потенциальных клиентов, что особенно важно в условиях конкурентного рынка. ???? Удобное расположение на пересечении улиц Титова — Братская и Титова — Военная обеспечивает легкий доступ к объекту как на личном, так и на общественном транспорте. Это делает место привлекательным не только для клиентов, но и для сотрудников, которые смогут без труда добираться до работы. ???? В районе отлично развита инфраструктура. Соседствующие в этом же здании компании, такие как СберБанк, Сбер ​Копировальные услуги, Мясной центр, Аптека, Мегамаркет, СберСтрахование и др., формируют активную бизнес-среду. Это создает дополнительный поток клиентов, который может способствовать росту вашего бизнеса. ???? В непосредственной близости от объекта расположены различные точки притяжения, что делает его еще более привлекательным: Остановки общественного транспорта — от 2 мин Салон оптики, Сеть магазинов джинсовой одежды, Монетка — 1 мин Додо Пицца, Магазин одежды, Компания переводов с иностранных языков, Школы — 2 мин Копицентр, Фото на документы — 3 мин Сквер им. Бориса Рыжего, Студия загара и красоты, Служба доставки японской кухни, Екатеринбургский политехникум, Детские сады — 4 мин Мужская парикмахерская, Дом детского творчества — 5 мин Территория отдыха Мангал (парк) — 10 мин ✨ Широкие рекламные возможности, предоставляемые таким местоположением, позволят вам эффективно представлять ваш бизнес потенциальным клиентам. ???? Наличие бесплатной парковки на 48 машиномест является значительным преимуществом для вашего бизнеса. ================================================= ???? Подвальное помещение с отдельным входом со двора предлагает уникальную возможность для реализации самых разнообразных бизнес-идей. С общей площадью в 283 кв.м., это пространство открывает широкие горизонты для креативных решений. Высота потолков составляет 2,6 м., что позволяет создать комфортную атмосферу для работы и отдыха, а разрешённая мощность в 10 кВт с возможностью увеличения делает помещение универсальным для различных коммерческих нужд. ????️‍♂️ Это место идеально подходит для создания склада или хранилища, где можно организовать эффективное хранение товаров. Также возможно использование пространства для квест-комнат, что стало популярным развлечением в последние годы. Релакс-центр или тренажёрный зал могут привлечь внимание местных жителей, желающих заниматься спортом или расслабляться после тяжелого рабочего дня. ???? Свободная планировка помещения предоставляет возможность адаптировать пространство под конкретные нужды вашего бизнеса. Наличие всех необходимых коммуникаций, таких как вода, электричество и канализация, значительно упрощает процесс организации нового бизнеса. Например, помещение может быть преобразовано в производственный цех, офис, салон красоты или торговую точку. ???? Кроме того, здесь можно открыть пункт выдачи товаров, что особенно актуально в условиях растущей популярности онлайн-торговли. Автомастерская, кафе или антикафе также могут найти здесь своё место. Место может стать культурным центром, где будут проводиться выставки и мастер-классы, или даже музеем, который привлечет любителей искусства и истории. ???? Для тех, кто хочет предложить услуги массажа или открыть химчистку, это помещение станет идеальным выбором. Турагентство или образовательный центр для детей и взрослых также могут успешно разместиться в этом пространстве. Студия тату и пирсинга, магазин одежды, обуви или канцтоваров — все эти идеи могут быть реализованы в данном помещении. ================================================= ???? Стоимость продажи составляет 13 000 000 руб. Мы готовы предоставить всю необходимую информацию и ответить на ваши вопросы. Не упустите шанс стать владельцем этого уникального пространства! Позвоните нам, чтобы договориться о просмотре помещения и обсудить условия аренды. Мы с нетерпением ждем вашего звонка! ???? ================================================= Наше объявление можно найти по словам: помещение свободного назначения, коммерческое помещение, офисное помещение, торговое помещение, складское помещение, производственное помещение, чкаловский район, екатеринбург, склад, хранилище, квест, релакс-центр, тренажёрный зал, спортзал, кальянная, производство, офис, салон красоты, торговая точка, пункт выдачи товаров, автомастерская, кафе, антикафе, музей, массажная студия, химчистка, турагентство, образовательный центр для детей и взрослых, студия тату и пирсинга, магазин одежды, магазин обуви, канцтовары, магазин ID объекта в нашей базе: 317
    размещено: 26.03.2025 , обновлено: 27.01.2026

Приоритет

Увеличивает просмотры в 3 раза

Ваше объявление показывается в списке выше обычных объявлений. подключить