Екатеринбург, Автовокзал
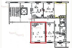
Продается комната S= 11.6м2 , в квартире секционного типа. В квартире всего 4 комнаты .
В комнате сделан косметический ремонт. Заведена вода и канализация, что позволило подключить стиральную машину.
Окно выходит во двор, солнечная сторона после 13.00
Новому владельцу остаётся шкаф купе, холодильник и стиральная машина, имеется отдельный шкаф на кухне, и большой шкаф в коридоре.
Развитая инфраструктура: больница, садик и школа, парк Маяковского для выходного дня. Транспорт в шаговой доступности, метро: ст. Ботаническая и ст. Чкаловская (до любой станции 10 минут пешком).
Во дворе всегда есть место для личного автомобиля, что сейчас редкость .
Быстрый выход на сделку, один взрослый собственник.
Долгов по коммунальным услугам нет, обременений нет.
ID объекта в нашей базе: 6755
размещено: 21.04.2026
























