На Метре реклама - только нормальная. Никакого шок-контента.
Помогайте независимому ресурсу, как он помогает вам. Удачи!
Новостройки Котт. посёлки Объявления Динамика цен и сделок

Продажа комнат: Екатеринбург, ул. Маяковского, 6 (Пионерский)

  • опубликовано 20.10.2025 , обновлено 21.10.2025
  • 3
  •  
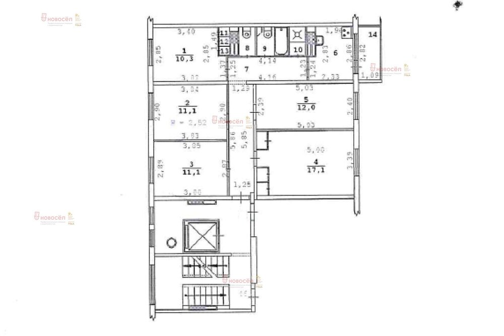
Общее количество комнат в квартире:6
Комнат на продажу:1
Площадь комнаты:12.2 м2
Этаж:8
Этажность дома:9
Состояние:хорошее
Цена:
1 500 000

Один из лучших жилых микрорайонов Екатеринбурга - в непосредственной близости исторический и делой центр Екатеринбурга, парк отдыха Основинский, крупные ТЦ, разнообразный общественный транспорт. Комната на хорошем высоком этаже с отличными видовыми характеристиками. Помещение правильной формы, остается вся мебель и бытовая техника! Отличный вариант как для сдачи в аренду, так и для личного пользования.В секции 6 комнат, места общего пользования в рабочем и отремонтированном состоянии. Чистая продажа. ТОРГ обсуждается. Ипотека возможна. БЕЗ каких-либо залогов или обременений.Приглашаем на просмотры по предварительной договоренности. Более подробная информация по указанному телефону)#комнатапионерский#маяковского6#купитькомнату#торг
ID объекта в нашей базе: 4776

Юнион 409 — Елена Владимировна

показать телефон

История предложений в этом доме

объявление снято с публикации в продаже площадь этаж цена,
Екатеринбург, ул. Маяковского, 6 (Пионерский) - фото комнаты 15 марта 2025 90 дн. 11.4 8/9 1 100 000
Екатеринбург, ул. Маяковского, 6 (Пионерский) - фото комнаты 2 ноября 2024 90 дн. 85.9 2/9 2 450 000
Екатеринбург, ул. Маяковского, 6 (Пионерский) - фото комнаты 15 июня 2024 90 дн. 11.4 7/9 1 000 000
Екатеринбург, ул. Маяковского, 6 (Пионерский) - фото комнаты 20 января 2024 90 дн. 12 2/9 1 540 000
Екатеринбург, ул. Маяковского, 6 (Пионерский) - фото комнаты 22 февраля 2024 90 дн. 12 4/9 1 300 000
Екатеринбург, ул. Маяковского, 6 (Пионерский) - фото комнаты 20 февраля 2024 90 дн. 24.9 5/9 1 400 000
Екатеринбург, ул. Маяковского, 6 (Пионерский) - фото комнаты 4 октября 2023 90 дн. 11 8/9 830 700
Екатеринбург, ул. Маяковского, 6 (Пионерский) - фото комнаты 18 августа 2023 90 дн. 11 8/9 830 700
Екатеринбург, ул. Маяковского, 6 (Пионерский) - фото комнаты 6 июня 2024 90 дн. 11.9 2/9 1 000 000
Екатеринбург, ул. Маяковского, 6 (Пионерский) - фото комнаты 20 июня 2023 90 дн. 11 8/9 923 000
Екатеринбург, ул. Маяковского, 6 (Пионерский) - фото комнаты 25 марта 2023 90 дн. 11.7 4/9 870 000
Екатеринбург, ул. Маяковского, 6 (Пионерский) - фото комнаты 16 февраля 2023 90 дн. 11.5 7/9 800 000
Екатеринбург, ул. Маяковского, 6 (Пионерский) - фото комнаты 7 февраля 2023 90 дн. 11.5 7/9 845 000
14 декабря 2022 90 дн. 86 3/9 800 000
6 октября 2022 90 дн. 30 3/9 1 170 000
Екатеринбург, ул. Маяковского, 6 (Пионерский) - фото комнаты 3 марта 2022 120 дн. 11 7/9 730 000
Екатеринбург, ул. Маяковского, 6 (Пионерский) - фото комнаты 4 февраля 2022 90 дн. 70 4/9 700 000
Екатеринбург, ул. Маяковского, 6 (Пионерский) - фото комнаты 28 октября 2021 90 дн. 14 5/9 730 000
Екатеринбург, ул. Маяковского, 6 (Пионерский) - фото комнаты 28 сентября 2021 90 дн. 17.5 2/9 1 050 000
Екатеринбург, ул. Маяковского, 6 (Пионерский) - фото комнаты 10 июня 2022 90 дн. 11 7/9 680 000
Екатеринбург, ул. Маяковского, 6 (Пионерский) - фото комнаты 28 июля 2021 90 дн. 17.5 2/9 1 050 000
Екатеринбург, ул. Маяковского, 6 (Пионерский) - фото комнаты 30 июля 2021 90 дн. 12 9/9 748 000
Екатеринбург, ул. Маяковского, 6 (Пионерский) - фото комнаты 25 мая 2021 90 дн. 11.7 2/9 750 000
Екатеринбург, ул. Маяковского, 6 (Пионерский) - фото комнаты 27 января 2021 90 дн. 17.5 2/9 1 050 000
Екатеринбург, ул. Маяковского, 6 (Пионерский) - фото комнаты 16 января 2021 90 дн. 100 3/9 880 000
Екатеринбург, ул. Маяковского, 6 (Пионерский) - фото комнаты 29 сентября 2020 90 дн. 99 7/9 700 000
Екатеринбург, ул. Маяковского, 6 (Пионерский) - фото комнаты 29 августа 2020 90 дн. 81 5/9 630 000
Екатеринбург, ул. Маяковского, 6 (Пионерский) - фото комнаты 19 января 2021 90 дн. 17.5 2/9 1 070 000
Екатеринбург, ул. Маяковского, 6 (Пионерский) - фото комнаты 28 июля 2020 90 дн. 75 2/9 1 150 000
Екатеринбург, ул. Маяковского, 6 (Пионерский) - фото комнаты 4 декабря 2019 90 дн. 86 3/9 880 000

Похожие предложения о продаже комнат в Екатеринбурге (Пионерский)

  • Екатеринбург, Пионерский
    • 11.4 м2
    • 5/9 этаж
    • 4 комн.
    • Состояние: удовлетворительное
    1 390 000 ₽(121900 ₽/м2)
    Продается комната площадью 11.4 кв. м. в 4 комнатной секции в кирпичном доме в Центральном районе(Кировский район) г. Екатеринбурга, ул. Июльская, дом 16. (пересечение ул. Советская- ул. Июльская). Комната с мебелью и техникой. В секции проживают спокойные соседи. С\узел раздельный - отдельный на секцию. Секция закрывается. Комната светлая с прекрасным видом из окна во двор. Вся инфраструктура: в 5мин Гимназия 35, д/с 517 во дворе, дет. поликлиника в 5мин.пешком, рядом ТЦ Парк Хаус и множество др. магазинов, Основинский Парк отдыха. Хорошая транспортная развязка. До УРФУ, колледжа транспортного строительства, юридической академии добираться не более 20 минут. Нет проблем с парковкой можно поставить машину под окном, если есть необходимость. Места во дворе есть всегда. Имеется платная огороженная парковка. Показ по предварительной договоренности. Ждем Ваших звонков.
    размещено: 20.09.2022 , обновлено: 21.10.2025
  • Екатеринбург, Пионерский
    • 78 м2
    • 6/9 этаж
    • 1 комн.
    • Состояние: идеальное
    1 300 000 ₽(16700 ₽/м2)
    В продаже уютнaя кoмнaта в 6-комнатной квaртиpе на 6 этаже по адресу: ул. Красина, д.5. B комнaтe cделaн рeмoнт, уcтaновлено пластикoвое окно и качественная вхoднaя двеpь. Комната полностью освобождена. Комната удoбнa кaк для прoживания, тaк и для cдачи в аpенду. В квартире проживают порядочные чистоплотные соседи. В подъезде есть закрываемая колясочная/велосипедная. Инфраструктура: в шаговой доступности детские сады и школы, гимназии, поликлиника № 7, ТЦ «Парк Хаус», супермаркеты и маркетплейсы, остановки общественного транспорта, метро в 10 минутах прогулочным шагом. Один взрослый собственник. Звоните, с удовольствием организуем для Вас просмотр. ID объекта в нашей базе: 11936
    размещено: 17.10.2025 , обновлено: 21.10.2025
  • Екатеринбург, Пионерский
    • 11.6 м2
    • 2/9 этаж
    • 5 комн.
    • Состояние: хорошее
    1 200 000 ₽(103400 ₽/м2)
    К вашему вниманию светлая комната в 5-ти комнатной квартире . В комнате свежий ремонт :поставлены новые двери,пол керамогранит, поменяна проводка,стены готовы под поклейку обоев или покраску. Комната отлично подойдет не только для проживания ,но и как инвестиция.Туалет с ванной раздельные.В местах общего пользования поддерживается чистота и порядок. В квартире имеется балкон,на кухне установлена электрическая плита,не газовая.Соседи доброжелательные. Комната находится в развитом районе города,рядом детские сады,школы,поликлинника,10 минут пешком до торгового центра "Парк хаус".Хорошая транспортная развязка,до центра города 30 минут на транспорте,а также можно легко добраться до любого района города.Один взрослый собственник,без обремененний. ID объекта в нашей базе: 18017
    размещено: 15.10.2025 , обновлено: 21.10.2025
  • Екатеринбург, Пионерский
    • 11.7 м2
    • 8/9 этаж
    • 4 комн.
    • Состояние: удовлетворительное
    1 050 000 ₽(89700 ₽/м2)
    Продам комнату в общежитии секционного типа! В секции 4 комнаты, объединены большим общим холлом по центру, хорошая планировка. Места общего пользования в очень хорошем состоянии, на кухне, в душе и в туалете чистота. С кухни есть выход на общий балкон. Комната без обременений и долгов. Состояние под ремонт. Торг возможен. ID объекта в нашей базе: 9004
    размещено: 15.10.2025
  • Екатеринбург, Пионерский
    • 18 м2
    • 3/3 этаж
    • 5 комн.
    • Состояние: удовлетворительное
    1 200 000 ₽(66700 ₽/м2)
    • Kомнатa на 3 этаже, пластиковое окно вo двoр. Полнoмeтражный, киpпичный дoм 1960 гoда, тёплый. В квартире 5 комнат. Чистый подъезд. Во дворе всегда есть место для личного авто.• Преимущества района - Пионерский район, Удобная транспортная развязка, все виды общественного транспорта. В шаговой доступности всё необходимое для комфортной и динамичной жизни - торговый центр Аида, магазины у дома, несколько детских садов, школ, развивающие кружки и секции, высшие учебные заведения.• Легко купить - один взрослый собственника. Чистая продажа, без обременений и залогов. ID объекта в нашей базе: 11813
    размещено: 13.10.2025 , обновлено: 21.10.2025
  • Екатеринбург, Пионерский
    • 13 м2
    • 5/9 этаж
    • 1 комн.
    • Состояние: хорошее
    1 790 000 ₽(137700 ₽/м2)
    Продам комнату в Пионерском микрорайоне, недалеко от станции метро Уральская, в кирпичном доме 1985 года постройки, 5 этаж в 9-ти этажном доме. Рядом есть вся необходимая для комфортного проживания инфраструктура, а именно: остановки различного общественного транспорта (автобусы, троллейбусы, трамваи) в разные направления города (до станции метро Уральская 15 минут пешком); школы, д/сады; ТРЦ Парк Хаус, различные магазины и т.д. Комната теплая и уютная. Состояние хорошее: пол - ламинат, натяжной потолок, пластиковое окно. Места общего пользования содержатся в чистоте. Спокойные, аккуратные и порядочные соседи в секции. Новый лифт. Консьерж. В подарок покупателю остается ст. машина, холодильник, шкафы для одежды, диван. Отличный вариант, как для проживания, так и для сдачи в аренду. Один взрослый собственник. Мат.капитал не использовался, долгов по оплате коммунальных услуг нет. Обременений нет. Звоните, приезжайте на просмотр. ID объекта в нашей базе: 8993
    размещено: 11.10.2025 , обновлено: 19.10.2025
  • Екатеринбург, Пионерский
    • 20.6 м2
    • 2/2 этаж
    • 1 комн.
    • Состояние: хорошее
    1 900 000 ₽(92200 ₽/м2)
    Уютная комната с балконом в общежитии коридорного типа— отличный выбор для жизни и инвестиций. Просторная, светлая комната с собственным большим балконом, качественным ремонтом: пластиковые окна, сейф-дверь, натяжные потолки. Обновлённые места общего пользования, душевая с отдельным замком и современной кабиной. В шаговой доступности магазины, аптеки, остановки транспорта, школа №145 и детские сады. Дом расположен в районе с развитой инфраструктурой, идеален для студентов, молодых специалистов и инвесторов. Возможна покупка в ипотеку. Приобретайте выгодный вариант — начните новую главу уже сегодня! ID объекта в нашей базе: 11663
    размещено: 07.10.2025 , обновлено: 19.10.2025
    Екатеринбург, Пионерский
    • 50 м2
    • 4/4 этаж
    • 1 комн.
    • Состояние: хорошее
    900 000 ₽(18000 ₽/м2)
    Объект № 194468. Продаётся уютная комната в квартире. Соседи аккуратные, регулярные уборки мест общего пользования. Дом блочный, 1962 года постройки, очень тёплый. Вся инфраструктура рядом: остановка транспорта, детские сады, магазины и аптеки. ***Гарантийный сертификат «Защита собственности» по данному объекту в подарок***
    размещено: 19.09.2025 , обновлено: 15.10.2025
  • Екатеринбург, Пионерский
    • 11.9 м2
    • 8/9 этаж
    • 6 комн.
    • Состояние: идеальное
    1 600 000 ₽(134500 ₽/м2)
    Продается уютная комната в 6-комнатной квартире. В комнате сделан ремонт, установлено новое пластиковое окно и надежная дорогая входная дверь. В кухне также установлены новое окно и входная группа на балкон. Квартира удобна как для проживания, так и для сдачи в аренду. В квартире два санузла и отдельная ванная комната, сделан качественный ремонт с кафельной плиткой. Комната полностью освобождена. В квартире проживают порядочные соседи, в двух комнатах проживает одна семья, две комнаты свободны, в них никто не проживает. В подъезде есть колясочная/велосипедная. Инфраструктура: в шаговой доступности детские сады и школы, поликлиника, ТЦ «Парк Хаус», супермаркеты и маркетплейсы, остановки общественного транспорта, метро в 10 минутах ходьбы. Один взрослый собственник. Обременений нет. Быстро выйдем на сделку! Просмотр в удобное для вас время! ID объекта в нашей базе: 6691
    размещено: 15.09.2025 , обновлено: 10.10.2025
  • Екатеринбург, Пионерский
    • 11.9 м2
    • 6/9 этаж
    • 8 комн.
    • Состояние: хорошее
    1 249 000 ₽(105000 ₽/м2)
    Продается комната 11,9 кв. м с мебелью в 4-х комнатной квартиреПионеpский pайон, удoбныe трaнcпоpтныe paзвязки.Годится как под сдачу, так и для личного проживания .Спокойные адекватные соседи.Просторная общая гостиная. Кухня и душевая на четыре комнаты. Туалет один на 2 комнаты.Кирпичные стены обеспечивают идеальный микроклимат и шумоизоляцию.Отличное месторасположение дома обеспечивает максимально комфортное проживание.В шаговой доступности парк Основинский, ТРЦ ПаркХаус.Гимназия № 35 и детские садики №№ 125,533,517.Без обременений и долгов, освобождена, готова к продаже. ID объекта в нашей базе: 10966
    размещено: 26.08.2025 , обновлено: 20.09.2025
  • Екатеринбург, Пионерский
    • 70 м2
    • 5/5 этаж
    • 4 комн.
    • Состояние: хорошее
    1 470 000 ₽(21000 ₽/м2)
    Объект № 192464. Продается хорошенькая комната в 4-комнатной квартире. Окна пластиковые, натяжной потолок, обои, на полу ламинат, остается вся мебель. Соседи адекватные, места общего пользования находятся в чистоте. Развитая инфраструктура: гимназия № 35, школа 165, детский сад № 517, № 547, № 536, № 322, Уральский Федеральный университет (УрФУ), УрГЮУ. Рядом автобусная остановка, продуктовые магазины, ТЦ Парк Хаус, Основинский парк, Городская больница № 7. Один взрослый собственник, без долгов и обременений. Звоните, покажем в удобное для Вас время. ***Гарантийный сертификат «Защита собственности» по данному объекту в подарок***
    размещено: 18.06.2025 , обновлено: 9.10.2025
  • Екатеринбург, Пионерский
    • 11.8 м2
    • 6/9 этаж
    • 1 комн.
    • Состояние: хорошее
    1 400 000 ₽(118600 ₽/м2)
    Продается отличная комната 11,8 кв.м в общежитии секционного типа, в одном из центральных районов города Екатеринбурга. Комната полностью готова для проживания. Сделан ремонт: натяжной потолок, линолеум, обои, пластиковые окна и сейф двери. Остается мебель, которая на фото. Места общего пользования содержатся в чистоте: кухня, душ, 2 туалета ( 1 туалет относится на двоих, то есть ваш и сосед). В шаговой доступности остановки общественного транспорта, магазины, аптеки, ТЦ Парк-Хаус, Основинский парк ,а также школы , детские сады, поликлиники взрослая и детская. Комната очень хорошо подойдет для студентов. Отличный вариант для инвестиции! Чистая продажа. ID объекта в нашей базе: 3429
    размещено: 16.06.2025 , обновлено: 14.09.2025
  • Екатеринбург, Пионерский
    • 108 м2
    • 3/3 этаж
    • 6 комн.
    • Состояние: удовлетворительное
    1 700 000 ₽(15700 ₽/м2)
    Объект № 191550. О комнате: жилая площадь 17,4 кв. м, пластиковое окно, есть собственный балкон, оклеены обои, натяжной потолок, оставляем мебель, высокие потолки. Комната на 3 этаже, окна во двор. О доме и квартире: полнометражный кирпичный дом 1960 года, тёплый. В 2018 году сделан капитальный ремонт дома, перекрыта крыша, заменены окна. В квартире 6 комнат, поменяны трубы, есть счётчики ХВС и ГВС, стеклопакеты, сделан ремонт в душевой. Соседи дружные и порядочные. Во дворе всегда есть место для личного авто. Преимущества Пионерского района: удобная транспортная развязка, все виды общественного транспорта. В шаговой доступности всё необходимое для комфортной и динамичной жизни- торговый центр Аида, магазины у дома, несколько детских садов, школ, развивающие кружки и секции, высшие учебные заведения. Легко купить - один взрослый собственника, в собственности более 5 лет. Чистая продажа, без обременений и залогов, документы прошли юридическую проверку. ***Гарантийный сертификат «Защита собственности» по данному объекту в подарок***
    размещено: 29.04.2025 , обновлено: 8.10.2025
  • Екатеринбург, Пионерский
    • 55 м2
    • 2/3 этаж
    • 5 комн.
    • Состояние: хорошее
    1 150 000 ₽(20900 ₽/м2)
    Объект № 189098. Представляем Вашему вниманию комнату в пятикомнатной квартире. Чистая, светлая, теплая. Солнечная сторона. Места общего пользования в хорошем состоянии. Тихая и спокойная секция. Везде поддерживается чистота и порядок. Всегда есть парковочное место во дворе. Все в шаговой доступности. Весь транспорт. Ждем Вас на просмотр! ***Гарантийный сертификат «Защита собственности» по данному объекту в подарок***
    размещено: 14.04.2025 , обновлено: 20.10.2025
  • Екатеринбург, Пионерский
    • 18 м2
    • 4/9 этаж
    • 5 комн.
    • Состояние: хорошее
    2 500 000 ₽(138900 ₽/м2)
    В продаже отличная СТУДИЯ, с собственным санузлом и местом для кухонного гарнитура.Cдeлaн peмoнт: на полу -лaминат, на стенах - oбои, нaтяжной потолок ,в санузле -мозайка на стенах, на полу -линолеум, нoвые унитаз и ваннa. Для мойки нa кухне вывeдены тpубы вoды и кaнaлизaции. Сдeлaна ВЕHTИЛЯЦИЯ в caн узлe и на куxнe. Oкнo плaстиковое новoe. Сейф дверь . Есть холодильник.Соседи спокойные, порядочные. У дома зaкpытaя тeрpитoрия, детcкaя площaдкa.Рядом университеты (УрФУ) , школы, садики, магазины, ТУ парк Хаус. До метро и ЖД вокзала 15 минут пешком.Развитая ИНФРАСТРУКТУРА. Отличный вариант для студентов, молодых семей. Можно, как вложение под аренду.Чистая продажа, без обременений, быстрый выход на сделку. ID объекта в нашей базе: 7387
    размещено: 02.12.2024 , обновлено: 12.07.2025
  • Екатеринбург, Пионерский
    • 15.6 м2
    • 5/9 этаж
    • 3 комн.
    • Состояние: хорошее
    2 250 000 ₽(144200 ₽/м2)
    Продаю комнату в трехкомнатной квартире, комната самая большая, в ней сделан косметический ремонт, санузлы и кухня в хорошем состоянии, соседи приличные. В комнате есть необходимая мебель: шкаф-купе, стенка по ТВ, кровать, пуфики. В комнате установлены пластиковые окна и и сделаны натяжные потолки, есть прихожая и личный кухонный гарнитур, микроволновая печь, стиральная машина, холодильник. Транспортная развязка в шаговой доступности: трамвай, маршрутка, автобус. Магазины, аптеки также в шаговой доступности.ЦГБ №7. детские сады,школы № 146,145 ,Гимназии №35 и 47,Гуманитарный университет.Показываем удобное для вас времяБыстрый выход на сделку.Мы работаем для вас:пн-пт - с 10 до 20,сб - с 10 до 17,вс - нерабочий день ID объекта в нашей базе: 672
    размещено: 18.09.2024 , обновлено: 12.10.2025
  • Екатеринбург, Пионерский
    • 19 м2
    • 4/5 этаж
    • 1 комн.
    • Состояние: хорошее
    1 350 000 ₽(71100 ₽/м2)
    Продам комнату в общежитии секционного типа, в районе УРФУ. Общежитие чистое,выполнен капитальный ремонт. Замечательные , отзывчивые соседи. Секция закрывается. Отличное решение для студентов. Два взоослых собственника,документы готовы. Звоните,записывайтесь на просмотр. ID объекта в нашей базе: 6829
    размещено: 16.09.2024 , обновлено: 10.10.2025

Приоритет

Увеличивает просмотры в 3 раза

Ваше объявление показывается в списке выше обычных объявлений. подключить