Екатеринбург, Компрессорный
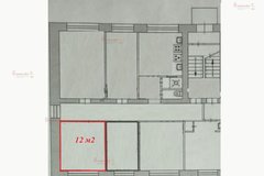
Продается комната в малонаселенной секции. Места общего пользования чистые. В шаговой доступности остановка общественного транспорта, множество торговых точек. Соседи уведомлены, зарегистрированных нет. Один взрослый собственник, приобреталась за наличные, без использования МК. Документы ( включая уведомления соседей) готовы, зарегистрированных нет, быстрый выход на сделку.
ID объекта в нашей базе: 3757
размещено: 12.02.2026
, обновлено: 1.04.2026

























