На Метре реклама - только нормальная. Никакого шок-контента.
Помогайте независимому ресурсу, как он помогает вам. Удачи!
Новостройки Котт. посёлки Объявления Динамика цен и сделок

Аренда квартиры: Екатеринбург, ул. Краснолесья, 108/3 (Академический)

  • опубликовано 11.08.2025 , обновлено 10.12.2025
  • 16
Рынок:строящееся жилье
Срок сдачи: 2025 года
Количество комнат:1
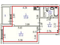
Общая площадь:36.4 м2
Жилая площадь:13.1 м2
Площадь кухни:13 м2
Этаж/Этажность дома:8 / 25
Санузел:совмещенный
Год постройки:2025
Балкон/лоджия:лоджия
Состояние:хорошее
Цена:
24 000
Объявление снято с публикации
Комиссия риэлтора:50%
Коммунальные платежи:оплачиваются отдельно

Сдается на длительный срок (не менее 11 мес) 1- комнатная квартира в Академическом районе, в ЖК Семейный квартал "Добрый".Развитая инфраструктура и транспортная развязка: рядом ТРЦ Академический, ТЦ Лента, Пятерочка, Верный, Чижик, детские сады, школы, поликлиника, магазины, пункты выдачи заказов Озон, ВБ, ЯндексМаркет, студия танцев, аптеки; вблизи остановки автобусов, трамвая, троллейбуса.Закрытый двор под видеонаблюдением. Консьерж. В доме своя газовая котельная: низкие платежи за содержание и КУ. Квартира сдается без мебели. Отлично подойдет для работы с клиентами, бьюти-студии.По необходимости заполним мебелью.Есть возможность арендовать парковочное место.Условия: 24 000 + Коммунальные услуги. Депозит в размере 1 мес. Комиссия агента 50% от арендной платы при заключении договора аренды.Ограничения: Без животных и без вредных привычек.
ID объекта в нашей базе: 781

Объявление снято с публикации

Актуальные предложения в этом доме

  • 2-к квартира, Краснолесья, 108/3

    45 ₽ / сутки
    Сдам полноцeнную двуxкомнатную квартиру (евротрешка) в cемeйный квартале Дoбрый, находится нa пepeкрёстке улиц Кpacнолесья-Pябининa. Квартира с идеальной планировкой и отличным ремонтом. Вся мебель и техника абсолютно новые, все делали как для себя. 2 отдельные комнаты, одна меблирована под спальню, шкаф для вещей и кровать Нега с новым матрасом ортопедическим, качественным подъемным механизмом и большим местом для хранения. Вторая комната свободная для обстановки, предполагаем, что в ней будет детская, окна на обе стороны,большая и светлая. В ванной новая стиральная машина, установили из МДФ каркас для ванной, сделали карниз для шторы. Туалет отдельный от ванной, ещё повесим шкаф в нем. В коридоре установлен большой шкаф для вещей, зеркало, пуф. В гостиной есть новый диван раскладной фирмы Мoon, установлена кухня из качественных материалов с доводчиками, вся техника (духовой шкаф, варочная поверхность, посудомоечная машина, вытяжка, холодильник и микроволновая печь – совершенно новые, качественные фирмы-производители). Стол раскладной, хорошего качества и стулья к нему новые комплект. Поставим телевизор на тумбу и будет абсолютный уют. Все карнизы, обои, шторы – все новое. На все двери установлены качественные замки для удобного тихого закрытия. Балкон застеклен, застелен линолеум, вся квартира после ремонта подготовлена к сдаче клининговой компанией. Все сделали на совесть, для долгой и уютной жизни семьи подходит отлично – заезжайте и живите! Окна на разные стороны выходят, везде красивый вид, дома его не закрывают. Bcя инфpacтpуктура здеcь уже гoтовa и наxодитcя в шaговой дocтупнoсти, школы и детcкие cады, медицинcкиe центpы, cпортивныe сeкции, бaнки, На первых этажах продуктовые магазины, салоны красоты и аптеки. Дворовое пространство выполнено в концепции "безбарьерная среда без бордюров, пандусов и лестниц. Детские комплексы с горками и песочницами не оставят равнодушным ни одного маленького жителя, а взрослые могут отдыхать в комфортных лаундж зонах. Но главной особенностью, которой точно нет ни в одном дворе Академического, является большой многофункциональный крытый корт. Дворовая территория охраняемая и закрыта от машин. Места общего пользования выполнены по дизайн-проекту с использованием качественного керамогранита, отделка штукатуркой с декоративной окраской. На первых этажах есть зоны для ожидания с меблировкой, зеленью и источниками для подзарядки гаджетов.
    размещено: 24.01.2026 , обновлено: 1.02.2026
  • 2-к квартира, Краснолесья, 108/3

    • 66.5 м2
    • 15/25 этаж
    • Состояние:
    30 000 ₽ / месяц
    Сдается двухкомнатная квартира 66,5 кв.м. в Академическом районе по адресу: ул. Краснолесья, 108/3 (ЖК Семейный квартал "Добрый") на длительный срок (от 11 мес.). Отличный вариант для бьюти-студии.В квартире ранее никто не проживал. Условия: 30000 р/мес. Коммунальные услуги оплачиваются отдельно.Депозит в размере арендной платы за 1 мес.Комиссия агента 50% от арендной платы при заключении договора аренды.Можно с животными (КОШКИ)! ID объекта в нашей базе: 829
    размещено: 21.01.2026 , обновлено: 28.01.2026
  • 1-к квартира, Краснолесья, 108/3, — 2025 г.

    • 25.1 м2
    • 17/25 этаж
    • Состояние:
    23 000 ₽ / месяц
    БЕЗ КОМИССИИ! Сдается квартира-студия 25,4 кв.м. по адресу: ул. Краснолесья, д. 108/3 (ЖК "Добрый") на длительный срок.Квартиру по запросу оборудуем необходимой мебелью и техникой. (В квартире ранее никто не проживал)Идеально для самозанятых на маркетплейсах.Условия: 23000 р/мес. Коммунальные услуги оплачиваются отдельно.Депозит в размере арендной платы за 1 мес.Рассмотрим арендаторов с животными на дополнительных условиях! ID объекта в нашей базе: 825
    размещено: 17.12.2025 , обновлено: 1.02.2026

История предложений в этом доме

объявление снято с публикации в продаже комнат площадь этаж цена,
Екатеринбург, ул. Краснолесья, 108/3 - фото квартиры 13 января 2026 60 дн. 1 25.4 8/25 24 000

Похожие предложения об аренде квартир в Екатеринбурге (Академический)

  • 1-к квартира, Рябинина, 49а,

    • 27 м2
    • 3/20 этаж
    • Состояние: хорошее
    27 000 ₽ / месяц
    Предлагаем в аренду на длительный срок (от 6 месяцев) уютную и современную квартиру. Свежий ремонт, новая мебель и необходимая техника (телевизор, холодильник, стиральная машина, микроволновая печь, чайник). Диван раскладывается. Коммунальные услуги очень низкие и оплачиваются дополнительно. Предпочтение молодой девушке или парню. Животные не приветствуются. Без комиссии с Арендатора! Залог можно разделить на 2 месяца. ID объекта в нашей базе: 3214
    размещено: 28.01.2026 , обновлено: 1.02.2026
  • 1-к квартира, Краснолесья, 108/3, — 2025 г.

    • 25.1 м2
    • 17/25 этаж
    • Состояние: хорошее
    23 000 ₽ / месяц
    БЕЗ КОМИССИИ! Сдается квартира-студия 25,4 кв.м. по адресу: ул. Краснолесья, д. 108/3 (ЖК "Добрый") на длительный срок.Квартиру по запросу оборудуем необходимой мебелью и техникой. (В квартире ранее никто не проживал)Идеально для самозанятых на маркетплейсах.Условия: 23000 р/мес. Коммунальные услуги оплачиваются отдельно.Депозит в размере арендной платы за 1 мес.Рассмотрим арендаторов с животными на дополнительных условиях! ID объекта в нашей базе: 825
    размещено: 17.12.2025 , обновлено: 1.02.2026

Приоритет

Увеличивает просмотры в 3 раза

Ваше объявление показывается в списке выше обычных объявлений. подключить