На Метре реклама - только нормальная. Никакого шок-контента.
Помогайте независимому ресурсу, как он помогает вам. Удачи!
Новостройки Котт. посёлки Объявления Динамика цен и сделок

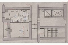
Продажа квартиры: Екатеринбург, ул. Индустрии, 22 (Уралмаш)

  • опубликовано 23.12.2019 , обновлено 23.09.2025
  • 65
Рынок:вторичный
Срок сдачи:1 квартал 1980 года
Количество комнат:2
Общая площадь:49 м2
Площадь кухни:0.00 м2
Этаж/Этажность дома:8 / 14
Санузел:раздельный
Отделка:с отделкой
Год постройки:1980
Мебель:есть мебель
Цена:
3 290 000
Объявление снято с публикации
Ипотека:возможна

Продается прекрасная двухкомнатную квартиру в блочном доме с толстыми стенами и хорошей звукоизоляцией. В пешей доступности есть всё, что требуется для комфортной жизни: супермаркеты, кинотеатр, почта, общественный транспорт. Недалеко от дома школа и детский сад. Квартира угловая с отличным естественным освещением. Удобная планировка с балконом, лоджией и просторной кухней. В доме 2 лифта - грузовой и пассажирский. Во дворе большой сквер и детская площадка. Жильцами дома организовано ТСЖ. Номер в базе: 3716606. Район: Уралмаш

Объявление снято с публикации

Ипотечный калькулятор

лет
%
Сумма кредита
3290000 ₽
Платеж
22 540 ₽

История предложений в этом доме

объявление снято с публикации в продаже комнат площадь этаж цена,
Екатеринбург, ул. Индустрии, 22 (Уралмаш) - фото квартиры 23 октября 2025 90 дн. 1 33 9/14 3 800 000
Екатеринбург, ул. Индустрии, 22 (Уралмаш) - фото квартиры 16 декабря 2023 90 дн. 2 48 5/14 4 550 000
Екатеринбург, ул. Индустрии, 22 (Уралмаш) - фото квартиры 14 марта 2023 90 дн. 2 45.5 4/14 4 490 000
Екатеринбург, ул. Индустрии, 22 (Уралмаш) - фото квартиры 11 декабря 2021 90 дн. 2 46.2 8/14 4 200 000
Екатеринбург, ул. Индустрии, 22 (Уралмаш) - фото квартиры 2 июля 2021 90 дн. 1 33 14/14 3 350 000
Екатеринбург, ул. Индустрии, 22 (Уралмаш) - фото квартиры 25 марта 2021 90 дн. 3 64 5/14 3 000 000
Екатеринбург, ул. Индустрии, 22 (Уралмаш) - фото квартиры 1 июля 2020 90 дн. 2 48.1 6/14 3 500 000
Екатеринбург, ул. Индустрии, 22 (Уралмаш) - фото квартиры 20 декабря 2019 90 дн. 2 63.4 2/14 3 900 000
7 февраля 2019 90 дн. 2 45.3 10/14 3 300 000

Похожие предложения о продаже квартир в Екатеринбурге (Уралмаш)

  • 2-к квартира, Донбасская, 29

    • 44 м2
    • 2/3 этаж
    • Состояние: плохое
    3 250 000 ₽ (73900 ₽/м2)
    Объект № 195800. Продается уютная светлая 2-комнатная квартира площадью 44,1 кв.м, с балконом. Отличное расположение - через дорогу торговый центр, вся инфраструктура в шаговой доступности: магазины, банки, детские сады, школы, поликлиника, фитнес -центр, рестораны и кафе. Удобная транспортная развязка, остановки рядом с домом, 10 минут пешком до станции метро Уралмаш. Очень теплый дом 1961 года постройки, тихий зеленый двор с детской площадкой. В подъездах поддерживается чистота и порядок. Всегда есть возможность припарковать автомобиль возле дома Квартира светлая, комнаты смежные. ЮРИДИЧЕСКАЯ ЧИСТОТА: Собственники совершеннолетние, не имеющий исполнительных листов, банкротами не являются, Никаких долгов и обременений. Все проверено! Мы готовы к любым формам расчетов, полное сопровождение сделки и застрахованная профессиональная ответственность. Понравился наш вариант, а на покупку не хватает средств? Мы согласуем ипотеку дешевле, чем в банке. За счет партнерской программы, более 10 банков снижают ставку по кредиту для наших клиентов. ***Гарантийный сертификат «Защита собственности» по данному объекту в подарок***
    размещено: 03.12.2025 , обновлено: 11.12.2025
  • 2-к квартира, Космонавтов, 61А

    • 42 м2
    • 4/5 этаж
    • Состояние: удовлетворительное
    3 900 000 ₽ (92900 ₽/м2)
    Обрати внимание-эта квартира ждет именно тебя!!!С января повышение цены!!!Продается уникальная возможность создать свой идеальный уголок в сердце города! Предлагаем Вам полностью освобожденную квартиру, которая ждет Вашего вдохновения и креативности. Эта квартира — blank canvas, готовая к преобразованию в уютное и стильное жилье по Вашему вкусу.Площадь: просторная, позволяющая реализовать любые дизайнерские идеи.Этаж: удобный, обеспечивающий доступность и комфорт.Собственность: один собственник, что гарантирует быстрый выход на сделку.Преимущества квартиры:Теплая и светлая: благодаря большим окнам и удачной ориентации, в квартире всегда царит солнечное тепло и свет.Отличная локация: всего 7 минут пешком до станции метро пр. Космонавтов — идеальный вариант для тех, кто ценит время и удобство передвижения по городу. Также в 10 минутах находится ТЦ «ВеерМолл», где Вы найдете все необходимое для комфортной жизни.Инфраструктура: рядом расположены магазины, кафе, школы и детские сады, что делает этот район особенно привлекательным для семей.Не упустите шанс создать пространство, которое будет отражать Вашу индивидуальность и стиль. Звоните прямо сейчас, чтобы узнать больше и организовать просмотр! Ваш новый дом ждет вас! ID объекта в нашей базе: 12010
    размещено: 28.11.2025 , обновлено: 12.12.2025
  • 2-к квартира, Машиностроителей, 14

    • 41.5 м2
    • 5/5 этаж
    • Состояние: плохое
    4 200 000 ₽ (101200 ₽/м2)
    Предлагаем к продаже полнометражную квартиру в самом центе района Уралмаш- Орджоникидзевский район. На перекрестке ул.Машиностроителей - ул.40 -Лет Октября.Закрытый двор.Дружные соседи. В шаговой доступности поликлиника и больница. № 14 роддом .новая детская поликлиника.диагностический центр.все садики.школы.во дворе школа № 117.транспорт. в квартире требуется ремонт.рассмотрим ваше предложение. готовы показать в удобное для вас время. Документы в порядке, к сделке готовы. Один взрослый собственник, никто не прописан, обременений, долгов исполнительных листов не имеется. Рассмотрим любую форму расчёта Показываем удобное для вас времяБыстрый выход на сделку.Мы работаем для вас:пн-пт - с 10 до 20,сб - с 10 до 17,вс - нерабочий день ID объекта в нашей базе: 713
    размещено: 25.11.2025 , обновлено: 12.12.2025
  • 2-к квартира, Машиностроителей, 73

    • 42 м2
    • 4/5 этаж
    • Состояние: хорошее
    3 990 000 ₽ (95000 ₽/м2)
    Объект № 195755. Продается евродвушка! Сделана перепланировка - узаконена. Большая кухня - гостиная и спальня. В шаговой доступности - остановки транспорта, магазины, детский сад, школы, аптеки и т.д. Торг обсуждается. ***Гарантийный сертификат «Защита собственности» по данному объекту в подарок***
    размещено: 21.11.2025 , обновлено: 11.12.2025
  • 2-к квартира, Культуры, 5

    • 55 м2
    • 1/5 этаж
    • Состояние: удовлетворительное
    3 750 000 ₽ (68200 ₽/м2)
    Объект № 195558. В продаже просторная двухкомнатная квартира в районе Уралмаш (Дворянское гнездо). Квартира не испорчена ремонтом, высокие потолки, комнаты на разные стороны. Высокий первый этаж. Один собственник, нет арестов и обременений. Квартира требует ремонта, все недостатки включены в стоимость. ***Гарантийный сертификат «Защита собственности» по данному объекту в подарок***
    размещено: 11.11.2025 , обновлено: 11.12.2025

    2-к квартира, Космонавтов, 83

    • 43.2 м2
    • 4/5 этаж
    • Состояние: хорошее
    4 100 000 ₽ (94900 ₽/м2)
    За объект принят авансПродаётся уютная 2-комнатная квартира на 4 этаже 5-этажного домаСветлая, тёплая квартира с отличной планировкой:две изолированные комнаты,просторная кухня,коридор,совмещённый санузел,балкон.Установлены пластиковые окна, квартира находится на солнечной стороне, окна выходят на две стороны — всегда много естественного света и свежего воздуха.???? Инфраструктура:Всё необходимое рядом —школы (№ 95),детские сады (№ 339, 387, 317, 529),аптеки,Городская больница № 14.???? Напротив расположен ТЦ “Веер Молл”, где есть магазины, кафе и всё для комфортной жизни.???? До метро “Проспект Космонавтов” — всего 20 минут пешком.???? Рядом лесопарк Пышминские озёрки — отличное место для прогулок и отдыха на природе.Документы готовы, собственник.???? Цена: 4 100 000???? Звоните, чтобы договориться о просмотре! ID объекта в нашей базе: 3039
    размещено: 06.11.2025 , обновлено: 9.12.2025

    2-к квартира, Молодежи, 48

    • 40.2 м2
    • 1/3 этаж
    • Состояние: хорошее
    3 600 000 ₽ (89600 ₽/м2)
    Продаётся двухкомнатная квартира , в районе Уралмаша. Частично выполнен косметический ремонт. Комнаты на разные стороны дома. В квартире - установлены натяжные потолки. Низкие коммунальные платежи. ID объекта в нашей базе: 12290
    размещено: 05.11.2025 , обновлено: 12.12.2025

    2-к квартира, Машиностроителей, 59

    • 44 м2
    • 2/5 этаж
    • Состояние: удовлетворительное
    3 600 000 ₽ (81800 ₽/м2)
    Продаем Двухкомнатную квартиру в кирпичном доме второй этаж балкон. Квартира подготовлена под капитальный ремонт. Везде установлены пластиковые окна и качественная сейф дверь. Обои сняты. Отличный вариант кто планирует сделать ремонт по себя. ID объекта в нашей базе: 4806
    размещено: 27.10.2025 , обновлено: 9.12.2025

    2-к квартира, Коммунистическая, 14

    • 46.1 м2
    • 1/5 этаж
    • Состояние: хорошее
    4 200 000 ₽ (91100 ₽/м2)
    Продается двухкомнатная квартира, расположенная на 1 этаже. В квартире сделана перепланировка, объединена кухня с гостиной, узаконена. У дома отличная локация, рядом остановка троллейбуса, метро и трамвай в 10 мин пешком. В шаговой доступности расположены школы и детские сады, магазины, аптеки. ID объекта в нашей базе: 3484
    размещено: 17.10.2025 , обновлено: 11.12.2025

    2-к квартира, Республиканская, 3

    • 45.1 м2
    • 3/5 этаж
    • Состояние: удовлетворительное
    4 000 000 ₽ (88700 ₽/м2)
    Описание: В продаже двухкомнатная квартира микрорайон Уралмаш, общей площадью 45 кв метров на 3 этаже пятиэтажного дома. Комнаты изолированы, объединен санузел, имеется застекленный балкон. Окна выходят во двор, где растут сосны, квартира теплая и светлая Натяжные потолки, на полу ламинат, окна и входная группа на балкон пластиковые, в кухне поклеены новые обои. Подарок: Новым собственника остаются: кухонный гарнитур с варочной поверхностью и вытяжкой, два шкафа-купе, стол, тумбочки. Дом с огороженной территорией, двор чистый и тихий. Подъезд чистый, жильцы за ним ухаживают, можно оставить коляски и самокаты. Проблем с парковкой нет! Расположение: в 5 минутах ходьбы Парк Победы, где можно гулять круглый год, имеется хорошая лыжная база. Остановка общественного транспорта в 5 минутах ходьбы. Важно: Два взрослых собственника, в собственности более 5 лет, долгов и обременений нет, средства МСК не использовались, чистая продажа, быстрый выход на сделку. Торг уместен. ID объекта в нашей базе: 11808
    размещено: 13.10.2025 , обновлено: 26.11.2025

    2-к квартира, Ломоносова, 28

    • 39.9 м2
    • 1/4 этаж
    • Состояние: хорошее
    3 850 000 ₽ (96500 ₽/м2)
    Продаётся тёплая двухкомнатная квартира в кирпичном доме. Состояние квартиры хорошее. В шаговой доступности от дома школы, детские сады, магазины, остановки транспорта и прочая, необходимая для комфортной жизни инфраструктура. Квартира без обременений, без перепланировок. Собственник один взрослый. ID объекта в нашей базе: 25941
    размещено: 04.10.2025 , обновлено: 26.11.2025

    2-к квартира, Машиностроителей, 73

    • 42 м2
    • 1/5 этаж
    • Состояние: удовлетворительное
    3 799 000 ₽ (90500 ₽/м2)
    Объект № 194706. Продается 2-комнатная квартира с изолированными комнатами. Теплая, с плиткой в с/у и ламинатом на полу, стеклопакеты. Развита инфраструктура: школы, садики, остановки транспорта в шаговой доступности. Звоните! ***Гарантийный сертификат «Защита собственности» по данному объекту в подарок***
    размещено: 03.10.2025 , обновлено: 7.12.2025

    2-к квартира, Победы, 28

    • 44.5 м2
    • 5/5 этаж
    • Состояние: удовлетворительное
    4 100 000 ₽ (92100 ₽/м2)
    Продам двух комнатную квартиру в центре Уралмаша. Теплая, светлая квартира с удобной планировкой, окна выходят на обе стороны. Комнаты смежные, но при желании легко переделать в раздельные. У нас прекрасные соседи, чистый подъезд, зеленый двор. Хорошая транспортная развязка, до метро пр. Космонавтов пешком 7 минут. Множество точек быта: от аптек, супермаркетов до зоомагазинов. По прописке лицей №100, школа «Арт-Этюд», хорошие детские сады с ясельными группами. Один совершеннолетний собственник, в квартире никто не прописан. Чистая продажа, быстрый выход на сделку. ID объекта в нашей базе: 17907
    размещено: 12.09.2025 , обновлено: 9.12.2025

    2-к квартира, Коммунистическая, 6

    • 46 м2
    • 1/5 этаж
    • Состояние: плохое
    3 700 000 ₽ (80400 ₽/м2)
    Объект № 193659. Продается 2-комнатная квартира с окнами во двор, комнаты смежные (есть возможность их изолировать). Квартира требует ремонта. Дом расположен на тихой улице. Напротив дома школа №178, детский сад № 319. До станции метро Проспект Космонавтов 15 минут. Квартира в чистой продаже, один взрослый собственник, никто не прописан в квартире, быстрый выход на сделку. ***Гарантийный сертификат «Защита собственности» по данному объекту в подарок***
    размещено: 12.08.2025 , обновлено: 2.12.2025

    2-к квартира, 40-летия Октября, 13

    • 42.4 м2
    • 5/5 этаж
    • Состояние: хорошее
    4 150 000 ₽ (97900 ₽/м2)
    Предлагается к продаже двухкомнатная квартира, где вас ждет атмосфера уюта и комфорта. Просторные, наполненные светом комнаты правильной формы позволяют легко и функционально расставить мебель. Санузел порадует вас свежим, стильным ремонтом, выполненным в приятной цветовой гамме. На светлой и чистой кухне установлены современные пластиковые окна. В гостиной предусмотрена ниша, идеально подходящая для размещения дивана. В квартире остается диван, кресла, кровать и кухонный гарнитур, но по вашему желанию мы готовы освободить пространство. Квартира юридически чиста, без каких-либо обременений, и находится в собственности одного человека. Мы готовы рассмотреть покупателей с ипотекой и различными формами сертификатов. Расположение дома – это еще одно преимущество! Все необходимое для комфортной жизни находится в шаговой доступности: магазины, школы, детские сады, а также удобная транспортная развязка. Не упустите свой шанс! Позвоните нам сегодня, чтобы договориться о просмотре и оценить все достоинства этой замечательной квартиры.Помогу с одобрением ипотеки по ставке 12,99% ID объекта в нашей базе: 10406
    размещено: 24.07.2025 , обновлено: 5.12.2025

    2-к квартира, Победы, 11

    • 42.5 м2
    • 5/5 этаж
    • Состояние: плохое
    4 200 000 ₽ (98800 ₽/м2)
    В продаже двухкомнатная квартира площадью 42,5 м.кв. Окна выходят на север во двор с детской площадкой.ДОМ: 1967 года постройки, материал стен: блоки. В любое время года в квартире очень тепло.КВАРТИРА: Требуется капитальный ремонт. В квартире заменены стеклопакеты, установлена сейф-дверь. Установлены счетчики холодного, горячего водоснабжения, двухтарифный счетчик электрической энергии. ИНФРАСТРУКТУРА: У дома выгодное географическое положение. Рядом остановка троллейбусов, автобусов, трамваев, а так же в шаговой доступности станция метро Уралмаш. Рядом несколько детских садов частных и муниципальных, школы ,торгово-развлекательных центров.ЮРИДИЧЕСКАЯ ЧИСТОТА: Квартира без обременений, залогов, арестов. Один взрослый собственник. Полная стоимость в договоре. Квартира освобождена. Просмотры по договоренности. ID объекта в нашей базе: 8407
    размещено: 02.07.2025 , обновлено: 5.12.2025

    2-к квартира, Кировградская, 51/а

    • 46 м2
    • 3/5 этаж
    • Состояние: удовлетворительное
    3 300 000 ₽ (71700 ₽/м2)
    Объект № 192451. Срочно продам двухкомнатную квартиру на Уралмаше. Квартира теплая, светлая, с изолированными комнатами на разные стороны. Комфортный 3 этаж. Рядом с домом расположены магазины, детский сад во дворе, в шаговой доступности школа, остановки общественного транспорта, парк Победы, лыжная база. ***Гарантийный сертификат «Защита собственности» по данному объекту в подарок***
    размещено: 16.06.2025 , обновлено: 27.11.2025

    2-к квартира, Донбасская, 16

    • 44 м2
    • 5/5 этаж
    • Состояние: удовлетворительное
    3 999 000 ₽ (90900 ₽/м2)
    Объект № 192391. Отличное расположение дома - рядом ТЦ, магазины, школа, д/сад, до остановок 3 минуты. Удобные транспортные развязки автобусы, троллейбусы, трамваи, маршрутки - все рядом. С парковкой у дома проблем нет. Подъезд чистый. Чистая продажа. Документы в порядке. Отличный вариант, друзья! ***Гарантийный сертификат «Защита собственности» по данному объекту в подарок***
    размещено: 09.06.2025 , обновлено: 9.12.2025

    2-к квартира, Лукиных, 4

    • 43 м2
    • 5/5 этаж
    • Состояние: хорошее
    3 750 000 ₽ (87200 ₽/м2)
    Квартира находится в тихом от шума автомобилей районе Уралмаша, всегда есть парковочные места. Во дворе лиственные деревья. Быстрый выезд на ул. Донбасская и Машиностроителей.Просторная кухня-гостинная и две спальни. В одной спальне выход на балкон. Мебель можно оставить Покупателю. В прихожей встроенные шкафы для одежды.Вся необходимая инфраструктура в шаговой доступности.Документы готовы: быстрый выход на сделку. ID объекта в нашей базе: 17218
    размещено: 28.05.2025 , обновлено: 10.11.2025

    2-к квартира, Ломоносова, 157

    • 40.6 м2
    • 1/4 этаж
    • Состояние: удовлетворительное
    3 480 000 ₽ (85700 ₽/м2)
    Теплая, светлая квартира, высокий этаж, чистый подъезд, после кап ремонта, хорошие соседи. Удачное расположение дома, до метро 10 мин, ост транспорта рядом, школа, детский сад, торговые центры МЕТРО, ВЕЕРМОЛ, фитнес, спортивные комплексы. ID объекта в нашей базе: 959
    размещено: 13.03.2025 , обновлено: 10.12.2025

Новостройки Екатеринбург, мкр-н. Уралмаш

Приоритет

Увеличивает просмотры в 3 раза

Ваше объявление показывается в списке выше обычных объявлений. подключить