На Метре реклама - только нормальная. Никакого шок-контента.
Помогайте независимому ресурсу, как он помогает вам. Удачи!
Новостройки Котт. посёлки Объявления Динамика цен и сделок

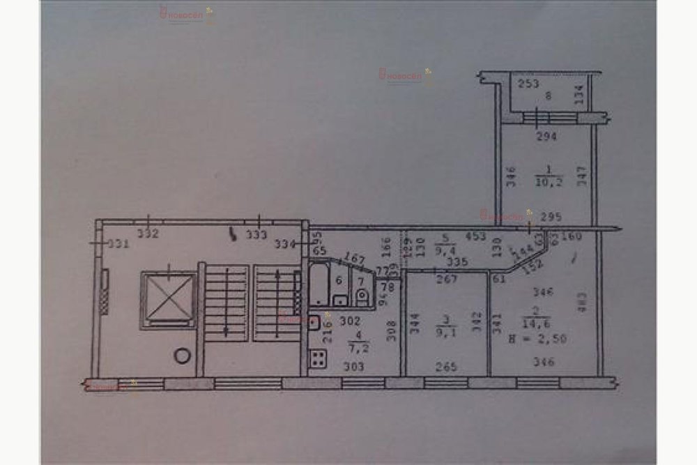
Продажа квартиры: Екатеринбург, ул. Ангарская, 52/1 (Старая Сортировка)

  • опубликовано 27.07.2020 , обновлено 12.09.2025
  • 99
Кадастровый номер:66:66:41/2003-468
Рынок:вторичный
Срок сдачи: 1977 года
Количество комнат:3
Общая площадь:54 м2
Жилая площадь:40 м2
Площадь кухни:7 м2
Этаж/Этажность дома:3 / 9
Санузел:раздельный
Отделка:косметический
Год постройки:1977
Состояние:удовлетворительное
Цена:
2 800 000
Объявление снято с публикации
Коммунальные платежи:оплачиваются отдельно
Ипотека:возможна

Объект № 127739. В продаже трёхкомнатная квартира улучшенной планировки на комфортном четвертом этаже. Установлены приборы учёта, стояки заменены во всём доме. Балкон застеклён.
Во дворе много зелени; детская площадка. В шаговой доступности школа, детский сад, продуктовые магазины, остановки общественного транспорта. ***Гарантийный сертификат «Защита собственности» по данному объекту в подарок***

Объявление снято с публикации

Ипотечный калькулятор

лет
%
Сумма кредита
2800000 ₽
Платеж
22 540 ₽

История предложений в этом доме

объявление снято с публикации в продаже комнат площадь этаж цена,
Екатеринбург, ул. Ангарская, 52/1 (Старая Сортировка) - фото квартиры 18 мая 2024 90 дн. 3 54.4 4/9 4 900 000
Екатеринбург, ул. Ангарская, 52/1 (Старая Сортировка) - фото квартиры 14 мая 2024 90 дн. 3 54.4 4/9 5 000 000
Екатеринбург, ул. Ангарская, 52/1 (Старая Сортировка) - фото квартиры 16 апреля 2024 90 дн. 3 54.4 4/9 5 200 000
6 сентября 2023 90 дн. 4 69 5/9 5 990 000
Екатеринбург, ул. Ангарская, 52/1 (Старая Сортировка) - фото квартиры 29 апреля 2023 90 дн. 4 83.9 1/9 5 200 000
Екатеринбург, ул. Ангарская, 52/1 (Старая Сортировка) - фото квартиры 28 марта 2023 90 дн. 3 83.9 1/9 5 200 000
Екатеринбург, ул. Ангарская, 52/1 (Старая Сортировка) - фото квартиры 25 января 2023 90 дн. 4 84 1/9 5 200 000
Екатеринбург, ул. Ангарская, 52/1 (Старая Сортировка) - фото квартиры 9 января 2023 90 дн. 5 84 1/9 5 200 000
Екатеринбург, ул. Ангарская, 52/1 (Старая Сортировка) - фото квартиры 14 декабря 2022 90 дн. 5 84 1/9 5 200 000
Екатеринбург, ул. Ангарская, 52/1 (Старая Сортировка) - фото квартиры 5 декабря 2022 90 дн. 5 84 1/9 5 200 000
Екатеринбург, ул. Ангарская, 52/1 (Старая Сортировка) - фото квартиры 21 ноября 2022 90 дн. 5 84 1/9 5 200 000
Екатеринбург, ул. Ангарская, 52/1 (Старая Сортировка) - фото квартиры 8 ноября 2022 90 дн. 5 84 1/9 5 200 000
Екатеринбург, ул. Ангарская, 52/1 (Старая Сортировка) - фото квартиры 20 октября 2022 90 дн. 2 43.2 3/9 3 700 000
Екатеринбург, ул. Ангарская, 52/1 (Старая Сортировка) - фото квартиры 25 октября 2022 90 дн. 5 84 1/9 5 200 000
Екатеринбург, ул. Ангарская, 52/1 (Старая Сортировка) - фото квартиры 28 сентября 2022 90 дн. 2 43.2 3/9 3 800 000
Екатеринбург, ул. Ангарская, 52/1 (Старая Сортировка) - фото квартиры 26 октября 2022 90 дн. 4 68 1/9 4 700 000
Екатеринбург, ул. Ангарская, 52/1 (Старая Сортировка) - фото квартиры 22 января 2022 90 дн. 2 48 3/9 3 350 000
Екатеринбург, ул. Ангарская, 52/1 (Старая Сортировка) - фото квартиры 8 декабря 2021 90 дн. 2 43 5/9 3 850 000
Екатеринбург, ул. Ангарская, 52/1 (Старая Сортировка) - фото квартиры 24 сентября 2021 90 дн. 2 46 9/9 3 300 000
Екатеринбург, ул. Ангарская, 52/1 (Старая Сортировка) - фото квартиры 30 июля 2021 90 дн. 2 43 8/9 2 990 000
Екатеринбург, ул. Ангарская, 52/1 (Старая Сортировка) - фото квартиры 27 июля 2021 90 дн. 3 54.7 6/9 3 200 000
Екатеринбург, ул. Ангарская, 52/1 (Старая Сортировка) - фото квартиры 5 марта 2021 90 дн. 2 43.8 7/9 2 650 000
Екатеринбург, ул. Ангарская, 52/1 (Старая Сортировка) - фото квартиры 12 февраля 2021 90 дн. 2 43 7/9 2 650 000
Екатеринбург, ул. Ангарская, 52/1 (Старая Сортировка) - фото квартиры 2 октября 2020 90 дн. 4 69 4/9 3 320 000
Екатеринбург, ул. Ангарская, 52/1 (Старая Сортировка) - фото квартиры 16 июля 2020 90 дн. 4 69 4/9 3 320 000
Екатеринбург, ул. Ангарская, 52/1 (Старая Сортировка) - фото квартиры 22 мая 2020 90 дн. 3 53.7 2/9 2 700 000
Екатеринбург, ул. Ангарская, 52/1 - фото квартиры 28 марта 2020 90 дн. 1 28 9/9 2 190 000
Екатеринбург, ул. Ангарская, 52/1 (Старая Сортировка) - фото квартиры 19 марта 2020 90 дн. 1 28.6 2/9 1 949 000
2 ноября 2018 92 дн. 3 54 5/9 3 500 000
15 января 2016 92 дн. 4 68 3/9 3 490 000

Новостройки Екатеринбург, мкр-н. Старая Сортировка

Приоритет

Увеличивает просмотры в 3 раза

Ваше объявление показывается в списке выше обычных объявлений. подключить