На Метре реклама - только нормальная. Никакого шок-контента.
Помогайте независимому ресурсу, как он помогает вам. Удачи!
Новостройки Котт. посёлки Объявления Динамика цен и сделок

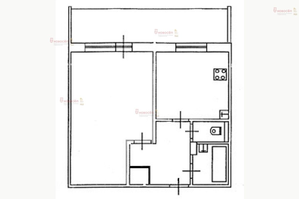
Продажа квартиры: Екатеринбург, ул. Белоярская, 17 (Компрессорный)

  • опубликовано 16.06.2021 , обновлено 25.10.2025
  • 55
Кадастровый номер:66:41:0609033:127
Рынок:вторичный
Срок сдачи: 1993 года
Количество комнат:1
Общая площадь:33 м2
Жилая площадь:17 м2
Площадь кухни:8 м2
Этаж/Этажность дома:5 / 10
Санузел:совмещенный
Отделка:евроремонт
Год постройки:1993
Состояние:хорошее
Цена:
2 300 000
Объявление снято с публикации
Коммунальные платежи:оплачиваются отдельно
Ипотека:возможна

Объект № 143726. Квартира в чистой продаже.
Рядом с домом остановка транспорта, почта, детская, взрослая поликлиника, школы, садики, физкультурно-оздоровительный комплекс, множество различных магазинов. Рядом лесопарковая зона, чистый воздух.
Совершеннолетние собственники, без обременений. ***Гарантийный сертификат «Защита собственности» по данному объекту в подарок***

Объявление снято с публикации

Ипотечный калькулятор

лет
%
Сумма кредита
2300000 ₽
Платеж
22 540 ₽

Актуальные предложения в этом доме

  • 1-к квартира, Белоярская, 17

    3 650 000 ₽ (109000 ₽/м2)
    Арт. 127760022 В продаже прекрасная видовая 1ком.квартира с шикарным видом на город!!! Квартира светлая и уютная и очень теплая. В квартире сделан качественный и современный ремонт, поменяна вся электрика, натяжные потолки, утепленный балкон, что позволяет комфортно любоваться на красивый вид города. 10 этаж из 10 этажей, имеется технический этаж, ни кто не ходит и не шумит сверху. Дом улучшенной планировки, установлен новый лифт в доме. В квартире новому собственнику остается кухонный гарнитур и шкаф. Один взрослый собственник, без обременений. Безопасность сделки гарантирует Ориентир недвижимость. Остались вопросы?! Звоните, записывайтесь на просмотр.
    размещено: 13.12.2025 , обновлено: 14.12.2025

История предложений в этом доме

объявление снято с публикации в продаже комнат площадь этаж цена,
Екатеринбург, ул. Белоярская, 17 (Компрессорный) - фото квартиры 7 декабря 2025 90 дн. 1 33.5 10/10 3 670 000
Екатеринбург, ул. Белоярская, 17 (Компрессорный) - фото квартиры 1 ноября 2025 90 дн. 1 33.5 10/10 3 630 000
Екатеринбург, ул. Белоярская, 17 (Компрессорный) - фото квартиры 3 апреля 2024 90 дн. 1 33.5 4/10 3 250 000
Екатеринбург, ул. Белоярская, 17 (Компрессорный) - фото квартиры 9 марта 2025 90 дн. 3 64.1 10/10 5 250 000
Екатеринбург, ул. Белоярская, 17 (Компрессорный) - фото квартиры 10 января 2022 90 дн. 2 47.8 3/10 3 390 000
Екатеринбург, ул. Белоярская, 17 (Компрессорный) - фото квартиры 22 июля 2020 90 дн. 2 47 3/10 2 790 000
Екатеринбург, ул. Белоярская, 17 (Компрессорный) - фото квартиры 2 февраля 2022 90 дн. 2 48 3/10 2 800 000
Екатеринбург, ул. Белоярская, 17 (Компрессорный) - фото квартиры 25 марта 2020 90 дн. 2 48 10/10 2 900 000
Екатеринбург, ул. Белоярская, 17 (Компрессорный) - фото квартиры 25 июля 2020 90 дн. 1 33.5 10/10 1 850 000
21 ноября 2018 90 дн. 2 48 6/9 3 100 000

Похожие предложения о продаже квартир в Екатеринбурге (Компрессорный)

  • 1-к квартира, Хвойная, 76/2

    • 23.8 м2
    • 5/5 этаж
    • Состояние: хорошее
    2 440 000 ₽ (102500 ₽/м2)
    Продам уютную квартиру –студию С современным ремонтом на 5 этаже в кирпичном доме. Вариант-Заезжай и живи! Остается все что на фотографиях Квартира идеально подходит как для собственного проживания Так и для сдачи в аренду Пол –ламинат, дверь сейфовая, обои ,по всей квартире Проводка медная, трубы металлопластик, счетчики есть Потолок натяжной, стеклопакеты Ванная комната в кафеле, сантехника новая, Развитая инфраструктура: в шаговой доступности детский садик Остановки транспорта ,магазины, школа 53,детские садики, Оздоровительный комплекс, есть электричка Собственник один взрослый, МСК не использован, Приобретали с ипотекой Сбербанка, закрыли, обременение сняли .Квартира освобождена, зарегистрированных нет!В настоящее время в подьезде идет капитальный ремонт,замена стеклопакетов ,установка новой входной двери в подьезде. Приглашаем на просмотры и ждем Ваших предложений! ID объекта в нашей базе: 6569
    размещено: 17.11.2025 , обновлено: 9.12.2025
  • 1-к квартира, Латвийская, 58/3

    • 22.4 м2
    • 18/25 этаж
    • Состояние: идеальное
    2 660 000 ₽ (118800 ₽/м2)
    СРОЧНАЯ ПРОДАЖА! Продам уютную студию 22,4 кв.м. в доме 2023 года постройки. Квартира очень тёплая, уютная, чистая, с ремонтом в светлых тонах, поставлена новая акриловая ванна. В подарок остаётся диван и кухонный гарнитур, а также вешалка для одежды. Из окон открывается живописный вид на лес. ЖК "Хрустальные ключи"Район тихий и активно развивается, здесь есть всё для комфортной жизни и отдыха. Этаж спокойный, соседи — собственники, которые соблюдают порядок. В доме два пассажирских лифта и один грузовой.Рядом находятся хозяйственный магазин, супермаркеты «Кировский», «Магнит», аптеки, кофейни, магазины сантехники и «Фикс-Прайс». Для любителей спорта неподалёку спортивные комплексы «Факел» и «Олимп».Транспортная доступность отличная: рядом жд станция, «Компрессорный завод», остановки с маршрутами 044 (до ст. Ботаническая), 064 (до площади 5 года), 074 (до Медгородка).Коммунальные платежи невысокие — около 2000 рублей летом и 2800 зимой. Отличное предложение для комфортного проживания!Не задано ID объекта в нашей базе: 4876
    размещено: 05.11.2025 , обновлено: 14.12.2025
  • 1-к квартира, Белоярская, 27

    • 30 м2
    • 3/5 этаж
    • Состояние: хорошее
    2 870 000 ₽ (95700 ₽/м2)
    Объект № 195353. Продается квартира в хорошем состоянии, теплая. Окна квартиры выходят во двор. Дом кирпичный. Оставляем покупателю шкаф (стенку) в гостиной, кухонную мебель, водонагреватель. В доме ТСЖ, в мкр. Компрессорный своя котельная. Рядом с домом детский сад, школа, пекарня в соседнем доме, кафе. В районе есть все для детей и семей, ДК с кинотеатром, ФОК много секций, хоккей, футбол, танцы и т.д, Музыкальная школа №9. Транспортная инфраструктура, удачная развязка для выезда в разные районы города. Документы на квартиру проверены. Ипотека возможна. Чистая продажа, ключи сразу после расчетов. Один взрослый собственник. ***Гарантийный сертификат «Защита собственности» по данному объекту в подарок***
    размещено: 01.11.2025 , обновлено: 14.12.2025
  • 1-к квартира, Латвийская, 18

    • 33.7 м2
    • 4/4 этаж
    • Состояние: удовлетворительное
    2 700 000 ₽ (80100 ₽/м2)
    СРОЧНО!Цена снижена!Продается однокомнатная квартира в кирпичном доме в развитом микрорайоне Компрессорный, вся необходимая для жизни инфраструктура рядом. Квартира просторная и теплая, но требующая хозяйской руки (нужен ремонт). Один совершеннолетний собственник, быстрый выход на сделку.Звоните! Пишите! Согласуем удобное время просмотра. ID объекта в нашей базе: 18061
    размещено: 27.10.2025 , обновлено: 13.12.2025
  • 1-к квартира, Латвийская, 58

    • 22.5 м2
    • 1/25 этаж
    • Состояние: хорошее
    2 800 000 ₽ (124400 ₽/м2)
    Небольшая квартира-студия с качественным ремонтом от застройщика и с приятной ценой расположена в одном из домов жилого комплекса "Хрустальные ключи". Отличный вариант в качестве первого жилья. Одним из плюсов данного комплекса является наличие собственной газовой котельной, а это - сниженные коммунальные платежи, отсутствие отключения горячего водоснабжения. Социальная инфраструктура района хорошо развита, достаточное количество предприятий торговли, медицинские, спортивные, культурно-развлекательные объекты, детские сады и школы. Удаленность от центра города около 13 км, с транспортной доступностью все нормально, конечная остановка автобусов в шаговой доступности, при наличии личного транспорта - быстрый выезд на Кольцовский тракт и ЕКАД. Документы для продажи готовы. Возможна покупка объекта с привлечением ипотечных средств. Обсудим ваши предложения о цене. ID объекта в нашей базе: 3853
    размещено: 21.10.2025 , обновлено: 10.12.2025

    1-к квартира, Хвойная, 76

    • 18.2 м2
    • 3/5 этаж
    • Состояние: идеальное
    2 250 000 ₽ (123600 ₽/м2)
    Продается квартира, полностью с ремонтом!Расположение:Компрессорный м-н, Октябрьский районКвартира:- квартира с ремонтом,- окна заменили- готовы оставить частично мебель и технику .Дом:- придомовая парковкаВ подъезде:- доступ только через дверь с домофоном,Во дворе:- двор с детскими площадками,Инфраструктура:-рядом школы, детский сады,-множество магазинов,-центр 30мин,-рядом парк,Прочее:-Один собственник,-Без обременений,-Готовы к диалогу. ID объекта в нашей базе: 4714
    размещено: 07.10.2025 , обновлено: 2.12.2025

    1-к квартира, Латвийская, 58

    • 25.3 м2
    • 15/25 этаж
    • Состояние: хорошее
    2 935 000 ₽ (116000 ₽/м2)
    Продаётся однокомнатная квартира-студия с просторной планировкой, и видовыми характеристиками из окон.О квартире:Просторная комната с кухонной зоной, зонирование можно предусмотреть по своему вкусу.Прихожая, позволяющая удобно хранить мебель и вещи, в которую можно вместить большой шкаф без ущерба к проходному пространству.Санузел оснащен душевой кабиной и нишей для хранения различной утвари.Квартира полностью готова к проживанию и воплощению ваших дизайнерских идей, обои под покраску, ламинат и двери установлены в нейтральном гармонирующем оттенке. Всё находится в отличном состоянии, мебель для новых покупателей частично оставляем. О дворе и инфраструктуре:Во дворе оборудованы разнообразные игровые зоны для детей всех возрастов, которые ограничены доступом автомобилей - безопасность детей гарантирована, беговые и велодорожки, прогулочные тротуары и всё для отдыха предоставлено для жителей ЖК.Развитая инфраструктура: в шаговой доступности остановки общественного транспорта, сетевые магазины, аптеки, парикмахерская и множество других видов услуг.Идеальный вариант для тех, кто ищет своё уютное гнёздышко или первое собственное жильё! Инвестиционно локация тоже привлекательна, всегда есть желающие на аренду. Звоните, чтобы узнать подробности и договориться о просмотре! Ваша новая квартира ждет вас! ID объекта в нашей базе: 17795
    размещено: 14.08.2025 , обновлено: 5.12.2025

Новостройки Екатеринбург, мкр-н. Компрессорный

Приоритет

Увеличивает просмотры в 3 раза

Ваше объявление показывается в списке выше обычных объявлений. подключить