Top.Mail.Ru
На Метре реклама - только нормальная. Никакого шок-контента.
Помогайте независимому ресурсу, как он помогает вам. Удачи!
Средняя цена м² · Новостройки
178 767 ₽/м²
↑ 8,1% за 12 мес.
Средняя цена м² · Вторичка
141 146 ₽/м²
↑ 11,5% за 12 мес.
Продажи новостроек · Мар 2026
2 396 сделок
↓ 5,96% к февралю
Вторичка, сделки · Мар 2026
10 947 сделок
↑ 7,98% к февралю
Ключевая ставка ЦБ РФ
15 %
↓ снижение
Новостройки Котт. посёлки Объявления Динамика цен и сделок

Продажа квартиры: Екатеринбург, ул. Аптекарская, 37 (Вторчермет)

  • опубликовано 28.09.2021 , обновлено 11.04.2026
  • 34
Кадастровый номер:66:41:0504052:826
Рынок:вторичный
Количество комнат:2
Общая площадь:34.8 м2
Жилая площадь:22.7 м2
Площадь кухни:5 м2
Этаж/Этажность дома:4 / 9
Цена:
1 458 000
Объявление снято с публикации
Коммунальные платежи:оплачиваются отдельно
Условия продажи:«чистая» продажа

ПАО Сбербанк реализует имущество:
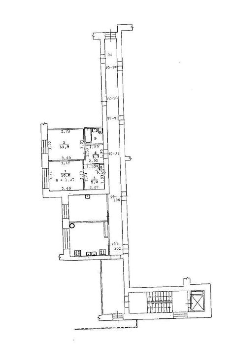
Объект (ID I3280410) : 2-комнатная квартира общей площадью 34.80 кв. м. Дом кирпичный.
Адрес: Россия, Свердловская область, г. Екатеринбург, Аптекарская ул, д. 37, кв. 90-91.
Текущая стоимость объекта: 1,458,000.00
Текущий статус продажи: получено несколько заявлений на покупку, ведется сделка с интересантом, предложившим максимальную стоимость. Если интересант откажется от заключения сделки, Банк определит нового покупателя, предложившего максимальную цену на дату отказа.

Максимальная предложенная цена за лот аукциона: 2,216,000.00 руб. (на 04.10.2021) .
Дополнительная информация по телефону, указанному в объявлении, ежедневно с 04-00 до 20-00 (по времени г. Мск, GMT+3) .
Объект расположен в районе с развитой инфраструктурой, что обеспечит жителям современный уровень комфорта. Внутренняя отделка: Требует косметического ремонта
ОКРУЖАЮЩАЯ ИНФРАСТРУКТУРА: Прод. магазин, Остановка общ. транспорта.
ДЕЙСТВУЮЩИЕ ОБРЕМЕНЕНИЯ ПО ОБЪЕКТУ: наличие проживающих граждан, наличие зарегистрированных граждан, наличие зарегистрированных несовершеннолетних граждан.
СПОСОБЫ ОФОРМЛЕНИЯ СДЕЛКИ: возможна ипотека (при стоимости имущества выше 300 000 руб. ) / возможно использование материнского капитала
ИНДИВИДУАЛЬНЫЕ И ТЕХНИЧЕСКИЕ ХАРАКТЕРИСТИКИ ОБЪЕКТА:
Кадастровый номер: 66: 41: 0504052: 826
Транспортная доступность: В черте города
Общая площадь (кв. м. ) : 34.80
Жилая площадь (кв. м. ) : 22.70
Площадь кухни (кв. м. ) : 5.00
Количество комнат: 2
Площадь комнат (кв. м. ) : 10.80; 11.90
Высота потолков (м. ) : 2.47
Этаж: 4
Этажность: 9
Количество санузлов: 1
Санузел: Раздельный
Принадлежность к рынку: Вторичка
Коммуникации:
Водоснабжение, Канализация, Энергоснабжение, Отопление

Характеристики здания, в котором располагается объект:
Год постройки: 1976
Парковка: Стихийная
Количество машиномест: 15

Настоящее объявление размещено в рамках реализации ПАО Сбербанк имущества, приобретенного в целях обеспечения деятельности ПАО Сбербанк, имущества, на которое обращено взыскание как на предмет залога, а также полученного по договору в качестве отступного.

ПАО Сбербанк. Генеральная лицензия Банка России на осуществление банковских операций № 1481 от 11.08.2015
##3468609##

Объявление снято с публикации

Ипотечный калькулятор

лет
%
Сумма кредита
1458000 ₽
Платеж
22 540 ₽

Актуальные предложения в этом доме

  • 1-к квартира, Аптекарская, 37

    • 34.4 м2
    • 6/9 этаж
    • Состояние:
    3 900 000 ₽ (113400 ₽/м2)
    К вашему вниманию полноценная евродвушка. Сделан косметический ремонт. Возможна покупка в ипотеку и с различными сертификатами. Вся подробная информация по телефону. ID объекта в нашей базе: 14777
    размещено: 30.03.2026 , обновлено: 10.04.2026
  • 1-к квартира, Аптекарская, 37

    • 16.1 м2
    • 1/9 этаж
    • Состояние:
    1 990 000 ₽ (123600 ₽/м2)
    Продам комнату в двухкомнатной квартире, в доме секционного типа. Комната в идеальном состоянии, оборудованная всей необходимой техникой и мебелью. Заведена вода. Оборудован санузел. Отличный вариант сдачи в аренду и проживания. Мебель и техника входят в стоимость. Фотографии соответствуют. Чистая продажа. Документы в порядке. Без обременений и ограничений. ID объекта в нашей базе: 5361
    размещено: 24.02.2026 , обновлено: 30.03.2026

История предложений в этом доме

объявление снято с публикации в продаже комнат площадь этаж цена,
Екатеринбург, ул. Аптекарская, 37 (Вторчермет) - фото квартиры 16 ноября 2025 90 дн. 1 34 5/9 3 650 000
Екатеринбург, ул. Аптекарская, 37 (Вторчермет) - фото квартиры 30 октября 2024 90 дн. 1 29 2/9 2 699 000
Екатеринбург, ул. Аптекарская, 37 (Вторчермет) - фото квартиры 21 августа 2024 90 дн. 1 29 2/9 2 649 000
Екатеринбург, ул. Аптекарская, 37 (Вторчермет) - фото квартиры 20 марта 2024 90 дн. 1 29 2/9 2 699 999
Екатеринбург, ул. Аптекарская, 37 (Вторчермет) - фото квартиры 14 сентября 2023 90 дн. 1 80 4/9 1 300 000
Екатеринбург, ул. Аптекарская, 37 (Вторчермет) - фото квартиры 22 февраля 2023 90 дн. 2 35 4/9 2 500 000
Екатеринбург, ул. Аптекарская, 37 (Вторчермет) - фото квартиры 18 января 2023 90 дн. 0 17 9/9 1 370 000
Екатеринбург, ул. Аптекарская, 37 (Вторчермет) - фото квартиры 15 марта 2023 90 дн. 2 37 7/9 2 950 000
Екатеринбург, ул. Аптекарская, 37 (Вторчермет) - фото квартиры 14 декабря 2022 90 дн. 2 35 7/10 2 950 000
Екатеринбург, ул. Аптекарская, 37 (Вторчермет) - фото квартиры 25 июня 2022 90 дн. 1 17.5 9/9 1 250 000
Екатеринбург, ул. Аптекарская, 37 (Вторчермет) - фото квартиры 7 июля 2022 90 дн. 2 35 7/9 3 000 000
Екатеринбург, ул. Аптекарская, 37 (Вторчермет) - фото квартиры 7 марта 2023 90 дн. 2 34 5/9 3 000 000
Екатеринбург, ул. Аптекарская, 37 (Вторчермет) - фото квартиры 10 декабря 2021 90 дн. 1 34.9 9/9 2 350 000
Екатеринбург, ул. Аптекарская, 37 (Вторчермет) - фото квартиры 28 ноября 2021 90 дн. 1 34.9 9/9 2 380 000
Екатеринбург, ул. Аптекарская, 37 (Вторчермет) - фото квартиры 29 октября 2021 90 дн. 1 34.9 9/9 2 480 000
Екатеринбург, ул. Аптекарская, 37 (Вторчермет) - фото квартиры 3 сентября 2021 90 дн. 1 34.9 9/9 2 550 000
Екатеринбург, ул. Аптекарская, 37 (Вторчермет) - фото квартиры 18 августа 2021 90 дн. 1 34.9 9/9 2 600 000
Екатеринбург, ул. Аптекарская, 37 (Вторчермет) - фото квартиры 1 июня 2021 90 дн. 1 34 4/9 2 600 000
Екатеринбург, ул. Аптекарская, 37 (Вторчермет) - фото квартиры 8 декабря 2020 90 дн. 1 60 7/9 2 150 000
Екатеринбург, ул. Аптекарская, 37 (Вторчермет) - фото квартиры 19 февраля 2021 90 дн. 2 36.1 1/9 1 650 000
Екатеринбург, ул. Аптекарская, 37 (Вторчермет) - фото квартиры 2 февраля 2022 90 дн. 2 35 7/9 2 270 000
Екатеринбург, ул. Аптекарская, 37 (Вторчермет) - фото квартиры 3 октября 2020 90 дн. 1 16.4 8/9 1 260 000
Екатеринбург, ул. Аптекарская, 37 (Вторчермет) - фото квартиры 15 августа 2020 90 дн. 1 29.5 4/9 1 650 000
Екатеринбург, ул. Аптекарская, 37 - фото квартиры 2 февраля 2022 90 дн. 0 16 8/9 1 250 000
Екатеринбург, ул. Аптекарская, 37 (Вторчермет) - фото квартиры 10 марта 2020 120 дн. 2 34 9/9 2 170 000
Екатеринбург, ул. Аптекарская, 37 (Вторчермет) - фото квартиры 14 ноября 2019 90 дн. 1 30 4/9 1 790 000
24 октября 2018 92 дн. 1 35 9/9 2 350 000
24 ноября 2016 123 дн. 1 34 3/9 1 800 000

Похожие предложения о продаже квартир в Екатеринбурге (Вторчермет)

  • 2-к квартира, Зенитчиков, 14а

    • 42 м2
    • 3/5 этаж
    • Состояние: удовлетворительное
    1 300 000 ₽ (31000 ₽/м2)
    Продам 1/2 долю в праве собственности на квартиру. Квартира светлая, теплая, с удобной планировкой, две просторные изолированные комнаты, в одной из комнат установлено пластиковое окно. Хороший дом, окна в тихий двор, чистый подъезд, спокойные соседи. Отличная транспортная развязка, магазины рядом, нет проблем с парковкой. Квартира требует ремонта, имеются долги по ЖКУ. ID объекта в нашей базе: 26228
    размещено: 09.04.2026 , обновлено: 10.04.2026

Новостройки Екатеринбург, мкр-н. Вторчермет

Приоритет

Увеличивает просмотры в 3 раза

Ваше объявление показывается в списке выше обычных объявлений. подключить