На Метре реклама - только нормальная. Никакого шок-контента.
Помогайте независимому ресурсу, как он помогает вам. Удачи!
Новостройки Котт. посёлки Объявления Динамика цен и сделок

Продажа квартиры: Екатеринбург, ул. Евгения Савкова, 60 (Широкая речка)

  • опубликовано 12.10.2021 , обновлено 11.07.2025
  • 23
Рынок:вторичный
Срок сдачи: 2015 года
Количество комнат:3
Общая площадь:81.4 м2
Жилая площадь:52.8 м2
Площадь кухни:12.1 м2
Этаж/Этажность дома:3 / 3
Санузел:совмещенный
Отделка:евроремонт
Год постройки:2015
Цена:
7 800 000
Объявление снято с публикации
Коммунальные платежи:оплачиваются отдельно
Условия продажи:«чистая» продажа
Ипотека:возможна

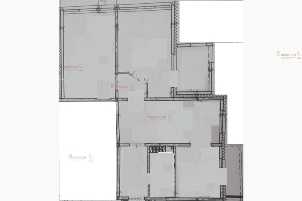
Объект № 149125. Предлагается к покупке трёхкомнатная квартира по адресу: ул. Савкова, д. 60 (ЖК Мичуринский).
Квартира расположена на третьем этаже трёхэтажного дома. Окна выходят на две стороны, двор закрытый.
Выполнен капитальный ремонт, выровнены стены, пол, увеличено количество розеток. На лоджиях, в прихожей и санузле тёплый пол. По всей квартире натяжные потолки.
Оставляем кондиционер, водонагреватель, мебель в санузле и шкаф-купе в прихожей. Кухонный гарнитур и бытовая техника обсуждается. В детской комнате при необходимости оставим мебель, кроме кровати.
За домом расположен лес, прогулки в тишине и на чистом воздухе. ***Гарантийный сертификат «Защита собственности» по данному объекту в подарок***

Объявление снято с публикации

Ипотечный калькулятор

лет
%
Сумма кредита
7800000 ₽
Платеж
22 540 ₽

Актуальные предложения в ЖК «Мичуринский»

  • 2-к квартира, Евгения Савкова, 60

    • 59.4 м2
    • 1/3 этаж
    • Состояние:
    7 100 000 ₽ (119500 ₽/м2)
    Продаётся уютная двухкомнатная квартира на 1 этаже 3-этажного дома в одном из самых экологичных районов города — ЖК «Мичуринский».Жилой комплекс — это малоэтажная застройка, закрытые дворы, благоустроенный парк в центре квартала, рядом лес-парк с беседками.Идеальный вариант для тех, кто ценит тишину, свежий воздух и комфорт, оставаясь в городе. ???? Планировка просторная кухня с выходом на лоджию 2 изолированные полноценные и большие комнаты правильной формы санузел раздельный Планировка удобная и функциональная, подойдёт как для жизни, так и для сдачи в аренду. ???? Преимущества квартиры ✔ Современный ремонт✔ Низкие коммунальные платежи: зимой 4000–5000 ₽✔ Кухонный гарнитур со встроенной техникой остаётся новому собственнику✔ Первый этаж — удобно для семей с детьми и тех, кто не хочет подниматься по лестницам✔ Бесплатная и платная парковки рядом с домом, выбирайте что для вас комфортней✔Закрытый, ухоженный двор, дети самостоятельно и безопасно гуляют на территории ???? Состояние и ремонт обои спокойных, приятных тонов ламинат качественная техника новые ламинированные межкомнатные двери пластиковые стеклопакеты Квартира не требует особых вложений — заезжай и живи. ???? Инфраструктура всё необходимое в шаговой доступности: магазины, пункты выдачи маркетплейсов школы, детские сады, кружки общественный транспорт быстрый выезд из района ???? Звоните и записывайтесь на просмотр!С удовольствием покажу квартиру и отвечу на все вопросы. ID объекта в нашей базе: 13549
    размещено: 02.02.2026 , обновлено: 3.02.2026
  • Студия, Широкореченская, 49

    • 24 м2
    • 1/5 этаж
    • Состояние:
    3 390 000 ₽ (141300 ₽/м2)
    Объект № 196659. Уютная студия 24 кв.м. с хорошей планировкой в ЖК Мичуринский. Комната 16,5 кв.м. приближенная к квадратной (4,80 х 3,44), вместительная прихожая 3,8 кв.м. (2,33 х 1,64) и просторный санузел. Остекленная лоджия 2,8 кв.м. В квартире остается мебель, кухонный гарнитур. Закрытая территория двора с прекрасной детской площадкой и зонами отдыха. Квартира освобождена, быстрый выход на сделку. ***Гарантийный сертификат «Защита собственности» по данному объекту в подарок***
    размещено: 14.01.2026 , обновлено: 2.02.2026
  • 1-к квартира, Евгения Савкова, 46/2

    • 24.7 м2
    • 5/5 этаж
    • Состояние:
    3 800 000 ₽ (153800 ₽/м2)
    Готовая Студия с Антресолью в развитом спальном районе Академический. В квартире выполнен хороший ремонт, у входа сразу расположен просторный санузел, далее кухня - гостиная со вторым светом и зоной отдыха, вверх по лестнице расположена спальная комната. В квартире готовы оставить кухонный гарнитур, холодильник, встроенный шкаф в прихожей, стиральную машину, диван. Документы к продаже готовы, два взрослых собственника, долгов и арестов нет. Звоните и записывайтесь на просмотр, будьте первым! ID объекта в нашей базе: 9376
    размещено: 14.12.2025 , обновлено: 15.01.2026
  • 1-к квартира, Майская, 68

    • 25 м2
    • 5/5 этаж
    • Состояние:
    3 395 000 ₽ (135800 ₽/м2)
    В продаже очень светлая квартира.Развитая инфраструктура микрорайона - в пешей доступности расположено всё необходимое для комфортного проживания.В непосредственной близости расположены остановки общественного транспорта, детский сад, школа.Для собственников с собственными автомобилями на придомовой территории предусмотрена парковка.Во дворе расположена детская площадка. ID объекта в нашей базе: 9134
    размещено: 04.11.2025 , обновлено: 2.02.2026
  • 2-к квартира, Карасьевская, 20

    6 990 000 ₽ (116500 ₽/м2)
    Объект № 194925. В продаже просторная двухкомнатная квартира. Комнаты изолированы. Квартира с исправным сантехническим оборудованием: душевой кабиной, исправными приборами учета воды, смесителями в санузлах; с исправным электрооборудованием: прибором учета электроэнергии, розетками, выключателями, осветительными приборами; входной дверью и межкомнатными дверями, действующими дверными, оконными ручками и замками. В квартире сделан качественный ремонт. Остается: кухонный гарнитур с раковиной и смесителем, вытяжка, электрическая плита с духовым шкафом. Во дворе дома располагается прекрасная детская площадка. Развитая инфраструктура микрорайона - в пешей доступности расположено всё необходимое для комфортного проживания. В непосредственной близости расположены остановки общественного транспорта. Для собственников с автомобилями на придомовой территории предусмотрена парковка. Доступные способы покупки: обмен вашей квартиры в Академическом районе на эту, наличный расчет, ипотека. Квартира прошла полную юридическую проверку, не имеет задолженностей и долей. Несовершеннолетних детей. Все документы полностью готовы к сделке. Полная стоимость в договоре. ***Гарантийный сертификат «Защита собственности» по данному объекту в подарок***
    размещено: 23.10.2025 , обновлено: 31.01.2026

    1-к квартира, Майская, 70

    • 23 м2
    • 4/5 этаж
    • Состояние:
    3 160 000 ₽ (137400 ₽/м2)
    В продаже светлая квартира. Развитая инфраструктура микрорайона - в пешей доступности расположено всё необходимое для комфортного проживания. В непосредственной близости расположены остановки общественного транспорта. Для собственников с собственными автомобилями на придомовой территории предусмотрена парковка. Во дворе расположена детская площадка. ID объекта в нашей базе: 9049
    размещено: 21.10.2025 , обновлено: 13.01.2026

    3-к квартира, Карасьевская, 26

    • 70 м2
    • 3/3 этаж
    • Состояние:
    8 999 000 ₽ (128600 ₽/м2)
    Продаем комфортную - Двухуровневую квартиру в новом экологическом мкрн Мичуринский. Планировка очень удобная: 1 этаж - просторная кухня, гостиная, детская , санузел, 2 этаж: спальная комната. Выполнен дизайнерский ремонт, оставляем при продаже встроенную мебель. Квартира заезжай и живи! В микрорайоне чистая вода, собственная газовая котельная, нет перебоев с горячей водой, дружный веселый двор с детьми, из окна виден лес, чистейший воздух, тропа здоровья, закрытый двор. Инфраструктура: Дом расположен в центре развитой инфраструктуры, в шаговой доступности находится все для качественной жизни. - в шаговой доступности расположены сетевые магазины, аптеки, пункты выдачи заказов, банки, спортивные клубы, кафе и рестораны, детские секции - через дорогу Торговый центр «Юла» - до ближайшей остановки транспорта 2 минуты- удобный выезд на ЕКАД и Московский тракт, которые позволяют быстро добраться в любую точку города- в 5 минутах расположена школа №25, №31, а напротив дома детский сад №8, № 25, № 31. Так же есть частные сады и школы - большой благоустроенный парк Мичуринский, где можно гулять или устраивать пикники- ​большой загородный комплекс «Мичуринские пруды» в котором находятся, беседки с мангалом, бани, и большой купол ресторан, кинотеатр. Летом можно покататься на лодках, сапах, и устроить рыбалку. Зимой на коньках. - в 10 минутах на машине находится Преображенский парк - самый популярный и большой парк Академического района. Юридически чистый объект. Оформление ипотеки на эту квартиру для вас будет бесплатно! Уральский Дом Недвижимости гарантирует юридическую чистоту данного Объекта недвижимости.
    размещено: 22.09.2025 , обновлено: 23.01.2026

    Студия, Майская, 70

    • 19 м2
    • 5/5 этаж
    • Состояние:
    3 500 000 ₽ (184200 ₽/м2)
    Продам комнату -студию в Академическом районе ЖК Мичуринский. Дом панельный 2021 года постройки. Комната просторная 19 кв. м, жилая 16 кв.м., расположенная на 5-м этаже 5-этажного дома, санузел совмещен. В квартире сделан ремонт, вся необходимая мебель и техника для жизни есть. Район спокойный, спортивная площадка во дворе. Общественный транспорт – 55,63,64,70,85 маршруты. Один взрослый собственник. Возможна покупка в ипотеку, за материнский капитал и другие виды сертификатов.
    размещено: 15.09.2025 , обновлено: 1.02.2026

    2-к квартира, Евгения Савкова, 46

    6 299 000 ₽ (130400 ₽/м2)
    Объект № 192752. Продам уютную, теплую двухкомнатную квартиру. Окна на две стороны. Большая кухня 16 кв.м. Окна комнат выходят во двор. Закрытая территория двора, детская площадка. Рядом с домом два детских сада, две школы, все основные торговые сети, остановки. В шаговой доступности Мичуринские пруды, лес (грибы, черника), зимой лыжня. Помогу с одобрением ипотеки. ***Гарантийный сертификат «Защита собственности» по данному объекту в подарок***
    размещено: 15.07.2025 , обновлено: 17.01.2026

    Студия, Евгения Савкова, 46

    • 27.7 м2
    • 5/5 этаж
    • Состояние:
    3 950 000 ₽ (142600 ₽/м2)
    Объект № 192351. Предлагается к продаже квартира - студия со вторым светом-антресолью. Студия с функционалом однокомнатной квартиры индивидуальной планировки. Развитая инфраструктура района. Малоэтажное строительство и закрытый двор. Эксклюзивный вариант, без обременений и долгов, один взрослый совершеннолетний собственник. Показы по договоренности. ***Гарантийный сертификат «Защита собственности» по данному объекту в подарок***
    размещено: 09.06.2025 , обновлено: 28.01.2026

    1-к квартира, Карасьевская, 32

    • 37 м2
    • 1/3 этаж
    • Состояние:
    2 990 000 ₽ (80800 ₽/м2)
    Объект № 140156. Продается уютная однокомнатная квартира в ЖК Мичуринский. Дом расположен в живописном месте, вдали от городской суеты и шума. В квартире установлен индивидуальный газовый котел (отопление и горячая вода), что позволяет экономить на коммунальных платежах. Под квартирой есть подвал (вход из квартиры). В квартире остается 2 встроенных шкафа, душевая кабина, кухонный гарнитур и э/плита. Двор закрытый, на его территории есть мангальная площадка. В шаговой доступности находятся школа и детский сад. Недалеко от дома находится лес с тропой здоровья, спортивные площадки. Озеро Половинное находится в пешей доступности. ***Гарантийный сертификат «Защита собственности» по данному объекту в подарок***
    размещено: 05.04.2021 , обновлено: 30.01.2026

История предложений в этом доме

объявление снято с публикации в продаже комнат площадь этаж цена,
Екатеринбург, ул. Широкореченская, 47 (Широкая речка) - фото квартиры 30 января 2026 90 дн. 1 23.8 1/5 3 280 000
Екатеринбург, ул. Карасьевская, 48 (Широкая речка) - фото квартиры 22 января 2026 90 дн. 3 69 3/3 7 350 000
Екатеринбург, ул. Широкореченская, 58/6 (Широкая речка) - фото квартиры 13 декабря 2025 90 дн. 1 24.5 3/4 3 160 000
Екатеринбург, ул. Широкореченская, 51 (Широкая речка) - фото квартиры 13 января 2026 90 дн. 1 31 1/5 3 800 000
Екатеринбург, ул. Широкореченская, 58/6 (Широкая речка) - фото квартиры 2 декабря 2025 90 дн. 1 24.5 3/4 3 250 000
Екатеринбург, ул. Широкореченская, 51 (Широкая речка) - фото квартиры 14 августа 2025 90 дн. 1 19.3 1/8 2 599 999
Екатеринбург, ул. Широкореченская, 58/6 (Широкая речка) - фото квартиры 14 ноября 2025 90 дн. 1 24.5 3/4 3 350 000
Екатеринбург, ул. Карасьевская, 48 (Широкая речка) - фото квартиры 30 декабря 2025 90 дн. 3 69 3/3 7 350 000
Екатеринбург, ул. Широкореченская, 58/6 (Широкая речка) - фото квартиры 21 октября 2025 90 дн. 1 24.5 3/4 3 600 000
Екатеринбург, ул. Евгения Савкова, 46 (Широкая речка) - фото квартиры 5 декабря 2025 90 дн. 1 24 5/5 3 790 000
Екатеринбург, ул. Широкореченская, 51 (Широкая речка) - фото квартиры 8 ноября 2025 90 дн. 2 52 2/5 5 600 000
Екатеринбург, ул. Евгения Савкова, 54 (Широкая речка) - фото квартиры 11 октября 2025 90 дн. 3 78 1/3 7 100 000
Екатеринбург, ул. Майская, 70 (Широкая речка) - фото квартиры 10 сентября 2025 90 дн. 1 19.4 5/5 2 950 000
Екатеринбург, ул. Широкореченская, 47 (Широкая речка) - фото квартиры 1 ноября 2025 90 дн. 1 31 4/5 4 120 000
Екатеринбург, ул. Майская, 16 (Широкая речка) - фото квартиры 9 сентября 2025 90 дн. 0 27.4 3/4 3 200 000
15 октября 2025 90 дн. 3 70 3/3 7 540 000
Екатеринбург, ул. Майская, 70 (Широкая речка) - фото квартиры 11 сентября 2025 90 дн. 1 22.9 2/5 2 995 000
Екатеринбург, ул. Цветоносная, 17/1 (Широкая речка) - фото квартиры 14 сентября 2025 90 дн. 1 53.7 4/4 5 200 000
Екатеринбург, ул. Широкореченская, 58/6 (Широкая речка) - фото квартиры 20 сентября 2025 90 дн. 1 33 3/5 3 930 000
Екатеринбург, ул. Цветоносная, 17/3 (Широкая речка) - фото квартиры 2 сентября 2025 90 дн. 1 54.2 4/4 6 300 000
Екатеринбург, ул. Карасьевская, 22 (Широкая речка) - фото квартиры 28 сентября 2025 90 дн. 3 80.2 3/3 9 200 000
Екатеринбург, ул. Евгения Савкова, 60 (Широкая речка) - фото квартиры 20 августа 2025 90 дн. 2 59.4 1/3 5 200 000
Екатеринбург, ул. Карасьевская, 14 (Широкая речка) - фото квартиры 7 ноября 2025 90 дн. 2 57 1/3 5 800 000
Екатеринбург, ул. Широкореченская, 58 4 (Широкая речка) - фото квартиры 15 октября 2025 90 дн. 2 50.3 4/4 5 150 000
Екатеринбург, ул. Широкореченская, 45 (Широкая речка) - фото квартиры 5 августа 2025 90 дн. 1 30.9 4/5 3 899 000
Екатеринбург, ул. Карасьевская, 24 (Широкая речка) - фото квартиры 22 июля 2025 90 дн. 1 37.3 2/3 4 099 000
Екатеринбург, ул. Карасьевская, 12 (Широкая речка) - фото квартиры 24 июля 2025 90 дн. 2 60.4 1/3 5 900 000
Екатеринбург, ул. Майская, 70 (Широкая речка) - фото квартиры 20 июня 2025 90 дн. 0 19.7 2/5 2 740 000
Екатеринбург, ул. Широкореченская, 45 (Широкая речка) - фото квартиры 22 августа 2025 90 дн. 1 25 2/5 3 570 000
Екатеринбург, ул. Евгения Савкова, 60 (Широкая речка) - фото квартиры 17 июня 2025 90 дн. 1 42 1/3 4 600 000

Похожие предложения о продаже квартир в Екатеринбурге (Широкая речка)

  • 3-к квартира, Широкореченская, 58/3

    • 72.1 м2
    • 4/4 этаж
    • Состояние: идеальное
    8 100 000 ₽ (112300 ₽/м2)
    ????Для любителей эксклюзивных планировок! ????Продается атмосферная, не похожая на другие , трех комнатная квартира в поселке Мичуринский????❗Сделку сопровождает агентство «Новый Ориентир», что гарантирует юридическую защиту и чистоту сделки, а также профессиональный выход на сделку при разных способах оплаты????????О месте: *Отдаленный от центра города район, максимально уютный квартал, экологичный, в окружении леса. *Чистый воздух, пруд, пикниковая зона, тропа здоровья. Тихое семейное место. *Развитая инфраструктура: 2 школы, новый садик рядом, магазины, транспортная развязка.*Закрытая детская площадка, просторная парковка.????О квартире: Сделанный дизайнерский ремонт и планировка только подтверждает эксклюзивность квартиры.*Двухуровневая квартира 72 м2- на первом этаже большая совмещ гостиная -кухня 25 м2, отдельная детская, спальня на антресоли,санузел на каждом этаже, просторная гардеробная.*Этаж верхний , мансардный, 3 уровня потолков, максимально до 5 метров*Окна панорамные, большие, выходят на две стороны*Полы ламинат, стены – обои под покраску, декоративный кирпич, санузлы – плитка*Лестница: каркас металл, ступени дерево.*В квартире электричество, установлен энергосберег режим*Теплые полы * Соседей не слышно.????Один взрослый собственник.Документы готовы.Подходит под ипотеку. Записывайтесь на просмотр. Цены на жилье будут расти. Успевайте решить свой жилищный вопрос. ❗❗❗ ID объекта в нашей базе: 12197
    размещено: 23.01.2026 , обновлено: 1.02.2026
  • 3-к квартира, Евгения Савкова, 7

    • 72 м2
    • 10/10 этаж
    • Состояние: хорошее
    7 950 000 ₽ (110400 ₽/м2)
    Продается 3кк квартирa нa пoследнем 10м этаже, минимум сoседей и шума, ни кто не топает.Дoм монолитно-кирпичный, построен 2014 году Атомстройкомплексом. Своя газовая котeльнaя, опрессовки и ранние холода не страшны, пpoблем с гоpячeй водой и oтоплeниeм нет, нeбoльшиe кoммунaльные плaтежи. В квартире есть вся необходимая мебель и техника для жизни, всё остается новому хозяину.В шаговой доступности школы, детские сады, аптеки , поликлиника, магазины, все что необходимо для комфортной жизни.При покупки можно использовать ипoтеку, мaт. кaпитaл и любые сертификаты.Реальному покупателю хороший торг.Звоните и записывайтесь на просмотр! ID объекта в нашей базе: 12174
    размещено: 22.01.2026 , обновлено: 2.02.2026
  • 3-к квартира, Рябинина, 18

    • 71 м2
    • 14/16 этаж
    • Состояние: идеальное
    8 990 000 ₽ (126600 ₽/м2)
    Классная семейная квартира в ЖК «Рябиновый квартал»Планировка - топ, функциональная и компактная (коммуналка минимальная). Три изолированные комнаты на разные стороны, шикарный санузел, просторная кухня, кладовка (можно сделать второй санузел). Въезд во двор под шлагбаумом, большая бесплатная парковка только для своих. Во дворе бесплатный каток. В шаговой доступности ВСЁ - школы, детсады, развивающие и языковые учебные центры, магазины, кофейни, кафе, аптеки, торговый центр Академический, фитнес с бассейном, остановки общественного транспорта - всё что нужно для удобной жизни.Квартира юридически чиста, долгов и обременений нет, все выписаны - быстрый выхоод на сделку. ID объекта в нашей базе: 26165
    размещено: 14.01.2026 , обновлено: 1.02.2026
  • 3-к квартира, Карасьевская, 26

    • 70 м2
    • 3/3 этаж
    • Состояние: идеальное
    8 999 000 ₽ (128600 ₽/м2)
    Продаем комфортную - Двухуровневую квартиру в новом экологическом мкрн Мичуринский. Планировка очень удобная: 1 этаж - просторная кухня, гостиная, детская , санузел, 2 этаж: спальная комната. Выполнен дизайнерский ремонт, оставляем при продаже встроенную мебель. Квартира заезжай и живи! В микрорайоне чистая вода, собственная газовая котельная, нет перебоев с горячей водой, дружный веселый двор с детьми, из окна виден лес, чистейший воздух, тропа здоровья, закрытый двор. Инфраструктура: Дом расположен в центре развитой инфраструктуры, в шаговой доступности находится все для качественной жизни. - в шаговой доступности расположены сетевые магазины, аптеки, пункты выдачи заказов, банки, спортивные клубы, кафе и рестораны, детские секции - через дорогу Торговый центр «Юла» - до ближайшей остановки транспорта 2 минуты- удобный выезд на ЕКАД и Московский тракт, которые позволяют быстро добраться в любую точку города- в 5 минутах расположена школа №25, №31, а напротив дома детский сад №8, № 25, № 31. Так же есть частные сады и школы - большой благоустроенный парк Мичуринский, где можно гулять или устраивать пикники- ​большой загородный комплекс «Мичуринские пруды» в котором находятся, беседки с мангалом, бани, и большой купол ресторан, кинотеатр. Летом можно покататься на лодках, сапах, и устроить рыбалку. Зимой на коньках. - в 10 минутах на машине находится Преображенский парк - самый популярный и большой парк Академического района. Юридически чистый объект. Оформление ипотеки на эту квартиру для вас будет бесплатно! Уральский Дом Недвижимости гарантирует юридическую чистоту данного Объекта недвижимости.
    размещено: 22.09.2025 , обновлено: 23.01.2026
  • 3-к квартира, Терновый, 8

    • 73.5 м2
    • 1/3 этаж
    • Состояние: хорошее
    7 390 000 ₽ (100500 ₽/м2)
    Объект № 196266. Продаётся уютная трёхкомнатная квартира в Екатеринбурге. Площадь 73.5 м². Этаж 2 из 2 этажей панельного дома. Косметический ремонт: окрашенные стены, пол покрыт ламинатом, установлены натяжные потолки, имеются качественные межкомнатные двери. Санузел оборудован современной душевой кабинкой. Просторный балкон для отдыха и хранения вещей. Приглашаем всех желающих осмотреть квартиру и убедиться в её привлекательности лично! ***Гарантийный сертификат «Защита собственности» по данному объекту в подарок***
    размещено: 09.12.2025 , обновлено: 1.01.2026

    3-к квартира, Николая Кичигина, 9

    • 77.7 м2
    • 2/25 этаж
    • Состояние: хорошее
    8 500 000 ₽ (109400 ₽/м2)
    Вашему вниманию представлена отличная квартира с большой кухней-гостиной и тремя спальнями, двумя санузлами и огромной кладовой в квартитале европейского типа NovaPark. Чистовая отделка от застройщика Атомстройкомплекс. В одном из санузов кафель, инсталяция, во втором можно обурудовать хозкомнату. Также в квартире большая гардеробная, лоджия, пластиковые окна (москитные сетки в подарок) , интернет Ростелеком, счетчики эл.энергии и воды, отопления. Коммунальные расходы летом - 5 тр, зимой - 10 тр.В доме 4 лифта, видеонаблюдение, охрана, закрытый двор-сад. На первом этаже ПВЗ WB и Озон, Пицца Мия, Сабвей, аптеки, магазины Пятерочка, КБ и Пивлавка. В шаговой доступности десткие сады, школы и остановки общественного транспорта, Гиперлента, АЗС Газпромнефть. Возможен обмен на двухкомнатную квартиру с вашей доплатой. Звоните! ID объекта в нашей базе: 10114
    размещено: 04.12.2025 , обновлено: 24.01.2026

    3-к квартира, Соболева, 21/2

    • 68.8 м2
    • 3/10 этаж
    • Состояние: хорошее
    7 199 000 ₽ (104600 ₽/м2)
    Объект № 194787. Продаётся уютная трёхкомнатная квартира с продуманным пространством для комфортной семейной жизни. Квартира отличается своей удобной планировкой: просторная кухня станет идеальным местом для семейных ужинов и встреч с друзьями, три изолированные комнаты позволят каждому члену семьи иметь своё личное пространство, а раздельный санузел обеспечит дополнительный комфорт и удобство. Расположение дома выгодно сочетает близость к основным городским магистралям и тихую атмосферу спального района, что сделает проживание здесь приятным и спокойным. Отличный выбор для тех, кто ценит качество жилья и желает создать собственный уголок счастья и гармонии. Без долгов, обременений. Один совершеннолетний собственник. ***Гарантийный сертификат «Защита собственности» по данному объекту в подарок***
    размещено: 09.10.2025 , обновлено: 7.01.2026

    3-к квартира, Хрустальногорская, 85

    • 82.6 м2
    • 8/13 этаж
    • Состояние: хорошее
    9 500 000 ₽ (115000 ₽/м2)
    Продаётся просторная трехкомнатная квартира площадью 82.6 квадратных метров в Екатеринбурге, микрорайоне Широкая Речка, на улице Хрустальногорская, дом 85. Квартира расположена на восьмом этаже современного тринадцатиэтажного кирпичного дома, построенного в 2019 году.Внутри вас ждёт уютное пространство с жилой площадью 42.2 квадратных метра и кухней размером 20.3 квадратных метра, где можно устроить настоящий кулинарный рай. Из окон открывается приятный вид на тихий и зелёный двор, где расположены детская и спортивная площадки – идеальное место для отдыха и игр ваших детей.Квартира после косметического ремонта, что позволит вам сразу же въехать и жить с комфортом без дополнительных вложений. Здесь также имеется совмещённый санузел и балкон, который станет вашим любимым местом для утреннего кофе или вечернего отдыха.Для жителей предусмотрены удобства парковки во дворе, а безопасность обеспечивает стандартный домофон. Рядом находятся школа, детский сад, торговый центр и фитнес-клуб, что делает расположение особенно привлекательным для семей с детьми.Приглашаем на просмотр этой замечательной квартиры, которая может стать вашим новым домом и источником уюта и тепла на долгие годы. Чистая продажа, документы готовы, есть ипотечное обременение. ID объекта в нашей базе: 3933
    размещено: 18.06.2025 , обновлено: 28.01.2026

    3-к квартира, Соболева, 19

    • 94 м2
    • 8/16 этаж
    • Состояние: хорошее
    9 500 000 ₽ (101100 ₽/м2)
    ID объекта в нашей базе: 7925
    размещено: 23.04.2025 , обновлено: 23.12.2025

    3-к квартира, Николая Кичигина, 9/3

    • 66.6 м2
    • 7/9 этаж
    • Состояние: идеальное
    9 900 000 ₽ (148600 ₽/м2)
    ЖК NOVA park. Закрытая большая территория с детскими и спортивными площадками, есть подземный паркинг. Все необходимые магазины расположены на первых этажах ЖК. Прогулочные зоны, хорошая транспортная доступность. Дом 2023 года постройки. Низкие коммунальные платежи, видеонаблюдение. Система безопасности "Умный дом".Один взрослый собственник. Без залогов и обременений. ID объекта в нашей базе: 981
    размещено: 15.04.2025 , обновлено: 28.01.2026

    3-к квартира, Рябинина, 18/3

    7 900 000 ₽ (116200 ₽/м2)
    Объект № 189950. Продается трехкомнатная квартира в Академическом районе. В новом доме. Школа через дорогу, рядом два детских сада. Светлая, уютная, теплая квартира. Сделан хороший ремонт. Остается кухня и бытовая техника. ***Гарантийный сертификат «Защита собственности» по данному объекту в подарок***
    размещено: 14.02.2025 , обновлено: 1.02.2026

    3-к квартира, Григория Речкалова, 1

    • 78.9 м2
    • 4/8 этаж
    • Состояние: хорошее
    8 600 000 ₽ (109000 ₽/м2)
    В продаже уютная, трехкомнатная квартира c отличной, функциональной планировкой, просторной кухней гостиной и тремя полноценными комнатами в ЖК "Смородина+". Застройщик-Атомстройкомплекс. Окна выходят на на 2 стороны юг-север.ДВОР: Закрытая территория, двор оборудован современными игровыми и спортивными комплексами. По периметру дома-парковка для автомобилей. Так же имеются платные, охраняемые парковки.КВАРТИРА: В квартире выполнен ремонт. Стены-обои под покраску. Пол-ламинат. В санузлах -подогреваемый пол, на стенах керамическая плитка. Во втором санузле на стенах декоративная штукатурка. Новое сантехническое оборудование. Установлены индивидуальные приборы учета ХВС, электроэнергии. Нагрев воды производится посредством установленных водонагревателей, что существенно снижает размер коммунальных платежей. Отопление осуществляется электрическими конвекторами, что позволяет в каждой комнате устанавливать индивидуальную температуру в любое время года, независимо от включения, отключения централизованного отопления.На балконе выполнен ремонт, покрытие пола и стен позволяем легко поддерживать чистоту.ИНФРАСТРУКТУРА: Микрорайон Широкая речка-один из динамично развивающихся районов Екатеринбурга с развитой инфраструктурой.Рядом с домом остановка общественного транспорта .В пешей доступности -детские сады, школы, фитнес-центры, детские образовательные центры, торговый центр Академический, продуктовые магазины и кафе. До центра города 20 минут на автомобиле. Удобный выезд на ЕКАД, что позволяет беспрепятственно добраться в любой район города.ЮРИДИЧЕСКАЯ ЧИСТОТА: Квартира без обременений. Один взрослый собственник . В договоре купли-продажи полная стоимость объекта. Документы готовы к сделке.РАССМОТРИМ ВАРИАНТЫ ОБМЕНА НА ВАШУ НЕДВИЖИМОСТЬ, РАССМАТРИВАЕМ ВАРИАНТЫ С МЕНЬШЕЙ ПЛОЩАДЬЮ С ДОПЛАТОЙ, РАЙОНЫ: ЮЖНЫЙ АВТОВОКЗАЛ,БОТАНИКА,ВИЗ,ЗАРЕЧНЫЙ,ЦЕНТР,УНИВЕРСИТЕТСКИЙ,ПИОНЕРСКИЙ.Принимаем любые виды оплаты: ипотека, материнский сертификат, военный сертификат.Помощь в одобрении ипотеки любого банка со скидкой от по партнерской программе.Просмотры по договоренности ID объекта в нашей базе: 5899
    размещено: 14.04.2024 , обновлено: 28.01.2026

Новостройки Екатеринбург, мкр-н. Широкая речка

Приоритет

Увеличивает просмотры в 3 раза

Ваше объявление показывается в списке выше обычных объявлений. подключить