На Метре реклама - только нормальная. Никакого шок-контента.
Помогайте независимому ресурсу, как он помогает вам. Удачи!
Новостройки Котт. посёлки Объявления Динамика цен и сделок

Продажа квартиры: Екатеринбург, ул. Мира, 39, Компаунд Проспект Мира (Дом 5) (Втузгородок)

  • опубликовано 4.04.2022 , обновлено 19.11.2025
  • 32
Рынок:строящееся жилье
Срок сдачи:3 квартал 2023 года
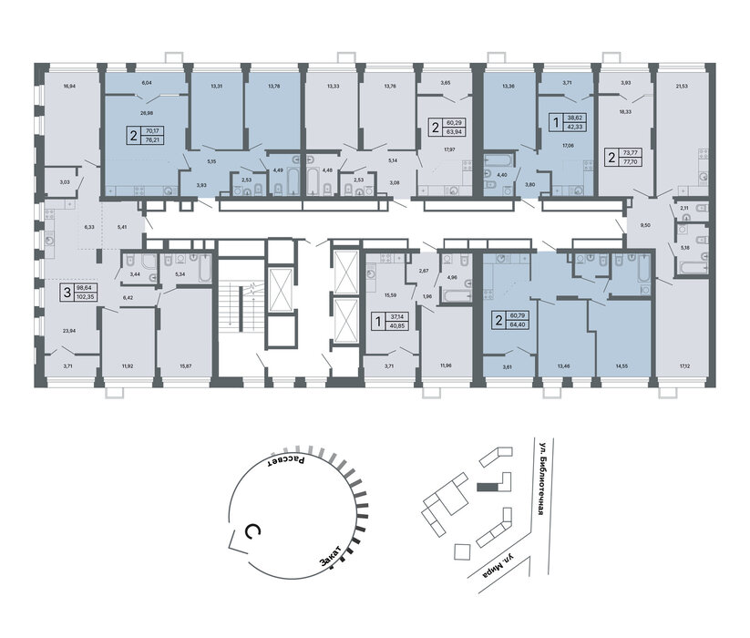
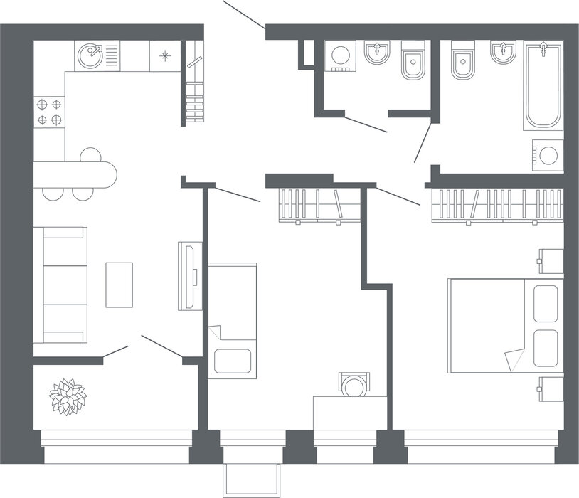
Количество комнат:2
Общая площадь:64.4 м2
Жилая площадь:27.99 м2
Площадь кухни:16.61 м2
Этаж/Этажность дома:11 / 24
Отделка:предчистовая
Год постройки:2023
Балкон/лоджия:лоджия
Цена:
14 359 000
Объявление снято с публикации
Коммунальные платежи:оплачиваются отдельно
Ипотека:возможна

Компаунд «Проспект Мира» – флагманский проект компании «Первостроитель», финалист премии Urban Awards, входит в ТОП 5 жилых комплексов России по версии Единого ресурса застройщика.

Это закрытый комплекс с развитой инфраструктурой, фонтаном, зонами отдыха, детскими площадками, спортивными зонами и двухуровневым паркингом. Дом по адресу ул. Мира 47/7 состоит из двух секций, корпус которых развернут внутрь дворового пространства компаунда. В доме просторные холлы с зонами ожидания и колясочные.

На территории компаунда расположен мультифункциональный центр, в котором расположены собственные бизнесы застройщика: фитнес-клуб с 24-х метровым бассейном и СПА зоной, ресторанный комплекс, бильярдный клуб и отель.

Особое внимание в проекте уделено внутреннему дворовому пространству: во дворе выполнен ландшафтный дизайн с оригинальными клумбами, деревьями, кустарниками и вечерней подсветкой. Безопасность домов обеспечивают камеры наблюдения, расположенные по периметру зданий, в местах общего пользования, на этажах и лифтах.

Квартиры отличаются продуманными планировками (от 30,6 до 110 м²) и высокими потолками (от 2,75 до 3,5 м). Дома имеют класс энергоэффективности А и целый ряд энергоэффективных решений:

- повышенную теплоизоляцию наружных стен,
- специальные оконные конструкции,
- сохраняющие тепло зимой и не нагревающие комнаты летом,
- уникальную для многоквартирных домов индивидуальную систему приточно-вытяжной вентиляции с рекуперацией воздуха, что даёт постоянное обновление воздуха

Объявление снято с публикации

Ипотечный калькулятор

лет
%
Сумма кредита
14359000 ₽
Платеж
22 540 ₽

История предложений в этом доме

объявление снято с публикации в продаже комнат площадь этаж цена,
23 сентября 2025 90 дн. 1 42.2 17/27 11 281 000
18 июля 2025 90 дн. 3 74 8/27 15 293 000
1 декабря 2025 90 дн. 1 42.1 10/27 10 899 000
Екатеринбург, ул. Мира, 47/7 (Втузгородок) - фото квартиры 22 июля 2025 90 дн. 1 42.2 13/26 12 590 000
Екатеринбург, ул.Мира, 47 (Втузгородок) - фото квартиры 16 августа 2025 90 дн. 3 73.9 15/25 18 890 000
Екатеринбург, ул. Мира, 47 (Втузгородок) - фото квартиры 16 августа 2025 90 дн. 2 73.9 15/25 18 890 000
Екатеринбург, ул. Мира, 47/7 (Втузгородок) - фото квартиры 22 июля 2025 90 дн. 2 42.2 13/26 12 590 000
5 марта 2025 90 дн. 3 74.17 7/27 14 453 000
Екатеринбург, ул. Мира, 47, Компаунд Проспект Мира (Втузгородок) - фото квартиры 30 апреля 2025 90 дн. 1 45.5 7/30 8 700 000
14 февраля 2025 90 дн. 1 42.31 8/27 9 952 000
Екатеринбург, ул. Мира, 47/7 (Втузгородок) - фото квартиры 22 февраля 2025 90 дн. 3 101 21/24 21 261 000
Екатеринбург, ул. Мира, 47 (Втузгородок) - фото квартиры 6 декабря 2024 90 дн. 2 84.5 12/25 17 974 000
29 октября 2024 90 дн. 2 61.79 25/27 13 342 000
Екатеринбург, ул. Мира, 47 (Втузгородок) - фото квартиры 9 апреля 2025 90 дн. 2 84.5 14/25 26 361 000
23 ноября 2025 90 дн. 0 34.9 8/27 9 347 000
14 августа 2025 90 дн. 1 45.4 7/27 10 702 000
14 августа 2025 90 дн. 0 35.6 7/27 9 026 000
18 июля 2025 90 дн. 1 45.8 17/27 11 539 000
27 февраля 2025 90 дн. 1 47.51 17/27 11 127 000
18 июля 2025 90 дн. 1 54.2 17/27 13 195 000
18 июля 2025 90 дн. 0 34.5 16/27 9 496 000
18 июля 2025 90 дн. 1 45.4 15/27 11 233 000
18 июля 2025 90 дн. 1 47.1 15/27 11 465 000
18 июля 2025 90 дн. 1 53.9 13/27 12 622 000
24 октября 2025 90 дн. 1 45.6 11/27 11 189 000
18 июля 2025 90 дн. 1 45.9 22/27 11 881 000
18 июля 2025 90 дн. 0 34.6 22/27 9 931 000
18 июля 2025 90 дн. 1 53.9 22/27 13 616 000
18 июля 2025 90 дн. 1 46 21/27 11 817 000
18 июля 2025 90 дн. 1 47 21/27 12 075 000

Новостройки Екатеринбург, мкр-н. Втузгородок

Приоритет

Увеличивает просмотры в 3 раза

Ваше объявление показывается в списке выше обычных объявлений. подключить