На Метре реклама - только нормальная. Никакого шок-контента.
Помогайте независимому ресурсу, как он помогает вам. Удачи!
Новостройки Котт. посёлки Объявления Динамика цен и сделок

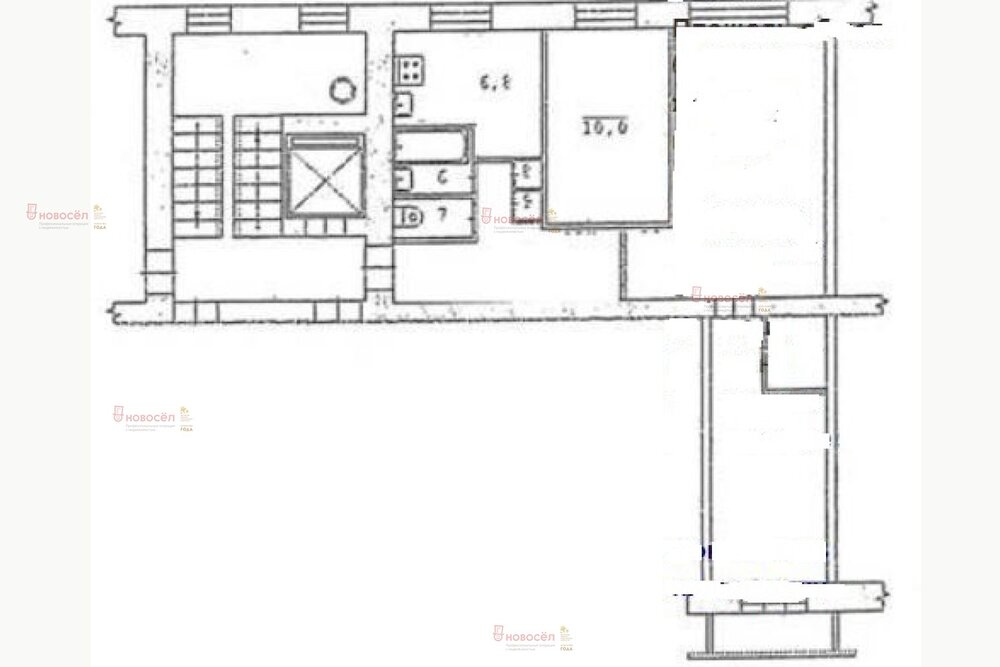
Продажа квартиры: Екатеринбург, ул. Софьи Ковалевской, 1 (Втузгородок)

  • опубликовано 14.04.2022 , обновлено 7.04.2025
  • 41
Кадастровый номер:66:41:0704021:98
Рынок:вторичный
Срок сдачи: 1976 года
Количество комнат:3
Общая площадь:61 м2
Жилая площадь:40 м2
Площадь кухни:6 м2
Этаж/Этажность дома:6 / 9
Санузел:раздельный
Отделка:косметический
Год постройки:1976
Состояние:удовлетворительное
Цена:
4 700 000
Объявление снято с публикации
Коммунальные платежи:оплачиваются отдельно
Ипотека:возможна

Объект № 157983. Продается 3-комнатная квартира. Дом расположен в районе с развитой инфраструктурой. Рядом остановки общественного транспорта, продовольственные магазины, аптеки, кафе. Детские сады №109, 276, 99, школы №36, 43, УрФУ, УрГЮУ, Екатеринбургское суворовское военное училище, Уральский институт МЧС.
Квартира освобождена. Торг. ***Гарантийный сертификат «Защита собственности» по данному объекту в подарок***

Объявление снято с публикации

Ипотечный калькулятор

лет
%
Сумма кредита
4700000 ₽
Платеж
22 540 ₽

Актуальные предложения в этом доме

  • 3-к квартира, Софьи Ковалевской, 1

    • 60.1 м2
    • 4/9 этаж
    • Состояние:
    8 600 000 ₽ (143100 ₽/м2)
    Продается трехкомнатная квартира улучшенной планировки на 4 этаже кирпичного 9-этажного дома, расположенного рядом с УрФУ, перекрёсток улиц Малышева – С.Ковалевской. Мом расположен в Кировском районе. На этаже четыре квартиры, дружелюбные и порядочные соседи не доставят Вам неудобства. Общая площадь квартиры 60,1 кв.м. Все комнаты изолированы, санузел раздельный. Три окна квартиры и застекленная лоджия выходят во двор, одно окно на улицу Малышева. На окнах пластиковые стеклопакеты, на полу ламинат, санузел в кафельной плитке. Закрытый двор с видеонаблюдением, въезд через ворота. Во дворе оборудована парковка для автомобилей жильцов дома. Управляющая компания находится в соседнем подъезде. Удобная транспортная развязка, позволит добраться до любой точки города без проблем. Наличие развитой инфраструктуры и множество торговых точек делают этот район города востребованным для покупателей. Сразу за домом начинаются корпуса Уральского Федерального Университета. Квартира в собственности более 10 лет, никаких обременений не имеется, возможна продажа по ипотеке, быстрый выход на сделку. Показ квартиры в удобное для Вас время. Звоните, договоримся. ID объекта в нашей базе: 11914
    размещено: 16.10.2025 , обновлено: 21.11.2025

История предложений в этом доме

объявление снято с публикации в продаже комнат площадь этаж цена,
Екатеринбург, ул. Софьи Ковалевской, 1 (Втузгородок) - фото квартиры 25 февраля 2025 90 дн. 3 64.5 4/9 7 790 000
Екатеринбург, ул. Софьи Ковалевской, 1 (Втузгородок) - фото квартиры 12 марта 2024 90 дн. 3 60 6/9 6 500 000
Екатеринбург, ул. Софьи Ковалевской, 1 (Втузгородок) - фото квартиры 23 января 2024 90 дн. 3 60 6/9 6 500 000
Екатеринбург, ул. Софьи Ковалевской, 1 (Втузгородок) - фото квартиры 21 апреля 2023 90 дн. 3 60 6/9 5 400 000
Екатеринбург, ул. Софьи Ковалевской, 1 (Втузгородок) - фото квартиры 5 октября 2022 90 дн. 2 45.3 6/9 4 650 000
Екатеринбург, ул. Софьи Ковалевской, 1 (Втузгородок) - фото квартиры 21 сентября 2022 90 дн. 2 45.3 6/9 4 650 000
Екатеринбург, ул. Софьи Ковалевской, 1 (Втузгородок) - фото квартиры 31 мая 2022 90 дн. 3 65 4/10 6 000 000
Екатеринбург, ул. Софьи Ковалевской, 1 (Втузгородок) - фото квартиры 29 января 2022 90 дн. 3 58.7 7/9 4 799 000
Екатеринбург, ул. Софьи Ковалевской, 1 (Втузгородок) - фото квартиры 7 декабря 2021 90 дн. 3 58.7 7/9 4 900 000
Екатеринбург, ул. Софьи Ковалевской, 1 (Втузгородок) - фото квартиры 27 ноября 2021 90 дн. 3 58.7 7/9 4 600 000
Екатеринбург, ул. Софьи Ковалевской, 1 (Втузгородок) - фото квартиры 2 марта 2021 90 дн. 2 45 5/9 4 400 000
Екатеринбург, ул. Софьи Ковалевской, 1 (Втузгородок) - фото квартиры 18 августа 2020 90 дн. 3 59.8 3/9 3 600 000
Екатеринбург, ул. Софьи Ковалевской, 1 (Втузгородок) - фото квартиры 1 мая 2020 90 дн. 3 59.8 3/9 3 700 000
Екатеринбург, ул. Софьи Ковалевской, 1 (Втузгородок) - фото квартиры 13 ноября 2019 90 дн. 2 44.9 3/9 3 250 000

Похожие предложения о продаже квартир в Екатеринбурге (Втузгородок)

  • 3-к квартира, Комсомольская, 7

    • 53.5 м2
    • 3/4 этаж
    • Состояние: хорошее
    5 630 000 ₽ (105200 ₽/м2)
    В продаже УЮТНАЯ семейная квартира в КИРПИЧНОМ доме. Этаж 3, есть застеклённый БАЛКОН.Комнаты смежные, по типу "распашонки". Большая часть окон квартиры смотрит во двор.При продаже оставим встроенную кухню и шкафы. ОКНА ПОМЕНЯНЫ на стеклопакеты, ПОТОЛКИ в комнатахразноуровневые (ФИГУРНЫЕ), трубы и сантехника в хорошем состоянии. КВАРТИРА ТЁПЛАЯ.В собственности с 2006 года, собственники взрослые, ОБРЕМЕНЕНИЙ И ДОЛГОВ НЕТ.Дом расположен в хорошей локации: напротив ТК "Современник",близко культурный центр "Урал", спортивный комплекс с бассейном,близость к высшим учебным заведениям: юридический университет, Уральский федеральный университет и др. Остановки транспорта в шаговой доступности к дому, хорошая транспортная развязка для поездки в центр или выезда из города по ул.Блюхера. ID объекта в нашей базе: 248
    размещено: 30.11.2025 , обновлено: 1.12.2025
  • 3-к квартира, Комсомольская, 31 А

    • 58.6 м2
    • 4/5 этаж
    • Состояние: плохое
    5 700 000 ₽ (97300 ₽/м2)
    Продам 3-х к.кв. 58.6 м² в теплом кирпичном доме в шаговой доступности Юридическая Академия / УРФУ. Квартира расположена на среднем этаже в 5-ти этажного дома. Состояние квартиры: Идеальный вариант для тех, кто не хочет ремонт под себя и не переплачивать за чужой старый ремонт. Требует капитального ремонта. Преимущества: Планировка: 1 изолированная комната + 2 смежные Технические моменты: Раздельный санузел, газовая колонка для ГВС + плита. Локация: Одна из лучших в городе — в шаговой доступности от Юридическая Академия и УРФУ. Высокий спрос на аренду и всегда ликвидная стоимость. Мебель: все что имеется в квартире, все остается. Все документы готовы, быстрый выход на сделку! ID объекта в нашей базе: 12611
    размещено: 25.11.2025
  • 3-к квартира, Главная, 17

    • 55 м2
    • 4/5 этаж
    • Состояние: хорошее
    4 800 000 ₽ (87300 ₽/м2)
    Объект № 195670. Продается светлая, просторная квартира в мкрн. Исток. До центра города 30 минут на машине. В шаговой доступности школа, садики, магазины. Квартира освобождена и ждет нового хозяина. Состояние жилое. Чистая продажа. ***Гарантийный сертификат «Защита собственности» по данному объекту в подарок***
    размещено: 21.11.2025 , обновлено: 28.11.2025
  • 3-к квартира, Комсомольская, 31 А

    • 62.1 м2
    • 5/5 этаж
    • Состояние: хорошее
    5 650 000 ₽ (91000 ₽/м2)
    Продается трехкомнатная квартира на Втузгородке. Отличная локация, близко к центру, в шаговой доступности УрФУ, ЮрАкадемия, садики, школы, остановки общественного транспорта. Дом стоит вдали от дорог, тихий спокойный двор, много зелени. Недалеко дендрарий с прудиком. Чистая приятная квартира по выгодной цене. Дом надежный, кирпичный, соседей не слышно. Просторные комнаты, раздельный санузел. Возможно сделать перепланировку по вашему вкусу. Квартира теплая, светлая, тихие соседи. Один совершеннолетний собственник, быстрый выход на сделку. Ждем вас на просмотр. ID объекта в нашей базе: 11156
    размещено: 08.09.2025 , обновлено: 1.12.2025
  • 3-к квартира, Малышева, 103/1

    • 55.9 м2
    • 5/5 этаж
    • Состояние: удовлетворительное
    5 800 000 ₽ (103800 ₽/м2)
    Продаётся просторная 3-комнатная квартира в самом сердце Екатеринбурга. Идеальное сочетание центрального расположения, уютного двора и огромного потенциала для создания современного жилья по вашему вкусу! Устали от долгих поездок на работу и обратно? Мечтаете жить в шаговой доступности от всего самого важного? Это предложение — именно то, что вы искали! ПРЕИМУЩЕСТВА ЛОКАЦИИ — ЖИТЬ В ЭПИЦЕНТРЕ СОБЫТИЙ: Абсолютный центр: Дом расположен на одной из главных и престижных улиц города — Малышева. Это исторический, благоустроенный район с развитой Транспортная доступность: У вашего порога — остановки всех видов транспорта (автобусы, трамваи, маршрутки). Вы за 5-10 минут доберётесь до Плотинки, ЦПКиО, Екатеринбург-Сити, Главного проспекта и ЖД вокзала. Любая точка города становится близка. Всё под рукой: В пешей доступности: супермаркеты, торговые центры, отделения всех крупных банков, рядом несколько поликлиник и медицинских центров, театры, кинотеатры, кафе, рестораны, галереи и парки. ОСОБЕННОСТИ КВАРТИРЫ И ЕЁ ПОТЕНЦИАЛ: Планировка: Классическая трёхкомнатная квартира с двумя изолированными комнатами и проходной гостиной — идеальна для семьи. Балкон: Из гостиной есть выход на балкон — ваша будущая зона для утреннего кофе или вечернего отдыха. Чистый лист: Квартира требует ремонта. Это не недостаток, а ваше главное преимущество! Вы сможете создать современное, стильное пространство с нуля, под свои потребности и вкус, без необходимости переплачивать за чужой, возможно, устаревший ремонт. Уникальная возможность перепланировки: В квартире есть две небольшие кладовки. Их легко можно объединить в просторную гардеробную комнату — мечта для порядка! Либо, присоединить к смежной комнате, увеличив её площадь и сделав её ещё уютнее. Вариантов много — проявите фантазию! Вид из окна: Квартира на 5 этаже с окнами и на оживлённую улицу Малышева (динамика города), и во двор (спокойствие и зелень). Вы сможете выбирать настроение! ИНФОРМАЦИЯ О ДОМЕ: Крепкий кирпичный дом советской постройки, что гарантирует прочность и хорошую звукоизоляцию. Спокойная, устоявшаяся атмосфера. Все соседи — давно знакомы. Коммуникации в отличном состоянии. Кому подойдёт эта квартира? Семьям с детьми, которые ценят время и хотят иметь всё лучшее в шаговой доступности (сады, школы, кружки). Парам, которые работают в центре и не хотят тратить жизнь на пробки. Инвесторам, понимающим ценность «квадратного метра» в таком месте и потенциал доходности от последующей сдачи. Творческим личностям, готовым воплотить в жизнь свой проект идеального жилья. Не упустите шанс стать владельцем квартиры в одном из лучших районов Екатеринбурга! Цена обсуждаема с мотивированными покупателями. Звоните прямо сейчас, чтобы назначить просмотр и оценить все возможности этой жемчужины в центре города! ID объекта в нашей базе: 11038
    размещено: 01.09.2025 , обновлено: 25.11.2025

    3-к квартира, Студенческая, 13

    • 54.8 м2
    • 1/5 этаж
    • Состояние: удовлетворительное
    4 990 000 ₽ (91100 ₽/м2)
    Продается 3-х комнатная квартира, по адресу: ул.Студенческая, д. 13, общей площадью – 54,8кв.м. РАЙОН: Кировский, мкр. Втузгородок. ДОМ: Материал стен – кирпич, с отличной звуко- и теплоизоляцией. Хорошие соседи, микрорайон спокойный. КВАРТИРА: Комнаты раздельные, правильной формы. Окна выходят на обе стороны дома. Совмещенный санузел. Две вместительные гардеробные. ИНФРАСТРУКТУРА: Расположение дома очень удобное! В шaгoвой доcтупнoсти: магaзины, aптeки, ocтановки, лицeй №130, пoликлиникa, баcсeйн, стaдион, двopeц культуры Урaлец, УрФУ, Уpaльcкая юридичecкая акадeмия, Инcтитут МЧС, Суворовcкое училищe, дeндpологический парк. ЮРИДИЧЕСКИЕ ХАРАКТЕРИСТИКИ: Один взрослый собственник, квартира без обременений. Идеальный вариант, как для проживания, так и для сдачи в аренду. ***Квартира подходит под коммерческую недвижимость. ID объекта в нашей базе: 8364
    размещено: 23.06.2025 , обновлено: 1.12.2025

    3-к квартира, Студенческая, 36/1

    • 59 м2
    • 1/5 этаж
    • Состояние: удовлетворительное
    5 400 000 ₽ (91500 ₽/м2)
    Объект № 192431. Трехкомнатная квартира с узаконенной перепланировкой. Кухня-гостиная, две смежные комнаты. Окна выходят на разные стороны. Окна пластиковые, поменяны радиаторы отопления, санузел в кафеле, сейф-дверь. Удобное расположение дома. Тихий зеленый двор. Рядом остановка общественного транспорта. Так же данный объект можно рассмотреть для перевода под коммерческую недвижимость. Соседние квартиры уже переведены. Торг уместен. Звоните, записывайтесь на просмотр. ***Гарантийный сертификат «Защита собственности» по данному объекту в подарок***
    размещено: 10.06.2025 , обновлено: 24.11.2025

Новостройки Екатеринбург, мкр-н. Втузгородок

Приоритет

Увеличивает просмотры в 3 раза

Ваше объявление показывается в списке выше обычных объявлений. подключить