Top.Mail.Ru
На Метре реклама - только нормальная. Никакого шок-контента.
Помогайте независимому ресурсу, как он помогает вам. Удачи!
Средняя цена м² · Новостройки
178 600 ₽/м²
↑ 6,88% за 12 мес.
Средняя цена м² · Вторичка
141 328 ₽/м²
↑ 11% за 12 мес.
Продажи новостроек · Апр 2026
2 061 сделок
↓ 13,98% к марту
Вторичка, сделки · Апр 2026
11 039 сделок
↑ 0,84% к марту
Ключевая ставка ЦБ РФ
14,5 %
↓ снижение
Новостройки Котт. посёлки Объявления Динамика цен и сделок

Продажа квартиры: Екатеринбург, ул. Боровая, 28 (Пионерский)

  • опубликовано 12.07.2022 , обновлено 20.01.2026
  • 21
Кадастровый номер:66:41:0702022:364
Рынок:вторичный
Количество комнат:3
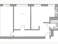
Общая площадь:54.9 м2
Жилая площадь:40 м2
Площадь кухни:5 м2
Этаж/Этажность дома:1 / 5
Санузел:совмещенный
Год постройки:1966
Состояние:удовлетворительное
Цена:
4 200 000
Объявление снято с публикации
Ипотека:Не подходит

Объект № 160511. Очень просторная трехкомнатная квартира. Планировка квартиры функциональная: три изолированные комнаты, одна из которых кухня-гостиная, окна в пластике, санузел в кафеле.

Все окна выходят на светлую сторону.
Дом кирпичный и очень теплый. В доме заменены все коммуникации, установлены счетчики.
Рядом хорошая транспортная развязка и остановки общественного транспорта. Близкое расположение магазинов Магнит и Пятёрочка, Красное Белое и Строительный двор и т. д.
Если есть своя квартира, расскажите об этом, возможно, сейчас у нас есть на нее покупатель.

Помогу с оформлением ипотеки.
Один совершеннолетний собственник, без долгов и обременений, документы в идеальном состоянии! Звоните, приходите на просмотр, оперативно покажем. ***Гарантийный сертификат «Защита собственности» по данному объекту в подарок***

Объявление снято с публикации

Ипотечный калькулятор

лет
%
Сумма кредита
4200000 ₽
Платеж
22 540 ₽

История предложений в этом доме

объявление снято с публикации в продаже комнат площадь этаж цена,
Екатеринбург, ул. Боровая, 28 (Пионерский) - фото квартиры 11 марта 2026 90 дн. 1 30.7 1/5 3 299 900
Екатеринбург, ул. Боровая, 28 (Пионерский) - фото квартиры 19 мая 2026 90 дн. 2 45.2 1/5 5 770 000
Екатеринбург, ул. Боровая, 28 (Пионерский) - фото квартиры 7 февраля 2026 90 дн. 1 30.7 1/5 3 300 000
Екатеринбург, ул. Боровая, 28 (Пионерский) - фото квартиры 18 октября 2024 90 дн. 1 29.2 1/5 3 090 000
Екатеринбург, ул. Боровая, 28 (Пионерский) - фото квартиры 2 октября 2024 90 дн. 1 29.2 1/5 3 140 000
Екатеринбург, ул. Боровая, 28 (Пионерский) - фото квартиры 19 января 2022 90 дн. 3 54.9 1/5 3 800 000
Екатеринбург, ул. Боровая, 28 (Пионерский) - фото квартиры 29 января 2022 90 дн. 3 54 1/5 3 087 900
Екатеринбург, ул. Боровая, 28 (Пионерский) - фото квартиры 7 марта 2021 90 дн. 2 44.8 3/5 3 300 000
Екатеринбург, ул. Боровая, 28 (Пионерский) - фото квартиры 21 февраля 2021 90 дн. 2 41.7 5/5 3 100 000
Екатеринбург, ул. Боровая, 28 (Пионерский) - фото квартиры 2 февраля 2022 90 дн. 2 41 4/5 3 090 000
Екатеринбург, ул. Боровая, 28 (Пионерский) - фото квартиры 7 апреля 2020 90 дн. 2 46.8 5/5 2 770 000
Екатеринбург, ул. Боровая, 28 (Пионерский) - фото квартиры 27 февраля 2020 90 дн. 2 45 5/5 2 900 000
Екатеринбург, ул. Боровая, 28 (Пионерский) - фото квартиры 27 ноября 2019 90 дн. 2 42 2/5 3 820 000

Похожие предложения о продаже квартир в Екатеринбурге (Пионерский)

  • 3-к квартира, Александровская, 3

    • 50.7 м2
    • 3/5 этаж
    • Состояние: хорошее
    4 900 000 ₽ (96600 ₽/м2)
    Продается уютная 3-х комнатная квартира в Пионерском поселке.Рядом вся инфраструктура, общественный транспорт, магазины.Планировка с смежными гостиной и спальней и отдельной спальней.Настоящий кирпичный дом (квартира очень теплая).Заменены стояки ХВС, ГВС и канализации, что очень важно.Установлены сейф-двери, стеклопакеты, натяжные потолки.В стоимость квартиры входит вся мебель и бытовая техника.Состояние квартиры хорошее. Заезжай и живи!Чистая продажа, торг уместен.Агентство сертифицировано, является действительным членомРоссийской гильдии риэлторов и Уральской палаты недвижимости.Каждая сделка агентства застрахована на 8 000 000 рублей.С нами надежно, безопасно и юридически безупречно. ID объекта в нашей базе: 1049
    размещено: 15.05.2026 , обновлено: 30.05.2026
  • 3-к квартира, Маяковского, 4

    • 57 м2
    • 1/5 этаж
    • Состояние: хорошее
    5 050 000 ₽ (88600 ₽/м2)
    Объект № 195695. В продаже хорошая трёхкомнатная квартира с отличной планировкой. Две кладовые, комнаты изолированы. Дом в микрорайоне Пионерский. Без долгов и без обременений, более пяти лет в собственности. Собственники совершеннолетние. Быстрый выход на сделку. ***Гарантийный сертификат «Защита собственности» по данному объекту в подарок***
    размещено: 19.11.2025 , обновлено: 29.05.2026
  • 3-к квартира, Данилы Зверева, 34

    • 56 м2
    • 3/4 этаж
    • Состояние: удовлетворительное
    5 100 000 ₽ (91100 ₽/м2)
    Продаётся 3-комнатная квартира, ул. Данилы Зверева, 34 (Пионерский, Екатеринбург).???? 5 100 000 ₽???? 56 м² (кухня 6 м²)???? Этаж: 3 из 4???? Дом: блочный (1963 г.)???? Санузел: совмещённый???? 1 балкон, окна на улицу???? Газ есть???? Мебель и кухня остаются???? Ремонт: требуется косметическийДокументы:- Чистая продажа без обременений- Единоличная собственность???? Торг уместен???? Свяжитесь для подробностей и показа ID объекта в нашей базе: 9032
    размещено: 18.10.2025 , обновлено: 22.05.2026
  • 3-к квартира, Камчатская, 45

    • 62.3 м2
    • 4/5 этаж
    • Состояние: удовлетворительное
    4 299 000 ₽ (69000 ₽/м2)
    Объект № 189054. Продам трехкомнатную квартиру в кирпичном доме в Пионерском районе по привлекательной цене. Комфортный 4 этаж. Комнаты изолированные на две стороны. Квартира подготовлена к ремонту, установлены новые пластиковые окна, батареи и входная дверь. В подъезде чистота, порядок, дружелюбные, спокойные соседи во всём подъезде. Дом находится в удобном, очень тихом месте, рядом магазин Пятерочка, Все инструменты, кафе. Квартира без залогов и обременений. Возможна покупка в ипотеку, с использованием различных сертификатов и материнского капитала. Быстрый выход на сделку. Приглашаем на просмотр ***Гарантийный сертификат «Защита собственности» по данному объекту в подарок***
    размещено: 16.01.2025 , обновлено: 18.05.2026

Новостройки Екатеринбург, мкр-н. Пионерский

Приоритет

Увеличивает просмотры в 3 раза

Ваше объявление показывается в списке выше обычных объявлений. подключить