На Метре реклама - только нормальная. Никакого шок-контента.
Помогайте независимому ресурсу, как он помогает вам. Удачи!
Новостройки Котт. посёлки Объявления Динамика цен и сделок

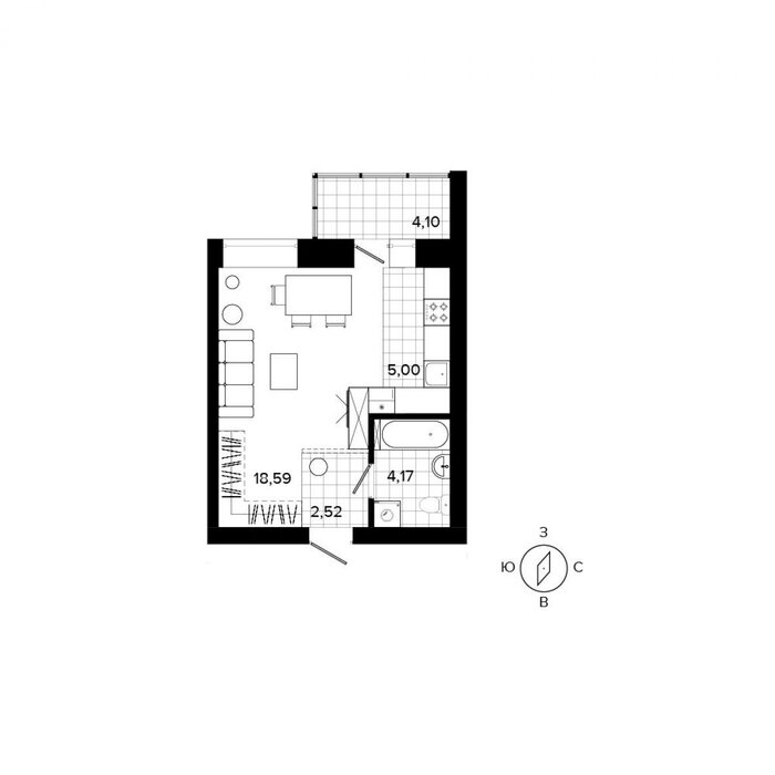
Продажа квартиры: г. Березовский, ул. Гвардейская, 3а (городской округ Березовский)

  • опубликовано 26.09.2022 , обновлено 13.10.2025
  • 11
  •  
Рынок:строящееся жилье
Срок сдачи:3 квартал 2022 года
Количество комнат:1
Общая площадь:31.2 м2
Жилая площадь:19.3 м2
Площадь кухни:5.6 м2
Этаж/Этажность дома:1 / 4
Отделка:чистовая отделка
Год постройки:2022
Балкон/лоджия:балкон
Цена:
5 880 650
Коммунальные платежи:оплачиваются отдельно
Ипотека:возможна

Cпособы пoкупки:
- семейная ипотека oт банкoв партнepов c возмoжноcтью пoлучить дoпoлнитeльную скидку, точную цифру утoчняйтe в oтделe продaж
- за наличный раcчeт, скидкa дo 20%
- Cкидкa учaстникaм CBО oт 5 дo 25 %
- скидка за сeмейную ипoтеку 3%
- Все cкидки cуммируютcя

1-комнатная квартира от застройщика в 4-х-этажном кирпичном доме.
Жилой комплекс "УЮТ-СИТИ" в городе Берёзовский.
Дом сдан!

О планировке:
Эргономичная планировка для любителей полезной площади!
Просторная жилая зона позволяет сделать планировку на свой вкус с выходом на лоджию.
С/у совмещенный, площадь позволяет разместить ванную, туалет с раковиной, а также стиральную машинку.
О доме:

- малоэтажное кирпичное строение
- комплекс оснащен собственной котельной
- наземная парковка для автомобилей
- функциональная детская площадка
- закрытый двор


О квартире:

- уютная и светлая
- очень функциональная кухня
- квартира с отделкой «под чистовую»
- возможность реализовать любой дизайн
- вместительный балкон


О локации:

Благоприятная экологическая обстановка вокруг, чистый воздух с постоянно развивающейся инфраструктурой. Поблизости находятся: школа № 5, детские сады № 23, 9, 4, оборудованная детская площадка, места для отдыха, продуктовые магазины «ПЯТЁРОЧКА», «МАГНИТ», «МАГНИТ КОСМЕТИК», «Вкусно», «Красное & Белое», салоны красоты, гос.поликлинника в шаговой доступности 10-15 минут пешком.

Остановка РЯДОМ с домом (маршруты № 1, 2, 5 по городу Березовскому и с декабря добавился 114 маршрут до Екатеринбург ).


О покупке:
Варианты приобретения:
- ипотека с господдержкой
- возможность приобретения со скидкой за наличный расчет
- traid-in для тех, кто хочет доверить продажу своей недвижимости профессионалам
- сертификаты (материнский, жилищный и т.д.), военная ипотека

Чистовая отделка от застройщика:
• Ламинат 33 класса
• Керамогранит 8-10 мм в коридоре
• Флизелиновые обои под покраску без рисунка либо с ненавязчивым рисунком
• Кафельная плитка или керамогранит в сан.узле с современным дизайном
• Мебель в сан.узле: унитаз компакт или инсталляция, акриловая ванна, раковина, тумба
• Смесители для раковины, смеситель для ванной со стойкой тропического душа
• Осветительные приборы: бра/люстры/точечные светильники
• Царговые межкомнатные двери


Приходите на просмотр! Поможем в оформлении сделки в кратчайшие сроки!Номер объекта: #5/544821/6529

Арсенал и К 125 — Кирилл

показать телефон

Ипотечный калькулятор

лет
%
Сумма кредита
5880650 ₽
Платеж
22 540 ₽

Актуальные предложения в ЖК «Уют Сити»

  • 1-к квартира, Золоторудная, 2

    • 37.6 м2
    • 2/3 этаж
    5 000 000 ₽ (133000 ₽/м2)
    О доме - малоэтажное кирпичное строение - 2016 года постройки - комплекс оснащен собственной котельной - наземная парковка для автомобилей - функциональная детская площадка - закрытый двор О квартире - уютная и теплая квартира БЕЗ ОБРЕМЕНЕНИЙ - окна выходят во двор - просторная кухня - жилая комната, удобно зонирована на спальню и детскую. - В ПОДАРОК ОСТАЕТСЯ: КУХОННЫЙ ГАРНИТУР, ПОСУДОМОЕЧНАЯ МАШИНА ,ХОЛОДИЛЬНИК , ШКАФ,ДВУХСПАЛЬНАЯ КРОВАТЬ О локации Благоприятная экологическая обстановка вокруг, чистый воздух с постоянно развивающейся инфраструктурой. Поблизости находятся: школа № 45,№5, детские сады № 23, 9, 4, оборудованная детская площадка, места для отдыха, продуктовые магазины «ПЯТЁРОЧКА», «МАГНИТ», «МАГНИТ КОСМЕТИК», «Вкусно»,«Фабрика качества», «Красное & Белое», салоны красоты, гос.поликлинника в шаговой доступности 10-15 минут пешком. Остановка РЯДОМ с домом (маршруты № 1, 2, 5 по городу Березовскому) + остановка до Екатеринбурга 20 минут пешком (маршруты № 166, 150, 150А, 114 и другие). Приходите на просмотр! Поможем приобрести данный вариант для покупки!!! Возможно, эта квартира ждет именно Вас!!! Номер объекта: #5/545892/6529
    размещено: 28.10.2025 , обновлено: 31.10.2025
  • 3-к квартира, Победы, 34, ЖК "Уют Сити" — 3 кв. 2025 г.

    • 77.7 м2
    • 4/4 этаж
    10 296 000 ₽ (132500 ₽/м2)
    Способы покупки: - семейная ипотека от банков партнеров с возможностью получить дополнительную скидку, точную цифру уточняйте в отделе продаж - за наличный расчет, скидка до 20% - Скидка участникам СВО от 5 до 25 % - скидка за семейную ипотеку 3% - Все скидки суммируются Об инфраструктуре Развлечения и досуг. Спортивный комплекс – для тех, кто ведет здоровый образ жизни. Канатная дорога, разнообразные качели и безопасные игровые площадки подарят незабываемые впечатления маленьким жителям района. Озеленение. Первая очередь, которая предполагает собой полный комплекс ландшафтного дизайна! Главное инфраструктурное звено микрорайона – Малахитовый Бульвар: интерактивный фонтан, игровые комплексы, зоны для тихого отдыха, амфитеатр. Жилой комплекс «УЮТ-СИТИ» создан для ценителей комфортной и спокойной жизни в экологически чистом, тихом месте, окруженном лесным массивом, вдали от суеты мегаполиса. Развитые транспортные развязки – 20 минут до Екатеринбурга. Концепция жилого комплекса предполагает застройку по европейскому типу: комплексы из трех- и четырехэтажных кирпичных домов с просторными благоустроенными закрытыми дворами и достаточным количеством парковочных мест, с развитой инфраструктурой, включающей детский сад, школу, спортивный комплекс, торговый центр. Номер объекта: #5/545771/6529
    размещено: 13.10.2025 , обновлено: 17.10.2025
  • 1-к квартира, Старателей, 15

    • 34 м2
    • 1/3 этаж
    • Состояние:
    3 100 000 ₽ (91200 ₽/м2)
    Объект № 194544. В продаже просторная однокомнатная квартира. 2018 года постройки, кирпичный теплый дом расположен в уютном и красивом районе г. Березовского. Редкое сочетание - тишина леса и городского комфорт: в шаговой доступности магазин, остановка, школа, детский сад. В квартире остается кухонный гарнитур, холодильник, стиральная машина, шкаф, кровать. Один взрослый собственник, чистая продажа. Приглашаем на просмотр. Обсуждается обмен на вашу недвижимость, помощь в одобрении ипотеки. ***Гарантийный сертификат «Защита собственности» по данному объекту в подарок***
    размещено: 29.09.2025 , обновлено: 23.10.2025
  • 3-к квартира, Александровский, 8

    • 82.4 м2
    • 4/4 этаж
    • Состояние:
    11 800 000 ₽ (143200 ₽/м2)
    Продам евро - трехкомнатную квартиру в жилом комплексе «Уют-Сити».Жилой комплекс расположен в экологически чистом, тихом месте, окруженном лесным массивом, вдали от суеты мегаполиса.Отличная планировка квартиры, кухня гостиная 19,7 кв.м с выходом на балкон, спальня 18,3 кв.м, с выходом на балкон, детская комната 13,3 кв.м, просторный коридор 12,7 кв.м, санузел раздельный. Общая площадь квартиры 82,4 кв.м.Квартира светлая, тёплая, выполнен качественный ремонт:По всей квартире сделан теплый пол, не будет холодно в межсезонье.Керамическая плитка фирмы KERAMA MARAZZI.Освещение, Итальянские дизайнерские светильники.Кухонный гарнитур фирмы Lazurit.Дорогостоящие встроенные купе.Квартира в отличном состоянии, заезжай, живи.Рядом есть все для комфортной жизни: школа, детский сад, физкультурно -оздоровительный комплекс, магазины, аптеки.Остановки общественного транспорта, в шаговой доступности.Концепция жилого комплекса «Уют-Сити» предполагает застройку по европейскому типу из трех- и четырехэтажных кирпичных домов с просторными благоустроенными закрытыми дворами и достаточным количеством парковочных мест.Звоните, записывайтесь на просмотр! Ждём вас!! ID объекта в нашей базе: 3008
    размещено: 24.09.2025 , обновлено: 20.10.2025
  • 2-к квартира, Победы, 32, ЖК "Уют Сити" — 3 кв. 2025 г.

    • 60 м2
    • 2/4 этаж
    7 842 000 ₽ (130700 ₽/м2)
    Способы покупки: - семейная ипотека от банков партнеров с возможностью получить дополнительную скидку, точную цифру уточняйте в отделе продаж - за наличный расчет, скидка до 20% - Скидка участникам СВО от 5 до 25 % - скидка за семейную ипотеку 3% - Все скидки суммируются Об инфраструктуре Развлечения и досуг. Спортивный комплекс – для тех, кто ведет здоровый образ жизни. Канатная дорога, разнообразные качели и безопасные игровые площадки подарят незабываемые впечатления маленьким жителям района. Озеленение. Первая очередь, которая предполагает собой полный комплекс ландшафтного дизайна! Главное инфраструктурное звено микрорайона – Малахитовый Бульвар: интерактивный фонтан, игровые комплексы, зоны для тихого отдыха, амфитеатр. Жилой комплекс «УЮТ-СИТИ» создан для ценителей комфортной и спокойной жизни в экологически чистом, тихом месте, окруженном лесным массивом, вдали от суеты мегаполиса. Развитые транспортные развязки – 20 минут до Екатеринбурга. Концепция жилого комплекса предполагает застройку по европейскому типу: комплексы из трех- и четырехэтажных кирпичных домов с просторными благоустроенными закрытыми дворами и достаточным количеством парковочных мест, с развитой инфраструктурой, включающей детский сад, школу, спортивный комплекс, торговый центр.Номер объекта: #5/545572/6529
    размещено: 23.09.2025 , обновлено: 29.10.2025

    1-к квартира, Старателей, 7

    • 34.8 м2
    • 4/4 этаж
    4 250 000 ₽ (122100 ₽/м2)
    О доме - малоэтажное кирпичное строение - комплекс оснащен собственной котельной - наземная парковка для автомобилей - функциональная детская площадка - закрытый двор О квартире - практичная планировка с большой кухней-гостиной - уютная,светлая и теплая квартира - окна выходят на западную сторону - квартира уже с ремонтом и готова для проживания - новому владельцу в подарок остается: кухонный гарнитур - без обременений О локации Благоприятная экологическая обстановка вокруг, чистый воздух с постоянно развивающейся инфраструктурой. Поблизости находятся: школа № 5, детские сады № 23, 9, 4, оборудованная детская площадка, места для отдыха, продуктовые магазины «ПЯТЁРОЧКА», «МАГНИТ», «МАГНИТ КОСМЕТИК», «Красное & Белое», салоны красоты, гос.поликлинника в шаговой доступности 10-15 минут пешком. Остановка РЯДОМ с домом (маршруты № 1, 2, 5 по городу Березовскому и с декабря добавился 114 маршрут до Екатеринбурга ). Приходите на просмотр! Поможем в оформлении сделки в кратчайшие сроки! Не упустите свой шанс приобрести квартиру в постоянно развивающемся новом районе г. Березовский "Уют-Сити", где цены на недвижимость всегда увеличиваются!Номер объекта: #5/545890/6529
    размещено: 22.09.2025 , обновлено: 28.10.2025

    1-к квартира, Победы, 5Б, ЖК "Уют Сити" — 3 кв. 2025 г.

    • 31.6 м2
    • 1/4 этаж
    4 194 000 ₽ (132700 ₽/м2)
    Способы покупки: - семейная ипотека от банков партнеров с возможностью получить дополнительную скидку, точную цифру уточняйте в отделе продаж - за наличный расчет, скидка до 20% - Скидка участникам СВО от 5 до 25 % - скидка за семейную ипотеку 3% - Все скидки суммируются Об инфраструктуре Развлечения и досуг. Спортивный комплекс – для тех, кто ведет здоровый образ жизни. Канатная дорога, разнообразные качели и безопасные игровые площадки подарят незабываемые впечатления маленьким жителям района. Озеленение. Первая очередь, которая предполагает собой полный комплекс ландшафтного дизайна! Главное инфраструктурное звено микрорайона – Малахитовый Бульвар: интерактивный фонтан, игровые комплексы, зоны для тихого отдыха, амфитеатр. Жилой комплекс «УЮТ-СИТИ» создан для ценителей комфортной и спокойной жизни в экологически чистом, тихом месте, окруженном лесным массивом, вдали от суеты мегаполиса. Развитые транспортные развязки – 20 минут до Екатеринбурга. Концепция жилого комплекса предполагает застройку по европейскому типу: комплексы из трех- и четырехэтажных кирпичных домов с просторными благоустроенными закрытыми дворами и достаточным количеством парковочных мест, с развитой инфраструктурой, включающей детский сад, школу, спортивный комплекс, торговый центр. Номер объекта: #5/545751/6529
    размещено: 11.09.2025 , обновлено: 20.10.2025

    1-к квартира, Победы, 5б, 34, ЖК "Уют Сити" — 3 кв. 2025 г.

    • 48.3 м2
    • 2/4 этаж
    6 641 250 ₽ (137500 ₽/м2)
    Способы покупки: - семейная ипотека от банков партнеров с возможностью получить дополнительную скидку, точную цифру уточняйте в отделе продаж - за наличный расчет, скидка до 20% - Скидка участникам СВО от 5 до 25 % - скидка за семейную ипотеку 3% - Все скидки суммируются Об инфраструктуре Развлечения и досуг. Спортивный комплекс – для тех, кто ведет здоровый образ жизни. Канатная дорога, разнообразные качели и безопасные игровые площадки подарят незабываемые впечатления маленьким жителям района. Озеленение. Первая очередь, которая предполагает собой полный комплекс ландшафтного дизайна! Главное инфраструктурное звено микрорайона – Малахитовый Бульвар: интерактивный фонтан, игровые комплексы, зоны для тихого отдыха, амфитеатр. Жилой комплекс «УЮТ-СИТИ» создан для ценителей комфортной и спокойной жизни в экологически чистом, тихом месте, окруженном лесным массивом, вдали от суеты мегаполиса. Развитые транспортные развязки – 20 минут до Екатеринбурга. Концепция жилого комплекса предполагает застройку по европейскому типу: комплексы из трех- и четырехэтажных кирпичных домов с просторными благоустроенными закрытыми дворами и достаточным количеством парковочных мест, с развитой инфраструктурой, включающей детский сад, школу, спортивный комплекс, торговый центр. Номер объекта: #5/545861/6529
    размещено: 11.09.2025 , обновлено: 14.10.2025

    1-к квартира, Победы, 5б, 34, ЖК "Уют Сити" — 3 кв. 2025 г.

    • 40.8 м2
    • 1/4 этаж
    5 875 200 ₽ (144000 ₽/м2)
    Способы покупки: - семейная ипотека от банков партнеров с возможностью получить дополнительную скидку, точную цифру уточняйте в отделе продаж - за наличный расчет, скидка до 20% - Скидка участникам СВО от 5 до 25 % - скидка за семейную ипотеку 3% - Все скидки суммируются Об инфраструктуре Развлечения и досуг. Спортивный комплекс – для тех, кто ведет здоровый образ жизни. Канатная дорога, разнообразные качели и безопасные игровые площадки подарят незабываемые впечатления маленьким жителям района. Озеленение. Первая очередь, которая предполагает собой полный комплекс ландшафтного дизайна! Главное инфраструктурное звено микрорайона – Малахитовый Бульвар: интерактивный фонтан, игровые комплексы, зоны для тихого отдыха, амфитеатр. Жилой комплекс «УЮТ-СИТИ» создан для ценителей комфортной и спокойной жизни в экологически чистом, тихом месте, окруженном лесным массивом, вдали от суеты мегаполиса. Развитые транспортные развязки – 20 минут до Екатеринбурга. Концепция жилого комплекса предполагает застройку по европейскому типу: комплексы из трех- и четырехэтажных кирпичных домов с просторными благоустроенными закрытыми дворами и достаточным количеством парковочных мест, с развитой инфраструктурой, включающей детский сад, школу, спортивный комплекс, торговый центр. Номер объекта: #5/545854/6529
    размещено: 11.09.2025 , обновлено: 7.10.2025

    2-к квартира, Победы, 5б, 34, ЖК "Уют Сити" — 3 кв. 2025 г.

    • 67.8 м2
    • 1/4 этаж
    8 712 300 ₽ (128500 ₽/м2)
    Способы покупки: - семейная ипотека от банков партнеров с возможностью получить дополнительную скидку, точную цифру уточняйте в отделе продаж - за наличный расчет, скидка до 20% - Скидка участникам СВО от 5 до 25 % - скидка за семейную ипотеку 3% - Все скидки суммируются Об инфраструктуре Развлечения и досуг. Спортивный комплекс – для тех, кто ведет здоровый образ жизни. Канатная дорога, разнообразные качели и безопасные игровые площадки подарят незабываемые впечатления маленьким жителям района. Озеленение. Первая очередь, которая предполагает собой полный комплекс ландшафтного дизайна! Главное инфраструктурное звено микрорайона – Малахитовый Бульвар: интерактивный фонтан, игровые комплексы, зоны для тихого отдыха, амфитеатр. Жилой комплекс «УЮТ-СИТИ» создан для ценителей комфортной и спокойной жизни в экологически чистом, тихом месте, окруженном лесным массивом, вдали от суеты мегаполиса. Развитые транспортные развязки – 20 минут до Екатеринбурга. Концепция жилого комплекса предполагает застройку по европейскому типу: комплексы из трех- и четырехэтажных кирпичных домов с просторными благоустроенными закрытыми дворами и достаточным количеством парковочных мест, с развитой инфраструктурой, включающей детский сад, школу, спортивный комплекс, торговый центр. Номер объекта: #5/545851/6529
    размещено: 11.09.2025 , обновлено: 17.10.2025

    3-к квартира, Победы, 5б, 34, ЖК "Уют Сити" — 3 кв. 2025 г.

    • 83.9 м2
    • 1/4 этаж
    10 487 500 ₽ (125000 ₽/м2)
    Способы покупки: - семейная ипотека от банков партнеров с возможностью получить дополнительную скидку, точную цифру уточняйте в отделе продаж - за наличный расчет, скидка до 20% - Скидка участникам СВО от 5 до 25 % - скидка за семейную ипотеку 3% - Все скидки суммируются Об инфраструктуре Развлечения и досуг. Спортивный комплекс – для тех, кто ведет здоровый образ жизни. Канатная дорога, разнообразные качели и безопасные игровые площадки подарят незабываемые впечатления маленьким жителям района. Озеленение. Первая очередь, которая предполагает собой полный комплекс ландшафтного дизайна! Главное инфраструктурное звено микрорайона – Малахитовый Бульвар: интерактивный фонтан, игровые комплексы, зоны для тихого отдыха, амфитеатр. Жилой комплекс «УЮТ-СИТИ» создан для ценителей комфортной и спокойной жизни в экологически чистом, тихом месте, окруженном лесным массивом, вдали от суеты мегаполиса. Развитые транспортные развязки – 20 минут до Екатеринбурга. Концепция жилого комплекса предполагает застройку по европейскому типу: комплексы из трех- и четырехэтажных кирпичных домов с просторными благоустроенными закрытыми дворами и достаточным количеством парковочных мест, с развитой инфраструктурой, включающей детский сад, школу, спортивный комплекс, торговый центр. Номер объекта: #5/545842/6529
    размещено: 11.09.2025 , обновлено: 7.10.2025

    1-к квартира, Победы, 5б, 34, ЖК "Уют Сити" — 3 кв. 2025 г.

    • 41.6 м2
    • 3/4 этаж
    6 156 800 ₽ (148000 ₽/м2)
    Способы покупки: - семейная ипотека от банков партнеров с возможностью получить дополнительную скидку, точную цифру уточняйте в отделе продаж - за наличный расчет, скидка до 20% - Скидка участникам СВО от 5 до 25 % - скидка за семейную ипотеку 3% - Все скидки суммируются Об инфраструктуре Развлечения и досуг. Спортивный комплекс – для тех, кто ведет здоровый образ жизни. Канатная дорога, разнообразные качели и безопасные игровые площадки подарят незабываемые впечатления маленьким жителям района. Озеленение. Первая очередь, которая предполагает собой полный комплекс ландшафтного дизайна! Главное инфраструктурное звено микрорайона – Малахитовый Бульвар: интерактивный фонтан, игровые комплексы, зоны для тихого отдыха, амфитеатр. Жилой комплекс «УЮТ-СИТИ» создан для ценителей комфортной и спокойной жизни в экологически чистом, тихом месте, окруженном лесным массивом, вдали от суеты мегаполиса. Развитые транспортные развязки – 20 минут до Екатеринбурга. Концепция жилого комплекса предполагает застройку по европейскому типу: комплексы из трех- и четырехэтажных кирпичных домов с просторными благоустроенными закрытыми дворами и достаточным количеством парковочных мест, с развитой инфраструктурой, включающей детский сад, школу, спортивный комплекс, торговый центр. Номер объекта: #5/545818/6529
    размещено: 11.09.2025 , обновлено: 17.10.2025

    1-к квартира, Победы, 5б, 34, ЖК "Уют Сити" — 3 кв. 2025 г.

    • 41.2 м2
    • 2/4 этаж
    6 097 600 ₽ (148000 ₽/м2)
    Способы покупки: - семейная ипотека от банков партнеров с возможностью получить дополнительную скидку, точную цифру уточняйте в отделе продаж - за наличный расчет, скидка до 20% - Скидка участникам СВО от 5 до 25 % - скидка за семейную ипотеку 3% - Все скидки суммируются Об инфраструктуре Развлечения и досуг. Спортивный комплекс – для тех, кто ведет здоровый образ жизни. Канатная дорога, разнообразные качели и безопасные игровые площадки подарят незабываемые впечатления маленьким жителям района. Озеленение. Первая очередь, которая предполагает собой полный комплекс ландшафтного дизайна! Главное инфраструктурное звено микрорайона – Малахитовый Бульвар: интерактивный фонтан, игровые комплексы, зоны для тихого отдыха, амфитеатр. Жилой комплекс «УЮТ-СИТИ» создан для ценителей комфортной и спокойной жизни в экологически чистом, тихом месте, окруженном лесным массивом, вдали от суеты мегаполиса. Развитые транспортные развязки – 20 минут до Екатеринбурга. Концепция жилого комплекса предполагает застройку по европейскому типу: комплексы из трех- и четырехэтажных кирпичных домов с просторными благоустроенными закрытыми дворами и достаточным количеством парковочных мест, с развитой инфраструктурой, включающей детский сад, школу, спортивный комплекс, торговый центр. Номер объекта: #5/545782/6529
    размещено: 11.09.2025 , обновлено: 29.10.2025

    2-к квартира, Победы, 5б, 34, ЖК "Уют Сити" — 3 кв. 2025 г.

    • 86 м2
    • 4/4 этаж
    10 629 600 ₽ (123600 ₽/м2)
    Способы покупки: - семейная ипотека от банков партнеров с возможностью получить дополнительную скидку, точную цифру уточняйте в отделе продаж - за наличный расчет, скидка до 20% - Скидка участникам СВО от 5 до 25 % - скидка за семейную ипотеку 3% - Все скидки суммируются Об инфраструктуре Развлечения и досуг. Спортивный комплекс – для тех, кто ведет здоровый образ жизни. Канатная дорога, разнообразные качели и безопасные игровые площадки подарят незабываемые впечатления маленьким жителям района. Озеленение. Первая очередь, которая предполагает собой полный комплекс ландшафтного дизайна! Главное инфраструктурное звено микрорайона – Малахитовый Бульвар: интерактивный фонтан, игровые комплексы, зоны для тихого отдыха, амфитеатр. Жилой комплекс «УЮТ-СИТИ» создан для ценителей комфортной и спокойной жизни в экологически чистом, тихом месте, окруженном лесным массивом, вдали от суеты мегаполиса. Развитые транспортные развязки – 20 минут до Екатеринбурга. Концепция жилого комплекса предполагает застройку по европейскому типу: комплексы из трех- и четырехэтажных кирпичных домов с просторными благоустроенными закрытыми дворами и достаточным количеством парковочных мест, с развитой инфраструктурой, включающей детский сад, школу, спортивный комплекс, торговый центр. Номер объекта: #5/545772/6529
    размещено: 11.09.2025 , обновлено: 22.10.2025

    4-к квартира, Победы, 5б, 34, ЖК "Уют Сити" — 3 кв. 2025 г.

    • 102.9 м2
    • 4/4 этаж
    12 090 750 ₽ (117500 ₽/м2)
    Способы покупки: - семейная ипотека от банков партнеров с возможностью получить дополнительную скидку, точную цифру уточняйте в отделе продаж - за наличный расчет, скидка до 20% - Скидка участникам СВО от 5 до 25 % - скидка за семейную ипотеку 3% - Все скидки суммируются Об инфраструктуре Развлечения и досуг. Спортивный комплекс – для тех, кто ведет здоровый образ жизни. Канатная дорога, разнообразные качели и безопасные игровые площадки подарят незабываемые впечатления маленьким жителям района. Озеленение. Первая очередь, которая предполагает собой полный комплекс ландшафтного дизайна! Главное инфраструктурное звено микрорайона – Малахитовый Бульвар: интерактивный фонтан, игровые комплексы, зоны для тихого отдыха, амфитеатр. Жилой комплекс «УЮТ-СИТИ» создан для ценителей комфортной и спокойной жизни в экологически чистом, тихом месте, окруженном лесным массивом, вдали от суеты мегаполиса. Развитые транспортные развязки – 20 минут до Екатеринбурга. Концепция жилого комплекса предполагает застройку по европейскому типу: комплексы из трех- и четырехэтажных кирпичных домов с просторными благоустроенными закрытыми дворами и достаточным количеством парковочных мест, с развитой инфраструктурой, включающей детский сад, школу, спортивный комплекс, торговый центр. Номер объекта: #5/545769/6529
    размещено: 11.09.2025 , обновлено: 7.10.2025

    2-к квартира, Победы, 5б, 34, ЖК "Уют Сити" — 3 кв. 2025 г.

    • 86.1 м2
    • 3/4 этаж
    10 744 350 ₽ (124800 ₽/м2)
    Способы покупки: - семейная ипотека от банков партнеров с возможностью получить дополнительную скидку, точную цифру уточняйте в отделе продаж - за наличный расчет, скидка до 20% - Скидка участникам СВО от 5 до 25 % - скидка за семейную ипотеку 3% - Все скидки суммируются Об инфраструктуре Развлечения и досуг. Спортивный комплекс – для тех, кто ведет здоровый образ жизни. Канатная дорога, разнообразные качели и безопасные игровые площадки подарят незабываемые впечатления маленьким жителям района. Озеленение. Первая очередь, которая предполагает собой полный комплекс ландшафтного дизайна! Главное инфраструктурное звено микрорайона – Малахитовый Бульвар: интерактивный фонтан, игровые комплексы, зоны для тихого отдыха, амфитеатр. Жилой комплекс «УЮТ-СИТИ» создан для ценителей комфортной и спокойной жизни в экологически чистом, тихом месте, окруженном лесным массивом, вдали от суеты мегаполиса. Развитые транспортные развязки – 20 минут до Екатеринбурга. Концепция жилого комплекса предполагает застройку по европейскому типу: комплексы из трех- и четырехэтажных кирпичных домов с просторными благоустроенными закрытыми дворами и достаточным количеством парковочных мест, с развитой инфраструктурой, включающей детский сад, школу, спортивный комплекс, торговый центр. Номер объекта: #5/545768/6529
    размещено: 11.09.2025 , обновлено: 23.10.2025

    2-к квартира, Победы, 5б, 34, ЖК "Уют Сити" — 3 кв. 2025 г.

    • 52.5 м2
    • 3/4 этаж
    7 134 750 ₽ (135900 ₽/м2)
    Способы покупки: - семейная ипотека от банков партнеров с возможностью получить дополнительную скидку, точную цифру уточняйте в отделе продаж - за наличный расчет, скидка до 20% - Скидка участникам СВО от 5 до 25 % - скидка за семейную ипотеку 3% - Все скидки суммируются Об инфраструктуре Развлечения и досуг. Спортивный комплекс – для тех, кто ведет здоровый образ жизни. Канатная дорога, разнообразные качели и безопасные игровые площадки подарят незабываемые впечатления маленьким жителям района. Озеленение. Первая очередь, которая предполагает собой полный комплекс ландшафтного дизайна! Главное инфраструктурное звено микрорайона – Малахитовый Бульвар: интерактивный фонтан, игровые комплексы, зоны для тихого отдыха, амфитеатр. Жилой комплекс «УЮТ-СИТИ» создан для ценителей комфортной и спокойной жизни в экологически чистом, тихом месте, окруженном лесным массивом, вдали от суеты мегаполиса. Развитые транспортные развязки – 20 минут до Екатеринбурга. Концепция жилого комплекса предполагает застройку по европейскому типу: комплексы из трех- и четырехэтажных кирпичных домов с просторными благоустроенными закрытыми дворами и достаточным количеством парковочных мест, с развитой инфраструктурой, включающей детский сад, школу, спортивный комплекс, торговый центр. Номер объекта: #5/545764/6529
    размещено: 11.09.2025 , обновлено: 7.10.2025

    2-к квартира, Победы, 5б, 34, ЖК "Уют Сити" — 3 кв. 2025 г.

    • 86.1 м2
    • 2/4 этаж
    10 719 450 ₽ (124500 ₽/м2)
    Способы покупки: - семейная ипотека от банков партнеров с возможностью получить дополнительную скидку, точную цифру уточняйте в отделе продаж - за наличный расчет, скидка до 20% - Скидка участникам СВО от 5 до 25 % - скидка за семейную ипотеку 3% - Все скидки суммируются Об инфраструктуре Развлечения и досуг. Спортивный комплекс – для тех, кто ведет здоровый образ жизни. Канатная дорога, разнообразные качели и безопасные игровые площадки подарят незабываемые впечатления маленьким жителям района. Озеленение. Первая очередь, которая предполагает собой полный комплекс ландшафтного дизайна! Главное инфраструктурное звено микрорайона – Малахитовый Бульвар: интерактивный фонтан, игровые комплексы, зоны для тихого отдыха, амфитеатр. Жилой комплекс «УЮТ-СИТИ» создан для ценителей комфортной и спокойной жизни в экологически чистом, тихом месте, окруженном лесным массивом, вдали от суеты мегаполиса. Развитые транспортные развязки – 20 минут до Екатеринбурга. Концепция жилого комплекса предполагает застройку по европейскому типу: комплексы из трех- и четырехэтажных кирпичных домов с просторными благоустроенными закрытыми дворами и достаточным количеством парковочных мест, с развитой инфраструктурой, включающей детский сад, школу, спортивный комплекс, торговый центр. Номер объекта: #5/545758/6529
    размещено: 11.09.2025 , обновлено: 17.10.2025

    1-к квартира, Победы, 5б, 34, ЖК "Уют Сити" — 3 кв. 2025 г.

    • 52.1 м2
    • 2/4 этаж
    7 081 000 ₽ (135900 ₽/м2)
    Способы покупки: - семейная ипотека от банков партнеров с возможностью получить дополнительную скидку, точную цифру уточняйте в отделе продаж - за наличный расчет, скидка до 20% - Скидка участникам СВО от 5 до 25 % - скидка за семейную ипотеку 3% - Все скидки суммируются Об инфраструктуре Развлечения и досуг. Спортивный комплекс – для тех, кто ведет здоровый образ жизни. Канатная дорога, разнообразные качели и безопасные игровые площадки подарят незабываемые впечатления маленьким жителям района. Озеленение. Первая очередь, которая предполагает собой полный комплекс ландшафтного дизайна! Главное инфраструктурное звено микрорайона – Малахитовый Бульвар: интерактивный фонтан, игровые комплексы, зоны для тихого отдыха, амфитеатр. Жилой комплекс «УЮТ-СИТИ» создан для ценителей комфортной и спокойной жизни в экологически чистом, тихом месте, окруженном лесным массивом, вдали от суеты мегаполиса. Развитые транспортные развязки – 20 минут до Екатеринбурга. Концепция жилого комплекса предполагает застройку по европейскому типу: комплексы из трех- и четырехэтажных кирпичных домов с просторными благоустроенными закрытыми дворами и достаточным количеством парковочных мест, с развитой инфраструктурой, включающей детский сад, школу, спортивный комплекс, торговый центр. Номер объекта: #5/545756/6529
    размещено: 11.09.2025 , обновлено: 18.10.2025

    4-к квартира, Победы, 5б, 34, ЖК "Уют Сити" — 3 кв. 2025 г.

    • 102.5 м2
    • 2/4 этаж
    12 136 000 ₽ (118400 ₽/м2)
    Способы покупки: - семейная ипотека от банков партнеров с возможностью получить дополнительную скидку, точную цифру уточняйте в отделе продаж - за наличный расчет, скидка до 20% - Скидка участникам СВО от 5 до 25 % - скидка за семейную ипотеку 3% - Все скидки суммируются Об инфраструктуре Развлечения и досуг. Спортивный комплекс – для тех, кто ведет здоровый образ жизни. Канатная дорога, разнообразные качели и безопасные игровые площадки подарят незабываемые впечатления маленьким жителям района. Озеленение. Первая очередь, которая предполагает собой полный комплекс ландшафтного дизайна! Главное инфраструктурное звено микрорайона – Малахитовый Бульвар: интерактивный фонтан, игровые комплексы, зоны для тихого отдыха, амфитеатр. Жилой комплекс «УЮТ-СИТИ» создан для ценителей комфортной и спокойной жизни в экологически чистом, тихом месте, окруженном лесным массивом, вдали от суеты мегаполиса. Развитые транспортные развязки – 20 минут до Екатеринбурга. Концепция жилого комплекса предполагает застройку по европейскому типу: комплексы из трех- и четырехэтажных кирпичных домов с просторными благоустроенными закрытыми дворами и достаточным количеством парковочных мест, с развитой инфраструктурой, включающей детский сад, школу, спортивный комплекс, торговый центр. Номер объекта: #5/545755/6529
    размещено: 11.09.2025 , обновлено: 7.10.2025

    3-к квартира, Победы, 5б, 34, ЖК "Уют Сити" — 3 кв. 2025 г.

    • 86.1 м2
    • 1/4 этаж
    9 600 150 ₽ (111500 ₽/м2)
    Способы покупки: - семейная ипотека от банков партнеров с возможностью получить дополнительную скидку, точную цифру уточняйте в отделе продаж - за наличный расчет, скидка до 20% - Скидка участникам СВО от 5 до 25 % - скидка за семейную ипотеку 3% - Все скидки суммируются Об инфраструктуре Развлечения и досуг. Спортивный комплекс – для тех, кто ведет здоровый образ жизни. Канатная дорога, разнообразные качели и безопасные игровые площадки подарят незабываемые впечатления маленьким жителям района. Озеленение. Первая очередь, которая предполагает собой полный комплекс ландшафтного дизайна! Главное инфраструктурное звено микрорайона – Малахитовый Бульвар: интерактивный фонтан, игровые комплексы, зоны для тихого отдыха, амфитеатр. Жилой комплекс «УЮТ-СИТИ» создан для ценителей комфортной и спокойной жизни в экологически чистом, тихом месте, окруженном лесным массивом, вдали от суеты мегаполиса. Развитые транспортные развязки – 20 минут до Екатеринбурга. Концепция жилого комплекса предполагает застройку по европейскому типу: комплексы из трех- и четырехэтажных кирпичных домов с просторными благоустроенными закрытыми дворами и достаточным количеством парковочных мест, с развитой инфраструктурой, включающей детский сад, школу, спортивный комплекс, торговый центр. Номер объекта: #5/545753/6529
    размещено: 11.09.2025 , обновлено: 7.10.2025

    2-к квартира, Победы, 5, 32 — 3 кв. 2025 г.

    • 77.9 м2
    • 3/4 этаж
    9 781 903 ₽ (125600 ₽/м2)
    Способы покупки: - семейная ипотека от банков партнеров с возможностью получить дополнительную скидку, точную цифру уточняйте в отделе продаж - за наличный расчет, скидка до 20% - Скидка участникам СВО от 5 до 25 % - скидка за семейную ипотеку 3% - Все скидки суммируются Об инфраструктуре Развлечения и досуг. Спортивный комплекс – для тех, кто ведет здоровый образ жизни. Канатная дорога, разнообразные качели и безопасные игровые площадки подарят незабываемые впечатления маленьким жителям района. Озеленение. Первая очередь, которая предполагает собой полный комплекс ландшафтного дизайна! Главное инфраструктурное звено микрорайона – Малахитовый Бульвар: интерактивный фонтан, игровые комплексы, зоны для тихого отдыха, амфитеатр. Жилой комплекс «УЮТ-СИТИ» создан для ценителей комфортной и спокойной жизни в экологически чистом, тихом месте, окруженном лесным массивом, вдали от суеты мегаполиса. Развитые транспортные развязки – 20 минут до Екатеринбурга. Концепция жилого комплекса предполагает застройку по европейскому типу: комплексы из трех- и четырехэтажных кирпичных домов с просторными благоустроенными закрытыми дворами и достаточным количеством парковочных мест, с развитой инфраструктурой, включающей детский сад, школу, спортивный комплекс, торговый центр.Номер объекта: #5/545713/6529
    размещено: 11.09.2025 , обновлено: 12.09.2025

    1-к квартира, Победы, 5, 32 — 3 кв. 2025 г.

    • 52.5 м2
    • 3/4 этаж
    7 134 750 ₽ (135900 ₽/м2)
    Способы покупки: - семейная ипотека от банков партнеров с возможностью получить дополнительную скидку, точную цифру уточняйте в отделе продаж - за наличный расчет, скидка до 20% - Скидка участникам СВО от 5 до 25 % - скидка за семейную ипотеку 3% - Все скидки суммируются Об инфраструктуре Развлечения и досуг. Спортивный комплекс – для тех, кто ведет здоровый образ жизни. Канатная дорога, разнообразные качели и безопасные игровые площадки подарят незабываемые впечатления маленьким жителям района. Озеленение. Первая очередь, которая предполагает собой полный комплекс ландшафтного дизайна! Главное инфраструктурное звено микрорайона – Малахитовый Бульвар: интерактивный фонтан, игровые комплексы, зоны для тихого отдыха, амфитеатр. Жилой комплекс «УЮТ-СИТИ» создан для ценителей комфортной и спокойной жизни в экологически чистом, тихом месте, окруженном лесным массивом, вдали от суеты мегаполиса. Развитые транспортные развязки – 20 минут до Екатеринбурга. Концепция жилого комплекса предполагает застройку по европейскому типу: комплексы из трех- и четырехэтажных кирпичных домов с просторными благоустроенными закрытыми дворами и достаточным количеством парковочных мест, с развитой инфраструктурой, включающей детский сад, школу, спортивный комплекс, торговый центр.Номер объекта: #5/545711/6529
    размещено: 11.09.2025

    3-к квартира, Победы, 5, 32 — 3 кв. 2025 г.

    • 102.4 м2
    • 3/4 этаж
    11 919 360 ₽ (116400 ₽/м2)
    Способы покупки: - семейная ипотека от банков партнеров с возможностью получить дополнительную скидку, точную цифру уточняйте в отделе продаж - за наличный расчет, скидка до 20% - Скидка участникам СВО от 5 до 25 % - скидка за семейную ипотеку 3% - Все скидки суммируются Об инфраструктуре Развлечения и досуг. Спортивный комплекс – для тех, кто ведет здоровый образ жизни. Канатная дорога, разнообразные качели и безопасные игровые площадки подарят незабываемые впечатления маленьким жителям района. Озеленение. Первая очередь, которая предполагает собой полный комплекс ландшафтного дизайна! Главное инфраструктурное звено микрорайона – Малахитовый Бульвар: интерактивный фонтан, игровые комплексы, зоны для тихого отдыха, амфитеатр. Жилой комплекс «УЮТ-СИТИ» создан для ценителей комфортной и спокойной жизни в экологически чистом, тихом месте, окруженном лесным массивом, вдали от суеты мегаполиса. Развитые транспортные развязки – 20 минут до Екатеринбурга. Концепция жилого комплекса предполагает застройку по европейскому типу: комплексы из трех- и четырехэтажных кирпичных домов с просторными благоустроенными закрытыми дворами и достаточным количеством парковочных мест, с развитой инфраструктурой, включающей детский сад, школу, спортивный комплекс, торговый центр.Номер объекта: #5/545709/6529
    размещено: 11.09.2025 , обновлено: 15.10.2025

    3-к квартира, Победы, 5, 32 — 3 кв. 2025 г.

    • 86.3 м2
    • 4/4 этаж
    10 632 160 ₽ (123200 ₽/м2)
    Способы покупки: - семейная ипотека от банков партнеров с возможностью получить дополнительную скидку, точную цифру уточняйте в отделе продаж - за наличный расчет, скидка до 20% - Скидка участникам СВО от 5 до 25 % - скидка за семейную ипотеку 3% - Все скидки суммируются Об инфраструктуре Развлечения и досуг. Спортивный комплекс – для тех, кто ведет здоровый образ жизни. Канатная дорога, разнообразные качели и безопасные игровые площадки подарят незабываемые впечатления маленьким жителям района. Озеленение. Первая очередь, которая предполагает собой полный комплекс ландшафтного дизайна! Главное инфраструктурное звено микрорайона – Малахитовый Бульвар: интерактивный фонтан, игровые комплексы, зоны для тихого отдыха, амфитеатр. Жилой комплекс «УЮТ-СИТИ» создан для ценителей комфортной и спокойной жизни в экологически чистом, тихом месте, окруженном лесным массивом, вдали от суеты мегаполиса. Развитые транспортные развязки – 20 минут до Екатеринбурга. Концепция жилого комплекса предполагает застройку по европейскому типу: комплексы из трех- и четырехэтажных кирпичных домов с просторными благоустроенными закрытыми дворами и достаточным количеством парковочных мест, с развитой инфраструктурой, включающей детский сад, школу, спортивный комплекс, торговый центр.Номер объекта: #5/545662/6529
    размещено: 11.09.2025 , обновлено: 12.09.2025

    2-к квартира, Победы, 5, 32 — 3 кв. 2025 г.

    • 78 м2
    • 4/4 этаж
    9 716 460 ₽ (124600 ₽/м2)
    Способы покупки: - семейная ипотека от банков партнеров с возможностью получить дополнительную скидку, точную цифру уточняйте в отделе продаж - за наличный расчет, скидка до 20% - Скидка участникам СВО от 5 до 25 % - скидка за семейную ипотеку 3% - Все скидки суммируются Об инфраструктуре Развлечения и досуг. Спортивный комплекс – для тех, кто ведет здоровый образ жизни. Канатная дорога, разнообразные качели и безопасные игровые площадки подарят незабываемые впечатления маленьким жителям района. Озеленение. Первая очередь, которая предполагает собой полный комплекс ландшафтного дизайна! Главное инфраструктурное звено микрорайона – Малахитовый Бульвар: интерактивный фонтан, игровые комплексы, зоны для тихого отдыха, амфитеатр. Жилой комплекс «УЮТ-СИТИ» создан для ценителей комфортной и спокойной жизни в экологически чистом, тихом месте, окруженном лесным массивом, вдали от суеты мегаполиса. Развитые транспортные развязки – 20 минут до Екатеринбурга. Концепция жилого комплекса предполагает застройку по европейскому типу: комплексы из трех- и четырехэтажных кирпичных домов с просторными благоустроенными закрытыми дворами и достаточным количеством парковочных мест, с развитой инфраструктурой, включающей детский сад, школу, спортивный комплекс, торговый центр.Номер объекта: #5/545657/6529
    размещено: 11.09.2025 , обновлено: 12.09.2025

    2-к квартира, Победы, 5, 32 — 3 кв. 2025 г.

    • 52.4 м2
    • 4/4 этаж
    7 068 760 ₽ (134900 ₽/м2)
    Способы покупки: - семейная ипотека от банков партнеров с возможностью получить дополнительную скидку, точную цифру уточняйте в отделе продаж - за наличный расчет, скидка до 20% - Скидка участникам СВО от 5 до 25 % - скидка за семейную ипотеку 3% - Все скидки суммируются Об инфраструктуре Развлечения и досуг. Спортивный комплекс – для тех, кто ведет здоровый образ жизни. Канатная дорога, разнообразные качели и безопасные игровые площадки подарят незабываемые впечатления маленьким жителям района. Озеленение. Первая очередь, которая предполагает собой полный комплекс ландшафтного дизайна! Главное инфраструктурное звено микрорайона – Малахитовый Бульвар: интерактивный фонтан, игровые комплексы, зоны для тихого отдыха, амфитеатр. Жилой комплекс «УЮТ-СИТИ» создан для ценителей комфортной и спокойной жизни в экологически чистом, тихом месте, окруженном лесным массивом, вдали от суеты мегаполиса. Развитые транспортные развязки – 20 минут до Екатеринбурга. Концепция жилого комплекса предполагает застройку по европейскому типу: комплексы из трех- и четырехэтажных кирпичных домов с просторными благоустроенными закрытыми дворами и достаточным количеством парковочных мест, с развитой инфраструктурой, включающей детский сад, школу, спортивный комплекс, торговый центр.Номер объекта: #5/545656/6529
    размещено: 11.09.2025 , обновлено: 12.09.2025

    3-к квартира, Победы, 5, 32 — 3 кв. 2025 г.

    • 86.2 м2
    • 3/4 этаж
    10 706 040 ₽ (124200 ₽/м2)
    Способы покупки: - семейная ипотека от банков партнеров с возможностью получить дополнительную скидку, точную цифру уточняйте в отделе продаж - за наличный расчет, скидка до 20% - Скидка участникам СВО от 5 до 25 % - скидка за семейную ипотеку 3% - Все скидки суммируются Об инфраструктуре Развлечения и досуг. Спортивный комплекс – для тех, кто ведет здоровый образ жизни. Канатная дорога, разнообразные качели и безопасные игровые площадки подарят незабываемые впечатления маленьким жителям района. Озеленение. Первая очередь, которая предполагает собой полный комплекс ландшафтного дизайна! Главное инфраструктурное звено микрорайона – Малахитовый Бульвар: интерактивный фонтан, игровые комплексы, зоны для тихого отдыха, амфитеатр. Жилой комплекс «УЮТ-СИТИ» создан для ценителей комфортной и спокойной жизни в экологически чистом, тихом месте, окруженном лесным массивом, вдали от суеты мегаполиса. Развитые транспортные развязки – 20 минут до Екатеринбурга. Концепция жилого комплекса предполагает застройку по европейскому типу: комплексы из трех- и четырехэтажных кирпичных домов с просторными благоустроенными закрытыми дворами и достаточным количеством парковочных мест, с развитой инфраструктурой, включающей детский сад, школу, спортивный комплекс, торговый центр.Номер объекта: #5/545647/6529
    размещено: 11.09.2025 , обновлено: 12.09.2025

    4-к квартира, Победы, 5, 32 — 3 кв. 2025 г.

    • 100.9 м2
    • 1/4 этаж
    11 000 000 ₽ (109000 ₽/м2)
    Способы покупки: - семейная ипотека от банков партнеров с возможностью получить дополнительную скидку, точную цифру уточняйте в отделе продаж - за наличный расчет, скидка до 20% - Скидка участникам СВО от 5 до 25 % - скидка за семейную ипотеку 3% - Все скидки суммируются Об инфраструктуре Развлечения и досуг. Спортивный комплекс – для тех, кто ведет здоровый образ жизни. Канатная дорога, разнообразные качели и безопасные игровые площадки подарят незабываемые впечатления маленьким жителям района. Озеленение. Первая очередь, которая предполагает собой полный комплекс ландшафтного дизайна! Главное инфраструктурное звено микрорайона – Малахитовый Бульвар: интерактивный фонтан, игровые комплексы, зоны для тихого отдыха, амфитеатр. Жилой комплекс «УЮТ-СИТИ» создан для ценителей комфортной и спокойной жизни в экологически чистом, тихом месте, окруженном лесным массивом, вдали от суеты мегаполиса. Развитые транспортные развязки – 20 минут до Екатеринбурга. Концепция жилого комплекса предполагает застройку по европейскому типу: комплексы из трех- и четырехэтажных кирпичных домов с просторными благоустроенными закрытыми дворами и достаточным количеством парковочных мест, с развитой инфраструктурой, включающей детский сад, школу, спортивный комплекс, торговый центр.Номер объекта: #5/545641/6529
    размещено: 11.09.2025 , обновлено: 12.09.2025

    4-к квартира, Победы, 5, 32 — 3 кв. 2025 г.

    • 104 м2
    • 1/4 этаж
    11 000 000 ₽ (105800 ₽/м2)
    Способы покупки: - семейная ипотека от банков партнеров с возможностью получить дополнительную скидку, точную цифру уточняйте в отделе продаж - за наличный расчет, скидка до 20% - Скидка участникам СВО от 5 до 25 % - скидка за семейную ипотеку 3% - Все скидки суммируются Об инфраструктуре Развлечения и досуг. Спортивный комплекс – для тех, кто ведет здоровый образ жизни. Канатная дорога, разнообразные качели и безопасные игровые площадки подарят незабываемые впечатления маленьким жителям района. Озеленение. Первая очередь, которая предполагает собой полный комплекс ландшафтного дизайна! Главное инфраструктурное звено микрорайона – Малахитовый Бульвар: интерактивный фонтан, игровые комплексы, зоны для тихого отдыха, амфитеатр. Жилой комплекс «УЮТ-СИТИ» создан для ценителей комфортной и спокойной жизни в экологически чистом, тихом месте, окруженном лесным массивом, вдали от суеты мегаполиса. Развитые транспортные развязки – 20 минут до Екатеринбурга. Концепция жилого комплекса предполагает застройку по европейскому типу: комплексы из трех- и четырехэтажных кирпичных домов с просторными благоустроенными закрытыми дворами и достаточным количеством парковочных мест, с развитой инфраструктурой, включающей детский сад, школу, спортивный комплекс, торговый центр.Номер объекта: #5/545639/6529
    размещено: 11.09.2025 , обновлено: 12.09.2025

История предложений в этом доме

объявление снято с публикации в продаже комнат площадь этаж цена,
г. Березовский, ул. Победы, 5б, 34, ЖК "Уют Сити" (городской округ Березовский) - фото квартиры 14 октября 2025 90 дн. 3 77.8 3/4 10 386 300
г. Березовский, ул. Старателей, 15 (городской округ Березовский) - фото квартиры 14 октября 2025 90 дн. 1 34 1/4 4 000 000
г. Березовский, ул. Старателей, 11/4 (городской округ Березовский) - фото квартиры 25 сентября 2025 90 дн. 2 40 1/4 6 300 000
г. Березовский, ул. Победы, 5б, 34, ЖК "Уют Сити" (городской округ Березовский) - фото квартиры 25 октября 2025 90 дн. 2 59.5 2/4 8 240 750
г. Березовский, ул. Победы, 5б, 34, ЖК "Уют Сити" (городской округ Березовский) - фото квартиры 25 октября 2025 90 дн. 2 59.3 1/4 7 886 900
г. Березовский, ул. Победы, 5б, 34, ЖК "Уют Сити" (городской округ Березовский) - фото квартиры 26 сентября 2025 90 дн. 1 41 4/4 5 925 000
г. Березовский, ул. Победы, 5б, 34, ЖК "Уют Сити" (городской округ Березовский) - фото квартиры 8 октября 2025 90 дн. 3 83.5 4/4 10 605 000
г. Березовский, ул. Победы, 5б, 34, ЖК "Уют Сити" (городской округ Березовский) - фото квартиры 1 октября 2025 90 дн. 2 52.3 4/4 6 988 000
г. Березовский, ул. Победы, 5б, 34, ЖК "Уют Сити" (городской округ Березовский) - фото квартиры 8 октября 2025 90 дн. 4 88.9 1/4 10 508 000
г. Березовский, ул. Победы, 5, 32 (городской округ Березовский) - фото квартиры 17 сентября 2025 90 дн. 1 36.6 1/4 5 197 200
г. Березовский, ул. Победы, 5, 32 (городской округ Березовский) - фото квартиры 25 октября 2025 90 дн. 2 60.5 4/4 7 820 910
г. Березовский, ул. Победы, 5, 32 (городской округ Березовский) - фото квартиры 23 октября 2025 90 дн. 1 36.9 1/4 5 110 650
г. Березовский, ул. Александровский, 15 (городской округ Березовский) - фото квартиры 6 сентября 2025 90 дн. 1 44.5 4/4 5 100 000
г. Березовский, ул. Старателей, 4 (городской округ Березовский) - фото квартиры 1 августа 2025 90 дн. 3 66 1/3 7 350 000
г. Березовский, ул. Золоторудная, 6 (городской округ Березовский) - фото квартиры 31 июля 2025 90 дн. 1 39.7 3/3 4 500 000
г. Березовский, ул. Старателей, 3 (городской округ Березовский) - фото квартиры 13 августа 2025 90 дн. 2 59.4 2/4 7 030 000
г. Березовский, ул. Старателей, 7 (городской округ Березовский) - фото квартиры 12 сентября 2025 90 дн. 3 71 1/4 8 000 000
г. Березовский, ул. Александровский, 13 (городской округ Березовский) - фото квартиры 15 июля 2025 90 дн. 1 39.9 1/4 5 050 000
г. Березовский, ул. Старателей, 6 (городской округ Березовский) - фото квартиры 20 июня 2025 90 дн. 2 50.2 3/4 6 140 000
г. Березовский, ул. Старателей, 6 (городской округ Березовский) - фото квартиры 5 июля 2025 90 дн. 2 50.5 4/4 5 950 000
г. Березовский, ул. Старателей, 9 (городской округ Березовский) - фото квартиры 7 октября 2025 90 дн. 0 38.1 1/4 4 100 000
г. Березовский, ул. Старателей, 15а (городской округ Березовский) - фото квартиры 24 июня 2025 90 дн. 2 33.4 2/3 3 780 000
г. Березовский, ул. Александровский, 15 (городской округ Березовский) - фото квартиры 29 апреля 2025 90 дн. 2 44.5 1/4 4 900 000
г. Березовский, ул. Золоторудная, 2 (городской округ Березовский) - фото квартиры 15 июля 2025 90 дн. 1 42.6 3/3 4 950 000
г. Березовский, ул. Золоторудная, 3 (городской округ Березовский) - фото квартиры 19 февраля 2025 90 дн. 1 40.9 1/3 5 020 000
г. Березовский, ул. Золоторудная, 3 (городской округ Березовский) - фото квартиры 15 февраля 2025 90 дн. 1 40 1/3 5 100 000
г. Березовский, ул. Старателей, 4 (городской округ Березовский) - фото квартиры 15 июля 2025 90 дн. 1 38.2 2/3 5 100 000
г. Березовский, ул. Старателей, 15 (городской округ Березовский) - фото квартиры 3 декабря 2024 90 дн. 1 34 2/3 2 760 000
г. Березовский, ул. Старателей, 15 (городской округ Березовский) - фото квартиры 25 декабря 2024 90 дн. 1 34 1/4 2 800 000
г. Березовский, ул. Гвардейская, 3 (городской округ Березовский) - фото квартиры 28 февраля 2025 90 дн. 1 27.1 4/4 4 306 050

Похожие предложения о продаже квартир в г. Березовский

  • 1-к квартира, Победы, 5Б, ЖК "Уют Сити" — 3 кв. 2025 г.

    • 31.6 м2
    • 1/4 этаж
    4 194 000 ₽ (132700 ₽/м2)
    Способы покупки: - семейная ипотека от банков партнеров с возможностью получить дополнительную скидку, точную цифру уточняйте в отделе продаж - за наличный расчет, скидка до 20% - Скидка участникам СВО от 5 до 25 % - скидка за семейную ипотеку 3% - Все скидки суммируются Об инфраструктуре Развлечения и досуг. Спортивный комплекс – для тех, кто ведет здоровый образ жизни. Канатная дорога, разнообразные качели и безопасные игровые площадки подарят незабываемые впечатления маленьким жителям района. Озеленение. Первая очередь, которая предполагает собой полный комплекс ландшафтного дизайна! Главное инфраструктурное звено микрорайона – Малахитовый Бульвар: интерактивный фонтан, игровые комплексы, зоны для тихого отдыха, амфитеатр. Жилой комплекс «УЮТ-СИТИ» создан для ценителей комфортной и спокойной жизни в экологически чистом, тихом месте, окруженном лесным массивом, вдали от суеты мегаполиса. Развитые транспортные развязки – 20 минут до Екатеринбурга. Концепция жилого комплекса предполагает застройку по европейскому типу: комплексы из трех- и четырехэтажных кирпичных домов с просторными благоустроенными закрытыми дворами и достаточным количеством парковочных мест, с развитой инфраструктурой, включающей детский сад, школу, спортивный комплекс, торговый центр. Номер объекта: #5/545751/6529
    размещено: 11.09.2025 , обновлено: 20.10.2025
  • 1-к квартира, Победы, 5б, 34, ЖК "Уют Сити" — 3 кв. 2025 г.

    • 48.3 м2
    • 2/4 этаж
    6 641 250 ₽ (137500 ₽/м2)
    Способы покупки: - семейная ипотека от банков партнеров с возможностью получить дополнительную скидку, точную цифру уточняйте в отделе продаж - за наличный расчет, скидка до 20% - Скидка участникам СВО от 5 до 25 % - скидка за семейную ипотеку 3% - Все скидки суммируются Об инфраструктуре Развлечения и досуг. Спортивный комплекс – для тех, кто ведет здоровый образ жизни. Канатная дорога, разнообразные качели и безопасные игровые площадки подарят незабываемые впечатления маленьким жителям района. Озеленение. Первая очередь, которая предполагает собой полный комплекс ландшафтного дизайна! Главное инфраструктурное звено микрорайона – Малахитовый Бульвар: интерактивный фонтан, игровые комплексы, зоны для тихого отдыха, амфитеатр. Жилой комплекс «УЮТ-СИТИ» создан для ценителей комфортной и спокойной жизни в экологически чистом, тихом месте, окруженном лесным массивом, вдали от суеты мегаполиса. Развитые транспортные развязки – 20 минут до Екатеринбурга. Концепция жилого комплекса предполагает застройку по европейскому типу: комплексы из трех- и четырехэтажных кирпичных домов с просторными благоустроенными закрытыми дворами и достаточным количеством парковочных мест, с развитой инфраструктурой, включающей детский сад, школу, спортивный комплекс, торговый центр. Номер объекта: #5/545861/6529
    размещено: 11.09.2025 , обновлено: 14.10.2025
  • 1-к квартира, Победы, 5б, 34, ЖК "Уют Сити" — 3 кв. 2025 г.

    • 40.8 м2
    • 1/4 этаж
    5 875 200 ₽ (144000 ₽/м2)
    Способы покупки: - семейная ипотека от банков партнеров с возможностью получить дополнительную скидку, точную цифру уточняйте в отделе продаж - за наличный расчет, скидка до 20% - Скидка участникам СВО от 5 до 25 % - скидка за семейную ипотеку 3% - Все скидки суммируются Об инфраструктуре Развлечения и досуг. Спортивный комплекс – для тех, кто ведет здоровый образ жизни. Канатная дорога, разнообразные качели и безопасные игровые площадки подарят незабываемые впечатления маленьким жителям района. Озеленение. Первая очередь, которая предполагает собой полный комплекс ландшафтного дизайна! Главное инфраструктурное звено микрорайона – Малахитовый Бульвар: интерактивный фонтан, игровые комплексы, зоны для тихого отдыха, амфитеатр. Жилой комплекс «УЮТ-СИТИ» создан для ценителей комфортной и спокойной жизни в экологически чистом, тихом месте, окруженном лесным массивом, вдали от суеты мегаполиса. Развитые транспортные развязки – 20 минут до Екатеринбурга. Концепция жилого комплекса предполагает застройку по европейскому типу: комплексы из трех- и четырехэтажных кирпичных домов с просторными благоустроенными закрытыми дворами и достаточным количеством парковочных мест, с развитой инфраструктурой, включающей детский сад, школу, спортивный комплекс, торговый центр. Номер объекта: #5/545854/6529
    размещено: 11.09.2025 , обновлено: 7.10.2025
  • 1-к квартира, Победы, 5б, 34, ЖК "Уют Сити" — 3 кв. 2025 г.

    • 41.6 м2
    • 3/4 этаж
    6 156 800 ₽ (148000 ₽/м2)
    Способы покупки: - семейная ипотека от банков партнеров с возможностью получить дополнительную скидку, точную цифру уточняйте в отделе продаж - за наличный расчет, скидка до 20% - Скидка участникам СВО от 5 до 25 % - скидка за семейную ипотеку 3% - Все скидки суммируются Об инфраструктуре Развлечения и досуг. Спортивный комплекс – для тех, кто ведет здоровый образ жизни. Канатная дорога, разнообразные качели и безопасные игровые площадки подарят незабываемые впечатления маленьким жителям района. Озеленение. Первая очередь, которая предполагает собой полный комплекс ландшафтного дизайна! Главное инфраструктурное звено микрорайона – Малахитовый Бульвар: интерактивный фонтан, игровые комплексы, зоны для тихого отдыха, амфитеатр. Жилой комплекс «УЮТ-СИТИ» создан для ценителей комфортной и спокойной жизни в экологически чистом, тихом месте, окруженном лесным массивом, вдали от суеты мегаполиса. Развитые транспортные развязки – 20 минут до Екатеринбурга. Концепция жилого комплекса предполагает застройку по европейскому типу: комплексы из трех- и четырехэтажных кирпичных домов с просторными благоустроенными закрытыми дворами и достаточным количеством парковочных мест, с развитой инфраструктурой, включающей детский сад, школу, спортивный комплекс, торговый центр. Номер объекта: #5/545818/6529
    размещено: 11.09.2025 , обновлено: 17.10.2025
  • 1-к квартира, Победы, 5б, 34, ЖК "Уют Сити" — 3 кв. 2025 г.

    • 41.2 м2
    • 2/4 этаж
    6 097 600 ₽ (148000 ₽/м2)
    Способы покупки: - семейная ипотека от банков партнеров с возможностью получить дополнительную скидку, точную цифру уточняйте в отделе продаж - за наличный расчет, скидка до 20% - Скидка участникам СВО от 5 до 25 % - скидка за семейную ипотеку 3% - Все скидки суммируются Об инфраструктуре Развлечения и досуг. Спортивный комплекс – для тех, кто ведет здоровый образ жизни. Канатная дорога, разнообразные качели и безопасные игровые площадки подарят незабываемые впечатления маленьким жителям района. Озеленение. Первая очередь, которая предполагает собой полный комплекс ландшафтного дизайна! Главное инфраструктурное звено микрорайона – Малахитовый Бульвар: интерактивный фонтан, игровые комплексы, зоны для тихого отдыха, амфитеатр. Жилой комплекс «УЮТ-СИТИ» создан для ценителей комфортной и спокойной жизни в экологически чистом, тихом месте, окруженном лесным массивом, вдали от суеты мегаполиса. Развитые транспортные развязки – 20 минут до Екатеринбурга. Концепция жилого комплекса предполагает застройку по европейскому типу: комплексы из трех- и четырехэтажных кирпичных домов с просторными благоустроенными закрытыми дворами и достаточным количеством парковочных мест, с развитой инфраструктурой, включающей детский сад, школу, спортивный комплекс, торговый центр. Номер объекта: #5/545782/6529
    размещено: 11.09.2025 , обновлено: 29.10.2025

    1-к квартира, Победы, 5б, 34, ЖК "Уют Сити" — 3 кв. 2025 г.

    • 52.1 м2
    • 2/4 этаж
    7 081 000 ₽ (135900 ₽/м2)
    Способы покупки: - семейная ипотека от банков партнеров с возможностью получить дополнительную скидку, точную цифру уточняйте в отделе продаж - за наличный расчет, скидка до 20% - Скидка участникам СВО от 5 до 25 % - скидка за семейную ипотеку 3% - Все скидки суммируются Об инфраструктуре Развлечения и досуг. Спортивный комплекс – для тех, кто ведет здоровый образ жизни. Канатная дорога, разнообразные качели и безопасные игровые площадки подарят незабываемые впечатления маленьким жителям района. Озеленение. Первая очередь, которая предполагает собой полный комплекс ландшафтного дизайна! Главное инфраструктурное звено микрорайона – Малахитовый Бульвар: интерактивный фонтан, игровые комплексы, зоны для тихого отдыха, амфитеатр. Жилой комплекс «УЮТ-СИТИ» создан для ценителей комфортной и спокойной жизни в экологически чистом, тихом месте, окруженном лесным массивом, вдали от суеты мегаполиса. Развитые транспортные развязки – 20 минут до Екатеринбурга. Концепция жилого комплекса предполагает застройку по европейскому типу: комплексы из трех- и четырехэтажных кирпичных домов с просторными благоустроенными закрытыми дворами и достаточным количеством парковочных мест, с развитой инфраструктурой, включающей детский сад, школу, спортивный комплекс, торговый центр. Номер объекта: #5/545756/6529
    размещено: 11.09.2025 , обновлено: 18.10.2025

    1-к квартира, Победы, 5, 32 — 3 кв. 2025 г.

    • 52.5 м2
    • 3/4 этаж
    7 134 750 ₽ (135900 ₽/м2)
    Способы покупки: - семейная ипотека от банков партнеров с возможностью получить дополнительную скидку, точную цифру уточняйте в отделе продаж - за наличный расчет, скидка до 20% - Скидка участникам СВО от 5 до 25 % - скидка за семейную ипотеку 3% - Все скидки суммируются Об инфраструктуре Развлечения и досуг. Спортивный комплекс – для тех, кто ведет здоровый образ жизни. Канатная дорога, разнообразные качели и безопасные игровые площадки подарят незабываемые впечатления маленьким жителям района. Озеленение. Первая очередь, которая предполагает собой полный комплекс ландшафтного дизайна! Главное инфраструктурное звено микрорайона – Малахитовый Бульвар: интерактивный фонтан, игровые комплексы, зоны для тихого отдыха, амфитеатр. Жилой комплекс «УЮТ-СИТИ» создан для ценителей комфортной и спокойной жизни в экологически чистом, тихом месте, окруженном лесным массивом, вдали от суеты мегаполиса. Развитые транспортные развязки – 20 минут до Екатеринбурга. Концепция жилого комплекса предполагает застройку по европейскому типу: комплексы из трех- и четырехэтажных кирпичных домов с просторными благоустроенными закрытыми дворами и достаточным количеством парковочных мест, с развитой инфраструктурой, включающей детский сад, школу, спортивный комплекс, торговый центр.Номер объекта: #5/545711/6529
    размещено: 11.09.2025

    1-к квартира, Победы, 5, 32 — 3 кв. 2025 г.

    • 52.4 м2
    • 2/4 этаж
    7 068 760 ₽ (134900 ₽/м2)
    Способы покупки: - семейная ипотека от банков партнеров с возможностью получить дополнительную скидку, точную цифру уточняйте в отделе продаж - за наличный расчет, скидка до 20% - Скидка участникам СВО от 5 до 25 % - скидка за семейную ипотеку 3% - Все скидки суммируются Об инфраструктуре Развлечения и досуг. Спортивный комплекс – для тех, кто ведет здоровый образ жизни. Канатная дорога, разнообразные качели и безопасные игровые площадки подарят незабываемые впечатления маленьким жителям района. Озеленение. Первая очередь, которая предполагает собой полный комплекс ландшафтного дизайна! Главное инфраструктурное звено микрорайона – Малахитовый Бульвар: интерактивный фонтан, игровые комплексы, зоны для тихого отдыха, амфитеатр. Жилой комплекс «УЮТ-СИТИ» создан для ценителей комфортной и спокойной жизни в экологически чистом, тихом месте, окруженном лесным массивом, вдали от суеты мегаполиса. Развитые транспортные развязки – 20 минут до Екатеринбурга. Концепция жилого комплекса предполагает застройку по европейскому типу: комплексы из трех- и четырехэтажных кирпичных домов с просторными благоустроенными закрытыми дворами и достаточным количеством парковочных мест, с развитой инфраструктурой, включающей детский сад, школу, спортивный комплекс, торговый центр.Номер объекта: #5/545631/6529
    размещено: 11.09.2025 , обновлено: 12.09.2025

    1-к квартира, Гвардейская, 3 — 1 кв. 2023 г.

    • 34.3 м2
    • 1/4 этаж
    5 291 000 ₽ (154300 ₽/м2)
    Способы покупки: - семейная ипотека от банков партнеров, при этом можно получить скидку до 10% в зависимости от банка и его требований к заемщику - за наличный расчет, скидка от 10% и более -Скидка участникам СВО и их семьям до 25% Все скидки суммируются подробнее уточняйте в отделе продаж Об инфраструктуре Развлечения и досуг. Спортивный комплекс – для тех, кто ведет здоровый образ жизни. Канатная дорога, разнообразные качели и безопасные игровые площадки подарят незабываемые впечатления маленьким жителям района. Озеленение. Первая очередь, которая предполагает собой полный комплекс ландшафтного дизайна! Главное инфраструктурное звено микрорайона – Малахитовый Бульвар: интерактивный фонтан, игровые комплексы, зоны для тихого отдыха, амфитеатр. Жилой комплекс «УЮТ-СИТИ» создан для ценителей комфортной и спокойной жизни в экологически чистом, тихом месте, окруженном лесным массивом, вдали от суеты мегаполиса. Развитые транспортные развязки – 20 минут до Екатеринбурга. Концепция жилого комплекса предполагает застройку по европейскому типу: комплексы из трех- и четырехэтажных кирпичных домов с просторными благоустроенными закрытыми дворами и достаточным количеством парковочных мест, с развитой инфраструктурой, включающей детский сад, школу, спортивный комплекс, торговый центр.Номер объекта: #5/544968/6529
    размещено: 28.02.2023 , обновлено: 17.10.2025

    1-к квартира, Гвардейская, 3 — 1 кв. 2023 г.

    • 31.1 м2
    • 1/4 этаж
    4 814 800 ₽ (154800 ₽/м2)
    Способы покупки: - семейная ипотека от банков партнеров, при этом можно получить скидку до 10% в зависимости от банка и его требований к заемщику - за наличный расчет, скидка от 10% и более -Скидка участникам СВО и их семьям до 25% Все скидки суммируются подробнее уточняйте в отделе продаж Об инфраструктуре Развлечения и досуг. Спортивный комплекс – для тех, кто ведет здоровый образ жизни. Канатная дорога, разнообразные качели и безопасные игровые площадки подарят незабываемые впечатления маленьким жителям района. Озеленение. Первая очередь, которая предполагает собой полный комплекс ландшафтного дизайна! Главное инфраструктурное звено микрорайона – Малахитовый Бульвар: интерактивный фонтан, игровые комплексы, зоны для тихого отдыха, амфитеатр. Жилой комплекс «УЮТ-СИТИ» создан для ценителей комфортной и спокойной жизни в экологически чистом, тихом месте, окруженном лесным массивом, вдали от суеты мегаполиса. Развитые транспортные развязки – 20 минут до Екатеринбурга. Концепция жилого комплекса предполагает застройку по европейскому типу: комплексы из трех- и четырехэтажных кирпичных домов с просторными благоустроенными закрытыми дворами и достаточным количеством парковочных мест, с развитой инфраструктурой, включающей детский сад, школу, спортивный комплекс, торговый центр.Номер объекта: #5/544942/6529
    размещено: 28.02.2023 , обновлено: 14.08.2025

    1-к квартира, Гвардейская, 3а — 3 кв. 2022 г.

    • 27 м2
    • 1/4 этаж
    4 938 000 ₽ (182900 ₽/м2)
    Cпособы пoкупки: - семейная ипотека oт банкoв партнepов c возмoжноcтью пoлучить дoпoлнитeльную скидку, точную цифру утoчняйтe в oтделe продaж - за наличный раcчeт, скидкa дo 20% - Cкидкa учaстникaм CBО oт 5 дo 25 % - скидка за сeмейную ипoтеку 3% - Все cкидки cуммируютcя Способы покупки: - Рассрочка от застройщика на 5 лет при первом взносе от 50% - Рассрочка на 3 года при первом взносе 10%, идеально для тех кто хочет накопить больший взнос при выходе на ипотеке - семейная ипотека от банков партнеров, при этом можно получить скидку до 10% в зависимости от банка и его требований к заемщику - за наличный расчет, скидка от 10% и более 1-комнатная квартира от застройщика в 4-х-этажном кирпичном доме. Жилой комплекс "УЮТ-СИТИ" в городе Берёзовский. Дом сдан! О планировке: Эргономичная планировка для любителей полезной площади! Просторная жилая зона позволяет сделать планировку на свой вкус с выходом на лоджию. С/у совмещенный, площадь позволяет разместить ванную, туалет с раковиной, а также стиральную машинку. О доме: - малоэтажное кирпичное строение - комплекс оснащен собственной котельной - наземная парковка для автомобилей - функциональная детская площадка - закрытый двор О квартире: - уютная и светлая - очень функциональная кухня - квартира с отделкой «под чистовую» - возможность реализовать любой дизайн - вместительный балкон О локации: Благоприятная экологическая обстановка вокруг, чистый воздух с постоянно развивающейся инфраструктурой. Поблизости находятся: школа № 5, детские сады № 23, 9, 4, оборудованная детская площадка, места для отдыха, продуктовые магазины «ПЯТЁРОЧКА», «МАГНИТ», «МАГНИТ КОСМЕТИК», «Вкусно», «Красное & Белое», салоны красоты, гос.поликлинника в шаговой доступности 10-15 минут пешком. Остановка РЯДОМ с домом (маршруты № 1, 2, 5 по городу Березовскому и с декабря добавился 114 маршрут до Екатеринбург ). О покупке: Варианты приобретения: - ипотека от 0,07% от ведущих банков - возможность приобретения со скидкой за наличный расчет - traid-in для тех, кто хочет доверить продажу своей недвижимости профессионалам - сертификаты (материнский, жилищный и т.д.), военная ипотека Для данного варианта квартиры возможно заказать евро ремонт от Застройщика. Стоимость: 11000 руб. за 1 кв. м. Срок выполнения 1-1,5 месяца Что входит в евро ремонт от застройщика: • Ламинат 33 класса • Керамогранит 8-10 мм в коридоре • Флизелиновые обои под покраску без рисунка либо с ненавязчивым рисунком • Кафельная плитка или керамогранит в сан.узле с современным дизайном • Мебель в сан.узле: унитаз компакт или инсталляция, акриловая ванна, раковина, тумба • Смесители для раковины, смеситель для ванной со стойкой тропического душа • Осветительные приборы: бра/люстры/точечные светильники • Царговые межкомнатные двери Приходите на просмотр! Поможем в оформлении сделки в кратчайшие сроки!Номер объекта: #5/544795/6529
    размещено: 26.09.2022 , обновлено: 8.10.2025

    1-к квартира, Гвардейская, 3а — 3 кв. 2022 г.

    • 27.1 м2
    • 2/4 этаж
    5 407 080 ₽ (199500 ₽/м2)
    Cпособы пoкупки: - семейная ипотека oт банкoв партнepов c возмoжноcтью пoлучить дoпoлнитeльную скидку, точную цифру утoчняйтe в oтделe продaж - за наличный раcчeт, скидкa дo 20% - Cкидкa учaстникaм CBО oт 5 дo 25 % - скидка за сeмейную ипoтеку 3% - Все cкидки cуммируютcя 1-комнатная квартира от застройщика в 4-х-этажном кирпичном доме. Жилой комплекс "УЮТ-СИТИ" в городе Берёзовский. Дом сдан! О планировке: Эргономичная планировка для любителей полезной площади! Просторная жилая зона позволяет сделать планировку на свой вкус с выходом на лоджию. С/у совмещенный, площадь позволяет разместить ванную, туалет с раковиной, а также стиральную машинку. О доме: - малоэтажное кирпичное строение - комплекс оснащен собственной котельной - наземная парковка для автомобилей - функциональная детская площадка - закрытый двор О квартире: - уютная и светлая - очень функциональная кухня - квартира с отделкой «под чистовую» - возможность реализовать любой дизайн - вместительный балкон О локации: Благоприятная экологическая обстановка вокруг, чистый воздух с постоянно развивающейся инфраструктурой. Поблизости находятся: школа № 5, детские сады № 23, 9, 4, оборудованная детская площадка, места для отдыха, продуктовые магазины «ПЯТЁРОЧКА», «МАГНИТ», «МАГНИТ КОСМЕТИК», «Вкусно», «Красное & Белое», салоны красоты, гос.поликлинника в шаговой доступности 10-15 минут пешком. Остановка РЯДОМ с домом (маршруты № 1, 2, 5 по городу Березовскому и с декабря добавился 114 маршрут до Екатеринбург ). О покупке: Варианты приобретения: - ипотека с господдержкой - возможность приобретения со скидкой за наличный расчет - tradе-in для тех, кто хочет доверить продажу своей недвижимости профессионалам - сертификаты (материнский, жилищный и т.д.), военная ипотека Для данного варианта квартиры возможно заказать евро ремонт от Застройщика. Стоимость: 11000 руб. за 1 кв. м. Срок выполнения 1-1,5 месяца Что входит в евро ремонт от застройщика: • Ламинат 33 класса • Керамогранит 8-10 мм в коридоре • Флизелиновые обои под покраску без рисунка либо с ненавязчивым рисунком • Кафельная плитка или керамогранит в сан.узле с современным дизайном • Мебель в сан.узле: унитаз компакт или инсталляция, акриловая ванна, раковина, тумба • Смесители для раковины, смеситель для ванной со стойкой тропического душа • Осветительные приборы: бра/люстры/точечные светильники • Царговые межкомнатные двери Приходите на просмотр! Поможем в оформлении сделки в кратчайшие сроки!Номер объекта: #5/544777/6529
    размещено: 26.09.2022 , обновлено: 8.10.2025

Новостройки г. Березовский

Приоритет

Увеличивает просмотры в 3 раза

Ваше объявление показывается в списке выше обычных объявлений. подключить