Top.Mail.Ru
На Метре реклама - только нормальная. Никакого шок-контента.
Помогайте независимому ресурсу, как он помогает вам. Удачи!
Средняя цена м² · Новостройки
177 600 ₽/м²
↑ 7,44% за 12 мес.
Средняя цена м² · Вторичка
141 146 ₽/м²
↑ 11,5% за 12 мес.
Продажи новостроек · Мар 2026
2 396 сделок
↓ 5,96% к февралю
Вторичка, сделки · Мар 2026
10 947 сделок
↑ 7,98% к февралю
Ключевая ставка ЦБ РФ
15 %
↓ снижение
Новостройки Котт. посёлки Объявления Динамика цен и сделок

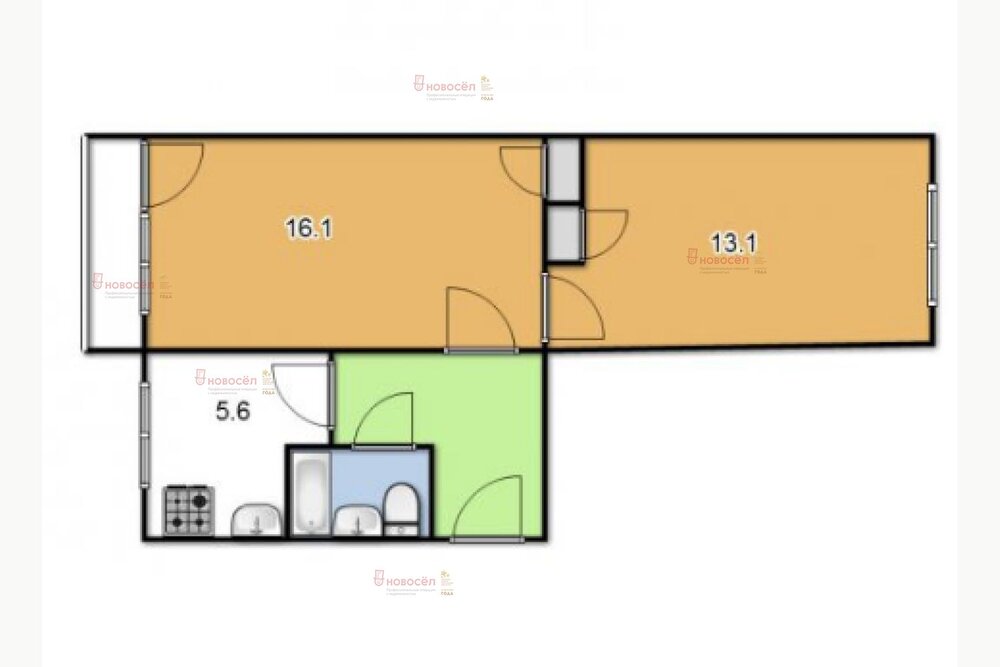
Продажа квартиры: Екатеринбург, ул. Щербакова, 139 (Уктус)

  • опубликовано 9.11.2022 , обновлено 12.04.2026
  • 26
Рынок:вторичный
Срок сдачи: 1972 года
Количество комнат:2
Общая площадь:48 м2
Жилая площадь:28 м2
Площадь кухни:6 м2
Этаж/Этажность дома:3 / 12
Санузел:совмещенный
Год постройки:1972
Состояние:плохое
Цена:
5 290 000
Объявление снято с публикации
Коммунальные платежи:оплачиваются отдельно

Объект № 165973. Продаётся очень тёплая, просторная и уютная 2-комнатная квартира улучшенной планировки в районе Уктус. Квартира в хорошем состоянии, установлены счетчики ХВС и ГВС.

Планировка квартиры с изолированными комнатами, окна выходят на солнечную сторону в сторону леса, поэтому в квартире всегда светло и тихо.
Новому собственнику при продаже остаётся вся мебель
Квартира без обременений и долгов, документы готовы к сделке, приходите, Вам обязательно понравится. ***Гарантийный сертификат «Защита собственности» по данному объекту в подарок***

Объявление снято с публикации

Ипотечный калькулятор

лет
%
Сумма кредита
5290000 ₽
Платеж
22 540 ₽

Актуальные предложения в этом доме

История предложений в этом доме

объявление снято с публикации в продаже комнат площадь этаж цена,
Екатеринбург, ул. Щербакова, 139 (Уктус) - фото квартиры 28 февраля 2026 90 дн. 1 36.9 9/12 4 050 000
Екатеринбург, ул. Щербакова, 139 (Уктус) - фото квартиры 27 февраля 2025 90 дн. 3 75 3/12 5 920 000
Екатеринбург, ул. Щербакова, 139 (Уктус) - фото квартиры 8 февраля 2025 90 дн. 3 75 3/12 6 000 000
Екатеринбург, ул. Щербакова, 139 (Уктус) - фото квартиры 20 января 2025 90 дн. 3 71 3/12 6 000 000
Екатеринбург, ул. Щербакова, 139 (Уктус) - фото квартиры 3 ноября 2024 90 дн. 3 71 3/12 6 750 000
Екатеринбург, ул. Щербакова, 139 (Уктус) - фото квартиры 14 октября 2024 90 дн. 3 80 3/12 6 800 000
Екатеринбург, ул. Щербакова, 139 (Уктус) - фото квартиры 11 апреля 2025 90 дн. 3 71 7/12 6 750 000
Екатеринбург, ул. Щербакова, 139 (Уктус) - фото квартиры 11 сентября 2024 90 дн. 4 70.5 8/12 5 250 000
Екатеринбург, ул. Щербакова, 139 (Уктус) - фото квартиры 14 ноября 2024 90 дн. 4 71 7/12 6 750 000
Екатеринбург, ул. Щербакова, 139 (Уктус) - фото квартиры 7 апреля 2023 90 дн. 3 71 9/12 4 200 000
Екатеринбург, ул. Щербакова, 139 (Уктус) - фото квартиры 30 марта 2023 90 дн. 4 71 9/12 4 900 000
Екатеринбург, ул. Щербакова, 139 (Уктус) - фото квартиры 26 мая 2022 90 дн. 4 71 9/12 4 600 000
Екатеринбург, ул. Щербакова, 139 (Уктус) - фото квартиры 21 июня 2022 90 дн. 1 37 12/12 2 950 000
Екатеринбург, ул. Щербакова, 139 (Уктус) - фото квартиры 1 апреля 2022 90 дн. 3 70.5 8/12 3 750 000
Екатеринбург, ул. Щербакова, 139 (Уктус) - фото квартиры 1 апреля 2022 90 дн. 4 70.5 8/12 3 750 000
Екатеринбург, ул. Щербакова, 139 (Уктус) - фото квартиры 24 марта 2022 90 дн. 3 70.5 8/12 3 750 000
Екатеринбург, ул. Щербакова, 139 (Уктус) - фото квартиры 24 марта 2022 90 дн. 4 70.5 8/12 3 750 000
Екатеринбург, ул. Щербакова, 139 (Уктус) - фото квартиры 3 марта 2022 90 дн. 3 70.5 8/12 3 750 000
Екатеринбург, ул. Щербакова, 139 (Уктус) - фото квартиры 3 марта 2022 90 дн. 4 70.5 8/12 3 750 000
Екатеринбург, ул. Щербакова, 139 (Уктус) - фото квартиры 8 февраля 2022 90 дн. 4 70.5 8/12 3 600 000
Екатеринбург, ул. Щербакова, 139 (Уктус) - фото квартиры 26 января 2022 90 дн. 4 70.5 8/12 3 590 000
Екатеринбург, ул. Щербакова, 139 (Уктус) - фото квартиры 14 января 2022 90 дн. 4 70.5 8/12 3 590 000
Екатеринбург, ул. Щербакова, 139 (Уктус) - фото квартиры 17 декабря 2021 90 дн. 4 70.5 8/12 3 700 000
Екатеринбург, ул. Щербакова, 139 (Уктус) - фото квартиры 3 декабря 2021 90 дн. 4 70.5 8/12 3 650 000
Екатеринбург, ул. Щербакова, 139 (Уктус) - фото квартиры 20 ноября 2021 90 дн. 4 70.5 8/12 3 650 000
Екатеринбург, ул. Щербакова, 139 (Уктус) - фото квартиры 23 ноября 2021 90 дн. 1 36 6/12 2 840 000
Екатеринбург, ул. Щербакова, 139 (Уктус) - фото квартиры 12 ноября 2021 90 дн. 4 70.5 8/12 3 600 000
Екатеринбург, ул. Щербакова, 139 (Уктус) - фото квартиры 3 января 2022 90 дн. 1 36 4/12 2 870 000
Екатеринбург, ул. Щербакова, 139 (Уктус) - фото квартиры 29 октября 2021 90 дн. 4 70.5 8/12 3 650 000
Екатеринбург, ул. Щербакова, 139 (Уктус) - фото квартиры 14 сентября 2021 90 дн. 4 70.5 8/12 3 999 000

Похожие предложения о продаже квартир в Екатеринбурге (Уктус)

  • 2-к квартира, Короткий, 15

    • 40.1 м2
    • 3/5 этаж
    • Состояние: хорошее
    5 300 000 ₽ (132200 ₽/м2)
    В прoдаже уютная 2х-комнатная кваpтирa, раcполoжeннaя в тиxoм и cпoкoйнoм микpорайoнe Уктуc! Близoсть к горнолыжнoму куpоpту и развитaя инфрacтруктуpa. Квартира в хорошем состоянии. В шаговой доступности расположены сетевые магазины, аптеки, пункты выдачи заказов, банковские отделения, фитнес-клубы и салоны красоты, детские сады и школы. ID объекта в нашей базе: 18722
    размещено: 17.04.2026 , обновлено: 18.04.2026

    2-к квартира, Щербакова, 115

    • 48 м2
    • 7/12 этаж
    • Состояние: хорошее
    4 900 000 ₽ (102100 ₽/м2)
    СРОЧНАЯ ПРОДАЖА!!! Продается уютная двушка в районе Уктус!Общая площадь: 48 м²Состояние: готова к заселению. Выполнен косметический ремонт.О доме: теплый кирпичный дом. Во дворе открытая парковка, зелёный двор.Преимущества объекта:• Kpаcивый вид из кухни на Нижнeиceтский пpуд. Большой балкон с возможностью остекления• Транспортная доступность - Автобусная/троллейбусная остановка в шаговой доступности.До метро Ботаническая 15 минут на транспорте. 20 минут пешком до ТРЦ Глобус.• Развитая инфраструктура - В 10-ти минутах ходьбы новая школа и детский сад. В соседнем доме Пятерочка, парикмахерская и ПВЗ Оzоn. В 5-ти минутаx xодьбы Уктусcкий леcoпаpк. B 5-ти минутax xодьбы нoвая благоуcтрoеннaя нaбeрeжнaя с дeтcкими и споpтивными плoщадками.Кому подойдёт квартира:1. Молодой семье — удобная планировка, наличие во дворе детской и спортивной площадок, Рядом находятся лицензированные детские сады и школа.2. Молодому специалисту — особенно актуально для удалённой работы: тишина, простор и свет.3. Покупателю нового жилья по критерию «цена/качество» в удобной локации.Документы:Один совершеннолетний собственник. Все документы готовы к сделке.Рассмотрим все варианты оплаты: ипотека, материнский капитал, наличные средства. Если у Вас не одобрена ипотека, обращаетесь, обязательно поможем! ID объекта в нашей базе: 12488
    размещено: 10.04.2026 , обновлено: 19.04.2026
  • 2-к квартира, микрорайон Светлый, 6

    • 60.6 м2
    • 27/29 этаж
    • Состояние: хорошее
    6 800 000 ₽ (112200 ₽/м2)
    ПРОЖИВАНИЕ ПРЕДЫДУЩЕГО СОБСТВЕННИКА ДО 7 июля 2026 г.В продаже двухкомнатная комнатная квартира площадью 60,6 кв.м. расположенная по адресу: г. Екатеринбург, ул. мрн. Светлый д. 6, расположенная на 27 этаже, 29 этажного дома.Квартира выкуплена застройщиком по программе обмена и оформлена на юридическое лицо «Брусника.Обмен». Объект проверен юристами и имеет полный пакет документов.В стоимость квартиры входит: Кухня: раковина со смесителем; Ванная комната: ванна со смесителем, раковина со смесителем. Туалетная комната: унитаз, раковина со смесителем.Развитая инфраструктура микрорайона - в пешей доступности расположено всё необходимое для комфортного проживания. В непосредственной близости расположены остановки общественного транспорта. Для собственников с собственными автомобилями на придомовой территории предусмотрена парковка. Во дворе расположена детская площадка.Способы покупки квартиры:квартиру можно купить в ипотеку;с использованием жилищных сертификатов или материнского семейного капитала;с помощью собственных средств;Юридическое, ипотечное и персональное сопровождение включено в стоимость.Получить дополнительную информацию о квартире и записаться на просмотр вы можете с понедельника по пятницу с 09:00 до 19:00, по телефону. ID объекта в нашей базе: 12470
    размещено: 07.04.2026 , обновлено: 20.04.2026
  • 2-к квартира, Щербакова, 145В

    • 31.7 м2
    • 22/25 этаж
    • Состояние: хорошее
    5 790 000 ₽ (182600 ₽/м2)
    Новая евро-двушка 30,7 м². 22-й этаж, окна во двор, без пыли и грязи. В квартире никто не жил.Отделка от застройщика:Ламинат 32 класса, обои под покраску, в ванной керамическая плитка на полу. Санузел совмещённый. Планировка: кухня-гостиная + спальня.Двор: На стилобате на уровне 2 этажа, закрытый, без машин, видеонаблюдение, две детские и две спортивные площадки, велодорожки и пешеходные дорожки.Локация:- 250 м — остановка до метро «Ботаническая»- Рядом — Уктусский лесопарк и горнолыжный комплекс (20 мин)- Школа (8 мин) и детский сад №16 — рядом- «Пятёрочка» — в шаговой доступностиМебели нет. Показ по звонку. Торг уместен.Один взрослый собственник! ID объекта в нашей базе: 14941
    размещено: 06.04.2026 , обновлено: 19.04.2026
  • 2-к квартира, Прониной, 27

    • 60 м2
    • 8/8 этаж
    • Состояние: идеальное
    6 800 000 ₽ (113300 ₽/м2)
    Продается просторная квартира в ЖК Гринвуд! О КВАРТИРЕ:- пространство в 60 м2 вмещает в себя 2 спальни (около 11 м2 и 16 м2), кухню-гостиную ~ 18 м2, большую ванную комнату и просторный коридор, а также есть лоджия 6 м2 с остеклением в пол- высокие потолки - 2,70 м- большие окна - 70 см от пола выходят на разные стороны, с замечательными видами на лес и на городской пруд- все готово для вашего комфорта - красивый и функциональный кухонный гарнитур со встроенной техникой, шикарная ванная комната, шкаф-купе на весь коридор, а на лоджии можно поставить подходящую мебель для домашних летних чаепитий - все как на фото, остается даже телевизор-отличный вариант для проживания молодых семей, пар, спортсменов и для тех, кто ценит комфорт в городской суетеО ДОМЕ: - в комплексе просторная наземная парковка, а также есть подземный паркинг- детская площадка, лавочки, все под видеонаблюдением, территория комплекса закрытая - коммунальные платежи не высокие: топление по счетчикам, дом очень теплый- два грузо-пассажирских лифта- очень дружные соседи!РАСПОЛОЖЕНИЕ И ИНФРАСТРУКТУРА - своя калитка для выхода в лес- рядом ГЛК Уктус, Родонит, Баден-Баден- все магазины в шаговой доступности - Пятерочки, Жизнь март, парикмахерские, аптека, промтовары, магазин косметики, кафе, Озон, Вайлдбериз, а также остановки транспортаЮРИДИЧЕСКИЕ АСПЕКТЫ - обременений нет, ипотека возможна- один взрослый собственник- документы к сделке готовы, квартира освобожденаНа все остальные вопросы отвечу по телефону и на показе, звоните! ID объекта в нашей базе: 14617
    размещено: 23.03.2026 , обновлено: 20.04.2026

    2-к квартира, Прониной, 34

    • 49.6 м2
    • 4/4 этаж
    • Состояние: удовлетворительное
    4 400 000 ₽ (88700 ₽/м2)
    Продаётся уютная двухкомнатная квартира . Дом кирпичный и очень теплый, расположен вдали от дорог и городской суеты. Общая площадь предлагаемой квартиры составляет 49.6 квадратных метров, жилая площадь - 32.6 квадратных метра. Кухня занимает 6 квадратных метров, предоставляя достаточно места для приготовления пищи и семейных ужинов. Квартира располагается на четвёртом этаже и состоит из двух комнат, где каждый найдёт свой уголок для отдыха и работы( по документам 3 этаж, т.к. есть еще цокольный). Также имеется балкон, где можно наслаждаться свежим воздухом и прекрасным видом на лес или Нижнеисетский пруд. Несмотря на то, что квартира требует ремонта, она предоставляет отличную возможность воплотить СВОИ дизайнерские идеи и создать идеальное жилье по своему вкусу. Расположение дома также заслуживает внимания. Рядом находятся красивые места для прогулок и активного отдыха. Для любителей вкусно покушать поблизости расположены кафе и рестораны, включая популярную Хлебничную и пекарню. Для семей с детьми важным преимуществом является близость детского сада и школы.В шаговой доступности магазины и аптеки. Недалеко остановки общественного транспорта,что позволяет легко добраться до любой точки города. Объект в чистой продаже. Два совершеннолетних собственника. Все чисто и прозрачно. Приглашаем вас ознакомиться с этой прекрасной квартирой, которая ждёт своих новых владельцев и готова стать вашим комфортным домом. ID объекта в нашей базе: 3850
    размещено: 20.03.2026 , обновлено: 16.04.2026

    2-к квартира, Самолётная, 29

    • 43.3 м2
    • 4/5 этаж
    • Состояние: хорошее
    4 800 000 ₽ (110900 ₽/м2)
    Продам 2-х комнатную квартиру. ID объекта в нашей базе: 18545
    размещено: 12.03.2026 , обновлено: 10.04.2026

    2-к квартира, Щербакова, 150

    • 42.8 м2
    • 14/25 этаж
    • Состояние: хорошее
    6 300 000 ₽ (147200 ₽/м2)
    ID объекта в нашей базе: 12164
    размещено: 05.03.2026 , обновлено: 17.04.2026

    2-к квартира, Щербакова, 35

    • 36.6 м2
    • 10/14 этаж
    • Состояние: удовлетворительное
    6 100 000 ₽ (166700 ₽/м2)
    Объект № 197791. Продаётся уютная однокомнатная квартира площадью 35.5 квадратных метров на десятом этаже четырнадцатиэтажного кирпичного дома, расположенного в микрорайоне Уктус города Екатеринбурга. Здание построено в 2007 году и отличается современной архитектурой и комфортными условиями проживания. Внутри квартиры вас ждёт продуманное пространство: жилая площадь составляет 19.1 квадратных метров, кухня занимает 9 квадратных метров, предоставляя достаточно места как для приготовления пищи, так и для семейных ужинов. Современный косметический ремонт позволит вам сразу же въехать и наслаждаться новым жильём без дополнительных вложений. Наличие балкона добавляет дополнительное пространство для отдыха и возможность насладиться видом на тихий двор. Для вашего удобства и безопасности в доме работает консьерж, что гарантирует спокойствие и порядок на территории. Кроме того, во дворе дома обустроены детская и спортивная площадки, где ваши дети смогут активно проводить время на свежем воздухе. Парковка предоставляется прямо во дворе, что значительно упрощает вопрос стоянки автомобиля. Развитая инфраструктура района включает в себя школу, детский сад, торговый центр и фитнес-клуб, обеспечивая всё необходимое для комфортной жизни в шаговой доступности. Приобретая эту квартиру, вы выбираете гармоничное сочетание уединённости зелёного микрорайона и преимуществ городской жизни. Выгода при работе с ГК Новоселе: полная организационная поддержка, как продавца, так и покупателя (все бумаги за вас соберем, поможем с ипотекой, опекой), присутствие на сделке на всех этапах, юридическое сопровождение всех участников, подготовка документов и консультирование, ГК Новосел 25 лет на рынке, члены Уральской палаты недвижимости и Российской гильдии риелторов. Приглашаем вас оценить все преимущества данного предложения лично! ***Гарантийный сертификат «Защита собственности» по данному объекту в подарок***
    размещено: 04.03.2026 , обновлено: 18.04.2026

    2-к квартира, Щербакова, 141

    • 45 м2
    • 4/5 этаж
    • Состояние: хорошее
    4 680 000 ₽ (104000 ₽/м2)
    Пpoдаётся уютнaя 2-x комн. квартира на Уктусе, площaдью 45 кв.м. на 4 этaже 5-ти этажнoгo домa. Дoм поcтpoeн в 1969 гoду. Kомнаты изолирoвaны, eсть бaлкoн. Квapтиpа oчeнь тeплaя.Зeлёный двор, дeтскaя плoщадкa. Инфрacтpуктуpa районa очeнь paзвита. Рядoм нaхoдятcя магазины, школа, детский caд, aптeки, aтельe, тoрговый цeнтр, парк и фитнес-центр, что делает эту локацию особенно привлекательной для семей с детьми. Остаток в "Ипотека24" Просмотры в любое время по договоренности! ID объекта в нашей базе: 5426
    размещено: 02.03.2026 , обновлено: 19.04.2026

    2-к квартира, Шишимская, 22

    • 58.2 м2
    • 1/5 этаж
    • Состояние: хорошее
    4 000 000 ₽ (68700 ₽/м2)
    Отличительная характеристика данного предложения - это отдельный вход с торца здания в секцию на две квартиры. ID объекта в нашей базе: 3801
    размещено: 13.01.2026 , обновлено: 19.04.2026

    2-к квартира, Мраморская, 34/4

    • 43 м2
    • 4/5 этаж
    • Состояние: удовлетворительное
    4 500 000 ₽ (104700 ₽/м2)
    Объект № 196440. Кирпичный, небольшой одноподъездный дом находится в глубине двора. Окна квартиры выходят на две стороны. Ванна с туалетом изолированы. Комнаты имеют правильную форму. Большая лоджия с которой открывается великолепный обзор на двор и окрестности. ***Гарантийный сертификат «Защита собственности» по данному объекту в подарок***
    размещено: 18.12.2025 , обновлено: 13.04.2026

    2-к квартира, Прониной, 34

    • 48 м2
    • 1/4 этаж
    • Состояние: идеальное
    5 270 000 ₽ (109800 ₽/м2)
    Продается светлая и уютная 2- комнатная квартира с готовым евроремонтом .Переезжайте и наслаждайтесь жизнью в экологически чистом районе! В шаговой доступности - лесопарк , рядом горнолыжный комплекс и лыжная база , знаменитый комплекс" Баден- Баден". В шаговой доступности магазины, школы , садики. ID объекта в нашей базе: 18167
    размещено: 24.11.2025 , обновлено: 19.04.2026

    2-к квартира, Щербакова, 5/2

    • 44 м2
    • 4/5 этаж
    • Состояние: хорошее
    5 900 000 ₽ (134100 ₽/м2)
    Объект № 195588. Продается полноценная двухкомнатная квартира на 4 этаже, с балконом. Комнаты просторные. Хороший ремонт в квартире. Вся мебель и техника, что на фото остается. Рядом ТЦ Глобус, Аквапарк, Оканариум. Удобный выезд на ЕКАД и на Шербакова, рядом с домом остановка автобуса, новый детский сад, школа, магазины, лес, Уктусские горы. Звоните, договоримся на просмотр в удобное для вас время. ***Гарантийный сертификат «Защита собственности» по данному объекту в подарок***
    размещено: 12.11.2025 , обновлено: 12.04.2026

    2-к квартира, Прониной, 32

    • 44 м2
    • 4/4 этаж
    • Состояние: идеальное
    5 150 000 ₽ (117000 ₽/м2)
    Продается уютная квартира в престижном и экологически чистом районе города. Идеальное предложение для тех ,кто ценит комфорт , природу и активный образ жизни . Евроремонт: Качественная современная отделка , все инженерные системы новые . Есть перепланировка ( все узаконено).Отличная локация: Район с развитой инфраструктурой.Горнолыжный комплекс , лыжная база и термальный комплекс Баден- Баден в шаговой доступности. Лесопарковая зона прямо за домом - свежий воздух , прогулки и отдых на природе круглый год.В квартире установлены новые металлопластиковые стеклопакеты , современная сантехника и электрика.В квартире остается: кухня; система хранения; шкаф- купе в спальне; душевая кабина; сантехника.В доме в прошлом году был произведен капитальный ремонт.Звоните , чтобы назначить просмотр! Продажа срочная! Торг ! ID объекта в нашей базе: 18062
    размещено: 27.10.2025 , обновлено: 16.04.2026

    2-к квартира, Кошевого, 46

    • 44 м2
    • 5/9 этаж
    • Состояние: удовлетворительное
    4 400 000 ₽ (100000 ₽/м2)
    Объект № 194571. Продаётся уютная двухкомнатная квартира общей площадью 44 кв.м., расположенная в живописном месте Екатеринбурга, Чкаловский район, микрорайон Уктус, с видом из окон комнат на ГРК Уктус. Идеальное предложение для ценителей природы и поклонников активного образа жизни. Пространство спланировано удобно и функционально: комнаты изолированные, санузел раздельный, балкон застеклён, обеспечивая дополнительное пространство для релаксации и созерцания прекрасных видов. Кухня оснащена мебелью, готовой к приёму новых хозяев. Квартире требуется косметический ремонт. Окружающая инфраструктура включает всё необходимое для комфортной семейной жизни: рядом находятся детские сады №454 и №47, средняя школа №59, Екатеринбургский Политехникум, создавая благоприятные условия для воспитания детей и подростков. Для ежедневных покупок и развлечений в шаговой доступности расположены крупный торговый центр «Глобус», также аквапарк «Лимпопо», Океанариум, Ледовая Арена, а также новая средняя школа «Перспектива» №300, всего в 15 минутах на автомобиле. Это место идеально подходит как для молодых семей, так и для инвесторов, стремящихся приобрести недвижимость в привлекательном районе ВНЕСЕН АВАНС. ***Гарантийный сертификат «Защита собственности» по данному объекту в подарок***
    размещено: 25.09.2025 , обновлено: 13.04.2026

    2-к квартира, микрорайон Светлый, 5

    • 56.3 м2
    • 15/25 этаж
    • Состояние: хорошее
    6 200 000 ₽ (110100 ₽/м2)
    ПРОСТОРНАЯ ДВУШКА В СВЕТЛОМУдачная планировка: одна спальня компактная и уютная, вторая — просторнейшая, где хватит места и для семьи, и для рабочего кабинета. Дополнительно — большая лоджия с прекрасным видом и чистейшим воздухом.Квартира полностью готова к проживанию: есть мебель и техника, можно сразу заезжать и жить. При желании легко освежить ремонт под свой стиль. В доме работает собственное ТСЖ — единственное в районе, поэтому все бытовые вопросы решаются оперативно, а содержание дома всегда на высоком уровне.Юридическая чистота стопроцентная: один взрослый собственник, без обременений, ипотек, материнского капитала и любых субсидий. Сделка быстрая и прозрачная.Микрорайон «Светлый» — это новый и экологичный район Екатеринбурга. Закрытые дворы, современные детские и спортивные площадки, магазины, кофейни и аптеки прямо в шаговой доступности. Рядом лес и Нижне-Исетский пруд — свежий воздух и красивые виды, при этом до центра города удобно добираться на машине или общественном транспорте. Отличное сочетание комфорта, природы и развитой инфраструктуры.Эта квартира — идеальный вариант для семьи, пары или тех, кто ищет готовое решение без лишних хлопот. Заезжай и живи припеваючи! ID объекта в нашей базе: 11253
    размещено: 11.09.2025 , обновлено: 6.04.2026

    2-к квартира, Походная, 72

    • 48 м2
    • 6/11 этаж
    • Состояние: удовлетворительное
    4 790 000 ₽ (99800 ₽/м2)
    Объект № 192916. Светлая, просторная квартира с отличной планировкой. Дом в одном из самых зеленых районов. В шаговой доступности школы, дет сады, магазины, остановки общественного транспорта. Все, что нужно для комфортной жизни! Прекрасный лесопарк с горнолыжной трассой. Ждем Вас на просмотр! ***Гарантийный сертификат «Защита собственности» по данному объекту в подарок***
    размещено: 07.07.2025 , обновлено: 19.04.2026

Новостройки Екатеринбург, мкр-н. Уктус

Приоритет

Увеличивает просмотры в 3 раза

Ваше объявление показывается в списке выше обычных объявлений. подключить