На Метре реклама - только нормальная. Никакого шок-контента.
Помогайте независимому ресурсу, как он помогает вам. Удачи!
Новостройки Котт. посёлки Объявления Динамика цен и сделок

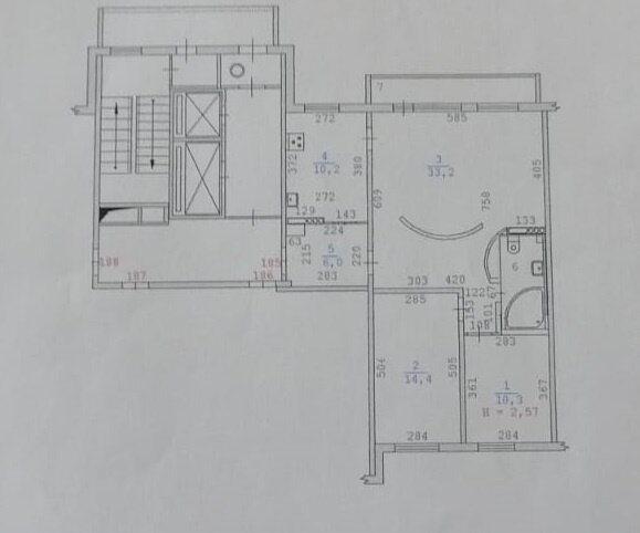
Продажа квартиры: Екатеринбург, ул. Крестинского, 37/1 (Ботанический)

  • опубликовано 2.10.2023 , обновлено 13.11.2025
  • 69
Рынок:вторичный
Количество комнат:3
Общая площадь:79 м2
Жилая площадь:58 м2
Площадь кухни:10.2 м2
Этаж/Этажность дома:12 / 12
Санузел:совмещенный
Отделка:евроремонт
Балкон/лоджия:лоджия
Состояние:идеальное
Цена:
7 848 000
Объявление снято с публикации
Коммунальные платежи:оплачиваются отдельно
Ипотека:возможна

СРОЧНО ПРОДАМ!!! Отличная квартира, с продуманной планировкой (была сделана перепланировка, которая согласована) - увеличена гостиная, продумана просторная прихожая, совместили санузел, в котором удобно расположилась ванна джакузи. В санузле сделан теплый пол, который обогревается за счет горячей воды. Две отдельные изолированные комнаты, которые удобно подойдут под детскую комнату и спальню родителей. В прихожей удобно расположился шкаф-купе, который остается в подарок новым хозяевам. Так же в подарок новым собственникам остается встроенная кухня, водонагреватель. В доме создано свое ТСЖ, в связи с этим коммунальные платежи ниже, чем в аналогичных домах. Готовы рассмотреть все виды оплат, кроме рассрочки!!! РЕАЛЬНОМУ ПОКУПАТЕЛЮ ТОРГ!!!
ID объекта в нашей базе: 23474

Объявление снято с публикации

Ипотечный калькулятор

лет
%
Сумма кредита
7848000 ₽
Платеж
22 540 ₽

История предложений в этом доме

объявление снято с публикации в продаже комнат площадь этаж цена,
Екатеринбург, ул. Крестинского, 37/1 (Ботанический) - фото квартиры 27 мая 2024 90 дн. 3 78.8 11/12 8 200 000
Екатеринбург, ул. Крестинского, 37/1 (Ботанический) - фото квартиры 28 ноября 2023 90 дн. 3 80 5/12 7 600 000
Екатеринбург, ул. Крестинского, 37/1 (Ботанический) - фото квартиры 31 мая 2024 90 дн. 2 48 3/12 6 570 000
Екатеринбург, ул. Крестинского, 37/1 (Ботанический) - фото квартиры 12 сентября 2023 90 дн. 3 78.8 11/12 8 000 000
Екатеринбург, ул. Крестинского, 37/1 (Ботанический) - фото квартиры 21 июля 2023 90 дн. 3 78.8 11/12 8 000 000
Екатеринбург, ул. Крестинского, 37/1 (Ботанический) - фото квартиры 3 октября 2023 90 дн. 3 79 12/12 7 998 000
Екатеринбург, ул. Крестинского, 37/1 (Ботанический) - фото квартиры 31 мая 2023 90 дн. 3 78.5 12/12 8 400 000
Екатеринбург, ул. Крестинского, 37/1 (Ботанический) - фото квартиры 20 октября 2022 90 дн. 3 78.6 12/12 8 990 000
Екатеринбург, ул. Крестинского, 37/1 (Ботанический) - фото квартиры 21 января 2022 90 дн. 1 32.9 6/12 4 200 000
Екатеринбург, ул. Крестинского, 37/1 (Ботанический) - фото квартиры 17 декабря 2021 90 дн. 1 32.9 6/12 4 200 000
Екатеринбург, ул. Крестинского, 37/1 (Ботанический) - фото квартиры 3 декабря 2021 90 дн. 1 33.1 5/12 3 900 000
25 ноября 2021 90 дн. 1 33.1 5/12 3 800 000
Екатеринбург, ул. Крестинского, 37/1 (Ботанический) - фото квартиры 6 августа 2021 90 дн. 3 80 2/12 5 700 000
Екатеринбург, ул. Крестинского, 37/1 (Ботанический) - фото квартиры 18 июня 2021 90 дн. 4 78.3 10/12 6 550 000
Екатеринбург, ул. Крестинского, 37/1 (Ботанический) - фото квартиры 11 июня 2021 90 дн. 2 65 7/12 5 000 000
Екатеринбург, ул. Крестинского, 37/1 (Ботанический) - фото квартиры 10 июня 2021 90 дн. 4 78.3 10/12 6 550 000
Екатеринбург, ул. Крестинского, 37/1 (Ботанический) - фото квартиры 18 января 2022 90 дн. 2 65.7 6/12 5 300 000
Екатеринбург, ул. Крестинского, 37/1 (Ботанический) - фото квартиры 30 марта 2021 90 дн. 3 65.7 6/12 5 000 000
Екатеринбург, ул. Крестинского, 37/1 (Ботанический) - фото квартиры 2 февраля 2021 90 дн. 3 79 1/12 5 490 000
Екатеринбург, ул. Крестинского, 37/1 (Ботанический) - фото квартиры 24 декабря 2020 90 дн. 3 65.7 6/12 4 650 000
Екатеринбург, ул. Крестинского, 37/1 (Ботанический) - фото квартиры 30 октября 2020 90 дн. 2 48 1/12 3 660 000
Екатеринбург, ул. Крестинского, 37/1 (Ботанический) - фото квартиры 24 декабря 2020 90 дн. 2 65.7 6/12 4 650 000
Екатеринбург, ул. Крестинского, 37/1 (Ботанический) - фото квартиры 11 марта 2020 90 дн. 1 33.5 9/12 2 700 000
23 января 2014 61 дн. 1 33 12/12 3 000 000
27 июля 2011 61 дн. 3 80 8/12 4 100 000
13 января 2011 122 дн. 2 47 2/12 2 960 000

Похожие предложения о продаже квартир в Екатеринбурге (Ботанический)

  • 3-к квартира, Родонитовая, 8

    • 64 м2
    • 1/10 этаж
    • Состояние: удовлетворительное
    7 800 000 ₽ (121900 ₽/м2)
    Предлагаем отличную 3 комнатную квартиру в одном из центральных районах города Ботанический. Огромная кухня-гостиная 25 кв.м. (перепланировка узаконена), две изолированные комнаты 11,4 и 12.1 кв.м. В комнатах был выполнен ремонт. В коридоре оборудована большая гардеробная. Будущим хозяевам остается прекрасный дорогой кухонный гарнитур с техникой.Первый этаж высокий, на окнах и лоджии установлены стеклопакеты. Также имеется большой подпол для хранения, в длину лоджии. В доме свое ТСЖ. Двор закрыт шлагбаумом. Система видеонаблюдения во дворе и подъездах. Парковочные места во дворе. В подъезде есть колясочная для вашего удобства, велосипеды, детский инвентарь можно оставлять там.Район уникален по своему расположению и сложившейся инфраструктуре. Детские сады, лицей, гимназия, школы развития для детей, спортивные клубы, поликлиника, магазины и конечно все виды общественного транспорта, включая метро, в шаговой доступности. В ближайшем будущем и Южный автовокзал. Район за несколько лет превратился в зеленый оазис, есть где прогуляться с детьми, домашними питомцами.Квартира в ипотеке Сбербанка (небольшой остаток). Ждем на просмотры в удобное для вас время ID объекта в нашей базе: 833
    размещено: 08.12.2025 , обновлено: 8.12.2025
  • 3-к квартира, Академика Шварца, 18/1

    • 78.3 м2
    • 2/12 этаж
    • Состояние: удовлетворительное
    8 400 000 ₽ (107300 ₽/м2)
    Просторная трехкомнатная квартира в микрорайоне Ботанический. Большая гостиная, две изолированные спальни, раздельный санузел, просторная кухня. В квартире требуется ремонт.Окна выходят на разные стороны. Во дворе детская площадка. Рядом прогулочные зоны, спортивные и детские площадки, бульвары. Прекрасное местоположение: остановки общественного транспорта в любую точку города и станция метро Ботаническая в шаговой доступности, развитая инфраструктура микрорайона: детские сады, школы, торговые центры, взрослая и детская поликлиники, многочисленные медицинские, спортивные и фитнесс центры, кафе, рестораны, торговые центры. ID объекта в нашей базе: 26129
    размещено: 11.11.2025 , обновлено: 12.12.2025
  • 3-к квартира, Крестинского, 37к1

    • 80.1 м2
    • 12/12 этаж
    • Состояние: хорошее
    9 500 000 ₽ (118600 ₽/м2)
    ???? Продаётся уникальная трёхкомнатная квартира с шикарной гостиной! ???? ул. Крестинского, 37к1✨ Мечтаете о пространстве для жизни? Эта квартира — ваш идеальный вариант! Благодаря узаконенной перепланировке вы получаете не просто жилье, а просторную территорию для комфорта и вдохновения! ✨???? ОСОБЕННОСТИ КВАРТИРЫ:✅ ШИКАРНАЯ КУХНЯ-ГОСТИНАЯ 35 М² — это сердце квартиры! Идеально для вечеринок с друзьями, семейных ужинов и уютных вечеров у телевизора! ????️????✅ ВЫДЕЛЕННАЯ КУХНЯ 11 М² — для тех, кто ценит уют и функциональность!✅ ПЕРЕПЛАНИРОВКА ИЗ 4-КОМНАТНОЙ УЗАКОНЕНА — все легально, никаких хлопот! ????✅✅ Просторные комнаты — каждый найдет свой личный уголок. ????️???????????? О ДОМЕ И ПОДЪЕЗДЕ:• Дом 1997 года, но чувствует себя отлично! Установлены НОВЫЕ ЛИФТЫ — комфорт и безопасность! ????️????• Управляющая компания — в соседнем доме, всё под рукой.• Этаж с отдельным входом — всего 5 квартир, что создает атмосферу камерности и уюта! ???????????? ВСЯ ИНФРАСТРУКТURA РЯДОМ:• Школы №32, №200, Лицей №180 ????????• Детские сады №223, №586 ????????• Городская больница №24 ????❤️• ТЦ «Дирижабль» — покупки и развлечения! ????️????• Метро «Ботаническая» — легко добраться в любую точку города! ????⏱️• Южный парк и Ботанический сад — для прогулок и отдыха на природе! ????????????‍♀️???? ДЛЯ ВАС:• Показ квартиры — по предварительной договоренности. ????• Ключи на руках — можем показать в удобное для вас время! ????• БЫСТРЫЙ ВЫХОД НА СДЕЛКУ — без задержек и проволочек! ⚡Не упустите шанс купить не просто квартиру, а место для новой, счастливой жизни! ????Звоните, чтобы увидеть всё своими глазами! ID объекта в нашей базе: 12319
    размещено: 06.11.2025 , обновлено: 8.12.2025
  • 3-к квартира, Крестинского, 51

    • 64 м2
    • 2/12 этаж
    • Состояние: удовлетворительное
    8 500 000 ₽ (132800 ₽/м2)
    Объект № 191909. Продаётся отличная трехкомнатная квартира! Общая площадь 64,9 кв.м. Этаж 2 из 12. Просторная, уютная квартира с хорошо спланированным пространством. Все комнаты изолированы друг от друга, что обеспечит каждому члену семьи личное пространство. Балкон застеклён, который можно использовать как личный кабинет, зону отдыха, зимний сад, спортивный уголок или даже мини-огород. Можно обустроить детскую игровую комнату, создав прекрасное место для досуга и развития ребёнка. Выделено удобное место под гардеробную. Есть возможность расширения пространства за счёт балкона, превратив его в дополнительную полезную площадь. Раздельный санузел гарантирует дополнительный комфорт для большой семьи. Требуется ремонт, позволяя реализовать любые идеи дизайна интерьера. Всё необходимое оборудование установлено и исправно функционирует, включая водосчётчики, прошедшие проверку в 2024 году. Материал стен- Панель. Централизованное отопление. Управляющая компания Чкаловская. Эта квартира станет прекрасным выбором для тех, кто хочет начать новую главу своей жизни в удобном месте, предлагая большие перспективы для комфортного проживания и индивидуального обустройства собственного пространства. ***Гарантийный сертификат «Защита собственности» по данному объекту в подарок***
    размещено: 16.05.2025 , обновлено: 11.11.2025
  • 3-к квартира, Академика Шварца, 18/1

    • 79 м2
    • 10/12 этаж
    • Состояние: хорошее
    9 200 000 ₽ (116500 ₽/м2)
    Предлагается трехкомнатная квартира на 10 этаже, идеально подходящая для комфортного семейного проживания. В квартире расположены три изолированные спальни и просторная кухня, а также раздельный санузел, что обеспечивает удобство и уединение для всех членов семьи. Удобное расположение — всего в нескольких минутах пешком находятся метро, автобусы и трамваи, что гарантирует быстрый доступ к различным районам города и отличную транспортную развязку. Рядом расположена вся необходимая инфраструктура: школы, детские сады, торговые центры и больницы, что делает это жилье оптимальным выбором для семьи, ищущей комфорт и удобство. - ID объекта в нашей базе: 11530
    размещено: 21.07.2025 , обновлено: 13.12.2025

    3-к квартира, Академика Шварца, 6/2

    • 78.5 м2
    • 4/10 этаж
    • Состояние: хорошее
    9 590 000 ₽ (122200 ₽/м2)
    В продаже уютная ,светлая трехкомнатная квартира, площадью 78,5м.кв. в микрорайоне Ботаника. Окна выходят на две стороны-восток, запад. ДОМ:1999 года постройки, материал стен: панель.Дом обслуживает ТСЖ " Шварца 6 кор2",что позволяет существенно снижать коммунальные платежи.Закрытая территория с собственной парковкой. Осуществляется круглосуточное видеонаблюдение диспетчерами.Спокойные, дружелюбные соседи.КВАРТИРА: Ремонт косметический. В просторной гостиной площадью 22 м.кв., с выходом на лоджию, два окна, что позволяет зонировать пространство. На застекленной лоджии установлены вместительные шкафы для хранения. Так же в квартире установлены новые стеклопакеты. Санузел раздельный, требуется ремонт.Заменены трубы холодного водоснабжения, канализации. Установлены счетчики холодного, горячего водоснабжения.Установлен двухтарифный счетчик электрической энергии.ИНФРАСТРУКТУРА: В шаговой доступности школы№ 32,200,197, гимназия №177, лицей №180, муниципальные и частные детские сады, продуктовые супермаркеты : Окей, Яблоко, Пятерочка, детская и взрослая поликлиники, ТРЦ Дирижабль, Ботаника молл. В 5 минутах пешком от дома- станция метро Ботаническая. Автобусная, троллейбусная остановка. До центра города 10 минут езды. Удобный выезд на автомобиле на Челябинское, Кольцовское направление, Сибирский и Пермский тракт.ЮРИДИЧЕСКАЯ ЧИСТОТА: Квартира без обременений, залогов, арестов. Один взрослый собственник с момента постройки дома. Продажа обусловлена последующей покупкой. Просмотры по договоренности. ID объекта в нашей базе: 8028
    размещено: 11.05.2025 , обновлено: 24.11.2025

Новостройки Екатеринбург, мкр-н. Ботанический

Приоритет

Увеличивает просмотры в 3 раза

Ваше объявление показывается в списке выше обычных объявлений. подключить