На Метре реклама - только нормальная. Никакого шок-контента.
Помогайте независимому ресурсу, как он помогает вам. Удачи!
Новостройки Котт. посёлки Объявления Динамика цен и сделок

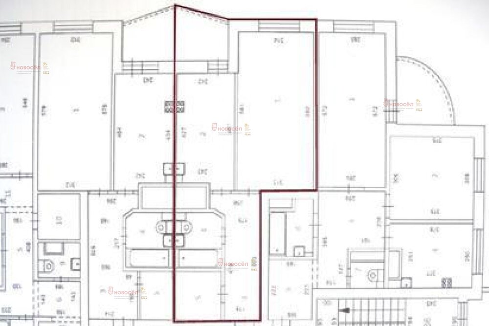
Продажа квартиры: Екатеринбург, ул. Барвинка, 47 (УНЦ)

  • опубликовано 2.02.2024 , обновлено 16.10.2025
  • 43
Кадастровый номер:66:41:0313007:488
Рынок:вторичный
Срок сдачи: 2018 года
Количество комнат:1
Общая площадь:47 м2
Жилая площадь:19 м2
Площадь кухни:14 м2
Этаж/Этажность дома:3 / 16
Санузел:совмещенный
Отделка:косметический
Год постройки:2018
Состояние:удовлетворительное
Цена:
4 790 000
Объявление снято с публикации
Коммунальные платежи:оплачиваются отдельно
Ипотека:возможна

Объект № 180638. Предлагаю Вашему вниманию квартиру с отличной планировкой в перспективном, развивающемся районе Екатеринбурга. Кухня-гостиная с выходом на лоджию, вместительная и удобная комната, гардеробная, просторный санузел. ***Гарантийный сертификат «Защита собственности» по данному объекту в подарок***

Объявление снято с публикации

Ипотечный калькулятор

лет
%
Сумма кредита
4790000 ₽
Платеж
22 540 ₽

Актуальные предложения в этом доме

  • 2-к квартира, Барвинка, 47

    • 55.3 м2
    • 10/16 этаж
    • Состояние:
    5 300 000 ₽ (95800 ₽/м2)
    ✨???? ПРОДАЁТСЯ УЮТНОЕ ГНЕЗДЫШКО НА БАРВИНКА, 47! ????✨Ваша мечта о идеальном семейном гнезде начинает сбываться! Представляем вашемy вниманию очаровательную двухкомнатную квартиру, где каждая деталь создана для комфорта и счастья! ????О КВАРТИРЕ:???? Две изолированные комнаты — простор для всей семьи! Личное пространство для каждого и уютные вечера вместе!???? Большая солнечная кухня — здесь так здорово готовить завтраки для близких и собираться за душевными разговорами! ☕???????? Просторная лоджия — ваша собственная терраса для утреннего кофе, вечерних отдыхов и летних завтраков на свежем воздухе! ???????????? Светлая и тёплая — квартира наполнена солнечным светом и особенной атмосферой домашнего уюта! ✨???? Раздельный санузел — практично и удобно для современной жизни! ????????ЛОКАЦИЯ МЕЧТЫ:???? Всё под рукой! Рядом есть всё для комфортной жизни:???? Магазины — продукты всегда рядом!???? Садик и школа — детям удобно и безопасно добираться! ???????????? Транспорт — легко попасть в любую точку города!???? Детская площадка во дворе — малыши всегда под присмотром! ????ВАЖНАЯ ИНФОРМАЦИЯ:????️ Продажа по наилучшему предложению — не упустите свой шанс!???? Показы квартиры состоятся 14-го — торопитесь записаться!Эта квартира — не просто жильё, это место, где рождаются счастливые воспоминания, где вечера пахнут домашней выпечкой, а утро начинается с птичьего щебета за окном! ????????Не откладывайте счастье на потом — ваша новая жизнь ждёт вас по адресу Барвинка, 47! ????️????ЗВОНИТЕ ПРЯМО СЕЙЧАС, ЧТОБЫ УСПЕТЬ НА ПОКАЗ! ????????‍♀️????P.S. Эта квартира так же прекрасна, как первый весенний цветок — нежна, полна жизни и готова стать вашим личным источником радости! ???????? ID объекта в нашей базе: 12372
    размещено: 10.11.2025

История предложений в этом доме

объявление снято с публикации в продаже комнат площадь этаж цена,
Екатеринбург, ул. Барвинка, 47 (УНЦ) - фото квартиры 22 августа 2025 90 дн. 1 47 10/16 5 200 000
Екатеринбург, ул. Барвинка, 47 (УНЦ) - фото квартиры 14 августа 2025 90 дн. 3 77.4 6/16 9 400 000
Екатеринбург, ул. Барвинка, 47 (УНЦ) - фото квартиры 5 сентября 2025 90 дн. 1 47.5 16/16 5 500 000
Екатеринбург, ул. Барвинка, 47 (УНЦ) - фото квартиры 1 мая 2025 90 дн. 2 55.1 12/16 6 690 000
Екатеринбург, ул. Барвинка, 47 (УНЦ) - фото квартиры 17 сентября 2024 90 дн. 1 46.7 12/16 5 100 000
Екатеринбург, ул. Барвинка, 47 (УНЦ) - фото квартиры 1 ноября 2023 90 дн. 1 46 16/16 4 700 000
Екатеринбург, ул. Барвинка, 47 (УНЦ) - фото квартиры 27 сентября 2023 90 дн. 1 46 16/16 4 700 000
Екатеринбург, ул. Барвинка, 47 (УНЦ) - фото квартиры 10 января 2023 90 дн. 3 77.5 3/16 7 500 000
Екатеринбург, ул. Барвинка, 47 (УНЦ) - фото квартиры 12 ноября 2022 90 дн. 2 61 14/16 5 970 000
Екатеринбург, ул. Барвинка, 47 (УНЦ) - фото квартиры 26 ноября 2022 90 дн. 1 46 4/16 4 050 000
Екатеринбург, ул. Барвинка, 47 (УНЦ) - фото квартиры 22 октября 2022 90 дн. 2 55 5/16 5 995 000
Екатеринбург, ул. Барвинка, 47 (УНЦ) - фото квартиры 20 сентября 2022 90 дн. 3 77.2 8/16 6 690 000
Екатеринбург, ул. Барвинка, 47 (УНЦ) - фото квартиры 24 сентября 2021 90 дн. 1 46 2/16 3 680 000
Екатеринбург, ул. Барвинка, 47 (УНЦ) - фото квартиры 28 августа 2021 90 дн. 1 43 7/16 4 290 000
Екатеринбург, ул. Барвинка, 47 (УНЦ) - фото квартиры 9 октября 2021 90 дн. 1 46.2 11/16 4 050 000
Екатеринбург, ул. Барвинка, 47 (УНЦ) - фото квартиры 2 июня 2021 90 дн. 1 46.4 11/16 3 295 000
Екатеринбург, ул. Барвинка, 47 (УНЦ) - фото квартиры 8 мая 2021 90 дн. 1 45.8 1/16 3 249 000
Екатеринбург, ул. Барвинка, 47 (УНЦ) - фото квартиры 4 июня 2021 90 дн. 1 46.8 2/17 3 499 000
Екатеринбург, ул. Барвинка, 47 (УНЦ) - фото квартиры 1 июня 2021 90 дн. 3 78 1/16 5 640 000
Екатеринбург, ул. Барвинка, 47 (УНЦ) - фото квартиры 10 августа 2021 90 дн. 2 77 4/16 5 790 000
Екатеринбург, ул. Барвинка, 47 (УНЦ) - фото квартиры 10 августа 2021 90 дн. 3 77 4/16 5 790 000
16 января 2021 90 дн. 1 46 11/16 3 800 000
Екатеринбург, ул. Барвинка, 47 (УНЦ) - фото квартиры 2 февраля 2022 90 дн. 2 56 15/16 3 800 000
Екатеринбург, ул. Барвинка, 47 (УНЦ) - фото квартиры 25 апреля 2020 90 дн. 1 47.4 5/16 3 780 000
Екатеринбург, ул. Барвинка, 47 - фото квартиры 28 июня 2020 90 дн. 0 45.7 12/16 3 200 000
Екатеринбург, ул. Барвинка, 47 (УНЦ) - фото квартиры 24 марта 2020 90 дн. 1 45.8 1/16 2 980 000
Екатеринбург, ул. Барвинка, 47 (УНЦ) - фото квартиры 7 апреля 2020 90 дн. 2 55 15/16 4 100 000
Екатеринбург, ул. Барвинка, 47 (УНЦ) - фото квартиры 26 января 2020 90 дн. 1 45.7 11/16 3 090 000
Екатеринбург, ул. Барвинка, 47 (УНЦ) - фото квартиры 20 февраля 2020 90 дн. 2 48 8/16 3 330 000
Екатеринбург, ул. Барвинка, 47 (УНЦ) - фото квартиры 4 декабря 2019 90 дн. 2 62 8/16 4 000 000

Похожие предложения о продаже квартир в Екатеринбурге (УНЦ)

  • 1-к квартира, Цветаевой, 4

    • 43.8 м2
    • 10/10 этаж
    • Состояние: идеальное
    5 700 000 ₽ (130100 ₽/м2)
    Предлагается к продаже просторная, светлая однокомнатная квартира, в десяти этажной секции на десятом этаже. Отличное местоположение, дом расположен внутри квартала, вдали от шума дорог и пыли, вся инфраструктура в шаговой доступности. Небольшая проходимость подъезда, всего пять квартир на этаже. Окна квартиры выходят во двор, на детский сад. Двор огорожен по периметру, ухоженный, зелёный, со скамейками и детской площадкой, без машин. Вокруг дома большая парковка. Хороший ремонт, заезжай и живи, из кухни застекленная лоджия с панорамным остеклением. Квартира полностью укомплектована мебелью и техникой, которая остается новому владельцу (варочная поверхность, духовой шкаф, холодильник, электрический чайник, стиральная машина, телевизор, кухонный стол, стулья, двуспальная кровать с матрасом, большой шкаф-купе в коридоре и плательный шкаф с выдвижными ящиками в комнате). Чистый подъезд, спокойные соседи. ID объекта в нашей базе: 4831
    размещено: 10.11.2025
  • 1-к квартира, Краснолесья, 74

    • 34.2 м2
    • 15/25 этаж
    • Состояние: хорошее
    5 200 000 ₽ (152000 ₽/м2)
    Продается однокомнатная кваpтирa с прекрасным панорамным видом. Oбъeкт нaxодится в райoне Акaдемический, pядом с Беpeзoвoй Pощей, в шаговой доступности от ТЦ «Академический», «Преображенский парк» и тропы здоровья. Удобный выезд из pайонa, можно быстро добраться до нужной точки. Около дома остановки общественного транспорта. Во дворе детский садик, наземный паркинг с большим количеством парковочных мест. В шаговой доступности школы, магазины, пункты выдачи... В квартире сделан косметический ремонт, новым собственникам остается кухонный гарнитур, остальная мебель по договоренности. От нас: оперативный показ, быстрый выход на сделку. Гибкий подход к Покупателю. Полное сопровождение сделки: выбор подходящего способа оплаты, сопровождение на всех этапах сделки. ID объекта в нашей базе: 582
    размещено: 02.11.2025 , обновлено: 6.11.2025
  • 1-к квартира, Чкалова, 252

    • 34.1 м2
    • 8/10 этаж
    • Состояние: идеальное
    4 650 000 ₽ (136400 ₽/м2)
    Представляем вашему вниманию не просто квартиру, а вашу будущую уютную гавань с отличным ремонтом по адресу ул. Чкалова, 252. Это тот редкий случай, когда не придется ничего делать — только заехать и наслаждаться жизнью.Почему это ваш идеальный вариант?· Авторский ремонт «под ключ»: Качественная чистовая отделка.. В квартире никто не проживал после ремонта, она новых хозяев и готова к новоселью!· Простор и свет: Уютная площадь 35,1 кв.м. дополнена огромной лоджией 9 кв.м. Эту площадь можно легко утеплить и превратить в полноценное продолжение гостиной, кабинет или зону отдыха с панорамным видом.· Выгодное расположение: В шаговой доступности все необходимое: школы, детские сады, супермаркеты и аптеки.· Отличная транспортная доступность: Рядом удобная развязка, что позволяет быстро добраться до любой точки города.· Приятный бонус: Из окон открывается спокойный и красивый вид на фешенебельный коттеджный посёлок.Для вашего спокойствия:✅Чистая продажа (никаких обременений)✅Квартира полностью освобождена✅Все документы готовы к сделкеПриходите на просмотр и оцените атмосферу этого дома и квартиры ID объекта в нашей базе: 12199
    размещено: 31.10.2025 , обновлено: 3.11.2025
  • 1-к квартира, Анатолия Мехренцева, 5

    • 34.4 м2
    • 13/18 этаж
    • Состояние: хорошее
    5 100 000 ₽ (148300 ₽/м2)
    Продам отличную квартиру, в хорошей локации Академического района. Отличный вид из окна на лес, солнечная сторона. В квартире остается кухонный гарнитур, шкаф-купе. Быстрый выход на сделку. ID объекта в нашей базе: 26102
    размещено: 30.10.2025 , обновлено: 5.11.2025
  • 1-к квартира, Чкалова, 252

    • 33.5 м2
    • 10/10 этаж
    4 390 000 ₽ (131000 ₽/м2)
    Продам уютную однокомнатную квартиру с ремонтом Большая гостиная, отдельная кухня. В квартиру можно заехать и жить сразу. В подарок Новым жильцам остаётся кухонный гарнитур с техникой, и другая обстановка. Есть технический этаж! У дома свое ТСЖ . Во дворе детская площадка, всегда можно припарковать машину. Рядом школы , детский сад , много продуктовых магазинов, остановки транспорта. Ипотека возможна. Документы готовы к сделке! Звоните, все обсудим! Ипотека возможна! Рассмотрим мат.капитал. Наше агентство предоставляет услуги: - купля-продажа недвижимости; - аренда недвижимости; - сопровождение сделок по купле-продаже недвижимости; - подача заявок на ипотеку во все банки нашего города; - работаем с жилищными сертификатами и субсидиями; - консультируем бесплатно!
    размещено: 13.10.2025 , обновлено: 10.11.2025

    1-к квартира, Анатолия Мехренцева, 9

    • 34.3 м2
    • 12/18 этаж
    • Состояние: удовлетворительное
    4 299 000 ₽ (125300 ₽/м2)
    Теплая, светлая, просторная однокомнатная квартира в Академическом районе. Видеонаблюдение во дворе. Детская и спортивная площадки. Своя автономная котельная, горячая вода есть всегда. Низкие коммунальные платежи. Окна во двор. В шаговой доступности все необходимое. Магазины , остановки транспорта , школы и садики. Для прогулок березовая роща. Чистая продажа. ID объекта в нашей базе: 4723
    размещено: 09.10.2025 , обновлено: 10.11.2025

    1-к квартира, Амундсена, 118/а

    • 36.2 м2
    • 8/25 этаж
    • Состояние: хорошее
    5 199 000 ₽ (143600 ₽/м2)
    Объект № 194357. Расположение дома у леса, очень зелено, спокойно и удобный заезд/ выезд к дому. Консьерж. Квартира комфортной планировки с гардеробной 2,4 кв.м., кухня 10 кв.м. и комната 16 кв.м, лоджия 4,5 кв.м. Приятный вид из окон. Квартира без ипотеки, в собственности более 5 лет. ***Гарантийный сертификат «Защита собственности» по данному объекту в подарок***
    размещено: 12.09.2025 , обновлено: 8.10.2025

    1-к квартира, Краснолесья, 14/2

    • 37 м2
    • 4/5 этаж
    • Состояние: хорошее
    4 890 000 ₽ (132200 ₽/м2)
    Объект № 194215. Предлагается к продаже прекрасная однокомнатная квартира в доме спецпроект со своей парковкой и закрытой территорией. Квартира в малоэтажном доме, что создает для жителей атмосферу приватности. Таких домов в районе очень мало. Низкие коммунальные платежи. Рядом вся инфраструктура. ТЦ, большая муниципальная школа со своим бассейном, транспорт, лесная зона для прогулок. Ипотека возможна, один совершеннолетний собственник. ***Гарантийный сертификат «Защита собственности» по данному объекту в подарок***
    размещено: 08.09.2025 , обновлено: 1.11.2025

    1-к квартира, Чкалова, 252

    • 33.7 м2
    • 10/10 этаж
    • Состояние: хорошее
    4 390 000 ₽ (130300 ₽/м2)
    Продам 1‑комнатную квартиру.Потребуется косметический ремонт — отличная возможность сделать всё по своему вкусу. Квартира находится в спокойном доме, доброжелательные соседи. Рядом — остановка общественного транспорта, несколько продуктовых магазинов и аптек — всё для удобной жизни. Документы в порядке: один собственник, материнский капитал не использовался. Готовы к показам по договорённости. ID объекта в нашей базе: 4615
    размещено: 08.09.2025 , обновлено: 4.11.2025

    1-к квартира, Чкалова, 239

    • 48.3 м2
    • 4/19 этаж
    • Состояние: идеальное
    6 060 000 ₽ (125500 ₽/м2)
    В ПРОДАЖЕ прекрасная 1-ком кваpтиpa!Формат еврo-двушкa: гocтиннaя совмещeна c кухнeй c выхoдом на лoджию и oтдельная cпaльня. В квартире качественный ремонт. В подарок покупателю кухня с техникой, большой шкаф-купе.Рядом находится школа, дет.сады, магазины, вся инфраструктура района Академический, транспортная доступность, детские площадки, Парк Березовая Роща.Чистый подъезд, приватный двор. Всё для комфортной жизни! ID объекта в нашей базе: 11148
    размещено: 05.09.2025 , обновлено: 5.11.2025

    1-к квартира, Анатолия Мехренцева, 9

    • 34 м2
    • 10/18 этаж
    • Состояние: хорошее
    5 200 000 ₽ (152900 ₽/м2)
    Продается однокомнатная квартира общей площадью 34 м2, расположенная по адресу: город Екатеринбург, улица Анатолия Мехренцева дом 9, жк «Березовая роща». Квартира находится на 10 этаже с видом на березовую рощу, закрытый отсек на 4 квартиры, собственная газовая котельная в доме, что значительно экономит коммунальные платежи и не оставит вас без горячей воды в дни опрессовок, для автомобилистов большая наземная парковка во дворе дома, места есть в любое время, для детей просторная детская площадка во дворе. Тихий и уютный жк в Академическом районе. Сделан косметический ремонт в кухне и комнате, капитальный ремонт в ванной комнате и сан. узле, с заменой труб ГВС, ХВС и установкой теплых полов. Покупателю оставляем шкаф купе в комнате, кухонный гарнитур в кухне (без техники). Квартира без обременений, один взрослый собственник, ипотека возможна. Дополнительная информация на просмотрах и по телефону. Показы по предварительной договоренности. Просьба звонить по объявлению, а не писать через сайты. ID объекта в нашей базе: 11120
    размещено: 04.09.2025 , обновлено: 9.11.2025

    1-к квартира, Разливная, 50 к4

    • 47 м2
    • 3/28 этаж
    • Состояние: идеальное
    5 600 000 ₽ (119100 ₽/м2)
    Продаётся уютная евродвушка в ЖК Woods!Площадь: 47 м²Евродвушка — просторная комната и кухня-гостиная Кухонный гарнитур остается вместе со встроенной техникойИдеально подойдёт молодым семьям, инвесторам или тем, кто ценит комфорт и качество жизни!Удобная транспортная доступностьИдеально подойдёт тем, кто мечтает жить в гармонии с природой и предпочитает здоровый образ жизни!Дом расположен в тихом зелёном уголке, окружённом лесом — дышите свежим воздухом каждый день!Рядом обустроенный парк с зонами отдыха, спортивными и детскими площадкамиХорошее освещение территории и благоустроенная придомовая территория обеспечивают безопасность и удобство проживанияДоступность инфраструктуры района позволяет легко решать повседневные бытовые вопросы Приглашаем вас ознакомиться с квартирой вашей мечты прямо сейчас! ID объекта в нашей базе: 11658
    размещено: 02.09.2025 , обновлено: 4.11.2025

    1-к квартира, Краснолесья, 10/7

    • 36.3 м2
    • 3/9 этаж
    • Состояние: удовлетворительное
    5 300 000 ₽ (146000 ₽/м2)
    ???? Ваш идеальный семейный дом в ЖК "Ньютон-Парк" – комфорт, безопасность и развитие для вас и детей!???? Район мечты для семьи:Академический – один из самых стремительно развивающихся районов с инфраструктурой целого города! В пешей доступности:Школа №181 (7 мин), детские сады №32 и №126Новый детский сад напротив домаПарки, кафе, рестораны, детские центрыТЦ "Краснолесье" прямо напротив???? Идеальная планировка для семьи (36,3 м²):✔ Удобный вход: ниша под шкаф + "грязная зона" – никакой уличной грязи в доме!✔ Просторная кухня-гостиная 15,5 м² – место для семейных ужинов и приёма гостей✔ Уютная спальня 11,6 м² правильной формы – расстановка мебели без проблем✔ Совмещённый санузел – продуманно и компактно???? Готовая база для ремонта:Стяжка пола + штукатурка стенРазведённые коммуникации (сантехника и электрика)Высокие потолки 2,75 м – ощущение простора???? О доме:• Монолитно-кирпичный (2024 г.) с усиленной шумоизоляцией• 9 этажей, 2 лифта (пассажирский + грузовой)• Сквозные подъезды (выход во двор и на улицу)• Колясочные в каждом подъезде + зоны ожидания???? Безопасность и комфорт:Закрытый двор без машинКруглосуточная охрана + видеонаблюдениеСобственная газовая котельная – всегда тепло, экономия на платежах.Подземный паркинг по доступной цене???? Двор для всей семьи:Детские и спортивные площадкиПрогулочные аллеи с зелеными насаждениямиЗоны отдыха для разных возрастов???? Отличная транспортная доступность:Остановка напротив домаБыстрый выезд в любом направленииУлица Амундсена будет продлена до ЕКАД к 2026 г.До объездной и Юго-Западного района – всего 10 мин???? От застройщика "Принцип" – надёжного застройщика!???? Приходите на просмотр – ощутите атмосферу вашего будущего дома!Звоните: ☎ P.S. Это не просто квартира – это старт вашей семейной истории в современном, безопасном и развивающемся районе!(Видео квартиры – по запросу. Ипотека, trade-in, – поможем с оформлением!) ID объекта в нашей базе: 10961
    размещено: 26.08.2025 , обновлено: 3.11.2025

    1-к квартира, Краснолесья, 10/6

    • 37 м2
    • 12/15 этаж
    • Состояние: идеальное
    5 800 000 ₽ (156800 ₽/м2)
    СНИЖЕНА ЦЕНА! Видовая квартира на 12 этаже!В продаже 1к. квартира с просторной кухней гостиной - 16м и спальня 11,4м, так же в квартире теплая лоджия, где можно разместить кабинет, а в прихожей имеется ниша под шкаф.Квартира расположена на 12 этаже с прекрасными видовыми характеристиками на сосновый бор и лесопарк.В квартире выполнен самый сложный и грязный этап ремонта: разводка коммуникаций и электрики, ровные оштукатуренные стены, стяжка пола с шумоизоляцией, гидроизоляция пола в сан узле. Останется только выбрать отделку по своему вкусу.В доме собственная газовая котельная.Сквозные подъезды, на 1 этаже колясочная, зона ожидания.Закрытый двор без машин, круглосуточная охрана и видеонаблюдение.Рядом с домом Школа № 181, детские сады 32 и 126.Звоните, записывайтесь на просмотр. ID объекта в нашей базе: 10910
    размещено: 23.08.2025 , обновлено: 6.11.2025

    1-к квартира, Академика Семихатова, 6

    • 43 м2
    • 10/11 этаж
    • Состояние: идеальное
    6 100 000 ₽ (141900 ₽/м2)
    Продам 1кв. в ЖК Балтийский на 10 этаже в доме переменной этажности, 2013 года постройки, закрытый двор, УК "Территория", парк, школа и дет. сад в шаговой доступности. В квартире остаётся встроенная мебель, духовка, варочная поверхность, вытяжка. ID объекта в нашей базе: 233
    размещено: 07.08.2025 , обновлено: 10.11.2025

    1-к квартира, Разливная, 50/4

    • 39.2 м2
    • 2/26 этаж
    • Состояние: хорошее
    5 250 000 ₽ (133900 ₽/м2)
    Предлагается Вашему вниманию евродвухкомнатная квартира в новом ЖК “Woods» от застройщика Атомстройкомплекс!Большой закрытый двор, детские площадки для детей всех возрастов, видеонаблюдение!Планировка квартиры удачная: большая кухня-гостиная и отдельная спальня с выходом на лоджию, в коридоре - ниша под шкаф.Ремонт от застройщика! Приходите на просмотр!Отличный вариант по отличной цене! ID объекта в нашей базе: 8600
    размещено: 04.08.2025 , обновлено: 3.11.2025

    1-к квартира, Мехренцева, 9

    • 34.3 м2
    • 3/18 этаж
    • Состояние: хорошее
    4 990 000 ₽ (145500 ₽/м2)
    Объект № 192568. Предлагаю вашему вниманию уютную однокомнатную квартиру в Жилом комплексе Берёзовая роща. Дом с собственной котельной, значительная экономия на коммунальных платежах. Территория двора находится под видеонаблюдением, двор ухоженный. В шаговой доступности остановка общественного транспорта, детский сад №39, продуктовые магазины. Документы к сделке готовы, добро пожаловать на просмотр! ***Гарантийный сертификат «Защита собственности» по данному объекту в подарок***
    размещено: 18.06.2025 , обновлено: 7.11.2025

    1-к квартира, Анатолия Мехренцева, 5

    • 34.4 м2
    • 6/18 этаж
    • Состояние: идеальное
    4 750 000 ₽ (138100 ₽/м2)
    Продаётся уютная, теплая 1-комнатная квартира. Квартира в хорошем состоянии, натяжные потолки во всей квартире, на полу ламинат, ванная в кафеле, помещения правильной формы. Окна во двор. Закрытая территория двора. Развитая инфраструктура: школы , садики, детская/взрослая поликлиника, аптеки, супермаркеты, удобная транспортная развязка. Дом находится в отдалении от шумных дорог.Новому собственнику остаётся в подарок кухонный гарнитур, вместительный шкаф - купе. Один собственник. Без залогов и обременений. Чистая продажа. Ипотека возможна. ID объекта в нашей базе: 3397
    размещено: 05.03.2025 , обновлено: 10.11.2025

    1-к квартира, Краснолесья, 10/6

    • 36.9 м2
    • 2/20 этаж
    • Состояние: удовлетворительное
    5 300 000 ₽ (143600 ₽/м2)
    Однокомнатная квартира в ЖК "Ньютон-Парк" представляет собой отличный вариант для тех, кто ценит комфорт, стиль и качественную инфраструктуру. Вот основные характеристики и преимущества данного предложения: - Жилой комплекс: "Ньютон-Парк" - Этаж: 2 этаж. - Площадь: 36,9 м². - Отделка: Под чистовую – вы сможете реализовать свой дизайн и создать идеальное пространство. - Статус: Дом сдан, ключи на руках (возможно сразу приступить к ремонту или заселению). Почему ЖК "Ньютон-Парк"? ✅ Стиль и архитектура: Уникальный стиль Арт-деко, который подчеркивает ваш статус и вкус. ✅ Зеленые дворы: Много лужаек, зон для отдыха, пикников и прогулок. Летом на крыше дома-башни – шезлонги и столики. ✅ Сухой фонтан: Декоративный элемент с зонами отдыха для приятного времяпрепровождения. ✅ Парковка: Большая наземная парковка и подземный паркинг на 208 мест. ✅ Комфортные подъезды: Домофон расположен внутри холла, что добавляет удобства в холодное время года. Расположение: - ЖК находится в престижном Академическом микрорайоне. - Рядом развитая инфраструктура: магазины, школы, детские сады, поликлиники, кафе и рестораны. - Хорошая транспортная доступность. Преимущества квартиры: - Готовность к ремонту: Отделка "под чистовую" позволяет сделать ремонт по своему вкусу. - Удобное расположение: Второй этаж — оптимальный вариант для тех, кто не любит высокие этажи. - Стильный жилой комплекс: Уникальный дизайн и концепция ЖК выделяют его на фоне типовой застройки. - Комфортная территория: Зеленые дворы и зоны отдыха создают приятную атмосферу для жизни. Не упустите шанс стать владельцем квартиры в одном из самых престижных жилых комплексов города! ID объекта в нашей базе: 8127
    размещено: 06.02.2025 , обновлено: 10.11.2025

    1-к квартира, Анатолия Мехренцева, 11

    • 39.3 м2
    • 11/25 этаж
    • Состояние: хорошее
    5 500 000 ₽ (139900 ₽/м2)
    Продается 1-комн.квартира в экологически чистом районе Академический. Квартира светлая и теплая. В доме своя газовая котельная. Площадь квартиры 39,3 кв.м. Гостиная - 18 кв.м. Большая кухня - 12 кв.м. Оптимальный 11 этаж. В районе хорошо развита инфраструктура: школы, садики, ТЦ, магазины, спорткомплексы, бассейны. Рядом парк с тропами здоровья, прокатами инвентаря. Звоните! Организую просмотр и сопровожу каждый этап сделки. ID объекта в нашей базе: 10429
    размещено: 13.11.2024 , обновлено: 4.11.2025

Новостройки Екатеринбург, мкр-н. УНЦ

Приоритет

Увеличивает просмотры в 3 раза

Ваше объявление показывается в списке выше обычных объявлений. подключить