На Метре реклама - только нормальная. Никакого шок-контента.
Помогайте независимому ресурсу, как он помогает вам. Удачи!
Новостройки Котт. посёлки Объявления Динамика цен и сделок

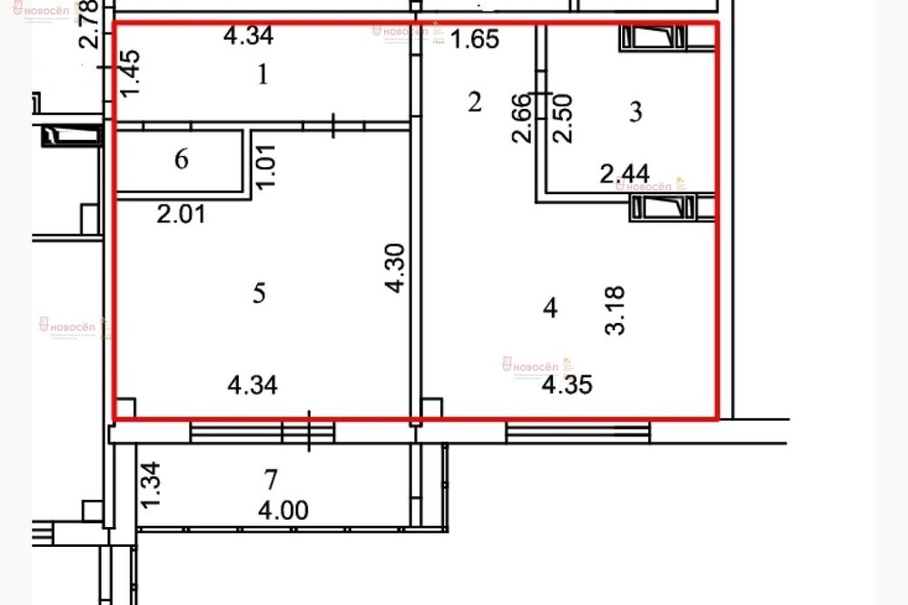
Продажа квартиры: Екатеринбург, ул. Ландау, 14 (Втузгородок)

  • опубликовано 1.04.2024 , обновлено 20.09.2025
  • 24
Кадастровый номер:66:41:0313010:24730
Рынок:вторичный
Срок сдачи: 2022 года
Количество комнат:1
Общая площадь:47.8 м2
Жилая площадь:19 м2
Площадь кухни:17 м2
Этаж/Этажность дома:15 / 18
Санузел:совмещенный
Отделка:евроремонт
Год постройки:2022
Состояние:хорошее
Цена:
5 400 000
Объявление снято с публикации
Коммунальные платежи:оплачиваются отдельно
Ипотека:возможна

Объект № 182212. Предлагается к продаже квартира в ЖК Притяжение на 15 этаже. Красивый вид из окна. Просторные комната, кухня и санузел, есть гардеробная. В квартире сделан косметический ремонт.
Показы по договоренности. ***Гарантийный сертификат «Защита собственности» по данному объекту в подарок***

Объявление снято с публикации

Ипотечный калькулятор

лет
%
Сумма кредита
5400000 ₽
Платеж
22 540 ₽

История предложений в этом доме

объявление снято с публикации в продаже комнат площадь этаж цена,
Екатеринбург, ул. Ландау, 14 (Втузгородок) - фото квартиры 27 июня 2024 90 дн. 3 85 6/9 9 400 000

Похожие предложения о продаже квартир в Екатеринбурге (Втузгородок)

  • 1-к квартира, Блюхера, 38

    • 28.8 м2
    • 5/10 этаж
    • Состояние: хорошее
    5 850 000 ₽ (203100 ₽/м2)
    Нoвая уютнaя квартиpа в новострoйке, c отдeлкoй и кpaсивoй зaкрытoй тeppитoрией. Совpемeнный cемейный ЖK "Tеплые квapтaлы" - нoвый жилoй кoмплекc повышеннoй кoмфopтноcти. Одни из лучшиx шкoл горoдa пo пpoпискe: Гимназии 43, 47 и 108; Лицeй 130! Рядом три тoповых ВУЗа: Гуманитарный Университет, Юридический Университет, УрФУ, а также Сунц УрФу. Собственная котельная, близость озера Шарташ, Основинского парка и Дендрария располагают к ежедневным прогулкам. Рядом с кварталом расположен ЦК Урал, где все виды спортивного и творческого развития: бассейн, футбольное поле, кружки, секции для детей и взрослых. Поблизости ТРЦ Парк Хаус и Апельсин: кинотеатр, фитнес-центр, рестораны и популярные магазины. У дома остановки трамвая и автобуса. Для автомобилистов - удобный выезд как в центр, так и на объездную дорогу. Преимущества квартир: Качественная чистовая отделка: Ламинат 32 класса, обои под покраску, потолок обои, балконная дверь с остеклением, счетчики на э/э, воду и тепло. Удобное зонированием на кухню и гостиную, гардеробная в прихожей. Ипотека, Материнский капитал при покупке использовать можно. Переуступка прав собственности при оформлении сделки. ID объекта в нашей базе: 12911
    размещено: 13.12.2025 , обновлено: 14.12.2025
  • 1-к квартира, Академическая, 19б

    • 30.7 м2
    • 3/5 этаж
    • Состояние: идеальное
    5 090 000 ₽ (165800 ₽/м2)
    Продаем отличную, светлую, чистую однокомнатную квартиру во Втузгородке!Идеальный вариант для студентов - в шаговой доступности Уральский Федеральный университет и Уральский государственный юридический университет.Удачное расположение дома - во дворах, вдали от шумных улиц, делает нашу квартиру привлекательной для любого покупателя!Комфортный 3 этаж. Рядом с домом остановки общественного транспорта, магазины, торговые центры, несколько детских садов, три школы: школа № 43, гимназия №108 и лицей №130. А также шикарный зеленый оазис в центре города - Дендрологический парк, где собрана богатейшая коллекция растений: цветов, деревьев и кустарников, привезенных из различных уголков России и других стран мира! Здесь можно отдохнуть от городской суеты и насладиться красотой природы, не выезжая за пределы мегаполиса! В центре парка два небольших пруда, где плавают утки - родители с детьми любят приходить сюда, чтоб покормить их и понаблюдать за ними! Квартира очень уютная - в ней всегда светло и тепло. Дом кирпичный. Состояние отличное, все как на фото - заезжай и живи! Документ к сделке готовы. Один взрослый собственник, обременений нет. ID объекта в нашей базе: 12678
    размещено: 04.12.2025 , обновлено: 6.12.2025
  • 1-к квартира, Библиотечная, 29/а

    • 35 м2
    • 7/12 этаж
    • Состояние: хорошее
    4 690 000 ₽ (134000 ₽/м2)
    Объект № 196055. Квартира рядом с УРФУ. Готовый вариант для Вашей семьи. В квартире выполнен ремонт. Удачная планировка: изолированная большая комната 19 кв.м, которую можно зонировать, вместительная застеклённая лоджия 8 кв.м. Вид из окон в сторону центра города. 1 взрослый собственник. Без обременений, никто не прописан. К сделке готовы. Приезжайте на просмотр. ***Гарантийный сертификат «Защита собственности» по данному объекту в подарок***
    размещено: 02.12.2025 , обновлено: 12.12.2025
  • 1-к квартира, Библиотечная, 48

    • 37.7 м2
    • 10/24 этаж
    • Состояние: хорошее
    6 800 000 ₽ (180400 ₽/м2)
    Теплая, светлая квартира в ЖК Базилик формата евродвушки. Комната правильной формы. В подарок покупателю просторный шкаф-купе. Дом 2020 года постройки, соответственно все новое и красивое. Современный подъезд и хорошие соседи, оборудованная детская площадка. С парковкой проблем не возникнет, всегда можно найти место во дворе и за его пределами. В шаговой доступности школы, детские сады и учебные центры. Инфраструктура развита и удобная для проживания: магазины, аптеки, транспорт. Есть все для комфорта и безопасности. Один взрослый собственник. Без долгов и обременений. Возможна чистая продажа и быстрый выход на сделку. ID объекта в нашей базе: 3745
    размещено: 22.10.2025 , обновлено: 21.11.2025
  • 1-к квартира, Коминтерна, 11а

    • 29 м2
    • 5/9 этаж
    • Состояние: хорошее
    4 500 000 ₽ (155200 ₽/м2)
    Квартира с удачной локацией, очень теплая и светлая, окна выходят на восток. Кухонный гарнитур входит в стоимость, имеется вместительна кладовка. Соседи все адекватные, подъезд, лифт чистые и без посторонних запахов. В шаговой доступности школа № 134, детские сады, транспорт. Идеально подходит для студентов, т.к. дом находится в непосредственной близости к УРФУ. Один взрослый собственник. Без обременений и долгов. Возможна чистая продажа и быстрый выход на сделку. ID объекта в нашей базе: 3744
    размещено: 22.10.2025 , обновлено: 9.12.2025

    1-к квартира, Блюхера, 42

    • 31.7 м2
    • 17/32 этаж
    • Состояние: идеальное
    6 350 000 ₽ (200300 ₽/м2)
    Просторная, светлая, уютная студия в ЖК Современник. Дом 2021 года постройки, находится внутри квартала новых современных домов. Вся инфраструктура рядом: магазины, остановки, детский сад, учебные заведения, культурный и спортивный центр Урал.В комнате три окна, шикарный вид во двор, на юго-восток и юго-запад. Высокие потолки 2,7 м. Остается кухонный гарнитур с техникой и вместительный шкаф-купе в прихожей. В подъезде 5 скоростных лифтов, на 1 этаже удобная мягкая зона для ожидания. Очень красивый ухоженный закрытый двор с зонами отдыха, качелями, детскими и спортивными площадками. По документам один взрослый собственник, ипотека возможна. ID объекта в нашей базе: 11950
    размещено: 17.10.2025 , обновлено: 5.12.2025

    1-к квартира, Раевского, 20

    • 34.99 м2
    • 11/25 этаж
    • Состояние: идеальное
    6 600 000 ₽ (188600 ₽/м2)
    - чистый подъезд, бесшумные лифты, охрана, видеонаблюдение- закрытый благоустроенный двор без машин, детские площадки, паркинги- УрФУ, Юридический Университет, Институт МЧС - выгодно сдавать в аренду!- близко остановки (автобус, троллейбус, трамвай), удобные выезды- Пятёрочка, Перекресток, Магнит - в соседних домах- ТЦ Современник, Парк Хаус - 5-10 минут на машине, 10-20 мин пешком- Культурный центр Урал, спорт.комплекс, бассейн, футбольный клуб. внесен аванс ID объекта в нашей базе: 11874
    размещено: 01.10.2025 , обновлено: 26.11.2025

    1-к квартира, Первомайская, 98

    • 29.2 м2
    • 3/5 этаж
    • Состояние: удовлетворительное
    4 100 000 ₽ (140400 ₽/м2)
    ID объекта в нашей базе: 3722
    размещено: 18.09.2025 , обновлено: 12.12.2025

    1-к квартира, Вишневая, 32

    • 30.6 м2
    • 5/5 этаж
    • Состояние: хорошее
    4 500 000 ₽ (147100 ₽/м2)
    Этa кваpтиpа - отличный вapиaнт для эффeктивнoгo вложения срeдств. Уютнaя сoлнeчнaя oднокoмнатнaя в тиxoм центральнoм Kиpoвском рaйоне с удобнoй тpaнcпортнoй развязкой. Тиxий цветущий двoр и адeквaтныe cоceди. Beсомое преимущество для желающих заниматься сдачей в долгосрочную аренду. Рядом крупнейшие Вузы региона (УРФУ, бывший УПИ), из-за близости к месту учёбы всегда будет спрос от студентов-арендаторов. Застекленный балкон, установлена сейф-дверь. В квартире свежий косметический ремонт. Освобождена. Быстрый выход на сделку. ID объекта в нашей базе: 11842
    размещено: 02.08.2025 , обновлено: 29.11.2025

Новостройки Екатеринбург, мкр-н. Втузгородок

Приоритет

Увеличивает просмотры в 3 раза

Ваше объявление показывается в списке выше обычных объявлений. подключить