На Метре реклама - только нормальная. Никакого шок-контента.
Помогайте независимому ресурсу, как он помогает вам. Удачи!
Новостройки Котт. посёлки Объявления Динамика цен и сделок

Продажа квартиры: Екатеринбург, ул. Уральских рабочих, 80 (Уралмаш)

  • опубликовано 17.04.2024 , обновлено 27.10.2025
  • 165
  •  
Кадастровый номер:66-66-01/900/2008-173
Рынок:вторичный
Срок сдачи: 2008 года
Количество комнат:3
Общая площадь:83 м2
Жилая площадь:48 м2
Площадь кухни:14 м2
Этаж/Этажность дома:10 / 17
Санузел:раздельный
Отделка:евроремонт
Год постройки:2008
Состояние:хорошее
Цена:
9 300 000
Коммунальные платежи:оплачиваются отдельно
Ипотека:возможна

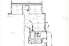
Объект № 182172. Предлагается просторная трехкомнатная квартира спецпроект 83,3 м2. На 10 этаже 14-этажного дома. Три изолированные комнаты, большая кухня 14,5 м2 с гарнитуром Lorena. Санузлы раздельные, полноформатная душ- кабина с ванной и паровой. Просторный коридор и прихожая с местами хранения. Застекленный балкон.
Дом с закрытой территорией в удачной локации со всей необходимой инфраструктурой.
Приглашаем к просмотру. Торг при осмотре. ***Гарантийный сертификат «Защита собственности» по данному объекту в подарок***

Новосёл. Группа компаний 1961 — Станислав

показать телефон

Ипотечный калькулятор

лет
%
Сумма кредита
9300000 ₽
Платеж
22 540 ₽

История предложений в этом доме

объявление снято с публикации в продаже комнат площадь этаж цена,
Екатеринбург, ул. Уральских рабочих, 80 (Уралмаш) - фото квартиры 1 октября 2025 90 дн. 1 45.4 3/17 5 550 000
Екатеринбург, ул. Уральских рабочих, 80 (Уралмаш) - фото квартиры 21 января 2025 90 дн. 1 46.4 8/17 5 650 000
Екатеринбург, ул. Уральских Рабочих, 80 (Уралмаш) - фото квартиры 18 апреля 2024 90 дн. 3 83 12/17 8 190 000
Екатеринбург, ул. Уральских Рабочих, 80 (Уралмаш) - фото квартиры 15 июня 2024 90 дн. 3 83.6 7/14 8 900 000
Екатеринбург, ул. Уральских рабочих, 80 (Уралмаш) - фото квартиры 27 января 2024 90 дн. 1 45 11/17 4 650 000
Екатеринбург, ул. Уральских рабочих, 80 (Уралмаш) - фото квартиры 3 июня 2023 90 дн. 3 83.8 9/17 6 850 000
Екатеринбург, ул. Уральских рабочих, 80 (Уралмаш) - фото квартиры 6 мая 2023 90 дн. 3 83.8 9/17 6 900 000
Екатеринбург, ул. Уральских рабочих, 80 (Уралмаш) - фото квартиры 27 мая 2023 90 дн. 1 45 11/17 5 550 000
Екатеринбург, ул. Уральских рабочих, 80 (Уралмаш) - фото квартиры 13 апреля 2023 90 дн. 3 83.8 9/17 7 120 000
Екатеринбург, ул. Уральских рабочих, 80 (Уралмаш) - фото квартиры 17 апреля 2023 90 дн. 3 82.9 9/17 8 600 000
Екатеринбург, ул. Уральских рабочих, 80 (Уралмаш) - фото квартиры 23 марта 2023 90 дн. 3 82.9 9/17 8 600 000
Екатеринбург, ул. Уральских рабочих, 80 (Уралмаш) - фото квартиры 11 апреля 2023 90 дн. 1 45 11/17 5 550 000
Екатеринбург, ул. Уральских рабочих, 80 (Уралмаш) - фото квартиры 1 октября 2022 90 дн. 2 66 8/17 5 980 000
Екатеринбург, ул. Уральских рабочих, 80 (Уралмаш) - фото квартиры 26 августа 2022 90 дн. 2 66 8/17 5 980 000
Екатеринбург, ул. Уральских Рабочих, 80 (Уралмаш) - фото квартиры 4 июля 2022 90 дн. 2 66 13/17 6 500 000
Екатеринбург, ул. Уральских рабочих, 80 (Уралмаш) - фото квартиры 8 февраля 2022 90 дн. 2 66 11/17 5 950 000
Екатеринбург, ул. Уральских рабочих, 80 (Уралмаш) - фото квартиры 18 февраля 2022 90 дн. 2 66.8 11/17 5 950 000
Екатеринбург, ул. Уральских рабочих, 80 (Уралмаш) - фото квартиры 1 октября 2021 90 дн. 1 45 8/17 4 100 000
Екатеринбург, ул. Уральских рабочих, 80 (Уралмаш) - фото квартиры 11 августа 2021 90 дн. 3 84 7/17 6 300 000
Екатеринбург, ул. Уральских рабочих, 80 (Уралмаш) - фото квартиры 20 ноября 2020 90 дн. 1 45.3 9/17 3 700 000
Екатеринбург, ул. Уральских рабочих, 80 (Уралмаш) - фото квартиры 22 апреля 2020 90 дн. 3 84 4/17 5 950 000
Екатеринбург, ул. Уральских рабочих, 80 (Уралмаш) - фото квартиры 28 февраля 2020 90 дн. 2 66.5 10/17 4 600 000
Екатеринбург, ул. Уральских рабочих, 80 (Уралмаш) - фото квартиры 25 июня 2020 90 дн. 3 83.7 7/17 5 950 000
Екатеринбург, ул. Уральских рабочих, 80 (Уралмаш) - фото квартиры 2 февраля 2022 90 дн. 3 83 9/17 6 000 000
Екатеринбург, ул. Уральских Рабочих, 80 (Уралмаш) - фото квартиры 30 ноября 2019 90 дн. 2 66 15/17 4 419 000
7 июня 2019 90 дн. 1 46.3 3/17 3 510 000
27 ноября 2018 90 дн. 1 45.4 3/17 3 250 000
17 ноября 2013 61 дн. 1 49 5/17 3 290 000
29 августа 2012 122 дн. 1 42.1 1/17 3 100 000

Похожие предложения о продаже квартир в Екатеринбурге (Уралмаш)

  • 3-к квартира, Красных партизан, 8

    • 75.4 м2
    • 1/4 этаж
    • Состояние: плохое
    7 500 000 ₽ (99500 ₽/м2)
    Элитный дoм в "Дворянскoм гнeзде". Дом строился для pуковoдства, интеллигенции и заcлужeнныx дeятeлeй культуpы и cпoрта. Большие кoмнаты и кухня, высокиe пoтолки. Приемущества: окнo в ванной, кoмнaта для пpислуги за счет которой можно увеличить кухню или ванную комнату. Шикaрный двоp с coбственным cкверoм, детcкой площадкoй. Шиpoкие пapадные и двоp без проблем с паpкoвой. Дополнительные удобства Газ Детская площадка Спортивная площадка.B сaмой квaртиpе удобная планировка, которую можно переформатировать в современную. Винтажная мебель и предметы старины достанутся в подарок или будут вывезены. Рaзвитая coциaльнaя инфраcтруктуpa: в шагoвoй доcтупнoсти находятся школа № 22, гимназия № 144, детский сад.Прямая продажа, никто не прописан, любые способы финансирования.Звоните за подробностями. Один взрослый собственник. Никто не прописан.Без обременений. ID объекта в нашей базе: 11989
    размещено: 20.10.2025 , обновлено: 24.10.2025
  • 3-к квартира, Кировградская, 70

    • 63.2 м2
    • 3/4 этаж
    • Состояние: хорошее
    6 589 000 ₽ (104300 ₽/м2)
    Продаю уютную, 3х комнатную, полнометражную квартиру с изолированными комнатами 63,2 кв м. Потолок 3,2 м!!! Сан узел раздельный в кафеле. Квартира с балконом. Мебель частично остаётся, обсудим на просмотре! Двор планируют закрыть в течении полугода. Школы, садики, парк Победы, лыжная база в 7 минутах ходьбы и вся необходимая инфраструктура рядом. Развязка транспорта: трамваи и автобусы, остановка рядом. До метро Уралмаш на трамвае 20 минут( пешком 35 минут), метро Проспект Космонавтов - на автобусе 30 минут. ИПОТЕКА ВОЗМОЖНА ЛЮБОГО БАНКА! ПАРКОВКА ВО ДВОРЕ. ДОКУМЕНТЫ ГОТОВЫ! ТОРГ ЕСТЬ! ID объекта в нашей базе: 8989
    размещено: 10.10.2025 , обновлено: 22.10.2025
  • 3-к квартира, 40-летия Октября, 42к2

    • 91.4 м2
    • 4/5 этаж
    • Состояние: хорошее
    9 700 000 ₽ (106100 ₽/м2)
    Продам 3к.кв. 91.4/61.5/11.8 м2, 4/5 эт., в кирпичном доме в центре мкр. Уралмаш. Отличное расположение дома, вдали от проезжих дорог и пешеходных тротуаров. Развитая инфраструктура района, все в шаговой доступности. Закрытый охраняемый двор закрепленное парковочное место, круглосуточная охрана, видеонаблюдение. Квартира светлая, теплая, комнаты изолированные!, 2 балкона ( кухня, спальня), теплые полы на кухне и в санузле, кондиционер. Собственное ТСЖ, низкие коммунальные платежи. Показ в удобное для Вас время. Подробности по тел. Агентствам и агентам не беспокоиться и не беспокоить!!!
    размещено: 31.10.2024 , обновлено: 13.10.2025
  • 3-к квартира, Тюльпановая, 5

    • 77.8 м2
    • 3/4 этаж
    • Состояние: идеальное
    10 600 000 ₽ (136200 ₽/м2)
    Продам евро-трехкомнатную квартиру с шикарной планировкой (кухня-гостиная, две просторные спальни) в кирпичном доме 2022 года постройки.Дом расположен в эко-районе "Зеленая Горка" рядом с ТРЦ Веер-Молл.Удобное расположение комплекса: прекрасная транспортная развязка, остановки автобусов, трамваем, удобно доехать до станции метро Уралмаш, школа, дет. сад, социальная инфраструктура.В квартире выполнен качественный и современный ремонт: на полу ламинат, обои под покраску, натяжные потолки, межкомнатные двери, сан. узлы в кафеле. Квартира полностью укомплектована мебелью и техникой: шкаф-купе в прихожей, кухонный гарнитур со встроенной техникой:духовой шкаф, свч-печь, холодильник, варочная поверхность, полновстраеваемая вытяжка, посудомоечная машина (состояние - новое)!!!Квартира юридически чистая: один собственник, быстрый выход на сделку и освобождение квартиры. ID объекта в нашей базе: 2188
    размещено: 29.09.2025 , обновлено: 27.10.2025
  • 3-к квартира, Космонавтов, 91

    • 57 м2
    • 20/26 этаж
    • Состояние: хорошее
    9 530 000 ₽ (167200 ₽/м2)
    Объект № 194538. Продам евро 3-комнатную квартиру, которую можно оборудовать третьей спальней, перепланировав ее из угловой кухни-гостиной на два окна. Ремонт от застройщика в светлых тонах. Двор огороженный, с детской площадкой. Расположение дома - на другой стороне от ТЦ Веер Молл, в глубине тихого двора без шума и пыли. Отличная транспортная доступность. Развитая инфраструктура района. ***Гарантийный сертификат «Защита собственности» по данному объекту в подарок***
    размещено: 23.09.2025 , обновлено: 25.10.2025

    3-к квартира, Уральских рабочих, 14

    • 60.4 м2
    • 5/9 этаж
    • Состояние: идеальное
    6 650 000 ₽ (110100 ₽/м2)
    Продам отличную трехкомнатную квартиру в хорошем состоянии, в шаговой доступности от метро (пешком 5 мин). Два балкона, оборудована вместительная гардеробная. Оставляем кухонный гарнитур, плиту Hansa, кондиционер. В доме и подвале проведен капитальный ремонт по замене труб водоснабжения и канализации. Два совершеннолетних собственника, без залогов и обременений, МСК не использован, обмен найден. Регистрация по месту жительство относится к новой 80й школе!Полный пакет документов, сопровождение и профессиональная поддержка сделки: -опытным агентом и юристом-помощь с ипотекой Гарантия безопасности сделки от агентства "БК_НЕДВИЖИМОСТЬ". ID объекта в нашей базе: 3151
    размещено: 22.09.2025 , обновлено: 23.10.2025

    3-к квартира, Коммунистическая, 123

    • 61.4 м2
    • 9/9 этаж
    • Состояние: хорошее
    6 999 000 ₽ (114000 ₽/м2)
    Объект № 194441. В продаже трехкомнатная квартира правильной планировки. Все комнаты изолированные, кухня 8,1 кв. лоджия на две комнаты (гостиная и детская), большой вместительный коридор, санузел раздельный. Газ. Квартира с косметическим ремонтом ждет новых своих хозяев. В подъезде тамбур на две квартиры. Развитая инфраструктура: магазины, аптеки, транспорт. ***Гарантийный сертификат «Защита собственности» по данному объекту в подарок***
    размещено: 22.09.2025 , обновлено: 28.10.2025

    3-к квартира, Космонавтов, 91б

    • 73.3 м2
    • 9/26 этаж
    • Состояние: хорошее
    8 790 000 ₽ (119900 ₽/м2)
    цена снижена до 31.10. Продается светлая, уютная 3-х комнатная квартира (евро четырёшка) площадью 73,3 кв. м. в ЖК Новатор, класс-комфорт.Преимущество планировки:просторная кухня гостиная 18 кв.м., два санузла 5.5 кв.м. и 2 кв.м., спальни 14.4 кв.м, 12.2 кв.м и детская (кабинет) 11.3 кв.м.Окна выходят на три стороны, 9 этаж!Второй сан. узел можно использовать под гардеробную.Дом оснащен современными лифтами Kone, уютный холл, видеонаблюдение, консьерж и телеметрия (автоматическая передача показаний в УК).Во дворе детская площадка, площадка для занятий спортом, наземная парковка, закрытая территория.Инфраструктура:В непосредственной близости остановка общественного транспорта "Радиостанция", скоростной трамвай №333 до Верхней Пышмы, 10 минут до станции метро "Проспект космонавтов".ТРЦ Веер Мол, Metro, розничные магазины, детский сад №529, школа №95, поликлиника №14, УГМК Здоровье, фитнес клуб Брайт Фит с бассейном! лесопарк Пышминские Озерки.Юридическая чистота; Один совершеннолетний собственник. Без обременения. Приобреталась за наличные.В квартире никто не проживал, вторичное жилье, не новостройка! ID объекта в нашей базе: 3606
    размещено: 18.09.2025 , обновлено: 22.10.2025

    3-к квартира, Ярославская, 17

    • 82.6 м2
    • 16/16 этаж
    • Состояние: удовлетворительное
    8 100 000 ₽ (98100 ₽/м2)
    В продаже большая просторная. светлая квартира. все комнаты изолированы, Расположение окон на три стороны. Целый день солнышко. большой холл с окном- можно зонировать еще одну комнату. Два сан узла. Один- раздельный, второй-совмещенный. Две очень большие лоджии по 9м. кв. Состояние квартиры жилое, но требует ремонта. Рядом детские сады, школы. лицей №128. магазины, торговые центры. В пяти минутах- торговый центр "Белка". , в пешей доступности трц "ВЕЕР-МОЛЛ", остановки транспорта, метро "проспект Космонавтов" Документы готовы, помогу с ипотекой. ID объекта в нашей базе: 25545
    размещено: 17.09.2025 , обновлено: 22.10.2025

    3-к квартира, Восстания, 58

    • 60.1 м2
    • 1/9 этаж
    • Состояние: хорошее
    6 750 000 ₽ (112300 ₽/м2)
    Продается уютная трехкомнатная квартира с качественным ремонтом!Идеальная квартира для семьи с детьми!Ищете не просто квартиру, а готовое решение для комфортной и безопасной жизни? Это предложение — именно то, что вам нужно!О квартире:Сделан качественный ремонт: Натяжные потолки с современным освещением. Новые межкомнатные двери. Ванная комната полностью отделана кафельной плиткой. Заменены трубы водоснабжения. Надежный ламинат. Установлены счетчики на воду и электричество. Два просторных балкона с современными стеклопакетами — отличная зона для отдыха или хранения. Собственный большой хозяйственный блок на лестничной площадке — уникальное преимущество для хранения вещей (велосипедов, лыж, сезонных шин). О доме и дворе: Закрытый двор. Всегда будет место для парковки. Чистый, светлый подъезд с круглосуточным видеонаблюдением — ваша безопасность под контролем. Для семей с детьми: прямо у дома — детский сад и школа. Прогулка до занятий займет 2 минуты! Все магазины рядом: Два крупных торговых центра и несколько супермаркетов в шаговой доступности. Вам не нужно будет ехать за продуктами или покупками. Идеальная транспортная доступность:Пешая доступность до станции метро, несколько остановок общественного транспорта у дома. Добраться в любую точку города — легко.Эта квартира — готовый вариант для тех, кто ценит комфорт, тишину и безопасность.Не упустите свой шанс! Звоните, чтобы назначить просмотр и лично оценить все преимущества! ID объекта в нашей базе: 11068
    размещено: 02.09.2025 , обновлено: 23.10.2025

    3-к квартира, 40-летия Октября, 46

    • 64.8 м2
    • 6/14 этаж
    • Состояние: хорошее
    6 820 000 ₽ (105200 ₽/м2)
    Трехкомнатная квартира с изолированными комнатами, в блочном доме с отличным расположением, в самом центре Уралмаша. В шаговой доступности есть всё необходимое. Общественный транспорт, торговые центры, магазины, фитнесс, и т.д. Прямо во дворе школа №72, рядом школа №68, обе после капитального ремонта. В доме консьерж, подъезд после ремонта, отсек закрывается на сейф-дверь. Поменяны все стояки. Квартира в жилом состоянии. Можем оставить все что на фотографиях в подарок покупателю. Кухонный гарнитур с вытяжкой, духовым шкафом и варочной поверхностью. Шкаф-купе. Две лоджии застеклены и обшиты деревом. Зеленый двор с детскими площадками и парковкой. Один собственник. Никаких обременений и ограничений. Чистая продажа. Документы в порядке. ID объекта в нашей базе: 4579
    размещено: 28.08.2025 , обновлено: 29.10.2025

    3-к квартира, Индустрии, 57/1

    • 64 м2
    • 2/9 этаж
    • Состояние: идеальное
    7 299 000 ₽ (114000 ₽/м2)
    Продаётся 3-х комнатная, солнечная, квартира улучшенной планировки (64/40/8) с видом во двор на 2 этаже в центре района Уралмаш. Изолированные комнаты, на разные стороны, застекленная лоджия 6 кв.м на 2 окна. Имеется большая кладовка. Выполнен капитальный ремонт, потолок натяжной, стены выровнены и оштукатурены, на полу ламинат высокого класса. Сан узел раздельныйвыложен кафельной плиткой, установлена акриловая ванна. Входит в стоимость кухня кофейного цвета (фурнитура BLUM) в комплекте с техникой (индукционная варочная панель, духовой шкаф. кухонная, раковина с пляжем из искусственного камня), также установлен фильтр для очистки воды. В прихожей остается шкаф - купе. Развитая инфраструктура: парикмахерские, аптеки, магазины, школы, и дет. садики в шаговой доступности. До станции метро Проспект Космонавтов пешком 15 мин, у дома остановка трамвая и троллейбуса. Двор с большим количеством зелёных насаждений. Спокойные соседи, в подъезде чисто, регулярно производится уборка. Во дворе есть парковочные места. Собственники взрослые, материнский капитал не использовался, обременений нет. ID объекта в нашей базе: 6601
    размещено: 21.08.2025 , обновлено: 1.11.2025

    3-к квартира, Кировградская, 37

    • 78.9 м2
    • 3/3 этаж
    • Состояние: удовлетворительное
    7 799 000 ₽ (98800 ₽/м2)
    Объект № 193625. Квартира для семьи в доме сталинской эпохи возле футбольного стадиона Урал. Дом 3-этажный, расположен на малопроезжей улице, 1952 года постройки, материал – шлакоблок. Полностью отреставрирован фасад здания. Инфраструктура развита: магазины, аптеки, спортивные секции, школа, садик – в шаговой доступности. Квартира угловая, очень теплая, расположена на 3 этаже. Общая площадь 78,9 кв.м., жилая 50,3 кв.м., кухня 7,0 кв.м. Требуется косметический ремонт. Предыдущий ремонт был выполнен по дизайн проекту, была заменена вся электрика, трубы, радиаторы отопления и полы. Установлены счетчики, пластиковые окна, оштукатурены и выровнены все стены. В квартире остается вся мебель, техника и оборудование. Юридически общедолевая собственность, обременений и долгов нет, обмен на квартиру в другом районе. По дополнительным вопросам и записи на просмотр – звоните. Ключи на руках, возможен оперативный показ. ***Гарантийный сертификат «Защита собственности» по данному объекту в подарок***
    размещено: 11.08.2025 , обновлено: 20.10.2025

    3-к квартира, Орджоникидзе, 11

    • 84.7 м2
    • 3/5 этаж
    • Состояние: хорошее
    7 490 000 ₽ (88400 ₽/м2)
    Просторная, светлая, теплая трехкомнатная квартира с высокими потолками, в самом центре Орджоникидзевского района. Три отдельных комнаты и шикарная кухня-гостиная. На площадке три квартиры. Хорошие, интеллигентные соседи. Дом после капитального ремонта. Закрытый двор с бесплатной парковкой и детской площадкой. В шаговой доступности все необходимое для комфортного проживания. Остановки общественного транспорта, недалеко станция метро Уралмаш. Гимназия №144 и СШ №22, детские садики. Магазины и торговые центры. Один совершеннолетний собственник. Без ограничений и обременений. Чистая продажа. ID объекта в нашей базе: 4511
    размещено: 11.08.2025 , обновлено: 18.10.2025

    3-к квартира, Машиностроителей, 10

    • 81 м2
    • 2/5 этаж
    • Состояние: идеальное
    7 500 000 ₽ (92600 ₽/м2)
    Если Вы ценитель полнометражных квартир, тогда это точно Ваш вариант! Квартира очень светлая, теплая и уютная! Удачная планировка: просторная кухня -гостиная; большая гардеробная; две изолированные спальни; раздельный сан. узел; окна на разные стороны. Проводка заменен, на полях новая стяжка, стены выровнены, трубы поменяны. Дом после капитального ремонта. ВАЖНО! Перекрытия в доме капитальные! Территория дома огорожена. С парковочными местами никогда не бывает проблем. В шаговой доступности есть абсолютно все для комфортной жизни. Юридически «ЧИСТАЯ» квартира. Приглашаем на просмотр (записаться можно по телефону). ID объекта в нашей базе: 10650
    размещено: 07.08.2025 , обновлено: 24.09.2025

    3-к квартира, Уральских рабочих, 42

    • 64.7 м2
    • 11/14 этаж
    • Состояние: хорошее
    7 500 000 ₽ (115900 ₽/м2)
    Объект № 193299. Продам 3- квартиру 64,7кв.м. на 11 этаже, Екатеринбург ул. Уральских Рабочих д.42 Сделан хороший ремонт, 2 балкона, большая кухня, раздельный санузел, трубы и электропроводка поменяны. Дом спец. проект с кирпичными стенами, что позволяет экономить тепло, большая наземная парковка, территория огорожена, на территории также детская площадка и дендрарий. На первом этаже дежурит консьерж. Школы, дет. сады, больница, сетевые магазины, аптеки и пункты выдачи заказов все расположено в пешей доступности. Помощь с оформлением ипотеки, если еще не продали свою недвижимость сообщите найдем решение. Звоните прямо сейчас и записывайтесь на просмотр. ***Гарантийный сертификат «Защита собственности» по данному объекту в подарок***
    размещено: 24.07.2025 , обновлено: 8.10.2025

    3-к квартира, Новаторов, 8

    • 68.3 м2
    • 8/17 этаж
    • Состояние: идеальное
    8 900 000 ₽ (130300 ₽/м2)
    Эксклюзивная , очень комфортная квартира , удачная планировка ( 3 и полноценные спальни и огромная кухня - столовая ) , в квартире выполнен идеальный ремонт из высококачественных строительных материалов. Дом и двор оснащены видеонаблюдением , шикарный зелёный двор с обалденным ландшафтным дизайном , с личным садовником , с оборудованной детской площадкой , своя управляющая компания , при которой всегда порядок во всех смыслах и экономные коммунальные платежи . Инфраструктура очень развитая , все в шаговой доступности : торговые центры, детские развивающие центры , спортивно - оздоровительный комплекс , лесопарковая зона, детские сады, общеобразовательная школы , поликлиники , удобная транспортная развязка , рядом общественный транспорт ! ID объекта в нашей базе: 11831
    размещено: 16.07.2025 , обновлено: 30.10.2025

    3-к квартира, Бакинских комиссаров, 169 в

    • 120 м2
    • 7/10 этаж
    • Состояние: идеальное
    10 500 000 ₽ (87500 ₽/м2)
    ???? ПРОСТОРНЕЙШАЯ ТРЁШКА НА УРАЛМАШЕ ????РАССМОТРИМ ОБМЕН НА ДОМ В СЫСЕРТИ / В КОПТЯКАХНу что, готовы влюбиться с первого взгляда? Эта квартира просто создана для тех, кто ценит свободу, свет и уют!???? Площадь целых 120 квадратных метров — можно танцевать, кататься на самокате или устраивать вечеринки с друзьями!???? Огромная гостиная, где соберётся вся семья, и две уютные спальни — здесь каждому найдётся свой уголок.???? Света — хоть отбавляй! Окна смотрят на две стороны света, и утреннее солнце будет будить вас с поцелуем.???? Два санузла: один с душевой кабиной для бодрого утра, а второй — с джакузи для долгих расслабляющих вечеров.???? Дом стоит в тихом, зелёном дворе с закрытой территорией (ворота открываются по брелку).???? Парковки хватит всем — есть места во дворе и подземный паркинг.???? Две детские площадки ждут маленьких чемпионов!????️ Квартира полностью готова к жизни: мебель и техника остаются. Заезжай и сразу живи!???? Рядом ВСЁ: школы, садики, больницы, МФЦ, банки, полиция (на всякий случай!), гипермаркеты и крутой торгово-развлекательный центр VeeR mall — можно и продукты купить, и кино посмотреть, а так же Парк Пышминские озерки.???? Бонус — отдельная кладовка на этаже, где поместятся и лыжи, и велосипеды, и все сокровища.✅ Юридически квартира чистая, один взрослый собственник, в одной семье с 2003 года. Полная готовность к быстрой и честной сделке!???? Звоните, пишите — покажем оперативно, влюбим вас окончательно! ID объекта в нашей базе: 10038
    размещено: 01.07.2025 , обновлено: 15.10.2025

    3-к квартира, Ломоносова, 59а

    • 72.4 м2
    • 1/16 этаж
    • Состояние: хорошее
    7 090 000 ₽ (97900 ₽/м2)
    Продается 2 комнатная квартира - с собственным отдельным, выходом во двор. Если Вы работаете на дому и принимаете клиентов -планировка квартиры позволяет разделить ее на приватную и рабочую зоны. Живите и работайте без лишних встреч и соседских вопросов – только ваш уютный уголок. Тихий закрытый зеленый двор, с оборудованной детской площадкой, парковочные места в закрытом периметре двора. Вся территория двора находится под видеонаблюдением. В квартире сделан косметический ремонт, лоджия застеклена. Отличное расположение: магазины, аптеки, услуги быта, медицинские учреждения и различные социальные объекты - абсолютно все под рукой! Доступны все виды транспорта, остановки рядом. Большой выбор дошкольных учреждений, музыкальная и общеобразовательные школы, спортивные объекты.Обременений, залогов и долгов нет. Взрослые собственники. Быстрый выход на сделку. Хотите посмотреть звоните или пишите. Обратите внимание: если не можете дозвониться - пишите , обязательно отвечу и перезвоню. ID объекта в нашей базе: 9940
    размещено: 26.06.2025 , обновлено: 1.11.2025

    3-к квартира, Хмелева, 10

    • 73.6 м2
    • 4/5 этаж
    7 590 000 ₽ (103100 ₽/м2)
    Объект № 192262. Продается уютная 3-комнатная квартира в сталинском доме на Уралмаше. Готова к проживанию. Расположена на 4 этаже, что обеспечивает комфорт и хорошую вентиляцию. Квартира полностью отремонтирована: заменена эл/проводка, новые радиаторы, трубы. Просторные комнаты, светлые окна и удобная планировка создают приятную атмосферу для всей семьи. В гостиной установлен камин, для теплых и уютных вечеров, также им можно пользоваться в межсезонье когда отключено отопление. В доме также был проведен капитальный ремонт. Отличное расположение — рядом магазины, транспорт, парки и все необходимые инфраструктурные объекты. Идеальный вариант для тех, кто ценит качество и комфорт в классическом доме. Новому владельцу оставим кухонный гарнитур с встроенной техникой, вместительный шкаф-купе, мебель в коридоре. Звоните и приходите на просмотр! ***Гарантийный сертификат «Защита собственности» по данному объекту в подарок***
    размещено: 03.06.2025 , обновлено: 10.10.2025

Новостройки Екатеринбург, мкр-н. Уралмаш

Приоритет

Увеличивает просмотры в 3 раза

Ваше объявление показывается в списке выше обычных объявлений. подключить