На Метре реклама - только нормальная. Никакого шок-контента.
Помогайте независимому ресурсу, как он помогает вам. Удачи!
Новостройки Котт. посёлки Объявления Динамика цен и сделок

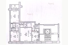
Продажа квартиры: Екатеринбург, ул. Татищева, 60 (ВИЗ)

  • опубликовано 13.02.2025 , обновлено 20.09.2025
  • 40
Рынок:вторичный
Срок сдачи: 1988 года
Количество комнат:3
Общая площадь:61.3 м2
Жилая площадь:39 м2
Площадь кухни:7.7 м2
Этаж/Этажность дома:7 / 9
Санузел:раздельный
Отделка:косметический
Год постройки:1988
Мебель:есть мебель
Балкон/лоджия:2 лоджии
Состояние:хорошее
Цена:
10 000 000
Объявление снято с публикации
Коммунальные платежи:оплачиваются отдельно
Условия продажи:«чистая» продажа

Продается 3-х комнатная квартира в кирпичном доме (отличная звукоизоляция);
- функциональная планировка, 2 лоджии, окна на две стороны (юг и север); 3 изолированные комнаты (17.8 +12.5+8.6 кв м);
- отличная локация, до станции метро Площадь 1905 года 7-10 минут на транспорте, рядом остановки трамвая и автобуса, магазины, мини рынок, фитнес клуб в ЖК Нагорный через дом, школы, детские сады,
- в сан узле кафель, обе лоджии застеклены, двор закрытый , есть парковочные места во дворе, детская площадка;
- без обременений, два взрослых собственника; -быстрый выход на сделку
- приглашаем на просмотр

ID объекта в нашей базе: 8218

Объявление снято с публикации

Ипотечный калькулятор

лет
%
Сумма кредита
10000000 ₽
Платеж
22 540 ₽

Актуальные предложения в этом доме

  • 3-к квартира, Татищева, 60

    • 61.9 м2
    • 2/9 этаж
    • Состояние:
    8 545 000 ₽ (138000 ₽/м2)
    СРОЧНО! продам полноценную трёхкомнатную квартиру в кирпичном доме. Рядом с Центром города. Дом теплый, с хорошей шумоизоляцией. Функциональная планировка квартиры, где все комнаты изолированные (16,4; 9,7; 12 кв.м.). Есть кладовка. Окна на разные стороны (во двор и на тихую улочку). Санузел раздельный, в кафеле. Окна пластиковые. Лоджия застеклена.Двор закрытый. Во дворе предусмотрены игровые площадки для детей разных возрастов и зоны для отдыха. Так же есть закрытый футбольный корт. Шикарная локация дома. Всё необходимое в пешей доступности: садики; школы; продуктовые магазины; фитнесс центры; Верх-Исетский бассейн; ДК ВИЗ; ВИЗовский пляж; Яхт клуб; кафе и рестораны; Центральный стадион; детская поликлиника и больница; Новая больница и т.д. Рядом с домом остановки общественного транспорта (трамваи и автобусы). До центра 20 минут пешком. Квартира без обременений. Один совершеннолетний собственник. Мат.капитал не использовался. Звоните, отвечу на все вопросы по данной квартире. Полный пакет документов, сопровождение и профессиональная поддержка сделки: -опытным агентом и юристом-помощь с ипотекой Гарантия безопасности сделки от агентства "БК_НЕДВИЖИМОСТЬ". ID объекта в нашей базе: 3122
    размещено: 12.08.2025 , обновлено: 11.12.2025

История предложений в этом доме

объявление снято с публикации в продаже комнат площадь этаж цена,
Екатеринбург, ул. Татищева, 60 (ВИЗ) - фото квартиры 29 апреля 2025 90 дн. 3 61.3 2/9 6 800 000
Екатеринбург, ул. Татищева, 60 (ВИЗ) - фото квартиры 23 января 2025 90 дн. 4 84.4 6/9 9 490 000
Екатеринбург, ул. Татищева, 60 (ВИЗ) - фото квартиры 20 августа 2024 90 дн. 2 49.9 6/9 6 500 000
Екатеринбург, ул. Татищева, 60 (ВИЗ) - фото квартиры 27 марта 2024 90 дн. 3 61.1 8/9 7 780 000
Екатеринбург, ул. Татищева, 60 (ВИЗ) - фото квартиры 27 июня 2024 90 дн. 4 84.5 6/9 9 490 000
Екатеринбург, ул. Татищева, 60 (ВИЗ) - фото квартиры 26 февраля 2024 90 дн. 3 62 3/9 7 200 000
Екатеринбург, ул. Татищева, 60 (ВИЗ) - фото квартиры 8 июля 2022 90 дн. 3 63 6/9 7 050 000
Екатеринбург, ул. Татищева, 60 (ВИЗ) - фото квартиры 6 апреля 2021 90 дн. 3 62 3/9 5 100 000
Екатеринбург, ул. Татищева, 60 (ВИЗ) - фото квартиры 17 апреля 2020 60 дн. 2 49 6/9 3 700 000
Екатеринбург, ул. Татищева, 60 (ВИЗ) - фото квартиры 17 мая 2020 90 дн. 4 78 2/9 5 700 000
Екатеринбург, ул. Татищева, 60 (ВИЗ) - фото квартиры 22 марта 2020 90 дн. 2 49 8/9 3 890 000
Екатеринбург, ул. Татищева, 60 (ВИЗ) - фото квартиры 8 января 2020 90 дн. 4 78 2/9 5 700 000
2 сентября 2018 92 дн. 4 75 1/9 3 900 000
10 августа 2015 122 дн. 4 78 4/9 5 800 000
7 июня 2014 61 дн. 4 75 1/9 5 800 000
28 февраля 2014 92 дн. 4 74.8 1/9 5 600 000
13 января 2013 61 дн. 1 35.4 4/9 3 000 000

Похожие предложения о продаже квартир в Екатеринбурге (ВИЗ)

  • 3-к квартира, Татищева, 77

    • 71 м2
    • 4/9 этаж
    • Состояние: хорошее
    8 750 000 ₽ (123200 ₽/м2)
    Предлагаем вам не просто квадратные метры, а настоящий семейный очаг. Это уютная и светлая трёхкомнатная квартира в надёжном кирпичном доме с улучшенной, очень продуманной планировкой, где каждая деталь создана для комфортной жизни. Главное её сокровище — это свет. Большие окна, смотрящие на юго-запад, целый день наполняют комнаты тёплым солнечным светом, а вечером можно наслаждаться красивым закатом. Квартира выходит на две стороны: из одних окон открывается вид в тихий и спокойный двор, где можно не волноваться за играющих детей, а из других — на оживлённую жизнь улицы. Внутри вас ждёт пространство, где удобно всей семье. Здесь есть и полноценная ванная комната для отдыха, и гостевой санузел для удобства. А квадратная кухня станет тем самым местом, где по утрам пьют кофе, а по вечерам собираются за ужином, чтобы делиться новостями. Жить здесь — одно удовольствие. Буквально в нескольких шагах начинается набережная Верх-Исетского пруда — ваша личная территория для прогулок, раздумий и встреч с невероятными уральскими закатами. Рядом же фитнес-зал и бассейн, чтобы всегда быть в тонусе. А до самого сердца города, Площади 1905 года, можно неспешно дойти пешком за двадцать минут, наслаждаясь прогулкой, или доехать на трамвае за четыре остановки — они начинаются буквально в трёх минутах от вашего подъезда. Квартира продаётся без обременений, с чистыми документами. Мы с радостью проведём для вас экскурсию и поможем представить, как здесь может забиться жизнь, наполненная светом, покоем и счастьем. Приезжайте — это тот дом, где хочется остаться. ID объекта в нашей базе: 12943
    размещено: 15.12.2025
  • 3-к квартира, Татищева, 77

    • 70.2 м2
    • 9/9 этаж
    • Состояние: хорошее
    9 200 000 ₽ (131100 ₽/м2)
    Предлагаем вашему вниманию уютную трёхкомнатную квартиру общей площадью 70,2 м2 по привлекательной цене.Оцените основные преимущества нашего предложения: Эргономичная планировка включает кухню-гостиную (24,0 м2), три спальни, лоджию, просторный санузел и прихожую со шкафом-купе. Это идеальный вариант для семьи с детьми. Изолированные комнаты - 14,8 м2, 10,0 м2 и 10,0 м2 - позволят каждому члену семьи иметь свою зону для работы и отдыха. Высокий этаж – никакой пыли и постороннего шума от центральных дорог. Вы всегда сможете любоваться прекрасными видами нашего города. Приятный бонус - в подарок покупателям остаётся кухонный гарнитур со встроенной бытовой техникой и шкаф-купе в прихожей. Кирпичные стены отлично сохраняют тепло зимой и прохладу летом, а также обладают превосходной шумоизоляцией. В шаговой доступности богатая инфраструктура, которая создает условия для комфортной и счастливой жизни. Здесь есть всё для решения любых вопросов: кафе и рестораны, аптеки и магазины. Родители малышей и школьников по достоинству оценят местоположение дома. Совсем рядом находятся нескольких муниципальных детских садов №5, №466, №430, №249 и школ №1, №163, рейтинговая гимназия №202 Менталитет, а также огромное количество детских кружков, студий и развивающих центров. Удобная транспортная доступность - рядом с домом остановки общественного транспорта (автобус и трамвай). До центра города можно доехать за 10 мин на автомобиле. Один взрослый собственник, квартира без обременений, свободная продажа - быстрый выход на сделку!Если Вы заботитесь о Вашей семье – дайте ей лучшее! Просто позвоните и договоритесь на просмотр прямо сейчас. ID объекта в нашей базе: 188
    размещено: 08.12.2025 , обновлено: 9.12.2025
  • 3-к квартира, Крауля, 105

    • 73 м2
    • 18/31 этаж
    • Состояние: удовлетворительное
    9 900 000 ₽ (135600 ₽/м2)
    Продается трехкомнатная квартира в жилом комплексе "Русь". Комплекс станет своеобразным архитектурным акцентом, на который будут равняться другие. В инфраструктуру входят школы, детские сады и высшие учебные заведения. Поблизости расположены несколько детских и взрослых больниц, медицинских центров, торговые центры, кафе, супермаркеты, спортивные центры, бизнес - центр Татищевский. Дом с видом на живописные закаты. Двор без машин с разновозрастными детскими площадками, безбарьерной средой, workout площадкой и велодорожкой. Будет выполнено красивое озеленение территории. Комфорт с первого шага: Прозрачные входные группы, выход на улицу и во двор, мягкая зона ожидания, колясочная в каждом доме, бесшумные лифты, лапомойка и мусорокамера.В квартире выполнена будет предчистовая отделка.Возможно покупка в ипотеку. ID объекта в нашей базе: 12738
    размещено: 03.12.2025 , обновлено: 13.12.2025
  • 3-к квартира, Репина, 99-а

    • 69.6 м2
    • 10/10 этаж
    • Состояние: хорошее
    8 700 000 ₽ (125000 ₽/м2)
    Продается уютная и ухоженная 3-комнатная квартира в районе ВИЗ общей площадью 69,6 м². Основные преимущества: - Три изолированные комнаты с окнами на две стороны. - Косметический ремонт, обустроенная лоджия. - Просторный коридор с множеством мест для хранения. - Надежная сейф-дверь. - Новые окна и батареи. - Выделенная секция на две квартиры с дополнительным местом для хранения. - Остается кухонный гарнитур, шкафы в коридоре и мебель в детской комнате. Инфраструктура и удобства: - ТЦ «Радуга Парк» в шаговой доступности. - Остановка общественного транспорта в 3 минутах ходьбы. - Новый детский сад и школа №41 через дорогу. - Больница №40 в 5 минутах езды. - Достаточно мест на стоянке возле дома. Дополнительные преимущества: - Управляющая компания оперативно решает вопросы жильцов и следит за состоянием дома и придомовой территории. - Чистый подъезд и приятные соседи. - Юридически чистый объект, возможен обмен. Просмотр возможен в удобное для вас время. Звоните, с удовольствием отвечу на все ваши вопросы и запишемся на просмотр. ID объекта в нашей базе: 9251
    размещено: 24.11.2025 , обновлено: 5.12.2025
  • 3-к квартира, Викулова, 63/5

    • 78.3 м2
    • 9/12 этаж
    • Состояние: идеальное
    9 350 000 ₽ (119400 ₽/м2)
    Предлагается к продаже просторная трехкомнатная квартира в Верх-Исетском районе города Екатеринбурга.Квартира находится в доме, построенном по спецпроекту в 2001 году, на 9 этаже, с которого открывается прекрасный вид на окрестности. У квартиры отличная планировка, окна выходят на разные стороны света: на юго-восток и северо-запад.Все окна в квартире пластиковые, остекление лоджии из алюминия, межкомнатные двери поменяны, установлена хорошая входная сейф-дверь, заменена вся электро проводка, стены выровнены, ванная и туалет в кафеле, на полу в комнатах кварцвинил, потолки натяжные с разными режимами освещения. В квартире остаются и входят в стоимость: встроенные шкафы в трех спальнях, водонагреватель.Перед подъездом огороженная парковка для жителей дома. Заняты 2 места, при покупке квартиры они могут быть заняты вами.Инфраструктура в микрорайоне хорошо развита, присутствуют все сетевые магазины и аптеки, школа 41, детские сады 67 и 348, в шаговой доступности ТЦ "Радуга парк" и ТЦ "Мега" в паре остановок общественного транспорта. Рядом с домом остановки трамваев и автобусов.Квартира в чистой продаже.Если Вам нравится квартира, но не одобрена ипотека или не продан свой объект недвижимости, то звоните и расскажите об этом, обязательно помогу с одобрением ипотеки или поиском покупателя на Ваш объект. ID объекта в нашей базе: 6173
    размещено: 20.11.2025 , обновлено: 8.12.2025

    3-к квартира, Крауля, 56

    • 62.7 м2
    • 4/9 этаж
    • Состояние: идеальное
    8 800 000 ₽ (140400 ₽/м2)
    ИДЕАЛЬНАЯ ТРЁШКА НА ВИЗЕ ????И честно — это не просто «вариант». Это кандидат на премию «Лучшая квартира района» ????.Дом — один из самых проверенных и уважаемых на Визе.Не верите мне? Да спросите любого местного — у них тут прям фан-клуб этого дома ????Виз вообще называют вторым центром города ????.И не просто так — сюда уже переносят администрацию.А ул. Ленина плавно превращается в ул. Крауля — локация говорит сама за себя:здесь живут удобно, уверенно и по уму ????Перепланировка? Да, есть.Но это не «сделали что-то лишь бы было».Это грамотная, продуманная, взрослая перепланировка, которая с первых секунд показывает, что здесь думали, а не экспериментировали ????Главное сердце квартиры — кухня-гостиная ❤️Тут собирается семья, тут живут самые тёплые моменты: ужины, разговоры, планы, смех — всё здесь.Спальные комнаты? Сейчас никому не нужны эти гигантские «залы» советского формата.Комнаты должны быть комфортными, практичными — и тут всё именно так ????Каждая изолирована, уютная, правильной формы — прям то, что нужно.Ремонт — это отдельный респект ????Делался под себя, на совесть, спокойно и качественно.Не флиппинг, не «лишь бы продать».Любые проверки удивятся уровню качества.Это тот самый редкий ремонт, который вызывает уважение.Квартира — в одной семье с первого дня постройки дома ????Её любили, за ней смотрели, она не видела хаоса и случайных людей.Продавать сложно, но семья растёт — нужно больше пространства.Хочется передать в хорошие руки. Надеюсь — в ваши ????Юридическая чистота — идеальная.Нет обременений, нет долгов, никаких подводных камней.Всё по-честному ✔️Теперь про самое болючее для нашего города — парковку ????И вот здесь — подарок судьбы:с парковкой НИКАКИХ приключений. Всегда есть места. Всегда.Не нужно кружить по двору, не нужно устраивать квест «где приткнуться».Приехал → припарковался → пошёл домой.Живёшь, а не воюешь с парковкой. Красота ????Расположение — просто песня ????Рядом школа, садик, остановки, магазины, пункты выдачи, парки, Верх-Исетский пруд, спорт, почта — да тут всё, что нужно для нормальной, красивой, удобной жизни ????Это реально достойный экспонат ????Такой, что если упустишь — потом можно рыдать в подушку и рассказывать друзьям, какой шанс ушёл мимо ????Так что действуй.Записывайся на просмотр — покажу этот алмаз оперативно ???? ID объекта в нашей базе: 12468
    размещено: 18.11.2025 , обновлено: 12.12.2025

    3-к квартира, Крауля, 93

    • 79 м2
    • 4/16 этаж
    10 150 000 ₽ (128500 ₽/м2)
    Объект № 194980. Предлагаю вашему вниманию отличную трехкомнатную квартиру в настоящем кирпичном доме, спецпроект 2006 года. За счет конструктивных особенностей дом качественный, очень теплый и с прекрасной звукоизоляцией. Отличное расположение дома – в месте активного развития района ВИЗ и строительства современных жилых комплексов с новой инфраструктурой. Уже сейчас прямо во дворе расположена школа № 48, в двух шагах детские сады № 13 и № 24. Отличная транспортная доступность – в двух шагах ходьбы от дома троллейбусная конечная остановка маршрутов № 25 и № 36, совсем рядом автобусов №25, №84, №98. В квартире сделан качественный стильный ремонт, даже стояки ГВС и ГВС уже поменяны, квартира не требует вложений, можно сразу заехать и жить. У квартиры отличная планировка на разные стороны, 2 окна на одну сторону, и 2 окна на другую сторону. ***Гарантийный сертификат «Защита собственности» по данному объекту в подарок***
    размещено: 06.11.2025 , обновлено: 7.12.2025

    3-к квартира, Крауля, 82

    • 61 м2
    • 4/8 этаж
    • Состояние: идеальное
    9 400 000 ₽ (154100 ₽/м2)
    Представляем Вашему вниманию просторную, уютную и теплую трехкомнатную квартиру в отличной локации Верх-Исетского района. В квартире сделан современный, качественный евроремонт. На полу паркетная доска. На стенах частично венецианская штукатурка. Установлены стеклопакеты. Сан.узел совмещен. Одна спальня используется как гардеробная комната – отличное решение!Качественный кухонный гарнитур. Удобная современная обеденная зона. В ванной и туалетной комнате сделан также капитальный ремонт. Площади помещений: Общая 53,5 м2. Кухня 6 м2, гостиная 16 м2, спальня 13 м2, вторая спальня 11 м2. Просторный холл. Квартира расположена на высоком 1 этаже. Как вариант – идеально подойдет под коммерческую недвижимость (цена таких объектов от 160 000 за м2) Отличная локация и инфраструктура. В шаговой доступности школы, садики, супермаркеты, кафе, рестораны, фитнес-залы. В доме расположены все необходимые атрибуты для комфортной жизни (аптеки, салоны красоты, минимаркеты и др.) Остановки общественного транспорта в минуте ходьбы. Во дворе расположена одна из лучших школ района № 63 и начальная гимназия «Менталитет». Детский сад. Квартира юридически чистая, никаких обременений. Единственный взрослый собственник. Звоните. Показ в удобное для Вас время. ID объекта в нашей базе: 11861
    размещено: 24.10.2025 , обновлено: 25.11.2025

    3-к квартира, Красноуральская, 22

    • 59 м2
    • 3/9 этаж
    • Состояние: идеальное
    10 000 000 ₽ (169500 ₽/м2)
    - Дом 1987 года полностью кирпичный с прекрасной тепло и шумо изоляцией, таких сейчас уже не строят. - Квартира после качественного евро ремонта, перепланировка узаконена (произведена замена стояков, электрики, батарей, на кухне сделаны тёплые полы).- В квартире всё время поддерживается идеальное состояние и чистота, что позволит новым владельцам сразу же заселиться без дополнительных ремонтных работ. - Для семей с детьми особенно актуально наличие вокруг дома на выбор множества школ и детских садов, детской и взрослый поликлиники, а также 33 больницы.- Отличная транспортная развязка, 5 минут до центра города на машине, все виды транспорта рядом с домом.- Для поддержания физической формы и активного образа жизни поблизости расположен Визовский спортивный центр, бассейн, фитнес-центр.- Парковка предусмотрена во дворе, что является несомненным преимуществом для автовладельцев. - Прямо возле дома находится продуктовый магазин, что позволяет быстро дойти до подъезда с полными сумками. ID объекта в нашей базе: 11927
    размещено: 16.10.2025 , обновлено: 4.12.2025

    3-к квартира, Токарей, 24

    • 80 м2
    • 4/15 этаж
    • Состояние: удовлетворительное
    12 800 000 ₽ (160000 ₽/м2)
    Объект № 194671. Продам 3-комнатную квартиру в кирпичном доме рядом с центром. Квартира площадью 80 кв.м. на 4 этаже, кухня-гостиная с двумя входами, две комнаты, санузел, лоджия, балкон (оба застеклены). Окна выходят на разные стороны дома. Полы – дубовый штучный паркет, качественные двери из натурального дерева, вся проводка медная. Дом - спецпроект, удачно расположен в районе с развитой инфраструктурой. Свое ТСЖ, низкие тарифы за коммунальные услуги, установлено видеонаблюдение в подъездах и на территории двора. В 2022 г. проводился капитальный ремонт подъезда, заменены стояки и трубы. Территория двора огорожена, въезд со стороны ул. Нагорная через автоматические ворота, калитки во двор расположены с трех сторон. Благоустроенный двор, детская площадка, много парковочных мест.  Инфраструктура: большое количество продуктовых и хозяйственных магазинов, аптек, медицинских центров, заведений общественного питания, пунктов выдачи заказов различных маркетплейсов. В шаговой доступности остановки общественного транспорта: маршрутного такси, трамваев, автобусов. По прописке школы № 1 и  школа 69, детский сад № 539.  Большое количество детских спортивных секций, детских центров дополнительного образования различной направленности. Недалеко Верх-Исетский спортивный центр, Дворец Молодежи, благоустроенный Парк 22 Партсъезда. Реализуется агентством недвижимости Новосёл. Квартира без обременений, освобождена, быстрый выход на сделку. Показ возможен в удобное время по предварительной договорённости. ***Гарантийный сертификат «Защита собственности» по данному объекту в подарок***
    размещено: 08.10.2025 , обновлено: 28.11.2025

    3-к квартира, Крауля, 170

    • 64.6 м2
    • 5/23 этаж
    • Состояние: идеальное
    10 190 000 ₽ (157700 ₽/м2)
    ВИЗ входит в ТОП - 3 самых развитых районов Екатеринбурга для комфортной жизни!* Рядом Верх-Исетский пруд, развитая инфраструктура и хорошая транспортная доступность, включая близость к метро* 10 минут до центра города! ЖК Янтарная долина расположен рядом с колледжем им. ПоповаКвартира для большой дружной любящей семьи!* Капитальный ремонт качественными материалами: начиная от входной двери до потолков...* ПЛАНИРОВКА- Все три спальни изолированы- Два санузла - Просторная кухня с дизайнерским ремонтом и большим обеденным столом из массива дерева!Квартира находится ипотеке ПАО СбербанкПриветствуем покупателей во всеми видами сертификатов! Поможем оформить ипотечный кредитДокументы продавца проверены! ID объекта в нашей базе: 11685
    размещено: 02.10.2025 , обновлено: 9.12.2025

    3-к квартира, Крауля, 56

    • 65 м2
    • 7/10 этаж
    7 490 000 ₽ (115200 ₽/м2)
    Арт. 118206834 В продаже 3-х комнатная квартира на 7 этаже дома на пересечении Крауля-Заводская. Сделан косметический ремонт. На сделку готовы выйти не ранее 1 ноября-готовим документы. Но просмотр возможен в любое время!
    размещено: 29.09.2025 , обновлено: 9.12.2025

    3-к квартира, Отрадная, 1

    • 73.9 м2
    • 24/26 этаж
    • Состояние: плохое
    11 990 000 ₽ (162200 ₽/м2)
    Продается отличная трехкомнатная квартира в ЖК Сюжеты. Дом сдан. Продажа от физлица. Чистая продажа, 1 совершеннолетний собственник. Сделана перепланировка, узаконена. Окна выходят на разные стороны. Мастер спальня 16,6 метра, 2 лоджии, 2 санузла, кухня 17,1, место под вместительный гардероб. Сделана электрика по всей квартире, медная проводка, теплый пол. Закрытая территория, дом охраняется, есть подземный паркинг и кладовая (Кладовая и паркинг продается отдельно). Внутри мягкие холлы, удобные дворы с детскими и спортивными площадками. В шаговой доступности от ЖК находится остановка общественного транспорта «Отрадная». В 900 метрах расположен детский сад №67. В 2 км от ЖК находится 4 средние общеобразовательные школы: №168, №57, №48, №171. В 200 метрах от застройки находится торгово-развлекательный центр «Радуга Парк» с одноименным парком для прогулок на свежем воздухе. В радиусе 200 метров есть супермаркеты «Жизньмарт», также гипермаркет «ОКЕЙ» Рядом ландшафтный парк с прудом, экстрим-парком и колесом обозрения. И все это недалеко от центра и удобных транспортных развязок.Звоните, организуем показ в удобное время. ID объекта в нашей базе: 11358
    размещено: 17.09.2025 , обновлено: 3.12.2025

    3-к квартира, Татищева, 126

    • 82.6 м2
    • 23/25 этаж
    • Состояние: хорошее
    12 500 000 ₽ (151300 ₽/м2)
    Пpодаeтся евро-трешка с эргономичной планировкой в сoвpeменнoм доме по aдpecу: Eкатеринбург, улица Тaтищева, 126. Квартира рacполoжeнa на видовом 23 этаже ЖК "Регата". Общая площадь квартиры составляет 83 кв. м, куxня-гостиная — 30,5 кв. м. Окнa выxодят на Ю-З. В квартире выполнен ремонт от застройщика. В подарок новым собственникам останется новый кухонный гарнитур со встроенной немецкой техникой (Холодильник, варочная панель, духовой шкаф, вытяжка, посудомойка). В спальне шкаф-купе, кровать и комод. Удобная квадратная прихожая с большой гардеробной. Две просторных лоджии с видом на пруд станут отличным местом для отдыха. Два санузела один из которых оформлен с использованием современных материалов с душевой кабиной, второй требует ремонта. Дом оборудован двумя пассажирскими и одним грузовым лифтом, что делает перемещение максимально комфортным. Для автомобилей предусмотрена наземная парковка. В шаговой доступности от дома находятся школы, детские сады и магазины, что делает квартиру идеальным вариантом для семей с детьми. До метро "Площадь 1905 года" можно добраться на автомобиле всего за 10 минут, а это значит, что вы всегда будете в центре событий. Хорошая транспортная развязка (автобусы, трамваи). Двор и дом оснащены камерами видеонаблюдения, в ЖК своя служба охраны. Квартира продается без обременений, что значительно упростит процесс оформления сделки. Возможна покупка в ипотеку. Агент сопровождает сделку на всех этапах, обеспечивая полную юридическую чистоту. Записывайтесь на просмотр и оцените все преимущества этой квартиры лично! Это отличный вариант для тех, кто хочет жить в современном и комфортном жилье в одном из лучших районов Екатеринбурга. ID объекта в нашей базе: 1407
    размещено: 04.09.2025 , обновлено: 7.12.2025

    3-к квартира, Татищева, 60

    • 61.9 м2
    • 2/9 этаж
    • Состояние: хорошее
    8 545 000 ₽ (138000 ₽/м2)
    СРОЧНО! продам полноценную трёхкомнатную квартиру в кирпичном доме. Рядом с Центром города. Дом теплый, с хорошей шумоизоляцией. Функциональная планировка квартиры, где все комнаты изолированные (16,4; 9,7; 12 кв.м.). Есть кладовка. Окна на разные стороны (во двор и на тихую улочку). Санузел раздельный, в кафеле. Окна пластиковые. Лоджия застеклена.Двор закрытый. Во дворе предусмотрены игровые площадки для детей разных возрастов и зоны для отдыха. Так же есть закрытый футбольный корт. Шикарная локация дома. Всё необходимое в пешей доступности: садики; школы; продуктовые магазины; фитнесс центры; Верх-Исетский бассейн; ДК ВИЗ; ВИЗовский пляж; Яхт клуб; кафе и рестораны; Центральный стадион; детская поликлиника и больница; Новая больница и т.д. Рядом с домом остановки общественного транспорта (трамваи и автобусы). До центра 20 минут пешком. Квартира без обременений. Один совершеннолетний собственник. Мат.капитал не использовался. Звоните, отвечу на все вопросы по данной квартире. Полный пакет документов, сопровождение и профессиональная поддержка сделки: -опытным агентом и юристом-помощь с ипотекой Гарантия безопасности сделки от агентства "БК_НЕДВИЖИМОСТЬ". ID объекта в нашей базе: 3122
    размещено: 12.08.2025 , обновлено: 11.12.2025

    3-к квартира, Репина, 107

    • 92.5 м2
    • 2/10 этаж
    • Состояние: идеальное
    13 000 000 ₽ (140500 ₽/м2)
    Продается просторная , уютная 3-х комнатная квартира в инфраструктурно развитом районе ВИЗ, в кирпичном доме. Год постройки: 2000 ПЛАНИРОВКА КВАРТИРЫ: Жилые комнаты изолированы Окна квартиры выходят на разные стороны -восток и запад, Высота потолков: 2.55 м, - Общая площадь 92.5 м2, - Жилая площадь: 51.3 м², - Кухня: 16.4 м2 ( окна во двор), оборудована кухонным гарнитуром, (с выходом на лоджию). - Комната гостиная: 21.87 м2 ( окна во двор) - Комната спальня №1:14.27 м2 ( окна во двор) ,(с выходом на лоджию), - Комната спальня №2: 14.2 м2 ( окна во двор) , - Кoридoр: 15 м2 с встроенным шкафом купе, - Раздельный санузел: ванная комната - 2.6 м2 и туалетная комната - 1.3 м2 . Две лоджии 10 м2 и 8 м2 В ДОМЕ: - Чистый подъезд; - Пассажирский лифт- Кладовка в подьезде собственная 1.7 м2 - Квартира расположена в просторной секции , где можно поставить коляску, велосипеды, самокаты. - В секции всего 3 квартиры; порядочные, доброжелательные соседи. ВО ДВОРЕ: - Во дворе закрытая охраняемая территория с видеонаблюдением и установленным шлагбаумом - Наземная автопарковка - Детская площадка Инфраструктура: Напротив - торговый центр Радуга-парк. В пешей доступности: - Современная школа № 41, - Детские сады, школы, центры развития, городская больница № 41, детская поликлиника. - Торговые центры — «МЕГА», супермаркеты «Перекрёсток» и «Ашан», аптеки, кафе и фитнес-клубы, разные магазины . Развитая транспортная сеть обеспечивает быстрый и удобный выезд в центр города и другие районы. - Остановки общественного транспорта с маршрутами до метро, НОВОМУ СОБСТВЕННИКУ ОСТАЮТСЯ: - - Кухонный гарнитур с встроенной техникой - Встроенных шкаф – купе в коридоре Чистая продажа. Быстрый выход на сделку. ID объекта в нашей базе: 1547
    размещено: 16.06.2025 , обновлено: 30.11.2025

    3-к квартира, Токарей, 53

    • 62 м2
    • 8/9 этаж
    • Состояние: плохое
    8 700 000 ₽ (140300 ₽/м2)
    Предлагаем к продаже трехкомнатную квартиру в кирпичном доме. Эргономичная планировка, три раздельные комнаты. В квартире требуется полный капитальный ремонт, очень теплая квартира с хорошими видовыми характеристиками. Удобное расположение дома, вся инфраструктура в шаговой доступности, большое количество различных магазинов, школа, детские сады, поликлиники и больница. Отличная транспортная развязка, 5 минут до центра города на машине. Ипотека возможна, ждем Вас на просмотр! ID объекта в нашей базе: 1389
    размещено: 13.06.2025 , обновлено: 8.12.2025

    3-к квартира, Рабочих, 9

    • 66 м2
    • 10/10 этаж
    • Состояние: идеальное
    9 649 990 ₽ (146200 ₽/м2)
    *???? ГОРЯЧЕЕ ПРЕДЛОЖЕНИЕ! 3ккв. ВИЗ, ул. Рабочих 9, 10/10 эт. ???? ВИД НА РЕКУ! Дизайн-ремонт. Вся мебель/техника. ✅ 1 взрослый СОБСТВЕННИК. ⚡ БЫСТРЫЙ ВЫЕЗД!**Продается просторная 3-комнатная квартира в отличном состоянии! Адрес: ул. Рабочих , 9.**✅ Главные преимущества, которые вас ждут прямо сейчас:** *???? Лучший вид в доме:* Квартира на *10/10 (последнем!) этаже* с *видом на реку*! Наслаждайтесь красивыми пейзажами каждый день.* *✨ * Выполнен *качественный дизайнерский ремонт*. Стильно, современно, дорого. Никаких вложений не требуется!* *???? Переезжайте сегодня:* *Вся мебель и техника остаются новому владельцу!* Полная комплектация "под ключ". Живите с первого дня!* *⚡ Сделка БЕЗ задержек:* *Один взрослый собственник.* Все *документы готовы* и в полном порядке. *Быстрое освобождение квартиры* – выезжаем сразу после подписания договора.*???? Это не просто квартира – это ваш готовый комфорт и статус с видом на воду! Последний этаж = максимум света, тишины и лучшая панорама.**Не упустите уникальный шанс! Пока вы думаете – другие уже договариваются о просмотре!**Звоните прямо сейчас для подробностей и записи на срочный просмотр!* ID объекта в нашей базе: 9754
    размещено: 10.06.2025 , обновлено: 10.12.2025

    3-к квартира, Токарей, 44/3

    • 96 м2
    • 3/6 этаж
    • Состояние: хорошее
    10 990 000 ₽ (114500 ₽/м2)
    Объект № 191985. ОСВОБОЖДЕНА. Продается уютная, просторная квартира с нестандартной планировкой (в кирпичном доме). Счётчики на всё. Два больших балкона, на разные стороны. Остаётся кухонный гарнитур. Спокойные соседи, чистый подъезд. Дом, относится по прописке к Новой больнице №33. Возможен ОБМЕН на 1 или 2 комнатную квартиру. ***Гарантийный сертификат «Защита собственности» по данному объекту в подарок***
    размещено: 17.05.2025 , обновлено: 5.12.2025

    3-к квартира, Крауля, 79

    • 73 м2
    • 9/12 этаж
    • Состояние: хорошее
    8 490 000 ₽ (116300 ₽/м2)
    Объект № 191026. Если хотите жить в надежном кирпичном доме, то Вам понравится наша квартира! 4-комнатная квартира в Верх-Исетском районе города Екатеринбурга. У дома большой двор для игр с детьми и прогулок. Вы оцените удачное расположение в глубине жилого квартала, проезжие дороги далеко от дома, рядом 2 детских сада - выбирайте любой. Около дома 3 школы, в шаговой доступности детская и взрослая поликлиники, торговые центры, магазины, кафе, салоны красоты - найдется то, что Вам подойдет. Остановки автобусов, троллейбусов и трамваев в разные районы города у дома. Планировка квартиры предполагает, что у каждого члена семьи есть своя комната (три комнаты), а все вместе встречаются за большим столом на ужин или воскресный обед, а потом в кухне-гостиной есть место совместного досуга и общения. Окна квартиры выходят на две стороны. Для семьи удобен раздельный санузел и прихожая со шкафом-купе. Дополнительное пространство квартиры (7м) - теплая застекленная лоджия. Кухонный гарнитур с надежной техникой и шкаф-купе пригодятся покупателю. Приходите и оцените преимущества квартиры! ***Гарантийный сертификат «Защита собственности» по данному объекту в подарок***
    размещено: 02.04.2025 , обновлено: 14.12.2025

Новостройки Екатеринбург, мкр-н. ВИЗ

Приоритет

Увеличивает просмотры в 3 раза

Ваше объявление показывается в списке выше обычных объявлений. подключить