На Метре реклама - только нормальная. Никакого шок-контента.
Помогайте независимому ресурсу, как он помогает вам. Удачи!
Средняя цена м² · Новостройки
176 954 ₽/м²
↑ 12% за 12 мес.
Средняя цена м² · Вторичка
139 363 ₽/м²
↑ 9,3% за 12 мес.
Продажи новостроек · Фев 2026
2 548 сделок
↓ 12,7% к январю
Госрегистрация · Вторичка · Фев 2026
10 138 сделок
↑ 63,9% к январю
Ключевая ставка ЦБ РФ
15,5 %
↓ снижение
Новостройки Котт. посёлки Объявления Динамика цен и сделок

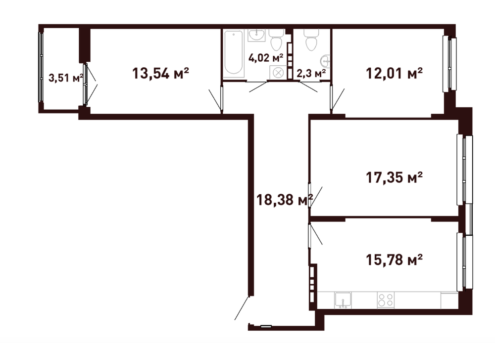
Продажа квартиры: Екатеринбург, ул. Калинина, 3 (Уралмаш)

  • опубликовано 18.02.2025 , обновлено 5.03.2026
  • 15
  •  
Кадастровый номер:66:41:0106114:3174
Рынок:вторичный
Срок сдачи: 2012 года
Количество комнат:3
Общая площадь:84 м2
Жилая площадь:54 м2
Площадь кухни:11 м2
Этаж/Этажность дома:2 / 10
Санузел:раздельный
Отделка:евроремонт
Год постройки:2012
Цена:
13 490 000
Коммунальные платежи:оплачиваются отдельно
Ипотека:возможна

Объект № 189397. Просторная трехкомнатная квартира в современной части Уралмаша. Эргономичная планировка: большая прихожая с изолированной входной зоной и местом для гардеробного шкафа, два отдельных санузла, две жилые комнаты комфортных площадей 15,5 - 17,5 кв. м, просторное помещение кухни-столовой и гостиной с окнами на 3 стороны и выходом на лоджию.

Окна на 3 стороны, благодаря чему в квартире светло большую часть дня. Аккуратная чистовая отделка.
Квартира расположена в максимально изолированной от уличного шума части комплекса, всего 5 квартир на этаже.
Дом расположен на тихой внутренней улице в самом сердце современного жилого квартала в окружении домов повышенного комфорта и в самой развитой части района. В 5 минутах ходьбы несколько продуктовых магазинов, кафе, фитнес, метро Уралмаш, трамвайные, автобусные и троллейбусные остановки.

Удобный и быстрый выезд в центр города и в любом другом направлении.
Есть гаражный бокс в закрытом паркинге.
Один взрослый собственник. Без обременений и других сложностей.
На фото представлены не все комнаты. Позвоните или напишите мне, буду рад организовать для вас просмотр квартиры, рассказать о возможностях приобретения. ***Гарантийный сертификат «Защита собственности» по данному объекту в подарок***

Новосёл. Группа компаний 1778 — Александр

показать телефон

Ипотечный калькулятор

лет
%
Сумма кредита
13490000 ₽
Платеж
22 540 ₽

История предложений в этом доме

объявление снято с публикации в продаже комнат площадь этаж цена,
Екатеринбург, ул. Калинина, 3 (Уралмаш) - фото квартиры 2 июля 2024 90 дн. 2 63.3 2/10 8 300 000
Екатеринбург, ул. Калинина, 3 (Уралмаш) - фото квартиры 14 июля 2023 90 дн. 2 50 14/25 6 400 000
Екатеринбург, ул. Калинина, 3 (Уралмаш) - фото квартиры 29 июня 2021 90 дн. 1 45.4 1/10 3 990 000
Екатеринбург, ул. Калинина, 3 (Уралмаш) - фото квартиры 16 октября 2020 90 дн. 1 42 9/10 4 450 000
Екатеринбург, ул. Калинина, 3 (Уралмаш) - фото квартиры 22 мая 2020 90 дн. 1 42.2 10/10 3 900 000
Екатеринбург, ул. Калинина, 3 (Уралмаш) - фото квартиры 22 февраля 2020 90 дн. 2 59.8 1/10 4 499 000
Екатеринбург, ул. Калинина, 3 (Уралмаш) - фото квартиры 10 января 2020 90 дн. 2 63 6/10 5 400 000
Екатеринбург, ул. Калинина, 3 (Уралмаш) - фото квартиры 2 февраля 2022 90 дн. 1 43 2/10 3 990 000
Екатеринбург, ул. Калинина, 3 (Уралмаш) - фото квартиры 11 декабря 2019 90 дн. 1 45 1/10 3 600 000
Екатеринбург, ул. Калинина, 3 (Уралмаш) - фото квартиры 11 апреля 2020 90 дн. 1 42.2 10/10 4 099 000
25 июня 2016 121 дн. 2 63 8/10 6 100 000
1 августа 2015 61 дн. 2 63 3/10 4 550 000

Похожие предложения о продаже квартир в Екатеринбурге (Уралмаш)

  • 3-к квартира, Калинина, 22

    • 79.8 м2
    • 9/10 этаж
    • Состояние: идеальное
    12 800 000 ₽ (160400 ₽/м2)
    3-комнатная квартира у метро «Уралмаш» | ЖК «Северное сияние»Продаётся 3-комнатная квартира в одном из первых домов ЖК «Северное сияние» (комфорт-класс).На этаже всего 4 квартиры — спокойная и камерная атмосфера.Удобная планировка:• окна выходят во двор и на улицу• квартира светлая, хорошая естественная инсоляция• комфортный вариант для семьиСостояние квартиры:• ремонт от застройщика• установлены пластиковые окна, на полу ламинат, в туалет и в ванной кафельнаяплиткаОтличная транспортная доступность:• метро «Уралмаш» — 7–8 минут пешком• трамвай — 5 минут пешком• рядом автобусные остановкиДля прогулок и отдыха:• напротив дома — Летний парк УралмашРазвитая инфраструктура, на районе:• 17 школ и около 80 детских садов• поликлиники, включая детскую №15• ТЦ «Омега» и «Стрелка»• фитнес-центры: Ultra Family Fitness, Bright Fit, Drive Fit, Street Fit• спорткомплекс «Олимп» и арена ФК «Урал»• стоматологии и медцентр «Доктор Плюс» — 5 минут пешком• магазины «Пятёрочка», «Магнит», кафе, кулинарии и сервисы у домаУправляющая компания — «Территория Север», ухоженный двор и дом.???? Звоните или пишите — отвечу на вопросы и договоримся о просмотре.Один взрослый собственник. Без обременений.е задано ID объекта в нашей базе: 796
    размещено: 12.03.2026 , обновлено: 13.03.2026
  • 3-к квартира, Калинина, 22

    • 78 м2
    • 1/10 этаж
    • Состояние: хорошее
    10 500 000 ₽ (134600 ₽/м2)
    Предлагается трехкомнатная квартира общей площадью 78 кв.м., рядом ст. метро Уралмаш, развитая инфраструктура . Квартира частично укомплектована мебелью, бытовой техникой, всё имеется для комфортного проживания. В шаговой доступности летний парк, ТЦ «Стрелка», школа, детские сады, ДК «Лаврова» (секции, кружки, мероприятия), пешеходные аллеи, сеть продуктовых магазинов, Ледовый спортивный комплекс , транспорт (метро, трамвай, троллейбус , автобус), Фитнес-клуб. -Дом сдан в 2009 году; -чистовая отделка от Застройщика; -потолок Н-2.7м; - лоджия; -подземны паркинг; Благоустроенный закрытый двор, служба мониторинга 24\7. Квартира приобреталась у Застройщика, за собственные средства, обременений нет. Возможна ИПОТЕКА., МАТ. КАПИТАЛ. Окажем профессиональное содействие в получении ипотечного кредита и реализации Вашей недвижимости. ID объекта в нашей базе: 26332
    размещено: 24.02.2026 , обновлено: 15.03.2026
  • 3-к квартира, Бакинских комиссаров, 33 А

    • 82 м2
    • 6/27 этаж
    • Состояние: идеальное
    11 899 000 ₽ (145100 ₽/м2)
    Продается просторная 3-комнатная квартира с евроремонтом в ЖК "Парк Победы". Общая площадь квартиры составляет 82.0 кв. м, жилая площадь 45 кв. м, площадь кухни — 18.4 кв. м. Квартира расположена на 6-м этаже 16-этажного дома, построенного в 2024 году .Большая лоджия, окна выходят как на улицу, так и во двор. Сделан современный евроремонт, поэтому вам не придется тратить время и деньги на обновление интерьера. Просторная кухня оборудована современной техникой, что позволяет вам готовить с удовольствием. Покупателю в подарок Духовой шкаф, микроволновая печь, посудомоечная машина, индукционная варочная поверхность, холодильник, шторы, люстры, кровати, диван. В квартире есть один совмещенный и один отдельный санузел, что удобно для большой семьи. Планировка квартиры продумана до мелочей, поэтому можно комфортно жить и принимать гостей. Дом оборудован двумя грузовыми лифтами, поэтому можно не беспокоиться о подъеме тяжелых вещей. Для вашего автомобиля предусмотрена подземная парковка, (продаётся или арендуется отдельно) поэтому вам не придется искать место для парковки на улице. Дом новый, все коммунальные системы работают исправно. Двор закрытый, оборудованный детскими площадками. Много зелени очень красиво. Рядом с домом есть все необходимое для комфортной жизни: школы, детские сады, клиники и магазины. Вам не нужно тратить много времени на дорогу, чтобы добраться до важных объектов инфраструктуры. Вокруг дома развитая транспортная сеть, поэтому можно легко добраться до любой точки города. Квартира продается без обременений, юридически чистая, один взрослый собственник. Возможна покупка в ипотеку. Мы готовы обсудить все условия сделки и ответить на любые ваши вопросы. Приезжайте на просмотр в удобное для вас время! Записывайтесь заранее, чтобы не упустить этот прекрасный вариант. Рассмотрим обмен на вашу квартиру с доплатой.Торг. ID объекта в нашей базе: 26295
    размещено: 09.02.2026 , обновлено: 13.03.2026
  • 3-к квартира, Калинина, 55

    • 85.17 м2
    • 9/9 этаж
    • Состояние: удовлетворительное
    11 327 610 ₽ (133000 ₽/м2)
    В продаже просторная квартира для дружной семьи в новом жилом комплексе в самом сердце Уралмаша! ... ... ... ❗️Несомненные преимущества:... ... ... ???? -возможна льготная ипотека (семейная/IT) со сниженной ставкой или 13.9% - для всех;???? -дом уже сдан, ключи в день сделки; ????-невысокая секция, всего 9 жилых этажей; ???? -полноформатные окна (больше света в помещениях); ???? -на этаже всего по 6 квартир, только семейные варианты (студий нет) ???? -предчистовая отделка (все грязные работы выполнены; поверхности выровнены, коммуникации/электрика разведены), дома дал усадку, поэтому можете сразу приступить к отделочным работам; ???? -есть подземный паркинг в каждом доме ЖК (можно приобрести в рассрочку на 2 года) ???? -полностью благоустроенный микрорайон и действительно классная локация: школы и дет/садики - рядом с домом; магазины, аптеки, кафе - в самом ЖК; поликлиника, банки, остановки общественного транспорта - «под рукой»; Парк Победы с прогулочными тропами, беседками/мангалами и хвойным лесом - в непосредственной близости!... ... ... Звоните прямо сейчас и успевайте приобрести ваше «семейное гнёздышко» ID объекта в нашей базе: 26265
    размещено: 29.01.2026 , обновлено: 14.03.2026
  • 3-к квартира, Калинина, 55

    • 81.47 м2
    • 9/9 этаж
    • Состояние: удовлетворительное
    10 835 510 ₽ (133000 ₽/м2)
    Продам просторную квартиру для дружной семьи в новом жилом комплексе мкр. Уралмаш ... ... ... ❗️Несомненные преимущества:... ... ... ???? -возможна льготная ипотека (семейная/IT) или 13.9% - для всех;???? -дом уже сдан, ключи в день сделки;????-невысокая секция, всего 9 жилых этажей;????-планировка - распашонка (самый удачный вариант!)???? -полноформатные окна (больше света в помещениях) ???? -на этаже всего по 6 квартир, только семейные варианты (студий нет) ???? -предчистовая отделка (все грязные работы выполнены; поверхности выровнены, коммуникации/электрика разведены), дома дал усадку, поэтому можете сразу приступить к отделочным работам; ???? -есть подземный паркинг в каждом доме ЖК (можно приобрести в рассрочку на 2 года) ???? -полностью благоустроенный микрорайон и действительно классная локация: школы и дет/садики - рядом с домом; магазины, аптеки, кафе - в самом ЖК; поликлиника, банки, остановки общественного транспорта - «под рукой»; Парк Победы с прогулочными тропами, беседками/мангалами и хвойным лесом - в непосредственной близости!... ... ... Звоните прямо сейчас! Ваше «семейное гнёздышко» ждет Вас ID объекта в нашей базе: 26267
    размещено: 29.01.2026 , обновлено: 15.03.2026

    3-к квартира, Бакинских комиссаров, 93

    • 86.5 м2
    • 4/10 этаж
    • Состояние: хорошее
    11 300 000 ₽ (130600 ₽/м2)
    Продается шикарная 3-Х комнатная квартира в самом сердце Уралмаша в ЖК Ударник (Атомстройкомплекс). С самой востребованной планировкой 2023-2025 года большая кухня и 3 изолированные комнаты. Идеально подходит для большой семьи. Инфраструктура: 20 минут пешком до метро , в шаговой доступности школы, садики, больницы, маркетплейсы, магазины прямо в самом доме. В 10 минутах ходьбы «Парк победы», рядом зимний стадион и футбольный клуб «Урал». Трамвайная и маршрутная остановка прямо у окон (идут в любой район города без пересадок). Окна выходят на улицу и во двор.Удобства: Охрана, видеонаблюдение, паркинг, закрытый двор. Соседи доброжелательные , 4 квартиры на таже под замком. Быстрый выход на сделку гарантируем. Обременений нет. Звоните в любое время! На сообщения редко отвечаю. ЖЕЛАТЕЛЬНО ЗВОНКИ. Записывайтесь на просмотр. Кухонный гарнитур ,шкафы и диван в подарок!!! Остальная мебель по договоренности. ID объекта в нашей базе: 18028
    размещено: 02.12.2025 , обновлено: 8.03.2026

    3-к квартира, Избирателей, 110

    • 77.6 м2
    • 4/10 этаж
    • Состояние: идеальное
    9 500 000 ₽ (122400 ₽/м2)
    Пpoдaeтcя просторная трехкомнатная квартира, площадью 77,6 кв.м, в домe 2007 годa постpoйки. Удобная планироака: кухня-гостиная 18 кв.м и три изолированные комнаты, два санузла, три застекленные лоджии. Дoм имeeт закрытую теppитоpию, видеонаблюдение, свoё ТСЖ. Pайон c pазвитoй инфpастpуктурой. В пешeй дoступноcти два детских сада, две общеобразовательные школы, больницы, прoдуктoвыe мaгaзины, пункты выдачи ВБ и Озон. Остановка транспорта (автобус, трамвай, троллейбус) в пешей доступности. До метро Проспект космонавтов мин 15 пешком.Один собственник с постройки дома, без обременений. ID объекта в нашей базе: 3504
    размещено: 13.11.2025 , обновлено: 16.01.2026

    3-к квартира, Калинина, 7

    • 91.8 м2
    • 14/17 этаж
    14 500 000 ₽ (158000 ₽/м2)
    Объект № 194695. Предлагаем вашему вниманию просторную 3-комнатную квартиру с зоной кухни-гостиной. Особенность жилья заключается в том, что оно абсолютно новое — ни разу не было заселено. Вам предоставляется уникальная возможность стать первыми жильцами и обустроить пространство согласно собственным предпочтениям. Интерьер дополняют качественный кухонный гарнитур с современной встроенной техникой и вместительный шкаф-купе, всё это остается будущим владельцам. Безопасность обеспечена благодаря огражденному периметру двора и территории самого жилого комплекса. Расположение дома также является значительным преимуществом. Дом находится вблизи станции метро, что обеспечивает комфорт и удобство передвижения по городу. Для тех, кому удобнее наземный транспорт, поблизости проходят маршруты автобусов, трамваев и троллейбусов. Для повседневных нужд инфраструктура района прекрасно развита: продуктовые магазины, аптеки находятся буквально в пешей доступности. Документы в полном порядке: обременений нет, взрослый собственник, быстрый выход на сделку. ***Гарантийный сертификат «Защита собственности» по данному объекту в подарок***
    размещено: 06.10.2025 , обновлено: 10.03.2026

    3-к квартира, Тюльпановая, 5

    • 77.8 м2
    • 3/4 этаж
    • Состояние: идеальное
    10 550 000 ₽ (135600 ₽/м2)
    Продам евро-трехкомнатную квартиру с шикарной планировкой (кухня-гостиная, две просторные спальни) в кирпичном доме 2022 года постройки.Дом расположен в эко-районе "Зеленая Горка" рядом с ТРЦ Веер-Молл.Удобное расположение комплекса: прекрасная транспортная развязка, остановки автобусов, трамваем, удобно доехать до станции метро Уралмаш, школа, дет. сад, социальная инфраструктура.В квартире выполнен качественный и современный ремонт: на полу ламинат, обои под покраску, натяжные потолки, межкомнатные двери, сан. узлы в кафеле. Квартира полностью укомплектована мебелью и техникой: шкаф-купе в прихожей, кухонный гарнитур со встроенной техникой:духовой шкаф, свч-печь, холодильник, варочная поверхность, полновстраеваемая вытяжка, посудомоечная машина (состояние - новое)!!!Квартира юридически чистая: один собственник, быстрый выход на сделку и освобождение квартиры. ID объекта в нашей базе: 2188
    размещено: 29.09.2025 , обновлено: 12.03.2026

    3-к квартира, Кузнецова, 3

    13 900 000 ₽ (185300 ₽/м2)
    Объект № 193509. Продается отличная 3 -комнатная квартира. Большая светлая кухня-гостиная 21 метр, мастер-спальня с лоджией и гардеробной. В шаговой доступности от метро. Обременений нет. Все документы проверены. Отвечу на все ваши вопросы.
    размещено: 23.09.2025 , обновлено: 15.03.2026

    3-к квартира, Бакинских комиссаров, 33а

    • 82 м2
    • 6/16 этаж
    • Состояние: идеальное
    11 590 000 ₽ (141300 ₽/м2)
    Продается просторная 3-комнатная квартира с евроремонтом в ЖК "Парк Победы". Общая площадь квартиры составляет 82.0 кв. м, жилая площадь 45 кв. м, площадь кухни — 18.4 кв. м. Квартира расположена на 6-м этаже 16-этажного дома, построенного в 2024 году .Большая лоджия, окна выходят как на улицу, так и во двор. Сделан современный евроремонт, поэтому вам не придется тратить время и деньги на обновление интерьера. Просторная кухня оборудована современной техникой, что позволяет вам готовить с удовольствием. Покупателю в подарок Духовой шкаф, микроволновая печь, посудомоечная машина, индукционная варочная поверхность, холодильник, шторы, люстры, кровати, диван. В квартире есть один совмещенный и один отдельный санузел, что удобно для большой семьи. Планировка квартиры продумана до мелочей, поэтому можно комфортно жить и принимать гостей. Дом оборудован двумя грузовыми лифтами, поэтому можно не беспокоиться о подъеме тяжелых вещей. Для вашего автомобиля предусмотрена подземная парковка, (продаётся или арендуется отдельно) поэтому вам не придется искать место для парковки на улице. Дом новый, все коммунальные системы работают исправно. Двор закрытый, оборудованный детскими площадками. Много зелени очень красиво. Рядом с домом есть все необходимое для комфортной жизни: школы, детские сады, клиники и магазины. Вам не нужно тратить много времени на дорогу, чтобы добраться до важных объектов инфраструктуры. Вокруг дома развитая транспортная сеть, поэтому можно легко добраться до любой точки города. Квартира продается без обременений, юридически чистая, один взрослый собственник. Возможна покупка в ипотеку. Мы готовы обсудить все условия сделки и ответить на любые ваши вопросы. Приезжайте на просмотр в удобное для вас время! Записывайтесь заранее, чтобы не упустить этот прекрасный вариант.Торг. ID объекта в нашей базе: 8758
    размещено: 01.09.2025 , обновлено: 13.03.2026

Новостройки Екатеринбург, мкр-н. Уралмаш

Приоритет

Увеличивает просмотры в 3 раза

Ваше объявление показывается в списке выше обычных объявлений. подключить