На Метре реклама - только нормальная. Никакого шок-контента.
Помогайте независимому ресурсу, как он помогает вам. Удачи!
Новостройки Котт. посёлки Объявления Динамика цен и сделок

Продажа квартиры: Екатеринбург, ул. Викулова, 61/2 (ВИЗ)

  • опубликовано 24.02.2025 , обновлено 9.07.2025
  • 25
Рынок:вторичный
Срок сдачи: 1998 года
Количество комнат:3
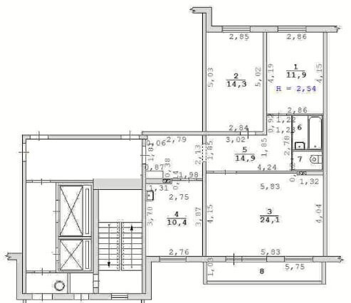
Общая площадь:79.5 м2
Площадь кухни:10.4 м2
Этаж/Этажность дома:11 / 12
Санузел:раздельный
Отделка:косметический
Год постройки:1998
Балкон/лоджия:лоджия
Состояние:хорошее
Цена:
8 500 000
Объявление снято с публикации
Коммунальные платежи:оплачиваются отдельно
Ипотека:возможна

В приоритете рассмотрим покупателя готового оставить продавцов на условиях аренды до января - февраля 2026 года. В этом случае квартира будет передана в максимальной комплектации и по интересной цене. Также возможен торг, равный сумме аренды за 12 месяцев.Квартира с свежим ремонтом, мебелью и техникой.РАСПОЛОЖЕНИЕ в микрорайоне ВИЗ, рядом ТРЦ Радуга.по адресу: ул. Викулова, 61/2Без залогов и обременений. На 11-м этаже 12-ти этажного дома.Общая площадь квартиры – 80 м2. кухня 10,4 м2. с застекленной лоджиейАвтономной системой вентиляции воздуха, кондиционированиемКомнаты 24,1 м2; 14,3 м2; 11,9 м2.ВО ДВОРЕ: спортивная и детская площадка.ПАРКОВКА наземная и подземная - сел и поехал.ЧИСТЫЙ ПОДЪЕЗД домофон, два лифта.соседи все хорошие адекватные люди.Окна выходят на обе стороны: две спальни выходят во двор на Восток, а гостиная и кухня на Запад..ВОКРУГ места для прогулок и пробежек. Рядом парк в ТЦ Радуга.Доступный весь общественный транспорт.В КВАРТИРЕМебель и техника останется по желанию нового собственника и по согласованию с продавцомВ квартире очень уютно, тепло и комфортноПросторный коридор, шкаф-купе.Окна: Стеклопакеты пластиковые, качественные, санузел раздельный, оборудован сантехникой,Металлическая входная сейф-дверь,Кухонный гарнитур – в наличии вся необходимая бытовая техникаОбременений и долгов нет. ИНФРАСТРУКТУРА:Магазины, Супермаркеты Перекресток, Пятерочка, К&Б,АптекаМедицинский центр, ГКБ 41Всевозможные детские развивающие занятия и секции.салон красоты, стоматология, детский сад, банки.Прекрасный освещенный парк в ТРЦ Радуга-паркЛЕГКО КУПИТЬ:По ипотеке и за наличные, без долгов и обременений,Звоните. Никакой комиссии при покупке! Ждать не надо.Если вы инвестор, и не планируете быстро заезжать, есть гарантированный арендатор или можно обсудить цену при условии продлённого проживания прежних собственников
ID объекта в нашей базе: 722

Объявление снято с публикации

Ипотечный калькулятор

лет
%
Сумма кредита
8500000 ₽
Платеж
22 540 ₽

История предложений в этом доме

объявление снято с публикации в продаже комнат площадь этаж цена,
Екатеринбург, ул. Викулова, 61/2 (ВИЗ) - фото квартиры 12 февраля 2025 90 дн. 3 79.5 11/12 8 100 000
Екатеринбург, ул. Викулова, 61/2 (ВИЗ) - фото квартиры 30 мая 2024 90 дн. 3 79.8 12/12 8 700 000
Екатеринбург, ул. Викулова, 61/2 (ВИЗ) - фото квартиры 10 февраля 2024 90 дн. 1 78.9 2/12 6 800 000
Екатеринбург, ул. Викулова, 61/2 (ВИЗ) - фото квартиры 8 апреля 2021 90 дн. 1 34 10/12 3 350 000
23 апреля 2019 90 дн. 1 33 12/12 2 550 000
5 августа 2018 92 дн. 3 79 7/12 5 300 000

Похожие предложения о продаже квартир в Екатеринбурге (ВИЗ)

  • 3-к квартира, Репина, 93

    • 63.9 м2
    • 9/9 этаж
    • Состояние: хорошее
    6 800 000 ₽ (106400 ₽/м2)
    Уютная, светлая квартира в районе ВИЗ. В квартире остается вся мебель и техника. Заезжай и живи. Состояние хорошее. Дом находится в районе с уже развитой инфраструктурой, рядом с новой современной школой №41. От подъезда до калитки школы 20 метров. В шаговой доступности трц "Радуга парк" больница №41, банки, кафе. Остановка автобуса рядом с домом. До центра города ехать 10-15 минут. Обременений нет. Документы готовы. ID объекта в нашей базе: 26081
    размещено: 09.12.2025 , обновлено: 14.12.2025
  • 3-к квартира, Татищева, 77

    • 70.2 м2
    • 9/9 этаж
    • Состояние: хорошее
    9 200 000 ₽ (131100 ₽/м2)
    Предлагаем вашему вниманию уютную трёхкомнатную квартиру общей площадью 70,2 м2 по привлекательной цене.Оцените основные преимущества нашего предложения: Эргономичная планировка включает кухню-гостиную (24,0 м2), три спальни, лоджию, просторный санузел и прихожую со шкафом-купе. Это идеальный вариант для семьи с детьми. Изолированные комнаты - 14,8 м2, 10,0 м2 и 10,0 м2 - позволят каждому члену семьи иметь свою зону для работы и отдыха. Высокий этаж – никакой пыли и постороннего шума от центральных дорог. Вы всегда сможете любоваться прекрасными видами нашего города. Приятный бонус - в подарок покупателям остаётся кухонный гарнитур со встроенной бытовой техникой и шкаф-купе в прихожей. Кирпичные стены отлично сохраняют тепло зимой и прохладу летом, а также обладают превосходной шумоизоляцией. В шаговой доступности богатая инфраструктура, которая создает условия для комфортной и счастливой жизни. Здесь есть всё для решения любых вопросов: кафе и рестораны, аптеки и магазины. Родители малышей и школьников по достоинству оценят местоположение дома. Совсем рядом находятся нескольких муниципальных детских садов №5, №466, №430, №249 и школ №1, №163, рейтинговая гимназия №202 Менталитет, а также огромное количество детских кружков, студий и развивающих центров. Удобная транспортная доступность - рядом с домом остановки общественного транспорта (автобус и трамвай). До центра города можно доехать за 10 мин на автомобиле. Один взрослый собственник, квартира без обременений, свободная продажа - быстрый выход на сделку!Если Вы заботитесь о Вашей семье – дайте ей лучшее! Просто позвоните и договоритесь на просмотр прямо сейчас. ID объекта в нашей базе: 188
    размещено: 08.12.2025 , обновлено: 9.12.2025
  • 3-к квартира, Крауля, 105

    • 73 м2
    • 18/31 этаж
    • Состояние: удовлетворительное
    9 900 000 ₽ (135600 ₽/м2)
    Продается трехкомнатная квартира в жилом комплексе "Русь". Комплекс станет своеобразным архитектурным акцентом, на который будут равняться другие. В инфраструктуру входят школы, детские сады и высшие учебные заведения. Поблизости расположены несколько детских и взрослых больниц, медицинских центров, торговые центры, кафе, супермаркеты, спортивные центры, бизнес - центр Татищевский. Дом с видом на живописные закаты. Двор без машин с разновозрастными детскими площадками, безбарьерной средой, workout площадкой и велодорожкой. Будет выполнено красивое озеленение территории. Комфорт с первого шага: Прозрачные входные группы, выход на улицу и во двор, мягкая зона ожидания, колясочная в каждом доме, бесшумные лифты, лапомойка и мусорокамера.В квартире выполнена будет предчистовая отделка.Возможно покупка в ипотеку. ID объекта в нашей базе: 12738
    размещено: 03.12.2025 , обновлено: 13.12.2025
  • 3-к квартира, Репина, 99-а

    • 69.6 м2
    • 10/10 этаж
    • Состояние: хорошее
    8 700 000 ₽ (125000 ₽/м2)
    Продается уютная и ухоженная 3-комнатная квартира в районе ВИЗ общей площадью 69,6 м². Основные преимущества: - Три изолированные комнаты с окнами на две стороны. - Косметический ремонт, обустроенная лоджия. - Просторный коридор с множеством мест для хранения. - Надежная сейф-дверь. - Новые окна и батареи. - Выделенная секция на две квартиры с дополнительным местом для хранения. - Остается кухонный гарнитур, шкафы в коридоре и мебель в детской комнате. Инфраструктура и удобства: - ТЦ «Радуга Парк» в шаговой доступности. - Остановка общественного транспорта в 3 минутах ходьбы. - Новый детский сад и школа №41 через дорогу. - Больница №40 в 5 минутах езды. - Достаточно мест на стоянке возле дома. Дополнительные преимущества: - Управляющая компания оперативно решает вопросы жильцов и следит за состоянием дома и придомовой территории. - Чистый подъезд и приятные соседи. - Юридически чистый объект, возможен обмен. Просмотр возможен в удобное для вас время. Звоните, с удовольствием отвечу на все ваши вопросы и запишемся на просмотр. ID объекта в нашей базе: 9251
    размещено: 24.11.2025 , обновлено: 5.12.2025
  • 3-к квартира, Викулова, 63/5

    • 78.3 м2
    • 9/12 этаж
    • Состояние: идеальное
    9 350 000 ₽ (119400 ₽/м2)
    Предлагается к продаже просторная трехкомнатная квартира в Верх-Исетском районе города Екатеринбурга.Квартира находится в доме, построенном по спецпроекту в 2001 году, на 9 этаже, с которого открывается прекрасный вид на окрестности. У квартиры отличная планировка, окна выходят на разные стороны света: на юго-восток и северо-запад.Все окна в квартире пластиковые, остекление лоджии из алюминия, межкомнатные двери поменяны, установлена хорошая входная сейф-дверь, заменена вся электро проводка, стены выровнены, ванная и туалет в кафеле, на полу в комнатах кварцвинил, потолки натяжные с разными режимами освещения. В квартире остаются и входят в стоимость: встроенные шкафы в трех спальнях, водонагреватель.Перед подъездом огороженная парковка для жителей дома. Заняты 2 места, при покупке квартиры они могут быть заняты вами.Инфраструктура в микрорайоне хорошо развита, присутствуют все сетевые магазины и аптеки, школа 41, детские сады 67 и 348, в шаговой доступности ТЦ "Радуга парк" и ТЦ "Мега" в паре остановок общественного транспорта. Рядом с домом остановки трамваев и автобусов.Квартира в чистой продаже.Если Вам нравится квартира, но не одобрена ипотека или не продан свой объект недвижимости, то звоните и расскажите об этом, обязательно помогу с одобрением ипотеки или поиском покупателя на Ваш объект. ID объекта в нашей базе: 6173
    размещено: 20.11.2025 , обновлено: 8.12.2025

    3-к квартира, Крауля, 56

    • 62.7 м2
    • 4/9 этаж
    • Состояние: идеальное
    8 800 000 ₽ (140400 ₽/м2)
    ИДЕАЛЬНАЯ ТРЁШКА НА ВИЗЕ ????И честно — это не просто «вариант». Это кандидат на премию «Лучшая квартира района» ????.Дом — один из самых проверенных и уважаемых на Визе.Не верите мне? Да спросите любого местного — у них тут прям фан-клуб этого дома ????Виз вообще называют вторым центром города ????.И не просто так — сюда уже переносят администрацию.А ул. Ленина плавно превращается в ул. Крауля — локация говорит сама за себя:здесь живут удобно, уверенно и по уму ????Перепланировка? Да, есть.Но это не «сделали что-то лишь бы было».Это грамотная, продуманная, взрослая перепланировка, которая с первых секунд показывает, что здесь думали, а не экспериментировали ????Главное сердце квартиры — кухня-гостиная ❤️Тут собирается семья, тут живут самые тёплые моменты: ужины, разговоры, планы, смех — всё здесь.Спальные комнаты? Сейчас никому не нужны эти гигантские «залы» советского формата.Комнаты должны быть комфортными, практичными — и тут всё именно так ????Каждая изолирована, уютная, правильной формы — прям то, что нужно.Ремонт — это отдельный респект ????Делался под себя, на совесть, спокойно и качественно.Не флиппинг, не «лишь бы продать».Любые проверки удивятся уровню качества.Это тот самый редкий ремонт, который вызывает уважение.Квартира — в одной семье с первого дня постройки дома ????Её любили, за ней смотрели, она не видела хаоса и случайных людей.Продавать сложно, но семья растёт — нужно больше пространства.Хочется передать в хорошие руки. Надеюсь — в ваши ????Юридическая чистота — идеальная.Нет обременений, нет долгов, никаких подводных камней.Всё по-честному ✔️Теперь про самое болючее для нашего города — парковку ????И вот здесь — подарок судьбы:с парковкой НИКАКИХ приключений. Всегда есть места. Всегда.Не нужно кружить по двору, не нужно устраивать квест «где приткнуться».Приехал → припарковался → пошёл домой.Живёшь, а не воюешь с парковкой. Красота ????Расположение — просто песня ????Рядом школа, садик, остановки, магазины, пункты выдачи, парки, Верх-Исетский пруд, спорт, почта — да тут всё, что нужно для нормальной, красивой, удобной жизни ????Это реально достойный экспонат ????Такой, что если упустишь — потом можно рыдать в подушку и рассказывать друзьям, какой шанс ушёл мимо ????Так что действуй.Записывайся на просмотр — покажу этот алмаз оперативно ???? ID объекта в нашей базе: 12468
    размещено: 18.11.2025 , обновлено: 12.12.2025

    3-к квартира, Крауля, 93

    • 79 м2
    • 4/16 этаж
    10 150 000 ₽ (128500 ₽/м2)
    Объект № 194980. Предлагаю вашему вниманию отличную трехкомнатную квартиру в настоящем кирпичном доме, спецпроект 2006 года. За счет конструктивных особенностей дом качественный, очень теплый и с прекрасной звукоизоляцией. Отличное расположение дома – в месте активного развития района ВИЗ и строительства современных жилых комплексов с новой инфраструктурой. Уже сейчас прямо во дворе расположена школа № 48, в двух шагах детские сады № 13 и № 24. Отличная транспортная доступность – в двух шагах ходьбы от дома троллейбусная конечная остановка маршрутов № 25 и № 36, совсем рядом автобусов №25, №84, №98. В квартире сделан качественный стильный ремонт, даже стояки ГВС и ГВС уже поменяны, квартира не требует вложений, можно сразу заехать и жить. У квартиры отличная планировка на разные стороны, 2 окна на одну сторону, и 2 окна на другую сторону. ***Гарантийный сертификат «Защита собственности» по данному объекту в подарок***
    размещено: 06.11.2025 , обновлено: 7.12.2025

    3-к квартира, Крауля, 82

    • 61 м2
    • 4/8 этаж
    • Состояние: идеальное
    9 400 000 ₽ (154100 ₽/м2)
    Представляем Вашему вниманию просторную, уютную и теплую трехкомнатную квартиру в отличной локации Верх-Исетского района. В квартире сделан современный, качественный евроремонт. На полу паркетная доска. На стенах частично венецианская штукатурка. Установлены стеклопакеты. Сан.узел совмещен. Одна спальня используется как гардеробная комната – отличное решение!Качественный кухонный гарнитур. Удобная современная обеденная зона. В ванной и туалетной комнате сделан также капитальный ремонт. Площади помещений: Общая 53,5 м2. Кухня 6 м2, гостиная 16 м2, спальня 13 м2, вторая спальня 11 м2. Просторный холл. Квартира расположена на высоком 1 этаже. Как вариант – идеально подойдет под коммерческую недвижимость (цена таких объектов от 160 000 за м2) Отличная локация и инфраструктура. В шаговой доступности школы, садики, супермаркеты, кафе, рестораны, фитнес-залы. В доме расположены все необходимые атрибуты для комфортной жизни (аптеки, салоны красоты, минимаркеты и др.) Остановки общественного транспорта в минуте ходьбы. Во дворе расположена одна из лучших школ района № 63 и начальная гимназия «Менталитет». Детский сад. Квартира юридически чистая, никаких обременений. Единственный взрослый собственник. Звоните. Показ в удобное для Вас время. ID объекта в нашей базе: 11861
    размещено: 24.10.2025 , обновлено: 25.11.2025

    3-к квартира, Красноуральская, 22

    • 59 м2
    • 3/9 этаж
    • Состояние: идеальное
    9 500 000 ₽ (161000 ₽/м2)
    - Дом 1987 года полностью кирпичный с прекрасной тепло и шумо изоляцией, таких сейчас уже не строят. - Квартира после качественного евро ремонта, перепланировка узаконена (произведена замена стояков, электрики, батарей, на кухне сделаны тёплые полы).- В квартире всё время поддерживается идеальное состояние и чистота, что позволит новым владельцам сразу же заселиться без дополнительных ремонтных работ. - Для семей с детьми особенно актуально наличие вокруг дома на выбор множества школ и детских садов, детской и взрослый поликлиники, а также 33 больницы.- Отличная транспортная развязка, 5 минут до центра города на машине, все виды транспорта рядом с домом.- Для поддержания физической формы и активного образа жизни поблизости расположен Визовский спортивный центр, бассейн, фитнес-центр.- Парковка предусмотрена во дворе, что является несомненным преимуществом для автовладельцев. - Прямо возле дома находится продуктовый магазин, что позволяет быстро дойти до подъезда с полными сумками. ID объекта в нашей базе: 11927
    размещено: 16.10.2025 , обновлено: 4.12.2025

    3-к квартира, Крауля, 170

    • 64.6 м2
    • 5/23 этаж
    • Состояние: идеальное
    10 190 000 ₽ (157700 ₽/м2)
    ВИЗ входит в ТОП - 3 самых развитых районов Екатеринбурга для комфортной жизни!* Рядом Верх-Исетский пруд, развитая инфраструктура и хорошая транспортная доступность, включая близость к метро* 10 минут до центра города! ЖК Янтарная долина расположен рядом с колледжем им. ПоповаКвартира для большой дружной любящей семьи!* Капитальный ремонт качественными материалами: начиная от входной двери до потолков...* ПЛАНИРОВКА- Все три спальни изолированы- Два санузла - Просторная кухня с дизайнерским ремонтом и большим обеденным столом из массива дерева!Квартира находится ипотеке ПАО СбербанкПриветствуем покупателей во всеми видами сертификатов! Поможем оформить ипотечный кредитДокументы продавца проверены! ID объекта в нашей базе: 11685
    размещено: 02.10.2025 , обновлено: 9.12.2025

    3-к квартира, Крауля, 56

    • 65 м2
    • 7/10 этаж
    7 490 000 ₽ (115200 ₽/м2)
    Арт. 118206834 В продаже 3-х комнатная квартира на 7 этаже дома на пересечении Крауля-Заводская. Сделан косметический ремонт. На сделку готовы выйти не ранее 1 ноября-готовим документы. Но просмотр возможен в любое время!
    размещено: 29.09.2025 , обновлено: 9.12.2025

    3-к квартира, Татищева, 60

    • 61.9 м2
    • 2/9 этаж
    • Состояние: хорошее
    8 545 000 ₽ (138000 ₽/м2)
    СРОЧНО! продам полноценную трёхкомнатную квартиру в кирпичном доме. Рядом с Центром города. Дом теплый, с хорошей шумоизоляцией. Функциональная планировка квартиры, где все комнаты изолированные (16,4; 9,7; 12 кв.м.). Есть кладовка. Окна на разные стороны (во двор и на тихую улочку). Санузел раздельный, в кафеле. Окна пластиковые. Лоджия застеклена.Двор закрытый. Во дворе предусмотрены игровые площадки для детей разных возрастов и зоны для отдыха. Так же есть закрытый футбольный корт. Шикарная локация дома. Всё необходимое в пешей доступности: садики; школы; продуктовые магазины; фитнесс центры; Верх-Исетский бассейн; ДК ВИЗ; ВИЗовский пляж; Яхт клуб; кафе и рестораны; Центральный стадион; детская поликлиника и больница; Новая больница и т.д. Рядом с домом остановки общественного транспорта (трамваи и автобусы). До центра 20 минут пешком. Квартира без обременений. Один совершеннолетний собственник. Мат.капитал не использовался. Звоните, отвечу на все вопросы по данной квартире. Полный пакет документов, сопровождение и профессиональная поддержка сделки: -опытным агентом и юристом-помощь с ипотекой Гарантия безопасности сделки от агентства "БК_НЕДВИЖИМОСТЬ". ID объекта в нашей базе: 3122
    размещено: 12.08.2025 , обновлено: 11.12.2025

    3-к квартира, Токарей, 53

    • 62 м2
    • 8/9 этаж
    • Состояние: плохое
    8 700 000 ₽ (140300 ₽/м2)
    Предлагаем к продаже трехкомнатную квартиру в кирпичном доме. Эргономичная планировка, три раздельные комнаты. В квартире требуется полный капитальный ремонт, очень теплая квартира с хорошими видовыми характеристиками. Удобное расположение дома, вся инфраструктура в шаговой доступности, большое количество различных магазинов, школа, детские сады, поликлиники и больница. Отличная транспортная развязка, 5 минут до центра города на машине. Ипотека возможна, ждем Вас на просмотр! ID объекта в нашей базе: 1389
    размещено: 13.06.2025 , обновлено: 8.12.2025

    3-к квартира, Рабочих, 9

    • 66 м2
    • 10/10 этаж
    • Состояние: идеальное
    9 649 990 ₽ (146200 ₽/м2)
    *???? ГОРЯЧЕЕ ПРЕДЛОЖЕНИЕ! 3ккв. ВИЗ, ул. Рабочих 9, 10/10 эт. ???? ВИД НА РЕКУ! Дизайн-ремонт. Вся мебель/техника. ✅ 1 взрослый СОБСТВЕННИК. ⚡ БЫСТРЫЙ ВЫЕЗД!**Продается просторная 3-комнатная квартира в отличном состоянии! Адрес: ул. Рабочих , 9.**✅ Главные преимущества, которые вас ждут прямо сейчас:** *???? Лучший вид в доме:* Квартира на *10/10 (последнем!) этаже* с *видом на реку*! Наслаждайтесь красивыми пейзажами каждый день.* *✨ * Выполнен *качественный дизайнерский ремонт*. Стильно, современно, дорого. Никаких вложений не требуется!* *???? Переезжайте сегодня:* *Вся мебель и техника остаются новому владельцу!* Полная комплектация "под ключ". Живите с первого дня!* *⚡ Сделка БЕЗ задержек:* *Один взрослый собственник.* Все *документы готовы* и в полном порядке. *Быстрое освобождение квартиры* – выезжаем сразу после подписания договора.*???? Это не просто квартира – это ваш готовый комфорт и статус с видом на воду! Последний этаж = максимум света, тишины и лучшая панорама.**Не упустите уникальный шанс! Пока вы думаете – другие уже договариваются о просмотре!**Звоните прямо сейчас для подробностей и записи на срочный просмотр!* ID объекта в нашей базе: 9754
    размещено: 10.06.2025 , обновлено: 10.12.2025

    3-к квартира, Токарей, 44/3

    • 96 м2
    • 3/6 этаж
    • Состояние: хорошее
    10 990 000 ₽ (114500 ₽/м2)
    Объект № 191985. ОСВОБОЖДЕНА. Продается уютная, просторная квартира с нестандартной планировкой (в кирпичном доме). Счётчики на всё. Два больших балкона, на разные стороны. Остаётся кухонный гарнитур. Спокойные соседи, чистый подъезд. Дом, относится по прописке к Новой больнице №33. Возможен ОБМЕН на 1 или 2 комнатную квартиру. ***Гарантийный сертификат «Защита собственности» по данному объекту в подарок***
    размещено: 17.05.2025 , обновлено: 5.12.2025

    3-к квартира, Крауля, 79

    • 73 м2
    • 9/12 этаж
    • Состояние: хорошее
    8 490 000 ₽ (116300 ₽/м2)
    Объект № 191026. Если хотите жить в надежном кирпичном доме, то Вам понравится наша квартира! 4-комнатная квартира в Верх-Исетском районе города Екатеринбурга. У дома большой двор для игр с детьми и прогулок. Вы оцените удачное расположение в глубине жилого квартала, проезжие дороги далеко от дома, рядом 2 детских сада - выбирайте любой. Около дома 3 школы, в шаговой доступности детская и взрослая поликлиники, торговые центры, магазины, кафе, салоны красоты - найдется то, что Вам подойдет. Остановки автобусов, троллейбусов и трамваев в разные районы города у дома. Планировка квартиры предполагает, что у каждого члена семьи есть своя комната (три комнаты), а все вместе встречаются за большим столом на ужин или воскресный обед, а потом в кухне-гостиной есть место совместного досуга и общения. Окна квартиры выходят на две стороны. Для семьи удобен раздельный санузел и прихожая со шкафом-купе. Дополнительное пространство квартиры (7м) - теплая застекленная лоджия. Кухонный гарнитур с надежной техникой и шкаф-купе пригодятся покупателю. Приходите и оцените преимущества квартиры! ***Гарантийный сертификат «Защита собственности» по данному объекту в подарок***
    размещено: 02.04.2025 , обновлено: 14.12.2025

    3-к квартира, Татищева, 2

    • 72 м2
    • 4/25 этаж
    10 700 000 ₽ (148600 ₽/м2)
    Объект № 190346. Уважаемые семейные пары с детьми! Мы рады предложить вам уникальную возможность приобрести квартиру в живописном жилом комплексе Тактика, расположенном на набережной Верх-Исетского пруда. Это предложение просто не имеет аналогов по такой цене – ниже застройщика! Жилой комплекс спроектирован с заботой о самых важных ценностях — безопасности и здоровье детей. Закрытый двор с системой видеонаблюдения и контролем доступа обеспечивает уютное и безопасное пространство для игр. Здесь есть просторная функциональная детская площадка для всех возрастов, где дети смогут весело проводить время на свежем воздухе. В Тактике Вас ждет не только комфортное жилье, но и фитнес-клуб с бассейном! Открывая двери спортивного зала, вы получите доступ к современным тренажерам, студии единоборств и расслабляющей сауне. Пространство для занятий йогой, шахматы под навесом и крыша с зонами для отдыха подарят моменты умиротворения и здоровья. Развитая инфраструктура - все необходимое рядом: супермаркеты, медицинские учреждения, школы и детские сады находятся в шаговой доступности. Ваши будни станут намного проще и удобнее! Ландшафтный дизайн двора включает искусственно формированный рельеф, клумбы и деревья, создающие гармоничное пространство отдыха. Вы сможете наслаждаться вечерами на крыше, восхищаясь закатами и отдыхая от суеты городской жизни. Не упустите шанс стать счастливым обладателем квартиры в Тактике! У нас Вы найдете жилье мечты по непобедимой цене! Звоните или пишите мне прямо сейчас, чтобы узнать больше деталей и записаться на просмотр!
    размещено: 08.03.2025 , обновлено: 15.10.2025

    3-к квартира, Металлургов, 4/а

    • 66.9 м2
    • 16/16 этаж
    • Состояние: хорошее
    8 500 000 ₽ (127100 ₽/м2)
    Объект № 187375. Объект N 187375. Предлагается к продаже 3-комнатная квартира на 16 этаже. РАЙОН: Верх-Исетский ДОМ: 1987 года постройки, панельный, улучшенной планировки. Чистый подъезд. Приветливые соседи. КВАРТИРА: Сделан хороший косметический ремонт. Окна и межкомнатные двери - натуральное дерево. Комнаты правильной формы 18,2 кв.м., 17,3 кв.м, 10,9 кв.м. Есть возможность установки второго санузла. Состояние квартиры - заезжай и живи. Прекрасный вид из окна. Лоджия шикарная (5,24 кв.м.х 1,57 кв.м). К достоинствам квартиры можно отнести наличие технического этажа. ИНФРАСТРУКТУРА: Рядом детские сады и школы, магазины и транспорт в шаговой доступности. Удобная транспортная развязка для тех кто водит автомобиль. Приглашаем потенциальных покупателей на просмотр. Помогу с оформлением ипотеки. ***Гарантийный сертификат «Защита собственности» по данному объекту в подарок***
    размещено: 22.10.2024 , обновлено: 25.11.2025

    3-к квартира, Крауля, 10

    • 54 м2
    • 1/9 этаж
    • Состояние: плохое
    6 190 000 ₽ (114600 ₽/м2)
    Объект № 179150. Трехкомнатная квартира в кирпичном доме. Эргономичная планировка: три отдельные комнаты, кухня 6 кв.м, раздельный санузел, прихожая с изолированной входной зоной. Окна выходят на тихое спокойное место. Аккуратное состояние: пластиковые окна, новые радиаторы отопления, отремонтированы санузлы, кухня и прихожая. Квартира внутри квартала и удалена от уличного шума. Рядом с домом расположены остановки транспорта, две хорошие школы, все необходимое для комфортной жизни, 10 минут до центра города. Один собственник. Без обременений. Позвоните или напишите мне, буду рад организовать для Вас просмотр квартиры, рассказать о возможностях приобретения. ***Гарантийный сертификат «Защита собственности» по данному объекту в подарок***
    размещено: 30.11.2023 , обновлено: 8.12.2025

Новостройки Екатеринбург, мкр-н. ВИЗ

Приоритет

Увеличивает просмотры в 3 раза

Ваше объявление показывается в списке выше обычных объявлений. подключить