На Метре реклама - только нормальная. Никакого шок-контента.
Помогайте независимому ресурсу, как он помогает вам. Удачи!
Новостройки Котт. посёлки Объявления Динамика цен и сделок

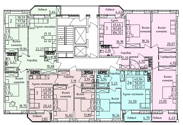
Продажа квартиры: Екатеринбург, ул. Ботаническая, 22Секция1В, Клубный дом "Аллегро" (Дом) (Втузгородок)

  • опубликовано 20.03.2025 , обновлено 30.06.2025
  • 2
Рынок:строящееся жилье
Количество комнат:3
Общая площадь:106.35 м2
Площадь кухни:0.00 м2
Этаж/Этажность дома:2 / 19
Санузел:раздельный
Отделка:без отделки
Цена:
17 016 000
Объявление снято с публикации
Коммунальные платежи:оплачиваются отдельно
Ипотека:возможна

Клубный жилой комплекс с классической архитектурой и кирпичными фасадами в центре Екатеринбурга. Все необходимое рядом:

парк, школы и детские сады,

лучшие ВУЗы города – УрФУ, Институт МЧС, Суворовское училище и спортивные секции.

Закрытая территория, благоустроенный двор с детскими площадками и зонами отдыха для жителей

Удачное расположение на пересечении улиц Гагарина и Ботанической в мкр. Втузгородок

Кирпичный фасад на долгие годы сохранит эстетику внешнего облика здания

Подземный паркинг с лифтом (продажи совместно со 2-й очередью)

Объявление снято с публикации

Ипотечный калькулятор

лет
%
Сумма кредита
17016000 ₽
Платеж
22 540 ₽

История предложений в этом доме

объявление снято с публикации в продаже комнат площадь этаж цена,
Екатеринбург, ул. Ботаническая, 22 (Втузгородок) - фото квартиры 25 апреля 2025 90 дн. 1 22.5 1/19 7 000 000
25 апреля 2025 90 дн. 1 75.27 1/19 19 946 550
25 апреля 2025 90 дн. 1 119.33 1/19 29 832 500
25 апреля 2025 90 дн. 1 58.72 1/19 16 441 600
25 апреля 2025 90 дн. 1 75.27 1/19 19 946 550
25 апреля 2025 90 дн. 1 119.33 1/19 29 832 500
25 апреля 2025 90 дн. 1 58.72 1/19 16 441 600
25 апреля 2025 90 дн. 3 97.12 19/19 16 510 400
25 апреля 2025 90 дн. 3 74.09 19/19 12 224 850
25 апреля 2025 90 дн. 3 91.97 19/19 14 715 200
25 апреля 2025 90 дн. 3 92.23 19/19 16 140 250
25 апреля 2025 90 дн. 3 97.12 18/19 16 510 400
25 апреля 2025 90 дн. 3 74.09 18/19 12 224 850
25 апреля 2025 90 дн. 3 91.97 18/19 14 715 200
25 апреля 2025 90 дн. 3 92.23 18/19 16 140 250
25 апреля 2025 90 дн. 3 97.12 17/19 16 510 400
25 апреля 2025 90 дн. 3 74.09 17/19 12 224 850
25 апреля 2025 90 дн. 3 91.97 17/19 14 715 200
25 апреля 2025 90 дн. 3 92.23 17/19 16 140 250
25 апреля 2025 90 дн. 3 97.12 16/19 16 510 400
25 апреля 2025 90 дн. 3 74.09 16/19 12 224 850
25 апреля 2025 90 дн. 3 91.97 16/19 14 715 200
25 апреля 2025 90 дн. 3 92.23 16/19 16 140 250
25 апреля 2025 90 дн. 3 97.12 15/19 16 510 400
25 апреля 2025 90 дн. 3 74.09 15/19 12 224 850
25 апреля 2025 90 дн. 3 91.97 15/19 14 715 200
25 апреля 2025 90 дн. 3 92.23 15/19 16 140 250
25 апреля 2025 90 дн. 3 97.12 14/19 16 510 400
25 апреля 2025 90 дн. 3 74.09 14/19 12 224 850
25 апреля 2025 90 дн. 3 91.97 14/19 14 715 200

Новостройки Екатеринбург, мкр-н. Втузгородок

Приоритет

Увеличивает просмотры в 3 раза

Ваше объявление показывается в списке выше обычных объявлений. подключить