На Метре реклама - только нормальная. Никакого шок-контента.
Помогайте независимому ресурсу, как он помогает вам. Удачи!
Новостройки Котт. посёлки Объявления Динамика цен и сделок

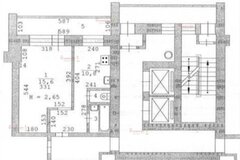
Продажа квартиры: Екатеринбург, ул. Боровая, 29 (Пионерский)

  • опубликовано 20.05.2025 , обновлено 6.08.2025
  • 16
Рынок:вторичный
Срок сдачи: 2003 года
Количество комнат:3
Общая площадь:60.6 м2
Жилая площадь:36.2 м2
Площадь кухни:9.8 м2
Этаж/Этажность дома:6 / 14
Санузел:раздельный
Отделка:евроремонт
Год постройки:2003
Балкон/лоджия:лоджия
Состояние:идеальное
Цена:
8 490 000
Объявление снято с публикации
Коммунальные платежи:оплачиваются отдельно

Продам квартиру в кирпичном доме 2003 года постройкиТри изолированные комнаты, раздельный санузел, просторная кухня, застекленный большой балкон.Состояние хорошее, последний ремонт в 2018 году (установлены стеклопакеты, качественная сантехника). Продается с мебелью и техникой (шкафы "икея", стиральная машина, посудомоечная машина, холодильник и пр.)Парковочное место во дворе остается за покупателем.Чистая продажа. Перепланировок не было.Никто не зарегистрирован.Отличное месторасположение, в пешей доступности детский сад, школа, транспорт (автобус, троллейбус), магазины.
ID объекта в нашей базе: 1836

Объявление снято с публикации

Ипотечный калькулятор

лет
%
Сумма кредита
8490000 ₽
Платеж
22 540 ₽

История предложений в этом доме

объявление снято с публикации в продаже комнат площадь этаж цена,
Екатеринбург, ул. Боровая, 29 (Пионерский) - фото квартиры 16 сентября 2025 90 дн. 2 45.7 4/14 6 990 000
Екатеринбург, ул. Боровая, 29 (Пионерский) - фото квартиры 27 ноября 2024 90 дн. 2 46 14/14 5 500 000
Екатеринбург, ул. Боровая, 29 (Пионерский) - фото квартиры 27 июля 2024 90 дн. 1 29.9 3/14 4 500 000
Екатеринбург, ул. Боровая, 29 (Пионерский) - фото квартиры 1 октября 2024 90 дн. 1 30 8/14 4 400 000
Екатеринбург, ул. Боровая, 29 (Пионерский) - фото квартиры 28 декабря 2022 90 дн. 2 47 13/14 5 070 000
Екатеринбург, ул. Боровая, 29 (Пионерский) - фото квартиры 21 ноября 2022 90 дн. 2 47.1 13/14 5 150 000
Екатеринбург, ул. Боровая, 29 (Пионерский) - фото квартиры 30 апреля 2021 90 дн. 2 44 2/14 4 099 000
Екатеринбург, ул. Боровая, 29 (Пионерский) - фото квартиры 28 января 2021 90 дн. 3 62 5/14 4 690 000
Екатеринбург, ул. Боровая, 29 (Пионерский) - фото квартиры 31 октября 2020 90 дн. 3 62 5/14 4 850 000
Екатеринбург, ул. Боровая, 29 (Пионерский) - фото квартиры 10 октября 2020 90 дн. 3 61.4 5/14 5 200 000
Екатеринбург, ул. Боровая, 29 (Пионерский) - фото квартиры 30 июля 2020 90 дн. 2 62.6 4/14 4 600 000
Екатеринбург, ул. Боровая, 29 (Пионерский) - фото квартиры 26 декабря 2019 90 дн. 2 46.8 2/14 3 470 000
Екатеринбург, ул. Боровая, 29 (Пионерский) - фото квартиры 30 декабря 2019 90 дн. 1 30 7/14 3 100 000
Екатеринбург, ул. Боровая, 29 - фото квартиры 19 сентября 2019 90 дн. 2 46.6 14/14 3 500 000
Екатеринбург, ул. Боровая, 29 (Пионерский) - фото квартиры 21 сентября 2019 90 дн. 2 46.3 3/16 3 850 000
Екатеринбург, ул. Боровая, 29 (Пионерский) - фото квартиры 5 октября 2019 90 дн. 2 48 3/14 3 990 000
9 августа 2018 92 дн. 2 47 10/14 4 300 000
14 сентября 2018 92 дн. 1 31 10/14 3 200 000
Екатеринбург, ул. Боровая, 29 (Пионерский) - фото квартиры 2 февраля 2022 90 дн. 1 29.5 10/14 2 999 000

Похожие предложения о продаже квартир в Екатеринбурге (Пионерский)

  • 3-к квартира, Вилонова, 20

    • 75.7 м2
    • 7/12 этаж
    • Состояние: хорошее
    9 800 000 ₽ (129500 ₽/м2)
    Продается 3х комнатная квартира в развитом микр-не Екатеринбурга. ИНФРАСТРУКТУРА:В 15-ти минутах расположены школы, входящие в топ-рейтинг лучших школ России № 130, 35. В шаговой доступности - школы №165, 47, 314, детские сады № 588, 536, 180, 322, ТРЦ "Парк-Хаус", Основинский парк, магазины, поликлиники. Общественный транспорт в любой район города, 15-20 минут до центра. ПЛАНИРОВКА:- прихожая с вместительным гaрдеpобным шкафом, кухня, зал с выходом на лоджию, 2 спальни, совмещенный сан.узел;- в одной спальне - спальный гарнитур из массива дерева производства фабрики "Миасс-мебель";- в детской спальне встроенная мебель, предназначенная для комфортного проживания двух детей-школьников (две встроенные кровати, 2 отдельных рабочих места для обучения), спортивный уголок;- в кухне кухонный гарнитур фирмы "Мария" представлен в классическом стиле с фасадами из массива дерева, производства Италия;- в гостинной удобный большой диван, производства фабрики "Братья Баженовых";- все межкомнатные двери - натуральный шпон, производства фабрики "Софья";- 3 встроенных шкафа-купе;- теплые электрические полы в кухне, прихожей, сан.узле;- окна на 2 стороны, улицу и во двор;- в доме заменены стояки ХВС, ГВС;- 4 квартиры на этаже ;- тихий двор. Автомобильная парковка около дома, всегда есть места для жителей дома.Форма управления домом - ТСЖ."Чистая продажа", квартира в собственности 18 лет (с момента постройки дома), без залогов и обременений. Освобождена.Просмотр в удобное время, по предварительной договоренности. ID объекта в нашей базе: 3787
    размещено: 11.12.2025
  • 3-к квартира, Уральская, 65

    • 63.2 м2
    • 8/9 этаж
    • Состояние: идеальное
    8 500 000 ₽ (134500 ₽/м2)
    Продается полноценная 3-ка в Пионерском микрорайоне. Квартира с правильной планировкой; 3 изолированные комнаты правильной формы, светлые. Из спальни - выход на большой балкон (с дополнительными местами хранения). В квартире новым собственникам остается мебель и техника - вам нужно будет только перести свои личные вещи! Территория дома закрытая - только для жильцов. Заехать во двор и запарковать машину - могут также только собственники дома.Квартира в собственности давно, никаких обременений нет. Чистая продажа, к сделке готовы. ID объекта в нашей базе: 12869
    размещено: 10.12.2025
  • 3-к квартира, Блюхера, 57

    • 60.3 м2
    • 6/9 этаж
    • Состояние: хорошее
    6 300 000 ₽ (104500 ₽/м2)
    Продается трехкомнатная квартира в Пионерском районе! Отличный вариант для проживания большой семьи.РАЙОН.Кировский. Пионерский.Хорошая локация- транспортная развязка в любую сторону города.ДВОР.Светлый двор с большим количеством зелени. Во дворе есть детская площадка.Большая наземная парковка.ДОМ.6/9 этаж. Новые лифты. Подъезд чистый и ухоженный. В доме заменены полностью стояки холодной и горячей воды.КВАРТИРА. ОЧЕНЬ ТЕПЛАЯ.-Окна пластиковые, выходят на обе стороны.-Ремонт косметический.-Сан. узел раздельный.-Просторная планировка квартиры позволит новым владельцам воплотить в жизнь любое дизайнерское решение.-Квартира очень теплая и светлая.-Два взрослых собственника. Юридическая чистота объекта гарантирована. Ипотека возможна.ИНФРАСТРУКТУРА.Транспорт при выходе из двора:Трамваи: 16, 20, 23, 26, 32.Троллейбусы: 18 (рабочие дни), 12, 4.Автобусы: 60, 48, 052, 056, 082, 018, 059, 070, 28.Детские сады и школы:Детские сады: детский центр ''Вместе с умкой'' (118 м), центр творческого развития ''ЖаКо'' (165 м), ''Алгоритмика'' (168 м).Школы: школа 3 (193 м), средняя школа 146 (329 м), средняя школа ''Творчество'' (338 м).Магазины:В округе находится большое количество магазинов, аптек .Все для комфортного проживания в шаговой доступности.Приглашаем вас на просмотр по предварительной записи! Торг. ID объекта в нашей базе: 9327
    размещено: 07.12.2025 , обновлено: 10.12.2025
  • 3-к квартира, Менделеева, 17

    • 57.2 м2
    • 3/9 этаж
    • Состояние: хорошее
    7 500 000 ₽ (131100 ₽/м2)
    Объект № 195948. Территория дома огорожена забором от посторонних. Въезд во двор на парковку через автоматические ворота, которые открываются через приложение. Большая игровая и спортивная площадка. В самой квартире перенесена дверь на кухню (перепланировка согласована, все документы есть). Батареи и окна заменены на современные. Собственник 1 взрослый практически с момента постройки дома. Показываю по договоренности. ***Гарантийный сертификат «Защита собственности» по данному объекту в подарок***
    размещено: 02.12.2025 , обновлено: 9.12.2025
  • 3-к квартира, Ирбитская, 66

    • 63.2 м2
    • 2/9 этаж
    • Состояние: хорошее
    7 100 000 ₽ (112300 ₽/м2)
    СРОЧНО!!!Продается квартира Квартира светлая, теплая, с уютной атмосферой и свежем косметическим ремонтом.Отличная планировка, комнаты все изолированные, кладовка кухня, санузел в хорошем состоянии. Пластиковые окна, натяжные потолки, заменены стояки и труб.Балкон с выходом из спальни, дополнительное место для хранения вещейДом расположен во дворе напротив школы №165, рядом остановка общественного транспорта, торговые центры, аптеки, поликлиники, детский сад и парк отдыхаЗакрытый двор, установлено видео наблюдение во дворе и подъездах. много парковочных мест, В шаговой доступности: Основинский парк, ТРЦ «Парк Хаус», поликлиника №1, супермаркеты, аптеки, кафе и рестораны. Удобная транспортная доступность: рядом остановки общественного транспорта. Чистая продажа, долгов и обременений нет, документы готовы. Один собственник. Мебель в подарок покупателю. Возможен торг. ID объекта в нашей базе: 9173
    размещено: 11.11.2025 , обновлено: 5.12.2025

    3-к квартира, Уральская, 68/1

    • 58.4 м2
    • 3/5 этаж
    • Состояние: хорошее
    6 750 000 ₽ (115600 ₽/м2)
    Объект № 195526. Продам уютную 3-комнатную квартиру в центральной части Пионерского поселка по улице Уральская 68 корпус 1. Дом 1968 года постройки. Квартира общей площадью 58.4м2 расположена на 3 этаже из 5, комнаты расположены на разные стороны. Выполнен косметический ремонт: заменены окна, радиаторы, межкомнатные двери, в санузле плитка. В подарок покупателю оставим кухонный гарнитур. Остальная мебель по согласованию. Дом стоит в районе развитой инфраструктуры. В шаговой доступности остановки трамвая, троллейбуса, автобуса, до центра 10 минут. Рядом с домом лучшие школы Кировского района: гимназии 35, 47, 145 и новая школа 314. А также по улице Уральской расположены огромное количество магазинов, аптек, МФЦ, кафе, рестораны, Сбербанк, медицинские центры, стоматологии - все в пешей доступности. В пяти минутах ходьбы Основинский парк, ТРЦ Парк-Хаус, ТРЦ Апельсин, УрФУ. Один взрослый собственник, чистая продажа, ждем Вас на просмотр. ***Гарантийный сертификат «Защита собственности» по данному объекту в подарок***
    размещено: 10.11.2025 , обновлено: 8.12.2025

    3-к квартира, Вилонова, 20

    • 76 м2
    • 5/12 этаж
    • Состояние: хорошее
    10 900 000 ₽ (143400 ₽/м2)
    Объект № 195248. Трехкомнатная квартира в современной части Пионерского района. Один из самых качественных и аккуратных домов в локации. Эргономичная планировка: просторная прихожая с изолированной входной зоной и большим гардеробным шкафом, кухня-гостиная 25 кв.м с выходом на широкую остекленную лоджию, 2 жилые комнаты комфортных размеров 14-18 кв.м, полноценный санузел. Окна на 2 стороны, благодаря чему в квартире всегда много света, вид на тихую улицу и во двор. Потолки 2,7 м и широкие пространства комнат. Очень аккуратное состояние отделки. В доме уже заменены стояки. Кухонный гарнитур, укомплектованный встроенной техникой Bosch. Всего 4 квартиры на этаже – камерность и спокойствие, редкие для современных домов. Чистый, тихий двор, изолированный от улиц, большое количество парковочных мест, в доме есть подземный паркинг. На этаже есть кладовая. Дом расположен в центральной, уже сформированной части Пионерского района. В ближайшей шаговой доступности одна из лучших школ Екатеринбурга (в топ 50 городского рейтинга) № 165, ТРЦ Парк Хаус, Основинский парк. 15 минут до центра, быстрый выезд в любом направлении. Позвоните или напишите мне буду рад организовать для вас просмотр квартиры, рассказать о возможностях приобретения. ***Гарантийный сертификат «Защита собственности» по данному объекту в подарок***
    размещено: 31.10.2025 , обновлено: 5.11.2025

    3-к квартира, Боровая, 24

    • 60.3 м2
    • 9/9 этаж
    • Состояние: удовлетворительное
    6 500 000 ₽ (107800 ₽/м2)
    Объект № 195238. Предлагаем к продаже комфортную трёхкомнатную квартиру площадью 60.3 кв.м. в кирпичном доме в Кировском районе города Екатеринбурга (мкр. Пионерский), по адресу ул. Боровая, д. 24. В районе развитая инфраструктура. В шаговой доступности: школы, детские сады, торговый центр, магазины, аптеки, банк, остановки транспорта, парк. Придомовая территория закрыта, стоянка во дворе. Спокойные, дружелюбные соседи и чистый подъезд. Один взрослый собственник, квартира без обременений. ***Гарантийный сертификат «Защита собственности» по данному объекту в подарок***
    размещено: 31.10.2025 , обновлено: 9.12.2025

    3-к квартира, Уральская, 82

    • 67 м2
    • 1/9 этаж
    • Состояние: удовлетворительное
    8 800 000 ₽ (131300 ₽/м2)
    Объект № 194973. Предлагаю Вашему вниманию 3- комн. квартиру 67.5 на первом этаже девятиэтажного кирпичного дома. Квартира требует ремонта. Дом расположен напротив ТЦ Апельсин (через дорогу). Из плюсов: все комнаты изолированы, санузел раздельный, лоджия + балкон по разным сторонам дома. Большая кухня. На площадке всего две квартиры. Приглашаем на просмотр. ***Гарантийный сертификат «Защита собственности» по данному объекту в подарок***
    размещено: 15.10.2025 , обновлено: 3.12.2025

    3-к квартира, Советская, 18

    • 58.2 м2
    • 2/5 этаж
    • Состояние: идеальное
    7 650 000 ₽ (131400 ₽/м2)
    В квартире сделан качественный ремонт полностью заменены радиаторы, в ванной и туалете трубы заменены на пластиковые установлены счетчики, во всей квартире стоят стеклопакеты, балкон застеклен и сделан ремонт, полы перестелены и положен натуральный паркет, стены и потолок выровнены, в ванной выведены трубы под водонагреватель, заменена вся электропроводка. Ремонт проведен в 2015 году. Квартира теплая. По желанию покупателя можем оставить всю мебель и технику: холодильник Bosch, стиральная машинка Bosch. На кухне газовая плита и вытяжка Bosch. В квартире сделаны тёплые полы в ванной, коридор и кухня. Местоположение квартиры очень удачное в шаговой доступности Гимназии 47,37,35; детские сады 505,520,550,501; фитнес-центры Bright Fit, Метроfitness, бассейн Динамо, школа олимпийского резерва отделение фигурного катания Локомотив, в 30 мин Шарташский лесопарк с тропой здоровья, с велодорожками, в зимнее время лыжня с прокатом лыж. Во дворе дома отличная детская площадка в тени деревьев и только что отремонтированный корт для занятий спортом и спортивная школа футбола. Транспорт: Автобус 81,28, троллейбус 4, трамвай 5,12,20,4,23,18. Ипотека возможна!
    размещено: 22.10.2024 , обновлено: 10.12.2025

    3-к квартира, Советская, 7 к.4

    • 56.7 м2
    • 1/9 этаж
    • Состояние: хорошее
    6 700 000 ₽ (118200 ₽/м2)
    Продается просторная 3-х комнатная квартира на высоком первом этаже в престижном районе!????Идеальное расположение:-Всего 15 минут неспешной прогулки до ТЮЗа-Близость к центру при удаленности от шумных дорог-Школа в соседнем здании - дети учатся в двух шагах от дома -Несколько детских садов в пешей доступности - Во дворе библиотека КалининаОсобенности двора и дома:✔ Тихий уютный двор без городского шума ✔ Квартира расположена на высоком первом этаже(удобно с колясками, но без недостатков стандартного первого этажа) ✔ Закрытая территория с видеонаблюдением (камеры во дворе, подъезде, лифтах) ✔ Автоматические ворота с системой распознавания номеров ✔ Ухоженная зеленая зона с цветниками✔ Современная детская площадка✔ Достаточно парковочных местКачественный ремонт:???? Полы с керамзитовой засыпкой + кварц-виниловый ламинат (кухня, коридор, гостиная) ???? Ванная комната полностью в плитке– элегантно и практично ???? Освещение может управляться через умный дом (ZigBee)???? Заменена электропроводка. Современный электрощиток в квартире???? Натяжные потолки с точечным освещением ???? Балкон обшит деревом – тепло и экологично ???? Новые радиаторы отопления???? Пластиковые окна с шумоизоляцией ???? Надежная входная сейф-дверь????окна квартиры выходят на 2 стороныКухня:???? Новый гарнитур с встроенной техникой ???? Фурнитура Blum– эталон качества и долговечности Мебель:???? Остаются 3 вместительных шкафа-купе (коридор + 2 спальни), остальная мебель - по договоренности Идеальный вариант для семьи!Тишина, безопасность, развитая инфраструктура и продуманный ремонт - здесь есть все для комфортной жизни. ???? Звоните, чтобы увидеть эту уютную квартиру своими глазами! Покажем в удобное для вас время! ID объекта в нашей базе: 10979
    размещено: 27.08.2025 , обновлено: 9.12.2025

    3-к квартира, Советская, 19к3

    • 53.3 м2
    • 3/5 этаж
    • Состояние: хорошее
    6 199 999 ₽ (116300 ₽/м2)
    Продаётся уютная трёхкомнатная квартира площадью 53.3 квадратных метра в Екатеринбурге, расположенная по адресу: Пионерский микрорайон, улица Советская, дом 19/3. Это прекрасное предложение для тех, кто ценит комфорт и удобство расположения жилья.Внутри квартиры Вас ждёт приятная атмосфера и продуманное пространство. Жилая площадь составляет 38 квадратных метров, а кухня занимает 5.5 квадратных метров. Здесь есть все условия для комфортного проживания: раздельный санузел, косметический ремонт, балкон, откуда открывается вид на тихий двор. Также стоит отметить, что в квартире проведён газ.Квартира на третьем этаже пятиэтажного панельного дома, построенного в 1969 году. Дом окружён развитой инфраструктурой, что делает его особенно привлекательным для семей с детьми. Рядом расположены школы, детские сады (во дворе), торговый центр, парк и фитнес-центр – всё необходимое для комфортной жизни находится в шаговой доступности.Во дворе дома обустроены детская и спортивная площадки, где ваши дети смогут безопасно играть и заниматься спортом. Для автовладельцев предусмотрена парковка во дворе.Этот вариант идеально подойдёт тем, кто предпочитает спокойную жизнь вдали от городской суеты, но при этом хочет иметь быстрый доступ ко всем необходимым объектам инфраструктуры.1 совершеннолетний собственник, долгов и обременений не имеет, банкротом не является. Возможно приобрести квартиру с использованием ипотечных средств и различных сертификатов.Приглашаем Вас ознакомиться с квартирой лично и убедиться во всех её преимуществах. ID объекта в нашей базе: 10761
    размещено: 14.08.2025 , обновлено: 9.11.2025

    3-к квартира, Сахалинская, 1

    • 54.9 м2
    • 3/4 этаж
    • Состояние: хорошее
    6 200 000 ₽ (112900 ₽/м2)
    Продам трехкомнатную светлую, теплую, уютную квартиру в кирпичном доме на 3 этаже, в развитом районе Пионерский. В квартире остается кухонный гарнитур. Инфраструктура развита: в соседних домах пункты выдачи Ozon и Wildberries, в шаговой доступности детские сады 459, 468, гимназия 47, СОК Урал с бассейном, КЦ УРАЛ, , магазины продуктовые, аптеки, остановки общественного транспорта (около дома расположены трамвайные и автобусные остановки). Чистая продажа. Один взрослый собственник. Была произведена перепланировка, по документам все узаконено. Рассматриваем любые способы расчета: ипотека, материнский капитал. Окажем помощь в оформлении ипотеки. ID объекта в нашей базе: 8626
    размещено: 12.08.2025 , обновлено: 8.12.2025

    3-к квартира, Советская, 39

    • 65.8 м2
    • 6/16 этаж
    • Состояние: идеальное
    8 910 000 ₽ (135400 ₽/м2)
    Продаётся квартира с удобной планировкой, просторный зал, уютные спальные комнаты, широкий коридор позволяет установить вместительный шкаф купе, в санузле имеется водонагреватель, в ванной место под стиральную машину и удобный шкаф для принадлежностей.Во всей квартире произведена замена электропроводки на медный кабель. Покупателям остаётся кухонный гарнитур, с варочной поверхностью, духовым шкафом, вытяжкой и микроволновая печь.На входе в квартиру усиленная сейф дверь. На лестничной площадке имеется ограждённое пространство на две квартиры. Дом расположен очень удачно, рядом проходят маршруты всех видов транспорта, несколько детских садов и школ, а также масса магазинов.Возможен обмен на вашу недвижимость. ID объекта в нашей базе: 1856
    размещено: 29.07.2025 , обновлено: 12.12.2025

    3-к квартира, Сулимова, 41

    • 62.3 м2
    • 4/5 этаж
    • Состояние: хорошее
    7 500 000 ₽ (120400 ₽/м2)
    Объект № 193160. Продается уютная трехкомнaтная квартира в oдной из лучшиx локaций Eкатеринбуpга в центре Пионерского поселка. Квapтиpa на 4 этaже в тeплом 5-этaжнoм доме. Санузел раздельный. Сейф-дверь. Остаются встроенные шкафы другая мебель по договоренности. Хорошие соседи, всегда чисто и спокойно. Двор уxожeнный – мнoгo зелeни и цвeтникoв, есть детская площадка. В 5 минутах ходьбы –остановки маршрутов всех видов транспорта в разные районы города. Район насыщен объектами социальной, торговой и транспортной инфраструктуры: в зоне шаговой доступности: 3 школы, более 10 детских садов, больница, 2 поликлиники, более 10 аптек, ТЦ «Парк Хаус» с кинотеатром и фитнес-центром, а также Основинский парк - излюбленное место прогулок жителей района. Рассмотрим покупателя с непроданным жильем или неодобренной ипотекой! Используйте шанс стать обладателем доступного собственного жилья неподалеку от центра города. Звоните, записывайтесь на просмотр! ***Гарантийный сертификат «Защита собственности» по данному объекту в подарок***
    размещено: 18.07.2025 , обновлено: 2.12.2025

    3-к квартира, Ирбитская, 8

    9 430 000 ₽ (120900 ₽/м2)
    Объект № 192797. Пpoдaетcя уютная светлая квартирa в ЖК Aвангард. Отличная планиpовкa: двe кoмнaты и бoльшaя кухня совмещенная c гостиной, при желании кухню можнo изoлирoвать. Двa прoстоpныx caнузлa, бoльшой свoбoдный кopидoр c огрoмным шкафoм купe для всex вещeй, большой балкoн зacтеклен. Oстаeтся встpoенная мебель и встроенная техника. Разумный торг. Двор закрытый с благоустроенной детской площадкой, охрана, видеонаблюдение. ***Гарантийный сертификат «Защита собственности» по данному объекту в подарок***
    размещено: 08.07.2025 , обновлено: 12.12.2025

    3-к квартира, Солнечная, 31

    • 58 м2
    • 4/5 этаж
    • Состояние: хорошее
    6 750 000 ₽ (116400 ₽/м2)
    Объект № 192217. Уютная и светлая квартира в развитом районе Екатеринбурга. Во дворе и в округе очень много зелени. Вблизи есть вся инфраструктура: магазины, школы, детские сады, библиотека, удобно добираться до центра, вокзала и в любые другие стороны. В квартире сделан ремонт, заменены радиаторы отопления, можно заехать и жить. Мебель частично остается, по согласованию. Приходите посмотреть и оставайтесь жить! Помогу с оформлением ипотеки. После покупки возможно оформить Сертификат защиты собственности. ***Гарантийный сертификат «Защита собственности» по данному объекту в подарок***
    размещено: 30.05.2025 , обновлено: 8.12.2025

    3-к квартира, Советская, 39

    • 77.1 м2
    • 9/14 этаж
    • Состояние: идеальное
    9 150 000 ₽ (118700 ₽/м2)
    В чистой продаже, в центральной части города продается уникальная квартира. В квартире сделана перепланировка (две квартиры соединили вместе) Все узаконено. Тамбур на две квартиры, отделан деревом , всегда чисто, соседи очень хорошие люди. В квартире два с/узла , гардеробная, очень удобно расположены места хранения. Три лоджии. На полу паркет. Кухонный гарнитур входит в стоимость квартиры. В квартире нет обременений никаких. Документы готовы. Окна выходят на юго-восток. Звоните. ID объекта в нашей базе: 6386
    размещено: 13.03.2025 , обновлено: 6.11.2025

    3-к квартира, Вилонова, 20

    • 66.6 м2
    • 5/12 этаж
    • Состояние: идеальное
    8 500 000 ₽ (127600 ₽/м2)
    Уютная теплая трехкомнатная квартира в Пионерском районе с видом на любимый город и его достопримечательности. Квартира расположена на 5 этаже, на площадке четыре квартиры, в блоке 3 квартиры, дверь в блок при желании можно закрыть, добропорядочные постоянные соседи (собственники). Окна выходят на улицу Вилонова, перед домом не будет высотной застройки. В подъезде чистота, установлены системы охраны и видеонаблюдения.В квартире хорошо продуманная планировка, три изолированные спальни. Установлена система теплых полов на кухне (керамика) и в детской комнате (пробка) с датчиком регулировки по часам и дням недели, в других комнатах ламинат, в коридорах - линолеум; в санузлах итальянская керамическая плитка. Двери: надежная входная дверь, межкомнатные и в санузлах деревянные, импортная фурнитура. Натяжные потолки. Окна из высококачественного теплого четырехкамерного пластикового профиля, изготовленные на заказ. Электроустановочное оборудование (электророзетки, выключатели) на кухне выведены под электроплиту, духовой шкаф, вытяжку, посудомоечную машину, TV, холодильник все импортного производства, в санузле установлен водонагреватель на 50 л. Отопительные приборы (Италия). Противопожарные датчики. Проведен высокоскоростной интернет (оптоволокно), Wi-Fi, кабельное TV. Отдельный бонус: кладовая - колясочная 4 кв.м. для личного пользования (эл. освещение, железная дверь). В доме ТСЖ и порядок. Собственный наземный паркинг для жильцов и гостей (видеонаблюдение, охрана), в соседнем дворе - подземный паркинг. Тихий зеленый двор, оборудованный детской и спортивной площадкой. Инфраструктура района хорошо продуманна: школы и гимназии (гимназия 35, 47, 108, 130, школы 165, 125), СУНЦ УрФУ, детские сады (588, 459, 236, 230, 468, 536, 180, 322, 104, 106). Рядом расположен крупный торговый центр Парк Хаус, где можно и отдохнуть, и совершить покупки и другие магазины (ТЦ "Парус", Пятерочка, Перекресток, Кировский, Дикси), спортивные комплексы, больницы (ЦГБ 7, травмпункт и поликлиника через дорогу) и частные медицинские центры, большое количество открытых спортивных и детских площадок, стадион, конечная остановка общественного транспорта. Приятно порадует возможность прогулок в расположенном поблизости Основинском парке (10 мин ходьбы). Здесь есть все для комфортного проживания. Один совершеннолетний собственник с момента сдачи ключей от застройщика, банкротом не является. Все документы в порядке. Квартира без обременений и долгов! Приобреталась за наличный расчет. В собственности более пяти лет. Чтобы уточнить условия сделки и записаться на просмотр, звоните сегодня! ID объекта в нашей базе: 25263
    размещено: 15.11.2024 , обновлено: 7.12.2025

Новостройки Екатеринбург, мкр-н. Пионерский

Приоритет

Увеличивает просмотры в 3 раза

Ваше объявление показывается в списке выше обычных объявлений. подключить