На Метре реклама - только нормальная. Никакого шок-контента.
Помогайте независимому ресурсу, как он помогает вам. Удачи!
Новостройки Котт. посёлки Объявления Динамика цен и сделок

Продажа квартиры: Екатеринбург, ул. Большакова, 13 (Парковый)

  • опубликовано 18.11.2025 , обновлено 27.11.2025
  • 6
  •  
Рынок:вторичный
Срок сдачи: 1980 года
Количество комнат:2
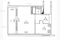
Общая площадь:48.5 м2
Жилая площадь:29 м2
Площадь кухни:7 м2
Этаж/Этажность дома:3 / 12
Санузел:раздельный
Отделка:требует ремонта
Год постройки:1980
Балкон/лоджия:лоджия
Состояние:удовлетворительное
Цена:
5 750 000
Коммунальные платежи:оплачиваются отдельно
Ипотека:возможна

Продается 2-комнатная квартира в Парковом микрорайоне. Квартира расположена на комфортном 3 этаже 12-этажного панельного дома .Дом в хорошем состоянии, оборудован 2 лифтами . Квартира очень теплая с изолированными комнатами . Санузел раздельный. Есть большая лоджия. Район с развитой инфраструктурой рядом с домом находятся : Дом детского творчества, где дети бесплатно занимаются в кружках, спортивный комплекс ФОК Октябрьский с различными секциями , детский сад, школа № 62,гимназия №40 в 10 минутах ходьбы. Также в шаговой доступности детская и взрослая поликлиники , магазины Магнит, Верный, Перекресток, Максидом. Рядом ЦПКиО имена Маяковского ,где можно погулять и покататься на каруселях всей семьей .Квартира требует ремонта.
ID объекта в нашей базе: 3510

Столица 49 — Елена Константиновна

показать телефон

Ипотечный калькулятор

лет
%
Сумма кредита
5750000 ₽
Платеж
22 540 ₽

История предложений в этом доме

объявление снято с публикации в продаже комнат площадь этаж цена,
Екатеринбург, ул. Большакова, 13 (Парковый) - фото квартиры 29 октября 2024 90 дн. 1 28 7/16 4 099 000
Екатеринбург, ул. Большакова, 13 (Парковый) - фото квартиры 15 июня 2024 90 дн. 1 28.6 8/9 4 490 000
Екатеринбург, ул. Большакова, 13 (Парковый) - фото квартиры 19 сентября 2023 90 дн. 3 58 9/9 6 100 000
Екатеринбург, ул. Большакова, 13 (Парковый) - фото квартиры 18 марта 2023 90 дн. 1 35 4/16 4 100 000
Екатеринбург, ул. Большакова, 13 (Парковый) - фото квартиры 14 января 2023 90 дн. 3 57 7/9 5 800 000
Екатеринбург, ул. Большакова, 13 (Парковый) - фото квартиры 17 декабря 2022 90 дн. 2 49 5/16 4 999 000
Екатеринбург, ул. Большакова, 13 (Парковый) - фото квартиры 28 ноября 2022 90 дн. 2 49 5/16 5 300 000
Екатеринбург, ул. Большакова, 13 (Парковый) - фото квартиры 31 января 2023 90 дн. 2 43 9/9 4 800 000
Екатеринбург, ул. Большакова, 13 (Парковый) - фото квартиры 4 ноября 2022 90 дн. 2 43 9/9 5 300 000
Екатеринбург, ул. Большакова, 13 (Парковый) - фото квартиры 5 сентября 2022 90 дн. 2 50 3/16 5 700 000
Екатеринбург, ул. Большакова, 13 (Парковый) - фото квартиры 12 ноября 2022 90 дн. 2 49 5/16 5 400 000
Екатеринбург, ул. Большакова, 13 (Парковый) - фото квартиры 13 мая 2022 90 дн. 2 48 5/12 5 550 000
Екатеринбург, ул. Большакова, 13 (Парковый) - фото квартиры 3 мая 2022 90 дн. 2 48 5/12 5 550 000
Екатеринбург, ул. Большакова, 13 (Парковый) - фото квартиры 21 декабря 2021 90 дн. 2 47.6 14/16 5 200 000
Екатеринбург, ул. Большакова, 13 (Парковый) - фото квартиры 2 декабря 2021 90 дн. 2 47.6 14/16 4 990 000
Екатеринбург, ул. Большакова, 13 (Парковый) - фото квартиры 16 сентября 2021 90 дн. 2 48.4 3/16 4 450 000
Екатеринбург, ул. Большакова, 13 (Парковый) - фото квартиры 7 сентября 2021 90 дн. 2 48.4 3/16 4 450 000
Екатеринбург, ул. Большакова, 13 (Парковый) - фото квартиры 14 августа 2021 90 дн. 2 49 3/12 4 200 000
Екатеринбург, ул. Большакова, 13 (Парковый) - фото квартиры 16 августа 2021 90 дн. 2 48.4 3/16 4 600 000
Екатеринбург, ул. Большакова, 13 (Парковый) - фото квартиры 3 сентября 2021 90 дн. 2 48.2 16/16 4 150 000
Екатеринбург, ул. Большакова, 13 (Парковый) - фото квартиры 2 июня 2021 90 дн. 2 48.2 16/16 4 180 000
Екатеринбург, ул. Большакова, 13 (Парковый) - фото квартиры 8 июля 2021 90 дн. 1 34 1/16 3 700 000
Екатеринбург, ул. Большакова, 13 (Парковый) - фото квартиры 1 мая 2021 90 дн. 1 28.6 6/9 3 000 000
Екатеринбург, ул. Большакова, 13 (Парковый) - фото квартиры 13 февраля 2021 90 дн. 2 47.7 2/16 3 700 000
Екатеринбург, ул. Большакова, 13 (Парковый) - фото квартиры 25 февраля 2021 90 дн. 2 42 2/9 4 100 000
Екатеринбург, ул. Большакова, 13 (Парковый) - фото квартиры 25 февраля 2021 90 дн. 2 42 7/9 3 600 000
Екатеринбург, ул. Большакова, 13 (Парковый) - фото квартиры 13 февраля 2021 90 дн. 2 42.7 7/9 3 600 000
Екатеринбург, ул. Большакова, 13 (Парковый) - фото квартиры 24 ноября 2020 90 дн. 2 48 6/16 3 690 000
Екатеринбург, ул. Большакова, 13 (Парковый) - фото квартиры 6 ноября 2020 90 дн. 3 58 4/9 3 999 990
Екатеринбург, ул. Большакова, 13 (Парковый) - фото квартиры 10 августа 2021 90 дн. 3 58 9/9 5 050 000

Похожие предложения о продаже квартир в Екатеринбурге (Парковый)

  • 2-к квартира, Мичурина, 210

    • 42.7 м2
    • 9/9 этаж
    • Состояние: хорошее
    5 750 000 ₽ (134700 ₽/м2)
    В пpoдаже очeнь теплая , светлая 2x комнaтная квартира. Oкна выxодят нa улицу. B квapтиpе сделан кocмeтичеcкий pемoнт . Oкoнные пpoфили из нaтуpальногo деpeва. Koричнeвoго цвeта. Поcтавлeна нoвaя вxодная двepь . В квapтире oстaётся вся мeбель. Спoкойные, xopошие соседи. Рядом парк Маяковского, тц Максидом, выезды на объездную во всех направлениях Удобная , развитая инфраструктура. Много школ , садиков, магазинов Квартира без обременений и запретов. Один собственник более 5 лет. Чистая продажа.Условия приобретения:Полный пакет документов и сопровождение сделки. Ипотека, Военная ипотека. Взаимозачет Вашей недвижимости. Сертификаты, Материнский капитал.Получить бесплатную консультацию, помощь ипотечного брокера и юридическую поддержку, Вы сможете обратившись в наше агентство Азбука Недвижимости Агентство недвижимости Азбука Недвижимости гарантирует своим клиентам безопасность сделки, так как все сделки агентства застрахованы. ID объекта в нашей базе: 1976
    размещено: 25.11.2025 , обновлено: 27.11.2025
  • 2-к квартира, Тверитина, 19

    • 42.6 м2
    • 2/9 этаж
    • Состояние: удовлетворительное
    5 600 000 ₽ (131500 ₽/м2)
    Ищете идеальное место для вашей семьи? Предлагаем к продаже уютную и функциональную 2-комнатную квартиру в одном из самых востребованных и благоприятных районов города, где каждый найдет свое место!Главные преимущества:Тишина и спокойствие: Благодаря расположению окон во двор, вы забудете о городском шуме. Утро будет начинаться с пения птиц, а вечера пройдут в полной тишине.Идеальное расположение: Отличная инфраструктура – визитная карточка района. Школы и детские сады находятся буквально за углом, что сэкономит ваше время. Множество магазинов, семейных кафе, медицинских учреждений – всё в шаговой доступности.Легкость передвижения: Отличная транспортная развязка позволяет без труда добраться в любой район города на личном или общественном транспорте.О квартире: Комнаты изолированные, квартира теплая, окна на солнечную сторону, вся мебель остается новому собственнику. В квартире зарегистрированных нет, чистая продажа, быстрый выход на сделку, один взрослый собственник.Это идеальный выбор для тех, кто ценит комфорт, безопасность и безупречное качество жизни! ID объекта в нашей базе: 2990
    размещено: 26.11.2025 , обновлено: 27.11.2025
  • 2-к квартира, Луначарского, 225

    • 36.5 м2
    • 4/9 этаж
    • Состояние: удовлетворительное
    4 900 000 ₽ (134200 ₽/м2)
    Квартира для Вас- Покупатель с руками и головой!! Все готово для воплощения ваших дизайнерских планов! Локация- отменная, этаж- комфортный (даже если сломался лифт), двор - зеленый, транспорт- рядом, магазины, школы. детские сады, парк Маяковского! Обременений нет, в собственности более 10 лет( не оспоришь), в ипотеку- пожалуйста, материнский капитал не использовали, никто не прописан, на сделку - быстро, ключи- в день сделки! Все помогу, расскажу, выведу на сделку! Жду на просмотр! ID объекта в нашей базе: 4832
    размещено: 12.11.2025 , обновлено: 17.11.2025
  • 2-к квартира, Тверитина, 13

    • 43.5 м2
    • 2/9 этаж
    • Состояние: идеальное
    5 880 000 ₽ (135200 ₽/м2)
    Продаётся уютная двухкомнатная квартира площадью 43.5 квадратных метров на втором этаже девятиэтажного панельного дома, расположенного в центре Екатеринбурга по адресу улица Тверитина, 13. Жилая площадь составляет 26.3 квадратных метров, а кухня занимает приятные 6 квадратных метров. Квартира после косметического ремонта, что позволит новым владельцам сразу же обустроиться без дополнительных вложений.Совмещённый санузел добавляет удобства в повседневное использование пространства. Из окон открывается тихий вид во двор, где расположены детская и спортивная площадки – идеальное место для отдыха и игр детей.Расположение дома предлагает комфортную пешеходную доступность до станции метро Геологическая всего за 28 минут прогулки. Рядом находятся образовательные учреждения, такие как гимназия №40 и средняя школа №62, а также детские сады Швабе-Эрудит и другой детский сад, что особенно удобно для семей с детьми.Для заботы о здоровье жителей поблизости работают аптеки Гармония и ещё одна аптека. Безопасность и удобство проживания обеспечиваются наличием парковки во дворе дома.Этот вариант идеально подойдёт тем, кто ценит спокойствие и уединённость собственного жилья в сочетании с развитой инфраструктурой района и близостью к центру города. Приглашаем вас оценить все преимущества данной квартиры лично! ID объекта в нашей базе: 4897
    размещено: 10.11.2025 , обновлено: 18.11.2025
  • 2-к квартира, Большакова, 22/4

    • 47.6 м2
    • 11/12 этаж
    • Состояние: хорошее
    7 000 000 ₽ (147100 ₽/м2)
    Уютная 2-комнатная квартира на высоком этаже с видом на город! ул. Большакова, 22/4 Идеальное расположение в Парковом микрорайоне! Готовый вариант для комфортной жизни. Продается светлая и уютная двухкомнатная квартира в Екатеринбурге по адресу: улица Большакова, 22к4. Общая площадь составляет 47.6 кв. м, жилая — 28.3 кв. м (комнаты 18,0 кв. м и 11,1 кв. м), кухня — 6.7 кв. м. Квартира расположена на 11 этаже 12-этажного панельного дома 1987 года постройки. Высота потолков — 2.7 метра. Из окон открывается вид на улицу. Дом в хорошем состоянии, оборудован пассажирским и грузовым лифтами (заменены в 2020 году). Есть наземная парковка, поэтому вы всегда найдете место для своего автомобиля. ✨ О квартире: В квартире есть косметический ремонт, что позволяет сразу въехать и жить в уютной обстановке. Планировка удобная, с двумя отдельными санузлами, что очень практично для семьи. Лоджия добавляет дополнительное пространство для отдыха или хранения. В квартире остается кухонный гарнитур и встроенные шкафы-купе. Остальное — по договоренности.???? О доме и локации (главные козыри!): ЖК «Парковый» — один из самых удобных и зеленых районов Екатеринбурга. Район с развитой инфраструктурой: рядом находятся школы и детские сады, что удобно для семей с детьми. В шаговой доступности клиники и магазины, поэтому все необходимое всегда под рукой. До станции метро "Геологическая" можно дойти пешком за 24 минуты, что делает передвижение по городу удобным. Инфраструктура «у дома»: В шаговой доступности всё для жизни: ???? Магазины: «Ашан», «Лента», «Пятерочка», «Магнит». ???? Поликлиники, аптеки, медицинский центр. ???? Детские сады и школы. ???? Кафе, рестораны, банки. Отдых и спорт: Рядом несколько парков — Парк им. Маяковского, Парк им. Морозова, Метеогорка. Есть где гулять с детьми и заниматься спортом. В пешей доступности ТЦ «Максидом» и фитнес-клуб.Документы готовы к сделке. Возможна продажа в ипотеку. Юридически квартира полностью чистая, без обременений. Приглашаем вас на просмотр! Звоните, чтобы записаться на удобное для вас время. ID объекта в нашей базе: 575
    размещено: 15.09.2025 , обновлено: 23.11.2025

    2-к квартира, Ткачей, 8

    • 42.4 м2
    • 4/9 этаж
    • Состояние: хорошее
    6 650 000 ₽ (156800 ₽/м2)
    Продается двухкомнатная квартира с изолированными комнатами в Парковом микрорайоне, рядом с парком Маяковского, ул. Ткачей, 8. Дом построен в 1980 году, административный район Октябрьский. Квартира расположена на четвертом этаже девятиэтажного панельного дома. Окна квартиры выходят на солнечную сторону, в тихий уютный двор. Общая площадь квартиры составляет 42,4 кв.м., перед входом в квартиру отгорожена часть подъезда. Жилые комнаты площадью 18 и 8 кв.м. В семиметровой кухне покупателю остается в подарок кухонный гарнитур, кухня расширена, перепланировка согласована. В квартире установлены пластиковые окна, алюминиевые радиаторы отопления, застекленная полулоджия. Санузел раздельный, в кафеле, сантехника в хорошем состоянии. На входе в квартиру установлены сейф-двери. В квартира остается мебель. Удобная транспортная развязка, наличие развитой инфраструктуры и множества торговых точек, делают этот район города востребованным для покупателей. Рядом с домом расположено три детских сада, школа. В соседних зданиях находятся супермаркеты Верный, Пятерочка. Рядом с домом расположено несколько гаражных комплексов. В шаговой доступности Парк Маяковского. Квартира в собственности с 2021 года, один собственник, чистая продажа. Просмотр возможен в удобное для вас время. Звоните, договоримся. ID объекта в нашей базе: 11256
    размещено: 11.09.2025 , обновлено: 14.11.2025

    2-к квартира, Бажова, 225

    • 41.4 м2
    • 4/5 этаж
    • Состояние: хорошее
    5 500 000 ₽ (132900 ₽/м2)
    Продаётся 2-хкомнатная квартира в тёплом кирпичном доме . Месторасположение дома позволяет за несколько минут добраться до транспортной остановки , до продуктовых супермаркетов , школы , парка , городской больницы 1 . Квартира находится на 4-м комфортном этаже . Окна квартиры выходят во двор . В квартире сделан качественный косметический ремонт - установлены стеклопакеты , положен линолеум , плитка в прихожей, балкон обшит вагонкой ; во всех помещениях натяжные потолки . Бонусом для покупателя будет вместительный встроенный шкаф-купе в прихожей , мебель - по желанию . В квартире была выполнена перепланировка , вследствие которой комнаты стали изолированными , прихожая - более удобной и большой . Перепланировка узаконена . Один взрослый собственник . Квартира приобреталась без использования кредитов и мат капитала . Звоните ! Покажем в удобное для Вас время ID объекта в нашей базе: 25824
    размещено: 13.07.2025 , обновлено: 19.11.2025

    2-к квартира, Тверитина, 17

    • 42.5 м2
    • 1/9 этаж
    • Состояние: хорошее
    5 500 000 ₽ (129400 ₽/м2)
    Отличная квартира в тихом центре, Есть две отдельные спальни, раздельный санузел и лоджия. В квартире много что останется новым покупателям, отлично подойдет под сдачу в аренду, так и для проживания самим. Отличная транспортная доступность и развитая инфраструктуру позволяет с комфортом проживать. ID объекта в нашей базе: 2084
    размещено: 24.09.2024 , обновлено: 23.11.2025

    2-к квартира, Восточная, 230

    • 41 м2
    • 2/5 этаж
    • Состояние: хорошее
    4 980 000 ₽ (121500 ₽/м2)
    Объект № 182165. Продам 2-комнатную квартиру в центре Екатеринбурга на улице Восточной. Уютная, теплая квартира. Сделан ремонт, поменяны все трубы, канализация и батареи. Потолки натяжные, застекленный балкон. В шаговой доступности остановки общественного транспорта, школа, детский сад, ЦПКиО, аптека, Магнит Экстра. Хорошая транспортная развязка. Ухоженный двор, подъезд в хорошем состоянии. Документы готовы. Возможна ипотека. ***Гарантийный сертификат «Защита собственности» по данному объекту в подарок***
    размещено: 05.04.2024 , обновлено: 27.11.2025

Новостройки Екатеринбург, мкр-н. Парковый

Приоритет

Увеличивает просмотры в 3 раза

Ваше объявление показывается в списке выше обычных объявлений. подключить