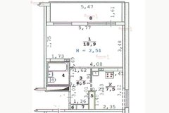
Продажа квартиры: Екатеринбург, ул. Коллективный, 11 (Вторчермет)
| Рынок: | вторичный |
| Срок сдачи: | 1968 года |
| Количество комнат: | 2 |
| Общая площадь: | 43.5 м2 |
| Жилая площадь: | 18 м2 |
| Площадь кухни: | 12 м2 |
| Этаж/Этажность дома: | 1 / 12 |
| Санузел: | совмещенный |
| Отделка: | косметический |
| Год постройки: | 1968 |
| Мебель: | есть мебель |
| Балкон/лоджия: | лоджия |
| Состояние: | хорошее |
| Цена: | 5 000 000 ₽
|
| Коммунальные платежи: | оплачиваются отдельно |
| Торг: | торг |
| Ипотека: | возможна |







