Дом - ул. Драгунский, 4
Екатеринбург, Полеводство
Объект №569.
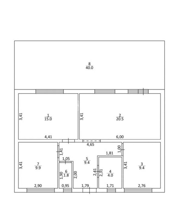
Продажа нового дома в Горном Щите: простор и комфорт рядом с ЕкатеринбургомГлавноеНовый дом площадью 185,5 м² на участке 12 соток (ИЖС) — идеальное решение для семьи, ценящей комфорт и приватность. Дом сдан «под ключ»: можно сразу заезжать и жить. На участке расположена баня с черновой отделкой, подведены электричество и вода. Территория закрыта, местоположение удобное — недалеко от Екатеринбурга.Что по конструкции— Фундамент: свайно‑ростверковый (сваи длиной 2,5 м, шаг 2 м).— Стены: твин‑блок толщиной 300 мм + утепление минеральной ватой (50 мм).— Кровля: утепление минеральной ватой, слой 200 мм.— Арматура: металлическая.— Канализация: септик «Урал Био» (для дома), отдельные канализационные кольца (для бани).Как спланировано внутри— 2 спальни.— Мастер‑спальня.— Спальня/кабинет (универсальное помещение).— Большая кухня‑гостиная — центральное пространство для семейных встреч.— Постирочная — удобство в быту.— Котельная — всё оборудование в одном месте.— Санузел — продуманная планировка.Что на участке— Площадь: 12 соток.— Баня с черновой отделкой: подведены электричество и вода, готова к финишной отделке под ваш вкус.— Закрытая территория: приватность и безопасность.Про сделку— Форма собственности: ИЖС.— Дом готов к заселению (отделка «под ключ»).
размещено: 16.03.2026
























