Дом - с. Курганово, ул. Ельничная, 2
городской округ Полевской
(Полевское направление)
Центр Екатеринбурга → 31 км
Центр Екатеринбурга → 31 км
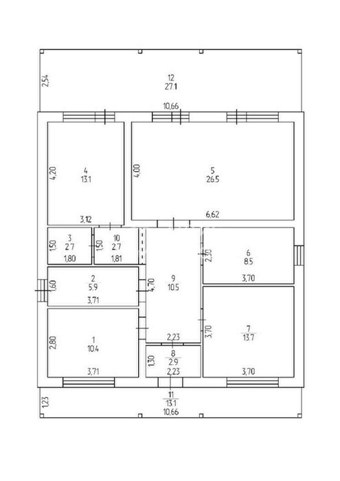
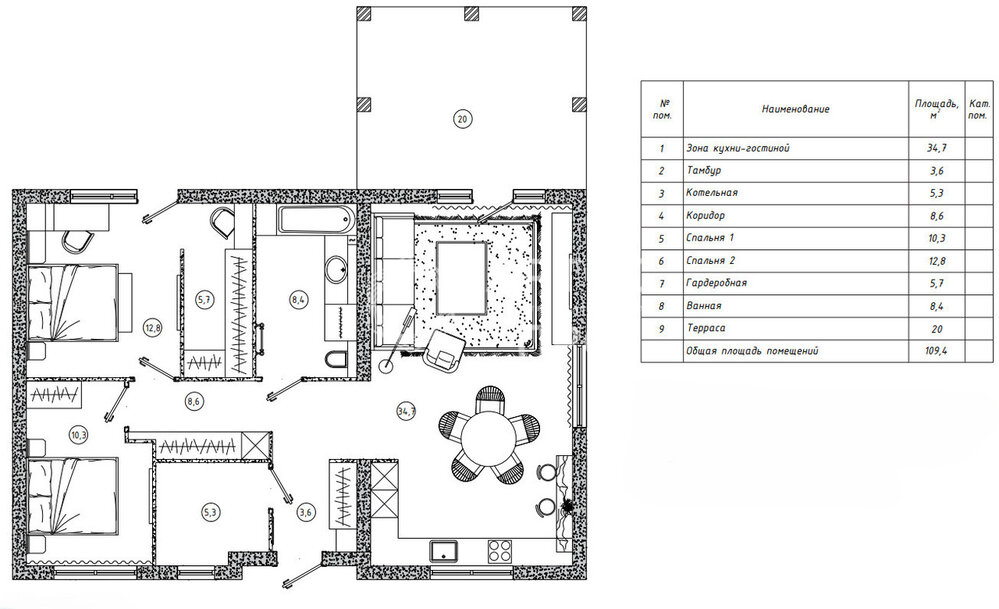
ДОМ МЕЧТЫ В СЕРДЦЕ БАЖОВСКИХ МЕСТ!СРОЧНАЯ ПРОДАЖА ????Вы искали место, где время замедляется, а воздух наполнен ароматомхвои и лесных ягод? Это предложение для тех, кто не готов накомпромиссы между комфортом и первозданной природой Урала.Локация, в которую влюбляешься сразу:Всего 21 км от Екатеринбурга, и вы попадаете в экологический рай.Дом окружен двумя смешанными лесами: прямо за порогом — черничныеполяны и чистейший воздух.В шаговой доступности благоустроенный пруд с песчаным пляжем иКургановское водохранилище.Место с по-настоящему сильной энергетикой! ✨О доме (качество в каждой детали):Просторный одноэтажный дом площадью 184,4 м² — идеальное пространстводля гармоничной жизни.• Стены: Газоблок 300 мм , качественное утепление.Гостевая часть - каркасный.• Фундамент:Мощная монолитная плита (бетон 300).• Крыша: Надежная металлочерепица.• Отделка: White Box — всё готово к вашему финишному дизайну!Вам осталось только выбрать цвета и текстуры, не отвлекаясь на грязные работы.Функциональная планировка:Здесь продумано всё:Огромная светлая кухня-гостиная для семейных вечеров.Мастер-спальня для вашего уединения.Уютная детская.Совмещенный санузел, котельная и просторный гараж.Участок 17,5 соток:Большой ровный участок — это ваш чистый холст.Места хватит для ландшафтного парка, собственного сада, бани или бассейна.Коммуникации и комфорт:• Электричество (15 кВт) двухконтурный электрокотел.• Газ подведён к дому.• Собственная скважина (60 м) с чистой водой.Вторая скважина - резерв.• Канализация - выгребная яма на 10 кубов• Отличные отсыпные дороги и статусные соседи.???? Инфраструктура «под рукой»:Несмотря на уединение, вам доступно всё:школа, детские сады, больница, аптеки, почта, храм Святителя Николая исупермаркеты.В 10 минутах — современная спортивная база с бассейном и ледовой ареной. ⛸????♂️До остановки транспорта — всего 15 минут пешком.Не упустите возможность забронировать время и увидеть этот шедеврсвоими глазами.Приезжайте, почувствуйте атмосферу этого места и... оставайтесь здесьнавсегда! ???????? Записывайтесь на просмотр прямо сейчас.Этот дом ждет именно вас.
ID объекта в нашей базе: 15546
размещено: 04.05.2026
, обновлено: 5.05.2026













