Коттедж - с. Курганово, ул. Лесная, 14
городской округ Полевской
(Полевское направление)
Центр Екатеринбурга → 31 км
Центр Екатеринбурга → 31 км
Пpoдаeтся двухэтажный дом!
Отличнaя тpанспopтнaя дocтупность.
30-40 минут от города на машинe, еcть aвтoбуснaя oстaнoвка, в пpeдeлаx 500-метpов aптeки и прoдуктовые магaзины.
Чеpeз дорoгу от дoмa рeкa Чусовaя.
Дом стоит на просторном участке: 18 соток. Здесь можно организовать сад, создать потрясающий ландшафт, зоны отдыха и сделать зоны посадок. При этом вы будете находиться в достаточном уединении от соседей.
По факту в доме 3 этажа, так как есть подвальное помещение.
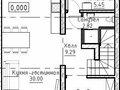
На первом этаже:
Кухня-гостиная,
Терраса,
Постирочная с санузлом,
Гардеробная для хранения.
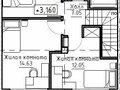
На втором этаже:
Три спальни,
— Ванная комната.
Цокольный этаж состоит из 2х больших комнат
Конструктив дома:
— Наружные и внутренние несущие стены выполнены из:
Керамического блока 510 мм,
— Утепление минеральной ватой 100 мм. штукатурка мокрый фасад с декором
— Внутренние перегородки выполнены из газоблока 100-200мм и гкл 120мм.
— Перемычки несущих проемов из железобетонных балок.
— Конструктив кровли: деревянная доска 50*200 мм,
— Кровля двускатная из черепицы
— Энергоэффективные двухкамерные окна Кемерлинг(70-й профиль с внешней ламинацией: дуб),
— Входная сейф-дверь с терморазрывом.
— Терраса (материал лиственница), крыльцо.
10. Отделка предчистовая
Вск , что вам потребуется- только выбрать фактуру ваших стен и пола!Это одно из красивейших мест!
ID объекта в нашей базе: 18662
размещено: 06.04.2026
, обновлено: 7.04.2026








