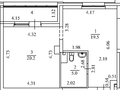
Торговая площадь 49.5 м2 – Викулова, 24
Подойдет под гостиничный бизнесЖилой комплекс «ТАКТИКА» расположен в границах улиц Татищева, Викулова и Венгерских Коммунаров, адрес Викулова, 24, вблизи Акватории пруда Верх-Исетского района.
Дом повышенного комфорта предлагает: современный и безопасный двор, ландшафтный дизайн, пространство для отдыха на крыше и фитнес клуб с бассейном.
Максимальное удобство и доступность городской инфраструктуры, остановки общественного транспорта, трамвайная линия. Благодаря удобному расположению остановок, вы сможете сэкономить время на поездках и легче планировать свои маршруты.
Благоустройство. Закрытый двор комплекса, создает место безопасности и удобства, созданное для семейного отдыха и детских игр. Среди элементов — веревка альпиниста, балансировочные столбики, змейка и подвесной гамак. Есть детские карусели и деревянные качели на любой вкус: классические и качели-гамаки. Двор полностью свободен от машин, что гарантирует безопасность и спокойствие для всех его обителей.
Для взрослых во дворе воркаут-зона с кардио-тренажёрами, силовой и атлетический комплекс. А также настольный теннис и пространство для йоги на открытом воздухе. В комплексе размещен фитнес-центр с бассейном.
В 5 минутах от жилищного комплекса 4 школы, ещё 3 — в 10 минутах, в том числе школа №1, построенная в 2019 году по последнему слову техники. Рядом 7 садиков, среди них два премиальных детских сада «Согласие», 15 учреждений дополнительного образования, например, школа программирования «Алгоритмика» и Международная школа скорочтения.
В 10 минутах ходьбы — детская поликлиника №11, «Новая больница» и «Детский доктор». В 15 минутах езды горбольницы №41, №40 и центральная городская больница №2, в радиусе 1 км медицинские центры «Бонум», «Шанс», «Панацея», «Хеликс» и «Парацельс».
Особенная архитектура. Холл жилого комплекса выполнен в элегантных и минималистичных тонах, где гармонично сочетаются керамогранит и декоративная штукатурка. Системы видеонаблюдения охватывают общие зоны, включая входные группы, подъезды и дворовую территории, что позволяет контролировать происходящее в реальном времени. Служба мониторинга активно следит за ситуацией и моментально реагирует на любые происшествия, что обеспечивает дополнительный уровень защиты и спокойствия для всех жильцов.
В доме предусмотрен подземный одноуровневый паркинг.
Отделка. Улучшенная шумоизоляция сохранит в вашей квартире тишину и спокойствие от внешних звуков и соседних помещений. Автоматическая телеметрия позволит забыть о хлопотах по сбору показаний счетчиков для коммунальных платежей. Система отопления с повышенной теплоотдачей обеспечит быстрое и равномерное прогревание помещения, создавая комфортный микроклимат в любое время года. Армированный 5-камерный профиль окон с режимом микропроветривания системы REHAU эффективно удержит тепло и предотвратит потерю энергии. Премиальные и технологичные лифты KOYO обеспечат быструю и бесперебойную работу, что значительно повысит удобство в перемещения внутри комплекса, минимизируя ожидание жителей. Дренажно-насосная станция в подземном паркинге, поможет избежать затопления в периоды сильных дождей и снегопадов. Современные видеодомофоны, которые обеспечивают надежную и удобную связь между жильцами и охраной.
Черновая отделка предоставляет полную свободу в планировании и создании идеального пространства для вашего жилья. Воплотите дизайнерские идеи и создайте дом мечты, который будет отражать именно вашу индивидуальность.
Готовы показать квартиру в удобное для вас время. Звоните, чтобы задать вопросы и договориться о просмотре!
ID объекта в нашей базе: 1015
размещено: 18.02.2026
, обновлено: 19.03.2026








