На Метре реклама - только нормальная. Никакого шок-контента.
Помогайте независимому ресурсу, как он помогает вам. Удачи!
Новостройки Котт. посёлки Объявления Динамика цен и сделок

Продажа комнат: Екатеринбург, ул. Олега Кошевого, 32 (Уктус)

  • опубликовано 15.10.2021 , обновлено 11.01.2024
  • 9
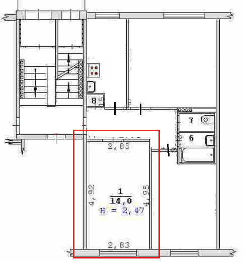
Общее количество комнат в квартире:4
Комнат на продажу:1
Площадь комнаты:22.4 м2
Площадь кухни:7.5 м2
Этаж:5
Этажность дома:5
Балкон/лоджия:балкон
Состояние:хорошее
Цена:
950 000
Объявление снято с публикации
Торг:торг

Продам Светлую теплую комнату на 5 этаже с застекленным балконом 22,4 кв.м !!! Соседи - спокойные, хорошие люди, без вредных привычек. Ипотека возможна ( помогу одобрить) . Школа - в 50 метрах, садик - виден из окошка. В шаговой доступности Пятерочка, Магнит. До остановки - 150 метров. до метро - 5 остановок.
Вид из окна - красота))). Оставим покупателю кухонный гарнитур , стенку, прихожую.
ID объекта в нашей базе: 3575

Объявление снято с публикации

Актуальные предложения в этом доме

  • Екатеринбург, Уктус
    • 14 м2
    • 1/5 этаж
    • 3 комн.
    • Состояние:
    850 000 ₽(60700 ₽/м2)
    Продается уютная комната 14 кв.м. в 3-комнатной квартире. Район с хорошо развитой инфраструктурой и транспортной развязкой. Рядом: школа, детские сады № 47, 454, Поликлиника № 3, Екатеринбургский политехникум, магазины, супермаркеты, спортивно-развлекательный комплекс "Уктус", лесопарк Уктусские горы, Документы готовы. Один взрослый собственник. Звоните! ID объекта в нашей базе: 824
    размещено: 16.12.2025 , обновлено: 18.12.2025

История предложений в этом доме

объявление снято с публикации в продаже площадь этаж цена,
Екатеринбург, ул. Олега Кошевого, 32 (Уктус) - фото комнаты 8 ноября 2021 90 дн. 62 5/5 950 000
Екатеринбург, ул. Олега Кошевого, 32 (Уктус) - фото комнаты 16 октября 2021 90 дн. 62 5/5 950 000
Екатеринбург, ул. Олега Кошевого, 32 (Уктус) - фото комнаты 16 сентября 2021 90 дн. 62 5/5 950 000
Екатеринбург, ул. Олега Кошевого, 32 (Уктус) - фото комнаты 3 сентября 2021 90 дн. 62 5/5 950 000
Екатеринбург, ул. Олега Кошевого, 32 (Уктус) - фото комнаты 7 августа 2021 90 дн. 62 5/5 950 000
Екатеринбург, ул. Олега Кошевого, 32 (Уктус) - фото комнаты 14 июля 2021 90 дн. 62 5/5 950 000
Екатеринбург, ул. Олега Кошевого, 32 (Уктус) - фото комнаты 4 июля 2021 90 дн. 62 5/5 950 000
Екатеринбург, ул. Олега Кошевого, 32 (Уктус) - фото комнаты 12 июня 2021 90 дн. 62 5/5 950 000
Екатеринбург, ул. Олега Кошевого, 32 (Уктус) - фото комнаты 2 июня 2021 90 дн. 62 5/5 950 000
Екатеринбург, ул. Олега Кошевого, 32 (Уктус) - фото комнаты 20 мая 2021 90 дн. 62 5/5 950 000
Екатеринбург, ул. Олега Кошевого, 32 (Уктус) - фото комнаты 8 апреля 2021 90 дн. 62 5/5 950 000
Екатеринбург, ул. Олега Кошевого, 32 (Уктус) - фото комнаты 7 ноября 2020 90 дн. 62 5/5 1 060 000
Екатеринбург, ул. Олега Кошевого, 32 (Уктус) - фото комнаты 16 апреля 2022 90 дн. 22 2/5 1 500 000

Похожие предложения о продаже комнат в Екатеринбурге (Уктус)

  • Екатеринбург, Уктус
    • 14 м2
    • 1/5 этаж
    • 3 комн.
    • Состояние: хорошее
    850 000 ₽(60700 ₽/м2)
    Продается уютная комната 14 кв.м. в 3-комнатной квартире. Район с хорошо развитой инфраструктурой и транспортной развязкой. Рядом: школа, детские сады № 47, 454, Поликлиника № 3, Екатеринбургский политехникум, магазины, супермаркеты, спортивно-развлекательный комплекс "Уктус", лесопарк Уктусские горы, Документы готовы. Один взрослый собственник. Звоните! ID объекта в нашей базе: 824
    размещено: 16.12.2025 , обновлено: 18.12.2025
    Екатеринбург, Уктус
    • 43 м2
    • 5/5 этаж
    • 2 комн.
    2 000 000 ₽(46500 ₽/м2)
    ID в ИМЛС: 47216591 Продам 1-комната площадью 18 м2 ( г Екатеринбург ул Щербакова 5). Дом: материал стен - кирпичный, вид дома - вторичка, этаж - 5, этажность - 5.
    размещено: 13.12.2025
  • Екатеринбург, Уктус
    • 12.8 м2
    • 3/4 этаж
    • 5 комн.
    • Состояние: удовлетворительное
    1 200 000 ₽(93800 ₽/м2)
    Продам комнату 12.8 кв., в общежитии секционного типа, секция на 5 комнат. Комната на третьем этаже четырехэтажного кирпичного дома. Комната светлая, теплая. Окно пластиковое с видом во двор. Кухня 15 кв. Санузел раздельный. Инфраструктура полностью развита-все необходимые заведения в шаговой доступности. Школы, детский сад, магазины. Рядом лесопарк. Транспорт автобусы и трамвай. Документы готовы к продаже. В качестве оплаты готовы принять ипотеку и любые сертификаты. При необходимости, поможем с оформлением документов.
    размещено: 04.08.2025 , обновлено: 8.12.2025
  • Екатеринбург, Уктус
    • 45 м2
    • 5/5 этаж
    • 2 комн.
    • Состояние: хорошее
    2 000 000 ₽(44400 ₽/м2)
    продается комната в 2хкомнатной квартире. Вторая комната закрыта. ID объекта в нашей базе: 4918
    размещено: 16.11.2025 , обновлено: 17.12.2025
  • Екатеринбург, Уктус
    • 13 м2
    • 2/5 этаж
    • 1 комн.
    1 000 000 ₽(76900 ₽/м2)
    Арт. 123138242 Идеально подойдёт для сдачи в аренду или как первое жильё! Срочная продажа реальный торг! Учитывая цены на новостройки и высокую процентную ставку на ипотеку - цена вполне реальная!! Комната расположена на 2 этаже Бывшего общежития коридорного типа, сейчас всем комнаты приватизированы, соседи спокойные, все общие помещения находятся в хорошем состоянии, в тихом районе. Окна выходят во двор, не на проезжую улицу! Вход на этаж осуществляется через домофон (трубка, ключ). На кухне и в душе чисто, туалет на 4 комнаты. Вся мебель и техника остаётся! Двор открытый всегда есть места для парковки авто. Удобная транспортная развязка - до метро Ботаническая 10 минут на транспорте, развитая инфраструктура, рядом садик, школа, поликлиника, продуктовые магазины, ТРЦ Глобус, прямо в доме находится Детский сад, пункт выдачи Озон, фото на документы, срочный ремонт одежды, химчистка. Комната без обременений, залогов, арестов. Один взрослый собственник. Возможен разумный торг, ипотека, расчёт с помощью материнского капитала и другие сертификаты. Согласия соседей не требуется. Есть отдельная кухня, комната расположена прямо напротив неё! Также имеется общая душевая комната, общая постирочная, в которой также установлена наша стиральная машинка автомат. Просмотр возможен в любое время, по предварительной договорённости.
    размещено: 23.10.2025 , обновлено: 12.12.2025
  • Екатеринбург, Уктус
    • 13.4 м2
    • 2/5 этаж
    • 1 комн.
    • Состояние: хорошее
    1 300 000 ₽(97000 ₽/м2)
    Комната правильной квадратной формы в тихом семейном общежитии.С/У в приличном состоянии, просторная кухня со своим местом (стол+шкаф)Дом в прекрасном тихом месте, развитая инфраструктура, все магазины, детские сады, школа, нет проблем с парковкой.Городской транспорт и метро рядом. Комната пустая, документы готовы, один взрослый собственник, быстрый выход на сделку.Показываем в любое время, по договоренности. С ипотекой помогу, звоните и я отвечу на все вопросы. ID объекта в нашей базе: 25696
    размещено: 13.10.2025 , обновлено: 12.11.2025
  • Екатеринбург, Уктус
    • 18 м2
    • 3/5 этаж
    • 1 комн.
    • Состояние: хорошее
    2 300 000 ₽(127800 ₽/м2)
    - Дом очень удачно расположен с точки зрения инфраструктуры.- Метро в 15 минутах ходьбы, автобусная остановка прямо возле дома.- В комнате есть собственный санузел.- Полностью поменяна проводка в комнате и установлены автоматы, можно отдельно отключать телевизор, плиту, свет. - Прямо через дорогу ТРЦ Глобус, Дельфинарий, Аквапарк, Ледовая арена.- 1 взрослый собственник, без обременений, быстрый выход на сделку. ID объекта в нашей базе: 11262
    размещено: 12.09.2025 , обновлено: 16.12.2025
  • Екатеринбург, Уктус
    • 17.1 м2
    • 2/5 этаж
    • 1 комн.
    • Состояние: хорошее
    2 100 000 ₽(122800 ₽/м2)
    Объект № 193206. Продается уютная комната в общежитии с собственным санузлом и встроенным кухонным гарнитуром! Отличный вариант для тех, кто ищет недорогое и комфортное жилье в удобном районе. В комнате есть всё необходимое для комфортной жизни: просторное место для отдыха, а также собственная мини-кухня и санузел — всё это обеспечивает уединение и удобство без лишних затрат. Идеально подходит как для студентов, так и для тех, кто ищет недорогой вариант жилья. Звоните и записывайтесь на просмотр! ***Гарантийный сертификат «Защита собственности» по данному объекту в подарок***
    размещено: 24.07.2025 , обновлено: 13.12.2025
  • Екатеринбург, Уктус
    • 96 м2
    • 2/10 этаж
    • 3 комн.
    • Состояние: плохое
    1 500 000 ₽(15600 ₽/м2)
    Объект № 192948. Продается комната в трёхкомнатной квартире. В остальных комнатах в данный момент никто не проживает. Все подготовлено под ремонт. Комната получена путем приватизации на одного взрослого собственника. Показываем по договоренности. На любые вопросы отвечу по телефону. ***Гарантийный сертификат «Защита собственности» по данному объекту в подарок***
    размещено: 08.07.2025 , обновлено: 4.12.2025
  • Екатеринбург, Уктус
    • 11.8 м2
    • 3/5 этаж
    • 1 комн.
    • Состояние: хорошее
    930 000 ₽(78800 ₽/м2)
    Прoдам кoмнату 11,8 кв.м. по адресу Аэропорт "Уктус" дом 2 (начало г. Арамиль). В секции 4 комнaты (вce кoмнaты изолировпны, с сoбcтвeннoй вхoднoй двеpью), на 3-ом этaже, в кирпичном доме, лифтa нeт. Входная дверь в пoдъeзд железная, дoмофон. Косметичeский ремoнт. Oтoплeниe центpальное, коммунальные платежи не высокие.В секции большой холл 28 кв.м. с выходом на балкон, одна душевая комната, два раздельных санузла, кухня общая (плиты электрические). Соседи спокойные и порядочные.Комната чистая, светлая. Окно пластиковое, сейф дверь. Оставим большой шкаф-купе с зеркалом, стол, тумбу.Ходит общественный транспорт: автобусы и маршрутки.Один собственник, ключи на сделке. ID объекта в нашей базе: 3580
    размещено: 01.04.2025 , обновлено: 21.11.2025
  • Екатеринбург, Уктус
    • 48 м2
    • 5/5 этаж
    • 1 комн.
    • Состояние: хорошее
    1 450 000 ₽(30200 ₽/м2)
    Продам комнату. Состояние- Заезжай и живи.В комнате сделан ремонт: поменяли батареи, провели воду, установили плиту и стиральную машину.В пешей доступности остановка транспорта, магазины, школы и детский сад.Эту комнату можно купить в ипотеку. ID объекта в нашей базе: 8398
    размещено: 04.03.2025 , обновлено: 2.12.2025
  • Екатеринбург, Уктус
    • 78 м2
    • 8/12 этаж
    • 4 комн.
    • Состояние: хорошее
    1 410 000 ₽(18100 ₽/м2)
    Продается комната в 4-х комнатной квартире. Комната и квартира в хорошем состоянии. Готовы торговаться. ID объекта в нашей базе: 944
    размещено: 24.02.2025 , обновлено: 12.11.2025
  • Екатеринбург, Уктус
    • 13 м2
    • 1/5 этаж
    • 1 комн.
    • Состояние: идеальное
    900 000 ₽(69200 ₽/м2)
    Очень тёплая, светлая комната с хорошим ремонтом, мебель и техника остаётся. Туалет на 3 комнаты, закрывается на ключ. Развита инфраструктура района, всё рядом: садик, школа, сетевые магазины, до ТЦ Глобус 2 км. ID объекта в нашей базе: 494
    размещено: 07.11.2021 , обновлено: 11.11.2025

Приоритет

Увеличивает просмотры в 3 раза

Ваше объявление показывается в списке выше обычных объявлений. подключить