На Метре реклама - только нормальная. Никакого шок-контента.
Помогайте независимому ресурсу, как он помогает вам. Удачи!
Новостройки Котт. посёлки Объявления Динамика цен и сделок

Продажа квартиры: Екатеринбург, ул. Луначарского, 217 (Парковый)

  • опубликовано 23.03.2020 , обновлено 18.09.2025
  • 95
Рынок:вторичный
Срок сдачи: 1963 года
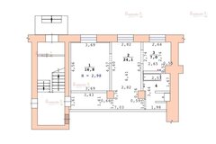
Количество комнат:2
Общая площадь:58 м2
Жилая площадь:31.4 м2
Площадь кухни:7.4 м2
Этаж/Этажность дома:4 / 5
Год постройки:1963
Балкон/лоджия:балкон
Цена:
4 200 000
Объявление снято с публикации
Ипотека:возможна

Продается двухкомнатная полнометражная квартира на ул. Луначарского-Декабристов. Очень хорошее расположение дома. В шаговой доступности парк Маяковского. Рядом пл. Обороны (новые дорожки, хорошее освещение, много скамеек), продуктовые магазины, ТЦ Максидом, школа, садик, трамваи, автобусы, рядом троллейбусы. Закрытый зеленый двор с дорожками. Дом кирпичный, высокие потолки, перекрытия ж/б. Во дворе есть места для парковки. В доме расположена администрация Октябрьского р-на (общественный порядок соблюдается, отопление всегда вовремя, отключения воды минимальны). Квартира теплая, просторная, установлены стеклопакеты, балкон застеклен. Все окна во двор. Чистая продажа. Ипотека возможна. Покажем в удобное для Вас время.
ID объекта в нашей базе: 578

Объявление снято с публикации

Ипотечный калькулятор

лет
%
Сумма кредита
4200000 ₽
Платеж
22 540 ₽

История предложений в этом доме

объявление снято с публикации в продаже комнат площадь этаж цена,
Екатеринбург, ул. Луначарского, 217 (Парковый) - фото квартиры 28 октября 2025 90 дн. 2 58 1/5 9 000 000
Екатеринбург, ул. Луначарского, 217 (Парковый) - фото квартиры 14 марта 2025 90 дн. 3 74 4/5 9 900 000
Екатеринбург, ул. Луначарского, 217 (Парковый) - фото квартиры 5 июля 2024 90 дн. 2 57.8 1/5 4 850 000
Екатеринбург, ул. Луначарского, 217 (Парковый) - фото квартиры 27 января 2024 90 дн. 2 57.8 1/5 5 300 000
Екатеринбург, ул. Луначарского, 217 (Парковый) - фото квартиры 21 марта 2020 90 дн. 2 43 1/5 2 590 000
9 ноября 2018 92 дн. 3 86 3/5 7 700 000
23 января 2019 90 дн. 3 72.5 2/5 3 800 000
12 февраля 2016 92 дн. 3 55.3 5/5 3 450 000

Похожие предложения о продаже квартир в Екатеринбурге (Парковый)

  • 2-к квартира, Луначарского, 225

    • 42.8 м2
    • 5/9 этаж
    • Состояние: хорошее
    5 000 000 ₽ (116800 ₽/м2)
    Продаётся светлая 2-комнатная квартира на ул. Луначарского, 225! ????Идеальный вариант для семьи! Уютная, правильная и очень светлая квартира в отличном районе.✨ О квартире:· Просторная планировка: Две отдельные комнаты и изолированная кухня. Есть где разместиться каждому! ✅· Много солнца: Квартира действительно очень светлая, создаёт радостное настроение.· Удобства: Совмещённый санузел (аккуратный и функциональный).· Отличный этаж: 5 этаж из 9 — идеальная золотая середина! Невысоко, если вдруг лифт, но и не шумно с улицы. Вид из окон приятный.???? Район мечты для жизни с детьми:· В шаговой доступности детский сад ???? и школа ????. Утром можно не торопиться!· Рядом магазины ???? и вся необходимая инфраструктура. Всё под рукой.· Развитый, обжитый микрорайон с зелёными дворами.???? Итог:Это тёплый и готовый дом,где уже всё есть для комфортной жизни. Не нужно никуда далеко ездить — садик, школа и магазины рядом. Светлая и уютная квартира ждёт своих новых хозяев!Звоните, чтобы посмотреть и влюбиться! ???? ID объекта в нашей базе: 12802
    размещено: 05.12.2025 , обновлено: 13.12.2025
  • 2-к квартира, Тверитина, 19

    • 42.6 м2
    • 2/9 этаж
    • Состояние: удовлетворительное
    5 400 000 ₽ (126800 ₽/м2)
    Ищете идеальное место для вашей семьи? Предлагаем к продаже уютную и функциональную 2-комнатную квартиру в одном из самых востребованных и благоприятных районов города, где каждый найдет свое место!Главные преимущества:Тишина и спокойствие: Благодаря расположению окон во двор, вы забудете о городском шуме. Утро будет начинаться с пения птиц, а вечера пройдут в полной тишине.Идеальное расположение: Отличная инфраструктура – визитная карточка района. Школы и детские сады находятся буквально за углом, что сэкономит ваше время. Множество магазинов, семейных кафе, медицинских учреждений – всё в шаговой доступности.Легкость передвижения: Отличная транспортная развязка позволяет без труда добраться в любой район города на личном или общественном транспорте.О квартире: Комнаты изолированные, квартира теплая, окна на солнечную сторону, вся мебель остается новому собственнику. В квартире зарегистрированных нет, чистая продажа, быстрый выход на сделку, один взрослый собственник.Это идеальный выбор для тех, кто ценит комфорт, безопасность и безупречное качество жизни! ID объекта в нашей базе: 2990
    размещено: 26.11.2025 , обновлено: 13.12.2025
  • 2-к квартира, Луначарского, 225

    • 36.5 м2
    • 4/9 этаж
    • Состояние: удовлетворительное
    4 799 000 ₽ (131500 ₽/м2)
    Квартира для Вас- Покупатель с руками и головой!! Все готово для воплощения ваших дизайнерских планов! Локация- отменная, этаж- комфортный (даже если сломался лифт), двор - зеленый, транспорт- рядом, магазины, школы. детские сады, парк Маяковского! Обременений нет, в собственности более 10 лет( не оспоришь), в ипотеку- пожалуйста, материнский капитал не использовали, никто не прописан, на сделку - быстро, ключи- в день сделки! Все помогу, расскажу, выведу на сделку! Жду на просмотр! ID объекта в нашей базе: 4832
    размещено: 12.11.2025 , обновлено: 13.12.2025
  • 2-к квартира, Восточная, 230

    • 41 м2
    • 2/5 этаж
    • Состояние: хорошее
    4 980 000 ₽ (121500 ₽/м2)
    Объект № 182165. Продам 2-комнатную квартиру в центре Екатеринбурга на улице Восточной. Уютная, теплая квартира. Сделан ремонт, поменяны все трубы, канализация и батареи. Потолки натяжные, застекленный балкон. В шаговой доступности остановки общественного транспорта, школа, детский сад, ЦПКиО, аптека, Магнит Экстра. Хорошая транспортная развязка. Ухоженный двор, подъезд в хорошем состоянии. Документы готовы. Возможна ипотека. ***Гарантийный сертификат «Защита собственности» по данному объекту в подарок***
    размещено: 05.04.2024 , обновлено: 6.12.2025

Новостройки Екатеринбург, мкр-н. Парковый

Приоритет

Увеличивает просмотры в 3 раза

Ваше объявление показывается в списке выше обычных объявлений. подключить