На Метре реклама - только нормальная. Никакого шок-контента.
Помогайте независимому ресурсу, как он помогает вам. Удачи!
Новостройки Котт. посёлки Объявления Динамика цен и сделок

Продажа квартиры: Екатеринбург, ул. Победы, 28 (Уралмаш)

  • опубликовано 25.06.2021 , обновлено 6.09.2025
  • 13
Кадастровый номер:66:41:0106096:1477
Рынок:вторичный
Срок сдачи: 1962 года
Количество комнат:3
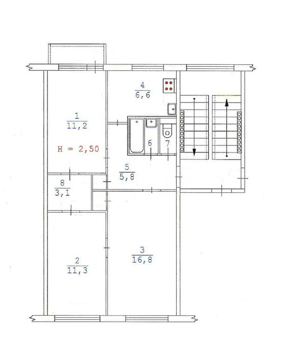
Общая площадь:58.8 м2
Жилая площадь:39.3 м2
Площадь кухни:6.6 м2
Этаж/Этажность дома:2 / 5
Санузел:раздельный
Отделка:требует ремонта
Год постройки:1962
Балкон/лоджия:балкон
Цена:
3 350 000
Объявление снято с публикации
Коммунальные платежи:оплачиваются отдельно
Ипотека:возможна

Продается просторная теплая 3-х комнатная квартира на комфортном 2 этаже. Комнаты правильной формы площадью 16,8+11,3+11,2. Кухня большая - 6,6 кв.м. Есть квадратная, большая - 3,1 кв.м., гардеробная. Квартира готова для ремонта, что позволит реализовать самые смелые дизайнерские фантазии и сделать перепланировку по своему желанию. Санузел раздельный, коридор большой. Трубы подводки воды поменяны, счетчик на электричество двухтарифный. Балкон застеклен деревянными рамами. Балкон и кухня выходят в тихий двор, 2 комнаты на противоположную сторону. Дом расположен в далеко от шумных дорог - тихо и не пыльно. Рядом с домом остановки транспорта во все районы города. Магазины, школы, садики, фитнес-центры - все в шаговой доступности. Чистая продажа, ипотека возможна, никто не прописан, освобождена, один взрослый собственник.

#объект в нашей базе №11011429#

Объявление снято с публикации

Ипотечный калькулятор

лет
%
Сумма кредита
3350000 ₽
Платеж
22 540 ₽

Актуальные предложения в этом доме

  • 2-к квартира, Победы, 28

    • 44.5 м2
    • 5/5 этаж
    • Состояние:
    4 170 000 ₽ (93700 ₽/м2)
    Продам двух комнатную квартиру в центре Уралмаша. Теплая, светлая квартира с удобной планировкой, окна выходят на обе стороны. Комнаты смежные, но при желании легко переделать в раздельные. У нас прекрасные соседи, чистый подъезд, зеленый двор. Хорошая транспортная развязка, до метро пр. Космонавтов пешком 7 минут. Множество точек быта: от аптек, супермаркетов до зоомагазинов. По прописке лицей №100, школа «Арт-Этюд», хорошие детские сады с ясельными группами. Один совершеннолетний собственник, в квартире никто не прописан. Чистая продажа, быстрый выход на сделку. ID объекта в нашей базе: 17907
    размещено: 12.09.2025 , обновлено: 21.10.2025

История предложений в этом доме

объявление снято с публикации в продаже комнат площадь этаж цена,
Екатеринбург, ул. Победы, 28 (Уралмаш) - фото квартиры 28 февраля 2024 90 дн. 1 28.7 3/5 2 990 000
Екатеринбург, ул. Победы, 28 (Уралмаш) - фото квартиры 30 марта 2023 90 дн. 3 58.8 5/5 5 300 000
Екатеринбург, ул. Победы, 28 (Уралмаш) - фото квартиры 13 июля 2022 90 дн. 2 43.7 2/5 3 200 000
Екатеринбург, ул. Победы, 28 (Уралмаш) - фото квартиры 3 июня 2022 90 дн. 2 43.7 2/5 3 290 000
Екатеринбург, ул. Победы, 28 (Уралмаш) - фото квартиры 8 сентября 2025 90 дн. 2 42.3 5/5 3 890 000
Екатеринбург, ул. Победы, 28 (Уралмаш) - фото квартиры 30 ноября 2021 90 дн. 2 45 4/14 3 540 000
Екатеринбург, ул. Победы, 28 (Уралмаш) - фото квартиры 22 мая 2021 90 дн. 2 43 4/5 3 170 000
Екатеринбург, ул. Победы, 28 (Уралмаш) - фото квартиры 12 марта 2021 90 дн. 1 29 3/5 2 350 000
Екатеринбург, ул. Победы, 28 (Уралмаш) - фото квартиры 12 июля 2020 90 дн. 1 29.1 1/5 2 300 000
Екатеринбург, ул. Победы, 28 (Уралмаш) - фото квартиры 24 июля 2020 90 дн. 2 43 5/5 2 850 000
Екатеринбург, ул. Победы, 28 (Уралмаш) - фото квартиры 16 мая 2020 90 дн. 1 29 1/5 2 250 000
Екатеринбург, ул. Победы, 28 (Уралмаш) - фото квартиры 25 января 2020 90 дн. 2 44 5/5 2 990 000
Екатеринбург, ул. Победы, 28 - фото квартиры 14 января 2020 90 дн. 2 43.3 5/5 2 650 000

Похожие предложения о продаже квартир в Екатеринбурге (Уралмаш)

  • 3-к квартира, Коммунистическая, 6

    • 53.6 м2
    • 1/5 этаж
    • Состояние: плохое
    4 300 000 ₽ (80200 ₽/м2)
    Дом блочный, окна на две стороны, широкие подоконники Квартира теплая, но требует капитального ремонта. В шаговой доступности метро, остановки общественного транспорта, магазины, школы и детские сады. ID объекта в нашей базе: 6646
    размещено: 21.10.2025 , обновлено: 22.10.2025
  • 3-к квартира, Космонавтов, 91

    • 56 м2
    • 2/5 этаж
    • Состояние: хорошее
    3 890 000 ₽ (69500 ₽/м2)
    Квартира площадью 55 кв м на втором этаже четырехэтажного блочного дома. Квартира требует ремонта. Документы готовы, два взрослых собственника ID объекта в нашей базе: 6141
    размещено: 14.10.2025 , обновлено: 22.10.2025
  • 3-к квартира, Калинина, 11

    • 58.4 м2
    • 1/5 этаж
    • Состояние: плохое
    4 170 000 ₽ (71400 ₽/м2)
    В продаже трехкомнатная квартира 58 м.кв. Комнаты все изолированы. Квартира светлая, на две стороны. Во дворе детский сад. В 10 минутах ходьбы Метро Уралмаш и весь транспорт в другие районы города. Состояние квартиры под ремонт. Чистая продажа Один собственник с момента приватизации ID объекта в нашей базе: 6121
    размещено: 11.09.2025 , обновлено: 28.10.2025
  • 3-к квартира, Кузнецова, 7

    • 86 м2
    • 15/27 этаж
    • Состояние: удовлетворительное
    4 000 000 ₽ (46500 ₽/м2)
    Объект № 191032. Продам 1/3 долю в трёхкомнатной квартире на 15 этаже. ЖК Северное сияние. В подъезде два грузовых и два пассажирских лифта, закрытый двор. Магазины, больницы, общественный транспорт, школы, садики и другая инфраструктура в шаговой доступности. Звоните, вся информация по телефону. ***Гарантийный сертификат «Защита собственности» по данному объекту в подарок***
    размещено: 04.04.2025 , обновлено: 19.10.2025

Новостройки Екатеринбург, мкр-н. Уралмаш

Приоритет

Увеличивает просмотры в 3 раза

Ваше объявление показывается в списке выше обычных объявлений. подключить