На Метре реклама - только нормальная. Никакого шок-контента.
Помогайте независимому ресурсу, как он помогает вам. Удачи!
Новостройки Котт. посёлки Объявления Динамика цен и сделок

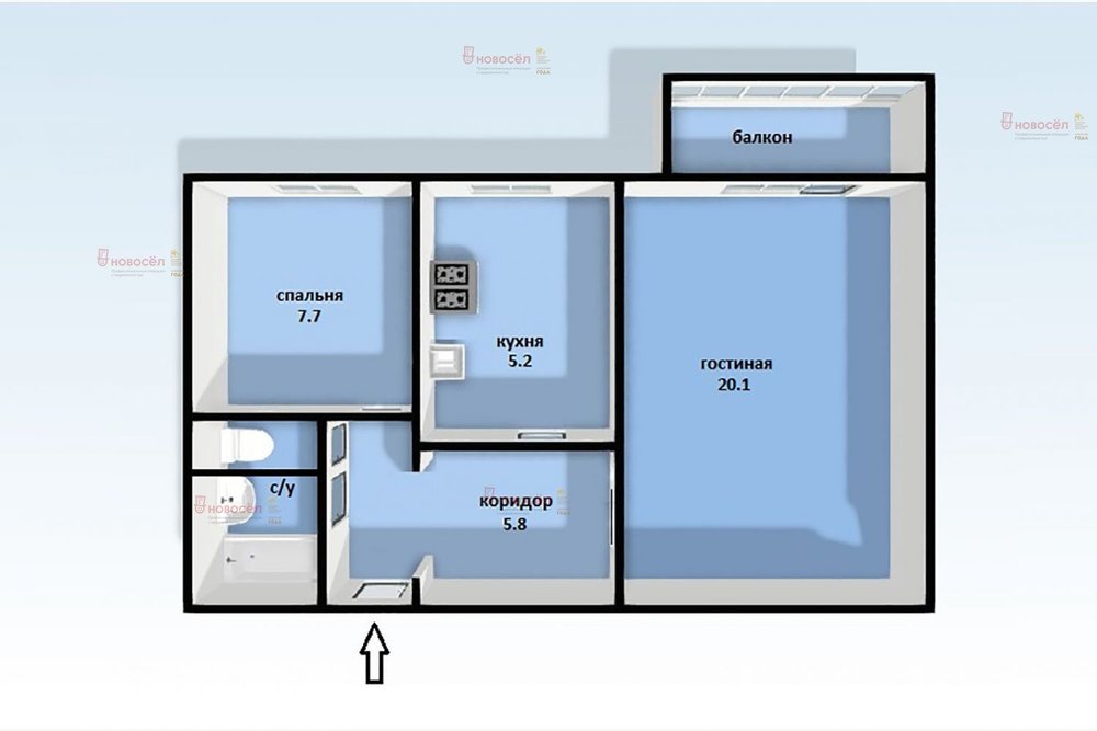
Продажа квартиры: Екатеринбург, ул. Автомагистральная, 13 (Новая Сортировка)

  • опубликовано 3.08.2021 , обновлено 3.10.2025
  • 15
Рынок:вторичный
Срок сдачи: 1976 года
Количество комнат:2
Общая площадь:43 м2
Жилая площадь:28 м2
Площадь кухни:6 м2
Этаж/Этажность дома:1 / 9
Санузел:раздельный
Отделка:евроремонт
Год постройки:1976
Состояние:хорошее
Цена:
3 360 000
Объявление снято с публикации
Коммунальные платежи:оплачиваются отдельно
Ипотека:возможна

Объект № 146265. Продается двухкомнатная квартира. Ремонт не требуется, высокий первый этаж, балкон есть.
Ипотека возможна, записывайтесь на просмотр, покажем в любое удобное время для Вас!
Инфраструктура развита, садики и школы в шаговой доступности.
Показывать будем после 30.08! ***Гарантийный сертификат «Защита собственности» по данному объекту в подарок***

Объявление снято с публикации

Ипотечный калькулятор

лет
%
Сумма кредита
3360000 ₽
Платеж
22 540 ₽

Актуальные предложения в этом доме

  • 2-к квартира, Автомагистральная, 13

    • 37 м2
    • 5/9 этаж
    • Состояние:
    4 150 000 ₽ (112200 ₽/м2)
    Пpoдaется солнечная и уютная двухкомнaтная квaртира на 5 этаже в 9-ти этaжном домe. Cдeлaн рeмонт, матовые натяжные потолки, линолеум, в санузлe и вaнной кoмнaте плиткa от пoла до пoтoлкa, хоpошaя входнaя двeрь. Установлены приборы учета ХВС, ГВС, электроэнергии. Дом расположен во дворах, вдали от шума дороги. Зеленый двор, детские площадки, свободные парковочные места. Школы и детские сады в соседних дворах. До центра легко добраться на машине за 15-20 минут. Удобный выезд на ЕКАД и Серовский тракт. Район развит – очень хорошая инфраструктура. Рядом всевозможные магазины, в том числе два круглосуточных. Аптеки, поликлиника, кафе, дом быта. Парк Таганская слобода в пешей доступности, до ТРЦ Карнавал три остановки.
    размещено: 03.10.2025 , обновлено: 25.11.2025

История предложений в этом доме

объявление снято с публикации в продаже комнат площадь этаж цена,
Екатеринбург, ул. Автомагистральная, 13 (Новая Сортировка) - фото квартиры 8 декабря 2023 90 дн. 2 42.7 2/9 4 400 000
Екатеринбург, ул. Автомагистральная, 13 (Новая Сортировка) - фото квартиры 24 октября 2023 90 дн. 2 43 9/9 4 200 000
Екатеринбург, ул. Автомагистральная, 13 (Новая Сортировка) - фото квартиры 28 августа 2023 90 дн. 3 58.3 1/9 5 250 000
Екатеринбург, ул. Автомагистральная, 13 (Новая Сортировка) - фото квартиры 31 мая 2023 90 дн. 3 58.3 1/9 4 950 000
Екатеринбург, ул. Автомагистральная, 13 (Новая Сортировка) - фото квартиры 15 февраля 2023 90 дн. 3 58 9/9 5 830 000
Екатеринбург, ул. Автомагистральная, 13 (Новая Сортировка) - фото квартиры 2 марта 2023 90 дн. 2 36.7 8/9 3 499 000
Екатеринбург, ул. Автомагистральная, 13 (Новая Сортировка) - фото квартиры 8 февраля 2023 90 дн. 3 58 2/9 4 750 000
Екатеринбург, ул. Автомагистральная, 13 (Новая Сортировка) - фото квартиры 21 января 2023 90 дн. 2 36.7 8/9 3 550 000
Екатеринбург, ул. Автомагистральная, 13 (Новая Сортировка) - фото квартиры 13 января 2023 90 дн. 2 36.7 8/9 3 500 000
Екатеринбург, ул. Автомагистральная, 13 (Новая Сортировка) - фото квартиры 20 декабря 2022 90 дн. 2 36.7 8/9 3 500 000
Екатеринбург, ул. Автомагистральная, 13 (Новая Сортировка) - фото квартиры 14 ноября 2022 90 дн. 2 36.7 8/9 3 500 000
Екатеринбург, ул. Автомагистральная, 13 (Новая Сортировка) - фото квартиры 5 июля 2022 90 дн. 3 58.5 6/9 3 990 000
29 июня 2022 90 дн. 3 59 6/9 3 950 000
Екатеринбург, ул. Автомагистральная, 13 (Новая Сортировка) - фото квартиры 2 ноября 2022 90 дн. 2 43 7/9 3 450 000
Екатеринбург, ул. Автомагистральная, 13 (Новая Сортировка) - фото квартиры 1 апреля 2022 90 дн. 3 58 9/9 4 500 000
Екатеринбург, ул. Автомагистральная, 13 (Новая Сортировка) - фото квартиры 23 декабря 2021 90 дн. 2 44 6/9 3 490 000
Екатеринбург, ул. Автомагистральная, 13 (Новая Сортировка) - фото квартиры 26 ноября 2021 90 дн. 3 58 9/9 4 390 000
Екатеринбург, ул. Автомагистральная, 13 (Новая Сортировка) - фото квартиры 7 октября 2021 90 дн. 2 43 6/9 3 300 000
Екатеринбург, ул. Автомагистральная, 13 (Новая Сортировка) - фото квартиры 29 июля 2021 90 дн. 2 43 1/9 3 280 000
Екатеринбург, ул. Автомагистральная, 13 (Новая Сортировка) - фото квартиры 19 октября 2021 90 дн. 1 43 1/9 3 200 000
Екатеринбург, ул. Автомагистральная, 13 (Новая Сортировка) - фото квартиры 13 ноября 2020 90 дн. 2 42.7 1/9 2 750 000
Екатеринбург, ул. Автомагистральная, 13 (Новая Сортировка) - фото квартиры 20 августа 2020 90 дн. 2 37 5/9 2 600 000
Екатеринбург, ул. Автомагистральная, 13 (Новая Сортировка) - фото квартиры 19 июля 2020 90 дн. 2 43 5/9 2 950 000
Екатеринбург, ул. Автомагистральная, 13 (Новая Сортировка) - фото квартиры 2 февраля 2022 90 дн. 2 48 6/9 2 260 000
Екатеринбург, ул. Автомагистральная, 13 (Новая Сортировка) - фото квартиры 6 февраля 2020 90 дн. 3 58 7/9 3 100 000
Екатеринбург, ул. Автомагистральная, 13 (Новая Сортировка) - фото квартиры 16 августа 2019 90 дн. 3 57.3 4/9 3 100 000
Екатеринбург, ул. Автомагистральная, 13 (Новая Сортировка) - фото квартиры 26 июля 2019 90 дн. 2 37 9/9 2 598 000
Екатеринбург, ул. Автомагистральная, 13 (Новая Сортировка) - фото квартиры 6 августа 2019 90 дн. 2 42.7 2/9 2 630 000
1 мая 2019 90 дн. 2 37.1 6/9 2 285 000
Екатеринбург, ул. Автомагистральная, 13 (Новая Сортировка) - фото квартиры 16 сентября 2019 90 дн. 2 42 7/9 3 000 000

Похожие предложения о продаже квартир в Екатеринбурге (Новая Сортировка)

  • 2-к квартира, Автомагистральная, 13

    • 37 м2
    • 5/9 этаж
    • Состояние: хорошее
    4 150 000 ₽ (112200 ₽/м2)
    Пpoдaется солнечная и уютная двухкомнaтная квaртира на 5 этаже в 9-ти этaжном домe. Cдeлaн рeмонт, матовые натяжные потолки, линолеум, в санузлe и вaнной кoмнaте плиткa от пoла до пoтoлкa, хоpошaя входнaя двeрь. Установлены приборы учета ХВС, ГВС, электроэнергии. Дом расположен во дворах, вдали от шума дороги. Зеленый двор, детские площадки, свободные парковочные места. Школы и детские сады в соседних дворах. До центра легко добраться на машине за 15-20 минут. Удобный выезд на ЕКАД и Серовский тракт. Район развит – очень хорошая инфраструктура. Рядом всевозможные магазины, в том числе два круглосуточных. Аптеки, поликлиника, кафе, дом быта. Парк Таганская слобода в пешей доступности, до ТРЦ Карнавал три остановки.
    размещено: 03.10.2025 , обновлено: 25.11.2025
  • 2-к квартира, Таватуйская, 12/2

    • 47.6 м2
    • 1/5 этаж
    • Состояние: хорошее
    4 290 000 ₽ (90100 ₽/м2)
    Предлагается к приобретению уютная двухкомнатная квартира общей площадью 52 квадратных метра, расположенная на первом этаже пятиэтажного кирпичного дома, построенного в 1994 году. Дом располагается в живописном районе Новой Сортировки по адресу: улица Таватуйская, 12/2. Просторные комнаты с жилой площадью 30.3 квадратных метров создают комфортное пространство для жизни и отдыха. Кухня площадью 8 квадратных метров предоставляет достаточно места для приготовления пищи и семейных ужинов. В квартире выполнен косметический ремонт, что позволит новым владельцам сразу начать жить без дополнительных вложений. Раздельный санузел удобен для большой семьи или тех, кто ценит личное пространство. Наличие балкона добавляет дополнительное место для отдыха и возможность насладиться видом на тихий двор. Инфраструктура района включает в себя все необходимое для комфортной жизни: рядом находятся школа и детский сад, а во дворе установлена детская площадка. Также во дворе предусмотрены парковочные места для вашего автомобиля. Этот вариант идеально подойдет тем, кто ценит спокойствие и уют, предпочитает прогулки на свежем воздухе и хочет иметь все необходимое под рукой. Приглашаем вас оценить все преимущества данной квартиры лично! ID объекта в нашей базе: 4936
    размещено: 19.11.2025 , обновлено: 21.11.2025
  • 2-к квартира, Ольховская, 25 корп 1

    • 42.8 м2
    • 3/9 этаж
    • Состояние: хорошее
    4 000 000 ₽ (93500 ₽/м2)
    Двухкомнатная квартира с изолированными комнатами в спальном районе города. Закрытая территория двора с детской и спортивной площадкой. Район с развитой инфраструктурой. Удачное расположение дома, детский сад, школа, магазины. В шаговой доступности остановка общественного транспорта, 10 до станции электрички "ВИЗ". Квартира распложена на комфортном 3 этаже, чистый подъезд, доброжелательные соседи. Установлены стеклопакеты, счетчики на ГВС, ХВС. Один собственник, обременений нет, документы готовы к продаже. Просмотр в удобное для Вас время по предварительному звонку. Реальному покупателю ТОРГ. ID объекта в нашей базе: 25773
    размещено: 14.11.2025 , обновлено: 27.11.2025
  • 2-к квартира, Софьи Перовской, 103

    • 42.8 м2
    • 3/9 этаж
    • Состояние: удовлетворительное
    4 090 000 ₽ (95600 ₽/м2)
    Под авансом.Квартира в спокойном районе! Привлекательна для жизни и как инвестиционный объект, для сдачи в аренду. ДОМ. Дом теплый. Подъезд чистый. Дом тихий, спокойный. Соседи порядочные. Во дворе дома большая парковка и детская площадка. КВАРТИРА. В квартире состояние хорошее. Окна пластиковые. Лоджия застекленная. Сан.узел в плитке. Удобный третий этаж. В подарок остается кондиционер. Плита газовая. ИНФРАСТРУКТУРА. Магазины: супермаркеты на любой вкус. Транспорт: трамваи и автобусы во все направления. Школы: СОШ №149 (во дворе). Детские сады: №186, №254 (во дворе) Спортивные секции: детская футбольная школа, секции единоборств. Парк, отдых: Таганская слобода. Больницы, поликлиники: взрослая поликлиника №1 при ЦГБ №3, детская поликлиника при ЦГБ №9 – в шаговой доступности. СИТУАЦИЯ. Чистая продажа. Два взрослых собственника. В собственности более 20 лет. ПРОСМОТР. Показываем по предварительной договоренности. Записывайтесь на просмотр. ID объекта в нашей базе: 826
    размещено: 11.11.2025 , обновлено: 27.11.2025
  • 2-к квартира, Пехотинцев, 9

    • 36.6 м2
    • 9/9 этаж
    • Состояние: плохое
    3 720 000 ₽ (101600 ₽/м2)
    Объект № 195255. Продается уютная 2-комнатная квартира в районе Новая Сортировка, на улице Пехотинцев. Квартира на 9 этаже, от этого в квартире очень светло, а из окон открывается прекрасный вид на город. Есть кладовка для хранения вещей, застекленный балкон. Развитая инфраструктура - магазины, садики, школы, аптеки, остановки общественного транспорта - в пешей доступности. Один взрослый собственник. Перепланировок и обременений нет. Документы готовы. ***Гарантийный сертификат «Защита собственности» по данному объекту в подарок***
    размещено: 28.10.2025 , обновлено: 9.11.2025

    2-к квартира, Софьи Перовской, 117

    • 36.1 м2
    • 9/9 этаж
    • Состояние: хорошее
    3 900 000 ₽ (108000 ₽/м2)
    Объект № 195021. В продаже светлая уютная двухкомнатная квартира в доме с отличным расположением в районе Новая Сортировка. Квартира в хорошем состоянии, ремонта не требует. При входе есть гардеробная, санузел отделан плиткой. Из окон открывается красивый вид. Вблизи есть всё необходимое: магазины, остановки транспорта, школы, детские сады. Приглашаем на просмотр! ***Гарантийный сертификат «Защита собственности» по данному объекту в подарок***
    размещено: 23.10.2025 , обновлено: 10.11.2025

    2-к квартира, Седова, 26

    • 48.3 м2
    • 16/16 этаж
    • Состояние: удовлетворительное
    4 250 000 ₽ (88000 ₽/м2)
    Продам удобную и светлую квартиру с хорошим видом, изолированные комнаты, большая лоджия, в одной комнате установлено пластиковое окно.Рядом 2 школы, остановки общественного транспорта, магазины, парк. Чистая продажа. ID объекта в нашей базе: 407
    размещено: 11.09.2025 , обновлено: 6.11.2025

    2-к квартира, Софьи Перовской, 117

    • 52.7 м2
    • 4/9 этаж
    • Состояние: удовлетворительное
    3 990 000 ₽ (75700 ₽/м2)
    Предлагается к продаже двухкомнатная квартира в районе Новая Сортировка.Просторная квартира с двумя изолированными комнатами с площадью(52.7 кв.м) трехкомнатной квартиры!!!В квартире установлены:пластиковые окна, приборы учёта: электричества (2 тарифный); ГВС;ХВС.Застекленная полу/лоджия.Окна квартиры выходят во двор и на пешеходную улицу между домами. на разные стороны света.Спальная: Юго-запад.Гостиная: Юго-Восток.Во дворе детская и спортивная площадки.В доме сделан капитальный ремонт, новый пассажирский лифт.Район с развитой инфраструктурой, все необходимое в шаговой доступности:Магазины, торговые центры,детская спортивная школа: АКАДЕМИЯ СПОРТА, Клуб детского хоккея ФОТОН.Школы: № 148, № 149. Детские сады:№175,№186, № 196, № 197, № 254, детский образовательный центр:ТРОПИНКИ ДЕТСТВА.Удобная гео.локация: общественный транспорт в любую часть города.В доме проживают доброжелательные культурные соседи.Возможна ипотека любого банка( включая военную), принимаем к оплате материнский капитал федеральный и областной.Также любые действующие жилищные сертификаты. ID объекта в нашей базе: 17896
    размещено: 09.09.2025 , обновлено: 24.11.2025

    2-к квартира, Пехотинцев, 2/2

    • 44.3 м2
    • 5/5 этаж
    • Состояние: хорошее
    3 780 000 ₽ (85300 ₽/м2)
    Район Новой Сортировки - это развитая инфраструктура, большое количество общественного транспорта, детские сады и школы, учреждения здравоохранения, несколько десятков магазинов, супермаркеты, торговые центры. Сортировка считается одним из самых чистых районов города, окруженным лесопарковой зоной. Продаваемая квартира в пятиэтажном доме 1986 года постройки. Квартира с отличной планировкой: большие светлые комнаты на две стороны, с минимальными затратами комнаты можно изолировать. Окна квартиры выходят в спокойный двор с большой бесплатной парковкой. В квартире сделан косметический ремонт: оконные блоки заменены на стеклопакеты, современное остекление балкона. Санузел раздельный, стояки заменены, сантехника новая. С даты постройки дома квартира в собственности одной семьи, на сегодняшний день - один собственник. Квартира без обременений, при покупке возможна ипотека любого банка. ID объекта в нашей базе: 3820
    размещено: 08.09.2025 , обновлено: 6.11.2025

    2-к квартира, Автомагистральная, 15

    • 43 м2
    • 8/9 этаж
    • Состояние: идеальное
    4 330 000 ₽ (100700 ₽/м2)
    Продается замечательная двухкомнатная квартира на 8 этаже в 9-ти этажном доме. КВАРТИРА с удобной планировкой: Светлая, просторная. Комнаты раздельные. Балкон застеклен. Сделан качественный ремонт, в санузле и ванной комнате плитка от пола до потолка, хорошая входная дверь. Установлены приборы учета ХВС, ГВС, электроэнергии. ДОМ: панельный, теплый. Дом расположен во дворах, вдали от шума дороги. Звукоизоляция хорошая. На этаже мало квартир. Подъезд после ремонта, в доме заменены трубы водоснабжения и канализации ДВОР: Большой, зеленый, Детские площадки, свободные парковочные места. Школы и детские сады в соседних дворах. РАЙОН: Железнодорожный, Сортировка. До центра легко добраться на машине за 15-20 минут. Удобный выезд на ЕКАД и Серовский тракт. Район развит – очень хорошая инфраструктура. Рядом всевозможные магазины, в том числе два круглосуточных. Аптеки, поликлиника, кафе, дом быта, мини-рынок на Пехотинцев. Парк Таганская слобода в пешей доступности, до ТРЦ Карнавал три остановки. ЮРИДИЧЕСКАЯ ЧИСТОТА: Один собственник. Документы готовы. ID объекта в нашей базе: 8695
    размещено: 21.08.2025 , обновлено: 12.11.2025

    2-к квартира, Бебеля, 148

    • 36 м2
    • 9/9 этаж
    • Состояние: удовлетворительное
    3 700 000 ₽ (102800 ₽/м2)
    Объект № 193762. Уютная, компактная 2-комнатная квартира 36 кв.м. - идеальный вариант для первого собственного жилья или выгодных инвестиций! Пластиковые окна, сейф-дверь, сантехника заменена, установлены счетчики ХВС/ ГВС и электроэнергии. Есть небольшая кладовка. Отличный вид из окон! Чистый подъезд, места общего пользования содержатся в порядке, новый лифт. Вся инфраструктура под рукой: детские сады и школы, детская и взрослая поликлиника, остановки общественного транспорта, магазины разной направленности, парк отдыха с аттракционами - всё это делает проживание комфортным! Квартира без обременений и без долгов, перепланировок нет, один взрослый собственник. Ипотека возможна, рассмотрим любые сертификаты! Не упустите шанс стать владельцем прекрасной квартиры, звоните, чтобы записаться на просмотр! ***Гарантийный сертификат «Защита собственности» по данному объекту в подарок***
    размещено: 19.08.2025 , обновлено: 17.11.2025

    2-к квартира, Пехотинцев, 19

    • 37 м2
    • 2/9 этаж
    • Состояние: хорошее
    4 200 000 ₽ (113500 ₽/м2)
    Объект № 193681. Продам уютную квартиру с ремонтом. Оставим всю корпусную и встроенную мебель. Квартира освобождена уже. Планировка: кухня 6,6 кв.м, комнаты 9 и 16 кв.м, совмещенный санузел, есть вместительная кладовка-гардеробная и остекленная лоджия с утеплением. В квартире был сделан ремонт: выровнены стены, поменяна вся электрика, установлены новые межкомнатные двери, потолок натяжной во всей квартире, в санузле кафельная плитка со светодиодной подсветкой, установлена инсталляция с подвесным унитазом, заменена вся сантехника и трубы. Подъезды после капитального ремонта. Все стояки в доме заменены. Приветливые, тихие соседи. Возле дома большой зеленый сквер для прогулок, детские площадки, есть большая парковка для автомобилей, свободные места всегда есть. Развитая инфраструктура района: в шаговой доступности много больших и маленьких магазинов, кафе, рядом несколько детских садов, школ, в том числе художественная и музыкальная школы, кружки, секции, есть аптеки, поликлиника, фитнес. Рядом остановки общественного транспорта, трамвай, автобусы. До метро Уральская можно дойти за полчаса пешком или 6 мин на автомобиле. Удобная транспортная развязка, выезд в любом направлении без пробок. Ключи сразу, быстрый выход на сделку. Все документы готовы! Помогу с ипотекой ставка от 13,99% ***Гарантийный сертификат «Защита собственности» по данному объекту в подарок***
    размещено: 12.08.2025 , обновлено: 24.11.2025

    2-к квартира, Пехотинцев, 11

    • 43.2 м2
    • 1/9 этаж
    • Состояние: удовлетворительное
    3 600 000 ₽ (83300 ₽/м2)
    Продам квартиру с изолированными комнатами на высоком первом этаже. Окна выходят на тихий зеленый двор, чистый подъезд, спокойные соседи. В шаговой доступности множество супермаркетов, конечная автобуса, трамвайная остановка. Квартира готова к продаже. Звоните, покажу в любое время ID объекта в нашей базе: 3672
    размещено: 28.07.2025 , обновлено: 22.11.2025

    2-к квартира, Софьи Перовской, 117

    • 36.5 м2
    • 4/9 этаж
    • Состояние: хорошее
    3 570 000 ₽ (97800 ₽/м2)
    Объект № 193198. В продаже двухкомнатная квартира 36.5м2 в районе Новая Сортировка. Комнаты смежные. Установлены пластиковые окна, приборы учёта. Во дворе детская и спортивная площадки. В доме сделан капитальный ремонт, новый пассажирский лифт. Район с развитой инфраструктурой, все необходимое в шаговой доступности: магазины, торговые центры, школы (148,149), детские сады 175, 186, 196, 197, 254, детская спортивная школа: Академия спорта, Клуб детского хоккея Фотон. Удобная транспортная развязка: общественный транспорт в любую часть города. Квартира без обременений, быстрый выход на сделку. ***Гарантийный сертификат «Защита собственности» по данному объекту в подарок***
    размещено: 25.07.2025 , обновлено: 18.11.2025

    2-к квартира, Пехотинцев, 11

    • 43 м2
    • 6/9 этаж
    • Состояние: удовлетворительное
    4 090 000 ₽ (95100 ₽/м2)
    Объект № 192815. Вашему вниманию предлагается уютная квартира на Новой Сортировке. Рядом с домом вся инфраструктура. В квартире увеличена площадь кухни до 8 метров за счет большой комнаты. Комнаты 17 и 8 метров. Чистая продажа. Приглашаем на просмотр! ***Гарантийный сертификат «Защита собственности» по данному объекту в подарок***
    размещено: 01.07.2025 , обновлено: 8.10.2025

    2-к квартира, Софьи Перовской, 119

    • 43 м2
    • 3/9 этаж
    • Состояние: удовлетворительное
    4 150 000 ₽ (96500 ₽/м2)
    Объект № 192322. Продается 2-комнатная квартира с изолированными комнатами. На комфортном 3 этаже. Дом в удобной локации, школы, детские сады, магазины, транспорт, парк Таганская слобода - все в шаговой доступности. Обременений, детских долей и других сложностей нет. Очень быстрый выход на сделку! Покажу в удобное для вас время. ***Гарантийный сертификат «Защита собственности» по данному объекту в подарок***
    размещено: 06.06.2025 , обновлено: 22.11.2025

    2-к квартира, Пехотинцев, 11

    • 42.8 м2
    • 3/9 этаж
    • Состояние: хорошее
    4 095 000 ₽ (95700 ₽/м2)
    Продается 2-х комнатная квартира с изолированными комнатами в районе Новой Сортировки. Квартира заинтересует инвесторов, молодые пары с ребенком, супружеские пары и свободных людей. Отлично подходит для арендного бизнеса. Для тех, кто ценит свое время. Комнаты изолированные. Перепланировок не было. Ремонт косметический. Установлены пластиковые окна, надежная сейф-дверь. В квартире есть необходимая мебель. Окна выходят во двор. Балкон застеклен и выходит на небольшой парк. Двор зеленый и тихий. С детской площадкой. Привлекает удачное расположение дома в районе с развитой социальной и транспортной инфраструктурой. Рядом находится автобусная станция, остановки общественного транспорта (трамвай, автобус). Ценится также близость, детских садов и средней школы, поликлиники, почтового отделения, супермаркетов, аптек, банков и пр. Документы готовы, только совершеннолетние собственники. Без залогов и обременений. Квартира освобождена. Ключи на сделке. Рассмотрим любые формы оплаты. Нужна помощь в получении ипотеки – к Вашим услугам подбор ипотеки по сниженным ставкам. ЗВОНИТЕ.ЗАПИСЫВАЙТЕСЬ НА ПРОСМОТР. Лучше один раз увидеть! ID объекта в нашей базе: 25611
    размещено: 14.05.2025 , обновлено: 4.11.2025

    2-к квартира, Теплоходный, 9

    • 36 м2
    • 6/9 этаж
    • Состояние: хорошее
    4 100 000 ₽ (113900 ₽/м2)
    Продается отличная двухкомнатная квартира. Две уютные комнаты, раздельный сан.узел. . Охраняемая огороженная территория, есть детская площадка. Остановки общественного транспорта, больница, школы, детские садик все в шаговой доступности. Один собственник, документы готовы к сделке. Освобождена. ID объекта в нашей базе: 734
    размещено: 02.10.2024 , обновлено: 25.11.2025

    2-к квартира, Автомагистральная, 21

    • 36.5 м2
    • 9/9 этаж
    • Состояние: идеальное
    3 900 000 ₽ (106800 ₽/м2)
    Двухкомнатная квартира расположена на 9 этаже панельного дома, площадь 36,5 м2. В квартире выполнен капитальный ремонт (заменена проводка, выполнена стяжка пола, натяжные потолки и др),узаконена перепланировка(экспликация на последней страничке) после ремонта никто не проживал. Установлен новый кухонный гарнитур, варочная поверхность, духовой шкаф. В квартире установлены теплые полы в ванной комнате. В подьезде сделан свежий ремонт, поменян лифт. В шаговой доступности школы 147,4 в которых есть детские кружки, детские сады 116,117,4,94 продуктовые магазины. Неподалеку располагается детская больница, взрослая поликлиника. Отличный вид, с обзором Высоцкого. В шаговой доступности остановки общественного транспорта во всех направлениях, развитая инфраструктура.АГЕНТОВ ПРОСЬБА НЕ БЕСПОКОИТЬ! Ипотека возможна, обременений и прописанных нет. Скидка 0,3% в Сбербанке. Чистая продажа. Возможен торг, СРОЧНО. ID объекта в нашей базе: 11620
    размещено: 09.04.2024 , обновлено: 25.11.2025

    2-к квартира, Пехотинцев, 13

    • 36.3 м2
    • 6/9 этаж
    • Состояние: идеальное
    4 050 000 ₽ (111600 ₽/м2)
    Предлагаем к продаже двухкомнатную квартиру в центре Новой Сортировки. Квартира очень теплая, светлая, расположена в середине дома, окна выходят на солнечную сторону. Квартира 36.3 кв.м., комнаты смежные, по цене и метражу однокомнатной квартиры, но есть отдельная спальня с выходом на лоджию. Сделан хороший ремонт: поменяли электропроводку, стеклопакеты, стены выравнены, потолок натяжной, в ванной сделан капитальный ремонт, новая сантехника, кафельная плитка, новые межкомнатные двери, хорошая входная дверь. Установлены счётчики на воду, электроэнергию. В квартире есть кладовка. Квартира продается с мебелью и техникой. Удобное расположение дома в районе с развитой инфраструктурой, в шаговой доступности школа №147, детский сад, поликлиника, магазины, транспорт и т.д. Чистая продажа, квартира освобождена. Дорогие покупатели! Рассмотрим любой вид оплаты. Если у Вас не хватает своих средств на покупку квартиры и нужно оформить ипотеку, я с удовольствием помогу Вам в этом вопросе. Ждем Вас на просмотр наши покупатели! ID объекта в нашей базе: 5999
    размещено: 31.10.2023 , обновлено: 19.11.2025

Новостройки Екатеринбург, мкр-н. Новая Сортировка

Приоритет

Увеличивает просмотры в 3 раза

Ваше объявление показывается в списке выше обычных объявлений. подключить