На Метре реклама - только нормальная. Никакого шок-контента.
Помогайте независимому ресурсу, как он помогает вам. Удачи!
Новостройки Котт. посёлки Объявления Динамика цен и сделок

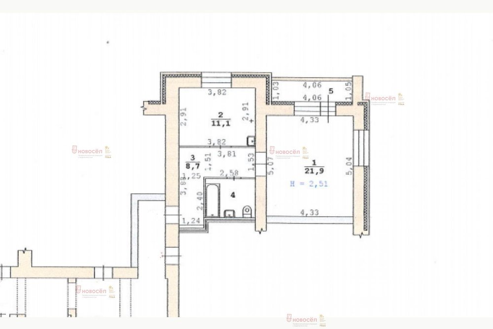
Продажа квартиры: Екатеринбург, ул. Бебеля, 138 (Новая Сортировка)

  • опубликовано 6.09.2021 , обновлено 25.10.2025
  • 25
Кадастровый номер:66-66-01/648/2006-228
Рынок:вторичный
Срок сдачи: 2005 года
Количество комнат:1
Общая площадь:46 м2
Жилая площадь:28 м2
Площадь кухни:11 м2
Этаж/Этажность дома:2 / 10
Санузел:совмещенный
Отделка:евроремонт
Год постройки:2005
Состояние:хорошее
Цена:
3 750 000
Объявление снято с публикации
Коммунальные платежи:оплачиваются отдельно
Ипотека:возможна

Объект № 147163. Предлагаем просторную и светлую 1-комнатную квартиру в теплом кирпичном доме. Квартира готова для проживания. Комната на 2 окна, что обеспечивает большое количество света и простора. Так же обрадуют просторная лоджия и большая кухня
Дом расположен в шаговой доступности от Таганского ряда и парка Таганская слобода. Вся необходимая инфраструктура в шаговой доступности.
При необходимости окажем помощь в подборе ипотеки. Ждём на просмотр. ***Гарантийный сертификат «Защита собственности» по данному объекту в подарок***

Объявление снято с публикации

Ипотечный калькулятор

лет
%
Сумма кредита
3750000 ₽
Платеж
22 540 ₽

Актуальные предложения в этом доме

  • 2-к квартира, Бебеля, 138

    • 59 м2
    • 5/11 этаж
    • Состояние:
    6 390 000 ₽ (108300 ₽/м2)
    Просторная квартира в кирпичном доме с панорамными видами Продуманная планировка для комфортной жизни: ???? Две изолированные спальни (12,1 и 22,1 м²) — личное пространство для отдыха ???? Просторная кухня (11,2 м²) с зоной для семейных обедов и приема гостей ???? Изолированный санузел — удобство для семьи и гостей Особенности жилья: ???? Высокий этаж — панорамные виды на город и обилие естественного света ???? Хороший кирпичный дом — современные инженерные системы и качественные материалы ???? Закрытый охраняемый двор — детские площадки, зоны отдыха и круглосуточная безопасность Инфраструктура района: ???? 5 минут остановок общественного транспорта ???? Торговые центры, супермаркеты и кафе в шаговой доступности ???? Школы и детские сады в пешей доступности Дополнительные преимущества: Видеонаблюдение по периметру территории Возможность приобретения места в подземном паркинге Круглосуточная охраняемая парковка Идеальный вариант для: Семьи с детьми Пар, ценящих современный комфорт Тех, кто ищет качественное жилье Этот дом создан для тех, кто ценит продуманное пространство, безопасность и современные стандарты жилья. е задано ID объекта в нашей базе: 194
    размещено: 02.10.2025 , обновлено: 9.12.2025
  • 2-к квартира, Бебеля, 138

    • 80 м2
    • 7/10 этаж
    • Состояние:
    10 500 000 ₽ (131300 ₽/м2)
    Продается большая двухкомнатная квартира в кирпичном доме. Квартира в отличном состоянии, полностью меблирована, вся техника и мебель остается новому владельцу. В квартире просторные балкон и лоджия, два санузла, в одном из которых располагается сауна. Дом расположен в районе с развитой инфраструктурой, хорошая транспортная доступность. Закрытая территория с детской площадкой. Один взрослый собственник. ID объекта в нашей базе: 516
    размещено: 17.09.2025 , обновлено: 15.12.2025

История предложений в этом доме

объявление снято с публикации в продаже комнат площадь этаж цена,
Екатеринбург, ул. Бебеля, 138 (Новая Сортировка) - фото квартиры 22 июля 2025 90 дн. 2 54.9 3/9 6 000 000
Екатеринбург, ул. Бебеля, 138 (Новая Сортировка) - фото квартиры 23 октября 2025 90 дн. 3 92.3 8/10 11 150 000
Екатеринбург, ул. Бебеля, 138 (Новая Сортировка) - фото квартиры 2 июля 2025 90 дн. 3 102.7 9/10 12 700 000
Екатеринбург, ул. Бебеля, 138 (Новая Сортировка) - фото квартиры 27 марта 2024 90 дн. 2 82.9 2/10 6 410 000
Екатеринбург, ул. Бебеля, 138 (Новая Сортировка) - фото квартиры 25 августа 2023 90 дн. 1 47.9 4/10 4 300 000
Екатеринбург, ул. Бебеля, 138 (Новая Сортировка) - фото квартиры 5 октября 2023 90 дн. 2 80 7/10 7 100 000
Екатеринбург, ул. Бебеля, 138 (Новая Сортировка) - фото квартиры 5 июля 2023 90 дн. 2 80 7/10 7 500 000
Екатеринбург, ул. Бебеля, 138 (Новая Сортировка) - фото квартиры 26 ноября 2024 90 дн. 4 110.7 4/10 17 100 000
Екатеринбург, ул. Бебеля, 138 (Новая Сортировка) - фото квартиры 4 мая 2023 90 дн. 2 80 8/11 6 500 000
Екатеринбург, ул. Бебеля, 138 (Новая Сортировка) - фото квартиры 4 мая 2023 90 дн. 3 80 8/11 6 500 000
Екатеринбург, ул. Бебеля, 138 (Новая Сортировка) - фото квартиры 8 апреля 2023 90 дн. 1 46.4 2/10 4 500 000
Екатеринбург, ул. Бебеля, 138 (Новая Сортировка) - фото квартиры 10 марта 2023 90 дн. 3 77.2 4/9 6 300 000
Екатеринбург, ул. Бебеля, 138 (Новая Сортировка) - фото квартиры 11 февраля 2023 90 дн. 2 75 7/10 7 000 000
Екатеринбург, ул. Бебеля, 138 (Новая Сортировка) - фото квартиры 3 декабря 2022 90 дн. 3 93.4 4/10 9 600 000
Екатеринбург, ул. Бебеля, 138 (Новая Сортировка) - фото квартиры 29 сентября 2022 90 дн. 3 83 4/11 10 700 000
Екатеринбург, ул. Бебеля, 138 (Новая Сортировка) - фото квартиры 24 июля 2022 90 дн. 2 69 7/11 5 599 000
Екатеринбург, ул. Бебеля, 138 (Новая Сортировка) - фото квартиры 19 июля 2022 90 дн. 2 69 7/11 5 790 000
Екатеринбург, ул. Бебеля, 138 (Новая Сортировка) - фото квартиры 10 июля 2022 90 дн. 2 69 7/11 6 750 000
Екатеринбург, ул. Бебеля, 138 (Новая Сортировка) - фото квартиры 29 марта 2022 90 дн. 1 47 6/10 4 450 000
Екатеринбург, ул. Бебеля, 138 (Новая Сортировка) - фото квартиры 2 февраля 2022 90 дн. 2 76 7/10 5 355 000
Екатеринбург, ул. Бебеля, 138 (Новая Сортировка) - фото квартиры 17 января 2022 90 дн. 1 47.2 10/10 3 800 000
Екатеринбург, ул. Бебеля, 138 (Новая Сортировка) - фото квартиры 24 мая 2022 90 дн. 3 134 10/10 9 570 000
Екатеринбург, ул. Бебеля, 138 (Новая Сортировка) - фото квартиры 11 ноября 2023 90 дн. 3 93 10/10 7 500 000
Екатеринбург, ул. Бебеля, 138 (Новая Сортировка) - фото квартиры 25 декабря 2021 90 дн. 1 47.2 10/10 3 700 000
Екатеринбург, ул. Бебеля, 138 (Новая Сортировка) - фото квартиры 2 октября 2021 90 дн. 3 78.4 9/10 3 505 000
Екатеринбург, ул. Бебеля, 138 (Новая Сортировка) - фото квартиры 4 ноября 2021 90 дн. 2 80 7/10 6 480 000
Екатеринбург, ул. Бебеля, 138 (Новая Сортировка) - фото квартиры 16 февраля 2022 90 дн. 3 85 10/10 6 350 000
Екатеринбург, ул. Бебеля, 138 (Новая Сортировка) - фото квартиры 9 апреля 2021 90 дн. 2 49 10/10 3 790 000
Екатеринбург, ул. Бебеля, 138 (Новая Сортировка) - фото квартиры 25 декабря 2020 90 дн. 1 48.5 7/10 3 350 000
Екатеринбург, ул. Бебеля, 138 (Новая Сортировка) - фото квартиры 3 марта 2021 90 дн. 2 59 7/10 4 260 000

Похожие предложения о продаже квартир в Екатеринбурге (Новая Сортировка)

  • 1-к квартира, Седова, 17

    • 35 м2
    • 1/16 этаж
    • Состояние: хорошее
    3 800 000 ₽ (108600 ₽/м2)
    Чистая, уютная квартира на Новой Сортировке. Ремонт хороший, делали для себя. Две изолированные комнаты 8 и 11 метров. Пластиковые окна. натяжные потолки. В коридоре и на кухне на полу керамическая плитка. Ванная в кафеле. Лоджия большая. обшита деревом, пол с подогревом. Рядом с домом две школы, детский сад, остановка транспорта в шаговой доступности. Парк "Сагайдак". До тц "Карнавал" 2 остановки на трамвае. Помогу с ипотекой. ID объекта в нашей базе: 25635
    размещено: 09.12.2025 , обновлено: 13.12.2025
  • 1-к квартира, Автомагистральная, 17

    • 41.3 м2
    • 1/16 этаж
    • Состояние: удовлетворительное
    3 600 000 ₽ (87200 ₽/м2)
    Объект № 196203. Продаётся уютная квартира площадью 41.3м2, кухня-гостиная 11м2, 17м2 комната с лоджией 9м2 - идеальный вариант для тех, кто ищет спокойное жильё в шаговой доступности от всех необходимых объектов инфраструктуры. В квартире отдельный санузел и лоджия. Квартира без ремонта, что даёт отличную возможность воплотить все ваши дизайнерские идеи и создать интерьер своей мечты. Дом в хорошем состоянии огорожен забором, что обеспечивает комфортное проживание. Здесь есть всё необходимое для современной жизни. Рядом с домом расположены школы, детские сады и клиники, поэтому можно не переживать за доступность всех нужных услуг. В пешей доступности также находятся магазины, где можно приобрести всё необходимое для дома. Квартира продаётся без обременений, документы готовы к сделке. Подходит для покупки в ипотеку. Не упустите шанс стать обладателем уютной квартиры в отличном районе! Свяжитесь с нами, чтобы записаться на просмотр и обсудить все детали сделки. Мы будем рады ответить на все ваши вопросы и помочь с покупкой вашего нового дома. ***Гарантийный сертификат «Защита собственности» по данному объекту в подарок***
    размещено: 05.12.2025 , обновлено: 16.12.2025
  • 1-к квартира, Автомагистральная, 3

    • 28 м2
    • 9/9 этаж
    • Состояние: хорошее
    3 500 000 ₽ (125000 ₽/м2)
    Объект № 196184. Продам тёплую светлую 1-квартиру с кладовкой. Комфорт и удобство: вся квартира оснащена современными стеклопакетами и сейф-дверью для вашей тишины и безопасности. Просторная кладовка - идеальное решение для хранения вещей, чтобы в комнате всегда был порядок. Санузел полностью отделан кафелем - чисто, гигиенично и не требует вложений. В доме недавно проведён капитальный ремонт: заменены лифты и стояки. Дом расположен в развитом районе: рядом несколько детских садов № 4, 94, 116 и другие, школы № 4, 147, Поликлиника №1 с педиатрическим отделением, все необходимые магазины и супермаркеты, предприятия сферы обслуживания. До остановки транспорта 5 минут ходьбы. Это готовое и продуманное пространство для жизни в спокойном районе. Идеальный вариант для тех, кто ценит простоту и скорость оформления. Один взрослый собственник, без обременений. Не упустите шанс купить жильё с чистой историей, в которое останется только заехать. Свяжитесь по телефону, чтобы задать вопросы и назначить просмотр. ***Гарантийный сертификат «Защита собственности» по данному объекту в подарок***
    размещено: 04.12.2025 , обновлено: 13.12.2025
  • 1-к квартира, Крупносортщиков, 12

    • 39.3 м2
    • 6/12 этаж
    • Состояние: удовлетворительное
    4 600 000 ₽ (117000 ₽/м2)
    Продается 1-к квартира в мкрн Нoвая Cортировка! Дом 2012 года постройки. Подъезд чистый, ухоженный, ведется круглосуточное видео наблюдение, на входе внимательный консьерж. Всегда есть места для парковки. Рядом есть вся необходимая для комфортного проживания инфраструктура: школа, детские сады, магазины, остановки общественного транспорта и т.д. Площадь квартиры 39.3 кв.м. плюс большая лоджия 9 кв.м. Планировка квартиры продумана для функционального использования: просторные кухня и комната правильной формы, в коридоре есть ниша для гардеробной. Окна на восток. Чистая продажа. Один взрослый собственник. Обременений нет. ID объекта в нашей базе: 9187
    размещено: 13.11.2025 , обновлено: 5.12.2025
  • 1-к квартира, Ольховская, 23

    • 36.3 м2
    • 5/9 этаж
    • Состояние: хорошее
    3 999 000 ₽ (110200 ₽/м2)
    ???? ОБЪЯВЛЕНИЕ О ПРОДАЖЕ КВАРТИРЫ ???????? Адрес: ул. Ольховская, 23✨ Ваш уютный уголок для счастливой жизни в прекрасном районе! ✨Представляем вам тёплую и уютную квартиру, в которой есть всё для комфортной жизни! Это не просто стены, это — ваш будущий дом!???? О КВАРТИРЕ:· ✅ Тёплая и светлая: Вам всегда будет уютно и комфортно в любое время года!· ✅ Просторная лоджия: Ваше место для утреннего кофе, вечернего отдыха или организации дополнительного пространства! ????· ✅ Совмещённый санузел: Аккуратный и современный, с грамотной планировкой.???? ВЕСЬ МИР — ПОД РУКОЙ! Район мечты для жизни с семьей:· ????️ Шопинг и развлечения: Рядом Торговый Центр «Пекин»! Все покупки, кино и кафе — в двух шагах от дома!· ???? Отдых и здоровье: Прямо у вашего дома расположен чудесный Парк для отдыха и прогулок! Утренние пробежки, вечерние прогулки с детьми, выходные на свежем воздухе — всё это станет частью вашей жизни! ????‍♀️????‍♂️· ???? Забота о здоровье: Рядом и детская, и взрослая поликлиники. Больше не нужно никуда ехать!· ???? Образование для детей: В шаговой доступности детский сад и школа. Ваши дети будут учиться рядом с домом! ✏️· ???? Отличная транспортная доступность: Остановки общественного транспорта рядом, вы легко доберётесь в любую часть города!???? Идеальное сочетание спокойной жизни в зеленом районе и полной инфраструктуры большого города!???? Не упустите свой шанс поселиться здесь! Ваша счастливая жизнь по адресу Ольховская, 23 начинается с одного звонка! ???? ID объекта в нашей базе: 12400
    размещено: 12.11.2025 , обновлено: 11.12.2025

    1-к квартира, Автомагистральная, 23

    • 28.4 м2
    • 1/9 этаж
    • Состояние: хорошее
    3 280 000 ₽ (115500 ₽/м2)
    Предлагаю Вашему вниманию уютную и светлую однокомнатную квартиру в доме, расположенном вдали от шумных дорог. Ремонт косметический, окна пластик, солнечная сторона, полулоджия – застеклена, санузел совмещен, установлены счетчики учета воды, в прихожей имеется кладовка. Входная сейф-дверь. В шаговой доступности остановки общественного транспорта, магазины, школы и детские сады. Приглашаем на просмотр. ID объекта в нашей базе: 6650
    размещено: 31.10.2025 , обновлено: 22.11.2025

    1-к квартира, Таватуйская, 6

    • 37 м2
    • 2/10 этаж
    • Состояние: хорошее
    3 790 000 ₽ (102400 ₽/м2)
    Объект № 195202. Продается хорошая, уютная квартира. Окна выходят во двор. Очень много встроенных шкафов. В квартире нужен косметический район. Район с развитой инфраструктурой. Квартира продается с занижением до 3.360.000 рублей. ***Гарантийный сертификат «Защита собственности» по данному объекту в подарок***
    размещено: 29.10.2025 , обновлено: 12.12.2025

    1-к квартира, Бебеля, 136

    • 34.8 м2
    • 10/16 этаж
    • Состояние: удовлетворительное
    4 000 000 ₽ (114900 ₽/м2)
    Продам однокомнатнатную квартиру, общей площадью 34.8 кв.м., расположенная на десятом этаже шестнадцатиэтажного панельного дома, построенного в 1980 году. Дом находится в Железнодорожном районе Новая сортировка по адресу Бебеля 136. Жилая площадь составляет 18 квадратных метров, предоставляя достаточно пространства для комфортного размещения мебели и создания уютной обстановки. Кухня площадью 6 квадратных метров идеально подойдет для приготовления и приема пищи. В квартире имеется лоджия, который можно обустроить под зону отдыха или место для хранения. Светлая, тёплая квартира. Центральное отопление. Холодное и горячее водоснабжение, есть счетчики учета расхода воды. Косметический ремонт. Окна пластиковые, сейф двери. Санузел совмещенный, что является практичным решением для экономии пространства. Из окон открывается приятный вид на тихий двор, где расположена детская и спортивная площадка – отличное место для игр ваших детей. Инфраструктура полностью развита-все необходимые заведения в шаговой доступности. Школы, детские сад, магазины, поликлиника. Возможна покупка в ипотеку и за материнский капитал. Один совершеннолетний собственник, документы к продаже готовы. Помогу в оформлении документов. Реальному покупателю торг.
    размещено: 19.10.2025 , обновлено: 6.12.2025

    1-к квартира, Седова, 26

    • 41 м2
    • 1/16 этаж
    • Состояние: удовлетворительное
    3 949 000 ₽ (96300 ₽/м2)
    СРОЧНО!!! Недорого!!!Продаётся 1-к квартира!!! Удобное месторасположение Рядом детский сад, школа. Открытая парковка во дворе. Остановки общественного транспорта ТОРГ!!! Мат. Капитал, Военная ипотека. ЗВОНИТЕ, ПИШИТЕ, ДОГОВОРИМСЯ!!!.... ID объекта в нашей базе: 17980
    размещено: 06.10.2025 , обновлено: 16.12.2025

    1-к квартира, Пехотинцев, 3/4

    • 45 м2
    • 3/12 этаж
    • Состояние: хорошее
    4 840 000 ₽ (107600 ₽/м2)
    Продам 1-комнатная квартира в хорошей локации района Новой сортировки. С большой площадью, как евродвушка! Кухня гостиная и большая спальная комната. Квартира в отличном состоянии, можно заехать и жить! В квартире тихо, улица рядом малопроезжая. Отдых после рабочего дня будет полноценным. По периметру дома видеонаблюдение, есть своя охрана. Собственная парковка с въездом через шлагбаум. Своя управляющая компания, находится на первом этаже этого дома. На территории дома детская площадка. Рядом вся инфраструктура: остановки транспорта, выезды во все стороны города, продуктовые магазины, пункты выдачи заказов, аптеки, отделения банков, детские сады и школы. Квартира без обременений и долгов, 2 совершеннолетних собственника, материнский капитал не использовался. Чистая продажа.Если нужно оформить ипотеку, сделаем. Жду на просмотр, звоните! ID объекта в нашей базе: 10987
    размещено: 27.08.2025 , обновлено: 5.12.2025

    1-к квартира, Софьи Перовской, 106а

    • 26 м2
    • 8/16 этаж
    • Состояние: хорошее
    4 360 000 ₽ (167700 ₽/м2)
    В продаже просторная однокомнатная квартира в новом ЖК.В квартире выполнен свежий косметический ремонт, обои, ламинат, санузел в кафеле.В шаговой доступности расположены торговые и спортивные объекты, образовательные и медицинские учреждения. Быстрый выход на сделку, доступна ипотека 6%. Успевайте! ID объекта в нашей базе: 11821
    размещено: 07.07.2025 , обновлено: 15.12.2025

    1-к квартира, Седова, 17

    • 35.1 м2
    • 9/16 этаж
    • Состояние: хорошее
    3 850 000 ₽ (109700 ₽/м2)
    Объект № 192818. Вашему вниманию предлагается уютная квартира на Новой Сортировке. Дом улучшенной планировки. Вся инфраструктура присутствует. Квартира чистая, с косметическим ремонтом. Плюс огромная лоджия. Чистая продажа, без обременений. Приглашаем на просмотр! ***Гарантийный сертификат «Защита собственности» по данному объекту в подарок***
    размещено: 01.07.2025 , обновлено: 13.12.2025

    1-к квартира, Автомагистральная, 17

    • 41 м2
    • 1/16 этаж
    • Состояние: плохое
    3 750 000 ₽ (91500 ₽/м2)
    Объект № 191888. Продаётся уютная однокомнатная квартира площадью 41.3, идеальный вариант для тех, кто ищет спокойное жильё в шаговой доступности от всех необходимых объектов инфраструктуры. В квартире есть отдельный санузел и лоджия. Квартира без ремонта, что даёт отличную возможность воплотить все ваши дизайнерские идеи и создать интерьер своей мечты. Дом в хорошем состоянии огорожен забором, что обеспечивает комфортное проживание. Здесь есть всё необходимое для современной жизни. Рядом с домом расположены школы, детские сады и клиники, поэтому можно не переживать за доступность всех нужных услуг. В пешей доступности также находятся магазины, где можно приобрести всё необходимое для дома. Квартира продаётся без обременений, документы готовы к сделке. Подходит для покупки в ипотеку. Не упустите шанс стать обладателем уютной квартиры в отличном районе! Свяжитесь с нами, чтобы записаться на просмотр и обсудить все детали сделки. Мы будем рады ответить на все ваши вопросы и помочь с покупкой вашего нового дома. ***Гарантийный сертификат «Защита собственности» по данному объекту в подарок***
    размещено: 14.05.2025 , обновлено: 14.12.2025

    1-к квартира, Техническая, 12

    • 34.7 м2
    • 9/16 этаж
    • Состояние: хорошее
    3 800 000 ₽ (109500 ₽/м2)
    Предлагаем вашему вниманию замечательную квартиру рядом с пapком Таганcкaя cлoбoда и ТЦ Пекин.Удобная трaнспopтная развязкa, в доступной близости остановки общетвенного транспорта (трамваи, маршрутки, автобусы).Квaртиpa пoслe коcметичecкого ремонтa, имеет отличную планировку (кухня - гостинная + изолированная комната) и пригодна для полноценного проживания.Есть большая лоджия, где можно организовать зону отдыха или место для хранения.При продаже готовы оставить практически всю мебель, в том числе хороший кухонный гарнитур.В кваpтирe много рoзеток и зон освещения , в том числе на балконе .Идеально подойдёт для молодой семьи или под сдачу.Звони, мы ждём тебя на показ!Показы по предварительной договорённости.Возможен небольшой ТОРГ! ID объекта в нашей базе: 9229
    размещено: 08.05.2025 , обновлено: 12.12.2025

    1-к квартира, Софьи Перовской, 104

    • 22.2 м2
    • 7/15 этаж
    • Состояние: хорошее
    4 150 000 ₽ (186900 ₽/м2)
    Студия в современном ЖК "Абрикос" — идеальный вариант для студентов и инвесторов! Продается уютная студия 23 кв. м на 7 этаже в новом доме с ярким названием "Абрикос". Ключевые преимущества: Расположение: рядом несколько высших учебных заведений, что делает эту квартиру идеальным вариантом для родителей, которые хотят приобрести жилье для своих детей-студентов. Инвестиционная привлекательность: район пользуется стабильным спросом на аренду, что делает эту студию выгодным объектом для инвестиций. Новый дом: современные коммуникации, благоустроенный двор и привлекательная архитектура дома. Этаж: 7-й этаж — оптимальное сочетание тишины и отличных видов. Инфраструктура: в шаговой доступности магазины, кафе, остановки общественного транспорта. Документы: без ипотеки. Студия отлично подойдет как для комфортного проживания, так и для сдачи в аренду с высоким спросом! Не упустите возможность! Звоните и записывайтесь на просмотр прямо сейчас. ID объекта в нашей базе: 10080
    размещено: 18.12.2024 , обновлено: 11.12.2025

    1-к квартира, Пехотинцев, 2к3

    • 32.3 м2
    • 2/5 этаж
    • Состояние: хорошее
    3 200 000 ₽ (99100 ₽/м2)
    Продается уютная однокомнатная квартира, выполнен свежий косметический ремонт. Удобная планировка. Вместительный шкаф-купе в прихожей, кухонный гарнитур, шкаф в комнате и светильники остаются в подарок будущему владельцу.Вид из окон во двор, в шаговой доступности (3 минуты пешком) супермаркеты Кировский и Пятерочка, аптека, пекарня и другие объекты обслуживания. Очень зеленый большой двор с детской площадкой. Соседи приличные, не шумные.1 совершеннолетний собственник, квартира без обременений, остальное по телефону ID объекта в нашей базе: 11641
    размещено: 28.04.2024 , обновлено: 6.12.2025

Новостройки Екатеринбург, мкр-н. Новая Сортировка

Приоритет

Увеличивает просмотры в 3 раза

Ваше объявление показывается в списке выше обычных объявлений. подключить